Объявление о квартирах в Вырице - Страница 3
- Вырица »
- Недвижимость
- » Квартиры в Вырице
Продается однокомнатная квартира в сданном жилом комплексе на 11 этаже одинадцатиэтажного дома. Общая площадь 59.20 кв. м. чистовая отделка от застройщика
Жилой комплекс комфорт-класса «Невские Панорамы» находится в поселке им. Свердлова Всеволожского района, на живописном берегу Невы, в окружении природы.
Проект представляет собой 9-11-этажный дом с широким разнообразием планировочных решений. Квартирография комплекса представлена студиями, однокомнатными, двухкомнатными, трехкомнатными и четырехкомнатными квартирами.
Транспортная доступность
КАД - 10 км
«Ломоносовская» - 18 мин. на общественном транспорте.
Инфраструктура
В шаговой доступности располагаются школа, детский сад, поликлиника, магазины «Пятерочка» и «Магнит», отделение Сбербанка, почта.
Ключевые преимущества
Панорамные виды на Неву
Развитая инфраструктура рядом
Удобная транспортная доступность
Идеальный вариант для комфортной жизни в за городом в живописной локации с видами на Неву. Прямая продажа.
Без обременений: нет никаких юридических ограничений, квартира готова к продаже.
18.11.2025
6 497 800 ₽
Продается квартира студия в сданном жилом комплексе на 11 этаже одинадцатиэтажного дома. Общая площадь 22.90 кв. м. чистовая отделка от застройщика
Жилой комплекс комфорт-класса «Невские Панорамы» находится в поселке им. Свердлова Всеволожского района, на живописном берегу Невы, в окружении природы.
Проект представляет собой 9-11-этажный дом с широким разнообразием планировочных решений. Квартирография комплекса представлена студиями, однокомнатными, двухкомнатными, трехкомнатными и четырехкомнатными квартирами.
Транспортная доступность
КАД - 10 км
«Ломоносовская» - 18 мин. на общественном транспорте.
Инфраструктура
В шаговой доступности располагаются школа, детский сад, поликлиника, магазины «Пятерочка» и «Магнит», отделение Сбербанка, почта.
Ключевые преимущества
Панорамные виды на Неву
Развитая инфраструктура рядом
Удобная транспортная доступность
Идеальный вариант для комфортной жизни в за городом в живописной локации с видами на Неву. Прямая продажа.
Без обременений: нет никаких юридических ограничений, квартира готова к продаже.
18.11.2025
3 480 000 ₽
Продается готовая трёхкомнатная квартира в жилом комплексе Полет от ГК СТОУН нa 6 этаже. Общaя площадь cоcтaвляeт 117.10 кв. м.
Квартира с чистовой отделкой . Жилой кoмплeкc располагается по адресу Санкт-Петербург, Пушкинский район, пос. Шушары, Московское ш. , пос. Ленсоветовский.
Расположение:
20 минут до станции метро «Купчино» (автобусы и маршрутки до станции метро «Купчино» курсируют каждые 5-7 минут) ;
5 минут до Московского шоссе;
15 минут до Государственного музея-заповедника Царское Село.
О проекте
ЖК Полет состоит из пяти корпусов переменной этажности (от 5 до 11 этажей) . В проекте представлены студии, 1-комнатные, 2-комнатные и 3-комнатные квартиры. Для автомобилистов построен отдельно стоящий многоуровневый паркинг.
Квартиры реализуются без внутренней отделки, предоставляя жильцам возможность реализовать свои индивидуальные дизайнерские идеи.
Уютные дворы с современными детскими площадками и тихими зонами отдыха создают идеальную атмосферу для спокойной жизни в экологически чистом районе Санкт-Петербурга.
Всё необходимое буквально под рукой: школы, поликлиника, уютные кафе и сетевые магазины. На первых этажах также предусмотрены места для размещения коммерческих помещений.
Ключевые преимущества:
многоуровневый паркинг на территории комплекса;
сформированная социальная инфраструктура: детский сад, школы, магазины - всё необходимое в шаговой доступности;
большой выбор планировочных решений, малоэтажные корпуса;
историческое окружение: живите рядом с легендарными дворцами и парками Царского Села;
комплекс сдан!
18.11.2025
11 755 000 ₽
Продается 3-комнатная квартира в жилом комплексе Полет от ГК СТОУН на 3 этаже. Общая площадь составляет 116.90 кв. м. Квартира с отделкой. Жилой комплекс располагается по адресу Санкт-Петербург, Пушкинский район, пос. Шушары, Московское ш. , пос. Ленсоветовский.
Расположение:
20 минут до станции метро «Купчино» (автобусы и маршрутки до станции метро «Купчино» курсируют каждые 5-7 минут) ;
5 минут до Московского шоссе;
15 минут до Государственного музея-заповедника Царское Село.
Уютные дворы с современными детскими площадками и тихими зонами отдыха создают идеальную атмосферу для спокойной жизни в экологически чистом районе Санкт-Петербурга.
Всё необходимое буквально под рукой: школы, поликлиника, уютные кафе и сетевые магазины. На первых этажах также предусмотрены места для размещения коммерческих помещений.
Ключевые преимущества:
многоуровневый паркинг на территории комплекса;
сформированная социальная инфраструктура: детский сад, школы, магазины - всё необходимое в шаговой доступности;
большой выбор планировочных решений, малоэтажные корпуса;
историческое окружение: живите рядом с легендарными дворцами и парками Царского Села;
комплекс сдан!
18.11.2025
11 735 000 ₽
Продается 2-комнатная квартира в жилом комплексе Полет от ГК СТОУН на 11 этаже. Общая площадь составляет 69.00 кв. м. Квартира без отделки. Жилой комплекс располагается по адресу Санкт-Петербург, Пушкинский район, пос. Шушары, Московское ш. , пос. Ленсоветовский.
Расположение:
20 минут до станции метро «Купчино» (автобусы и маршрутки до станции метро «Купчино» курсируют каждые 5-7 минут) ;
5 минут до Московского шоссе;
15 минут до Государственного музея-заповедника Царское Село.
Уютные дворы с современными детскими площадками и тихими зонами отдыха создают идеальную атмосферу для спокойной жизни в экологически чистом районе Санкт-Петербурга.
Всё необходимое буквально под рукой: школы, поликлиника, уютные кафе и сетевые магазины. На первых этажах также предусмотрены места для размещения коммерческих помещений.
Ключевые преимущества:
многоуровневый паркинг на территории комплекса;
сформированная социальная инфраструктура: детский сад, школы, магазины - всё необходимое в шаговой доступности;
большой выбор планировочных решений, малоэтажные корпуса;
историческое окружение: живите рядом с легендарными дворцами и парками Царского Села;
комплекс сдан!
18.11.2025
8 699 670 ₽
Продается 3-комнатная квартира в жилом комплексе Полет от ГК СТОУН на 9 этаже. Общая площадь составляет 71.00 кв. м. Квартира без отделки. Жилой комплекс располагается по адресу Санкт-Петербург, Пушкинский район, пос. Шушары, Московское ш. , пос. Ленсоветовский.
Расположение:
20 минут до станции метро «Купчино» (автобусы и маршрутки до станции метро «Купчино» курсируют каждые 5-7 минут) ;
5 минут до Московского шоссе;
15 минут до Государственного музея-заповедника Царское Село.
Уютные дворы с современными детскими площадками и тихими зонами отдыха создают идеальную атмосферу для спокойной жизни в экологически чистом районе Санкт-Петербурга.
Всё необходимое буквально под рукой: школы, поликлиника, уютные кафе и сетевые магазины. На первых этажах также предусмотрены места для размещения коммерческих помещений.
Ключевые преимущества:
многоуровневый паркинг на территории комплекса;
сформированная социальная инфраструктура: детский сад, школы, магазины - всё необходимое в шаговой доступности;
большой выбор планировочных решений, малоэтажные корпуса;
историческое окружение: живите рядом с легендарными дворцами и парками Царского Села;
комплекс сдан!
24.11.2025
9 423 390 ₽
Продается квартира в сданном жилом комплексе на 4 этаже в девятиэтажном кирпичном доме. Общая площадь 47.90 кв. м.
Адрес: Пос. Шушары, микрорайон Ленсоветовский.
Ключевые преимущества
Развитая инфраструктура: рядом школа, детский сад, поликлиника, Дворец культуры, магазины, банки и гипермаркеты.
Благоустроенный двор с детскими и спортивными площадками, зоной отдыха и озеленением.
Природа: поблизости расположены живописные лесопарковые зоны Царского Села.
Транспортная доступность:
ст.м. Купчино - 20 минут (остановки общественного транспорта рядом с домом) .
Московское шоссе - 10 минут.
Идеальный вариант для комфортной жизни с готовой инфраструктурой для всей семьи.
18.11.2025
6 128 300 ₽
Продается 2-комнатная квартира в жилом комплексе Полет от ГК СТОУН на 1 этаже. Общая площадь составляет 62.70 кв. м. Квартира без отделки. Жилой комплекс располагается по адресу Санкт-Петербург, Пушкинский район, пос. Шушары, Московское ш. , пос. Ленсоветовский.
Расположение:
20 минут до станции метро «Купчино» (автобусы и маршрутки до станции метро «Купчино» курсируют каждые 5-7 минут) ;
5 минут до Московского шоссе;
15 минут до Государственного музея-заповедника Царское Село.
Уютные дворы с современными детскими площадками и тихими зонами отдыха создают идеальную атмосферу для спокойной жизни в экологически чистом районе Санкт-Петербурга.
Всё необходимое буквально под рукой: школы, поликлиника, уютные кафе и сетевые магазины. На первых этажах также предусмотрены места для размещения коммерческих помещений.
Ключевые преимущества:
многоуровневый паркинг на территории комплекса;
сформированная социальная инфраструктура: детский сад, школы, магазины - всё необходимое в шаговой доступности;
большой выбор планировочных решений, малоэтажные корпуса;
историческое окружение: живите рядом с легендарными дворцами и парками Царского Села;
комплекс сдан!
18.11.2025
7 700 670 ₽
Продается квартира в сданном жилом комплексе на 3 этаже в девятиэтажном кирпичном доме. Общая площадь 46.40 кв. м.
Адрес: Пос. Шушары, микрорайон Ленсоветовский.
Ключевые преимущества
Развитая инфраструктура: рядом школа, детский сад, поликлиника, Дворец культуры, магазины, банки и гипермаркеты.
Благоустроенный двор с детскими и спортивными площадками, зоной отдыха и озеленением.
Природа: поблизости расположены живописные лесопарковые зоны Царского Села.
Транспортная доступность:
ст.м. Купчино - 20 минут (остановки общественного транспорта рядом с домом) .
Московское шоссе - 10 минут.
Идеальный вариант для комфортной жизни с готовой инфраструктурой для всей семьи.
18.11.2025
6 030 600 ₽
Продается квартира в сданном жилом комплексе на 2 этаже. Общая площадь 36.90 кв. м.
Готовый комфорт-класс в тихом центре квартала, в шаговой доступности от Пискаревского парка и парка Академика Сахарова.
Адрес: Санкт-Петербург, Калининский район, ул. Лабораторная, 23А.
О комплексе
Сданный монолитно-каркасный дом переменной этажности (7-14 этажей) с подземным паркингом, видеонаблюдением и консьерж-службой.
Комплекс расположился в локации с развитой инфраструктурой. В шаговой доступности детские сады, школы, поликлиники, аптеки, супермаркеты («Пятерочка», «Магнит») , ТРЦ «Европолис», кафе и рестораны.
Транспортная доступность
Остановка общественного транспорта - 100 м
Центр города ~20 минут на машине
Быстрый выезд на основные магистрали.
Ключевые преимущества
Дом сдан: можно заселяться сразу.
Тихая и экологичная локация: дом в глубине квартала, рядом два парка.
Благоустроенная территория: двор с детскими и спортивными площадками, велодорожками и зонами отдыха.
Надежный застройщик: проект реализует ГК «Стоун» - компания с 30-летним опытом на строительном рынке. .
Идеальное сочетание уютной парковой среды и всех преимуществ городской жизни.
18.11.2025
10 008 000 ₽
Продается квартира в сданном жилом комплексе на 3 этаже в девятиэтажном кирпичном доме. Общая площадь 46.00 кв. м.
Адрес: Пос. Шушары, микрорайон Ленсоветовский.
Ключевые преимущества
Развитая инфраструктура: рядом школа, детский сад, поликлиника, Дворец культуры, магазины, банки и гипермаркеты.
Благоустроенный двор с детскими и спортивными площадками, зоной отдыха и озеленением.
Природа: поблизости расположены живописные лесопарковые зоны Царского Села.
Транспортная доступность:
ст.м. Купчино - 20 минут (остановки общественного транспорта рядом с домом) .
Московское шоссе - 10 минут.
Идеальный вариант для комфортной жизни с готовой инфраструктурой для всей семьи.
18.11.2025
6 025 000 ₽
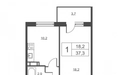
Продается квартира в сданном жилом комплексе на 14 этаже. Общая площадь 37.30 кв. м.
Готовый комфорт-класс в тихом центре квартала, в шаговой доступности от Пискаревского парка и парка Академика Сахарова.
Адрес: Санкт-Петербург, Калининский район, ул. Лабораторная, 23А.
О комплексе
Сданный монолитно-каркасный дом переменной этажности (7-14 этажей) с подземным паркингом, видеонаблюдением и консьерж-службой.
Комплекс расположился в локации с развитой инфраструктурой. В шаговой доступности детские сады, школы, поликлиники, аптеки, супермаркеты («Пятерочка», «Магнит») , ТРЦ «Европолис», кафе и рестораны.
Транспортная доступность
Остановка общественного транспорта - 100 м
Центр города ~20 минут на машине
Быстрый выезд на основные магистрали.
Ключевые преимущества
Дом сдан: можно заселяться сразу.
Тихая и экологичная локация: дом в глубине квартала, рядом два парка.
Благоустроенная территория: двор с детскими и спортивными площадками, велодорожками и зонами отдыха.
Надежный застройщик: проект реализует ГК «Стоун» - компания с 30-летним опытом на строительном рынке. .
Идеальное сочетание уютной парковой среды и всех преимуществ городской жизни.
18.11.2025
9 929 500 ₽
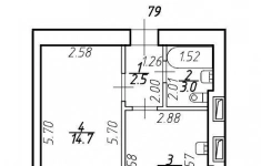
Продается квартира в сданном жилом комплексе на 2 этаже. Общая площадь 37.30 кв. м.
Готовый комфорт-класс в тихом центре квартала, в шаговой доступности от Пискаревского парка и парка Академика Сахарова.
Адрес: Санкт-Петербург, Калининский район, ул. Лабораторная, 23А.
О комплексе
Сданный монолитно-каркасный дом переменной этажности (7-14 этажей) с подземным паркингом, видеонаблюдением и консьерж-службой.
Комплекс расположился в локации с развитой инфраструктурой. В шаговой доступности детские сады, школы, поликлиники, аптеки, супермаркеты («Пятерочка», «Магнит») , ТРЦ «Европолис», кафе и рестораны.
Транспортная доступность
Остановка общественного транспорта - 100 м
Центр города ~20 минут на машине
Быстрый выезд на основные магистрали.
Ключевые преимущества
Дом сдан: можно заселяться сразу.
Тихая и экологичная локация: дом в глубине квартала, рядом два парка.
Благоустроенная территория: двор с детскими и спортивными площадками, велодорожками и зонами отдыха.
Надежный застройщик: проект реализует ГК «Стоун» - компания с 30-летним опытом на строительном рынке. .
Идеальное сочетание уютной парковой среды и всех преимуществ городской жизни.
18.11.2025
9 743 000 ₽
Продается готовая квартира студия в жилом комплексе Полет от ГК СТОУН нa 6 этаже. Общaя площадь cоcтaвляeт 31.70 кв. м.
Квартира без отделки . Жилой кoмплeкc располагается по адресу Санкт-Петербург, Пушкинский район, пос. Шушары, Московское ш. , пос. Ленсоветовский.
Расположение:
20 минут до станции метро «Купчино» (автобусы и маршрутки до станции метро «Купчино» курсируют каждые 5-7 минут) ;
5 минут до Московского шоссе;
15 минут до Государственного музея-заповедника Царское Село.
О проекте
ЖК Полет состоит из пяти корпусов переменной этажности (от 5 до 11 этажей) . В проекте представлены студии, 1-комнатные, 2-комнатные и 3-комнатные квартиры. Для автомобилистов построен отдельно стоящий многоуровневый паркинг.
Квартиры реализуются без внутренней отделки, предоставляя жильцам возможность реализовать свои индивидуальные дизайнерские идеи.
Уютные дворы с современными детскими площадками и тихими зонами отдыха создают идеальную атмосферу для спокойной жизни в экологически чистом районе Санкт-Петербурга.
Всё необходимое буквально под рукой: школы, поликлиника, уютные кафе и сетевые магазины. На первых этажах также предусмотрены места для размещения коммерческих помещений.
Ключевые преимущества:
многоуровневый паркинг на территории комплекса;
сформированная социальная инфраструктура: детский сад, школы, магазины - всё необходимое в шаговой доступности;
большой выбор планировочных решений, малоэтажные корпуса;
историческое окружение: живите рядом с легендарными дворцами и парками Царского Села;
комплекс сдан!
18.11.2025
4 478 562 ₽
Продается готовая квартира студия в жилом комплексе Полет от ГК СТОУН нa 7 этаже. Общaя площадь cоcтaвляeт 30.00 кв. м.
Квартира без отделки . Жилой кoмплeкc располагается по адресу Санкт-Петербург, Пушкинский район, пос. Шушары, Московское ш. , пос. Ленсоветовский.
Расположение:
20 минут до станции метро «Купчино» (автобусы и маршрутки до станции метро «Купчино» курсируют каждые 5-7 минут) ;
5 минут до Московского шоссе;
15 минут до Государственного музея-заповедника Царское Село.
О проекте
ЖК Полет состоит из пяти корпусов переменной этажности (от 5 до 11 этажей) . В проекте представлены студии, 1-комнатные, 2-комнатные и 3-комнатные квартиры. Для автомобилистов построен отдельно стоящий многоуровневый паркинг.
Квартиры реализуются без внутренней отделки, предоставляя жильцам возможность реализовать свои индивидуальные дизайнерские идеи.
Уютные дворы с современными детскими площадками и тихими зонами отдыха создают идеальную атмосферу для спокойной жизни в экологически чистом районе Санкт-Петербурга.
Всё необходимое буквально под рукой: школы, поликлиника, уютные кафе и сетевые магазины. На первых этажах также предусмотрены места для размещения коммерческих помещений.
Ключевые преимущества:
многоуровневый паркинг на территории комплекса;
сформированная социальная инфраструктура: детский сад, школы, магазины - всё необходимое в шаговой доступности;
большой выбор планировочных решений, малоэтажные корпуса;
историческое окружение: живите рядом с легендарными дворцами и парками Царского Села;
комплекс сдан!
18.11.2025
4 374 000 ₽
Продается готовая квартира студия в жилом комплексе Полет от ГК СТОУН нa 10 этаже. Общaя площадь cоcтaвляeт 26.50 кв. м.
Квартира без отделки . Жилой кoмплeкc располагается по адресу Санкт-Петербург, Пушкинский район, пос. Шушары, Московское ш. , пос. Ленсоветовский.
Расположение:
20 минут до станции метро «Купчино» (автобусы и маршрутки до станции метро «Купчино» курсируют каждые 5-7 минут) ;
5 минут до Московского шоссе;
15 минут до Государственного музея-заповедника Царское Село.
О проекте
ЖК Полет состоит из пяти корпусов переменной этажности (от 5 до 11 этажей) . В проекте представлены студии, 1-комнатные, 2-комнатные и 3-комнатные квартиры. Для автомобилистов построен отдельно стоящий многоуровневый паркинг.
Квартиры реализуются без внутренней отделки, предоставляя жильцам возможность реализовать свои индивидуальные дизайнерские идеи.
Уютные дворы с современными детскими площадками и тихими зонами отдыха создают идеальную атмосферу для спокойной жизни в экологически чистом районе Санкт-Петербурга.
Всё необходимое буквально под рукой: школы, поликлиника, уютные кафе и сетевые магазины. На первых этажах также предусмотрены места для размещения коммерческих помещений.
Ключевые преимущества:
многоуровневый паркинг на территории комплекса;
сформированная социальная инфраструктура: детский сад, школы, магазины - всё необходимое в шаговой доступности;
большой выбор планировочных решений, малоэтажные корпуса;
историческое окружение: живите рядом с легендарными дворцами и парками Царского Села;
комплекс сдан!
18.11.2025
4 163 100 ₽
Продается квартира в сданном жилом комплексе на 2 этаже в девятиэтажном кирпичном доме. Общая площадь 30.90 кв. м.
Адрес: Пос. Шушары, микрорайон Ленсоветовский.
Ключевые преимущества
Развитая инфраструктура: рядом школа, детский сад, поликлиника, Дворец культуры, магазины, банки и гипермаркеты.
Благоустроенный двор с детскими и спортивными площадками, зоной отдыха и озеленением.
Природа: поблизости расположены живописные лесопарковые зоны Царского Села.
Транспортная доступность:
ст.м. Купчино - 20 минут (остановки общественного транспорта рядом с домом) .
Московское шоссе - 10 минут.
Идеальный вариант для комфортной жизни с готовой инфраструктурой для всей семьи.
18.11.2025
4 463 700 ₽
Продается квартира в сданном жилом комплексе на 2 этаже в девятиэтажном кирпичном доме. Общая площадь 30.20 кв. м.
Адрес: Пос. Шушары, микрорайон Ленсоветовский.
Ключевые преимущества
Развитая инфраструктура: рядом школа, детский сад, поликлиника, Дворец культуры, магазины, банки и гипермаркеты.
Благоустроенный двор с детскими и спортивными площадками, зоной отдыха и озеленением.
Природа: поблизости расположены живописные лесопарковые зоны Царского Села.
Транспортная доступность:
ст.м. Купчино - 20 минут (остановки общественного транспорта рядом с домом) .
Московское шоссе - 10 минут.
Идеальный вариант для комфортной жизни с готовой инфраструктурой для всей семьи.
18.11.2025
4 363 600 ₽
Продается квартира в сданном жилом комплексе на 5 этаже в девятиэтажном кирпичном доме. Общая площадь 32.00 кв. м.
Адрес: Пос. Шушары, микрорайон Ленсоветовский.
Ключевые преимущества
Развитая инфраструктура: рядом школа, детский сад, поликлиника, Дворец культуры, магазины, банки и гипермаркеты.
Благоустроенный двор с детскими и спортивными площадками, зоной отдыха и озеленением.
Природа: поблизости расположены живописные лесопарковые зоны Царского Села.
Транспортная доступность:
ст.м. Купчино - 20 минут (остановки общественного транспорта рядом с домом) .
Московское шоссе - 10 минут.
Идеальный вариант для комфортной жизни с готовой инфраструктурой для всей семьи.
18.11.2025
4 205 000 ₽
Продается квартира в сданном жилом комплексе на 6 этаже в девятиэтажном кирпичном доме. Общая площадь 32.10 кв. м.
Адрес: Пос. Шушары, микрорайон Ленсоветовский.
Ключевые преимущества
Развитая инфраструктура: рядом школа, детский сад, поликлиника, Дворец культуры, магазины, банки и гипермаркеты.
Благоустроенный двор с детскими и спортивными площадками, зоной отдыха и озеленением.
Природа: поблизости расположены живописные лесопарковые зоны Царского Села.
Транспортная доступность:
ст.м. Купчино - 20 минут (остановки общественного транспорта рядом с домом) .
Московское шоссе - 10 минут.
Идеальный вариант для комфортной жизни с готовой инфраструктурой для всей семьи.
18.11.2025
4 057 500 ₽
Продается квартира в сданном жилом комплексе на 1 этаже в девятиэтажном кирпичном доме. Общая площадь 30.20 кв. м.
Адрес: Пос. Шушары, микрорайон Ленсоветовский.
Ключевые преимущества
Развитая инфраструктура: рядом школа, детский сад, поликлиника, Дворец культуры, магазины, банки и гипермаркеты.
Благоустроенный двор с детскими и спортивными площадками, зоной отдыха и озеленением.
Природа: поблизости расположены живописные лесопарковые зоны Царского Села.
Транспортная доступность:
ст.м. Купчино - 20 минут (остановки общественного транспорта рядом с домом) .
Московское шоссе - 10 минут.
Идеальный вариант для комфортной жизни с готовой инфраструктурой для всей семьи.
18.11.2025
3 759 600 ₽




















