Объявление о квартирах в Вырице - Страница 2
- Вырица »
- Недвижимость
- » Квартиры в Вырице
Продается 2-комн. квартира с европланировкой, площадью 75,28 м2, в 13 минутах пешком от метро Новочеркасская в Красногвардейском районе Санкт-Петербурга.
Жилая площадь 26,59 м2, кухня 27,02 м2.
Квартира располагается в ЖК Magnifika Residence.
Жить в Magnifika Residence — значит брать от города лучшее: камерную атмосферу Охты и близость к историческому центру. У жителей Magnifika все под рукой: современный торгово-развлекательный центр «Охта-Молл» — через дорогу, кафе, рестораны, кино и театры — в двух шагах. Дорога до центра города займет всего несколько минут как на собственном, так и на общественном транспорте.
Magnifika — это единство скандинавской архитектуры, стилистики европейских портовых городов и типично петербургских архитектурных приёмов. Фасады с облицовкой из кирпича ручной формовки, панорамное остекление, разнообразие балконов и дизайн общественных пространств в стиле лофт — всё создано для того, чтобы называть Magnifika домом мечты.
Дворы Magnifika – это обилие зелени, взрослые деревья, зелёные холмы, разноуровневое освещение и природные материалы. Пространство закрыто от случайных прохожих и включает в себя места для отдыха, общения и прогулок. Приезжаете посмотреть своими глазами – и вы будете приятно удивлены вниманию к деталям и качеству исполнению.
Дома расположены на полностью огороженной и закрытой от посторонних территории с системами видеонаблюдения и контроля доступа. В парадных размещены колясочные, а у входов в подъезды — велопарковки. К подземному паркингу и индивидуальным кладовым можно спуститься на лифте OTIS из своей парадной.
У всех жителей Magnifika есть доступ к уже реализованной благоустроенной набережной, находиться на которой комфортно в любое время года. Прогулочная зона у воды, амфитеатр, гамаки, столы для настольных игр и зоны йоги: все это уже готово и ждет вас непосредственно около жилого комплекса.
17.01.2026
26 000 000 ₽
Продается 1-комн. квартира, площадью 31.9 кв. м в Пушкинском районе Санкт-Петербурга.
Жилая площадь 15.4 кв. м, кухня 10.9 кв. м, ремонта нет, комнаты изолированные.
Квартира располагается на 4 этаже 9-этажного кирпичного дома.
20.01.2026
4 192 000 ₽
Продается 1-комн. квартира, площадью 32.4 кв. м в Пушкинском районе Санкт-Петербурга.
Жилая площадь 15.8 м2, кухня 11 кв. м, ремонта нет, комнаты изолированные.
Квартира располагается на 4 этаже 9-этажного кирпичного дома.
20.01.2026
4 192 200 ₽
Продается студия, площадью 29.4 кв.м.
Жилая площадь 19.75 кв. м, кухня 4.41 кв. м, ремонта нет, комнаты смежные.
Квартира располагается на 10 этаже 11-этажного монолитного дома.
20.01.2026
3 966 920 ₽
Продается студия, площадью 21.3 м2 в монолитно-кирпичной новостройке в 15 мин. транспортом от м. Девяткино. Возможен вариант покупки с использованием ипотечных средств, есть рассрочка, возможна покупка с использованием материнского капитала.
Жилая площадь 13.26 м2, чистовая отделка, комнаты изолированные.
Квартира располагается на 1 этаже 17-этажного дома в ЖК Стороны света-2.
Застройщик - ГК Прок, сдача дома - I квартал 2027 года, высота потолков 2.54 м. Инфраструктура: детские площадки, спортивные площадки, места для отдыха.
ЖК комфорт-класса "Стороны света-2 строится в г. Бугры Ленинградской области, прямо на границе с Санкт-Петербургом. Мечта о спокойной жизни вблизи северной столицы стала еще реальнее.
Акция: Квартиры высокой готовности от 3,8 млн. рублей! Отделка на выбор: чистовая либо white box!
Программа рассрочки «Фиксированный ежемесячный платеж» для ЖК "Стороны света-2" (корпуса 17 и 20) !
Первый взнос -25% от стоимости квартиры. Оплачивается при заключении Договора;
Ежемесячно вносится фиксированная сумма (35 000 рублей за студию и 1-к квартиру; 45 000 рублей - за 2-к и 3-к квартиры) ;
Остаток вносится до 01.12.2026 года.
Программа рассрочки «3 платежа» для ЖК "Стороны света-2" (корпуса 17 и 20) !
Первый взнос -25% от стоимости квартиры. Оплачивается при заключении Договора;
Платеж 35% от стоимости квартиры вносится через 6 месяцев;
Остаток 40% вносится до 01.12.2026 года.
От ЖК ходит общественный транспорт до ст. метро «Девяткино», «пр. Просвещения» и «Парнас». Есть 2 удобных выезда на КАД, развитая система наземного транспорта. Ж/Д станция «Девяткино», автовокзал «Северный» в 15 минутах езды.
Аккредитованные банки: ВТБ, Банк ДОМ. РФ, Промсвязьбанк, Ак Барс Банк, Альфа-Банк, СберБанк, Абсолют Банк, Банк «УБРиР», Россельхозбанк, Банк «Санкт-Петербург, Совкомбанк.
Позвоните и узнайте условия покупки прямо сейчас!
12.12.2025
3 791 400 ₽
Продается студия, площадью 21.3 м2 в монолитно-кирпичной новостройке в 15 мин. транспортом от м. Девяткино. Возможен вариант покупки с использованием ипотечных средств, есть рассрочка, возможна покупка с использованием материнского капитала.
Жилая площадь 13.26 м2, чистовая отделка, комнаты изолированные.
Квартира располагается на 1 этаже 17-этажного дома в ЖК Стороны света-2.
Застройщик - ГК Прок, сдача дома - I квартал 2027 года, высота потолков 2.54 м. Инфраструктура: детские площадки, спортивные площадки, места для отдыха.
ЖК комфорт-класса "Стороны света-2 строится в г. Бугры Ленинградской области, прямо на границе с Санкт-Петербургом. Мечта о спокойной жизни вблизи северной столицы стала еще реальнее.
Акция: Квартиры высокой готовности от 3,8 млн. рублей! Отделка на выбор: чистовая либо white box!
Программа рассрочки «Фиксированный ежемесячный платеж» для ЖК "Стороны света-2" (корпуса 17 и 20) !
Первый взнос -25% от стоимости квартиры. Оплачивается при заключении Договора;
Ежемесячно вносится фиксированная сумма (35 000 рублей за студию и 1-к квартиру; 45 000 рублей - за 2-к и 3-к квартиры) ;
Остаток вносится до 01.12.2026 года.
Программа рассрочки «3 платежа» для ЖК "Стороны света-2" (корпуса 17 и 20) !
Первый взнос -25% от стоимости квартиры. Оплачивается при заключении Договора;
Платеж 35% от стоимости квартиры вносится через 6 месяцев;
Остаток 40% вносится до 01.12.2026 года.
От ЖК ходит общественный транспорт до ст. метро «Девяткино», «пр. Просвещения» и «Парнас». Есть 2 удобных выезда на КАД, развитая система наземного транспорта. Ж/Д станция «Девяткино», автовокзал «Северный» в 15 минутах езды.
Аккредитованные банки: ВТБ, Банк ДОМ. РФ, Промсвязьбанк, Ак Барс Банк, Альфа-Банк, СберБанк, Абсолют Банк, Банк «УБРиР», Россельхозбанк, Банк «Санкт-Петербург, Совкомбанк.
Позвоните и узнайте условия покупки прямо сейчас!
12.12.2025
3 791 400 ₽
Продается 1-комн. квартира, площадью 39.32 м2 в малоэтажной. Возможен вариант покупки с использованием ипотечных средств, возможна покупка с использованием материнского капитала, есть военная ипотека.
Жилая площадь 21.68 м2, кухня 10.72 м2, комнаты изолированные.
Квартира располагается на 4 этаже 4-этажного дома в ЖК Верево Сити.
Застройщик - Строй Бизнес Групп специализированный застройщик, сдача дома - II квартал 2025 года, закрытая территория.
Парковка автомобилей - наземная, парковка охраняется. Обеспечение безопасности: видеонаблюдение. Инфраструктура: школа, детский сад, поликлиника, детские площадки, спортивные площадки, места для отдыха, супермаркет.
Для бронирования конкретной квартиры звоните по номеру телефона в объявлении.
ЖК Верево Сити - это современный городской жилой квартал малоэтажной застройки.
В 10-ти четырехэтажных корпусах сможет поселиться 1171 семья. Дома располагаются блоками, образуя уютные закрытые и безопасные дворы с большим количеством зеленых насаждений и с зонами отдыха для взрослых и детей.
В ЖК Верево Сити самое низкое ценовое предложение в Ленинградской области и пригородах Санкт-Петербурга, что позволит вам приобрести жилье большей площади, нежели в других жилых комплексах.
Отделка - черновая.
Комфортная среда для жизни:
- малоэтажные красивые здания современной архитектуры, с большой площадью остекления
- обособленная территория
- продуманные планировки, как привычные одно- и двухкомнатные квартиры, так и европланировки
- небольшая плотность населения: комплекс располагается на 6,5 га земли
- полная внутренняя инфраструктура, которая позволит жить с комфортом
Позвоните и узнайте условия покупки прямо сейчас!
Аккредитованные банки: ПАО Сбербанк
Позвоните и узнайте условия покупки прямо сейчас!
03.12.2025
4 529 664 ₽
Продается 2-комн. квартира, площадью 42.6 кв.м.
Жилая площадь 19.3 кв. м, кухня 6.39 кв. м, ремонта нет.
Квартира располагается на 4 этаже 4-этажного монолитного дома.
20.01.2026
3 580 800 ₽
Продается 2-комн. квартира, площадью 46.2 м2 в Пушкинском районе Санкт-Петербурга.
Жилая площадь 26.8 кв. м, кухня 8.8 кв. м, ремонта нет.
Квартира располагается на 5 этаже 9-этажного кирпичного дома.
20.01.2026
5 358 000 ₽
Продается 2-комн. квартира, площадью 50.2 кв. м в Пушкинском районе Санкт-Петербурга.
Жилая площадь 31.2 м2, кухня 8.4 кв. м, ремонта нет.
Квартира располагается на 3 этаже 9-этажного кирпичного дома.
20.01.2026
6 169 400 ₽
Продается 1-комн. квартира, площадью 37.95 м2 в малоэтажной. Возможен вариант покупки с использованием ипотечных средств, возможна покупка с использованием материнского капитала, есть военная ипотека.
Жилая площадь 14.43 м2, кухня 15 м2, комнаты изолированные.
Квартира располагается на 1 этаже 4-этажного дома в ЖК Верево Сити.
Застройщик - Строй Бизнес Групп специализированный застройщик, сдача дома - II квартал 2025 года, закрытая территория.
Парковка автомобилей - наземная, парковка охраняется. Обеспечение безопасности: видеонаблюдение. Инфраструктура: школа, детский сад, поликлиника, детские площадки, спортивные площадки, места для отдыха, супермаркет.
Для бронирования конкретной квартиры звоните по номеру телефона в объявлении.
ЖК Верево Сити - это современный городской жилой квартал малоэтажной застройки.
В 10-ти четырехэтажных корпусах сможет поселиться 1171 семья. Дома располагаются блоками, образуя уютные закрытые и безопасные дворы с большим количеством зеленых насаждений и с зонами отдыха для взрослых и детей.
В ЖК Верево Сити самое низкое ценовое предложение в Ленинградской области и пригородах Санкт-Петербурга, что позволит вам приобрести жилье большей площади, нежели в других жилых комплексах.
Отделка - черновая.
Комфортная среда для жизни:
- малоэтажные красивые здания современной архитектуры, с большой площадью остекления
- обособленная территория
- продуманные планировки, как привычные одно- и двухкомнатные квартиры, так и европланировки
- небольшая плотность населения: комплекс располагается на 6,5 га земли
- полная внутренняя инфраструктура, которая позволит жить с комфортом
Позвоните и узнайте условия покупки прямо сейчас!
Аккредитованные банки: ПАО Сбербанк
Позвоните и узнайте условия покупки прямо сейчас!
03.12.2025
4 371 840 ₽
Продается 1-комн. квартира, площадью 35.51 м2.
Жилая площадь 13.71 кв. м, кухня 13.83 кв. м, ремонта нет, комнаты изолированные.
Квартира располагается на 10 этаже 11-этажного монолитного дома.
20.01.2026
4 412 730 ₽
Продается 1-комн. квартира, площадью 35.3 кв.м.
Жилая площадь 16.25 кв. м, кухня 10.36 кв. м, ремонта нет, комнаты изолированные.
Квартира располагается на 10 этаже 11-этажного монолитного дома.
20.01.2026
4 448 190 ₽
Продается 1-комн. квартира, площадью 59.2 кв.м.
Жилая площадь 21.7 м2, кухня 21.38 кв. м, ремонта нет, комнаты изолированные.
Квартира располагается на 10 этаже 11-этажного монолитного дома.
20.01.2026
6 490 950 ₽
Продается 1-комн. квартира, площадью 36.8 кв.м.
Жилая площадь 12.66 м2, кухня 13.74 кв. м, ремонта нет, комнаты изолированные.
Квартира располагается на 11 этаже 11-этажного монолитного дома.
20.01.2026
4 497 800 ₽
Продается 1-комн. квартира, площадью 59.2 м2.
Жилая площадь 21.7 м2, кухня 21.38 кв. м, ремонта нет, комнаты изолированные.
Квартира располагается на 11 этаже 11-этажного монолитного дома.
20.01.2026
6 497 800 ₽
Продается студия, площадью 22.9 м2.
Жилая площадь 15.79 кв. м, кухня 3.44 кв. м, ремонта нет, комнаты смежные.
Квартира располагается на 11 этаже 11-этажного монолитного дома.
20.01.2026
3 480 000 ₽
Продается 2-комн. квартира, площадью 46.4 кв. м в Пушкинском районе Санкт-Петербурга.
Жилая площадь 26.9 кв. м, кухня 8.7 кв. м, ремонта нет.
Квартира располагается на 3 этаже 9-этажного кирпичного дома.
20.01.2026
6 030 600 ₽
Продается 1-комн. квартира, площадью 36.9 м2 м. Площадь Мужества в Калининском районе Санкт-Петербурга.
Жилая площадь 17.9 м2, кухня 10 кв. м, ремонта нет, комнаты изолированные.
Квартира располагается на 2 этаже 14-этажного монолитного дома.
20.01.2026
10 008 000 ₽
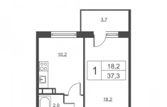
Продается 1-комн. квартира, площадью 37.3 кв. м м. Площадь Мужества в Калининском районе Санкт-Петербурга.
Жилая площадь 18.2 м2, кухня 10.2 кв. м, ремонта нет, комнаты изолированные.
Квартира располагается на 14 этаже 14-этажного монолитного дома.
20.01.2026
9 929 500 ₽
Продается 1-комн. квартира, площадью 37.3 кв. м м. Площадь Мужества в Калининском районе Санкт-Петербурга.
Жилая площадь 17.5 м2, кухня 10.2 кв. м, ремонта нет, комнаты изолированные.
Квартира располагается на 2 этаже 14-этажного монолитного дома.
20.01.2026
9 743 000 ₽




















