Сдам коммерческую недвижимость 1648.8 м2
Размещено вчера в 02:34
0
0
Жалоба
- Параметры объявления
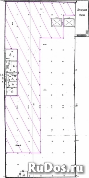
- Общая площадь (м2): 1648.8
- Описание
-Производственно-складское теплое помещение, общей площадью 1648,8 кв.м, 1-2-этаж (108 кв.м - 1 этаж ; 1540,8 кв.м. - 2 этаж , высота потолков 5.5 метров.) Полы выровненные, бетонная стяжка с упрочняющим верхним слоем, антипылевым покрытием. В наличии система промышленной канализации, в т.ч. трапы. Система ХВС, ГВС - водонагреватели, электрическая мощность - 700 квт, возможность увеличения до 1,2 МВт при условии выполнения электромонтажных работ (выкупать мощность не нужно, на здание выделено 2,8 МВт). Территория газифицирована, возможность подключения к газопроводу. Шаг колонн в помещении – 6х6 м. кв. Установлен подъемник – 1 шт, + есть запасной (Тех. характеристика одного подъемника: электродвигатель 15 квт, грузоподъемность – 3 тонны, высота подъема – 5 м., длина платформы – 5 м, ширина платформы – 3,8 м). Ворота подъемно-секционные роллерного типа под газель - 1 шт (h 3,3 м., ширина 3 м). Имеются встроенные подсобные помещения (раздевалки, душевые, столовая, бытовые помещения и т.д) . Долгосрочный договор приветствуется. Подходит под пищевку. КУ оплачиваются отдельно. Большая прилегающая территория.
