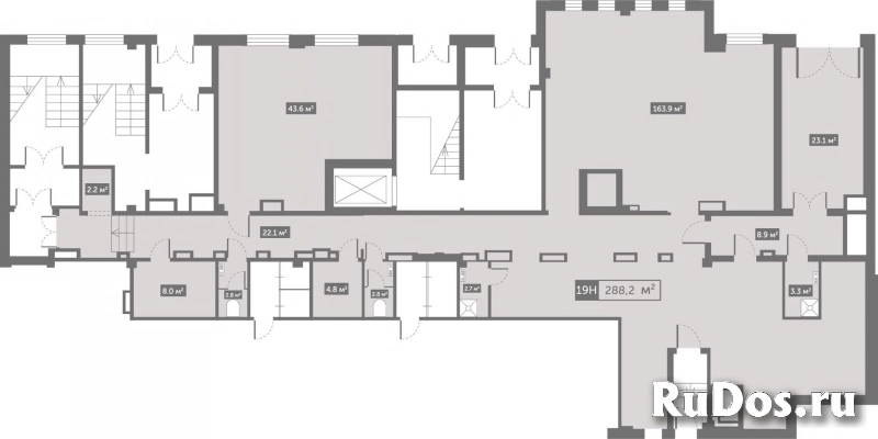
Продам коммерческую недвижимость 288 м2
Размещено 06 ноября 2025
24
0
Жалоба
- Параметры объявления
- Общая площадь (м2): 288
- Описание
Продается офисное помещение в сданном жилом комплексе Шведская Крона. Прямая продажа от застройщика.
ЖК «Шведская крона» расположен в Приморском районе Санкт-Петербурга в престижной локации возле Удельного парка. Дома сданы и заселены, что обеспечивает стабильный пешеходный трафик и востребованность услуг малого бизнеса среди жителей ЖК.
ЖК «Шведская крона» расположен в Приморском районе Санкт-Петербурга в престижной локации возле Удельного парка. Дома сданы и заселены, что обеспечивает стабильный пешеходный трафик и востребованность услуг малого бизнеса среди жителей ЖК.
