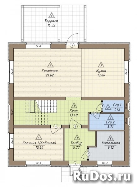
2-этажный дом, 165 м² в посёлке «Павловы Озера»

Объявление снято с публикации. Посмотреть другие объявления в этой категории
Размещено 19 декабря 2023 26
  • Параметры объявления
  • Площадь дома (м2): 165
  • Площадь участка (соток): 7
Показать описание

  • Описание

Похожие объявления


Бревенчатый дом с баней у лесного озера
Михаил Анатольевич
6 500 000 ₽
Комментарии остановлены!
0.2727