Объявление о квартирах в Ефимовском - Страница 5
- Ефимовский »
- Недвижимость
- » Квартиры в Ефимовском
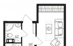
Продается 1-комн. квартира, площадью 39.32 м2 в малоэтажной. Возможен вариант покупки с использованием ипотечных средств, возможна покупка с использованием материнского капитала, есть военная ипотека.
Жилая площадь 21.68 м2, кухня 10.7 м2, комнаты изолированные.
Квартира располагается на 4 этаже 4-этажного дома в ЖК Верево Сити.
Застройщик - Строй Бизнес Групп специализированный застройщик, сдача дома - II квартал 2025 года, закрытая территория.
Парковка автомобилей - наземная, парковка охраняется. Обеспечение безопасности: видеонаблюдение. Инфраструктура: школа, детский сад, поликлиника, детские площадки, спортивные площадки, места для отдыха, супермаркет.
Для бронирования конкретной квартиры звоните по номеру телефона в объявлении.
ЖК Верево Сити - это современный городской жилой квартал малоэтажной застройки.
В 10-ти четырехэтажных корпусах сможет поселиться 1171 семья. Дома располагаются блоками, образуя уютные закрытые и безопасные дворы с большим количеством зеленых насаждений и с зонами отдыха для взрослых и детей.
В ЖК Верево Сити самое низкое ценовое предложение в Ленинградской области и пригородах Санкт-Петербурга, что позволит вам приобрести жилье большей площади, нежели в других жилых комплексах.
Отделка - черновая.
Комфортная среда для жизни:
- малоэтажные красивые здания современной архитектуры, с большой площадью остекления
- обособленная территория
- продуманные планировки, как привычные одно- и двухкомнатные квартиры, так и европланировки
- небольшая плотность населения: комплекс располагается на 6,5 га земли
- полная внутренняя инфраструктура, которая позволит жить с комфортом
Позвоните и узнайте условия покупки прямо сейчас!
Аккредитованные банки: ПАО Сбербанк
Позвоните и узнайте условия покупки прямо сейчас!
03.12.2025
4 529 664 ₽
Продается 1-комн. квартира, площадью 39.32 м2 в малоэтажной. Возможен вариант покупки с использованием ипотечных средств, возможна покупка с использованием материнского капитала, есть военная ипотека.
Жилая площадь 21.68 м2, кухня 10.7 м2, комнаты изолированные.
Квартира располагается на 3 этаже 4-этажного дома в ЖК Верево Сити.
Застройщик - Строй Бизнес Групп специализированный застройщик, сдача дома - II квартал 2025 года, закрытая территория.
Парковка автомобилей - наземная, парковка охраняется. Обеспечение безопасности: видеонаблюдение. Инфраструктура: школа, детский сад, поликлиника, детские площадки, спортивные площадки, места для отдыха, супермаркет.
Для бронирования конкретной квартиры звоните по номеру телефона в объявлении.
ЖК Верево Сити - это современный городской жилой квартал малоэтажной застройки.
В 10-ти четырехэтажных корпусах сможет поселиться 1171 семья. Дома располагаются блоками, образуя уютные закрытые и безопасные дворы с большим количеством зеленых насаждений и с зонами отдыха для взрослых и детей.
В ЖК Верево Сити самое низкое ценовое предложение в Ленинградской области и пригородах Санкт-Петербурга, что позволит вам приобрести жилье большей площади, нежели в других жилых комплексах.
Отделка - черновая.
Комфортная среда для жизни:
- малоэтажные красивые здания современной архитектуры, с большой площадью остекления
- обособленная территория
- продуманные планировки, как привычные одно- и двухкомнатные квартиры, так и европланировки
- небольшая плотность населения: комплекс располагается на 6,5 га земли
- полная внутренняя инфраструктура, которая позволит жить с комфортом
Позвоните и узнайте условия покупки прямо сейчас!
Аккредитованные банки: ПАО Сбербанк
Позвоните и узнайте условия покупки прямо сейчас!
18.01.2026
4 529 664 ₽
Продается 1-комн. квартира, площадью 38.65 м2 в малоэтажной. Возможен вариант покупки с использованием ипотечных средств, возможна покупка с использованием материнского капитала, есть военная ипотека.
Жилая площадь 18.71 м2, кухня 12.9 м2, комнаты изолированные.
Квартира располагается на 1 этаже 4-этажного дома в ЖК Верево Сити.
Застройщик - Строй Бизнес Групп специализированный застройщик, сдача дома - II квартал 2025 года, закрытая территория.
Парковка автомобилей - наземная, парковка охраняется. Обеспечение безопасности: видеонаблюдение. Инфраструктура: школа, детский сад, поликлиника, детские площадки, спортивные площадки, места для отдыха, супермаркет.
Для бронирования конкретной квартиры звоните по номеру телефона в объявлении.
ЖК Верево Сити - это современный городской жилой квартал малоэтажной застройки.
В 10-ти четырехэтажных корпусах сможет поселиться 1171 семья. Дома располагаются блоками, образуя уютные закрытые и безопасные дворы с большим количеством зеленых насаждений и с зонами отдыха для взрослых и детей.
В ЖК Верево Сити самое низкое ценовое предложение в Ленинградской области и пригородах Санкт-Петербурга, что позволит вам приобрести жилье большей площади, нежели в других жилых комплексах.
Отделка - черновая.
Комфортная среда для жизни:
- малоэтажные красивые здания современной архитектуры, с большой площадью остекления
- обособленная территория
- продуманные планировки, как привычные одно- и двухкомнатные квартиры, так и европланировки
- небольшая плотность населения: комплекс располагается на 6,5 га земли
- полная внутренняя инфраструктура, которая позволит жить с комфортом
Позвоните и узнайте условия покупки прямо сейчас!
Аккредитованные банки: ПАО Сбербанк
Позвоните и узнайте условия покупки прямо сейчас!
03.12.2025
4 452 480 ₽
Продаются 1 комн. апартаменты-студия, площадью 23.4 м2 в монолитно-кирпичной новостройке, район города - Курортный. Возможен вариант покупки с использованием ипотечных средств, есть рассрочка.
Жилая площадь 19 м2, чистовая отделка, совмещенных санузлов - 1, балконов - 1, окна выходят на улицу.
Квартира располагается на 9 этаже 12-этажного дома в ЖК МФК Морская ривьера.
Застройщик - Строительный холдинг Сенатор, сдача дома - II квартал 2024 года, высота потолков 3 м.
Отдельная многоуровневая парковка, парковка охраняется. Обеспечение безопасности: видеонаблюдение, противопожарная система. Инфраструктура: школа, детский сад, детские площадки, спортивные площадки.
МФК Морская ривьера - это эксклюзивный проект, в максимальной степени воплощающий представления о качественной загородной жизни вдали от городской суеты.
В комплексе всего 13 этажей. Из окон открывается завораживающий вид на Финский залив и многовековой лесной массив.
В МФК Морская ривьера реализована новая концепция организации пространства с наличием удобств и сервиса, превышающим уровень бизнес-класса:
- Дизайнерские входные группы;
Просторное лобби, просторное лобби с круглосуточным консьерж-сервисом, зоной отдыха и местом для буккроссинга.
- Колясочная и кладовые;
В цокольном этаже располагаются уютный ресторан и тренажёрный зал для занятий оздоровительными и силовыми упражнениями.
На территории комплекса предусмотрены: зона для занятий йогой, work-out с тренажёрами, детская и волейбольная площадка.
Комплекс расположен на берегу финского залива - в одном из самых респектабельных и зеленых районов Санкт-Петербурга - Курортном, где совершенство первозданной природы сочетается с комфортом проживания в развитом городском районе
Комплекс «Морская Ривьера» НОМИНАНТ премии Urban Awards-2023
Позвоните и узнайте условия покупки прямо сейчас!
03.02.2026
13 720 064 ₽
Продаются просторные 2-комнатные апартаменты у самого берега Финского залива площадью 75,5 м2. Идеально для семейного проживания и отдыха. Из каждой комнаты есть выход на глубокую лоджию-аэрарий - там можно легко уместить 2 шезлонга и кофейный столик и наслаждаться видами на лес. Высокие потолки до 3 метров, гардеробная, отделка white-box.
Для семей с детьми мы предусмотрели все необходимое! Дом расположен в 50 метрах от Финского залива. Пляж широкий и песчаный, с собственным выходом. Окружают комплекс вековые хвойные деревья, воздух невероятно чистый и полезный, так как в Курортном районе нет предприятий. Такой воздух благоприятно влияет на сон, здоровье, самочувствие, а также на развитие детей.
Территория комплекса огромная и зеленая - 1,2 га. Ни одного члена семьи не оставит равнодушным большой открытый бассейн 25м с подогревом, он работает круглый год, можно просто поплавать и отдохнуть, а можно заняться спортом или даже устроить семейные соревнования.
А еще мы сделали:
- детские игровые площадки (для детей разных возрастов) , как на улице, так и в самом комплексе. Есть развивающие интерактивы, настольные игры, PlayStation. Пока дети играют, вы можете провести деловой созвон в лаунж-зоне или просто отдохнуть;
- тренажерный зал, теннисный корт, СПА-зону и многое другое. Здесь будет интересно абсолютно всем в любое время года!
И, конечно, мы тщательно продумали безопасность, чтобы вы могли спокойно жить и отдыхать. Территория комплекса закрыта от посторонних и охраняется круглосуточно. По всему периметру есть камеры видеонаблюдения, а попасть в помещения можно только по пропускам, так что вы сможете спокойно отпустить своего ребенка погулять одного, не тревожась за его безопасность.
Вы сможете жить у моря и при этом довольствоваться всей городской инфраструктурой - рядом есть школы, дет сады, поликлиника, рестораны, супермаркеты, лыжная база и тд. А до центра Санкт-Петербурга всего 40 минут езды.
А еще, в стоимость включен 22% НДС, которые вы можете сэкономить при оформлении апартамента на свое юридическое лицо. То есть, сразу на этапе покупки, получить скидку в 22%.
«Морская Ривьера» - это идеальный вариант для жизни и отдыха вашей семьи!
Записывайтесь на персональную экскурсию пока еще открыты продажи!
03.02.2026
42 975 500 ₽
Сдаю посуточно 1к.кв-ры (на 2-4 чел) и 2к.кв-ры (на 4-6-7чел) в самом центре Петербурга от собственника
31.01.2026
Сниму одно или двухкомнатную квартиру для своих клиентов (большая клиентская база). Проверю документы, подпишу договор Аренды для безопасности наймодателя. Взаиморасчеты происходят сразу, в вашей квартире, которую вы сдаете.
АН "Атланта" - 25 лет безупречной работы на рынке недвижимости, - гарантирует правовую и юридическую поддержку в решении споров между наймодателем и нанимателем на весь период срока договора.
Пишите, звоните, будем рады помочь. Офис в шаговой доступности от станции метро Рыбацкое.
14.01.2026
25 000 ₽
Сдам посуточно ПОСЛЕ РЕМОНТА квартиру в 5 минутах от метро Пионерская. РЯДОМ МЕТРО, КЛИНИКА АЛМАЗОВА, ПРОГНОЗ, ДОКТРИНА, СИТИ МОЛЛ. Очень светлая и уютная. Общая площадь -35 кв.м., 6 этаж, новый евро ремонт, в подъезде и во дворе установлено видеонаблюдение, парковка, благоустроенный микрорайон, удобная транспортная развязка как для передвижения на общественном транспорте, так и для поездок на автомобиле. 4 (2+2) спальных места, новая двуспальная кровать, диван, балкон, металлическая дверь, двустворчатый шкаф купе, тумба под ТВ, встроенная кухня, обеденный стол, стулья, комод, варочная панель, холодильник, стиральная машина, эл. вытяжка, эл. чайник, утюг, СВЧ, все новое, посуда, чистое постельное белье, спальные принадлежности, современный ТВ (трансляция 275 каналов в высоком качестве), WiFi интернет. Теплая домашняя атмосфера, есть все для комфортного проживания. Отчетные документы для бухгалтерии, трансфер по предварительной договоренности. Расчетный час- 12.00 часов. Стоимость зависит от количества дней проживания.
Развитая инфраструктура района: рядом клиника Алмазова, Прогноз, рядом продуктовый гипермаркет, в шаговой доступности кинотеатры, большое количество развлекательных комплексов, кафе и рестораны различной кухни и ценовой категории, детские игровые комплексы, Удельный парк, до центра 10 минут транспортом.
25.12.2025
2 000 ₽
Сдаю посуточно шикарную квартиру в 5 мин пешком от м. Пионерская. 10 минут транспортом до Невского проспекта. Десятки кафе и ресторанов в шаговой доступности. Спальных мест 2+1. Есть все для комфортного проживания: кровать, диван, встроенная кухня, свч, холодильник, плита и вся посуда, необходимая для приготовления и принятия пищи, утюг, гладильная доска, стиральная машина, wi-fi, шкафы, ЖК телевизор с цифровым ТВ. Качественный свежий евроремонт, очень чисто и уютно, новый дом в элитном жилом комплексе! Удобная транспортная доступность, парковка, продуктовые магазины рядом. Без комиссии! От собственника! Гарантия безопасности, документальное оформление, всегда чистое и отглаженное белье из прачечной, горничные, сопровождение персональным менеджером на весь период проживания!Стоимость может меняться в зависимости от количества дней, человек, сезона. В летний период, а также в период праздников стоимость аренды может меняться. Точную цену уточняйте. P.S. В квартире нельзя курить и проводить вечеринки.
25.12.2025
2 000 ₽
ЧИСТО, УЮТНО! СДАЮ ОТ СОБСТВЕННИКА БЕЗ КОМИССИИ И ПЕРЕПЛАТ посуточно шикарную, уютную квартиру с современным, качественным, свежим ремонтом в новом доме! Элитный жилой комплекс находится в Адмиралтейском районе Санкт-Петербурга, центр города, благодаря чему здесь есть множество магазинов, кафе, ресторанов, Торговых центров, рядом исторические достопримечательности, Балтийский вокзал, метро в 5 минутах пешком, удобный выезд до аэропорта, Петергофа. Очень развитая инфраструктура, двор охраняемый, спортивные площадки, ландшафтный дизайн, видеонаблюдение, консьерж и т.д. В квартире все продумано до мелочей для вашего комфорта. Квартира со свежим ремонтом! 2+2 спальных мест, новая двуспальная кровать с новым ортопедическим матрасом, диван, есть все необходимое для приготовления пищи, а также есть фен, утюг, гладильная доска, сушилка и т.д., расчетный час: 12.00часов, по договоренности время может быть другое. Гарантия безопасности, документальное оформление, всегда чистое и отглаженное белье, полотенца из прачечной, горничные, сопровождение персональным менеджером на весь период проживания! У нас не курят, не сдается для вечеринок! НЕОБХОДИМО уточнять стоимость, СКИДКИ при длительном проживании, стоимость зависит от количества гостей, дней проживания и сезона. Адмиралтейский район, в котором располагается квартира это развитая инфраструктура: гипермаркеты, рестораны, кафе, кинотеатры, торговые центры, парки, ВУЗы, множество медицинских центров: Военно-медицинская академия им. С.М. Кирова, клиника СМТ, РЖД-Медицина,Центр реабилитации иммунокоррекции доктора Борисова, клиника Скандинавия и т.д. Достопримечательности района: Часовня Святой мученицы царицы Александры, храм Святого Антония Чудотворца, Эстонская церковь, католические храмы, музей железных дорог России, музей А.Блока, дворцы-музеи, Fenestra, театры, парки и многое другое. ПРИЕЗЖАЙТЕ, ВАМ ПОНРАВИТСЯ!
25.12.2025
1 700 ₽
Сдаю посуточно шикарную квартиру в центре в 5 мин пешком от м. Фрунзенская. Десятки кафе и ресторанов в шаговой доступности. Спальных мест 2+1. Есть все для комфортного проживания: новая двуспальная кровать, диван, встроенная кухня, свч, холодильник, плита и вся посуда, необходимая для приготовления и принятия пищи, утюг, гладильная доска, стиральная машина, wi-fi, шкафы, ЖК телевизор с цифровым ТВ. Качественный свежий евроремонт, очень чисто и уютно, новый дом в элитном жилом комплексе! Удобная транспортная доступность, парковка, продуктовые магазины, достопримечательности рядом Без комиссии! От собственника! Гарантия безопасности, документальное оформление, всегда чистое и отглаженное белье из прачечной, горничные, сопровождение персональным менеджером на весь период проживания! Стоимость зависит от количества дней, человек, сезона. В летний период, а также в период праздников стоимость аренды может меняться. Точную цену уточняйте. P.S. В квартире нельзя курить и проводить вечеринки.
25.12.2025
1 700 ₽
Сдаю посуточно шикарную квартиру в 5 мин пешком от м. Пионерская. 10 минут транспортом до Невского проспекта. Десятки кафе и ресторанов в шаговой доступности. Спальных мест 2+2. Есть все для комфортного проживания: кровать, диван, встроенная кухня, свч, холодильник, плита и вся посуда, необходимая для приготовления и принятия пищи, утюг, гладильная доска, стиральная машина, wi-fi, шкафы, ЖК телевизор с цифровым ТВ. Качественный свежий евроремонт, очень чисто и уютно, новый дом в элитном жилом комплексе! Удобная транспортная доступность, парковка, продуктовые магазины рядом. Без комиссии! От собственника! Гарантия безопасности, документальное оформление, всегда чистое и отглаженное белье из прачечной, горничные, сопровождение персональным менеджером на весь период проживания!Стоимость зависит от количества дней, человек, сезона. В летний период, а также в период праздников стоимость аренды может меняться. Точную цену уточняйте. P.S. В квартире нельзя курить и проводить вечеринки.
25.12.2025
2 000 ₽
Продаю 1ккв. в пос. Ленинское, Выборгский район ЛО, ул. Заречная, д.9. Панельный. 35.7/18.6/7.0; 5/5 эт. С/у раздельный. Прихожая - 5.5 м2. Потолок - 2.5 м. Кладовка с 5 полками, антресоли. Балкон не застеклен. Металлическая наружная дверь. Окна Rehau. Спутниковая тарелка. Квартира чистая, светлая, теплая.
Леса, озера, р.Сестра. Ягоды, грибы, охота. Чистый воздух. Финский залив (8 км).
Близость к 3 городам: СПб (50-60 мин до метро), Сестрорецк (20 мин), Зеленогорск (23 мин).
Маршрутки: 600 - до м.Беговая; 456 - до м.Пр. Просвещения. Авт.408 - до ж/д ст.Репино (11 мин)+ электрички.
В шаговой доступности: Пятерочка, Лента, Магнит, Красное/Белое, частные магазины, кафе, 2 аптеки, фельдшерский пункт, бассейн, школа, д/сад, почта, церковь, Константино-Еленинский монастырь.
Оставлю покупателю: газовую плиту Bosch, кухонный гарнитур из 4 предметов, спутниковую тарелку, телевизор, спутниковое приемное устройство General Satellite, холодильник Stinol (167 см) No Frost, мебельную стенку.
1 взрослый собственник (с 1999 г.). Прямая продажа. Без обременений и
ограничений. Без долгов по ЖКХ и капремонту. Без перепланировок. Покупатели с ипотекой не рассматриваются. Услуги риелторов/агентов, пожалуйста, не предлагать. Оформление у нотариуса. С документами проблем нет. Просмотр по предварительной договоренности.
15.12.2025
5 250 000 ₽
Неактивные объявления
Тип объявления Продам
Вид объекта Вторичка
Количество комнат 1
Тип дома Монолитный
Площадь 38
Этаж 2
Этажей в доме 25
Продается одно-комнатная квартира с качественной ОТДЕЛКОЙ И ГАРДЕРОБНОЙ в доме комфорт-класса, 2020 года постройки, в Красногвардейском районе Санкт-Петербурга. Квартира без обременений. Городская прописка. Застекленная лоджия. Комната -15.05 кв.м., кухня -11.91 кв.м., прихожая – 3.10 кв.м., совмещенный сан/узел – 4.12 кв.м., высота потолков 2.65 м. Плита – электрическая. Вход со двора. Лифты: 2 грузовых и 2 пассажирских. Дом оснащен системой наблюдения, домофонами и автоматической пожарной сигнализацией. Благодаря бесшовному утеплению тепло-потери дома ниже на 30% по сравнению с традиционными зданиями, зимой в нем тепло, а летом прохладно. Один совершеннолетний собственник (Собственность 2021 года). В районе развита инфраструктура, работают государственные и частные детские сады, поликлиника, три стоматологии и ветеринарная клиника. Наземная многоуровневая парковка. Метро Гражданский проспект и Академическая - 10 мин. транспортом. ТРЦ «МЕГА Парнас», «Ашан» , «OBI» и «IKEA» в 15 минутах транспортом по КАД. ЖК «Цветной город» находится на пересечении Муринской дороги и Пискаревского проспекта. КАД - 3 мин. транспортом. Токсовский лесопарк и Кавголовские озера 20 мин. на машине. Просмотр по договоренности.
29.08.2024
5 700 000 ₽
В архиве
Предлагается к продаже уютная,теплая однокомнатна квартира,находится на комфортном 8 этаже 15-ти этажного кирпично-монолитного дома,2003 года постройки.В подарок покупателю остается встроенная кухня.Квартира с хорошей планировкой,просторная комната и кухня,остекленная лоджия 6,3 кв.м. с выходомиз кухни и комнаты.Установлен кондиционер.Квартира без обременений,1 взрослый собственник. Хорошее ТСЖ,по периметру дома и парадныхустановлено видеонаблюдение.Консьерж,чистая парадная (убирается ежедневно),пассажирский и грузовой лифты.
На этаже закрытый коридор на 6 квартир.Спокойные,доброжелательные соседи.Во дворе дома детский сад.школа с углубленным изучением китайского языка,детская площадка,тренажеры для взрослых и детей,футбольное поле.Рядом набережная реки Невы,с прогулочными зонами,храм Рождества Пресвятой Богородицы.Район с развитой инфраструктурой,фитнес центры,торговые комплексы,кинотеатр,бассейны,поликлиники,почта,отделения банков.Непосредственно у дома остановки общественного транспорта,до метро Рыбацкое и ж/д Рыбацкое 9 минут пешком.Удобный выезд на КАД.
25.05.2022
7 400 000 ₽
В архиве
Предлагается к продаже просторная, двусторонняя, четырех комнатная квартира в историческом центре Санкт-Петербурга, до метро "Петроградская" 4 минуты пешком. Доходный дом Р.А.Дидерихса, год постройки 1912-1914,стиль:модерн,представляет историческую и архитектурную ценность. Внутри и снаружи сохранены оригинальные художественные элементы, такие как: витражи в парадных, пилястры в ионическом стиле и барельефы на фасаде. Квартира общей площадью 106,6 кв.м., высота потолков 3,48,толщина стены 2,5-3,5,находится на первом этаже, идеально подходит под коммерцию. В данный момент используется под офис. Чистая парадная, широкие лестницы, домофон, видеонаблюдение. Район с развитой инфраструктурой. Есть разрешение на перевод в нежилой фонд.
25.05.2022
17 500 000 ₽
В архиве
тел:89110055741,продам за 7 950 000 руб.Евро ремонт сделан из качественных,дорогих материалов+мебель и бытовая техника,
видовая квартира-вид из окна на Неву,квартира продается с мебелью и бытовой техникой,прямая продажа,документы готовы.
застекленная лоджия,полы с подогревом,стекло пакеты,кафель,плитка,ТВ-плазма,2 дивана,
новый,теплый,кирпичный дом 2008 года постройки,общая площадь квартиры 40.5 кв.метров,по выписке ЕГРН,+застекленная лоджия 3 кв.метра,итого 43.5кв.метра с учетом лоджии,пандус,3 лифта,консъерж-сервис,видео наблюдение,2 входа,
во дворе школа и 2 детских садика с бассейном,футбольное поле,ст.метро и ЖД Рыбацкое-15 минут пешком,метро Пролетарская и Обухово-10минут транспортом,
рядом КАД,Нева,парк,пляж,3 бассейна,фитнес центр,магазины,Супермаркеты,ТК Парад,Лента,5-ка,Магнит,Эврика,почта,церковь,Сбербанк,кинотеатр,лодочная станция видна из окна,кафе,рестораны,
экологически чистый район-Рыбацкое:напротив дома Нева,река Славянка в 10 минутах пешком,
1 совершеннолетний собственник,квартира без обременений,более 5 лет собственности-показываем полную стоимость Объекта,подходят покупатели с ипотекой-одобренные в любом банке,
прямая продажа,документы готовы.
26.05.2022
7 980 000 ₽
В архиве
Новый,кирпичный дом 2021 года постройки,ЖК"Вариант",собственность, прописка Санкт-Петербурга,без отделки-отделка на видение и вкус покупателя,где Вы можете себя проявить с большой фантазией в роли дизайнера,балкон,стекло пакеты,2-х сторонняя квартира-в комнате 2 окна,1 совершеннолетний собственник-никто не прописан-без обременений,есть пандус,грузопассажирский лифт,свежий воздух,красивые закаты и рассветы,2 станции метро:Шушары(15-20 минут транспортом) и метро Купчино(20-25 минут транспортом),установлены счетчики на воду и свет,рядом город Пушкин с его красотой,парками,дворцами и музеями,рядом новый детский сад № 11 ,с отличными отзывами,новая школа с бассейном,магазины,Супермаркеты,3 аптеки,Сбербанк,почта,развлекательные центры,прекрасный метраж квартиры:42,40кв.м-общая площадь,21.2кв.м-комната,10.8кв.м-кухня,совмещенный сан узел-3кв.м,7.4кв.м-прихожая,встречная покупка подбирается,подходят покупатели с ипотекой,одобренные в любом банке.
30.05.2022
3 950 000 ₽
В архиве
Центр Санкт-Петербурга:метро"пл.Ленина"8-10 минут пешком,новый лифт,красивый фасад,здание- памятник,объект культурного наследия
Доходный дом "Российского общества страхования капиталов и доходов "Жизнь",в стиле модерн,неоклассицизм,архитектор Кригер Р.И.
Дом представляет собой историческую,научную,художественную и культурную ценность объектов Санкт-Петербурга
Чистая парадная,2 входа парадный с улицы и со двора,2-х сторонняя квартира-окна во двор(кухня)+на улицу(комнаты),высокие потолки 3.31м2,напротив дома церковь храм святого Николая Чудотворца(виден из окон)
Рядом д/садик,школа,много магазинов,супермаркетов,развлекательных центров,бассейн,фитнес центр,Военно-медицинская академия,Финляндский вокзал,памятник Ленину,Нева,квартира подготовлена для ремонта и требует косметического ремонта,уместен торг для косметического ремонта.
25.07.2022
14 500 000 ₽
В архиве
Срочно продам. 1 комнатная квартира СПб в Колтушах!
Квартира 35,5 кв.м. 3 899 т.р. от собственника!
От застройщика такая квартира сейчас стоит 4 600 т.р.
Сдача II кв 2023 ЖК «ВЕРХНИЙ» в Колтушах.
02.08.2022
3 899 000 ₽
В архиве
Срочно продам 2 комнатная квартира СПб в Колтушах!
Квартира 69,4 кв.м. 6 910 т.р. от собственника!
От застройщика такая квартира сейчас стоит 7 629 т.р.
Большая гостиная и изолированные комнаты!
Сдача II кв 2023 ЖК «ВЕРХНИЙ» в Колтушах.
02.08.2022
6 910 000 ₽
В архиве
Срочно продам. 3 комнатная квартира СПб в Колтушах!
Квартира 90,0 кв.м. 8 504 т.р. от собственника!
От застройщика такая квартира сейчас стоит 9 000 т.р.
Большая гостиная, раздельный санузел и изолированные комнаты!
Сдача II кв 2023 ЖК «ВЕРХНИЙ» в Колтушах.
02.08.2022
8 504 000 ₽
В архиве
В продаже 4х -комнатная коммунальная квартира 91.3 кв м с изолированными комнатами с жилой площадью 13.7+18.2+18.5+12.2 (в сумме 62.6 кв м) кв м, Дом-сталинка 1954 г. п., 4/4 эт дома без лифта, 3 м потолок, кирпичный дом, хорошая шумоизоляция, двухсторонняя светлая и теплая квартира (стеклопакеты на окнах), БЕЗ перепланировок, несущая балка только по потолку, в коридоре есть украшение в виде архитектурного элемента, в комнатах на потолке сохранена лепнина и плафоны, в трех комнатах паркет в хорошем состоянии, тихий уютный двор с детской площадкой, малонаселенный подъезд, больше нет коммунальных квартир, все квартиры расселены, от метро Черная речка 7 мин пешком , хороший инвестиционный проект, 5 взрослых собственников, полная цена в договоре, собственность более 5 лет, подходит для покупки под ипотеку и субсидии, 1 встречная покупка, показы по требованию, возможен торг
05.08.2022
17 400 000 ₽
В архиве
В ПРЯМОЙ продаже 1-комнатная квартира с видовыми характеристиками (вид на Шкиперский проток и яхт-клуб) и дизайнерским ремонтом на Васильевском острове, большая застекленная лоджия (5,6 кв м), уютная кухня 10, 5 кв м (кухонный гарнитур остается покупателю), встроенный шкаф с зеркалом, большой санузел (4 кв м), теплый пол, поменяна вся проводка, немецкие выключатели, зонирование по освещению, квартира подходит , как для проживания, так и в качестве инвестиций для сдачи в аренду(как на длительный срок, так и для гостей нашего города - посуточно, всегда востребованный адрес!), близость к метро, рядом прекрасная зона для прогулок вдоль водоема, развитая инфраструктура района, свободные парковочные места, детский двор на подиуме без машин, показы по требованию, возможен торг
05.08.2022
10 450 000 ₽
В архиве
АКТУАЛЬНОЕ предложение! Продается в ПРЯМОЙ продаже 2х комнатная квартира Витебский пр д 49к1, 6/9эт, лифт, чистая парадная, от м Московская 10 мин транспортом, развитая инфраструктура района, зеленый двор, в шаговой доступности школа, садик и ТЦ, квартира 47.5 кв м общ площади, просторные и изолированные комнаты 17.5+13.3, из одной комнаты выход на балкон, балкон не застеклен, квадратная кухня 8.2 кв м, квартира очень чистая, паркет на полу, 1 взрослый собственник, никто не прописан, без перепланировок, подходит в покупку под ипотеку, субсидии, показы по требованию. Полная сумма в договоре! Торг
05.08.2022
7 990 000 ₽
В архиве
Квартира в Центре города для Проживания и Инвестиций! Предлагаем Вам потрясающую трехкомнатную квартиру в самом центре города - сердце Санкт-Петербурга! Вся красота исторической части города, будет восхищать вас каждый день! Цените свое время? Метро Лиговский проспект расположен в шаговой доступности в 4 минутах ходьбы! Удобная транспортная доступность и развитая инфраструктура района, подарит удобство и комфорт.
Светлая трехкомнатная квартира расположена на высоком первом этаже четырехэтажного кирпичного дома 1916года постройки. Дом прошел капитальный ремонт, материал перекрытий железобетонные, газифицирован. Идеальное место: вход в квартиру со двора, что позволит наслаждаться тишиной. Окна так же выходят в тихий, закрытый зелёный двор. Придомовая территория оборудована детской площадкой. Двор тихий, закрыт для посторонних, поэтому всегда много парковочных мест. Первый этаж и локация делает вариант приобретения данного объекта привлекательным для дальнейшего использования в коммерческих целях. Расположение квартиры позволяет сделать отдельный вход. Потенциально возможно присоединение подвала. Собственные сауна и бассейн в подвале или дополнительная жилая площадь… Не правда ли, заманчиво. Эта квартира станет вашим местом силы благодаря наличию своего стиля и большого пространства, связанных с расположением в одном из самых культурных мест города! Легко купить: ипотека, материнский капитал, без долгов и обременений, наличные. Недвижимость более 5 лет в собственности, полная стоимость в договоре. Прямая продажа, один взрослый собственник! Юридическое сопровождение сделки бесплатно! Звоните, все подробно расскажу и договоримся на просмотр! Готовы к быстрой сделке!
25.08.2022
14 300 000 ₽
В архиве
Тип объявления Продам
Вид объекта Вторичка
Количество комнат 2
Тип дома Кирпичный
Площадь 98
Этаж 3
Этажей в доме 4
Продам в прямой продаже двухкомнатную квартиру в отличном состоянии. Один собственник, собственность более 10 лет. Квартира односторонняя - окна выходят во двор. Комнаты: 19,7+18.4, кухня/столовая: 38.4, сан/узел совмещенный - 6.6, высота потолков - 3.20. Перепланировка узаконена. Год постройки 1917.Отопление - центральное, горячая вода - газовая колонка Bosh. Полы в комнатах - ламинат, прихожая/кухня/сан узел - плитка. Во всей квартире стоят стекло-пакеты. Кухня/гостиная - диван(раскладывается) + кресло. Газовая плита RICI. Холодильник BEKO. Вытяжка. Стиральная машина - в сан/узле. Душевая кабина. Батареи новые. Два телевизора Panasonik. Шкафы во всех комнатах. В каждой комнате по большой кровати - полуторная + двух-спальная. Сигнализация. Ремонт производился 6 лет назад. В сан/узле пол с подогревом. В квартире остается вся встроенная техника и мебель. Развитая инфраструктура, метро Московские Ворота – 5 мин. пешком.
29.08.2024
17 500 000 ₽
В архиве
Продам 3 х комнатную квартиру в центре города Выборга . Квартира чистая , теплая , солнечная , уютная . Не угловая , окна на две стороны . Рядом 6 , 7 и 11 школы , 2 детских садика , поликлиники , магазины , автобусные остановки. Под ипотеку подходит .
11.05.2024
6 350 000 ₽
В архиве
Евро ремонт сделан из качественных,дорогих материалов+мебель и бытовая техника,
видовая квартира-вид из окна на Неву,квартира продается с мебелью и бытовой техникой,
застекленная лоджия,полы с подогревом,стекло пакеты,кафель,плитка,ТВ-плазма,2 дивана,
новый,теплый,кирпичный дом 2008 года постройки,общая площадь квартиры 40.5 кв.метров,по выписке ЕГРН,+застекленная лоджия 3 кв.метра,итого 43.5кв.метра с учетом лоджии,пандус,3 лифта,консъерж-сервис,видео наблюдение,2 входа,
во дворе школа и 2 детских садика с бассейном,футбольное поле,ст.метро и ЖД Рыбацкое-15 минут пешком,метро Пролетарская и Обухово-30 минут пешком или 10минут транспортом,
рядом КАД,Нева,парк,пляж,3 бассейна,фитнес центр,магазины,Супермаркеты,ТК Парад,Лента,5-ка,Магнит,Эврика,почта,церковь,Сбербанк,кинотеатр,лодочная станция видна из окна квартиры,кафе,рестораны,
экологически чистый район-Рыбацкое:напротив дома Нева,река Славянка в 10 минутах пешком,
1 совершеннолетний собственник,квартира без обременений,более 5 лет собственности-показываем полную стоимость Объекта,подходят покупатели с ипотекой-одобренные в любом банке,
прямая продажа,документы готовы.
01.10.2022
7 980 000 ₽
В архиве
Продаётся двухкомнатная квартира в новом ЖК. Детский сад и школа в шаговой доступности. Магазины, аптеки, досуговые центры, кафе в ЖК есть.
В квартире остаётся телевизор, встроенная техника, кухонный гарнитур, прихожая, диван, мебель в гостинной.
08.10.2022
8 000 000 ₽
В архиве
Продается 5-комнатная квартира 200 кв.м на 2 этаже 6 этажного здания. Все комнаты изолированы. Четырехсторонняя квартира с большим количеством фасадных окон на ул. Марата. Из окон квартиры открывается вид на музей Арктики и Антарктики. Два входа - парадный с ул. Марата и второй во двор. Установлена приточно-вытяжная вентиляция и кондиционеры. Два раздельных санузла и большая ванная комната. В этом году выполнен капитальный ремонт водоснабжения и канализации. Во всех комнатах настоящий дубовый паркет , итальянские двери и стеклопакеты. Высота потолков 3,5 м. Под квартирой находится коммерческое помещение. Парковка в закрытом дворе. Квартира свободна. Прямая продажа . Собственность более 3-х лет. Возможна ипотека. Перепланировок в квартире не производилось. Идеальна как под инвестиционные цели , так и под жилье. Возможен торг. С агентами и посредниками не сотрудничаю.
08.10.2022
43 000 000 ₽
В архиве
Квартира в ЖД «ПРЕМЬЕР»
1 комнатная квартира 36,6 кв.м.
Кухня -11,13
Комната -13,9
Санузел -4,3
Прихожая -7,1
Стоимость 4 745 000 руб.
09.10.2022
4 745 000 ₽
В архиве
❗️НУЖНА ПОМОЩЬ КАЖДОГО НЕБЕЗРАЗЛИЧНОГО ГРАЖДАНИНА❗️- ЛЮБАЯ СУММА ПОМОЖЕТ СПАСТИ ЖИЗНИ НАШИХ РЕБЯТ И МИРНОГО НАСЕЛЕНИЯ ДОНБАССА❗️
✔︎ ПОДДЕРЖАТЬ ФОНД по НОМЕРУ КАРТЫ - 2200 1507 1216 0537 Альфа-Банк, получатель ФОНД "ПОБЕДА" - ВСЁ ДЛЯ ПОБЕДЫ! ✔︎
✔︎ ПОДДЕРЖАТЬ ФОНД по БАНКОВСКИМ РЕКВИЗИТАМ сканируйте QR КОД- через мобильное приложение вашего банка.
Мы объединяем активных людей нашей страны для решения вопросов, важных для каждого гражданина.
ФОНД ПОБЕДА «ВСЁ ДЛЯ ПОБЕДЫ» собирает и доставляет гуманитарные грузы и необходимые товары населению Донбасса и нашим ребятам на Передовой! Сейчас ребятам на постоянно требуются «Расходные Материалы». Вещи которые мы закупаем - расходный материал, необходимый ребятам ежедневно.
❗️ВАША СВОЕВРЕМЕННАЯ ПОМОЩЬ ПОМОГАЕТ СНИЖАТЬ ПОТЕРИ ❗️
✔︎ С АКТУАЛЬНОЙ ИНФОРМАЦИЕЙ О ТЕКУЩИХ ЗАКУПКАХ - СБОРАХ, можно ознакомиться на сайте //fd-pobeda/
16.01.2023
100 ₽
В архиве
❗️НУЖНА ПОМОЩЬ КАЖДОГО НЕБЕЗРАЗЛИЧНОГО ГРАЖДАНИНА❗️- ЛЮБАЯ СУММА ПОМОЖЕТ СПАСТИ ЖИЗНИ НАШИХ РЕБЯТ И МИРНОГО НАСЕЛЕНИЯ ДОНБАССА❗️
✔︎ ПОДДЕРЖАТЬ ФОНД по НОМЕРУ КАРТЫ - 2200 1507 1216 0537 Альфа-Банк, получатель ФОНД "ПОБЕДА" - ВСЁ ДЛЯ ПОБЕДЫ! ✔︎
✔︎ ПОДДЕРЖАТЬ ФОНД по БАНКОВСКИМ РЕКВИЗИТАМ сканируйте QR КОД- через мобильное приложение вашего банка.
Мы объединяем активных людей нашей страны для решения вопросов, важных для каждого гражданина.
ФОНД ПОБЕДА «ВСЁ ДЛЯ ПОБЕДЫ» собирает и доставляет гуманитарные грузы и необходимые товары населению Донбасса и нашим ребятам на Передовой! Сейчас ребятам на постоянно требуются «Расходные Материалы». Вещи которые мы закупаем - расходный материал, необходимый ребятам ежедневно.
❗️ВАША СВОЕВРЕМЕННАЯ ПОМОЩЬ ПОМОГАЕТ СНИЖАТЬ ПОТЕРИ ❗️
✔︎ С АКТУАЛЬНОЙ ИНФОРМАЦИЕЙ О ТЕКУЩИХ ЗАКУПКАХ - СБОРАХ, можно ознакомиться на сайте //fd-pobeda/
09.02.2023
100 ₽
В архиве

































