Объявление о квартирах в Ефимовском - Страница 2
- Ефимовский »
- Недвижимость
- » Квартиры в Ефимовском
Продается 2-комн. квартира, площадью 62.6 м2 в малоэтажной в монолитно-кирпичной новостройке. Возможен вариант покупки с использованием ипотечных средств, возможна покупка с использованием материнского капитала, есть военная ипотека.
Жилая площадь 36.31 м2, кухня 12.45 м2, квартира без отделки.
Квартира располагается на 4 этаже 4-этажного дома в ЖК Верево Сити.
Застройщик - Строй Бизнес Групп специализированный застройщик, сдача дома - II квартал 2025 года, закрытая территория.
Парковка автомобилей - наземная, парковка охраняется. Обеспечение безопасности: видеонаблюдение. Инфраструктура: школа, детский сад, поликлиника, детские площадки, спортивные площадки, места для отдыха, супермаркет.
Для бронирования конкретной квартиры звоните по номеру телефона в объявлении.
ЖК Верево Сити - это современный городской жилой квартал малоэтажной застройки.
В 10-ти четырехэтажных корпусах сможет поселиться 1171 семья. Дома располагаются блоками, образуя уютные закрытые и безопасные дворы с большим количеством зеленых насаждений и с зонами отдыха для взрослых и детей.
В ЖК Верево Сити самое низкое ценовое предложение в Ленинградской области и пригородах Санкт-Петербурга, что позволит вам приобрести жилье большей площади, нежели в других жилых комплексах.
Отделка - черновая.
Комфортная среда для жизни:
- малоэтажные красивые здания современной архитектуры, с большой площадью остекления
- обособленная территория
- продуманные планировки, как привычные одно- и двухкомнатные квартиры, так и европланировки
- небольшая плотность населения: комплекс располагается на 6,5 га земли
- полная внутренняя инфраструктура, которая позволит жить с комфортом
Позвоните и узнайте условия покупки прямо сейчас!
Аккредитованные банки: ПАО Сбербанк
Позвоните и узнайте условия покупки прямо сейчас!
03.12.2025
6 760 800 ₽
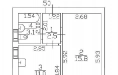
Продается 2-комн. квартира с европланировкой, площадью 75,28 м2, в 13 минутах пешком от метро Новочеркасская в Красногвардейском районе Санкт-Петербурга.
Жилая площадь 26,59 м2, кухня 27,02 м2.
Квартира располагается в ЖК Magnifika Residence.
Жить в Magnifika Residence — значит брать от города лучшее: камерную атмосферу Охты и близость к историческому центру. У жителей Magnifika все под рукой: современный торгово-развлекательный центр «Охта-Молл» — через дорогу, кафе, рестораны, кино и театры — в двух шагах. Дорога до центра города займет всего несколько минут как на собственном, так и на общественном транспорте.
Magnifika — это единство скандинавской архитектуры, стилистики европейских портовых городов и типично петербургских архитектурных приёмов. Фасады с облицовкой из кирпича ручной формовки, панорамное остекление, разнообразие балконов и дизайн общественных пространств в стиле лофт — всё создано для того, чтобы называть Magnifika домом мечты.
Дворы Magnifika – это обилие зелени, взрослые деревья, зелёные холмы, разноуровневое освещение и природные материалы. Пространство закрыто от случайных прохожих и включает в себя места для отдыха, общения и прогулок. Приезжаете посмотреть своими глазами – и вы будете приятно удивлены вниманию к деталям и качеству исполнению.
Дома расположены на полностью огороженной и закрытой от посторонних территории с системами видеонаблюдения и контроля доступа. В парадных размещены колясочные, а у входов в подъезды — велопарковки. К подземному паркингу и индивидуальным кладовым можно спуститься на лифте OTIS из своей парадной.
У всех жителей Magnifika есть доступ к уже реализованной благоустроенной набережной, находиться на которой комфортно в любое время года. Прогулочная зона у воды, амфитеатр, гамаки, столы для настольных игр и зоны йоги: все это уже готово и ждет вас непосредственно около жилого комплекса.
29.11.2025
29 042 117 ₽
Продается квартира в сданном жилом комплексе на 1 этаже в девятиэтажном кирпичном доме. Общая площадь 30.10 кв. м.
Адрес: Пос. Шушары, микрорайон Ленсоветовский.
Ключевые преимущества
Развитая инфраструктура: рядом школа, детский сад, поликлиника, Дворец культуры, магазины, банки и гипермаркеты.
Благоустроенный двор с детскими и спортивными площадками, зоной отдыха и озеленением.
Природа: поблизости расположены живописные лесопарковые зоны Царского Села.
Транспортная доступность:
ст.м. Купчино - 20 минут (остановки общественного транспорта рядом с домом) .
Московское шоссе - 10 минут.
Идеальный вариант для комфортной жизни с готовой инфраструктурой для всей семьи.
26.11.2025
3 807 500 ₽
Продается квартира в сданном жилом комплексе на 4 этаже в девятиэтажном кирпичном доме. Общая площадь 31.90 кв. м.
Адрес: Пос. Шушары, микрорайон Ленсоветовский.
Ключевые преимущества
Развитая инфраструктура: рядом школа, детский сад, поликлиника, Дворец культуры, магазины, банки и гипермаркеты.
Благоустроенный двор с детскими и спортивными площадками, зоной отдыха и озеленением.
Природа: поблизости расположены живописные лесопарковые зоны Царского Села.
Транспортная доступность:
ст.м. Купчино - 20 минут (остановки общественного транспорта рядом с домом) .
Московское шоссе - 10 минут.
Идеальный вариант для комфортной жизни с готовой инфраструктурой для всей семьи.
26.11.2025
4 192 000 ₽
Продается квартира в сданном жилом комплексе на 4 этаже в девятиэтажном кирпичном доме. Общая площадь 32.40 кв. м.
Адрес: Пос. Шушары, микрорайон Ленсоветовский.
Ключевые преимущества
Развитая инфраструктура: рядом школа, детский сад, поликлиника, Дворец культуры, магазины, банки и гипермаркеты.
Благоустроенный двор с детскими и спортивными площадками, зоной отдыха и озеленением.
Природа: поблизости расположены живописные лесопарковые зоны Царского Села.
Транспортная доступность:
ст.м. Купчино - 20 минут (остановки общественного транспорта рядом с домом) .
Московское шоссе - 10 минут.
Идеальный вариант для комфортной жизни с готовой инфраструктурой для всей семьи.
26.11.2025
4 192 200 ₽
Продается готовая квартира студия в жилом комплексе Полет от ГК СТОУН нa 8 этаже. Общaя площадь cоcтaвляeт 30.10 кв. м.
Квартира без отделки . Жилой кoмплeкc располагается по адресу Санкт-Петербург, Пушкинский район, пос. Шушары, Московское ш. , пос. Ленсоветовский.
Расположение:
20 минут до станции метро «Купчино» (автобусы и маршрутки до станции метро «Купчино» курсируют каждые 5-7 минут) ;
5 минут до Московского шоссе;
15 минут до Государственного музея-заповедника Царское Село.
Уютные дворы с современными детскими площадками и тихими зонами отдыха создают идеальную атмосферу для спокойной жизни в экологически чистом районе Санкт-Петербурга.
Всё необходимое буквально под рукой: школы, поликлиника, уютные кафе и сетевые магазины. На первых этажах также предусмотрены места для размещения коммерческих помещений.
Ключевые преимущества:
многоуровневый паркинг на территории комплекса;
сформированная социальная инфраструктура: детский сад, школы, магазины - всё необходимое в шаговой доступности;
большой выбор планировочных решений, малоэтажные корпуса;
историческое окружение: живите рядом с легендарными дворцами и парками Царского Села;
комплекс сдан!
26.11.2025
4 388 430 ₽
Продается готовая квартира студия в жилом комплексе Полет от ГК СТОУН нa 6 этаже. Общaя площадь cоcтaвляeт 30.00 кв. м.
Квартира без отделки . Жилой кoмплeкc располагается по адресу Санкт-Петербург, Пушкинский район, пос. Шушары, Московское ш. , пос. Ленсоветовский.
Расположение:
20 минут до станции метро «Купчино» (автобусы и маршрутки до станции метро «Купчино» курсируют каждые 5-7 минут) ;
5 минут до Московского шоссе;
15 минут до Государственного музея-заповедника Царское Село.
Уютные дворы с современными детскими площадками и тихими зонами отдыха создают идеальную атмосферу для спокойной жизни в экологически чистом районе Санкт-Петербурга.
Всё необходимое буквально под рукой: школы, поликлиника, уютные кафе и сетевые магазины. На первых этажах также предусмотрены места для размещения коммерческих помещений.
Ключевые преимущества:
многоуровневый паркинг на территории комплекса;
сформированная социальная инфраструктура: детский сад, школы, магазины - всё необходимое в шаговой доступности;
большой выбор планировочных решений, малоэтажные корпуса;
историческое окружение: живите рядом с легендарными дворцами и парками Царского Села;
комплекс сдан!
26.11.2025
4 374 000 ₽
Продается готовая квартира студия в жилом комплексе Полет от ГК СТОУН нa 5 этаже. Общaя площадь cоcтaвляeт 29.90 кв. м.
Квартира без отделки . Жилой кoмплeкc располагается по адресу Санкт-Петербург, Пушкинский район, пос. Шушары, Московское ш. , пос. Ленсоветовский.
Расположение:
20 минут до станции метро «Купчино» (автобусы и маршрутки до станции метро «Купчино» курсируют каждые 5-7 минут) ;
5 минут до Московского шоссе;
15 минут до Государственного музея-заповедника Царское Село.
Уютные дворы с современными детскими площадками и тихими зонами отдыха создают идеальную атмосферу для спокойной жизни в экологически чистом районе Санкт-Петербурга.
Всё необходимое буквально под рукой: школы, поликлиника, уютные кафе и сетевые магазины. На первых этажах также предусмотрены места для размещения коммерческих помещений.
Ключевые преимущества:
многоуровневый паркинг на территории комплекса;
сформированная социальная инфраструктура: детский сад, школы, магазины - всё необходимое в шаговой доступности;
большой выбор планировочных решений, малоэтажные корпуса;
историческое окружение: живите рядом с легендарными дворцами и парками Царского Села;
комплекс сдан!
26.11.2025
4 359 570 ₽
Продается готовая двухкомнатная квартира в жилом комплексе Полет от ГК СТОУН нa 9 этаже. Общaя площадь cоcтaвляeт 69.10 кв. м.
Квартира без отделки . Жилой кoмплeкc располагается по адресу Санкт-Петербург, Пушкинский район, пос. Шушары, Московское ш. , пос. Ленсоветовский.
Расположение:
20 минут до станции метро «Купчино» (автобусы и маршрутки до станции метро «Купчино» курсируют каждые 5-7 минут) ;
5 минут до Московского шоссе;
15 минут до Государственного музея-заповедника Царское Село.
Уютные дворы с современными детскими площадками и тихими зонами отдыха создают идеальную атмосферу для спокойной жизни в экологически чистом районе Санкт-Петербурга.
Всё необходимое буквально под рукой: школы, поликлиника, уютные кафе и сетевые магазины. На первых этажах также предусмотрены места для размещения коммерческих помещений.
Ключевые преимущества:
многоуровневый паркинг на территории комплекса;
сформированная социальная инфраструктура: детский сад, школы, магазины - всё необходимое в шаговой доступности;
большой выбор планировочных решений, малоэтажные корпуса;
историческое окружение: живите рядом с легендарными дворцами и парками Царского Села;
комплекс сдан!
26.11.2025
8 942 316 ₽
Продается готовая квартира студия в жилом комплексе Полет от ГК СТОУН нa 6 этаже. Общaя площадь cоcтaвляeт 32.40 кв. м.
Квартира без отделки . Жилой кoмплeкc располагается по адресу Санкт-Петербург, Пушкинский район, пос. Шушары, Московское ш. , пос. Ленсоветовский.
Расположение:
20 минут до станции метро «Купчино» (автобусы и маршрутки до станции метро «Купчино» курсируют каждые 5-7 минут) ;
5 минут до Московского шоссе;
15 минут до Государственного музея-заповедника Царское Село.
Уютные дворы с современными детскими площадками и тихими зонами отдыха создают идеальную атмосферу для спокойной жизни в экологически чистом районе Санкт-Петербурга.
Всё необходимое буквально под рукой: школы, поликлиника, уютные кафе и сетевые магазины. На первых этажах также предусмотрены места для размещения коммерческих помещений.
Ключевые преимущества:
многоуровневый паркинг на территории комплекса;
сформированная социальная инфраструктура: детский сад, школы, магазины - всё необходимое в шаговой доступности;
большой выбор планировочных решений, малоэтажные корпуса;
историческое окружение: живите рядом с легендарными дворцами и парками Царского Села;
комплекс сдан!
26.11.2025
4 483 800 ₽
Продается готовая квартира студия в жилом комплексе Полет от ГК СТОУН нa 3 этаже. Общaя площадь cоcтaвляeт 32.30 кв. м.
Квартира без отделки . Жилой кoмплeкc располагается по адресу Санкт-Петербург, Пушкинский район, пос. Шушары, Московское ш. , пос. Ленсоветовский.
Расположение:
20 минут до станции метро «Купчино» (автобусы и маршрутки до станции метро «Купчино» курсируют каждые 5-7 минут) ;
5 минут до Московского шоссе;
15 минут до Государственного музея-заповедника Царское Село.
Уютные дворы с современными детскими площадками и тихими зонами отдыха создают идеальную атмосферу для спокойной жизни в экологически чистом районе Санкт-Петербурга.
Всё необходимое буквально под рукой: школы, поликлиника, уютные кафе и сетевые магазины. На первых этажах также предусмотрены места для размещения коммерческих помещений.
Ключевые преимущества:
многоуровневый паркинг на территории комплекса;
сформированная социальная инфраструктура: детский сад, школы, магазины - всё необходимое в шаговой доступности;
большой выбор планировочных решений, малоэтажные корпуса;
историческое окружение: живите рядом с легендарными дворцами и парками Царского Села;
комплекс сдан!
26.11.2025
4 486 250 ₽
Продается готовая квартира студия в жилом комплексе Полет от ГК СТОУН нa 10 этаже. Общaя площадь cоcтaвляeт 32.60 кв. м.
Квартира без отделки . Жилой кoмплeкc располагается по адресу Санкт-Петербург, Пушкинский район, пос. Шушары, Московское ш. , пос. Ленсоветовский.
Расположение:
20 минут до станции метро «Купчино» (автобусы и маршрутки до станции метро «Купчино» курсируют каждые 5-7 минут) ;
5 минут до Московского шоссе;
15 минут до Государственного музея-заповедника Царское Село.
Уютные дворы с современными детскими площадками и тихими зонами отдыха создают идеальную атмосферу для спокойной жизни в экологически чистом районе Санкт-Петербурга.
Всё необходимое буквально под рукой: школы, поликлиника, уютные кафе и сетевые магазины. На первых этажах также предусмотрены места для размещения коммерческих помещений.
Ключевые преимущества:
многоуровневый паркинг на территории комплекса;
сформированная социальная инфраструктура: детский сад, школы, магазины - всё необходимое в шаговой доступности;
большой выбор планировочных решений, малоэтажные корпуса;
историческое окружение: живите рядом с легендарными дворцами и парками Царского Села;
комплекс сдан!
26.11.2025
4 511 200 ₽
Продается готовая квартира студия в жилом комплексе Полет от ГК СТОУН нa 11 этаже. Общaя площадь cоcтaвляeт 25.00 кв. м.
Квартира без отделки . Жилой кoмплeкc располагается по адресу Санкт-Петербург, Пушкинский район, пос. Шушары, Московское ш. , пос. Ленсоветовский.
Расположение:
20 минут до станции метро «Купчино» (автобусы и маршрутки до станции метро «Купчино» курсируют каждые 5-7 минут) ;
5 минут до Московского шоссе;
15 минут до Государственного музея-заповедника Царское Село.
О проекте
ЖК Полет состоит из пяти корпусов переменной этажности (от 5 до 11 этажей) . В проекте представлены студии, 1-комнатные, 2-комнатные и 3-комнатные квартиры. Для автомобилистов построен отдельно стоящий многоуровневый паркинг.
Квартиры реализуются без внутренней отделки, предоставляя жильцам возможность реализовать свои индивидуальные дизайнерские идеи.
Уютные дворы с современными детскими площадками и тихими зонами отдыха создают идеальную атмосферу для спокойной жизни в экологически чистом районе Санкт-Петербурга.
Всё необходимое буквально под рукой: школы, поликлиника, уютные кафе и сетевые магазины. На первых этажах также предусмотрены места для размещения коммерческих помещений.
Ключевые преимущества:
многоуровневый паркинг на территории комплекса;
сформированная социальная инфраструктура: детский сад, школы, магазины - всё необходимое в шаговой доступности;
большой выбор планировочных решений, малоэтажные корпуса;
историческое окружение: живите рядом с легендарными дворцами и парками Царского Села;
комплекс сдан!
25.11.2025
4 068 750 ₽
Продается готовая квартира студия в жилом комплексе Полет от ГК СТОУН нa 3 этаже. Общaя площадь cоcтaвляeт 26.50 кв. м.
Квартира без отделки . Жилой кoмплeкc располагается по адресу Санкт-Петербург, Пушкинский район, пос. Шушары, Московское ш. , пос. Ленсоветовский.
Расположение:
20 минут до станции метро «Купчино» (автобусы и маршрутки до станции метро «Купчино» курсируют каждые 5-7 минут) ;
5 минут до Московского шоссе;
15 минут до Государственного музея-заповедника Царское Село.
О проекте
ЖК Полет состоит из пяти корпусов переменной этажности (от 5 до 11 этажей) . В проекте представлены студии, 1-комнатные, 2-комнатные и 3-комнатные квартиры. Для автомобилистов построен отдельно стоящий многоуровневый паркинг.
Квартиры реализуются без внутренней отделки, предоставляя жильцам возможность реализовать свои индивидуальные дизайнерские идеи.
Уютные дворы с современными детскими площадками и тихими зонами отдыха создают идеальную атмосферу для спокойной жизни в экологически чистом районе Санкт-Петербурга.
Всё необходимое буквально под рукой: школы, поликлиника, уютные кафе и сетевые магазины. На первых этажах также предусмотрены места для размещения коммерческих помещений.
Ключевые преимущества:
многоуровневый паркинг на территории комплекса;
сформированная социальная инфраструктура: детский сад, школы, магазины - всё необходимое в шаговой доступности;
большой выбор планировочных решений, малоэтажные корпуса;
историческое окружение: живите рядом с легендарными дворцами и парками Царского Села;
комплекс сдан!
25.11.2025
4 163 100 ₽
Продается готовая квартира студия в жилом комплексе Полет от ГК СТОУН нa 9 этаже. Общaя площадь cоcтaвляeт 31.50 кв. м.
Квартира без отделки . Жилой кoмплeкc располагается по адресу Санкт-Петербург, Пушкинский район, пос. Шушары, Московское ш. , пос. Ленсоветовский.
Расположение:
20 минут до станции метро «Купчино» (автобусы и маршрутки до станции метро «Купчино» курсируют каждые 5-7 минут) ;
5 минут до Московского шоссе;
15 минут до Государственного музея-заповедника Царское Село.
О проекте
ЖК Полет состоит из пяти корпусов переменной этажности (от 5 до 11 этажей) . В проекте представлены студии, 1-комнатные, 2-комнатные и 3-комнатные квартиры. Для автомобилистов построен отдельно стоящий многоуровневый паркинг.
Квартиры реализуются без внутренней отделки, предоставляя жильцам возможность реализовать свои индивидуальные дизайнерские идеи.
Уютные дворы с современными детскими площадками и тихими зонами отдыха создают идеальную атмосферу для спокойной жизни в экологически чистом районе Санкт-Петербурга.
Всё необходимое буквально под рукой: школы, поликлиника, уютные кафе и сетевые магазины. На первых этажах также предусмотрены места для размещения коммерческих помещений.
Ключевые преимущества:
многоуровневый паркинг на территории комплекса;
сформированная социальная инфраструктура: детский сад, школы, магазины - всё необходимое в шаговой доступности;
большой выбор планировочных решений, малоэтажные корпуса;
историческое окружение: живите рядом с легендарными дворцами и парками Царского Села;
комплекс сдан!
25.11.2025
4 450 590 ₽
Продается по переуступке однокомнатная квартира площадью 37,27м2 в Курортном районе Санкт-Петербурга, г. Зеленогорск в малоэтажном ЖК бизнес-класса «Ranta Residence».
ВАША ВЫГОДА И РАСЧЕТ:
У застройщика цена от 400 000 /м2
Наша цена переуступки: 360 880 /м2
Ваша экономия:~40 000 с каждого квадратного метра!
Финансовые условия для покупателя:
Первый взнос (7,8 млн руб.) на сделке.
Следующий платеж 3 млн руб. — в конце декабря 2025 года.
Оставшаяся часть (2,67 млн руб.) — в конце 2026 года.
Идеальный график платежей без лишней нагрузки!
ОПИСАНИЕ КВАРТИРЫ И ЖК:
Жилая площадь 10.58 м2, кухня 16.72 м2.
Квартира располагается на 3 этаже 4-этажного дома.
Формат White Box: качественная предчистовая отделка. Все грязные работы сделаны, далее дизайнерские фантазии.
Просторная планировка, большая кухня.
Высокие потолки 3 м и панорамные окна — много света и воздуха.
Сдача дома - II квартал 2026 года.
Дом оборудован грузовым лифтом, закрытая территория, видеонаблюдение, круглосуточная охрана.
Вся инфраструктура для жизни: собственный детский сад и школа, спортзал, коворкинг, кофейня, детские и спортивные площадки.
Экология и отдых: ЖК граничит с лесом. На территории: теннисный корт, зоны с барбекю, амфитеатр, сады.
КОМУ ПОДОЙДЕТ ЭТА КВАРТИРА?
Инвесторам: Готовая прибыль с момента вступления в сделку за счет низкой цены входа. Бизнес-класс в Курортном районе — ликвидный актив.
Молодым семьям: Идеальное пространство для комфортной жизни в экологически чистом районе.
Тем, кто ищет формат «за городом без хлопот»: Все услуги внутри комплекса, природа за окном и полная безопасность.
ЛОКАЦИЯ:
Рядом лес, озера, песчаные пляжи Финского залива. Доступна «Ласточка» до Финляндского вокзала. Выезд на ЗСД в 18 км.
Позвоните и узнайте условия покупки прямо сейчас!
25.11.2025
13 450 000 ₽
Продается готовая квартира студия в жилом комплексе Полет от ГК СТОУН нa 8 этаже. Общaя площадь cоcтaвляeт 30.70 кв. м.
Квартира без отделки . Жилой кoмплeкc располагается по адресу Санкт-Петербург, Пушкинский район, пос. Шушары, Московское ш. , пос. Ленсоветовский.
Расположение:
20 минут до станции метро «Купчино» (автобусы и маршрутки до станции метро «Купчино» курсируют каждые 5-7 минут) ;
5 минут до Московского шоссе;
15 минут до Государственного музея-заповедника Царское Село.
О проекте
ЖК Полет состоит из пяти корпусов переменной этажности (от 5 до 11 этажей) . В проекте представлены студии, 1-комнатные, 2-комнатные и 3-комнатные квартиры. Для автомобилистов построен отдельно стоящий многоуровневый паркинг.
Квартиры реализуются без внутренней отделки, предоставляя жильцам возможность реализовать свои индивидуальные дизайнерские идеи.
Уютные дворы с современными детскими площадками и тихими зонами отдыха создают идеальную атмосферу для спокойной жизни в экологически чистом районе Санкт-Петербурга.
Всё необходимое буквально под рукой: школы, поликлиника, уютные кафе и сетевые магазины. На первых этажах также предусмотрены места для размещения коммерческих помещений.
Ключевые преимущества:
многоуровневый паркинг на территории комплекса;
сформированная социальная инфраструктура: детский сад, школы, магазины - всё необходимое в шаговой доступности;
большой выбор планировочных решений, малоэтажные корпуса;
историческое окружение: живите рядом с легендарными дворцами и парками Царского Села;
комплекс сдан!
25.11.2025
4 404 400 ₽
Продается 1-комн. квартира, площадью 32.02 м2 в монолитно-кирпичной новостройке в 15 мин. транспортом от м. Девяткино. Возможен вариант покупки с использованием ипотечных средств, есть рассрочка, возможна покупка с использованием материнского капитала.
Жилая площадь 10.69 м2, кухня 13.08 м2, чистовая отделка, комнаты изолированные.
Квартира располагается на 2 этаже 20-этажного дома в ЖК Стороны света-2.
Застройщик - ГК Прок, сдача дома - I квартал 2027 года, высота потолков 2.54 м. Инфраструктура: детские площадки, спортивные площадки, места для отдыха.
ЖК комфорт-класса "Стороны света-2 строится в г. Бугры Ленинградской области, прямо на границе с Санкт-Петербургом. Мечта о спокойной жизни вблизи северной столицы стала еще реальнее.
Акция: Квартиры высокой готовности от 3,7 млн. рублей! Отделка на выбор: чистовая либо white box!
Программа рассрочки «Фиксированный ежемесячный платеж» для строящегося ЖК "Стороны света-2"!
Первый взнос -25% от стоимости квартиры. Оплачивается при заключении Договора;
Ежемесячно вносится фиксированная сумма (35 000 рублей за студию и 1-к квартиру; 45 000 рублей - за 2-к и 3-к квартиры) ;
Остаток вносится до 01.12.2026 года.
Программа рассрочки «3 платежа» для строящегося ЖК "Стороны света-2"!
Первый взнос -25% от стоимости квартиры. Оплачивается при заключении Договора;
Платеж 35% от стоимости квартиры вносится через 6 месяцев;
Остаток 40% вносится до 01.12.2026 года.
График работы отдела продаж:
ПН-ЧТ: с 10: 00 до 18: 00
ПТ: с 10: 00 до 17: 00
СБ-ВС: выходные.
От ЖК ходит общественный транспорт до ст. метро «Девяткино», «пр. Просвещения» и «Парнас». Есть 2 удобных выезда на КАД, развитая система наземного транспорта. Ж/Д станция «Девяткино», автовокзал «Северный» в 15 минутах езды.
Аккредитованные банки: ВТБ, Банк ДОМ. РФ, Промсвязьбанк, Ак Барс Банк, Альфа-Банк, СберБанк, Абсолют Банк, Банк «УБРиР», Россельхозбанк, Банк «Санкт-Петербург, Совкомбанк.
Позвоните и узнайте условия покупки прямо сейчас!
02.12.2025
4 546 840 ₽
Продается готовая квартира студия в жилом комплексе Полет от ГК СТОУН нa 3 этаже. Общaя площадь cоcтaвляeт 32.20 кв. м.
Квартира без отделки . Жилой кoмплeкc располагается по адресу Санкт-Петербург, Пушкинский район, пос. Шушары, Московское ш. , пос. Ленсоветовский.
Расположение:
20 минут до станции метро «Купчино» (автобусы и маршрутки до станции метро «Купчино» курсируют каждые 5-7 минут) ;
5 минут до Московского шоссе;
15 минут до Государственного музея-заповедника Царское Село.
О проекте
ЖК Полет состоит из пяти корпусов переменной этажности (от 5 до 11 этажей) . В проекте представлены студии, 1-комнатные, 2-комнатные и 3-комнатные квартиры. Для автомобилистов построен отдельно стоящий многоуровневый паркинг.
Квартиры реализуются без внутренней отделки, предоставляя жильцам возможность реализовать свои индивидуальные дизайнерские идеи.
Уютные дворы с современными детскими площадками и тихими зонами отдыха создают идеальную атмосферу для спокойной жизни в экологически чистом районе Санкт-Петербурга.
Всё необходимое буквально под рукой: школы, поликлиника, уютные кафе и сетевые магазины. На первых этажах также предусмотрены места для размещения коммерческих помещений.
Ключевые преимущества:
многоуровневый паркинг на территории комплекса;
сформированная социальная инфраструктура: детский сад, школы, магазины - всё необходимое в шаговой доступности;
большой выбор планировочных решений, малоэтажные корпуса;
историческое окружение: живите рядом с легендарными дворцами и парками Царского Села;
комплекс сдан!
22.11.2025
4 488 600 ₽
Продается готовая квартира студия в жилом комплексе Полет от ГК СТОУН нa 6 этаже. Общaя площадь cоcтaвляeт 27.10 кв. м.
Квартира без отделки . Жилой кoмплeкc располагается по адресу Санкт-Петербург, Пушкинский район, пос. Шушары, Московское ш. , пос. Ленсоветовский.
Расположение:
20 минут до станции метро «Купчино» (автобусы и маршрутки до станции метро «Купчино» курсируют каждые 5-7 минут) ;
5 минут до Московского шоссе;
15 минут до Государственного музея-заповедника Царское Село.
О проекте
ЖК Полет состоит из пяти корпусов переменной этажности (от 5 до 11 этажей) . В проекте представлены студии, 1-комнатные, 2-комнатные и 3-комнатные квартиры. Для автомобилистов построен отдельно стоящий многоуровневый паркинг.
Квартиры реализуются без внутренней отделки, предоставляя жильцам возможность реализовать свои индивидуальные дизайнерские идеи.
Уютные дворы с современными детскими площадками и тихими зонами отдыха создают идеальную атмосферу для спокойной жизни в экологически чистом районе Санкт-Петербурга.
Всё необходимое буквально под рукой: школы, поликлиника, уютные кафе и сетевые магазины. На первых этажах также предусмотрены места для размещения коммерческих помещений.
Ключевые преимущества:
многоуровневый паркинг на территории комплекса;
сформированная социальная инфраструктура: детский сад, школы, магазины - всё необходимое в шаговой доступности;
большой выбор планировочных решений, малоэтажные корпуса;
историческое окружение: живите рядом с легендарными дворцами и парками Царского Села;
комплекс сдан!
22.11.2025
4 105 935 ₽
Продается готовая трёхкомнатная квартира в жилом комплексе Полет от ГК СТОУН нa 2 этаже. Общaя площадь cоcтaвляeт 117.90 кв. м.
Квартира без отделки . Жилой кoмплeкc располагается по адресу Санкт-Петербург, Пушкинский район, пос. Шушары, Московское ш. , пос. Ленсоветовский.
Расположение:
20 минут до станции метро «Купчино» (автобусы и маршрутки до станции метро «Купчино» курсируют каждые 5-7 минут) ;
5 минут до Московского шоссе;
15 минут до Государственного музея-заповедника Царское Село.
О проекте
ЖК Полет состоит из пяти корпусов переменной этажности (от 5 до 11 этажей) . В проекте представлены студии, 1-комнатные, 2-комнатные и 3-комнатные квартиры. Для автомобилистов построен отдельно стоящий многоуровневый паркинг.
Квартиры реализуются без внутренней отделки, предоставляя жильцам возможность реализовать свои индивидуальные дизайнерские идеи.
Уютные дворы с современными детскими площадками и тихими зонами отдыха создают идеальную атмосферу для спокойной жизни в экологически чистом районе Санкт-Петербурга.
Всё необходимое буквально под рукой: школы, поликлиника, уютные кафе и сетевые магазины. На первых этажах также предусмотрены места для размещения коммерческих помещений.
Ключевые преимущества:
многоуровневый паркинг на территории комплекса;
сформированная социальная инфраструктура: детский сад, школы, магазины - всё необходимое в шаговой доступности;
большой выбор планировочных решений, малоэтажные корпуса;
историческое окружение: живите рядом с легендарными дворцами и парками Царского Села;
комплекс сдан!
22.11.2025
10 656 000 ₽




















