Объявление о квартирах в Яхроме - Страница 6
- Яхрома »
- Недвижимость
- » Квартиры в Яхроме
Продается 1-комн. квартира с европланировкой, площадью 46.6 м2 в монолитно-кирпичной новостройке в 19 мин. пешком от м. Улица 1905 года, район города - Пресненский. Возможен вариант покупки с использованием ипотечных средств, есть рассрочка, возможна покупка с использованием материнского капитала, есть военная ипотека.
Жилая площадь 28 м2, кухня 17 м2, квартира без отделки, комнаты изолированные, совмещенных санузлов - 1, балконов - 1.
Квартира располагается на 7 этаже 24-этажного дома в ЖК Начало.
Застройщик - ДОНСТРОЙ, сдача дома - II квартал 2029 года, высота потолков 3.4 м, закрытая территория.
Подземная парковка, парковка охраняется. Обеспечение безопасности: видеонаблюдение, круглосуточная охрана, консьерж, противопожарная система, пропускная система. Инфраструктура: детские площадки, спортивные площадки, места для отдыха, рестораны, фитнес-центр, коммерческие объекты.
НАЧАЛО - Дом-Вселенная в престижном районе Пресня, на перекрестке делового и исторического центров Москвы.
Дом, открывающий космические перспективы для тех, кто умеет видеть окна возможностей и готов взлететь на новые орбиты. Ваша личная Вселенная, полная единомышленников для стремительного движения вверх.
НАЧАЛО - футуристический дом на Пресне в нескольких минутах от Сити и Садового кольца. Проект по настоящему космического масштаба, где есть все, чтобы раскрыть себя и свои возможности.
Из привычного «сегодня» в космическое «завтра»
Как росток пробивает скалу, как растет кристалл, как ракета устремляется ввысь - так формируется архитектурный образ этого дома.
Точно выверенный баланс между футуристичными формами и функциональным содержанием дома выводит жизнь в нем на новую орбиту.
Стеклянные фасады отражают небо и город, превращая здание в зеркало для окружающего ландшафта.
Жилой проект расположен в Пресненском районе Москвы. В пешей доступности находятся станции метро: «Улица 1905 года» (19 минут) , «Москва-Сити» (24 минуты) и «Деловой центр (Выставочная) » (25 минут) .
Позвоните и узнайте условия покупки прямо сейчас!
07.03.2026
62 350 800 ₽
Продается 1-комн. квартира с европланировкой, площадью 46.6 м2 в монолитно-кирпичной новостройке в 19 мин. пешком от м. Улица 1905 года, район города - Пресненский. Возможен вариант покупки с использованием ипотечных средств, есть рассрочка, возможна покупка с использованием материнского капитала, есть военная ипотека.
Жилая площадь 28 м2, кухня 17 м2, квартира без отделки, комнаты изолированные, совмещенных санузлов - 1, балконов - 1.
Квартира располагается на 6 этаже 24-этажного дома в ЖК Начало.
Застройщик - ДОНСТРОЙ, сдача дома - II квартал 2029 года, высота потолков 3.4 м, закрытая территория.
Подземная парковка, парковка охраняется. Обеспечение безопасности: видеонаблюдение, круглосуточная охрана, консьерж, противопожарная система, пропускная система. Инфраструктура: детские площадки, спортивные площадки, места для отдыха, рестораны, фитнес-центр, коммерческие объекты.
НАЧАЛО - Дом-Вселенная в престижном районе Пресня, на перекрестке делового и исторического центров Москвы.
Дом, открывающий космические перспективы для тех, кто умеет видеть окна возможностей и готов взлететь на новые орбиты. Ваша личная Вселенная, полная единомышленников для стремительного движения вверх.
НАЧАЛО - футуристический дом на Пресне в нескольких минутах от Сити и Садового кольца. Проект по настоящему космического масштаба, где есть все, чтобы раскрыть себя и свои возможности.
Из привычного «сегодня» в космическое «завтра»
Как росток пробивает скалу, как растет кристалл, как ракета устремляется ввысь - так формируется архитектурный образ этого дома.
Точно выверенный баланс между футуристичными формами и функциональным содержанием дома выводит жизнь в нем на новую орбиту.
Стеклянные фасады отражают небо и город, превращая здание в зеркало для окружающего ландшафта.
Жилой проект расположен в Пресненском районе Москвы. В пешей доступности находятся станции метро: «Улица 1905 года» (19 минут) , «Москва-Сити» (24 минуты) и «Деловой центр (Выставочная) » (25 минут) .
Позвоните и узнайте условия покупки прямо сейчас!
07.03.2026
62 164 400 ₽
РЕНОВАЦИЯ ДО 2028г.
Пятиэтажный панельный дом 1965 года постройки.
3-х комнатная квартира, комнаты 18.8 проходная с балконом, 13.2 запроходная, и 10 метров изолированная. Три взрослых собственника, полная стоимость в договоре, легкая альтернатива на 1 комнатную квартиру.
Отличный вариант для инвестиции, в течении года будет получена 3-х комнатная квартира в новом доме, порядка 80 метров, стоимостью 30 000 000. В течении года после покупки можно сдавать, поможем с арендаторами.
04.03.2026
22 100 000 ₽
Продаётся уютная однокомнатная квартира общей площадью 37.2 квадратных метров, расположенная на третьем этаже трёхэтажного монолитно-кирпичного дома новой постройки (2023 год) в спокойном районе города Раменское на улице Берёзовой Рощи, дом 5.
Для молодых семей и активных людей особое значение имеет близость социальной инфраструктуры, и эта квартира готова предложить вам все необходимое рядом с домом – школу, детский сад и парк для приятных прогулок на свежем воздухе. Для малышей во дворе обустроена детская площадка, а спортивная площадка позволит поддерживать здоровый образ жизни без лишних усилий.
Квартира обладает жилой площадью 19 квадратных метров и кухней размером 9 квадратных метров, предоставляя достаточно пространства как для приготовления пищи, так и для семейных ужинов. Наличие балкона добавляет дополнительное пространство для отдыха и возможность наслаждаться видами тихого двора.
Важно отметить, что квартира продается без предварительного ремонта, что является отличной возможностью обустроить жилое пространство полностью под себя и свои предпочтения.
Кодовая дверь на входе в подъезд обеспечивает дополнительный уровень комфорта и безопасности жителей.
Это предложение станет идеальным выбором для тех, кто ценит тишину, комфорт и качество нового жилья. Приглашаем вас убедиться в преимуществах данной квартиры лично!
04.03.2026
4 800 000 ₽
Уютная 3-комнатная квартира у Шереметьево. 10 минут до аэропорта. Посуточно, 8000 руб/сут.
Предлагаем просторную и светлую квартиру в новом доме для комфортного проживания. Идеальный вариант для транзитных пассажиров, командировок или семейного отдыха в Москве.
Локация:
Адрес: Москва, Ленинградское шоссе, 229Ак2 (Молжаниновский район).
До аэропорта Шереметьево (терминалы B и C): всего 10 минут на автомобиле или такси.
Удобный выезд на Ленинградское шоссе и МКАД.
Ж/д доступность: 10 минут пешком до станции МЦД-3 «Новоподрезково» (быстрая поездка в центр Москвы).
В квартире есть ВСЁ для проживания «с нуля»:
Спальня и отдых: Телевизор, белое постельное бельё, махровые полотенца.
Кухня со всем необходимым: Холодильник, кондиционер, духовой шкаф, варочная панель, микроволновка (СВЧ), чайник. Полный набор посуды и кухонных принадлежностей для приготовления еды.
Ванная комната: Стиральная машина, фен. Наборы первой необходимости включены в стоимость: шампунь, гель для душа, зубная щётка/паста, тапочки.
Условия проживания:
Строго для некурящих.
Размещение с животными запрещено.
Шумные мероприятия и вечеринки не проводятся (квартира для спокойного отдыха).
Цена: 8 000 рублей в сутки (без дополнительных скрытых платежей).
Бронируйте заранее, чтобы гарантировать даты!
03.03.2026
8 000 ₽
Сдаётся Студия 25 кв. м. г. Красногорск ул. Зелёная, д. 66;
на 2 эт. в 3 этажном кирп. Коттедже 2019 года;
от станции «Павшино» 8 мин/пешком, (ветка Д2);
Предложение ДЛЯ! 1-2 человека, без животных, чистоплотных, аккуратных, платёжеспособных!
Сдаётся на длительный срок, от 6 месяцев и больше.
В Квартире-студии: метал/дверь, хороший ремонт, большой холодильник, 2-х ярусная кровать (низ 120*200см., верх 90*200см.), шкаф-купе, кухонный гарнитур, эл/плита, обеденный + рабочий столы; в С/Узле ванная + унитаз + стиральная машина + раковина; в студии всегда очень тепло (своя котельная), свои счётчики вода + электро.
Очень тихо на улице и в доме, спокойное проживание без суеты, но в черте города;
Удобный выезд на Новорижское, Ильинское и Волоколамское шоссе;
В шаговой доступности вся городская инфраструктура для жизни: до реки «Москва» 300 пог/метров (набережная с пляжем), рядом магазины Пятёрочка, Перекрёсток, Глобус и т. д;
Ежемесячный платёж: 40 000 руб. + коммунальные.
Оплата при заселении: 40 000 руб. + страховой депозит 40 000 руб. (можно частями);
Оперативный показ и Заселение; Заключаем договор; Собственник - без комиссии.
ПОСРЕДНИКАМ просьба не беспокоить, ваши услуги мне не интересны!
01.03.2026
40 000 ₽
Продается 2-комн. квартира, площадью 42.7 кв.м. Возможен вариант покупки с использованием ипотечных средств.
Жилая площадь 26 м2, кухня 7 кв.м. Раздельных санузлов - нет, совмещенных санузлов - 1, балконов - 1, лоджий - нет.
Квартира располагается на 5 этаже 9-этажного дома.
До станции жд Люберцы-1( D3) 15 минут пешком. Развитый район города, сетевые магазины, все дошкольные и школьные , спортивные учреждения. Рядом ТЦ Светофор, кинотеатр, банк фитнес центр с бассейном.
26.02.2026
8 300 000 ₽
Продаются 1 комн. апартаменты-студия, площадью 24.5 м2 в монолитной новостройке в 19 мин. пешком от м.Хорошёво, район города - Хорошево-Мневники. Возможен вариант покупки с использованием ипотечных средств, есть рассрочка, возможна покупка с использованием материнского капитала, есть военная ипотека.
Жилая площадь 17 м2, кухня 2.5 м2, квартира без отделки, совмещенных санузлов - 1, окна выходят во двор.
Квартира располагается на 15 этаже 28-этажного дома в ЖК ЭМОУШН.
Застройщик - ГК Основа, сдача дома - II квартал 2027 года, высота потолков 3 м.
Дом оборудован грузовым и пассажирским лифтом, есть мусоропровод, закрытая территория.
Подземная парковка, парковка охраняется. Обеспечение безопасности: видеонаблюдение, круглосуточная охрана, консьерж, противопожарная система. Инфраструктура: школа, детский сад, поликлиника, детские площадки, спортивные площадки, места для отдыха.
Emotion — яркий новый акцент «Большого Сити». Проект с футуристической архитектурой от KAMEN включает 4 корпуса и представляет собой городскую скульптуру. Корпуса зданий формируют сложный объем, который под определенным углом представляет единое целое, а в динамике он раскрывается сразу в нескольких плоскостях. Здесь располагается собственный SPA-центр с открытым бассейном и панорамными видами на столицу, офисный центр с конференц-залом и амфитеатром, подземный паркинг, кафе, супермаркет, а также приватные общественные пространства для резидентов, где можно провести частные и детские мероприятия, организовать досуг, позаботиться о своей красоте и здоровье. Проект бизнес-класса находится на северо-западе Москвы, в районе Хорошево-Мневники, в 600 метрах от набережной Москвы-реки. Отличную транспортную доступность обеспечивает близость к 4 крупным транспортным развязкам и станциям метро. Emotion предлагает широчайший выбор планировочных решений: от эргономичных евроформатов и уютных студий площадью от 18 кв. м. Во всех апартаментах предусмотрено панорамные остекление.
Позвоните и узнайте условия покупки прямо сейчас!
26.02.2026
15 876 000 ₽
Продаются 1 комн. апартаменты-студия, площадью 27.3 м2 в монолитной новостройке в 19 мин. пешком от м.Хорошёво, район города - Хорошево-Мневники. Возможен вариант покупки с использованием ипотечных средств, есть рассрочка, возможна покупка с использованием материнского капитала, есть военная ипотека.
Жилая площадь 18.8 м2, кухня 3.5 м2, квартира без отделки, совмещенных санузлов - 1, окна выходят во двор.
Квартира располагается на 7 этаже 28-этажного дома в ЖК ЭМОУШН.
Застройщик - ГК Основа, сдача дома - II квартал 2027 года, высота потолков 3 м.
Дом оборудован грузовым и пассажирским лифтом, есть мусоропровод, закрытая территория.
Подземная парковка, парковка охраняется. Обеспечение безопасности: видеонаблюдение, круглосуточная охрана, консьерж, противопожарная система. Инфраструктура: школа, детский сад, поликлиника, детские площадки, спортивные площадки, места для отдыха.
Emotion — яркий новый акцент «Большого Сити». Проект с футуристической архитектурой от KAMEN включает 4 корпуса и представляет собой городскую скульптуру. Корпуса зданий формируют сложный объем, который под определенным углом представляет единое целое, а в динамике он раскрывается сразу в нескольких плоскостях. Здесь располагается собственный SPA-центр с открытым бассейном и панорамными видами на столицу, офисный центр с конференц-залом и амфитеатром, подземный паркинг, кафе, супермаркет, а также приватные общественные пространства для резидентов, где можно провести частные и детские мероприятия, организовать досуг, позаботиться о своей красоте и здоровье. Проект бизнес-класса находится на северо-западе Москвы, в районе Хорошево-Мневники, в 600 метрах от набережной Москвы-реки. Отличную транспортную доступность обеспечивает близость к 4 крупным транспортным развязкам и станциям метро. Emotion предлагает широчайший выбор планировочных решений: от эргономичных евроформатов и уютных студий площадью от 18 кв. м. Во всех апартаментах предусмотрено панорамные остекление.
Позвоните и узнайте условия покупки прямо сейчас!
06.03.2026
15 981 899 ₽
Лучше пишите, сразу отвечу вам.
Продается 2-к квартира 37.2 м2. Центральная и самая обжитая часть города с развитой инфраструктурой. Рядом все магазины, детские, спортивные учреждения .
Дом кирпичный, 1972 года постройки. Квартира в собственности у одного взрослого собственника, свободная продажа.
Совмещенный санузел, застекленная лоджия с торца дома, вся мебель остается.
Звоните, отвечу на все интересующие вопросы.
25.02.2026
7 200 000 ₽
Продажа квартиры, с ремонтом от застройщика в современном развивающемся районе. Регистрация- г. Москва. Общая площадь 38 кв.м. Кухня с выходом на балкон, совмещенный санузел, гардеробная. В пешей доступности: остановка автотранспорта, школа, продуктовые магазины, детский сад, детская площадка, аптеки. Один взрослый собственник. Свободная продажа. Ипотека возможна.
25.02.2026
10 500 000 ₽
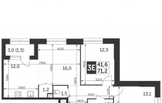
Продается 3-комн. квартира, площадью 71.2 м2.
Жилая площадь 41.6 м2, кухня 12 кв. м, ремонта нет, окна выходят на улицу.
Квартира располагается на 20 этаже 28-этажного монолитного дома.
Дом оборудован пассажирским лифтом, есть мусоропровод, закрытая территория, парковка охраняется.
09.03.2026
39 985 564 ₽
Последние квартиры в ЖК "Датский квартал"!
Продаётся 1-к квартира номер 1026 общей площадью 37.8 кв.м. на 16-м этаже 17 этажного здания. Без отделки. Цена с учётом скидки.
Особенности квартиры:
Дополнительные условия:
- Возможна покупка по программе Трэйд-Ин
- Живите сейчас и платите потом - гибкие условия приобретения
- Максимальные скидки при 100% оплате
- Просторная спальня, в которой можно разместить большую кровать.
- Линейная планировка - максимальная функциональность и удобство.
- Гибкая планировка - создайте пространство по своему вкусу.
- Можно оборудовать рабочее место - комфорт для работы и учёбы.
- Ниша под шкаф - компактное и удобное место для вещей.
- Балкон - открытое пространство для отдыха.
Квартира без отделки. Чистый холст для воплощения интерьера вашей мечты.
Информация о комплексе:
Ощутите прелесть жизни в маленьком европейском городке, не выезжая на пределы Москвы. Здесь всё рядом и продумано для вас: магазины, булочные, прачечные, аптеки и салоны красоты в шаговой доступности. Наличие кладовых позволит вам поддерживать идеальный порядок и уют!
Мы учли каждую мелочь, чтобы вы могли наслаждаться повседневной жизнью- Двор без машин, закрытое, безопасное, охраняемое место с удобным доступом для вашего авто, более чистый воздух и гарантированное место для стоянки - и это далеко не все преимущества наличия подземного паркинга. Наличие кладовых позволит вам поддерживать идеальный порядок и уют в вашей квартире! Родители самых маленьких жильцов будут в восторге от колясочных, запирающихся на магнитный замок. Весь малогабаритный семейный транспорт - коляска, велосипеды и самокаты - прекрасно будет ждать вас здесь до следующего раза. Вымыть колеса коляски или лапы питомцу можно в специальных помещениях, расположенных рядом с колясочной.
Транспортная доступность:
Менее 1км от МКАД: рядом Осташковское и Алтуфьевское шоссе; 15 минут до метро "Алтуфьево", "Бибирево", "Медведково"; 7 минут пешком до ближайшей остановки общественного транспорта.
Внутренняя инфраструктура:
- 2 муниципальных детских сада и муниципальная школа
- Медицинский центр
- Магазины, аптеки, салоны красоты, кафе, булочные на первых этажах комплекса
Квартира без отделки - чистый холст для вашего интерьера.
09.03.2026
9 392 506 ₽
Продается 2-комнатная квартира от застройщика: общая площадь 71.60 м, жилая 35.80 м, кухня 18.50 м, 17-й этаж, жилой квартал «Гордость», корпус 36 (секция 2) . Срок сдачи: 2 квартал 2029 года.
Позвоните сейчас и забронируйте квартиру!
Квартал бизнес-класса СИМВОЛ - это городское пространство нового поколения в историческом районе Лефортово, на границе ЦАО, в 2 км от Садового кольца.
Бионическая архитектура СИМВОЛА превратила Лефортово в суперсовременное и модное пространство. Из окон, с балконов и террас просторных квартир СИМВОЛА открываются отличные виды на город и новый парк «Зеленая река», «протекающий» через все кварталы комплекса на 2 км.
В квартале уже есть все, что нужно для комфортной жизни: кафе и рестораны, супермаркеты и магазины, медицинские и физкультурно-оздоровительные центры, салоны красоты и барбершопы, аптеки и оптики, химчистки, пункты доставки и другие сервисы - всего более 90 действующих объектов внутриквартальной инфраструктуры.
Для юных жителей СИМВОЛА открыты детский сад и инженерный лицей при МГТУ им. Баумана.
Особенности квартала:
Свой парк «Зеленая Река» - 10 га зелени и развлечений на любой вкус!
Уникальная для Москвы архитектура - Проект создан архитектурной мастерской ATRIUM по дизайн-коду британских бюро LDA Design и UHA London.
Богатая инфраструктура с детскими садами и лицеем им. Баумана, кафе и ресторанами, супермаркетами и аптеками, зоной для фитнеса, бассейном и мед. центром.
Квартиры с панорамными окнами, террасами, ванными с окнами и каминами редких форматов.
Закрытые безопасные зелёные дворы-парки без машин!
27.02.2026
33 133 616 ₽
Продается теплая и уютная 1-комнатная квартира у метро Академическая!
Идеальный вариант для жизни или инвестиций!
Предлагаем к продаже светлую, теплую квартиру в престижном районе, всего в 2 минутах ходьбы от станции метро "Академическая". Современный дом 2015 года постройки, улучшенная планировка, 5 этаж 19-ти этажного панельного дома. Высота потолков 2,78 метра создает ощущение простора. Комната с эркерным окном, пропускающим много естественного света. Застекленная лоджия – ваше личное пространство для отдыха.
Преимущества расположения:
- Транспортная доступность: 2 минуты пешком до метро "Академическая" (Калужско-Рижская и Троицкая линии). - Остановки общественного транспорта рядом. Удобный выезд на личном автомобиле в центр и область.
- Развитая инфраструктура: В шаговой доступности всё необходимое для комфортной жизни: детские сады, школы, поликлиники, магазины, торговые центры, рестораны, фитнес-центры, салоны красоты, банки.
- Видовые характеристики: Окна выходят на живописную площадь Хо Ши Мина.
Характеристики квартиры:
Площадь: 36 кв.м.
Комната с эркерным окном
Застекленная лоджия
Высокие потолки (2,78 м)
Современный дом (2015 г.п.)
Улучшенная планировка
Юридическая чистота:
Более 3 лет в собственности.
Полная стоимость в договоре.
Один взрослый собственник.
Без обременений и залогов.
Эта квартира – ваш шанс обрести уютное жилье в одном из лучших районов Москвы с отличной транспортной доступностью и развитой инфраструктурой. Звоните прямо сейчас, чтобы узнать подробности и договориться о просмотре!
18.02.2026
19 500 000 ₽
Продается 3-комн. квартира, площадью 71.2 м2.
Жилая площадь 41.6 кв. м, кухня 12 кв. м, ремонта нет, окна выходят на улицу.
Квартира располагается на 23 этаже 28-этажного монолитного дома.
Дом оборудован пассажирским лифтом, есть мусоропровод, закрытая территория, парковка охраняемая.
09.03.2026
40 167 124 ₽
Продается 3-комн. квартира, площадью 84.3 кв.м.
Жилая площадь 39.3 кв. м, ремонта нет, окна выходят на улицу.
Квартира располагается на 10 этаже 17-этажного монолитного дома.
Дом оборудован пассажирским лифтом, есть мусоропровод, закрытая территория, парковка охраняемая.
09.03.2026
53 414 335 ₽
ПРОДАЕТСЯ 1-КОМНАТНАЯ КВАРТИРА В ЖИЛОМ КОМПЛЕКСЕ КОМФОРТ-КЛАССА (г. Одинцово)
Адрес: Московская область, г. Одинцово, ул. Белорусская, д. 2
Этаж: 12 (из 11) — верхний этаж, потрясающий вид и тишина.
Общяя площадь 42,4
Высота потолков 2,88
Просторная и функциональная планировка, от застройщика под отделку.
ОПИСАНИЕ И ПРЕИМУЩЕСТВА
СВЕТЛАЯ И УЮТНАЯ КВАРТИРА С ПРЕКРАСНЫМ ВИДОМ
Просторная 1-комнатная квартира на верхнем этаже современного монолитного дома. Большая жилая площадь (40 м2) позволяет организовать комфортное пространство как для одного человека, так и для пары.
КАЧЕСТВЕННЫЙ ДОМ (2015 ГОДА ПОСТРОЙКИ)
Тип дома: Монолитный (высокая тепло- и звукоизоляция)
Год постройки: 2015 (относительно новый дом, без проблем старых построек)
Лифт: Пассажирский (удобство для всех жильцов)
Мусоропровод: Наличие (чистота и комфорт)
УДОБНАЯ ЛОКАЦИЯ (Одинцово, ул. Белорусская)
Тихий и зеленый район с развитой инфраструктурой
В шаговой доступности магазины, аптеки, школы, детские сады
Хорошая транспортная доступность до Москвы и областных трасс
СТОИМОСТЬ
Цена: 9 850 000 рублей
Это отличное предложение для квартиры с такой жилой площадью и качественным домом!
ДЛЯ КОГО ЭТА КВАРТИРА?
Для тех, кто ценит простор — огромная жилая площадь для однушки
Для семейной пары или инвестора
Для любителей верхних этажей и красивых видов из окна
18.02.2026
9 850 000 ₽
Продается 3-комн. квартира, площадью 77.3 м2.
Жилая площадь 43.1 кв. м, кухня 12 кв. м, ремонта нет, окна выходят на улицу.
Квартира располагается на 14 этаже 28-этажного монолитного дома.
Дом оборудован пассажирским лифтом, есть мусоропровод, закрытая территория, парковка охраняется.
09.03.2026
42 130 046 ₽
Продается 3-комн. квартира, площадью 69.4 кв.м.
Жилая площадь 40.6 м2, кухня 11.6 кв. м, ремонта нет, окна выходят на улицу.
Квартира располагается на 4 этаже 28-этажного монолитного дома.
Дом оборудован пассажирским лифтом, есть мусоропровод, закрытая территория, парковка охраняемая.
09.03.2026
39 977 523 ₽
Продается 2-комн. квартира, площадью 65.9 кв.м.
Жилая площадь 31.6 м2, кухня 12.4 кв. м, ремонта нет, окна выходят на улицу.
Квартира располагается на 20 этаже 47-этажного монолитного дома.
Дом оборудован пассажирским лифтом, есть мусоропровод, закрытая территория, парковка охраняемая.
09.03.2026
41 036 589 ₽




















