Продам 1 комнатную квартиру 33 м2
Размещено сегодня в 03:10
1
(+1)
0
Жалоба
- Параметры объявления
- Общая площадь (м2): 33
- Вид объекта: Новостройка
- Количество комнат: Однокомнатная
- Этаж: 15
- Этажей в доме: 15
- Адрес улица и дом: Бугры, Тихая улица, д.13к1
- Описание
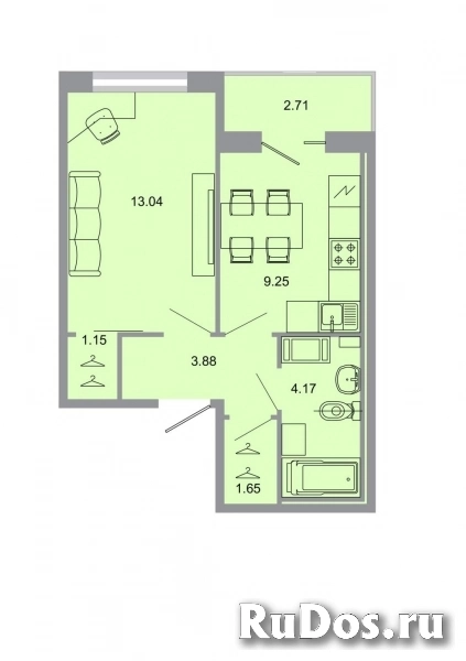
Продается 1-комн. квартира, площадью 33.3 м2 в монолитно-кирпичной новостройке в 15 мин. транспортом от м. Девяткино. Возможен вариант покупки с использованием ипотечных средств, есть рассрочка, возможна покупка с использованием материнского капитала.
Жилая площадь 15.3 м2, кухня 9.1 м2, чистовая отделка, комнаты изолированные, лоджий - 1.
Квартира располагается на 15 этаже 15-этажного дома в ЖК Стороны света.
Застройщик - ГК Прок, сдача дома - III квартал 2023 года, дом уже сдан, высота потолков 2.54 м. Инфраструктура: детские площадки, спортивные площадки, места для отдыха.
ЖК «Стороны света» - современный жилой комплекс комфорт-класса в г. Бугры Ленинградской области. Состоит из четырех корпусов, имеющих тематические названия - «Север» , «Юг» , «Запад» и «Восток». Общее количество квартир - 2294.
Акция: Готовые 1-комнатные квартиры с отделкой от 5,8 млн рублей. Ключи сразу!
График работы отдела продаж:
ПН-ЧТ: с 10: 00 до 18: 00
ПТ: с 10: 00 до 17: 00
СБ-ВС: выходные.
От ЖК ходит общественный транспорт до ст. метро «Девяткино», «пр. Просвещения» и «Парнас». Есть 2 удобных выезда на КАД, развитая система наземного транспорта. Ж/Д станция «Девяткино», автовокзал «Северный» в 15 минутах езды.
Аккредитованные банки: ВТБ, Банк ДОМ. РФ, Промсвязьбанк, Ак Барс Банк, Альфа-Банк, СберБанк, Абсолют Банк, Банк «УБРиР», Россельхозбанк, Банк «Санкт-Петербург, Совкомбанк.
Позвоните и узнайте условия покупки прямо сейчас!
Жилая площадь 15.3 м2, кухня 9.1 м2, чистовая отделка, комнаты изолированные, лоджий - 1.
Квартира располагается на 15 этаже 15-этажного дома в ЖК Стороны света.
Застройщик - ГК Прок, сдача дома - III квартал 2023 года, дом уже сдан, высота потолков 2.54 м. Инфраструктура: детские площадки, спортивные площадки, места для отдыха.
ЖК «Стороны света» - современный жилой комплекс комфорт-класса в г. Бугры Ленинградской области. Состоит из четырех корпусов, имеющих тематические названия - «Север» , «Юг» , «Запад» и «Восток». Общее количество квартир - 2294.
Акция: Готовые 1-комнатные квартиры с отделкой от 5,8 млн рублей. Ключи сразу!
График работы отдела продаж:
ПН-ЧТ: с 10: 00 до 18: 00
ПТ: с 10: 00 до 17: 00
СБ-ВС: выходные.
От ЖК ходит общественный транспорт до ст. метро «Девяткино», «пр. Просвещения» и «Парнас». Есть 2 удобных выезда на КАД, развитая система наземного транспорта. Ж/Д станция «Девяткино», автовокзал «Северный» в 15 минутах езды.
Аккредитованные банки: ВТБ, Банк ДОМ. РФ, Промсвязьбанк, Ак Барс Банк, Альфа-Банк, СберБанк, Абсолют Банк, Банк «УБРиР», Россельхозбанк, Банк «Санкт-Петербург, Совкомбанк.
Позвоните и узнайте условия покупки прямо сейчас!
