Продать квартиру в Воскресенске - Страница 2
- Воскресенск »
- Недвижимость
- » Квартиры
- » Продажа квартир в Воскресенске
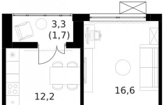
Двухкомнатная квартира с ремонтом, в хорошем жилом состояние в современном доме 2018 года постройки ЖК Баркли Медовая долина.
Просторная кухня- гостиная, 2 сан узла, спальня с гардеробной. Полы с подогревом, окна на две стороны.
Приличный, чистый подъезд, спокойные соседи. Развитая инфраструктура района: магазины, салоны красоты, кафе, пункты выдачи маркетплейсов, поликлиника. У дома заканчивают строительство Торгового центра.
Свежий воздух, вокруг лес, в пешей доступности озеро с пляжем, загородный клуб Александр.
До станции Санино D4 пешком 8 минут, у дома остановка общественного транспорта автобусы до нескольких станций метро Крекшино, Кокошкино, Троицк.
Квартира в собственности более 5 лет, 1 взрослый собственник. Полная стоимость в договоре, нет ни каких обременений AFY-345525058
19.02.2026
12 500 000 ₽
В продажу представлена 2 комнатная квартира в г. Домодедово, мкр. Авиационный, ул. Жуковского, д.1. Дом 1972 года постройки. Квартира располагается на 4 этаже 5 этажного панельного дома. Квартира в жилом состоянии, требующая ремонта. Квартира общей площадью 54.3 кв.м., кухня 10 кв.м., комнаты изолированные, распашонкой 18/12 кв.м., с балконом, раздельный санузел.
Дом располагается в самом центре микрорайона. До ж/д станции Авиационная максимум 7 минут пешком. В шаговой доступности вся городская инфраструктура: ТЦ, детский садик, школа, медсанчасть, нотариусы, парк отдыха, магазины, ДК «Авиатор», салоны красоты и многое другое. Остановка общественного транспорт в 2 минутах ходьбы. Автобусы и маршрутные такси ходят до Москвы (м. Домодедовская) в течение 30 минут, а также до аэропорта Домодедово и города Домодедово. Подъезд чистый. Хорошие соседи
Один взрослый собственник. более 5 лет в собственности. Основание права собственности – договор приватизации (справка кооператива). Полная стоимость в договоре. Квартире без каких-либо ограничений и обременений, без перепланировок. Свободная продажа. Ипотеку рассматриваем. Записывайтесь на просмотр. AFY-345524118
04.04.2026
7 500 000 ₽
В городском округе Домодедово, мкр. Южный на улице Курыжова, д.23 продается 2 комнатная квартира общей площадью 55.6 кв.м., по документам, фактически 57 кв.м. с учетом балкона. Дом 2014 года постройки. Застройщик компания ЛСР. Квартира располагается на 16 этаже 17 этажного панельного дома 2014 года постройки. Квартира в хорошем жилом состоянии, сделан собственный (не муниципальный) ремонт, продается вместе с техникой и мебелью, полностью готова для проживания. Кухня со встроенным кухонным гарнитуром 9 кв.м., застекленный балкон, жилые изолированные комнаты 18/12 кв.м., раздельный, коридор. Квартира распашонкой. Полы из ламината, пластиковые стеклопакеты, хорошая входная железная дверь. В шаговой доступности: школа, детский сад, сетевые продуктовые магазины, лес, речка, остановка общественного транспорта как до Москвы, так и до ж/д станции Домодедово.
В собственности с 2013 года, основание права собственности – ДДУ, один взрослый собственник. Квартира без каких-либо ограничений и обременений, материнский капитал не использовался, квартира без перепланировок, никто не прописан. Полная стоимость в договоре. Ипотеку рассматриваем. Свободная продажа. AFY-345523006
04.04.2026
8 600 000 ₽
Вашему вниманию представлена к продаже в квартира-студия 31.2 кв.м в г/о Домодедово, село Константиново, в закрытом ЖК «Ивановские пруды», территория Константа, д.5. Дом 2019 года постройки, 4 подъездный.
Квартира располагается на 1 высоком этаже 3 этажного кирпичного дома. Раздельный санузел, без балкона. Квартира с хорошим качественным ремонтом. Полы –ламинат, окно – ПВХ, входная железная дверь, натяжной потолок. Окно выходит во двор. Чистый подъезд. Во дворе дома располагается большой паркинг, магазины и остановка в шаговой доступности в пределах 5 минут. ЖК с пропускной системой заезда и закрытой территорией, располагается на берегу красивого большого пруда. Транспорт ходит как до ж/д станции. Домодедово, так и до Москвы. Удобное транспортное сообщение с Москвой, возможно добраться как по трассе м4 Дон, так и по Каширскому шоссе, Симферопольскому. Пешком до ближайшей ж/д станции Взлетная 25 -30 минут пешком.
В собственности более 5 лет, основание права собственности – дкп. Один взрослый собственник. Квартира без каких-либо ограничений или обременений. Альтернативная продажа. Ипотека рассматривается. AFY-345520160
04.04.2026
6 100 000 ₽
Продается стильная двухкомнатная квартира в центре Москвы, в Наставническом переулке, всего в 7 минутах пешком от метро Чкаловская. Квартира расположена на 3 этаже 9-этажного дома, построенного в 2016 году. Высокие потолки (3. 3 метра) создают ощущение простора и света.
В квартире выполнен дизайнерский ремонт, который подчеркивает ее современный стиль и комфорт. Здесь есть все необходимое для комфортной жизни: просторная кухня с современной техникой, уютная гостиная и спальня. Окна выходят как на улицу, так и во двор, поэтому в квартире всегда много света. Совмещенный санузел оборудован качественной сантехникой и отделан стильной плиткой.
Дом находится в отличном состоянии, оборудован подземной парковкой, что удобно для автовладельцев. В подъезде установлены два пассажирских лифта, оборудован пандус, и предусмотрен мусоропровод, что делает жизнь в этом доме особенно комфортной.
Рядом с домом есть все необходимое для удобной жизни: школы, детские сады, клиники и магазины. Развитая инфраструктура и близость к метро делают этот район идеальным местом для проживания.
Квартира продается без обременений, возможна покупка в ипотеку. Все документы готовы к сделке. Это отличное предложение как для личного проживания, так и для инвестиций.
Не упустите возможность стать владельцем этой замечательной квартиры в центре Москвы. Записывайтесь на просмотр и приходите лично оценить все преимущества этого объекта! AFY-345515114
11.03.2026
60 000 000 ₽
Продается стильная и просторная 2-комнатная квартира в самом сердце Москвы, на Наставническом переулке, 3. Квартира расположена на 3 этаже современного 9-этажного дома, построенного в 2016 году. Общая площадь составляет 90 кв. м, с жилой площадью 50 кв. м и кухней - настоящей мечтой хозяйки - площадью 21 кв. м. Высокие потолки 3. 3 метра добавляют ощущение простора и света.
Квартира с дизайнерским ремонтом, в котором учтены все современные тенденции и удобства. Просторные комнаты и роскошная кухня с совмещенным санузлом обеспечат комфортное проживание. Окна выходят на улицу, благодаря чему в квартире всегда светло. Кухня оборудована современной техникой и готова к использованию.
Дом, в котором находится квартира, имеет все необходимые удобства для комфортного проживания. Два пассажирских и один грузовой лифт, а также наличие пандуса и мусоропровода делают жизнь в этом доме максимально удобной. Для владельцев автомобилей предусмотрена подземная парковка.
Район с развитой инфраструктурой: в пешей доступности находятся школы, детские сады, клиники и магазины. До станции метро "Курская" всего 7 минут пешком, что позволяет быстро добраться до любой точки города.
Условия сделки просты и прозрачны: продажа квартиры без обременений, возможна ипотека. Все документы готовы к сделке.
Не упустите возможность стать владельцем этой замечательной квартиры! Записывайтесь на просмотр и убедитесь во всем сами! AFY-345515113
11.03.2026
62 000 000 ₽
Продается просторная 3 комнатная квартира в г. Домодедово, мкр. Западный, по улице Рабочая, д.44, корп.1. Дом 2004 года постройки. Квартира располагается на 1 этаже 10 этажного кирпичного дома. Квартира распашонкой, на две стороны, общей площадью 64,8 кв., комнаты 15.5/10.5 кв.м. маленькая комната 9 кв.м. была совмещена с коридором, застекленный балкон, кухня 10 кв.м с газом, совмещенный санузел с душевой кабиной. В квартире сделан хороший качественный ремонт, въезжай и живи. Остается практически вся мебель и техника, включая: стиральная машина, холодильник, варочная плита, духовой шкаф, посудомоечная машина и многое другое. В двух комнатах установлены кондиционеры, окна заменены на новые, дорогая входная железная дверь. Потолки натяжные. Полы –керамическая плитка и паркетная доска. В большой комнате дополнительно сделана гардеробная комната. Теплые полы по всей квартире, включая балкон. Была произведена перепланировка квартиры для более удобного и просторного использования всех помещений. Перепланировка не узаконена, мокрые точки, несущая конструкция не тронуты.
Отличные соседи на площадке, дом стоит в планах кап. ремонта, пассажирский лифт, стихийная парковка. Во дворе дома дополнительно подвал для хранения овощей или бытовые нужды.
Дом располагается в спальном районе города, вблизи вся инфраструктура: городской лес, парк, детские сады, школы, Сбербанк, сетевые магазины, ТЦ, спортивный комплекс с плавательным бассейном, женская консультация, почта и многое другое. Остановка до Москвы и до ж/д станции Домодедово под окнами. До станции Домодедово пешком можно дойти за 20 минут.
Квартира без обременений, материнский капитал не использовался. Документы основания – договор купли-продажи 2006 года. Один взрослый собственник, полная стоимость в договоре. Свободная продажа. Ипотека возможна. Звоните и записывайтесь на показ квартиры. AFY-345509783
04.04.2026
12 000 000 ₽
Приятная семейная квартира с тремя спальнями, отдельной гостиной, и большой кухней с дизайнерской отделкой, выполненной в современном стиле. Также имеет два санузла, гардеробную, встроенные шкафы и постирочную, весь ремонт выполнен из очень дорогостоящих материалов, самых известных премиальных мировых брендов, как и вся бытовая, встроенная техника. Находится объект в Премиальном доме ЖК "Royal House on Yauza", центральном округе Москвы. Недалеко от ЖК расположены набережная реки Яузы, парки, старинные храмы, Московский Кремль и Красная площадь. Шикарные виды из окон на историческую часть Москвы. Панорамные окна. Потолки 3, 3 метра. Квартира свободной планировки. Собственный двухуровневый подземный паркинг, периметральное ограждение, круглосуточное видео наблюдение внешней территории и внутренних помещений, которое производит собственная служба безопасности. Установлены централизованные системы кондиционирования и вентиляции. Комфортные, высокоскоростные и бесшумные лифты. Смотрите фото и Звоните. AFY-345506223
11.03.2026
95 000 000 ₽
ЦАО, Замоскворечье! Значительно дешевле, чем у застройщика!!! Продажа кв-ры в 1-й очереди, сдача дома в следующем 2026 году! Очень удачная планировка, таких уже давно нет, не в первой, не во второй очереди! Во второй очереди такая площадь, всего с двумя окнами и две спальни, даже маленькие не получится сделать(
Продажа переуступке от Юр. лица, в строящемся доме по заманчивой цене! Звоните за подробностями. AFY-345506220
11.03.2026
35 000 000 ₽
Предлагается трёхкомнатная квартира в уютном месте. Сделано свежее обновление дизайнерского ремонта прошлых лет, итальянская мебель и техника, всё свежее, никто не жил. Удобное транспортное местоположение, в пешей доступности десяти минутах от МЦК и недалеко три станции метро, в неё можно быстро найти арендаторов и купить её под инвестиции, также и для себя! Дом находится возле Измайловского парка, где можно всегда прогуляться. В этом районе очень развитая инфраструктура: тц, магазины, школы, детские сады, гипермаркеты, рынки, ярмарки и многое другое. ДКП более трёх лет, прописанных нет, один взрослый собственник. Хорошие документы и все готовы на сделку. Смотрите фото и звоните, пишите. AFY-345388483
11.03.2026
30 000 000 ₽
Продажа квартиры с дизайнерским ремонтом на видовом этаже по полной стоимости в ЖК "Купавино". Один взрослый собственник. Звоните. AFY-345314512
21.03.2026
5 600 000 ₽
Квартира-студия расположена на первой береговой линии Москвы-реки, площадью 23. 40 кв. м. Без отделки. Квартира расположена на 7 этаже 26-этажного корпуса "С". номер секции 1 в жилом комплексе бизнес-класса Level Нагатинская (компания Level Group). С каждого этажа дома на лифте можно спуститься в подземный отапливаемый паркинг.
До метро 15 мин. пешком до станции м. Нагатинская" , так же доступность до станций метро -"Коломенская" и мцк "Верхние Котлы" , ТТК , до Садового кольца на авто 12 мин . AFY-345312219
28.11.2025
11 900 000 ₽
Новый жилой комплекс
в г. Котельники, мкр. Южный.
Однокомнатная квартира с евроремонтом в современном стиле. Большой балкон. Кухня оборудована всей необходимой техникой по последнему слову. Установлены индивидуальные счётчики отопления с регулировкой температуры.
Развитая инфраструктура: рядом школа, детский сад, поликлиники. В пешей доступности несколько сетевых супермаркетов.
Удобная транспортная развязка :
до метро Котельники 7-10 минут общественным транспортом .
Окна выходят во двор, где находится прекрасно оборудованная , детская площадка.
Рядом Томилинский лесопарк.
В полукилометре от дома расположены несколько лесных озер. На одном из них экстрим-парк "Фристайл " :
летом - водные атракционы,
зимой - горнолыжный спуск, тюнинг.
В доме есть подземный паркинг.
В квартире после ремонта никто не жил.
Один взрослый собственник.
Прямая продажа.
Оперативный показ.
Быстрый выход на сделку. AFY-342209627
28.11.2025
8 300 000 ₽
Продаю двухкомнатную квартиру(Две спальни и кухня+гостиная), можно сказать "Евро-двушка", с роскошным дизайнерским ремонтом в ЖК "Royal House on Yauza" -Элитный дом в центральном округе Москвы. Недалеко от ЖК расположены набережная реки яузы, парки, старинные храмы, Московский Кремль и Красная площадь. Шикарные виды из окон на историческую часть Москвы. Панорамные окна. Потолки 3, 3 метра. Квартиры свободной планировки. Собственный двухуровневый подземный паркинг, периметральное ограждение, круглосуточное видео наблюдение внешней территории и внутренних помещений, которое производит собственная служба безопасности. Установлены централизованные системы кондиционирования и вентиляции, а также система по управлению зданием. Комфортные, высокоскоростные и бесшумные лифты. Смотрите фото и Звоните. AFY-321628811
21.03.2026
58 000 000 ₽
Продается квартира-студия в 6 секции ЖК Купавино , на высоком этаже с окнами на пруд! Лучший и самый дорогой, качественный ремонт в данном доме! Полная стоимость в дкп, дизайнерская отделка, полностью меблирована и укомплектована, всё для жизни есть вплоть до приборов и штор, заходи и живи! ЖК Купавино расположен в городе Старая Купавна (19 км от МКАД по Горьковскому шоссе). Территория комплекса огорожена и круглосуточно охраняется. Общая площадь застройки составляет 11000 кв. м. Название жилого комплекса выбрано не случайно. В двух шагах от дома находится живописное Купавинское озеро, излюбленное место отдыха местных жителей. Жилой комплекс расположен в очень живописном месте, на берегу Купавинского озера, береговая линия которого разделена на несколько частей: Пляжная зона, оборудованная навесами и площадками для активных игр. Прогулочная зона вдоль берега озера представляет собой зеленую аллею со скамейками и беседками. В шаговой доступности находятся все необходимые городские объекты социально-бытовой инфраструктуры. Возможен незначительный торг. Ипотека. Звоните, пишите. AFY-317736161
11.03.2026
5 400 000 ₽
Продаётся 2-х комнатная уютная квартира с новым ремонтом в районе с хорошей инфраструктурой и транспортной доступностью
Общие сведения
Продаётся уютная двухкомнатная квартира на 15 этаже панельного дома, построенного в 2016 году в ЖК Немчиновка.
Транспортная доступность
Хорошая транспортная доступность:
20 минут до метро Молодежная на маршрутке 597
10 минут пешком до ж/д станции Ромашково
20 минут пешком до ж/д станции Немчиновка
Быстрый доступ до района Москва-сити по платной дороге (15 минут)
Комфорт и удобство
Изолированные комнаты и раздельный санузел
Панорамный вид из окон
Кондиционер на жаркие дни
Встроенный фильтр и измельчитель отходов на кухне
Новая электрика и сантехника (замена в 2024 году)
Мусоропровод, пассажирский и грузовой лифты
Открытая парковка во дворе
Инфраструктура
Спортивные и детские площадки на территории ЖК
Лесной массив для прогулок
Наличие лицея и магазинов (Пятерочка, Дикси, Вкусвилл)
В шаговой доступности ТЦ Вегас и спортклуб
Правовая информация
Квартира в собственности более 5 лет, один взрослый собственник, никто не прописан. Документы готовы к продаже, возможна ипотека (семейная, сельская, для учителей, IT ипотека, коммерческая) и с использованием материнского капитала. Оперативный показ и выход на сделку.
10.04.2026
13 687 383 ₽
Продается 3-комн. квартира, площадью 63.2 кв.м.
Жилая площадь 37.9 м2, кухня 8.6 кв. м, ремонта нет, окна выходят во двор и на улицу.
Квартира располагается на 7 этаже 14-этажного панельного дома в ЖК 1-й Ленинградский.
Дом оборудован пассажирским лифтом.
10.04.2026
21 791 360 ₽
Велтон Парк: 250м2 дизайнерского ремонта с панорамным светом и умным домом.
В тихом престижном районе Москвы, среди зелени предлагается квартира, где не нужно ничего доделывать, переделывать или додумывать. Всё уже работает.
Пространство для семьи и для себя.
Общая гостиная 60 м2, мастер-спальня с двумя гардеробными и своим санузлом, отдельный кабинет и ещё три спальни. Потолки 3,1 м. Окна на три стороны — солнце с утра до вечера. Окна - дубовые с триплексом внутри и коленным стеклом снаружи - для тишины и безопасности. Вы не столкнётесь локтями, но всегда будете рядом.
Умный дом, который реально полезен:
итальянская система Vimar (не ушли из России) - управление светом, шторами, тёплым полом, кондиционерами и музыкой с телефона.
Встроенная система «Sonos» и акустика «Cary Audio» с плоскими колонками — музыка там, где вы хотите, плюс акустика в потолке в санузлах.
Климат без сквозняков: кондиционеры Daikin с притоком уличного воздуха в каждой комнате + конвекторы в полу. Пожарная сигнализация «Болид» - безопасность на уровне небольшого отеля.
Мелочи, которые вы оцените сразу:
У вас три машиноместа в тёплом паркинге — прямо у лифта;
Автономный бойлер в мастер-спальне. Горячая вода есть всегда, даже летом;
Отдельный постирочный блок и несколько гардеробных — хлам не прячете, вещи висят;
У всех спален есть выход на балкон;
Бытовая техника Miele под ключ: винный шкаф, духовка, кофемашина, два холодильника, посудомойка, варочная плита.
Подъезд, куда не стыдно пригласить гостей: на этаже всего 4 квартиры. Латунь, итальянский мрамор, свет. Никакого «советского шика».
Жизнь без машины перед окном.
Двор закрытый, машин нет. Детские и спортивные площадки, прогулочные аллеи. Рядом — «Хорошкола» (топ Forbes 2026) и школа №1517 с профильными классами: от IT и инженерного до медицинского и лингвистического.
Кафе, рестораны, фитнес, торговый центр Патриот, кинотеатр, Азбука Вкуса - в пешей доступности.
Природа = выход из подъезда: Карамышевская набережная - утром пробежка, вечером кофе у воды. 5 минут до Серебряного бора: сосны, пляжи, воздух.
Транспорт для тех, кто ценит время: прямой выезд на проспект Маршала Жукова. ТТК - 7 минут, Садовое - 15. Метро «Народное Ополчение» - 12 минут пешком.
Видео и дополнительные фото- по запросу.
10.04.2026
140 000 000 ₽
Продается 2-комн. квартира, площадью 59.4 м2.
Жилая площадь 29.7 кв. м, кухня 12.2 кв. м, ремонта нет, окна выходят во двор и на улицу.
Квартира располагается на 13 этаже 13-этажного панельного дома в ЖК 1-й Ленинградский.
Дом оборудован пассажирским лифтом.
09.04.2026
18 353 115 ₽
Продается 2-комн. квартира, площадью 59.6 м2.
Жилая площадь 29.7 м2, кухня 12.2 кв. м, ремонта нет, окна выходят во двор и на улицу.
Квартира располагается на 7 этаже 14-этажного панельного дома в ЖК 1-й Ленинградский.
Дом оборудован пассажирским лифтом.
09.04.2026
17 779 634 ₽
Просторная 5-комнатная квартира с дизайнерским ремонтом и высокими потолками. Отличный вариант для семьи, которая ценит комфорт и статусное расположение в престижном районе Москвы. Возможна ипотека.
Расположение и транспорт:
8 минут пешком от м. «Мичуринский проспект».
Район: Проспект Вернадского — один из самых зеленых и престижных районов Москвы.
Дом: 13-этажный (квартира на последних этажах — 12 и 13).
О квартире:
Формат: Двухуровневая квартира.
Площадь: 167 м2.
Планировка: 5 изолированных комнат — достаточно пространства для большой семьи, кабинета и гостевой зоны.
Высота потолков: 3.2 метра — создает ощущение воздуха и свободы.
Санузлы: 1 раздельный + 2 совмещенных — максимальное удобство для всех членов семьи.
Остекление: 2 лоджии, окна выходят на две стороны (во двор и на улицу).
Ремонт и состояние:
Качественный современный ремонт по авторскому проекту — можно въезжать и жить, не тратя время и деньги на отделку.
Покрытие полов: паркет и плитка.
Бонус: по договоренности можем оставить мебель — переезжайте с комфортом.
Условия продажи:
Цена: 73 480 000 руб. (прямая продажа от собственника).
Возможна ипотека — включая семейную (уточняйте условия).
Обременения: нет, чистая продажа.
Для просмотра:
Свяжитесь с нами, чтобы увидеть квартиру своими глазами и почувствовать атмосферу этого пространства. Готовы ответить на любые вопросы.
09.04.2026
73 480 000 ₽




















