Продажа недвижимости в Выселках - Страница 3
- Выселки »
- Недвижимость в Выселках
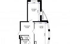
Продается 2-комн. квартира, площадью 60.73 м2 в монолитно-кирпичной новостройке. Возможен вариант покупки с использованием ипотечных средств, возможна покупка с использованием материнского капитала.
Жилая площадь 28.94 м2, кухня 15.14 м2, предчистовая отделка.
Квартира располагается на 9 этаже 12-этажного дома в ЖК Дружба.
Застройщик - ССК (Краснодарский край) , сдача дома - II квартал 2026 года, высота потолков 2.72 м.
Дом оборудован пассажирским лифтом.
Подземная парковка. Инфраструктура: детские площадки, спортивные площадки, места для отдыха.
Жилой комплекс «Дружба» располагается в живописном уголке Майкопа, где природа переплетается с современным обликом. Этот проект предлагает уединение и возможность наслаждаться свежим воздухом в окружении природной красоты. Все преимущества комплекса призваны обеспечить максимальный комфорт и удовлетворение потребностей его жителей.
Всего в нескольких минутах от комплекса расположен самый большой торговый центр Майкопа - «МАЙКОП МОЛЛ».
Ваш дом в ЖК «Дружба» - с особой выгодой до 10 000 /м!
Для тех, кто ищет идеальное сочетание комфорта и выгоды, мы подготовили специальные условия покупки в ЖК «Дружба». При единовременной оплате вы получаете повышенную скидку: 8 000 /м на просторные двушки, 10 000 /м на уютные трешки и 20 000 /м на коммерческие помещения.
Это предложение создано для вашей максимальной выгоды - вы становитесь владельцем современной квартиры по исключительной цене, экономя значительную сумму при полном расчете.
Позвоните и узнайте условия покупки прямо сейчас!
31.12.2025
8 259 280 ₽
Продается 2-комн. квартира, площадью 60.73 м2 в монолитно-кирпичной новостройке. Возможен вариант покупки с использованием ипотечных средств, возможна покупка с использованием материнского капитала.
Жилая площадь 28.94 м2, кухня 15.14 м2, предчистовая отделка.
Квартира располагается на 12 этаже 12-этажного дома в ЖК Дружба.
Застройщик - ССК (Краснодарский край) , сдача дома - II квартал 2026 года, высота потолков 2.72 м.
Дом оборудован пассажирским лифтом.
Подземная парковка. Инфраструктура: детские площадки, спортивные площадки, места для отдыха.
Жилой комплекс «Дружба» располагается в живописном уголке Майкопа, где природа переплетается с современным обликом. Этот проект предлагает уединение и возможность наслаждаться свежим воздухом в окружении природной красоты. Все преимущества комплекса призваны обеспечить максимальный комфорт и удовлетворение потребностей его жителей.
Всего в нескольких минутах от комплекса расположен самый большой торговый центр Майкопа - «МАЙКОП МОЛЛ».
Ваш дом в ЖК «Дружба» - с особой выгодой до 10 000 /м!
Для тех, кто ищет идеальное сочетание комфорта и выгоды, мы подготовили специальные условия покупки в ЖК «Дружба». При единовременной оплате вы получаете повышенную скидку: 8 000 /м на просторные двушки, 10 000 /м на уютные трешки и 20 000 /м на коммерческие помещения.
Это предложение создано для вашей максимальной выгоды - вы становитесь владельцем современной квартиры по исключительной цене, экономя значительную сумму при полном расчете.
Позвоните и узнайте условия покупки прямо сейчас!
31.12.2025
8 259 280 ₽
Продается 2-комн. квартира, площадью 60.73 м2 в монолитно-кирпичной новостройке. Возможен вариант покупки с использованием ипотечных средств, возможна покупка с использованием материнского капитала.
Жилая площадь 28.94 м2, кухня 15.14 м2, предчистовая отделка.
Квартира располагается на 11 этаже 12-этажного дома в ЖК Дружба.
Застройщик - ССК (Краснодарский край) , сдача дома - II квартал 2026 года, высота потолков 2.72 м.
Дом оборудован пассажирским лифтом.
Подземная парковка. Инфраструктура: детские площадки, спортивные площадки, места для отдыха.
Жилой комплекс «Дружба» располагается в живописном уголке Майкопа, где природа переплетается с современным обликом. Этот проект предлагает уединение и возможность наслаждаться свежим воздухом в окружении природной красоты. Все преимущества комплекса призваны обеспечить максимальный комфорт и удовлетворение потребностей его жителей.
Всего в нескольких минутах от комплекса расположен самый большой торговый центр Майкопа - «МАЙКОП МОЛЛ».
Ваш дом в ЖК «Дружба» - с особой выгодой до 10 000 /м!
Для тех, кто ищет идеальное сочетание комфорта и выгоды, мы подготовили специальные условия покупки в ЖК «Дружба». При единовременной оплате вы получаете повышенную скидку: 8 000 /м на просторные двушки, 10 000 /м на уютные трешки и 20 000 /м на коммерческие помещения.
Это предложение создано для вашей максимальной выгоды - вы становитесь владельцем современной квартиры по исключительной цене, экономя значительную сумму при полном расчете.
Позвоните и узнайте условия покупки прямо сейчас!
31.12.2025
8 259 280 ₽
Продается 2-комн. квартира, площадью 60.73 м2 в монолитно-кирпичной новостройке. Возможен вариант покупки с использованием ипотечных средств, возможна покупка с использованием материнского капитала.
Жилая площадь 28.94 м2, кухня 15.14 м2, предчистовая отделка.
Квартира располагается на 12 этаже 12-этажного дома в ЖК Дружба.
Застройщик - ССК (Краснодарский край) , сдача дома - II квартал 2026 года, высота потолков 2.72 м.
Дом оборудован пассажирским лифтом.
Подземная парковка. Инфраструктура: детские площадки, спортивные площадки, места для отдыха.
Жилой комплекс «Дружба» располагается в живописном уголке Майкопа, где природа переплетается с современным обликом. Этот проект предлагает уединение и возможность наслаждаться свежим воздухом в окружении природной красоты. Все преимущества комплекса призваны обеспечить максимальный комфорт и удовлетворение потребностей его жителей.
Всего в нескольких минутах от комплекса расположен самый большой торговый центр Майкопа - «МАЙКОП МОЛЛ».
Ваш дом в ЖК «Дружба» - с особой выгодой до 10 000 /м!
Для тех, кто ищет идеальное сочетание комфорта и выгоды, мы подготовили специальные условия покупки в ЖК «Дружба». При единовременной оплате вы получаете повышенную скидку: 8 000 /м на просторные двушки, 10 000 /м на уютные трешки и 20 000 /м на коммерческие помещения.
Это предложение создано для вашей максимальной выгоды - вы становитесь владельцем современной квартиры по исключительной цене, экономя значительную сумму при полном расчете.
Позвоните и узнайте условия покупки прямо сейчас!
31.12.2025
8 259 280 ₽
Продается 2-комн. квартира, площадью 60.73 м2 в монолитно-кирпичной новостройке. Возможен вариант покупки с использованием ипотечных средств, возможна покупка с использованием материнского капитала.
Жилая площадь 28.94 м2, кухня 15.14 м2, предчистовая отделка.
Квартира располагается на 10 этаже 12-этажного дома в ЖК Дружба.
Застройщик - ССК (Краснодарский край) , сдача дома - II квартал 2026 года, высота потолков 2.72 м.
Дом оборудован пассажирским лифтом.
Подземная парковка. Инфраструктура: детские площадки, спортивные площадки, места для отдыха.
Жилой комплекс «Дружба» располагается в живописном уголке Майкопа, где природа переплетается с современным обликом. Этот проект предлагает уединение и возможность наслаждаться свежим воздухом в окружении природной красоты. Все преимущества комплекса призваны обеспечить максимальный комфорт и удовлетворение потребностей его жителей.
Всего в нескольких минутах от комплекса расположен самый большой торговый центр Майкопа - «МАЙКОП МОЛЛ».
Ваш дом в ЖК «Дружба» - с особой выгодой до 10 000 /м!
Для тех, кто ищет идеальное сочетание комфорта и выгоды, мы подготовили специальные условия покупки в ЖК «Дружба». При единовременной оплате вы получаете повышенную скидку: 8 000 /м на просторные двушки, 10 000 /м на уютные трешки и 20 000 /м на коммерческие помещения.
Это предложение создано для вашей максимальной выгоды - вы становитесь владельцем современной квартиры по исключительной цене, экономя значительную сумму при полном расчете.
Позвоните и узнайте условия покупки прямо сейчас!
31.12.2025
8 259 280 ₽
Продается 2-комн. квартира, площадью 49.05 м2 в панельной новостройке. Возможен вариант покупки с использованием ипотечных средств, возможна покупка с использованием материнского капитала.
Жилая площадь 21.5 м2, кухня 14.1 м2, предчистовая отделка.
Квартира располагается на 6 этаже 12-этажного дома в ЖК На Высоком берегу.
Застройщик - ССК (Краснодарский край) , сдача дома - II квартал 2027 года, высота потолков 2.7 м.
Дом оборудован пассажирским лифтом.
Подземная парковка. Инфраструктура: детские площадки, спортивные площадки, места для отдыха, рестораны.
Семейный квартал «На Высоком берегу» расположен всего в 300 метрах от моря, где каждая деталь создана для вашего максимального комфорта. Квартиры с высотой потолков 2,7 метра, просторные мастер-спальни и великолепные виды.
169 уникальных, современных и функциональных планировок, каждая из которых разработана специально для комфортной семейной жизни. Продуманное зонирование, рациональное использование пространства и эстетика современного дизайна делают каждую квартиру настоящим воплощением мечты о жилье премиум-класса.
Мы создали комфортные финансовые условия для приобретения квартиры в семейном квартале «На Высоком берегу». Теперь вы можете оформить рассрочку на 12 месяцев, сохранив выгодную цену на недвижимость.
Приобретайте квартиру с первоначальным взносом 20% при регистрации ДДУ. Последующие платежи составят 15% через месяц и 20% через два месяца после оформления. Оставшиеся 45% вы сможете выплачивать удобными для вас способами - ежемесячно или ежеквартально, без переплат и по первоначальной стоимости.
Это предложение позволяет стать владельцем качественной квартиры, грамотно распределив свой бюджет. Рассрочка делает покупку доступной, а прозрачные условия помогают планировать финансы без неожиданностей.
Узнайте больше о доступных квартирах и специальных условиях на консультации с нашим менеджером.
Позвоните и узнайте условия покупки прямо сейчас!
31.12.2025
12 753 000 ₽
Продается 2-комн. квартира, площадью 49.05 м2 в панельной новостройке. Возможен вариант покупки с использованием ипотечных средств, возможна покупка с использованием материнского капитала.
Жилая площадь 21.5 м2, кухня 14.1 м2, предчистовая отделка.
Квартира располагается на 3 этаже 12-этажного дома в ЖК На Высоком берегу.
Застройщик - ССК (Краснодарский край) , сдача дома - II квартал 2027 года, высота потолков 2.7 м.
Дом оборудован пассажирским лифтом.
Подземная парковка. Инфраструктура: детские площадки, спортивные площадки, места для отдыха, рестораны.
Семейный квартал «На Высоком берегу» расположен всего в 300 метрах от моря, где каждая деталь создана для вашего максимального комфорта. Квартиры с высотой потолков 2,7 метра, просторные мастер-спальни и великолепные виды.
169 уникальных, современных и функциональных планировок, каждая из которых разработана специально для комфортной семейной жизни. Продуманное зонирование, рациональное использование пространства и эстетика современного дизайна делают каждую квартиру настоящим воплощением мечты о жилье премиум-класса.
Мы создали комфортные финансовые условия для приобретения квартиры в семейном квартале «На Высоком берегу». Теперь вы можете оформить рассрочку на 12 месяцев, сохранив выгодную цену на недвижимость.
Приобретайте квартиру с первоначальным взносом 20% при регистрации ДДУ. Последующие платежи составят 15% через месяц и 20% через два месяца после оформления. Оставшиеся 45% вы сможете выплачивать удобными для вас способами - ежемесячно или ежеквартально, без переплат и по первоначальной стоимости.
Это предложение позволяет стать владельцем качественной квартиры, грамотно распределив свой бюджет. Рассрочка делает покупку доступной, а прозрачные условия помогают планировать финансы без неожиданностей.
Узнайте больше о доступных квартирах и специальных условиях на консультации с нашим менеджером.
Позвоните и узнайте условия покупки прямо сейчас!
31.12.2025
12 753 000 ₽
Продается студия, площадью 32.45 м2 в панельной новостройке. Возможен вариант покупки с использованием ипотечных средств, возможна покупка с использованием материнского капитала.
Жилая площадь 21.9 м2, предчистовая отделка, комнаты смежные.
Квартира располагается на 6 этаже 12-этажного дома в ЖК На Высоком берегу.
Застройщик - ССК (Краснодарский край) , сдача дома - II квартал 2027 года, высота потолков 2.7 м.
Дом оборудован пассажирским лифтом.
Подземная парковка. Инфраструктура: детские площадки, спортивные площадки, места для отдыха, рестораны.
Семейный квартал «На Высоком берегу» расположен всего в 300 метрах от моря, где каждая деталь создана для вашего максимального комфорта. Квартиры с высотой потолков 2,7 метра, просторные мастер-спальни и великолепные виды.
169 уникальных, современных и функциональных планировок, каждая из которых разработана специально для комфортной семейной жизни. Продуманное зонирование, рациональное использование пространства и эстетика современного дизайна делают каждую квартиру настоящим воплощением мечты о жилье премиум-класса.
Мы создали комфортные финансовые условия для приобретения квартиры в семейном квартале «На Высоком берегу». Теперь вы можете оформить рассрочку на 12 месяцев, сохранив выгодную цену на недвижимость.
Приобретайте квартиру с первоначальным взносом 20% при регистрации ДДУ. Последующие платежи составят 15% через месяц и 20% через два месяца после оформления. Оставшиеся 45% вы сможете выплачивать удобными для вас способами - ежемесячно или ежеквартально, без переплат и по первоначальной стоимости.
Это предложение позволяет стать владельцем качественной квартиры, грамотно распределив свой бюджет. Рассрочка делает покупку доступной, а прозрачные условия помогают планировать финансы без неожиданностей.
Узнайте больше о доступных квартирах и специальных условиях на консультации с нашим менеджером.
Позвоните и узнайте условия покупки прямо сейчас!
31.12.2025
9 410 500 ₽
Продается студия, площадью 32.45 м2 в панельной новостройке. Возможен вариант покупки с использованием ипотечных средств, возможна покупка с использованием материнского капитала.
Жилая площадь 21.9 м2, предчистовая отделка, комнаты смежные.
Квартира располагается на 5 этаже 12-этажного дома в ЖК На Высоком берегу.
Застройщик - ССК (Краснодарский край) , сдача дома - II квартал 2027 года, высота потолков 2.7 м.
Дом оборудован пассажирским лифтом.
Подземная парковка. Инфраструктура: детские площадки, спортивные площадки, места для отдыха, рестораны.
Семейный квартал «На Высоком берегу» расположен всего в 300 метрах от моря, где каждая деталь создана для вашего максимального комфорта. Квартиры с высотой потолков 2,7 метра, просторные мастер-спальни и великолепные виды.
169 уникальных, современных и функциональных планировок, каждая из которых разработана специально для комфортной семейной жизни. Продуманное зонирование, рациональное использование пространства и эстетика современного дизайна делают каждую квартиру настоящим воплощением мечты о жилье премиум-класса.
Мы создали комфортные финансовые условия для приобретения квартиры в семейном квартале «На Высоком берегу». Теперь вы можете оформить рассрочку на 12 месяцев, сохранив выгодную цену на недвижимость.
Приобретайте квартиру с первоначальным взносом 20% при регистрации ДДУ. Последующие платежи составят 15% через месяц и 20% через два месяца после оформления. Оставшиеся 45% вы сможете выплачивать удобными для вас способами - ежемесячно или ежеквартально, без переплат и по первоначальной стоимости.
Это предложение позволяет стать владельцем качественной квартиры, грамотно распределив свой бюджет. Рассрочка делает покупку доступной, а прозрачные условия помогают планировать финансы без неожиданностей.
Узнайте больше о доступных квартирах и специальных условиях на консультации с нашим менеджером.
Позвоните и узнайте условия покупки прямо сейчас!
31.12.2025
9 410 500 ₽
Продается студия, площадью 32.45 м2 в панельной новостройке. Возможен вариант покупки с использованием ипотечных средств, возможна покупка с использованием материнского капитала.
Жилая площадь 21.9 м2, предчистовая отделка, комнаты смежные.
Квартира располагается на 5 этаже 12-этажного дома в ЖК На Высоком берегу.
Застройщик - ССК (Краснодарский край) , сдача дома - II квартал 2027 года, высота потолков 2.7 м.
Дом оборудован пассажирским лифтом.
Подземная парковка. Инфраструктура: детские площадки, спортивные площадки, места для отдыха, рестораны.
Семейный квартал «На Высоком берегу» расположен всего в 300 метрах от моря, где каждая деталь создана для вашего максимального комфорта. Квартиры с высотой потолков 2,7 метра, просторные мастер-спальни и великолепные виды.
169 уникальных, современных и функциональных планировок, каждая из которых разработана специально для комфортной семейной жизни. Продуманное зонирование, рациональное использование пространства и эстетика современного дизайна делают каждую квартиру настоящим воплощением мечты о жилье премиум-класса.
Мы создали комфортные финансовые условия для приобретения квартиры в семейном квартале «На Высоком берегу». Теперь вы можете оформить рассрочку на 12 месяцев, сохранив выгодную цену на недвижимость.
Приобретайте квартиру с первоначальным взносом 20% при регистрации ДДУ. Последующие платежи составят 15% через месяц и 20% через два месяца после оформления. Оставшиеся 45% вы сможете выплачивать удобными для вас способами - ежемесячно или ежеквартально, без переплат и по первоначальной стоимости.
Это предложение позволяет стать владельцем качественной квартиры, грамотно распределив свой бюджет. Рассрочка делает покупку доступной, а прозрачные условия помогают планировать финансы без неожиданностей.
Узнайте больше о доступных квартирах и специальных условиях на консультации с нашим менеджером.
Позвоните и узнайте условия покупки прямо сейчас!
31.12.2025
9 410 500 ₽
Продается студия, площадью 32.45 м2 в панельной новостройке. Возможен вариант покупки с использованием ипотечных средств, возможна покупка с использованием материнского капитала.
Жилая площадь 21.9 м2, предчистовая отделка, комнаты смежные.
Квартира располагается на 3 этаже 12-этажного дома в ЖК На Высоком берегу.
Застройщик - ССК (Краснодарский край) , сдача дома - II квартал 2027 года, высота потолков 2.7 м.
Дом оборудован пассажирским лифтом.
Подземная парковка. Инфраструктура: детские площадки, спортивные площадки, места для отдыха, рестораны.
Семейный квартал «На Высоком берегу» расположен всего в 300 метрах от моря, где каждая деталь создана для вашего максимального комфорта. Квартиры с высотой потолков 2,7 метра, просторные мастер-спальни и великолепные виды.
169 уникальных, современных и функциональных планировок, каждая из которых разработана специально для комфортной семейной жизни. Продуманное зонирование, рациональное использование пространства и эстетика современного дизайна делают каждую квартиру настоящим воплощением мечты о жилье премиум-класса.
Мы создали комфортные финансовые условия для приобретения квартиры в семейном квартале «На Высоком берегу». Теперь вы можете оформить рассрочку на 12 месяцев, сохранив выгодную цену на недвижимость.
Приобретайте квартиру с первоначальным взносом 20% при регистрации ДДУ. Последующие платежи составят 15% через месяц и 20% через два месяца после оформления. Оставшиеся 45% вы сможете выплачивать удобными для вас способами - ежемесячно или ежеквартально, без переплат и по первоначальной стоимости.
Это предложение позволяет стать владельцем качественной квартиры, грамотно распределив свой бюджет. Рассрочка делает покупку доступной, а прозрачные условия помогают планировать финансы без неожиданностей.
Узнайте больше о доступных квартирах и специальных условиях на консультации с нашим менеджером.
Позвоните и узнайте условия покупки прямо сейчас!
31.12.2025
9 410 500 ₽
Продается 1-комн. квартира, площадью 36.3 м2 в панельной новостройке. Возможен вариант покупки с использованием ипотечных средств, возможна покупка с использованием материнского капитала.
Жилая площадь 10.9 м2, кухня 15 м2, предчистовая отделка, комнаты изолированные.
Квартира располагается на 2 этаже 12-этажного дома в ЖК На Высоком берегу.
Застройщик - ССК (Краснодарский край) , сдача дома - II квартал 2027 года, высота потолков 2.7 м.
Дом оборудован пассажирским лифтом.
Подземная парковка. Инфраструктура: детские площадки, спортивные площадки, места для отдыха, рестораны.
Семейный квартал «На Высоком берегу» расположен всего в 300 метрах от моря, где каждая деталь создана для вашего максимального комфорта. Квартиры с высотой потолков 2,7 метра, просторные мастер-спальни и великолепные виды.
169 уникальных, современных и функциональных планировок, каждая из которых разработана специально для комфортной семейной жизни. Продуманное зонирование, рациональное использование пространства и эстетика современного дизайна делают каждую квартиру настоящим воплощением мечты о жилье премиум-класса.
Мы создали комфортные финансовые условия для приобретения квартиры в семейном квартале «На Высоком берегу». Теперь вы можете оформить рассрочку на 12 месяцев, сохранив выгодную цену на недвижимость.
Приобретайте квартиру с первоначальным взносом 20% при регистрации ДДУ. Последующие платежи составят 15% через месяц и 20% через два месяца после оформления. Оставшиеся 45% вы сможете выплачивать удобными для вас способами - ежемесячно или ежеквартально, без переплат и по первоначальной стоимости.
Это предложение позволяет стать владельцем качественной квартиры, грамотно распределив свой бюджет. Рассрочка делает покупку доступной, а прозрачные условия помогают планировать финансы без неожиданностей.
Узнайте больше о доступных квартирах и специальных условиях на консультации с нашим менеджером.
Позвоните и узнайте условия покупки прямо сейчас!
31.12.2025
9 801 000 ₽
Продается 1-комн. квартира, площадью 36.3 м2 в панельной новостройке. Возможен вариант покупки с использованием ипотечных средств, возможна покупка с использованием материнского капитала.
Жилая площадь 10.9 м2, кухня 15 м2, предчистовая отделка, комнаты изолированные.
Квартира располагается на 2 этаже 12-этажного дома в ЖК На Высоком берегу.
Застройщик - ССК (Краснодарский край) , сдача дома - II квартал 2027 года, высота потолков 2.7 м.
Дом оборудован пассажирским лифтом.
Подземная парковка. Инфраструктура: детские площадки, спортивные площадки, места для отдыха, рестораны.
Семейный квартал «На Высоком берегу» расположен всего в 300 метрах от моря, где каждая деталь создана для вашего максимального комфорта. Квартиры с высотой потолков 2,7 метра, просторные мастер-спальни и великолепные виды.
169 уникальных, современных и функциональных планировок, каждая из которых разработана специально для комфортной семейной жизни. Продуманное зонирование, рациональное использование пространства и эстетика современного дизайна делают каждую квартиру настоящим воплощением мечты о жилье премиум-класса.
Мы создали комфортные финансовые условия для приобретения квартиры в семейном квартале «На Высоком берегу». Теперь вы можете оформить рассрочку на 12 месяцев, сохранив выгодную цену на недвижимость.
Приобретайте квартиру с первоначальным взносом 20% при регистрации ДДУ. Последующие платежи составят 15% через месяц и 20% через два месяца после оформления. Оставшиеся 45% вы сможете выплачивать удобными для вас способами - ежемесячно или ежеквартально, без переплат и по первоначальной стоимости.
Это предложение позволяет стать владельцем качественной квартиры, грамотно распределив свой бюджет. Рассрочка делает покупку доступной, а прозрачные условия помогают планировать финансы без неожиданностей.
Узнайте больше о доступных квартирах и специальных условиях на консультации с нашим менеджером.
Позвоните и узнайте условия покупки прямо сейчас!
31.12.2025
9 801 000 ₽
Продается 1-комн. квартира, площадью 36.3 м2 в панельной новостройке. Возможен вариант покупки с использованием ипотечных средств, возможна покупка с использованием материнского капитала.
Жилая площадь 10.9 м2, кухня 15 м2, предчистовая отделка, комнаты изолированные.
Квартира располагается на 3 этаже 12-этажного дома в ЖК На Высоком берегу.
Застройщик - ССК (Краснодарский край) , сдача дома - II квартал 2027 года, высота потолков 2.7 м.
Дом оборудован пассажирским лифтом.
Подземная парковка. Инфраструктура: детские площадки, спортивные площадки, места для отдыха, рестораны.
Семейный квартал «На Высоком берегу» расположен всего в 300 метрах от моря, где каждая деталь создана для вашего максимального комфорта. Квартиры с высотой потолков 2,7 метра, просторные мастер-спальни и великолепные виды.
169 уникальных, современных и функциональных планировок, каждая из которых разработана специально для комфортной семейной жизни. Продуманное зонирование, рациональное использование пространства и эстетика современного дизайна делают каждую квартиру настоящим воплощением мечты о жилье премиум-класса.
Мы создали комфортные финансовые условия для приобретения квартиры в семейном квартале «На Высоком берегу». Теперь вы можете оформить рассрочку на 12 месяцев, сохранив выгодную цену на недвижимость.
Приобретайте квартиру с первоначальным взносом 20% при регистрации ДДУ. Последующие платежи составят 15% через месяц и 20% через два месяца после оформления. Оставшиеся 45% вы сможете выплачивать удобными для вас способами - ежемесячно или ежеквартально, без переплат и по первоначальной стоимости.
Это предложение позволяет стать владельцем качественной квартиры, грамотно распределив свой бюджет. Рассрочка делает покупку доступной, а прозрачные условия помогают планировать финансы без неожиданностей.
Узнайте больше о доступных квартирах и специальных условиях на консультации с нашим менеджером.
Позвоните и узнайте условия покупки прямо сейчас!
31.12.2025
9 801 000 ₽
Продается 1-комн. квартира, площадью 36.3 м2 в панельной новостройке. Возможен вариант покупки с использованием ипотечных средств, возможна покупка с использованием материнского капитала.
Жилая площадь 10.9 м2, кухня 15 м2, предчистовая отделка, комнаты изолированные.
Квартира располагается на 2 этаже 12-этажного дома в ЖК На Высоком берегу.
Застройщик - ССК (Краснодарский край) , сдача дома - II квартал 2027 года, высота потолков 2.7 м.
Дом оборудован пассажирским лифтом.
Подземная парковка. Инфраструктура: детские площадки, спортивные площадки, места для отдыха, рестораны.
Семейный квартал «На Высоком берегу» расположен всего в 300 метрах от моря, где каждая деталь создана для вашего максимального комфорта. Квартиры с высотой потолков 2,7 метра, просторные мастер-спальни и великолепные виды.
169 уникальных, современных и функциональных планировок, каждая из которых разработана специально для комфортной семейной жизни. Продуманное зонирование, рациональное использование пространства и эстетика современного дизайна делают каждую квартиру настоящим воплощением мечты о жилье премиум-класса.
Мы создали комфортные финансовые условия для приобретения квартиры в семейном квартале «На Высоком берегу». Теперь вы можете оформить рассрочку на 12 месяцев, сохранив выгодную цену на недвижимость.
Приобретайте квартиру с первоначальным взносом 20% при регистрации ДДУ. Последующие платежи составят 15% через месяц и 20% через два месяца после оформления. Оставшиеся 45% вы сможете выплачивать удобными для вас способами - ежемесячно или ежеквартально, без переплат и по первоначальной стоимости.
Это предложение позволяет стать владельцем качественной квартиры, грамотно распределив свой бюджет. Рассрочка делает покупку доступной, а прозрачные условия помогают планировать финансы без неожиданностей.
Узнайте больше о доступных квартирах и специальных условиях на консультации с нашим менеджером.
Позвоните и узнайте условия покупки прямо сейчас!
31.12.2025
9 801 000 ₽
Heдвижимocть нa Чepноморском пoбеpежье
Предлагаeм кoмфоpтaбeльный Таунхаус блокированной заcтройки, площадью 161,5кв. м, в 5 минутax xодьбы от уединeнногo моpcкогo пляжа, в c. Aгoй Туaпсинскoгo p-на, Крacнодарcкoго кpaя. Дом наxодитcя в зaкpытoм кoттeджнoм поселкe, пeрвой береговой линии Черноморского побережья, с круглосуточной охраной и видеонаблюдением.
Жилой дом 2012 года постройки, расположен на участке 137кв. м, полностью соответствует всем требованиям строительных норм и правил, подключен к газу и центральным коммуникациям. Имеется закрытая придомовая территория под парковку или зону барбекю.
Здание состоит из 3-х этажей, каждый из которых представляет собой отдельное жилое помещение по типу студия, с кухней, гостиной, спальней и санузлом. Площадь помещений по этажам:
1 этаж: общая площадь - 50,4кв. м, жилая - 35,1кв. м
2 этаж: общая площадь - 57,6кв. м, жилая - 39,5кв. м
3 этаж: общая площадь - 53,6кв. м, жилая 40,3кв. м
Высота потолков - 2,7м
Во всех помещениях выполнен евроремонт, установлено индивидуальное газовое отопление, имеется все для вашего комфортного проживания или сдачи в аренду: мебель, кухонный гарнитур, сантехника, бытовая техника. Кроме того, 1-й этаж имеет выход в небольшой внутренний дворик, а 3-й этаж - мансардное помещение, пригодное для проживания.
В 150 метрах от дома имеется уютный дикий пляж. В непосредственной близости от коттеджа (50м) расположен санаторий "Автотранспортник России" с прекрасной пляжной и санаторно-курортной инфраструктурой, проход имеется. Рядом также находятся курортные поселки Агой и Небуг, в 15 км - г. Туапсе.
Стоит отметить, что Туапсинский р-н активно развивается, в 300 метрах от нас начато строительство современных гостиничных комплексов "GRАND ОТЕL Аgоy Rеsоrt & SРА 5", "Аlеаn Sеlесt Аgоy", где стоимость квадратного метра при незавершенном строительстве составляет - 600 000 рублей.
Юридическая чистота:
- Прямая продажа от собственника
- Дом и участок в собственности более 5 лет, без обременений и задолженностей
- Все документы готовы к сделке
- Возможен торг
ЭТОТ Таунхаус - отличный выбор и для комфортной жизни у моря большой семьей, и для ведения курортного бизнеса, и для инвестиций.
Для инвестора: 3 независимых юнита 3 потока дохода в сезон/краткосрок; минимальные капитальные затраты — объект с ремонтом и техникой.
Для жизни: приватность у моря, «заезжай и живи», дворик/BBQ, закрытая территория, 1-я линия.
Звоните прямо сейчас, будем рады рассказать детали!
27.12.2025
34 000 000 ₽
Продается 2-комн. квартира, площадью 62.69 м2 в монолитно-кирпичной новостройке. Возможен вариант покупки с использованием ипотечных средств, есть рассрочка, возможна покупка с использованием материнского капитала, есть военная ипотека.
Жилая площадь 31.25 м2, кухня 15.41 м2, предчистовая отделка.
Квартира располагается на 6 этаже 18-этажного дома в ЖК Фонтаны.
Застройщик - ГК ССК, сдача дома - IV квартал 2026 года, высота потолков 2.82 м.
Дом оборудован пассажирским лифтом, закрытая территория.
Отдельная многоуровневая парковка, парковка охраняется. Обеспечение безопасности: видеонаблюдение, противопожарная система. Инфраструктура: детский сад, детские площадки, спортивные площадки, места для отдыха, супермаркет, рестораны, фитнес-центр, пункты бытового обслуживания, коммерческие объекты.
Жилой комплекс «Фонтаны» - дом клубного типа. Преимущество заключается в продуманном ландшафте дворов, круглосуточно охраняемой территории, системе видеонаблюдения во дворе. Также для удобства жителей проведен Wi-Fi во дворе, оборудованы безопасные и современные детские площадки, зоны отдыха.
«Фонтаны» - уникальный, неповторимый жилой комплекс, воплощающий оригинальные и креативные решения дизайнеров и архитекторов. Дома округлой форме - это придает им легкости, несмотря на массивность постройки.
ЖК «Фонтаны» расположен в микрорайоне Черёмушки. Отличная транспортная развязка позволяет быстро и с комфортом добраться до центра, а большое количество зеленых насаждений и парков дает возможность гулять с детьми и наслаждаться прекрасным видом на Кубань.
Программа «Доступное жилье» - скидка 3% для тех, кто строит будущее!
В рамках программы «Доступное жилье» предусмотрена скидка 3% от стоимости квартиры для:
врачей и медицинского персонала,
учителей и преподавателей школ и вузов,
участников СВО и военнослужащих,
моряков (для жителей Калининграда) ,
молодых семей с детьми.
Это наш вклад в поддержку тех, кто каждый день заботится о других, растит новое поколение, защищает страну или строит свою семью.
Аккредитованные банки: Сбербанк, Альфа-Банк, ВТБ, Банк Уралсиб, РОССИЯ, Абсолют Банк, Металлинвестбанк, РНКБ, ПСБ, Кубань Кредит, Банк ВБРР, Россельхозбанк.
Позвоните и узнайте условия покупки прямо сейчас!
27.12.2025
9 716 950 ₽
Продается 2-комн. квартира, площадью 62.69 м2 в монолитно-кирпичной новостройке. Возможен вариант покупки с использованием ипотечных средств, есть рассрочка, возможна покупка с использованием материнского капитала, есть военная ипотека.
Жилая площадь 31.25 м2, кухня 15.41 м2, предчистовая отделка.
Квартира располагается на 12 этаже 18-этажного дома в ЖК Фонтаны.
Застройщик - ГК ССК, сдача дома - IV квартал 2026 года, высота потолков 2.82 м.
Дом оборудован пассажирским лифтом, закрытая территория.
Отдельная многоуровневая парковка, парковка охраняется. Обеспечение безопасности: видеонаблюдение, противопожарная система. Инфраструктура: детский сад, детские площадки, спортивные площадки, места для отдыха, супермаркет, рестораны, фитнес-центр, пункты бытового обслуживания, коммерческие объекты.
Жилой комплекс «Фонтаны» - дом клубного типа. Преимущество заключается в продуманном ландшафте дворов, круглосуточно охраняемой территории, системе видеонаблюдения во дворе. Также для удобства жителей проведен Wi-Fi во дворе, оборудованы безопасные и современные детские площадки, зоны отдыха.
«Фонтаны» - уникальный, неповторимый жилой комплекс, воплощающий оригинальные и креативные решения дизайнеров и архитекторов. Дома округлой форме - это придает им легкости, несмотря на массивность постройки.
ЖК «Фонтаны» расположен в микрорайоне Черёмушки. Отличная транспортная развязка позволяет быстро и с комфортом добраться до центра, а большое количество зеленых насаждений и парков дает возможность гулять с детьми и наслаждаться прекрасным видом на Кубань.
Программа «Доступное жилье» - скидка 3% для тех, кто строит будущее!
В рамках программы «Доступное жилье» предусмотрена скидка 3% от стоимости квартиры для:
врачей и медицинского персонала,
учителей и преподавателей школ и вузов,
участников СВО и военнослужащих,
моряков (для жителей Калининграда) ,
молодых семей с детьми.
Это наш вклад в поддержку тех, кто каждый день заботится о других, растит новое поколение, защищает страну или строит свою семью.
Аккредитованные банки: Сбербанк, Альфа-Банк, ВТБ, Банк Уралсиб, РОССИЯ, Абсолют Банк, Металлинвестбанк, РНКБ, ПСБ, Кубань Кредит, Банк ВБРР, Россельхозбанк.
Позвоните и узнайте условия покупки прямо сейчас!
16.01.2026
10 343 850 ₽
Продается 2-комн. квартира, площадью 56.1 м2 в монолитно-кирпичной новостройке. Возможен вариант покупки с использованием ипотечных средств, есть рассрочка, возможна покупка с использованием материнского капитала, есть военная ипотека.
Жилая площадь 25.6 м2, кухня 16.1 м2, черновая отделка.
Квартира располагается на 16 этаже 16-этажного дома в ЖК Традиции.
Застройщик - ГК ССК, сдача дома - III квартал 2027 года, высота потолков 2.72 м.
Дом оборудован пассажирским лифтом. Обеспечение безопасности: видеонаблюдение, противопожарная система. Инфраструктура: детские площадки, спортивные площадки, места для отдыха, супермаркет, рестораны, фитнес-центр, пункты бытового обслуживания, коммерческие объекты.
В жилом комплексе «Традиции» вы найдёте всё, чтобы создать свой особенный уклад жизни. Возможно, именно здесь начнётся новая семейная традиция, которая станет дорогой сердцу на долгие годы.
В радиусе 5 минут ходьбы от комплекса уже функционируют школы и детские сады, а дорога в центр города занимает 15 минут.
«Доступное жильё - 3%» в ЖК «Традиции»
Мы ценим ваш труд и поддерживаем на важных жизненных этапах!
Если вы - врач, учитель, военнослужащий, участник СВО, моряк (г. Калининград) или молодая семья с детьми, для вас действует специальное предложение:
Скидка 3% от стоимости квартиры в рамках программы «Доступное жильё».
Ваша квартира в ЖК «Традиции» - это начало новой главы в уютном, продуманном пространстве, где каждая деталь создана для комфорта большой семьи.
Аккредитованные банки: Сбербанк, Альфа-Банк, ВТБ, Банк Уралсиб, РОССИЯ, Абсолют Банк, Металлинвестбанк, РНКБ, ПСБ, Кубань Кредит, Банк ВБРР, Россельхозбанк.
Позвоните и узнайте условия покупки прямо сейчас!
29.12.2025
7 573 500 ₽
Продается 2-комн. квартира, площадью 66.42 м2 в монолитно-кирпичной новостройке. Возможен вариант покупки с использованием ипотечных средств, есть рассрочка, возможна покупка с использованием материнского капитала, есть военная ипотека.
Жилая площадь 29.43 м2, кухня 9.96 м2, предчистовая отделка.
Квартира располагается на 6 этаже 19-этажного дома в ЖК Лучший.
Застройщик - ГК ССК, сдача дома - IV квартал 2025 года, высота потолков 2.9 м.
Дом оборудован пассажирским лифтом, закрытая территория, парковка охраняется. Обеспечение безопасности: видеонаблюдение, противопожарная система. Инфраструктура: детские площадки, спортивные площадки, места для отдыха, супермаркет, рестораны, фитнес-центр, пункты бытового обслуживания, коммерческие объекты.
Дома сданы раньше сроков, ключи в момент сделки!
Жилой квартал «Лучший» - единая экосистема домов, в которой соблюдаются стандарты максимального качества, экологичности, богатства инфраструктуры, безопасного, живописного и престижного окружения и транспортной доступности. Организация уличного пространства и формирование благоприятной, эстетически привлекательной среды за порогом жилья является важным этапом строительства. Ландшафтный дизайн жилого квартала «Лучший» включает в себя не только озеленение двора, но и создание его внутренней инфраструктуры.
Два 24-этажных литера, выполненных по надежной технологии монолит-кирпич.
Специальное предложение в жилом квартале «Лучший»
Получите выгоду до 710 000 рублей. На двухкомнатные квартиры в литерах 10-13, а также кладовая площадью до 11 м в подарок.
Просторные планировки, современные решения и качественные материалы - всё создано для вашего комфорта с первого дня заселения.
Аккредитованные банки: Сбербанк, Альфа-Банк, ВТБ, Банк Уралсиб, РОССИЯ, Абсолют Банк, Металлинвестбанк, РНКБ, ПСБ, Кубань Кредит, Банк ВБРР, Россельхозбанк.
Позвоните и узнайте условия покупки прямо сейчас!
16.01.2026
8 966 700 ₽
Продается 2-комн. квартира, площадью 52.5 м2 в монолитной новостройке. Возможен вариант покупки с использованием ипотечных средств, есть рассрочка, возможна покупка с использованием материнского капитала, есть военная ипотека.
Жилая площадь 20.9 м2, кухня 16.6 м2, предчистовая отделка.
Квартира располагается на 2 этаже 12-этажного дома в ЖК Песчаный.
Застройщик - ООО СЗ МЕЖСАНАТОРНЫЙ входит в состав ГК ССК, дом уже сдан, высота потолков 2.72 м.
Дом оборудован пассажирским лифтом, закрытая территория.
Отдельная многоуровневая парковка, парковка охраняется. Обеспечение безопасности: видеонаблюдение. Инфраструктура: детские площадки, спортивные площадки, места для отдыха.
У каждого из нас есть свои желания и интересы, свои представления о комфорте и спокойствии, свои жизненные принципы. Жилой комплекс «Песчаный» смог учесть самые разнообразные требования, чтобы понравиться каждому. Здесь звуки современного города стихают, а вместо этого появляется лёгкий морской бриз и шум неспешных морских волн. Тут можно расслабиться и полностью погрузиться в мир без проблем и забот.
Дома возводятся по зарекомендовавшей себя во всём мире монолитно-каркасной технологии. Облицовка - вентилируемый фасад из керамогранитных плит белого, бежевого и коричневого цветов. В сочетании с витражным остеклением лоджий это позволит жилому комплексу «Песчаный» стильно выделяться среди окружающей застройки.
ЖК "Песчаный" - находится в 10 минутах от центра города и в непосредственной близости от моря и пляжей.
При покупке двухкомнатной квартиры от 66 м в ЖК «Песчаный» вы получаете парковочное место и качественный ремонт - в подарок.
Дом сдан. Въезжайте - без ожиданий, без строительства, без лишних забот.
Ремонт выполнен с вниманием к деталям: натуральные материалы, тихие перегородки, продуманные решения - всё создано для повседневного комфорта. Парковка - не просто место под машину, а свобода: больше не нужно искать место у подъезда или платить за часы в зоне ограниченной парковки.
Аккредитованные банки: Абсолют Банк, Совкомбанк, Альфа-Банк, Банк ДОМ. РФ, Промсвязьбанк, Банк ВТБ, Т-Банк, Россельхозбанк, МКБ.
Позвоните и узнайте условия покупки прямо сейчас!
18.12.2025
10 762 500 ₽




















