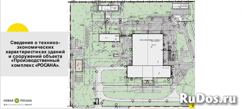
Завод белкового концентрата, 13772 м²
Объявление снято с публикации. Посмотреть другие объявления в этой категории
Размещено 23 ноября 2022
38
0
Жалоба
- Параметры объявления
- Общая площадь (м2): 13772
- Описание
Комментарии остановлены!
