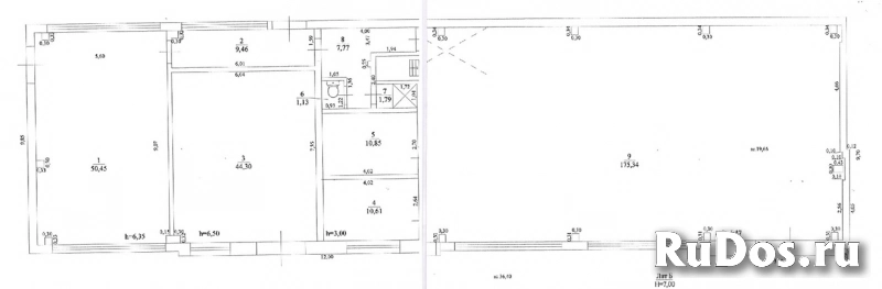
Сдам коммерческую недвижимость 337.4 м2
Размещено 16 декабря 2025
41
(+1)
0
Жалоба
- Параметры объявления
- Общая площадь (м2): 337.4
- Описание
В аренду под СТО, мелкое производство, мастерскую, любое коммерческое использование – 337,4 м2.
Отдельно стоящее здание на территории производственной базы периметр огорожен, видеонаблюдение, КПП, охрана круглосуточно. Доступ 24/7.
Характеристики:
- Высота потолка – 6,5м
- Кран-балка – 2 тонны (аренда обговаривается отдельно)
- Сетевое напряжение – 220В, 380В.
- Санузел, душевая комната.
- Есть отдельные помещения для складов с отдельным входом, раздевалки, комнаты приёма пищи.
- Пол бетонный, есть приямки.
- Отопление автономное, газовая котельная.
Коммунальные услуги оплачиваются отдельно, эл/эн по счётчику, отопление рассчитывается пропорционально занимаемой площади.
Готовы подготовить площадь под запрос арендатора.
Аренда от собственника.
Звоните, договоримся о показе!
Отдельно стоящее здание на территории производственной базы периметр огорожен, видеонаблюдение, КПП, охрана круглосуточно. Доступ 24/7.
Характеристики:
- Высота потолка – 6,5м
- Кран-балка – 2 тонны (аренда обговаривается отдельно)
- Сетевое напряжение – 220В, 380В.
- Санузел, душевая комната.
- Есть отдельные помещения для складов с отдельным входом, раздевалки, комнаты приёма пищи.
- Пол бетонный, есть приямки.
- Отопление автономное, газовая котельная.
Коммунальные услуги оплачиваются отдельно, эл/эн по счётчику, отопление рассчитывается пропорционально занимаемой площади.
Готовы подготовить площадь под запрос арендатора.
Аренда от собственника.
Звоните, договоримся о показе!
