Объявление о квартирах в Тульском - Страница 2
- Тульский »
- Недвижимость
- » Квартиры в Тульском
Продается студия, площадью 24.01 м2 в монолитно-кирпичной новостройке. Возможен вариант покупки с использованием ипотечных средств, возможна покупка с использованием материнского капитала.
Жилая площадь 10.28 м2, кухня 2.74 м2, предчистовая отделка, комнаты смежные.
Квартира располагается на 13 этаже 16-этажного дома в ЖК Долина.
Застройщик - ССК (Краснодарский край) , сдача дома - I квартал 2027 года, высота потолков 2.72 м.
Дом оборудован пассажирским лифтом.
Отдельная многоуровневая парковка. Обеспечение безопасности: видеонаблюдение. Инфраструктура: школа, детский сад, детские площадки, спортивные площадки, места для отдыха.
Жилой комплекс «Долина» - это ваш уютный уголок на фоне великолепной природы Республики Адыгея. Элегантный архитектурный стиль и натуральные оттенки гармонично переплетаются с зелеными пейзажами, создавая атмосферу спокойствия и уюта. Закрытые дворы комплекса обеспечивают высокий уровень безопасности и уединения, позволяя Вам наслаждаться каждым моментом жизни.
Расположенный на севере Майкопа, в районе Аэродрома, жилой комплекс «Долина» отличается отсутствием многоэтажной застройки и окружен бескрайними полями. Здесь, в сердце столицы Республики Адыгея, гармонично сосуществуют красота природы и современные удобства.
«Долина» - это не просто жилой комплекс, а ваше новое качество жизни, где природа и комфорт соединяются воедино.
АКЦИЯ:
Выгодные условия при покупке за наличный расчет в ЖК «Долина»
Для клиентов, выбирающих расчет наличными, мы подготовили специальные условия в жилом комплексе «Долина».
При единовременной оплате вы получаете повышенную скидку: 5 000 /м на уютные однушки, 8 000 /м на просторные двушки и 10 000 /м на комфортные трешки в литерах 1, 2 и 3.
Это предложение создано для вашей максимальной выгоды - вы становитесь владельцем современной квартиры по исключительной цене, экономя значительную сумму при полном расчете.
Позвоните и узнайте условия покупки прямо сейчас!
31.12.2025
4 009 670 ₽
Продается студия, площадью 24.01 м2 в монолитно-кирпичной новостройке. Возможен вариант покупки с использованием ипотечных средств, возможна покупка с использованием материнского капитала.
Жилая площадь 10.28 м2, кухня 2.74 м2, предчистовая отделка, комнаты смежные.
Квартира располагается на 11 этаже 16-этажного дома в ЖК Долина.
Застройщик - ССК (Краснодарский край) , сдача дома - I квартал 2027 года, высота потолков 2.72 м.
Дом оборудован пассажирским лифтом.
Отдельная многоуровневая парковка. Обеспечение безопасности: видеонаблюдение. Инфраструктура: школа, детский сад, детские площадки, спортивные площадки, места для отдыха.
Жилой комплекс «Долина» - это ваш уютный уголок на фоне великолепной природы Республики Адыгея. Элегантный архитектурный стиль и натуральные оттенки гармонично переплетаются с зелеными пейзажами, создавая атмосферу спокойствия и уюта. Закрытые дворы комплекса обеспечивают высокий уровень безопасности и уединения, позволяя Вам наслаждаться каждым моментом жизни.
Расположенный на севере Майкопа, в районе Аэродрома, жилой комплекс «Долина» отличается отсутствием многоэтажной застройки и окружен бескрайними полями. Здесь, в сердце столицы Республики Адыгея, гармонично сосуществуют красота природы и современные удобства.
«Долина» - это не просто жилой комплекс, а ваше новое качество жизни, где природа и комфорт соединяются воедино.
АКЦИЯ:
Выгодные условия при покупке за наличный расчет в ЖК «Долина»
Для клиентов, выбирающих расчет наличными, мы подготовили специальные условия в жилом комплексе «Долина».
При единовременной оплате вы получаете повышенную скидку: 5 000 /м на уютные однушки, 8 000 /м на просторные двушки и 10 000 /м на комфортные трешки в литерах 1, 2 и 3.
Это предложение создано для вашей максимальной выгоды - вы становитесь владельцем современной квартиры по исключительной цене, экономя значительную сумму при полном расчете.
Позвоните и узнайте условия покупки прямо сейчас!
31.12.2025
4 009 670 ₽
Продается студия, площадью 24.01 м2 в монолитно-кирпичной новостройке. Возможен вариант покупки с использованием ипотечных средств, возможна покупка с использованием материнского капитала.
Жилая площадь 10.28 м2, кухня 2.74 м2, предчистовая отделка, комнаты смежные.
Квартира располагается на 10 этаже 16-этажного дома в ЖК Долина.
Застройщик - ССК (Краснодарский край) , сдача дома - I квартал 2027 года, высота потолков 2.72 м.
Дом оборудован пассажирским лифтом.
Отдельная многоуровневая парковка. Обеспечение безопасности: видеонаблюдение. Инфраструктура: школа, детский сад, детские площадки, спортивные площадки, места для отдыха.
Жилой комплекс «Долина» - это ваш уютный уголок на фоне великолепной природы Республики Адыгея. Элегантный архитектурный стиль и натуральные оттенки гармонично переплетаются с зелеными пейзажами, создавая атмосферу спокойствия и уюта. Закрытые дворы комплекса обеспечивают высокий уровень безопасности и уединения, позволяя Вам наслаждаться каждым моментом жизни.
Расположенный на севере Майкопа, в районе Аэродрома, жилой комплекс «Долина» отличается отсутствием многоэтажной застройки и окружен бескрайними полями. Здесь, в сердце столицы Республики Адыгея, гармонично сосуществуют красота природы и современные удобства.
«Долина» - это не просто жилой комплекс, а ваше новое качество жизни, где природа и комфорт соединяются воедино.
АКЦИЯ:
Выгодные условия при покупке за наличный расчет в ЖК «Долина»
Для клиентов, выбирающих расчет наличными, мы подготовили специальные условия в жилом комплексе «Долина».
При единовременной оплате вы получаете повышенную скидку: 5 000 /м на уютные однушки, 8 000 /м на просторные двушки и 10 000 /м на комфортные трешки в литерах 1, 2 и 3.
Это предложение создано для вашей максимальной выгоды - вы становитесь владельцем современной квартиры по исключительной цене, экономя значительную сумму при полном расчете.
Позвоните и узнайте условия покупки прямо сейчас!
31.12.2025
4 009 670 ₽
Продается студия, площадью 24.01 м2 в монолитно-кирпичной новостройке. Возможен вариант покупки с использованием ипотечных средств, возможна покупка с использованием материнского капитала.
Жилая площадь 10.28 м2, кухня 2.74 м2, предчистовая отделка, комнаты смежные.
Квартира располагается на 8 этаже 16-этажного дома в ЖК Долина.
Застройщик - ССК (Краснодарский край) , сдача дома - I квартал 2027 года, высота потолков 2.72 м.
Дом оборудован пассажирским лифтом.
Отдельная многоуровневая парковка. Обеспечение безопасности: видеонаблюдение. Инфраструктура: школа, детский сад, детские площадки, спортивные площадки, места для отдыха.
Жилой комплекс «Долина» - это ваш уютный уголок на фоне великолепной природы Республики Адыгея. Элегантный архитектурный стиль и натуральные оттенки гармонично переплетаются с зелеными пейзажами, создавая атмосферу спокойствия и уюта. Закрытые дворы комплекса обеспечивают высокий уровень безопасности и уединения, позволяя Вам наслаждаться каждым моментом жизни.
Расположенный на севере Майкопа, в районе Аэродрома, жилой комплекс «Долина» отличается отсутствием многоэтажной застройки и окружен бескрайними полями. Здесь, в сердце столицы Республики Адыгея, гармонично сосуществуют красота природы и современные удобства.
«Долина» - это не просто жилой комплекс, а ваше новое качество жизни, где природа и комфорт соединяются воедино.
АКЦИЯ:
Выгодные условия при покупке за наличный расчет в ЖК «Долина»
Для клиентов, выбирающих расчет наличными, мы подготовили специальные условия в жилом комплексе «Долина».
При единовременной оплате вы получаете повышенную скидку: 5 000 /м на уютные однушки, 8 000 /м на просторные двушки и 10 000 /м на комфортные трешки в литерах 1, 2 и 3.
Это предложение создано для вашей максимальной выгоды - вы становитесь владельцем современной квартиры по исключительной цене, экономя значительную сумму при полном расчете.
Позвоните и узнайте условия покупки прямо сейчас!
31.12.2025
3 865 610 ₽
Продается 2-комн. квартира, площадью 62.47 м2 в монолитно-кирпичной новостройке. Возможен вариант покупки с использованием ипотечных средств, возможна покупка с использованием материнского капитала.
Жилая площадь 28.32 м2, кухня 15.75 м2, предчистовая отделка.
Квартира располагается на 12 этаже 12-этажного дома в ЖК Дружба.
Застройщик - ССК (Краснодарский край) , сдача дома - II квартал 2026 года, высота потолков 2.72 м.
Дом оборудован пассажирским лифтом.
Подземная парковка. Инфраструктура: детские площадки, спортивные площадки, места для отдыха.
Жилой комплекс «Дружба» располагается в живописном уголке Майкопа, где природа переплетается с современным обликом. Этот проект предлагает уединение и возможность наслаждаться свежим воздухом в окружении природной красоты. Все преимущества комплекса призваны обеспечить максимальный комфорт и удовлетворение потребностей его жителей.
Всего в нескольких минутах от комплекса расположен самый большой торговый центр Майкопа - «МАЙКОП МОЛЛ».
Ваш дом в ЖК «Дружба» - с особой выгодой до 10 000 /м!
Для тех, кто ищет идеальное сочетание комфорта и выгоды, мы подготовили специальные условия покупки в ЖК «Дружба». При единовременной оплате вы получаете повышенную скидку: 8 000 /м на просторные двушки, 10 000 /м на уютные трешки и 20 000 /м на коммерческие помещения.
Это предложение создано для вашей максимальной выгоды - вы становитесь владельцем современной квартиры по исключительной цене, экономя значительную сумму при полном расчете.
Позвоните и узнайте условия покупки прямо сейчас!
13.01.2026
8 495 920 ₽
Продается 2-комн. квартира, площадью 59.61 м2 в монолитно-кирпичной новостройке. Возможен вариант покупки с использованием ипотечных средств, возможна покупка с использованием материнского капитала.
Жилая площадь 30.95 м2, кухня 14.55 м2, предчистовая отделка.
Квартира располагается на 12 этаже 12-этажного дома в ЖК Дружба.
Застройщик - ССК (Краснодарский край) , сдача дома - II квартал 2026 года, высота потолков 2.72 м.
Дом оборудован пассажирским лифтом.
Подземная парковка. Инфраструктура: детские площадки, спортивные площадки, места для отдыха.
Жилой комплекс «Дружба» располагается в живописном уголке Майкопа, где природа переплетается с современным обликом. Этот проект предлагает уединение и возможность наслаждаться свежим воздухом в окружении природной красоты. Все преимущества комплекса призваны обеспечить максимальный комфорт и удовлетворение потребностей его жителей.
Всего в нескольких минутах от комплекса расположен самый большой торговый центр Майкопа - «МАЙКОП МОЛЛ».
Ваш дом в ЖК «Дружба» - с особой выгодой до 10 000 /м!
Для тех, кто ищет идеальное сочетание комфорта и выгоды, мы подготовили специальные условия покупки в ЖК «Дружба». При единовременной оплате вы получаете повышенную скидку: 8 000 /м на просторные двушки, 10 000 /м на уютные трешки и 20 000 /м на коммерческие помещения.
Это предложение создано для вашей максимальной выгоды - вы становитесь владельцем современной квартиры по исключительной цене, экономя значительную сумму при полном расчете.
Позвоните и узнайте условия покупки прямо сейчас!
31.12.2025
8 285 790 ₽
Продается 2-комн. квартира, площадью 59.61 м2 в монолитно-кирпичной новостройке. Возможен вариант покупки с использованием ипотечных средств, возможна покупка с использованием материнского капитала.
Жилая площадь 30.95 м2, кухня 14.55 м2, предчистовая отделка.
Квартира располагается на 11 этаже 12-этажного дома в ЖК Дружба.
Застройщик - ССК (Краснодарский край) , сдача дома - II квартал 2026 года, высота потолков 2.72 м.
Дом оборудован пассажирским лифтом.
Подземная парковка. Инфраструктура: детские площадки, спортивные площадки, места для отдыха.
Жилой комплекс «Дружба» располагается в живописном уголке Майкопа, где природа переплетается с современным обликом. Этот проект предлагает уединение и возможность наслаждаться свежим воздухом в окружении природной красоты. Все преимущества комплекса призваны обеспечить максимальный комфорт и удовлетворение потребностей его жителей.
Всего в нескольких минутах от комплекса расположен самый большой торговый центр Майкопа - «МАЙКОП МОЛЛ».
Ваш дом в ЖК «Дружба» - с особой выгодой до 10 000 /м!
Для тех, кто ищет идеальное сочетание комфорта и выгоды, мы подготовили специальные условия покупки в ЖК «Дружба». При единовременной оплате вы получаете повышенную скидку: 8 000 /м на просторные двушки, 10 000 /м на уютные трешки и 20 000 /м на коммерческие помещения.
Это предложение создано для вашей максимальной выгоды - вы становитесь владельцем современной квартиры по исключительной цене, экономя значительную сумму при полном расчете.
Позвоните и узнайте условия покупки прямо сейчас!
31.12.2025
8 285 790 ₽
Продается 2-комн. квартира, площадью 59.61 м2 в монолитно-кирпичной новостройке. Возможен вариант покупки с использованием ипотечных средств, возможна покупка с использованием материнского капитала.
Жилая площадь 30.95 м2, кухня 14.55 м2, предчистовая отделка.
Квартира располагается на 10 этаже 12-этажного дома в ЖК Дружба.
Застройщик - ССК (Краснодарский край) , сдача дома - II квартал 2026 года, высота потолков 2.72 м.
Дом оборудован пассажирским лифтом.
Подземная парковка. Инфраструктура: детские площадки, спортивные площадки, места для отдыха.
Жилой комплекс «Дружба» располагается в живописном уголке Майкопа, где природа переплетается с современным обликом. Этот проект предлагает уединение и возможность наслаждаться свежим воздухом в окружении природной красоты. Все преимущества комплекса призваны обеспечить максимальный комфорт и удовлетворение потребностей его жителей.
Всего в нескольких минутах от комплекса расположен самый большой торговый центр Майкопа - «МАЙКОП МОЛЛ».
Ваш дом в ЖК «Дружба» - с особой выгодой до 10 000 /м!
Для тех, кто ищет идеальное сочетание комфорта и выгоды, мы подготовили специальные условия покупки в ЖК «Дружба». При единовременной оплате вы получаете повышенную скидку: 8 000 /м на просторные двушки, 10 000 /м на уютные трешки и 20 000 /м на коммерческие помещения.
Это предложение создано для вашей максимальной выгоды - вы становитесь владельцем современной квартиры по исключительной цене, экономя значительную сумму при полном расчете.
Позвоните и узнайте условия покупки прямо сейчас!
31.12.2025
8 285 790 ₽
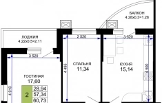
Продается 2-комн. квартира, площадью 60.73 м2 в монолитно-кирпичной новостройке. Возможен вариант покупки с использованием ипотечных средств, возможна покупка с использованием материнского капитала.
Жилая площадь 28.94 м2, кухня 15.14 м2, предчистовая отделка.
Квартира располагается на 9 этаже 12-этажного дома в ЖК Дружба.
Застройщик - ССК (Краснодарский край) , сдача дома - II квартал 2026 года, высота потолков 2.72 м.
Дом оборудован пассажирским лифтом.
Подземная парковка. Инфраструктура: детские площадки, спортивные площадки, места для отдыха.
Жилой комплекс «Дружба» располагается в живописном уголке Майкопа, где природа переплетается с современным обликом. Этот проект предлагает уединение и возможность наслаждаться свежим воздухом в окружении природной красоты. Все преимущества комплекса призваны обеспечить максимальный комфорт и удовлетворение потребностей его жителей.
Всего в нескольких минутах от комплекса расположен самый большой торговый центр Майкопа - «МАЙКОП МОЛЛ».
Ваш дом в ЖК «Дружба» - с особой выгодой до 10 000 /м!
Для тех, кто ищет идеальное сочетание комфорта и выгоды, мы подготовили специальные условия покупки в ЖК «Дружба». При единовременной оплате вы получаете повышенную скидку: 8 000 /м на просторные двушки, 10 000 /м на уютные трешки и 20 000 /м на коммерческие помещения.
Это предложение создано для вашей максимальной выгоды - вы становитесь владельцем современной квартиры по исключительной цене, экономя значительную сумму при полном расчете.
Позвоните и узнайте условия покупки прямо сейчас!
31.12.2025
8 259 280 ₽
Продается 2-комн. квартира, площадью 60.73 м2 в монолитно-кирпичной новостройке. Возможен вариант покупки с использованием ипотечных средств, возможна покупка с использованием материнского капитала.
Жилая площадь 28.94 м2, кухня 15.14 м2, предчистовая отделка.
Квартира располагается на 12 этаже 12-этажного дома в ЖК Дружба.
Застройщик - ССК (Краснодарский край) , сдача дома - II квартал 2026 года, высота потолков 2.72 м.
Дом оборудован пассажирским лифтом.
Подземная парковка. Инфраструктура: детские площадки, спортивные площадки, места для отдыха.
Жилой комплекс «Дружба» располагается в живописном уголке Майкопа, где природа переплетается с современным обликом. Этот проект предлагает уединение и возможность наслаждаться свежим воздухом в окружении природной красоты. Все преимущества комплекса призваны обеспечить максимальный комфорт и удовлетворение потребностей его жителей.
Всего в нескольких минутах от комплекса расположен самый большой торговый центр Майкопа - «МАЙКОП МОЛЛ».
Ваш дом в ЖК «Дружба» - с особой выгодой до 10 000 /м!
Для тех, кто ищет идеальное сочетание комфорта и выгоды, мы подготовили специальные условия покупки в ЖК «Дружба». При единовременной оплате вы получаете повышенную скидку: 8 000 /м на просторные двушки, 10 000 /м на уютные трешки и 20 000 /м на коммерческие помещения.
Это предложение создано для вашей максимальной выгоды - вы становитесь владельцем современной квартиры по исключительной цене, экономя значительную сумму при полном расчете.
Позвоните и узнайте условия покупки прямо сейчас!
31.12.2025
8 259 280 ₽
Продается 2-комн. квартира, площадью 60.73 м2 в монолитно-кирпичной новостройке. Возможен вариант покупки с использованием ипотечных средств, возможна покупка с использованием материнского капитала.
Жилая площадь 28.94 м2, кухня 15.14 м2, предчистовая отделка.
Квартира располагается на 11 этаже 12-этажного дома в ЖК Дружба.
Застройщик - ССК (Краснодарский край) , сдача дома - II квартал 2026 года, высота потолков 2.72 м.
Дом оборудован пассажирским лифтом.
Подземная парковка. Инфраструктура: детские площадки, спортивные площадки, места для отдыха.
Жилой комплекс «Дружба» располагается в живописном уголке Майкопа, где природа переплетается с современным обликом. Этот проект предлагает уединение и возможность наслаждаться свежим воздухом в окружении природной красоты. Все преимущества комплекса призваны обеспечить максимальный комфорт и удовлетворение потребностей его жителей.
Всего в нескольких минутах от комплекса расположен самый большой торговый центр Майкопа - «МАЙКОП МОЛЛ».
Ваш дом в ЖК «Дружба» - с особой выгодой до 10 000 /м!
Для тех, кто ищет идеальное сочетание комфорта и выгоды, мы подготовили специальные условия покупки в ЖК «Дружба». При единовременной оплате вы получаете повышенную скидку: 8 000 /м на просторные двушки, 10 000 /м на уютные трешки и 20 000 /м на коммерческие помещения.
Это предложение создано для вашей максимальной выгоды - вы становитесь владельцем современной квартиры по исключительной цене, экономя значительную сумму при полном расчете.
Позвоните и узнайте условия покупки прямо сейчас!
31.12.2025
8 259 280 ₽
Продается 2-комн. квартира, площадью 60.73 м2 в монолитно-кирпичной новостройке. Возможен вариант покупки с использованием ипотечных средств, возможна покупка с использованием материнского капитала.
Жилая площадь 28.94 м2, кухня 15.14 м2, предчистовая отделка.
Квартира располагается на 12 этаже 12-этажного дома в ЖК Дружба.
Застройщик - ССК (Краснодарский край) , сдача дома - II квартал 2026 года, высота потолков 2.72 м.
Дом оборудован пассажирским лифтом.
Подземная парковка. Инфраструктура: детские площадки, спортивные площадки, места для отдыха.
Жилой комплекс «Дружба» располагается в живописном уголке Майкопа, где природа переплетается с современным обликом. Этот проект предлагает уединение и возможность наслаждаться свежим воздухом в окружении природной красоты. Все преимущества комплекса призваны обеспечить максимальный комфорт и удовлетворение потребностей его жителей.
Всего в нескольких минутах от комплекса расположен самый большой торговый центр Майкопа - «МАЙКОП МОЛЛ».
Ваш дом в ЖК «Дружба» - с особой выгодой до 10 000 /м!
Для тех, кто ищет идеальное сочетание комфорта и выгоды, мы подготовили специальные условия покупки в ЖК «Дружба». При единовременной оплате вы получаете повышенную скидку: 8 000 /м на просторные двушки, 10 000 /м на уютные трешки и 20 000 /м на коммерческие помещения.
Это предложение создано для вашей максимальной выгоды - вы становитесь владельцем современной квартиры по исключительной цене, экономя значительную сумму при полном расчете.
Позвоните и узнайте условия покупки прямо сейчас!
31.12.2025
8 259 280 ₽
Продается 2-комн. квартира, площадью 60.73 м2 в монолитно-кирпичной новостройке. Возможен вариант покупки с использованием ипотечных средств, возможна покупка с использованием материнского капитала.
Жилая площадь 28.94 м2, кухня 15.14 м2, предчистовая отделка.
Квартира располагается на 10 этаже 12-этажного дома в ЖК Дружба.
Застройщик - ССК (Краснодарский край) , сдача дома - II квартал 2026 года, высота потолков 2.72 м.
Дом оборудован пассажирским лифтом.
Подземная парковка. Инфраструктура: детские площадки, спортивные площадки, места для отдыха.
Жилой комплекс «Дружба» располагается в живописном уголке Майкопа, где природа переплетается с современным обликом. Этот проект предлагает уединение и возможность наслаждаться свежим воздухом в окружении природной красоты. Все преимущества комплекса призваны обеспечить максимальный комфорт и удовлетворение потребностей его жителей.
Всего в нескольких минутах от комплекса расположен самый большой торговый центр Майкопа - «МАЙКОП МОЛЛ».
Ваш дом в ЖК «Дружба» - с особой выгодой до 10 000 /м!
Для тех, кто ищет идеальное сочетание комфорта и выгоды, мы подготовили специальные условия покупки в ЖК «Дружба». При единовременной оплате вы получаете повышенную скидку: 8 000 /м на просторные двушки, 10 000 /м на уютные трешки и 20 000 /м на коммерческие помещения.
Это предложение создано для вашей максимальной выгоды - вы становитесь владельцем современной квартиры по исключительной цене, экономя значительную сумму при полном расчете.
Позвоните и узнайте условия покупки прямо сейчас!
31.12.2025
8 259 280 ₽
Продается 2-комн. квартира, площадью 49.05 м2 в панельной новостройке. Возможен вариант покупки с использованием ипотечных средств, возможна покупка с использованием материнского капитала.
Жилая площадь 21.5 м2, кухня 14.1 м2, предчистовая отделка.
Квартира располагается на 6 этаже 12-этажного дома в ЖК На Высоком берегу.
Застройщик - ССК (Краснодарский край) , сдача дома - II квартал 2027 года, высота потолков 2.7 м.
Дом оборудован пассажирским лифтом.
Подземная парковка. Инфраструктура: детские площадки, спортивные площадки, места для отдыха, рестораны.
Семейный квартал «На Высоком берегу» расположен всего в 300 метрах от моря, где каждая деталь создана для вашего максимального комфорта. Квартиры с высотой потолков 2,7 метра, просторные мастер-спальни и великолепные виды.
169 уникальных, современных и функциональных планировок, каждая из которых разработана специально для комфортной семейной жизни. Продуманное зонирование, рациональное использование пространства и эстетика современного дизайна делают каждую квартиру настоящим воплощением мечты о жилье премиум-класса.
Мы создали комфортные финансовые условия для приобретения квартиры в семейном квартале «На Высоком берегу». Теперь вы можете оформить рассрочку на 12 месяцев, сохранив выгодную цену на недвижимость.
Приобретайте квартиру с первоначальным взносом 20% при регистрации ДДУ. Последующие платежи составят 15% через месяц и 20% через два месяца после оформления. Оставшиеся 45% вы сможете выплачивать удобными для вас способами - ежемесячно или ежеквартально, без переплат и по первоначальной стоимости.
Это предложение позволяет стать владельцем качественной квартиры, грамотно распределив свой бюджет. Рассрочка делает покупку доступной, а прозрачные условия помогают планировать финансы без неожиданностей.
Узнайте больше о доступных квартирах и специальных условиях на консультации с нашим менеджером.
Позвоните и узнайте условия покупки прямо сейчас!
31.12.2025
12 753 000 ₽
Продается 2-комн. квартира, площадью 49.05 м2 в панельной новостройке. Возможен вариант покупки с использованием ипотечных средств, возможна покупка с использованием материнского капитала.
Жилая площадь 21.5 м2, кухня 14.1 м2, предчистовая отделка.
Квартира располагается на 3 этаже 12-этажного дома в ЖК На Высоком берегу.
Застройщик - ССК (Краснодарский край) , сдача дома - II квартал 2027 года, высота потолков 2.7 м.
Дом оборудован пассажирским лифтом.
Подземная парковка. Инфраструктура: детские площадки, спортивные площадки, места для отдыха, рестораны.
Семейный квартал «На Высоком берегу» расположен всего в 300 метрах от моря, где каждая деталь создана для вашего максимального комфорта. Квартиры с высотой потолков 2,7 метра, просторные мастер-спальни и великолепные виды.
169 уникальных, современных и функциональных планировок, каждая из которых разработана специально для комфортной семейной жизни. Продуманное зонирование, рациональное использование пространства и эстетика современного дизайна делают каждую квартиру настоящим воплощением мечты о жилье премиум-класса.
Мы создали комфортные финансовые условия для приобретения квартиры в семейном квартале «На Высоком берегу». Теперь вы можете оформить рассрочку на 12 месяцев, сохранив выгодную цену на недвижимость.
Приобретайте квартиру с первоначальным взносом 20% при регистрации ДДУ. Последующие платежи составят 15% через месяц и 20% через два месяца после оформления. Оставшиеся 45% вы сможете выплачивать удобными для вас способами - ежемесячно или ежеквартально, без переплат и по первоначальной стоимости.
Это предложение позволяет стать владельцем качественной квартиры, грамотно распределив свой бюджет. Рассрочка делает покупку доступной, а прозрачные условия помогают планировать финансы без неожиданностей.
Узнайте больше о доступных квартирах и специальных условиях на консультации с нашим менеджером.
Позвоните и узнайте условия покупки прямо сейчас!
31.12.2025
12 753 000 ₽
Продается студия, площадью 32.45 м2 в панельной новостройке. Возможен вариант покупки с использованием ипотечных средств, возможна покупка с использованием материнского капитала.
Жилая площадь 21.9 м2, предчистовая отделка, комнаты смежные.
Квартира располагается на 6 этаже 12-этажного дома в ЖК На Высоком берегу.
Застройщик - ССК (Краснодарский край) , сдача дома - II квартал 2027 года, высота потолков 2.7 м.
Дом оборудован пассажирским лифтом.
Подземная парковка. Инфраструктура: детские площадки, спортивные площадки, места для отдыха, рестораны.
Семейный квартал «На Высоком берегу» расположен всего в 300 метрах от моря, где каждая деталь создана для вашего максимального комфорта. Квартиры с высотой потолков 2,7 метра, просторные мастер-спальни и великолепные виды.
169 уникальных, современных и функциональных планировок, каждая из которых разработана специально для комфортной семейной жизни. Продуманное зонирование, рациональное использование пространства и эстетика современного дизайна делают каждую квартиру настоящим воплощением мечты о жилье премиум-класса.
Мы создали комфортные финансовые условия для приобретения квартиры в семейном квартале «На Высоком берегу». Теперь вы можете оформить рассрочку на 12 месяцев, сохранив выгодную цену на недвижимость.
Приобретайте квартиру с первоначальным взносом 20% при регистрации ДДУ. Последующие платежи составят 15% через месяц и 20% через два месяца после оформления. Оставшиеся 45% вы сможете выплачивать удобными для вас способами - ежемесячно или ежеквартально, без переплат и по первоначальной стоимости.
Это предложение позволяет стать владельцем качественной квартиры, грамотно распределив свой бюджет. Рассрочка делает покупку доступной, а прозрачные условия помогают планировать финансы без неожиданностей.
Узнайте больше о доступных квартирах и специальных условиях на консультации с нашим менеджером.
Позвоните и узнайте условия покупки прямо сейчас!
31.12.2025
9 410 500 ₽
Продается студия, площадью 32.45 м2 в панельной новостройке. Возможен вариант покупки с использованием ипотечных средств, возможна покупка с использованием материнского капитала.
Жилая площадь 21.9 м2, предчистовая отделка, комнаты смежные.
Квартира располагается на 5 этаже 12-этажного дома в ЖК На Высоком берегу.
Застройщик - ССК (Краснодарский край) , сдача дома - II квартал 2027 года, высота потолков 2.7 м.
Дом оборудован пассажирским лифтом.
Подземная парковка. Инфраструктура: детские площадки, спортивные площадки, места для отдыха, рестораны.
Семейный квартал «На Высоком берегу» расположен всего в 300 метрах от моря, где каждая деталь создана для вашего максимального комфорта. Квартиры с высотой потолков 2,7 метра, просторные мастер-спальни и великолепные виды.
169 уникальных, современных и функциональных планировок, каждая из которых разработана специально для комфортной семейной жизни. Продуманное зонирование, рациональное использование пространства и эстетика современного дизайна делают каждую квартиру настоящим воплощением мечты о жилье премиум-класса.
Мы создали комфортные финансовые условия для приобретения квартиры в семейном квартале «На Высоком берегу». Теперь вы можете оформить рассрочку на 12 месяцев, сохранив выгодную цену на недвижимость.
Приобретайте квартиру с первоначальным взносом 20% при регистрации ДДУ. Последующие платежи составят 15% через месяц и 20% через два месяца после оформления. Оставшиеся 45% вы сможете выплачивать удобными для вас способами - ежемесячно или ежеквартально, без переплат и по первоначальной стоимости.
Это предложение позволяет стать владельцем качественной квартиры, грамотно распределив свой бюджет. Рассрочка делает покупку доступной, а прозрачные условия помогают планировать финансы без неожиданностей.
Узнайте больше о доступных квартирах и специальных условиях на консультации с нашим менеджером.
Позвоните и узнайте условия покупки прямо сейчас!
31.12.2025
9 410 500 ₽
Продается студия, площадью 32.45 м2 в панельной новостройке. Возможен вариант покупки с использованием ипотечных средств, возможна покупка с использованием материнского капитала.
Жилая площадь 21.9 м2, предчистовая отделка, комнаты смежные.
Квартира располагается на 5 этаже 12-этажного дома в ЖК На Высоком берегу.
Застройщик - ССК (Краснодарский край) , сдача дома - II квартал 2027 года, высота потолков 2.7 м.
Дом оборудован пассажирским лифтом.
Подземная парковка. Инфраструктура: детские площадки, спортивные площадки, места для отдыха, рестораны.
Семейный квартал «На Высоком берегу» расположен всего в 300 метрах от моря, где каждая деталь создана для вашего максимального комфорта. Квартиры с высотой потолков 2,7 метра, просторные мастер-спальни и великолепные виды.
169 уникальных, современных и функциональных планировок, каждая из которых разработана специально для комфортной семейной жизни. Продуманное зонирование, рациональное использование пространства и эстетика современного дизайна делают каждую квартиру настоящим воплощением мечты о жилье премиум-класса.
Мы создали комфортные финансовые условия для приобретения квартиры в семейном квартале «На Высоком берегу». Теперь вы можете оформить рассрочку на 12 месяцев, сохранив выгодную цену на недвижимость.
Приобретайте квартиру с первоначальным взносом 20% при регистрации ДДУ. Последующие платежи составят 15% через месяц и 20% через два месяца после оформления. Оставшиеся 45% вы сможете выплачивать удобными для вас способами - ежемесячно или ежеквартально, без переплат и по первоначальной стоимости.
Это предложение позволяет стать владельцем качественной квартиры, грамотно распределив свой бюджет. Рассрочка делает покупку доступной, а прозрачные условия помогают планировать финансы без неожиданностей.
Узнайте больше о доступных квартирах и специальных условиях на консультации с нашим менеджером.
Позвоните и узнайте условия покупки прямо сейчас!
31.12.2025
9 410 500 ₽
Продается студия, площадью 32.45 м2 в панельной новостройке. Возможен вариант покупки с использованием ипотечных средств, возможна покупка с использованием материнского капитала.
Жилая площадь 21.9 м2, предчистовая отделка, комнаты смежные.
Квартира располагается на 3 этаже 12-этажного дома в ЖК На Высоком берегу.
Застройщик - ССК (Краснодарский край) , сдача дома - II квартал 2027 года, высота потолков 2.7 м.
Дом оборудован пассажирским лифтом.
Подземная парковка. Инфраструктура: детские площадки, спортивные площадки, места для отдыха, рестораны.
Семейный квартал «На Высоком берегу» расположен всего в 300 метрах от моря, где каждая деталь создана для вашего максимального комфорта. Квартиры с высотой потолков 2,7 метра, просторные мастер-спальни и великолепные виды.
169 уникальных, современных и функциональных планировок, каждая из которых разработана специально для комфортной семейной жизни. Продуманное зонирование, рациональное использование пространства и эстетика современного дизайна делают каждую квартиру настоящим воплощением мечты о жилье премиум-класса.
Мы создали комфортные финансовые условия для приобретения квартиры в семейном квартале «На Высоком берегу». Теперь вы можете оформить рассрочку на 12 месяцев, сохранив выгодную цену на недвижимость.
Приобретайте квартиру с первоначальным взносом 20% при регистрации ДДУ. Последующие платежи составят 15% через месяц и 20% через два месяца после оформления. Оставшиеся 45% вы сможете выплачивать удобными для вас способами - ежемесячно или ежеквартально, без переплат и по первоначальной стоимости.
Это предложение позволяет стать владельцем качественной квартиры, грамотно распределив свой бюджет. Рассрочка делает покупку доступной, а прозрачные условия помогают планировать финансы без неожиданностей.
Узнайте больше о доступных квартирах и специальных условиях на консультации с нашим менеджером.
Позвоните и узнайте условия покупки прямо сейчас!
31.12.2025
9 410 500 ₽
Продается 1-комн. квартира, площадью 36.3 м2 в панельной новостройке. Возможен вариант покупки с использованием ипотечных средств, возможна покупка с использованием материнского капитала.
Жилая площадь 10.9 м2, кухня 15 м2, предчистовая отделка, комнаты изолированные.
Квартира располагается на 2 этаже 12-этажного дома в ЖК На Высоком берегу.
Застройщик - ССК (Краснодарский край) , сдача дома - II квартал 2027 года, высота потолков 2.7 м.
Дом оборудован пассажирским лифтом.
Подземная парковка. Инфраструктура: детские площадки, спортивные площадки, места для отдыха, рестораны.
Семейный квартал «На Высоком берегу» расположен всего в 300 метрах от моря, где каждая деталь создана для вашего максимального комфорта. Квартиры с высотой потолков 2,7 метра, просторные мастер-спальни и великолепные виды.
169 уникальных, современных и функциональных планировок, каждая из которых разработана специально для комфортной семейной жизни. Продуманное зонирование, рациональное использование пространства и эстетика современного дизайна делают каждую квартиру настоящим воплощением мечты о жилье премиум-класса.
Мы создали комфортные финансовые условия для приобретения квартиры в семейном квартале «На Высоком берегу». Теперь вы можете оформить рассрочку на 12 месяцев, сохранив выгодную цену на недвижимость.
Приобретайте квартиру с первоначальным взносом 20% при регистрации ДДУ. Последующие платежи составят 15% через месяц и 20% через два месяца после оформления. Оставшиеся 45% вы сможете выплачивать удобными для вас способами - ежемесячно или ежеквартально, без переплат и по первоначальной стоимости.
Это предложение позволяет стать владельцем качественной квартиры, грамотно распределив свой бюджет. Рассрочка делает покупку доступной, а прозрачные условия помогают планировать финансы без неожиданностей.
Узнайте больше о доступных квартирах и специальных условиях на консультации с нашим менеджером.
Позвоните и узнайте условия покупки прямо сейчас!
31.12.2025
9 801 000 ₽
Продается 1-комн. квартира, площадью 36.3 м2 в панельной новостройке. Возможен вариант покупки с использованием ипотечных средств, возможна покупка с использованием материнского капитала.
Жилая площадь 10.9 м2, кухня 15 м2, предчистовая отделка, комнаты изолированные.
Квартира располагается на 2 этаже 12-этажного дома в ЖК На Высоком берегу.
Застройщик - ССК (Краснодарский край) , сдача дома - II квартал 2027 года, высота потолков 2.7 м.
Дом оборудован пассажирским лифтом.
Подземная парковка. Инфраструктура: детские площадки, спортивные площадки, места для отдыха, рестораны.
Семейный квартал «На Высоком берегу» расположен всего в 300 метрах от моря, где каждая деталь создана для вашего максимального комфорта. Квартиры с высотой потолков 2,7 метра, просторные мастер-спальни и великолепные виды.
169 уникальных, современных и функциональных планировок, каждая из которых разработана специально для комфортной семейной жизни. Продуманное зонирование, рациональное использование пространства и эстетика современного дизайна делают каждую квартиру настоящим воплощением мечты о жилье премиум-класса.
Мы создали комфортные финансовые условия для приобретения квартиры в семейном квартале «На Высоком берегу». Теперь вы можете оформить рассрочку на 12 месяцев, сохранив выгодную цену на недвижимость.
Приобретайте квартиру с первоначальным взносом 20% при регистрации ДДУ. Последующие платежи составят 15% через месяц и 20% через два месяца после оформления. Оставшиеся 45% вы сможете выплачивать удобными для вас способами - ежемесячно или ежеквартально, без переплат и по первоначальной стоимости.
Это предложение позволяет стать владельцем качественной квартиры, грамотно распределив свой бюджет. Рассрочка делает покупку доступной, а прозрачные условия помогают планировать финансы без неожиданностей.
Узнайте больше о доступных квартирах и специальных условиях на консультации с нашим менеджером.
Позвоните и узнайте условия покупки прямо сейчас!
31.12.2025
9 801 000 ₽




















