Продажа недвижимости в Тамани - Страница 3
- Тамань »
- Недвижимость в Тамани
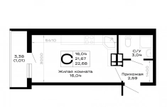
Продается студия, площадью 22.68 м2 в монолитно-кирпичной новостройке. Возможен вариант покупки с использованием ипотечных средств, есть рассрочка, возможна покупка с использованием материнского капитала, есть военная ипотека.
Жилая площадь 16.04 м2, предчистовая отделка, комнаты смежные.
Квартира располагается на 3 этаже 16-этажного дома в ЖК Горные высоты.
Застройщик - ГК ССК, сдача дома - III квартал 2027 года, высота потолков 2.7 м.
Дом оборудован грузовым и пассажирским лифтом.
Парковка автомобилей - наземная. Обеспечение безопасности: видеонаблюдение. Инфраструктура: школа, детский сад, поликлиника, детские площадки, спортивные площадки, места для отдыха.
«Горные Высоты» - это радушный, современный и природный микрорайон, где сердце остаётся навсегда: соседи становятся семьёй, технологии служат уюту, а горный воздух и панорамные виды дарят ощущение гармонии каждый день. Здесь рождаются тёплые традиции, всё продумано для комфорта жизни, а природа становится частью вашего дома. Возвращаться сюда - значит возвращаться туда, где вас ждут, понимают и окружают заботой.
АКЦИЯ:
При покупке трёхкомнатной квартиры в микрорайоне «Горные Высоты» вы получаете качественный ремонт в подарок - всё, чтобы сразу заселиться и начать жить.
Современные планировки, высокие потолки и продуманные до деталей отделочные материалы создают идеальный баланс между уютом и стилем. Большие панорамные окна наполняют пространство светом, витражные конструкции подчёркивают эстетику, а удобные холлы и рациональное зонирование делают каждый день лёгким и комфортным.
Позвоните и узнайте условия покупки прямо сейчас!
20.02.2026
3 764 880 ₽
Продается студия, площадью 22.68 м2 в монолитно-кирпичной новостройке. Возможен вариант покупки с использованием ипотечных средств, есть рассрочка, возможна покупка с использованием материнского капитала, есть военная ипотека.
Жилая площадь 16.04 м2, предчистовая отделка, комнаты смежные.
Квартира располагается на 6 этаже 16-этажного дома в ЖК Горные высоты.
Застройщик - ГК ССК, сдача дома - III квартал 2027 года, высота потолков 2.7 м.
Дом оборудован грузовым и пассажирским лифтом.
Парковка автомобилей - наземная. Обеспечение безопасности: видеонаблюдение. Инфраструктура: школа, детский сад, поликлиника, детские площадки, спортивные площадки, места для отдыха.
«Горные Высоты» - это радушный, современный и природный микрорайон, где сердце остаётся навсегда: соседи становятся семьёй, технологии служат уюту, а горный воздух и панорамные виды дарят ощущение гармонии каждый день. Здесь рождаются тёплые традиции, всё продумано для комфорта жизни, а природа становится частью вашего дома. Возвращаться сюда - значит возвращаться туда, где вас ждут, понимают и окружают заботой.
АКЦИЯ:
При покупке трёхкомнатной квартиры в микрорайоне «Горные Высоты» вы получаете качественный ремонт в подарок - всё, чтобы сразу заселиться и начать жить.
Современные планировки, высокие потолки и продуманные до деталей отделочные материалы создают идеальный баланс между уютом и стилем. Большие панорамные окна наполняют пространство светом, витражные конструкции подчёркивают эстетику, а удобные холлы и рациональное зонирование делают каждый день лёгким и комфортным.
Позвоните и узнайте условия покупки прямо сейчас!
20.02.2026
3 764 880 ₽
Продается 2-комн. квартира, площадью 51.6 м2 в монолитно-кирпичной новостройке. Возможен вариант покупки с использованием ипотечных средств, есть рассрочка, возможна покупка с использованием материнского капитала, есть военная ипотека.
Жилая площадь 24.8 м2, кухня 13.5 м2, предчистовая отделка.
Квартира располагается на 2 этаже 18-этажного дома в ЖК Фонтаны.
Застройщик - ГК ССК, сдача дома - IV квартал 2026 года, высота потолков 2.82 м.
Дом оборудован пассажирским лифтом, закрытая территория.
Отдельная многоуровневая парковка, парковка охраняется. Обеспечение безопасности: видеонаблюдение, противопожарная система. Инфраструктура: детский сад, детские площадки, спортивные площадки, места для отдыха, супермаркет, рестораны, фитнес-центр, пункты бытового обслуживания, коммерческие объекты.
Жилой комплекс «Фонтаны» - дом клубного типа. Преимущество заключается в продуманном ландшафте дворов, круглосуточно охраняемой территории, системе видеонаблюдения во дворе. Также для удобства жителей проведен Wi-Fi во дворе, оборудованы безопасные и современные детские площадки, зоны отдыха.
«Фонтаны» - уникальный, неповторимый жилой комплекс, воплощающий оригинальные и креативные решения дизайнеров и архитекторов. Дома округлой форме - это придает им легкости, несмотря на массивность постройки.
ЖК «Фонтаны» расположен в микрорайоне Черёмушки. Отличная транспортная развязка позволяет быстро и с комфортом добраться до центра, а большое количество зеленых насаждений и парков дает возможность гулять с детьми и наслаждаться прекрасным видом на Кубань.
АКЦИЯ:
В жилом комплексе «Фонтаны» семьи с детьми до шести лет включительно могут оформить ипотеку по льготной ставке от 3,5% при первоначальном взносе от 20%.
Это возможность приобрести современную квартиру с продуманной планировкой, панорамными окнами и видами на реку Кубань, не откладывая мечту «на потом».
Территория ЖК - продуманное пространство для жизни: здесь найдётся место и для детских игр, и для спокойного отдыха взрослых, а близость к парковой зоне и будущему детскому саду сделает каждый день ещё комфортнее.
Выбирайте квартиру с готовым ремонтом и заселяйтесь без лишних хлопот - всё, что нужно для старта новой главы вашей семейной истории, уже здесь. Информация носит справочный характер. Не является публичной офертой.
Аккредитованные банки: Сбербанк, Альфа-Банк, ВТБ, Банк Уралсиб, РОССИЯ, Абсолют Банк, Металлинвестбанк, РНКБ, ПСБ, Кубань Кредит, Банк ВБРР, Россельхозбанк.
Позвоните и узнайте условия покупки прямо сейчас!
17.02.2026
9 804 000 ₽
Продам: участок общей площадью 5 соток. Расположение: село Нижняя Шиловка.
Категория земли - земли населенных пунктов, разрешенное использование - ИЖС.
19.02.2026
11 000 000 ₽
Продается 2-комн. квартира, площадью 55 м2 в монолитно-кирпичной новостройке. Возможен вариант покупки с использованием ипотечных средств, есть рассрочка, возможна покупка с использованием материнского капитала, есть военная ипотека.
Жилая площадь 24.2 м2, кухня 16.3 м2, предчистовая отделка.
Квартира располагается на 4 этаже 18-этажного дома в ЖК Фонтаны.
Застройщик - ГК ССК, сдача дома - IV квартал 2026 года.
Дом оборудован пассажирским лифтом, закрытая территория.
Отдельная многоуровневая парковка, парковка охраняется. Обеспечение безопасности: видеонаблюдение, противопожарная система. Инфраструктура: детский сад, детские площадки, спортивные площадки, места для отдыха, супермаркет, рестораны, фитнес-центр, пункты бытового обслуживания, коммерческие объекты.
Жилой комплекс «Фонтаны» - дом клубного типа. Преимущество заключается в продуманном ландшафте дворов, круглосуточно охраняемой территории, системе видеонаблюдения во дворе. Также для удобства жителей проведен Wi-Fi во дворе, оборудованы безопасные и современные детские площадки, зоны отдыха.
«Фонтаны» - уникальный, неповторимый жилой комплекс, воплощающий оригинальные и креативные решения дизайнеров и архитекторов. Дома округлой форме - это придает им легкости, несмотря на массивность постройки.
ЖК «Фонтаны» расположен в микрорайоне Черёмушки. Отличная транспортная развязка позволяет быстро и с комфортом добраться до центра, а большое количество зеленых насаждений и парков дает возможность гулять с детьми и наслаждаться прекрасным видом на Кубань.
АКЦИЯ:
В жилом комплексе «Фонтаны» семьи с детьми до шести лет включительно могут оформить ипотеку по льготной ставке от 3,5% при первоначальном взносе от 20%.
Это возможность приобрести современную квартиру с продуманной планировкой, панорамными окнами и видами на реку Кубань, не откладывая мечту «на потом».
Территория ЖК - продуманное пространство для жизни: здесь найдётся место и для детских игр, и для спокойного отдыха взрослых, а близость к парковой зоне и будущему детскому саду сделает каждый день ещё комфортнее.
Выбирайте квартиру с готовым ремонтом и заселяйтесь без лишних хлопот - всё, что нужно для старта новой главы вашей семейной истории, уже здесь. Информация носит справочный характер. Не является публичной офертой.
Аккредитованные банки: Сбербанк, Альфа-Банк, ВТБ, Банк Уралсиб, РОССИЯ, Абсолют Банк, Металлинвестбанк, РНКБ, ПСБ, Кубань Кредит, Банк ВБРР, Россельхозбанк.
Позвоните и узнайте условия покупки прямо сейчас!
17.02.2026
9 900 000 ₽
Продается 2-комн. квартира, площадью 50.9 м2 в монолитно-кирпичной новостройке. Возможен вариант покупки с использованием ипотечных средств, есть рассрочка, возможна покупка с использованием материнского капитала, есть военная ипотека.
Жилая площадь 25 м2, кухня 13 м2, предчистовая отделка.
Квартира располагается на 13 этаже 18-этажного дома в ЖК Фонтаны.
Застройщик - ГК ССК, сдача дома - IV квартал 2026 года.
Дом оборудован пассажирским лифтом, закрытая территория.
Отдельная многоуровневая парковка, парковка охраняется. Обеспечение безопасности: видеонаблюдение, противопожарная система. Инфраструктура: детский сад, детские площадки, спортивные площадки, места для отдыха, супермаркет, рестораны, фитнес-центр, пункты бытового обслуживания, коммерческие объекты.
Жилой комплекс «Фонтаны» - дом клубного типа. Преимущество заключается в продуманном ландшафте дворов, круглосуточно охраняемой территории, системе видеонаблюдения во дворе. Также для удобства жителей проведен Wi-Fi во дворе, оборудованы безопасные и современные детские площадки, зоны отдыха.
«Фонтаны» - уникальный, неповторимый жилой комплекс, воплощающий оригинальные и креативные решения дизайнеров и архитекторов. Дома округлой форме - это придает им легкости, несмотря на массивность постройки.
ЖК «Фонтаны» расположен в микрорайоне Черёмушки. Отличная транспортная развязка позволяет быстро и с комфортом добраться до центра, а большое количество зеленых насаждений и парков дает возможность гулять с детьми и наслаждаться прекрасным видом на Кубань.
АКЦИЯ:
В жилом комплексе «Фонтаны» семьи с детьми до шести лет включительно могут оформить ипотеку по льготной ставке от 3,5% при первоначальном взносе от 20%.
Это возможность приобрести современную квартиру с продуманной планировкой, панорамными окнами и видами на реку Кубань, не откладывая мечту «на потом».
Территория ЖК - продуманное пространство для жизни: здесь найдётся место и для детских игр, и для спокойного отдыха взрослых, а близость к парковой зоне и будущему детскому саду сделает каждый день ещё комфортнее.
Выбирайте квартиру с готовым ремонтом и заселяйтесь без лишних хлопот - всё, что нужно для старта новой главы вашей семейной истории, уже здесь. Информация носит справочный характер. Не является публичной офертой.
Аккредитованные банки: Сбербанк, Альфа-Банк, ВТБ, Банк Уралсиб, РОССИЯ, Абсолют Банк, Металлинвестбанк, РНКБ, ПСБ, Кубань Кредит, Банк ВБРР, Россельхозбанк.
Позвоните и узнайте условия покупки прямо сейчас!
17.02.2026
9 671 000 ₽
Предлагаем вашему вниманию однокомнатную квартиру общей площадью 30,6 кв.м. , предназначенную исключительно для постоянного проживания семьи или сдачи в аренду.
Местоположение и инфраструктураРасположение: Недалеко от железнодорожной станции «Новороссийск», расстояние составляет примерно 8,5 километров. Транспортная доступность: Прекрасно обслуживается автобусами и маршрутными такси, что значительно облегчает передвижение.
Характеристики недвижимостиДом: 12-этажный монолитный жилой комплекс. Стены: выполнены из прочных монолитных конструкций. Внешняя отделка: хорошее состояние, обеспечивающее эстетику и долговечность фасада. Инженерные коммуникации: электроснабжение, теплоснабжение, централизованное водоотведение и холодное водоснабжение подключены и функционируют исправно.
Интерьер и удобстваОкна: оснащены пластиковыми стеклопакетами, что гарантирует тепло зимой и прохладу летом. Лоджия: имеет качественное остекление, позволяющее комфортно проводить время вне зависимости от погодных условий. Двери: входная дверь выполнена из металла, обеспечивающего безопасность жильцов, межкомнатные двери отсутствуют, что даёт возможность собственнику самостоятельно выбрать стиль интерьера. Санузел: совмещённый, готов к ремонту и оформлению в желаемом стиле. Чердак/мансарда: присутствует, что увеличивает общую полезную площадь дома. Лифт: имеется, что удобно для перемещения между этажами.
Эта квартира станет прекрасным вариантом для тех, кто ценит удобство расположения, хороший уровень обслуживания общественных транспортных средств и качественные материалы в строительстве своего будущего дома.
29.01.2026
5 730 000 ₽
Продается земельный участок общей площадью 180 сот. Идеальное место для открытия или расширения вашего бизнеса. От трассы М4 в 5 минутах очень удобно в плане логистики. Участок входит в зону Кс 2.1
По видам разрешенного использования подходи под:
Склады
Грузовое сто
Легкая промышленность
Тяжелая промышленной Электроснабжение есть по границе, есть договоренность с соседями можно подключить от 150 до 250 квт, без каких-либо проблем.
11.03.2026
80 000 000 ₽
Продажа жилого дома в уникальном месте!!!
Желаете приобрести жилой дом вдали от городской суеты? Тогда Наше предложение точно Вам подходит!
Новый жилой дом расположен в живописном месте, вблизи одного из чудес природы - Гуамского ущелья.
Адрес: переулок Газнийский, х. Гуамка, Апшеронский район, Краснодарский край.
Дом каркасный, построен по финской технологии. Выполнен полностью из экологически чистой древесины.
Двухэтажный жилой дом общей площадью 128,57 кв.м.
Включает в себя тамбур (площадью 3,52 кв.м.), две спальных комнаты (площадью 11,25 кв.м. каждая), студия (площадью 32,9 кв.м.), веранда (площадью 25,5 кв.м.), с/у (площадью 8,35 кв.м.), большая спальная комната на втором этаже (площадью 35,8 кв.м.).
В доме обеспечено электроснабжение, индивидуальная канализация.
Водоснабжение – требуется бурение скважины.
Дом расположен на земельном участке площадью от 6 соток. Земельный участок в собственности.
Вид разрешенного использования – для ведения личного подсобного хозяйства.
Участок огорожен забором.
Жилой дом не является капитальным строением!!!
Цену и иные вопросы уточняйте по телефону.
28.02.2026
16 700 000 ₽
Продажа жилого дома в уникальном месте!!!
Желаете приобрести жилой дом вдали от городской суеты? Тогда Наше предложение точно Вам подходит!
Новый жилой дом расположен в живописном месте, вблизи одного из чудес природы- Гуамского ущелья.
Адрес: переулок Газнийский, х. Гуамка, Апшеронский район, Краснодарский край.
Дом каркасный, построен по финской технологии. Выполнен полностью из экологически чистой древесины.
Одноэтажный жилой дом общей площадью 92,8 кв.м.
Включает в себя тамбур (площадью 3,52 кв.м.), две спальных комнаты (площадью 11,25 кв.м. каждая), студия (площадью 32,9 кв.м.), веранда (площадью 25,5 кв.м.), с/у (площадью 8,35 кв.м.).
В доме обеспечено электроснабжение, индивидуальная канализация.
Водоснабжение – требуется бурение скважины.
Дом расположен на земельном участке площадью от 6 соток. Земельный участок в собственности.
Вид разрешенного использования – для ведения личного подсобного хозяйства.
Участок огорожен забором.
Жилой дом не является капитальным строением!!!
Цену и иные вопросы уточняйте по телефону.
28.02.2026
12 700 000 ₽
Продается 2-комн. квартира, площадью 55.86 м2 в монолитно-кирпичной новостройке. Возможен вариант покупки с использованием ипотечных средств, есть рассрочка, возможна покупка с использованием материнского капитала, есть военная ипотека.
Жилая площадь 24.79 м2, кухня 17.2 м2, предчистовая отделка.
Квартира располагается на 9 этаже 18-этажного дома в ЖК Фонтаны.
Застройщик - ГК ССК, сдача дома - IV квартал 2026 года, высота потолков 2.82 м.
Дом оборудован пассажирским лифтом, закрытая территория.
Отдельная многоуровневая парковка, парковка охраняется. Обеспечение безопасности: видеонаблюдение, противопожарная система. Инфраструктура: детский сад, детские площадки, спортивные площадки, места для отдыха, супермаркет, рестораны, фитнес-центр, пункты бытового обслуживания, коммерческие объекты.
Жилой комплекс «Фонтаны» - дом клубного типа. Преимущество заключается в продуманном ландшафте дворов, круглосуточно охраняемой территории, системе видеонаблюдения во дворе. Также для удобства жителей проведен Wi-Fi во дворе, оборудованы безопасные и современные детские площадки, зоны отдыха.
«Фонтаны» - уникальный, неповторимый жилой комплекс, воплощающий оригинальные и креативные решения дизайнеров и архитекторов. Дома округлой форме - это придает им легкости, несмотря на массивность постройки.
ЖК «Фонтаны» расположен в микрорайоне Черёмушки. Отличная транспортная развязка позволяет быстро и с комфортом добраться до центра, а большое количество зеленых насаждений и парков дает возможность гулять с детьми и наслаждаться прекрасным видом на Кубань.
АКЦИЯ:
В жилом комплексе «Фонтаны» семьи с детьми до шести лет включительно могут оформить ипотеку по льготной ставке от 3,5% при первоначальном взносе от 20%.
Это возможность приобрести современную квартиру с продуманной планировкой, панорамными окнами и видами на реку Кубань, не откладывая мечту «на потом».
Территория ЖК - продуманное пространство для жизни: здесь найдётся место и для детских игр, и для спокойного отдыха взрослых, а близость к парковой зоне и будущему детскому саду сделает каждый день ещё комфортнее.
Выбирайте квартиру с готовым ремонтом и заселяйтесь без лишних хлопот - всё, что нужно для старта новой главы вашей семейной истории, уже здесь. Информация носит справочный характер. Не является публичной офертой.
Аккредитованные банки: Сбербанк, Альфа-Банк, ВТБ, Банк Уралсиб, РОССИЯ, Абсолют Банк, Металлинвестбанк, РНКБ, ПСБ, Кубань Кредит, Банк ВБРР, Россельхозбанк.
Позвоните и узнайте условия покупки прямо сейчас!
16.03.2026
9 775 500 ₽
Продается 2-комн. квартира, площадью 55.86 м2 в монолитно-кирпичной новостройке. Возможен вариант покупки с использованием ипотечных средств, есть рассрочка, возможна покупка с использованием материнского капитала, есть военная ипотека.
Жилая площадь 24.79 м2, кухня 17.2 м2, предчистовая отделка.
Квартира располагается на 18 этаже 18-этажного дома в ЖК Фонтаны.
Застройщик - ГК ССК, сдача дома - IV квартал 2026 года, высота потолков 2.82 м.
Дом оборудован пассажирским лифтом, закрытая территория.
Отдельная многоуровневая парковка, парковка охраняется. Обеспечение безопасности: видеонаблюдение, противопожарная система. Инфраструктура: детский сад, детские площадки, спортивные площадки, места для отдыха, супермаркет, рестораны, фитнес-центр, пункты бытового обслуживания, коммерческие объекты.
Жилой комплекс «Фонтаны» - дом клубного типа. Преимущество заключается в продуманном ландшафте дворов, круглосуточно охраняемой территории, системе видеонаблюдения во дворе. Также для удобства жителей проведен Wi-Fi во дворе, оборудованы безопасные и современные детские площадки, зоны отдыха.
«Фонтаны» - уникальный, неповторимый жилой комплекс, воплощающий оригинальные и креативные решения дизайнеров и архитекторов. Дома округлой форме - это придает им легкости, несмотря на массивность постройки.
ЖК «Фонтаны» расположен в микрорайоне Черёмушки. Отличная транспортная развязка позволяет быстро и с комфортом добраться до центра, а большое количество зеленых насаждений и парков дает возможность гулять с детьми и наслаждаться прекрасным видом на Кубань.
АКЦИЯ:
В жилом комплексе «Фонтаны» семьи с детьми до шести лет включительно могут оформить ипотеку по льготной ставке от 3,5% при первоначальном взносе от 20%.
Это возможность приобрести современную квартиру с продуманной планировкой, панорамными окнами и видами на реку Кубань, не откладывая мечту «на потом».
Территория ЖК - продуманное пространство для жизни: здесь найдётся место и для детских игр, и для спокойного отдыха взрослых, а близость к парковой зоне и будущему детскому саду сделает каждый день ещё комфортнее.
Выбирайте квартиру с готовым ремонтом и заселяйтесь без лишних хлопот - всё, что нужно для старта новой главы вашей семейной истории, уже здесь. Информация носит справочный характер. Не является публичной офертой.
Аккредитованные банки: Сбербанк, Альфа-Банк, ВТБ, Банк Уралсиб, РОССИЯ, Абсолют Банк, Металлинвестбанк, РНКБ, ПСБ, Кубань Кредит, Банк ВБРР, Россельхозбанк.
Позвоните и узнайте условия покупки прямо сейчас!
06.03.2026
9 775 500 ₽
Продается 2-комн. квартира, площадью 55.86 м2 в монолитно-кирпичной новостройке. Возможен вариант покупки с использованием ипотечных средств, есть рассрочка, возможна покупка с использованием материнского капитала, есть военная ипотека.
Жилая площадь 24.79 м2, кухня 17.2 м2, предчистовая отделка.
Квартира располагается на 16 этаже 18-этажного дома в ЖК Фонтаны.
Застройщик - ГК ССК, сдача дома - IV квартал 2026 года, высота потолков 2.82 м.
Дом оборудован пассажирским лифтом, закрытая территория.
Отдельная многоуровневая парковка, парковка охраняется. Обеспечение безопасности: видеонаблюдение, противопожарная система. Инфраструктура: детский сад, детские площадки, спортивные площадки, места для отдыха, супермаркет, рестораны, фитнес-центр, пункты бытового обслуживания, коммерческие объекты.
Жилой комплекс «Фонтаны» - дом клубного типа. Преимущество заключается в продуманном ландшафте дворов, круглосуточно охраняемой территории, системе видеонаблюдения во дворе. Также для удобства жителей проведен Wi-Fi во дворе, оборудованы безопасные и современные детские площадки, зоны отдыха.
«Фонтаны» - уникальный, неповторимый жилой комплекс, воплощающий оригинальные и креативные решения дизайнеров и архитекторов. Дома округлой форме - это придает им легкости, несмотря на массивность постройки.
ЖК «Фонтаны» расположен в микрорайоне Черёмушки. Отличная транспортная развязка позволяет быстро и с комфортом добраться до центра, а большое количество зеленых насаждений и парков дает возможность гулять с детьми и наслаждаться прекрасным видом на Кубань.
АКЦИЯ:
В жилом комплексе «Фонтаны» семьи с детьми до шести лет включительно могут оформить ипотеку по льготной ставке от 3,5% при первоначальном взносе от 20%.
Это возможность приобрести современную квартиру с продуманной планировкой, панорамными окнами и видами на реку Кубань, не откладывая мечту «на потом».
Территория ЖК - продуманное пространство для жизни: здесь найдётся место и для детских игр, и для спокойного отдыха взрослых, а близость к парковой зоне и будущему детскому саду сделает каждый день ещё комфортнее.
Выбирайте квартиру с готовым ремонтом и заселяйтесь без лишних хлопот - всё, что нужно для старта новой главы вашей семейной истории, уже здесь. Информация носит справочный характер. Не является публичной офертой.
Аккредитованные банки: Сбербанк, Альфа-Банк, ВТБ, Банк Уралсиб, РОССИЯ, Абсолют Банк, Металлинвестбанк, РНКБ, ПСБ, Кубань Кредит, Банк ВБРР, Россельхозбанк.
Позвоните и узнайте условия покупки прямо сейчас!
07.03.2026
9 775 500 ₽
Продается 2-комн. квартира, площадью 55.86 м2 в монолитно-кирпичной новостройке. Возможен вариант покупки с использованием ипотечных средств, есть рассрочка, возможна покупка с использованием материнского капитала, есть военная ипотека.
Жилая площадь 24.79 м2, кухня 17.2 м2, предчистовая отделка.
Квартира располагается на 12 этаже 18-этажного дома в ЖК Фонтаны.
Застройщик - ГК ССК, сдача дома - IV квартал 2026 года, высота потолков 2.82 м.
Дом оборудован пассажирским лифтом, закрытая территория.
Отдельная многоуровневая парковка, парковка охраняется. Обеспечение безопасности: видеонаблюдение, противопожарная система. Инфраструктура: детский сад, детские площадки, спортивные площадки, места для отдыха, супермаркет, рестораны, фитнес-центр, пункты бытового обслуживания, коммерческие объекты.
Жилой комплекс «Фонтаны» - дом клубного типа. Преимущество заключается в продуманном ландшафте дворов, круглосуточно охраняемой территории, системе видеонаблюдения во дворе. Также для удобства жителей проведен Wi-Fi во дворе, оборудованы безопасные и современные детские площадки, зоны отдыха.
«Фонтаны» - уникальный, неповторимый жилой комплекс, воплощающий оригинальные и креативные решения дизайнеров и архитекторов. Дома округлой форме - это придает им легкости, несмотря на массивность постройки.
ЖК «Фонтаны» расположен в микрорайоне Черёмушки. Отличная транспортная развязка позволяет быстро и с комфортом добраться до центра, а большое количество зеленых насаждений и парков дает возможность гулять с детьми и наслаждаться прекрасным видом на Кубань.
АКЦИЯ:
В жилом комплексе «Фонтаны» семьи с детьми до шести лет включительно могут оформить ипотеку по льготной ставке от 3,5% при первоначальном взносе от 20%.
Это возможность приобрести современную квартиру с продуманной планировкой, панорамными окнами и видами на реку Кубань, не откладывая мечту «на потом».
Территория ЖК - продуманное пространство для жизни: здесь найдётся место и для детских игр, и для спокойного отдыха взрослых, а близость к парковой зоне и будущему детскому саду сделает каждый день ещё комфортнее.
Выбирайте квартиру с готовым ремонтом и заселяйтесь без лишних хлопот - всё, что нужно для старта новой главы вашей семейной истории, уже здесь. Информация носит справочный характер. Не является публичной офертой.
Аккредитованные банки: Сбербанк, Альфа-Банк, ВТБ, Банк Уралсиб, РОССИЯ, Абсолют Банк, Металлинвестбанк, РНКБ, ПСБ, Кубань Кредит, Банк ВБРР, Россельхозбанк.
Позвоните и узнайте условия покупки прямо сейчас!
14.03.2026
9 775 500 ₽
Сдается производство площадью 2500 кв.м, в прямую аренду на срок от одного года. Минимальный срок аренды 11 мес. Помещение располагается в 1-этажном здании, предоставляется юридический адрес. Помещение располагается на 1 этаже здания, высота потолков 8 м, внутри типовой ремонт. Бетонный пол, две мокрые точки.
07.03.2026
1 000 000 ₽
Имущество реализуется путем проведения торгов в форме аукциона в соответствии с Федеральным законом "О несостоятельности (банкротстве) " от 26.10.2002 №127-ФЗ. Объявление о реализации размещено на сайте залогового имущества Сбербанка - Pоrtal-DA. ru под номером 920447 (назовите при обращении) Квартира- Студия пл. 42.1 кв.м. Г. СОЧИ, АДЛЕРСКИЙ РАЙОН, УЛ. ИЗУМРУДНАЯ, Д. 38, КВАРТИРА №62 Pоrtal-DA. ru предоставляет услугу по участию в торгах - "Купить с помощью агента"При покупке нельзя использовать средства жилищных сертификатов и материнского капитала. Возможность привлечения кредитных средств СБера (ипотека) по данному активу необходимо уточнить в чате на сайте залогового имущества Сбербанка - Pоrtal-DA. ru. Либо обращаться по телефону в рабочие дни с 9-00 до 18-00 Мск.
Готовы ответить на все интересующие вопросы.
14.01.2026
10 350 900 ₽
Продается 2-комн. квартира, площадью 53.05 м2 в панельной новостройке. Возможен вариант покупки с использованием ипотечных средств, возможна покупка с использованием материнского капитала.
Жилая площадь 24.4 м2, кухня 15.3 м2, предчистовая отделка.
Квартира располагается на 5 этаже 12-этажного дома в ЖК На Высоком берегу.
Застройщик - ГК ССК, сдача дома - II квартал 2027 года, высота потолков 2.7 м.
Дом оборудован пассажирским лифтом.
Подземная парковка. Инфраструктура: детские площадки, спортивные площадки, места для отдыха, рестораны.
Семейный квартал «На Высоком берегу» расположен всего в 300 метрах от моря, где каждая деталь создана для вашего максимального комфорта. Квартиры с высотой потолков 2,7 метра, просторные мастер-спальни и великолепные виды.
169 уникальных, современных и функциональных планировок, каждая из которых разработана специально для комфортной семейной жизни. Продуманное зонирование, рациональное использование пространства и эстетика современного дизайна делают каждую квартиру настоящим воплощением мечты о жилье премиум-класса.
АКЦИЯ:
«На Высоком берегу» - это не просто семейный квартал, это состояние души, доступное лишь немногим. И прямо сейчас у вас есть уникальный шанс стать одним из этих избранных.
Мы открываем специальные условия на 50 квартир, окна которых смотрят на главные достопримечательности вашей новой жизни: на умиротворяющую зелень Крещенского парка и сияющую линию Белой набережной. Это предложение для тех, кто понимает, что настоящая ценность - не в метрах, а в виде из окна, который каждый день дарит чувство гармонии и покоя.
Успейте закрепить за собой один из 50 лотов с выгодными условиями и начните писать свою историю на самом живописном листе Анапы - там, где высокий берег становится началом всего самого важного.
Позвоните и узнайте условия покупки прямо сейчас!
06.03.2026
13 793 000 ₽
Продается 2-комн. квартира, площадью 53.05 м2 в панельной новостройке. Возможен вариант покупки с использованием ипотечных средств, возможна покупка с использованием материнского капитала.
Жилая площадь 24.4 м2, кухня 15.3 м2, предчистовая отделка.
Квартира располагается на 4 этаже 12-этажного дома в ЖК На Высоком берегу.
Застройщик - ГК ССК, сдача дома - II квартал 2027 года, высота потолков 2.7 м.
Дом оборудован пассажирским лифтом.
Подземная парковка. Инфраструктура: детские площадки, спортивные площадки, места для отдыха, рестораны.
Семейный квартал «На Высоком берегу» расположен всего в 300 метрах от моря, где каждая деталь создана для вашего максимального комфорта. Квартиры с высотой потолков 2,7 метра, просторные мастер-спальни и великолепные виды.
169 уникальных, современных и функциональных планировок, каждая из которых разработана специально для комфортной семейной жизни. Продуманное зонирование, рациональное использование пространства и эстетика современного дизайна делают каждую квартиру настоящим воплощением мечты о жилье премиум-класса.
АКЦИЯ:
«На Высоком берегу» - это не просто семейный квартал, это состояние души, доступное лишь немногим. И прямо сейчас у вас есть уникальный шанс стать одним из этих избранных.
Мы открываем специальные условия на 50 квартир, окна которых смотрят на главные достопримечательности вашей новой жизни: на умиротворяющую зелень Крещенского парка и сияющую линию Белой набережной. Это предложение для тех, кто понимает, что настоящая ценность - не в метрах, а в виде из окна, который каждый день дарит чувство гармонии и покоя.
Успейте закрепить за собой один из 50 лотов с выгодными условиями и начните писать свою историю на самом живописном листе Анапы - там, где высокий берег становится началом всего самого важного.
Позвоните и узнайте условия покупки прямо сейчас!
08.02.2026
13 793 000 ₽
Продается 2-комн. квартира, площадью 53.05 м2 в панельной новостройке. Возможен вариант покупки с использованием ипотечных средств, возможна покупка с использованием материнского капитала.
Жилая площадь 24.4 м2, кухня 15.3 м2, предчистовая отделка.
Квартира располагается на 3 этаже 12-этажного дома в ЖК На Высоком берегу.
Застройщик - ГК ССК, сдача дома - II квартал 2027 года, высота потолков 2.7 м.
Дом оборудован пассажирским лифтом.
Подземная парковка. Инфраструктура: детские площадки, спортивные площадки, места для отдыха, рестораны.
Семейный квартал «На Высоком берегу» расположен всего в 300 метрах от моря, где каждая деталь создана для вашего максимального комфорта. Квартиры с высотой потолков 2,7 метра, просторные мастер-спальни и великолепные виды.
169 уникальных, современных и функциональных планировок, каждая из которых разработана специально для комфортной семейной жизни. Продуманное зонирование, рациональное использование пространства и эстетика современного дизайна делают каждую квартиру настоящим воплощением мечты о жилье премиум-класса.
АКЦИЯ:
«На Высоком берегу» - это не просто семейный квартал, это состояние души, доступное лишь немногим. И прямо сейчас у вас есть уникальный шанс стать одним из этих избранных.
Мы открываем специальные условия на 50 квартир, окна которых смотрят на главные достопримечательности вашей новой жизни: на умиротворяющую зелень Крещенского парка и сияющую линию Белой набережной. Это предложение для тех, кто понимает, что настоящая ценность - не в метрах, а в виде из окна, который каждый день дарит чувство гармонии и покоя.
Успейте закрепить за собой один из 50 лотов с выгодными условиями и начните писать свою историю на самом живописном листе Анапы - там, где высокий берег становится началом всего самого важного.
Позвоните и узнайте условия покупки прямо сейчас!
03.03.2026
13 793 000 ₽
Продается 2-комн. квартира, площадью 53.05 м2 в панельной новостройке. Возможен вариант покупки с использованием ипотечных средств, возможна покупка с использованием материнского капитала.
Жилая площадь 24.4 м2, кухня 15.3 м2, предчистовая отделка.
Квартира располагается на 2 этаже 12-этажного дома в ЖК На Высоком берегу.
Застройщик - ГК ССК, сдача дома - II квартал 2027 года, высота потолков 2.7 м.
Дом оборудован пассажирским лифтом.
Подземная парковка. Инфраструктура: детские площадки, спортивные площадки, места для отдыха, рестораны.
Семейный квартал «На Высоком берегу» расположен всего в 300 метрах от моря, где каждая деталь создана для вашего максимального комфорта. Квартиры с высотой потолков 2,7 метра, просторные мастер-спальни и великолепные виды.
169 уникальных, современных и функциональных планировок, каждая из которых разработана специально для комфортной семейной жизни. Продуманное зонирование, рациональное использование пространства и эстетика современного дизайна делают каждую квартиру настоящим воплощением мечты о жилье премиум-класса.
АКЦИЯ:
«На Высоком берегу» - это не просто семейный квартал, это состояние души, доступное лишь немногим. И прямо сейчас у вас есть уникальный шанс стать одним из этих избранных.
Мы открываем специальные условия на 50 квартир, окна которых смотрят на главные достопримечательности вашей новой жизни: на умиротворяющую зелень Крещенского парка и сияющую линию Белой набережной. Это предложение для тех, кто понимает, что настоящая ценность - не в метрах, а в виде из окна, который каждый день дарит чувство гармонии и покоя.
Успейте закрепить за собой один из 50 лотов с выгодными условиями и начните писать свою историю на самом живописном листе Анапы - там, где высокий берег становится началом всего самого важного.
Позвоните и узнайте условия покупки прямо сейчас!
06.03.2026
13 793 000 ₽
Продается 2-комн. квартира, площадью 53.05 м2 в панельной новостройке. Возможен вариант покупки с использованием ипотечных средств, возможна покупка с использованием материнского капитала.
Жилая площадь 24.4 м2, кухня 15.3 м2, предчистовая отделка.
Квартира располагается на 3 этаже 12-этажного дома в ЖК На Высоком берегу.
Застройщик - ГК ССК, сдача дома - II квартал 2027 года, высота потолков 2.7 м.
Дом оборудован пассажирским лифтом.
Подземная парковка. Инфраструктура: детские площадки, спортивные площадки, места для отдыха, рестораны.
Семейный квартал «На Высоком берегу» расположен всего в 300 метрах от моря, где каждая деталь создана для вашего максимального комфорта. Квартиры с высотой потолков 2,7 метра, просторные мастер-спальни и великолепные виды.
169 уникальных, современных и функциональных планировок, каждая из которых разработана специально для комфортной семейной жизни. Продуманное зонирование, рациональное использование пространства и эстетика современного дизайна делают каждую квартиру настоящим воплощением мечты о жилье премиум-класса.
АКЦИЯ:
«На Высоком берегу» - это не просто семейный квартал, это состояние души, доступное лишь немногим. И прямо сейчас у вас есть уникальный шанс стать одним из этих избранных.
Мы открываем специальные условия на 50 квартир, окна которых смотрят на главные достопримечательности вашей новой жизни: на умиротворяющую зелень Крещенского парка и сияющую линию Белой набережной. Это предложение для тех, кто понимает, что настоящая ценность - не в метрах, а в виде из окна, который каждый день дарит чувство гармонии и покоя.
Успейте закрепить за собой один из 50 лотов с выгодными условиями и начните писать свою историю на самом живописном листе Анапы - там, где высокий берег становится началом всего самого важного.
Позвоните и узнайте условия покупки прямо сейчас!
08.02.2026
13 793 000 ₽




















