Объявление о квартирах в Тамани - Страница 6
- Тамань »
- Недвижимость
- » Квартиры в Тамани
Продаются 2 комн. апартаменты, площадью 49.4 м2 в монолитной новостройке. Возможен вариант покупки с использованием ипотечных средств, есть рассрочка, возможна покупка с использованием материнского капитала, есть военная ипотека.
Жилая площадь 19.9 м2, кухня 18.8 м2, чистовая отделка с мебелью.
Квартира располагается на 2 этаже 9-этажного дома в ЖК Гостиничный комплекс Мореград.
Застройщик - ГК ССК, сдача дома - I квартал 2027 года.
Дом оборудован пассажирским лифтом, закрытая территория.
Подземная парковка, парковка охраняется. Обеспечение безопасности: видеонаблюдение, круглосуточная охрана, противопожарная система. Инфраструктура: детские площадки, спортивные площадки, места для отдыха, супермаркет, рестораны, пункты бытового обслуживания, коммерческие объекты.
Расположенный в живописном месте города-курорта Анапы, гостиничный комплекс «Мореград» предлагает идеальное сочетание уютной обстановки и удобного расположения. Всего в трех минутах ходьбы от тенистых зеленых аллей Пионерского проспекта, он станет идеальным выбором для отдыхающих, желающих насладиться близостью к морю.
Песчаные пляжи Черного моря, всего в 7 минутах ходьбы от комплекса, приглашают насладиться теплым солнцем и ласковыми волнами.
«Мореград» - уникальный современный гостиничный комплекс, где гостям будут доступны все удобства отельного сервиса. Коммерческие блоки и различные виды отдыха - рестораны, бары, магазины, лаунж-зоны, оборудованные спортивные и детские площадки и многое другое сделают отдых гостей незабываемым.
АКЦИЯ:
Комфортабельные номера в ГК «Мореград» от 24 м с ремонтом и полной комплектацией современной техникой по цене от 9 120 000 . При оплате наличными действует специальная выгода, и стоимость снижается до 8 676 000 .
Мореград представляет собой современный гостиничный комплекс, сочетающий высокий уровень сервиса, коммерческие объекты, рестораны и бары с разнообразным меню, а также удобные магазины, лаунж-зоны, детские и спортивные площадки. Всё это создаёт уникальную атмосферу для комфортного проживания и приятного отдыха.
Не упустите возможность выгодно приобрести недвижимость с отличной инфраструктурой!
Позвоните и узнайте условия покупки прямо сейчас!
06.12.2025
13 832 000 ₽
Продаются 2 комн. апартаменты, площадью 49.4 м2 в монолитной новостройке. Возможен вариант покупки с использованием ипотечных средств, есть рассрочка, возможна покупка с использованием материнского капитала, есть военная ипотека.
Жилая площадь 19.9 м2, кухня 18.8 м2, чистовая отделка с мебелью.
Квартира располагается на 2 этаже 9-этажного дома в ЖК Гостиничный комплекс Мореград.
Застройщик - ГК ССК, сдача дома - I квартал 2027 года.
Дом оборудован пассажирским лифтом, закрытая территория.
Подземная парковка, парковка охраняется. Обеспечение безопасности: видеонаблюдение, круглосуточная охрана, противопожарная система. Инфраструктура: детские площадки, спортивные площадки, места для отдыха, супермаркет, рестораны, пункты бытового обслуживания, коммерческие объекты.
Расположенный в живописном месте города-курорта Анапы, гостиничный комплекс «Мореград» предлагает идеальное сочетание уютной обстановки и удобного расположения. Всего в трех минутах ходьбы от тенистых зеленых аллей Пионерского проспекта, он станет идеальным выбором для отдыхающих, желающих насладиться близостью к морю.
Песчаные пляжи Черного моря, всего в 7 минутах ходьбы от комплекса, приглашают насладиться теплым солнцем и ласковыми волнами.
«Мореград» - уникальный современный гостиничный комплекс, где гостям будут доступны все удобства отельного сервиса. Коммерческие блоки и различные виды отдыха - рестораны, бары, магазины, лаунж-зоны, оборудованные спортивные и детские площадки и многое другое сделают отдых гостей незабываемым.
АКЦИЯ:
Комфортабельные номера в ГК «Мореград» от 24 м с ремонтом и полной комплектацией современной техникой по цене от 9 120 000 . При оплате наличными действует специальная выгода, и стоимость снижается до 8 676 000 .
Мореград представляет собой современный гостиничный комплекс, сочетающий высокий уровень сервиса, коммерческие объекты, рестораны и бары с разнообразным меню, а также удобные магазины, лаунж-зоны, детские и спортивные площадки. Всё это создаёт уникальную атмосферу для комфортного проживания и приятного отдыха.
Не упустите возможность выгодно приобрести недвижимость с отличной инфраструктурой!
Позвоните и узнайте условия покупки прямо сейчас!
06.12.2025
13 832 000 ₽
Продаются 2 комн. апартаменты, площадью 45.7 м2 в монолитной новостройке. Возможен вариант покупки с использованием ипотечных средств, есть рассрочка, возможна покупка с использованием материнского капитала, есть военная ипотека.
Жилая площадь 19.9 м2, кухня 12.7 м2, чистовая отделка с мебелью.
Квартира располагается на 2 этаже 9-этажного дома в ЖК Гостиничный комплекс Мореград.
Застройщик - ГК ССК, сдача дома - I квартал 2027 года.
Дом оборудован пассажирским лифтом, закрытая территория.
Подземная парковка, парковка охраняется. Обеспечение безопасности: видеонаблюдение, круглосуточная охрана, противопожарная система. Инфраструктура: детские площадки, спортивные площадки, места для отдыха, супермаркет, рестораны, пункты бытового обслуживания, коммерческие объекты.
Расположенный в живописном месте города-курорта Анапы, гостиничный комплекс «Мореград» предлагает идеальное сочетание уютной обстановки и удобного расположения. Всего в трех минутах ходьбы от тенистых зеленых аллей Пионерского проспекта, он станет идеальным выбором для отдыхающих, желающих насладиться близостью к морю.
Песчаные пляжи Черного моря, всего в 7 минутах ходьбы от комплекса, приглашают насладиться теплым солнцем и ласковыми волнами.
«Мореград» - уникальный современный гостиничный комплекс, где гостям будут доступны все удобства отельного сервиса. Коммерческие блоки и различные виды отдыха - рестораны, бары, магазины, лаунж-зоны, оборудованные спортивные и детские площадки и многое другое сделают отдых гостей незабываемым.
АКЦИЯ:
Комфортабельные номера в ГК «Мореград» от 24 м с ремонтом и полной комплектацией современной техникой по цене от 9 120 000 . При оплате наличными действует специальная выгода, и стоимость снижается до 8 676 000 .
Мореград представляет собой современный гостиничный комплекс, сочетающий высокий уровень сервиса, коммерческие объекты, рестораны и бары с разнообразным меню, а также удобные магазины, лаунж-зоны, детские и спортивные площадки. Всё это создаёт уникальную атмосферу для комфортного проживания и приятного отдыха.
Не упустите возможность выгодно приобрести недвижимость с отличной инфраструктурой!
Позвоните и узнайте условия покупки прямо сейчас!
06.12.2025
13 710 000 ₽
Продаются 2 комн. апартаменты, площадью 45.7 м2 в монолитной новостройке. Возможен вариант покупки с использованием ипотечных средств, есть рассрочка, возможна покупка с использованием материнского капитала, есть военная ипотека.
Жилая площадь 19.9 м2, кухня 12.7 м2, чистовая отделка с мебелью.
Квартира располагается на 2 этаже 9-этажного дома в ЖК Гостиничный комплекс Мореград.
Застройщик - ГК ССК, сдача дома - I квартал 2027 года.
Дом оборудован пассажирским лифтом, закрытая территория.
Подземная парковка, парковка охраняется. Обеспечение безопасности: видеонаблюдение, круглосуточная охрана, противопожарная система. Инфраструктура: детские площадки, спортивные площадки, места для отдыха, супермаркет, рестораны, пункты бытового обслуживания, коммерческие объекты.
Расположенный в живописном месте города-курорта Анапы, гостиничный комплекс «Мореград» предлагает идеальное сочетание уютной обстановки и удобного расположения. Всего в трех минутах ходьбы от тенистых зеленых аллей Пионерского проспекта, он станет идеальным выбором для отдыхающих, желающих насладиться близостью к морю.
Песчаные пляжи Черного моря, всего в 7 минутах ходьбы от комплекса, приглашают насладиться теплым солнцем и ласковыми волнами.
«Мореград» - уникальный современный гостиничный комплекс, где гостям будут доступны все удобства отельного сервиса. Коммерческие блоки и различные виды отдыха - рестораны, бары, магазины, лаунж-зоны, оборудованные спортивные и детские площадки и многое другое сделают отдых гостей незабываемым.
АКЦИЯ:
Комфортабельные номера в ГК «Мореград» от 24 м с ремонтом и полной комплектацией современной техникой по цене от 9 120 000 . При оплате наличными действует специальная выгода, и стоимость снижается до 8 676 000 .
Мореград представляет собой современный гостиничный комплекс, сочетающий высокий уровень сервиса, коммерческие объекты, рестораны и бары с разнообразным меню, а также удобные магазины, лаунж-зоны, детские и спортивные площадки. Всё это создаёт уникальную атмосферу для комфортного проживания и приятного отдыха.
Не упустите возможность выгодно приобрести недвижимость с отличной инфраструктурой!
Позвоните и узнайте условия покупки прямо сейчас!
06.12.2025
13 710 000 ₽
Продаются 3 комн. апартаменты, площадью 62.32 м2 в монолитной новостройке. Возможен вариант покупки с использованием ипотечных средств, есть рассрочка, возможна покупка с использованием материнского капитала, есть военная ипотека.
Жилая площадь 49.09 м2, кухня 10.65 м2, чистовая отделка с мебелью.
Квартира располагается на 2 этаже 9-этажного дома в ЖК Гостиничный комплекс «Корсаков.
Застройщик - ГК ССК, сдача дома - IV квартал 2026 года.
Дом оборудован пассажирским лифтом, закрытая территория.
Отдельная многоуровневая парковка, парковка охраняется. Обеспечение безопасности: видеонаблюдение, круглосуточная охрана. Инфраструктура: детские площадки, спортивные площадки, места для отдыха, супермаркет, рестораны, фитнес-центр, пункты бытового обслуживания, коммерческие объекты.
Вершина инноваций и роскоши, воплощение передовых технологий в строительстве и непревзойденных решений в дизайне. Первый IT-отель Корсаков - место, где каждый элемент говорит о вашем статусе. Нашим гостям и резидентам мы предлагаем непревзойденный сервис и уникальные технологические решения, делающие пребывание в Корсакове по-настоящему незабываемым.
Наш отель выделяется на фоне текущих архитектурных проектов благодаря инновационному дизайну и современным архитектурным решениям, создающим эстетическое наслаждение и узнаваемый облик.
АКЦИЯ:
Если вы рассматриваете надежные варианты для вложения средств, обратите внимание на уникальную возможность доходного актива - гостиничного комплекса «Корсаров».
Инвестируйте в номер будущего отеля на особых условиях. Ваша ключевая финансовая нагрузка на этапе строительства фиксирована - ипотечный платёж всего 35 000 рублей в месяц.
Почему это выгодно и безопасно:
Минимальные риски и чёткие расчёты: Все финансовые модели прозрачны и предсказуемы.
Полное управление профессионалами: После сдачи объекта все операционные заботы берёт на себя профессиональный отельер. С ним уже подписан долгосрочный договор, что гарантирует круглогодичную загрузку.
Пассивный доход: Ваша недвижимость будет работать на вас. Генерируемая выручка покроет все обязательные платежи (ипотеку, налоги, коммунальные услуги) и начнет приносить вам чистую прибыль.
Расчётная окупаемость инвестиций - 8 лет, после чего вы продолжаете получать регулярный доход от актива.
Предложение строго ограничено. Эти уникальные условия действуют только для первых 30 номеров. Это шанс закрепить за собой выгодную ставку и гарантированное управление.
Успейте забронировать свой номер по специальной инвестиционной ставке. Оставьте заявку, чтобы получить детальную финансовую модель, презентацию проекта и консультацию.
Аккредитованные банки: Сбербанк, Альфа-Банк, ВТБ, Банк Уралсиб, РОССИЯ, Абсолют Банк, Металлинвестбанк, РНКБ, ПСБ, Кубань Кредит, Банк ВБРР.
Позвоните и узнайте условия покупки прямо сейчас!
06.12.2025
21 500 400 ₽
Продаются 3 комн. апартаменты, площадью 56.38 м2 в монолитной новостройке. Возможен вариант покупки с использованием ипотечных средств, есть рассрочка, возможна покупка с использованием материнского капитала, есть военная ипотека.
Жилая площадь 43.44 м2, кухня 10.65 м2, чистовая отделка с мебелью.
Квартира располагается на 6 этаже 9-этажного дома в ЖК Гостиничный комплекс «Корсаков.
Застройщик - ГК ССК, сдача дома - IV квартал 2026 года.
Дом оборудован пассажирским лифтом, закрытая территория.
Отдельная многоуровневая парковка, парковка охраняется. Обеспечение безопасности: видеонаблюдение, круглосуточная охрана. Инфраструктура: детские площадки, спортивные площадки, места для отдыха, супермаркет, рестораны, фитнес-центр, пункты бытового обслуживания, коммерческие объекты.
Вершина инноваций и роскоши, воплощение передовых технологий в строительстве и непревзойденных решений в дизайне. Первый IT-отель Корсаков - место, где каждый элемент говорит о вашем статусе. Нашим гостям и резидентам мы предлагаем непревзойденный сервис и уникальные технологические решения, делающие пребывание в Корсакове по-настоящему незабываемым.
Наш отель выделяется на фоне текущих архитектурных проектов благодаря инновационному дизайну и современным архитектурным решениям, создающим эстетическое наслаждение и узнаваемый облик.
АКЦИЯ:
Если вы рассматриваете надежные варианты для вложения средств, обратите внимание на уникальную возможность доходного актива - гостиничного комплекса «Корсаров».
Инвестируйте в номер будущего отеля на особых условиях. Ваша ключевая финансовая нагрузка на этапе строительства фиксирована - ипотечный платёж всего 35 000 рублей в месяц.
Почему это выгодно и безопасно:
Минимальные риски и чёткие расчёты: Все финансовые модели прозрачны и предсказуемы.
Полное управление профессионалами: После сдачи объекта все операционные заботы берёт на себя профессиональный отельер. С ним уже подписан долгосрочный договор, что гарантирует круглогодичную загрузку.
Пассивный доход: Ваша недвижимость будет работать на вас. Генерируемая выручка покроет все обязательные платежи (ипотеку, налоги, коммунальные услуги) и начнет приносить вам чистую прибыль.
Расчётная окупаемость инвестиций - 8 лет, после чего вы продолжаете получать регулярный доход от актива.
Предложение строго ограничено. Эти уникальные условия действуют только для первых 30 номеров. Это шанс закрепить за собой выгодную ставку и гарантированное управление.
Успейте забронировать свой номер по специальной инвестиционной ставке. Оставьте заявку, чтобы получить детальную финансовую модель, презентацию проекта и консультацию.
Аккредитованные банки: Сбербанк, Альфа-Банк, ВТБ, Банк Уралсиб, РОССИЯ, Абсолют Банк, Металлинвестбанк, РНКБ, ПСБ, Кубань Кредит, Банк ВБРР.
Позвоните и узнайте условия покупки прямо сейчас!
06.12.2025
20 296 800 ₽
Продаются 3 комн. апартаменты, площадью 54.28 м2 в монолитной новостройке. Возможен вариант покупки с использованием ипотечных средств, есть рассрочка, возможна покупка с использованием материнского капитала, есть военная ипотека.
Жилая площадь 41.45 м2, кухня 10.65 м2, чистовая отделка с мебелью.
Квартира располагается на 8 этаже 9-этажного дома в ЖК Гостиничный комплекс «Корсаков.
Застройщик - ГК ССК, сдача дома - IV квартал 2026 года.
Дом оборудован пассажирским лифтом, закрытая территория.
Отдельная многоуровневая парковка, парковка охраняется. Обеспечение безопасности: видеонаблюдение, круглосуточная охрана. Инфраструктура: детские площадки, спортивные площадки, места для отдыха, супермаркет, рестораны, фитнес-центр, пункты бытового обслуживания, коммерческие объекты.
Вершина инноваций и роскоши, воплощение передовых технологий в строительстве и непревзойденных решений в дизайне. Первый IT-отель Корсаков - место, где каждый элемент говорит о вашем статусе. Нашим гостям и резидентам мы предлагаем непревзойденный сервис и уникальные технологические решения, делающие пребывание в Корсакове по-настоящему незабываемым.
Наш отель выделяется на фоне текущих архитектурных проектов благодаря инновационному дизайну и современным архитектурным решениям, создающим эстетическое наслаждение и узнаваемый облик.
АКЦИЯ:
Если вы рассматриваете надежные варианты для вложения средств, обратите внимание на уникальную возможность доходного актива - гостиничного комплекса «Корсаров».
Инвестируйте в номер будущего отеля на особых условиях. Ваша ключевая финансовая нагрузка на этапе строительства фиксирована - ипотечный платёж всего 35 000 рублей в месяц.
Почему это выгодно и безопасно:
Минимальные риски и чёткие расчёты: Все финансовые модели прозрачны и предсказуемы.
Полное управление профессионалами: После сдачи объекта все операционные заботы берёт на себя профессиональный отельер. С ним уже подписан долгосрочный договор, что гарантирует круглогодичную загрузку.
Пассивный доход: Ваша недвижимость будет работать на вас. Генерируемая выручка покроет все обязательные платежи (ипотеку, налоги, коммунальные услуги) и начнет приносить вам чистую прибыль.
Расчётная окупаемость инвестиций - 8 лет, после чего вы продолжаете получать регулярный доход от актива.
Предложение строго ограничено. Эти уникальные условия действуют только для первых 30 номеров. Это шанс закрепить за собой выгодную ставку и гарантированное управление.
Успейте забронировать свой номер по специальной инвестиционной ставке. Оставьте заявку, чтобы получить детальную финансовую модель, презентацию проекта и консультацию.
Аккредитованные банки: Сбербанк, Альфа-Банк, ВТБ, Банк Уралсиб, РОССИЯ, Абсолют Банк, Металлинвестбанк, РНКБ, ПСБ, Кубань Кредит, Банк ВБРР.
Позвоните и узнайте условия покупки прямо сейчас!
06.12.2025
19 540 800 ₽
Продаются 3 комн. апартаменты, площадью 54.28 м2 в монолитной новостройке. Возможен вариант покупки с использованием ипотечных средств, есть рассрочка, возможна покупка с использованием материнского капитала, есть военная ипотека.
Жилая площадь 41.45 м2, кухня 10.65 м2, чистовая отделка с мебелью.
Квартира располагается на 6 этаже 9-этажного дома в ЖК Гостиничный комплекс «Корсаков.
Застройщик - ГК ССК, сдача дома - IV квартал 2026 года.
Дом оборудован пассажирским лифтом, закрытая территория.
Отдельная многоуровневая парковка, парковка охраняется. Обеспечение безопасности: видеонаблюдение, круглосуточная охрана. Инфраструктура: детские площадки, спортивные площадки, места для отдыха, супермаркет, рестораны, фитнес-центр, пункты бытового обслуживания, коммерческие объекты.
Вершина инноваций и роскоши, воплощение передовых технологий в строительстве и непревзойденных решений в дизайне. Первый IT-отель Корсаков - место, где каждый элемент говорит о вашем статусе. Нашим гостям и резидентам мы предлагаем непревзойденный сервис и уникальные технологические решения, делающие пребывание в Корсакове по-настоящему незабываемым.
Наш отель выделяется на фоне текущих архитектурных проектов благодаря инновационному дизайну и современным архитектурным решениям, создающим эстетическое наслаждение и узнаваемый облик.
АКЦИЯ:
Если вы рассматриваете надежные варианты для вложения средств, обратите внимание на уникальную возможность доходного актива - гостиничного комплекса «Корсаров».
Инвестируйте в номер будущего отеля на особых условиях. Ваша ключевая финансовая нагрузка на этапе строительства фиксирована - ипотечный платёж всего 35 000 рублей в месяц.
Почему это выгодно и безопасно:
Минимальные риски и чёткие расчёты: Все финансовые модели прозрачны и предсказуемы.
Полное управление профессионалами: После сдачи объекта все операционные заботы берёт на себя профессиональный отельер. С ним уже подписан долгосрочный договор, что гарантирует круглогодичную загрузку.
Пассивный доход: Ваша недвижимость будет работать на вас. Генерируемая выручка покроет все обязательные платежи (ипотеку, налоги, коммунальные услуги) и начнет приносить вам чистую прибыль.
Расчётная окупаемость инвестиций - 8 лет, после чего вы продолжаете получать регулярный доход от актива.
Предложение строго ограничено. Эти уникальные условия действуют только для первых 30 номеров. Это шанс закрепить за собой выгодную ставку и гарантированное управление.
Успейте забронировать свой номер по специальной инвестиционной ставке. Оставьте заявку, чтобы получить детальную финансовую модель, презентацию проекта и консультацию.
Аккредитованные банки: Сбербанк, Альфа-Банк, ВТБ, Банк Уралсиб, РОССИЯ, Абсолют Банк, Металлинвестбанк, РНКБ, ПСБ, Кубань Кредит, Банк ВБРР.
Позвоните и узнайте условия покупки прямо сейчас!
06.12.2025
19 540 800 ₽
Продаются 3 комн. апартаменты, площадью 54.28 м2 в монолитной новостройке. Возможен вариант покупки с использованием ипотечных средств, есть рассрочка, возможна покупка с использованием материнского капитала, есть военная ипотека.
Жилая площадь 36.8 м2, кухня 15.54 м2, чистовая отделка с мебелью.
Квартира располагается на 5 этаже 9-этажного дома в ЖК Гостиничный комплекс «Корсаков.
Застройщик - ГК ССК, сдача дома - IV квартал 2026 года.
Дом оборудован пассажирским лифтом, закрытая территория.
Отдельная многоуровневая парковка, парковка охраняется. Обеспечение безопасности: видеонаблюдение, круглосуточная охрана. Инфраструктура: детские площадки, спортивные площадки, места для отдыха, супермаркет, рестораны, фитнес-центр, пункты бытового обслуживания, коммерческие объекты.
Вершина инноваций и роскоши, воплощение передовых технологий в строительстве и непревзойденных решений в дизайне. Первый IT-отель Корсаков - место, где каждый элемент говорит о вашем статусе. Нашим гостям и резидентам мы предлагаем непревзойденный сервис и уникальные технологические решения, делающие пребывание в Корсакове по-настоящему незабываемым.
Наш отель выделяется на фоне текущих архитектурных проектов благодаря инновационному дизайну и современным архитектурным решениям, создающим эстетическое наслаждение и узнаваемый облик.
АКЦИЯ:
Если вы рассматриваете надежные варианты для вложения средств, обратите внимание на уникальную возможность доходного актива - гостиничного комплекса «Корсаров».
Инвестируйте в номер будущего отеля на особых условиях. Ваша ключевая финансовая нагрузка на этапе строительства фиксирована - ипотечный платёж всего 35 000 рублей в месяц.
Почему это выгодно и безопасно:
Минимальные риски и чёткие расчёты: Все финансовые модели прозрачны и предсказуемы.
Полное управление профессионалами: После сдачи объекта все операционные заботы берёт на себя профессиональный отельер. С ним уже подписан долгосрочный договор, что гарантирует круглогодичную загрузку.
Пассивный доход: Ваша недвижимость будет работать на вас. Генерируемая выручка покроет все обязательные платежи (ипотеку, налоги, коммунальные услуги) и начнет приносить вам чистую прибыль.
Расчётная окупаемость инвестиций - 8 лет, после чего вы продолжаете получать регулярный доход от актива.
Предложение строго ограничено. Эти уникальные условия действуют только для первых 30 номеров. Это шанс закрепить за собой выгодную ставку и гарантированное управление.
Успейте забронировать свой номер по специальной инвестиционной ставке. Оставьте заявку, чтобы получить детальную финансовую модель, презентацию проекта и консультацию.
Аккредитованные банки: Сбербанк, Альфа-Банк, ВТБ, Банк Уралсиб, РОССИЯ, Абсолют Банк, Металлинвестбанк, РНКБ, ПСБ, Кубань Кредит, Банк ВБРР.
Позвоните и узнайте условия покупки прямо сейчас!
06.12.2025
19 540 800 ₽
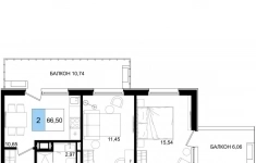
Продаются 3 комн. апартаменты, площадью 66.5 м2 в монолитной новостройке. Возможен вариант покупки с использованием ипотечных средств, есть рассрочка, возможна покупка с использованием материнского капитала, есть военная ипотека.
Жилая площадь 53.06 м2, кухня 10.65 м2, чистовая отделка с мебелью.
Квартира располагается на 4 этаже 9-этажного дома в ЖК Гостиничный комплекс «Корсаков.
Застройщик - ГК ССК, сдача дома - IV квартал 2026 года.
Дом оборудован пассажирским лифтом, закрытая территория.
Отдельная многоуровневая парковка, парковка охраняется. Обеспечение безопасности: видеонаблюдение, круглосуточная охрана. Инфраструктура: детские площадки, спортивные площадки, места для отдыха, супермаркет, рестораны, фитнес-центр, пункты бытового обслуживания, коммерческие объекты.
Вершина инноваций и роскоши, воплощение передовых технологий в строительстве и непревзойденных решений в дизайне. Первый IT-отель Корсаков - место, где каждый элемент говорит о вашем статусе. Нашим гостям и резидентам мы предлагаем непревзойденный сервис и уникальные технологические решения, делающие пребывание в Корсакове по-настоящему незабываемым.
Наш отель выделяется на фоне текущих архитектурных проектов благодаря инновационному дизайну и современным архитектурным решениям, создающим эстетическое наслаждение и узнаваемый облик.
АКЦИЯ:
Если вы рассматриваете надежные варианты для вложения средств, обратите внимание на уникальную возможность доходного актива - гостиничного комплекса «Корсаров».
Инвестируйте в номер будущего отеля на особых условиях. Ваша ключевая финансовая нагрузка на этапе строительства фиксирована - ипотечный платёж всего 35 000 рублей в месяц.
Почему это выгодно и безопасно:
Минимальные риски и чёткие расчёты: Все финансовые модели прозрачны и предсказуемы.
Полное управление профессионалами: После сдачи объекта все операционные заботы берёт на себя профессиональный отельер. С ним уже подписан долгосрочный договор, что гарантирует круглогодичную загрузку.
Пассивный доход: Ваша недвижимость будет работать на вас. Генерируемая выручка покроет все обязательные платежи (ипотеку, налоги, коммунальные услуги) и начнет приносить вам чистую прибыль.
Расчётная окупаемость инвестиций - 8 лет, после чего вы продолжаете получать регулярный доход от актива.
Предложение строго ограничено. Эти уникальные условия действуют только для первых 30 номеров. Это шанс закрепить за собой выгодную ставку и гарантированное управление.
Успейте забронировать свой номер по специальной инвестиционной ставке. Оставьте заявку, чтобы получить детальную финансовую модель, презентацию проекта и консультацию.
Аккредитованные банки: Сбербанк, Альфа-Банк, ВТБ, Банк Уралсиб, РОССИЯ, Абсолют Банк, Металлинвестбанк, РНКБ, ПСБ, Кубань Кредит, Банк ВБРР.
Позвоните и узнайте условия покупки прямо сейчас!
06.12.2025
22 942 500 ₽
Продается 2-комн. квартира, площадью 51.11 м2 в кирпичной новостройке. Возможен вариант покупки с использованием ипотечных средств, есть рассрочка, возможна покупка с использованием материнского капитала.
Жилая площадь 21.49 м2, кухня 16.1 м2, предчистовая отделка.
Квартира располагается на 4 этаже 4-этажного дома в ЖК Усадьба Гостагаевская.
Застройщик - ГК ССК, сдача дома - IV квартал 2026 года, высота потолков 2.7 м.
Дом оборудован пассажирским лифтом, закрытая территория.
Парковка автомобилей - наземная. Обеспечение безопасности: видеонаблюдение. Инфраструктура: школа, детский сад, детские площадки, спортивные площадки, места для отдыха.
На территории комплекса будут находиться собственный детский сад на 300 мест, школа на 750 учеников дом культуры и библиотека для мероприятий и досуга. Коммерческие площади, включая магазины и кафе, обеспечат жителей всеми необходимыми услугами.
Комплекс предложит спортивные площадки, беговые дорожки, места для занятий йогой и фитнесом на свежем воздухе. Приятные скверы и аллеи будут идеальны для семейных прогулок и досуга.
Территория комплекса будет благоустроена с акцентом на экологию и комфорт. Планируется озеленение с использованием местных растений, что улучшит внешний вид и создаст приятную атмосферу. Современные технологии, такие как динамическое освещение и зоны для зарядки гаджетов, сделают жизнь удобной и комфортной.
Комплекс удобно расположен вблизи основных транспортных артерий, что обеспечивает быструю связь с Анапой и другими важными точками региона Краснодар, Новороссийск, Крым. Железнодорожная станция находится всего в 2 минутах на машине, а аэропорт в 6 километрах
АКЦИЯ:
Специальная выгода за наличный расчет в ЖК «Усадьба Гостагаевская»
Масштабный проект на 27 гектарах в экологичном районе Анапы - современная усадьба для тех, кто ценит простор, гармонию и безупречный стиль.
Концепция современной усадьбы, реализованная через поквартальную застройку в едином архитектурном стиле, гарантирует и эстетическое единство, и личную приватность каждого резидента.
Ваш дом будет окружен чистой южной природой, а на территории комплекса будут разбиты «Сады четырех сезонов» для прогулок в любое время года. Море находится в шаговой доступности, а подогреваемый бассейн дополнит ощущение непрерывного отдыха.
Это настоящий мир уединения и гармонии, где все блага современной инфраструктуры - на расстоянии пары шагов, но за пределами вашего участка царит покой и природа. Грандиозный проект, который станет знаковым местом на карте Черноморского побережья.
Инвестируйте в будущее сегодня. Количество лотов на специальных условиях ограничено.
Аккредитованные банки: Абсолют Банк, Совкомбанк, Альфа-Банк, Банк ДОМ. РФ, Промсвязьбанк, Банк ВТБ, Т-Банк, Россельхозбанк, МКБ.
Позвоните и узнайте условия покупки прямо сейчас!
06.12.2025
10 477 550 ₽
Продаются 3 комн. апартаменты, площадью 66.5 м2 в монолитной новостройке. Возможен вариант покупки с использованием ипотечных средств, есть рассрочка, возможна покупка с использованием материнского капитала, есть военная ипотека.
Жилая площадь 53.06 м2, кухня 10.65 м2, чистовая отделка с мебелью.
Квартира располагается на 2 этаже 9-этажного дома в ЖК Гостиничный комплекс «Корсаков.
Застройщик - ГК ССК, сдача дома - IV квартал 2026 года.
Дом оборудован пассажирским лифтом, закрытая территория.
Отдельная многоуровневая парковка, парковка охраняется. Обеспечение безопасности: видеонаблюдение, круглосуточная охрана. Инфраструктура: детские площадки, спортивные площадки, места для отдыха, супермаркет, рестораны, фитнес-центр, пункты бытового обслуживания, коммерческие объекты.
Вершина инноваций и роскоши, воплощение передовых технологий в строительстве и непревзойденных решений в дизайне. Первый IT-отель Корсаков - место, где каждый элемент говорит о вашем статусе. Нашим гостям и резидентам мы предлагаем непревзойденный сервис и уникальные технологические решения, делающие пребывание в Корсакове по-настоящему незабываемым.
Наш отель выделяется на фоне текущих архитектурных проектов благодаря инновационному дизайну и современным архитектурным решениям, создающим эстетическое наслаждение и узнаваемый облик.
АКЦИЯ:
Если вы рассматриваете надежные варианты для вложения средств, обратите внимание на уникальную возможность доходного актива - гостиничного комплекса «Корсаров».
Инвестируйте в номер будущего отеля на особых условиях. Ваша ключевая финансовая нагрузка на этапе строительства фиксирована - ипотечный платёж всего 35 000 рублей в месяц.
Почему это выгодно и безопасно:
Минимальные риски и чёткие расчёты: Все финансовые модели прозрачны и предсказуемы.
Полное управление профессионалами: После сдачи объекта все операционные заботы берёт на себя профессиональный отельер. С ним уже подписан долгосрочный договор, что гарантирует круглогодичную загрузку.
Пассивный доход: Ваша недвижимость будет работать на вас. Генерируемая выручка покроет все обязательные платежи (ипотеку, налоги, коммунальные услуги) и начнет приносить вам чистую прибыль.
Расчётная окупаемость инвестиций - 8 лет, после чего вы продолжаете получать регулярный доход от актива.
Предложение строго ограничено. Эти уникальные условия действуют только для первых 30 номеров. Это шанс закрепить за собой выгодную ставку и гарантированное управление.
Успейте забронировать свой номер по специальной инвестиционной ставке. Оставьте заявку, чтобы получить детальную финансовую модель, презентацию проекта и консультацию.
Аккредитованные банки: Сбербанк, Альфа-Банк, ВТБ, Банк Уралсиб, РОССИЯ, Абсолют Банк, Металлинвестбанк, РНКБ, ПСБ, Кубань Кредит, Банк ВБРР.
Позвоните и узнайте условия покупки прямо сейчас!
06.12.2025
22 942 500 ₽
Продается 2-комн. квартира, площадью 51.11 м2 в кирпичной новостройке. Возможен вариант покупки с использованием ипотечных средств, есть рассрочка, возможна покупка с использованием материнского капитала.
Жилая площадь 21.49 м2, кухня 16.1 м2, предчистовая отделка.
Квартира располагается на 2 этаже 4-этажного дома в ЖК Усадьба Гостагаевская.
Застройщик - ГК ССК, сдача дома - IV квартал 2026 года, высота потолков 2.7 м.
Дом оборудован пассажирским лифтом, закрытая территория.
Парковка автомобилей - наземная. Обеспечение безопасности: видеонаблюдение. Инфраструктура: школа, детский сад, детские площадки, спортивные площадки, места для отдыха.
На территории комплекса будут находиться собственный детский сад на 300 мест, школа на 750 учеников дом культуры и библиотека для мероприятий и досуга. Коммерческие площади, включая магазины и кафе, обеспечат жителей всеми необходимыми услугами.
Комплекс предложит спортивные площадки, беговые дорожки, места для занятий йогой и фитнесом на свежем воздухе. Приятные скверы и аллеи будут идеальны для семейных прогулок и досуга.
Территория комплекса будет благоустроена с акцентом на экологию и комфорт. Планируется озеленение с использованием местных растений, что улучшит внешний вид и создаст приятную атмосферу. Современные технологии, такие как динамическое освещение и зоны для зарядки гаджетов, сделают жизнь удобной и комфортной.
Комплекс удобно расположен вблизи основных транспортных артерий, что обеспечивает быструю связь с Анапой и другими важными точками региона Краснодар, Новороссийск, Крым. Железнодорожная станция находится всего в 2 минутах на машине, а аэропорт в 6 километрах
АКЦИЯ:
Специальная выгода за наличный расчет в ЖК «Усадьба Гостагаевская»
Масштабный проект на 27 гектарах в экологичном районе Анапы - современная усадьба для тех, кто ценит простор, гармонию и безупречный стиль.
Концепция современной усадьбы, реализованная через поквартальную застройку в едином архитектурном стиле, гарантирует и эстетическое единство, и личную приватность каждого резидента.
Ваш дом будет окружен чистой южной природой, а на территории комплекса будут разбиты «Сады четырех сезонов» для прогулок в любое время года. Море находится в шаговой доступности, а подогреваемый бассейн дополнит ощущение непрерывного отдыха.
Это настоящий мир уединения и гармонии, где все блага современной инфраструктуры - на расстоянии пары шагов, но за пределами вашего участка царит покой и природа. Грандиозный проект, который станет знаковым местом на карте Черноморского побережья.
Инвестируйте в будущее сегодня. Количество лотов на специальных условиях ограничено.
Аккредитованные банки: Абсолют Банк, Совкомбанк, Альфа-Банк, Банк ДОМ. РФ, Промсвязьбанк, Банк ВТБ, Т-Банк, Россельхозбанк, МКБ.
Позвоните и узнайте условия покупки прямо сейчас!
06.12.2025
10 477 550 ₽
Продается 2-комн. квартира, площадью 51.11 м2 в кирпичной новостройке. Возможен вариант покупки с использованием ипотечных средств, есть рассрочка, возможна покупка с использованием материнского капитала.
Жилая площадь 21.49 м2, кухня 16.1 м2, предчистовая отделка.
Квартира располагается на 2 этаже 4-этажного дома в ЖК Усадьба Гостагаевская.
Застройщик - ГК ССК, сдача дома - IV квартал 2026 года, высота потолков 2.7 м.
Дом оборудован пассажирским лифтом, закрытая территория.
Парковка автомобилей - наземная. Обеспечение безопасности: видеонаблюдение. Инфраструктура: школа, детский сад, детские площадки, спортивные площадки, места для отдыха.
На территории комплекса будут находиться собственный детский сад на 300 мест, школа на 750 учеников дом культуры и библиотека для мероприятий и досуга. Коммерческие площади, включая магазины и кафе, обеспечат жителей всеми необходимыми услугами.
Комплекс предложит спортивные площадки, беговые дорожки, места для занятий йогой и фитнесом на свежем воздухе. Приятные скверы и аллеи будут идеальны для семейных прогулок и досуга.
Территория комплекса будет благоустроена с акцентом на экологию и комфорт. Планируется озеленение с использованием местных растений, что улучшит внешний вид и создаст приятную атмосферу. Современные технологии, такие как динамическое освещение и зоны для зарядки гаджетов, сделают жизнь удобной и комфортной.
Комплекс удобно расположен вблизи основных транспортных артерий, что обеспечивает быструю связь с Анапой и другими важными точками региона Краснодар, Новороссийск, Крым. Железнодорожная станция находится всего в 2 минутах на машине, а аэропорт в 6 километрах
АКЦИЯ:
Специальная выгода за наличный расчет в ЖК «Усадьба Гостагаевская»
Масштабный проект на 27 гектарах в экологичном районе Анапы - современная усадьба для тех, кто ценит простор, гармонию и безупречный стиль.
Концепция современной усадьбы, реализованная через поквартальную застройку в едином архитектурном стиле, гарантирует и эстетическое единство, и личную приватность каждого резидента.
Ваш дом будет окружен чистой южной природой, а на территории комплекса будут разбиты «Сады четырех сезонов» для прогулок в любое время года. Море находится в шаговой доступности, а подогреваемый бассейн дополнит ощущение непрерывного отдыха.
Это настоящий мир уединения и гармонии, где все блага современной инфраструктуры - на расстоянии пары шагов, но за пределами вашего участка царит покой и природа. Грандиозный проект, который станет знаковым местом на карте Черноморского побережья.
Инвестируйте в будущее сегодня. Количество лотов на специальных условиях ограничено.
Аккредитованные банки: Абсолют Банк, Совкомбанк, Альфа-Банк, Банк ДОМ. РФ, Промсвязьбанк, Банк ВТБ, Т-Банк, Россельхозбанк, МКБ.
Позвоните и узнайте условия покупки прямо сейчас!
06.12.2025
10 477 550 ₽
Продаются 3 комн. апартаменты, площадью 66.5 м2 в монолитной новостройке. Возможен вариант покупки с использованием ипотечных средств, есть рассрочка, возможна покупка с использованием материнского капитала, есть военная ипотека.
Жилая площадь 53.06 м2, кухня 10.65 м2, чистовая отделка с мебелью.
Квартира располагается на 2 этаже 9-этажного дома в ЖК Гостиничный комплекс «Корсаков.
Застройщик - ГК ССК, сдача дома - IV квартал 2026 года.
Дом оборудован пассажирским лифтом, закрытая территория.
Отдельная многоуровневая парковка, парковка охраняется. Обеспечение безопасности: видеонаблюдение, круглосуточная охрана. Инфраструктура: детские площадки, спортивные площадки, места для отдыха, супермаркет, рестораны, фитнес-центр, пункты бытового обслуживания, коммерческие объекты.
Вершина инноваций и роскоши, воплощение передовых технологий в строительстве и непревзойденных решений в дизайне. Первый IT-отель Корсаков - место, где каждый элемент говорит о вашем статусе. Нашим гостям и резидентам мы предлагаем непревзойденный сервис и уникальные технологические решения, делающие пребывание в Корсакове по-настоящему незабываемым.
Наш отель выделяется на фоне текущих архитектурных проектов благодаря инновационному дизайну и современным архитектурным решениям, создающим эстетическое наслаждение и узнаваемый облик.
АКЦИЯ:
Если вы рассматриваете надежные варианты для вложения средств, обратите внимание на уникальную возможность доходного актива - гостиничного комплекса «Корсаров».
Инвестируйте в номер будущего отеля на особых условиях. Ваша ключевая финансовая нагрузка на этапе строительства фиксирована - ипотечный платёж всего 35 000 рублей в месяц.
Почему это выгодно и безопасно:
Минимальные риски и чёткие расчёты: Все финансовые модели прозрачны и предсказуемы.
Полное управление профессионалами: После сдачи объекта все операционные заботы берёт на себя профессиональный отельер. С ним уже подписан долгосрочный договор, что гарантирует круглогодичную загрузку.
Пассивный доход: Ваша недвижимость будет работать на вас. Генерируемая выручка покроет все обязательные платежи (ипотеку, налоги, коммунальные услуги) и начнет приносить вам чистую прибыль.
Расчётная окупаемость инвестиций - 8 лет, после чего вы продолжаете получать регулярный доход от актива.
Предложение строго ограничено. Эти уникальные условия действуют только для первых 30 номеров. Это шанс закрепить за собой выгодную ставку и гарантированное управление.
Успейте забронировать свой номер по специальной инвестиционной ставке. Оставьте заявку, чтобы получить детальную финансовую модель, презентацию проекта и консультацию.
Аккредитованные банки: Сбербанк, Альфа-Банк, ВТБ, Банк Уралсиб, РОССИЯ, Абсолют Банк, Металлинвестбанк, РНКБ, ПСБ, Кубань Кредит, Банк ВБРР.
Позвоните и узнайте условия покупки прямо сейчас!
06.12.2025
22 942 500 ₽
Продается 2-комн. квартира, площадью 51.11 м2 в монолитно-кирпичной новостройке. Возможен вариант покупки с использованием ипотечных средств, есть рассрочка, возможна покупка с использованием материнского капитала.
Жилая площадь 21.49 м2, кухня 16.1 м2, предчистовая отделка.
Квартира располагается на 2 этаже 4-этажного дома в ЖК Усадьба Гостагаевская.
Застройщик - ГК ССК, сдача дома - IV квартал 2026 года.
Дом оборудован пассажирским лифтом, закрытая территория.
Парковка автомобилей - наземная. Обеспечение безопасности: видеонаблюдение. Инфраструктура: школа, детский сад, детские площадки, спортивные площадки, места для отдыха.
На территории комплекса будут находиться собственный детский сад на 300 мест, школа на 750 учеников дом культуры и библиотека для мероприятий и досуга. Коммерческие площади, включая магазины и кафе, обеспечат жителей всеми необходимыми услугами.
Комплекс предложит спортивные площадки, беговые дорожки, места для занятий йогой и фитнесом на свежем воздухе. Приятные скверы и аллеи будут идеальны для семейных прогулок и досуга.
Территория комплекса будет благоустроена с акцентом на экологию и комфорт. Планируется озеленение с использованием местных растений, что улучшит внешний вид и создаст приятную атмосферу. Современные технологии, такие как динамическое освещение и зоны для зарядки гаджетов, сделают жизнь удобной и комфортной.
Комплекс удобно расположен вблизи основных транспортных артерий, что обеспечивает быструю связь с Анапой и другими важными точками региона Краснодар, Новороссийск, Крым. Железнодорожная станция находится всего в 2 минутах на машине, а аэропорт в 6 километрах
АКЦИЯ:
Специальная выгода за наличный расчет в ЖК «Усадьба Гостагаевская»
Масштабный проект на 27 гектарах в экологичном районе Анапы - современная усадьба для тех, кто ценит простор, гармонию и безупречный стиль.
Концепция современной усадьбы, реализованная через поквартальную застройку в едином архитектурном стиле, гарантирует и эстетическое единство, и личную приватность каждого резидента.
Ваш дом будет окружен чистой южной природой, а на территории комплекса будут разбиты «Сады четырех сезонов» для прогулок в любое время года. Море находится в шаговой доступности, а подогреваемый бассейн дополнит ощущение непрерывного отдыха.
Это настоящий мир уединения и гармонии, где все блага современной инфраструктуры - на расстоянии пары шагов, но за пределами вашего участка царит покой и природа. Грандиозный проект, который станет знаковым местом на карте Черноморского побережья.
Инвестируйте в будущее сегодня. Количество лотов на специальных условиях ограничено.
Аккредитованные банки: Абсолют Банк, Совкомбанк, Альфа-Банк, Банк ДОМ. РФ, Промсвязьбанк, Банк ВТБ, Т-Банк, Россельхозбанк, МКБ.
Позвоните и узнайте условия покупки прямо сейчас!
06.12.2025
10 477 550 ₽
Продаются 3 комн. апартаменты, площадью 56.38 м2 в монолитной новостройке. Возможен вариант покупки с использованием ипотечных средств, есть рассрочка, возможна покупка с использованием материнского капитала, есть военная ипотека.
Жилая площадь 43.44 м2, кухня 10.65 м2, чистовая отделка с мебелью.
Квартира располагается на 2 этаже 9-этажного дома в ЖК Гостиничный комплекс «Корсаков.
Застройщик - ГК ССК, сдача дома - IV квартал 2026 года.
Дом оборудован пассажирским лифтом, закрытая территория.
Отдельная многоуровневая парковка, парковка охраняется. Обеспечение безопасности: видеонаблюдение, круглосуточная охрана. Инфраструктура: детские площадки, спортивные площадки, места для отдыха, супермаркет, рестораны, фитнес-центр, пункты бытового обслуживания, коммерческие объекты.
Вершина инноваций и роскоши, воплощение передовых технологий в строительстве и непревзойденных решений в дизайне. Первый IT-отель Корсаков - место, где каждый элемент говорит о вашем статусе. Нашим гостям и резидентам мы предлагаем непревзойденный сервис и уникальные технологические решения, делающие пребывание в Корсакове по-настоящему незабываемым.
Наш отель выделяется на фоне текущих архитектурных проектов благодаря инновационному дизайну и современным архитектурным решениям, создающим эстетическое наслаждение и узнаваемый облик.
АКЦИЯ:
Если вы рассматриваете надежные варианты для вложения средств, обратите внимание на уникальную возможность доходного актива - гостиничного комплекса «Корсаров».
Инвестируйте в номер будущего отеля на особых условиях. Ваша ключевая финансовая нагрузка на этапе строительства фиксирована - ипотечный платёж всего 35 000 рублей в месяц.
Почему это выгодно и безопасно:
Минимальные риски и чёткие расчёты: Все финансовые модели прозрачны и предсказуемы.
Полное управление профессионалами: После сдачи объекта все операционные заботы берёт на себя профессиональный отельер. С ним уже подписан долгосрочный договор, что гарантирует круглогодичную загрузку.
Пассивный доход: Ваша недвижимость будет работать на вас. Генерируемая выручка покроет все обязательные платежи (ипотеку, налоги, коммунальные услуги) и начнет приносить вам чистую прибыль.
Расчётная окупаемость инвестиций - 8 лет, после чего вы продолжаете получать регулярный доход от актива.
Предложение строго ограничено. Эти уникальные условия действуют только для первых 30 номеров. Это шанс закрепить за собой выгодную ставку и гарантированное управление.
Успейте забронировать свой номер по специальной инвестиционной ставке. Оставьте заявку, чтобы получить детальную финансовую модель, презентацию проекта и консультацию.
Аккредитованные банки: Сбербанк, Альфа-Банк, ВТБ, Банк Уралсиб, РОССИЯ, Абсолют Банк, Металлинвестбанк, РНКБ, ПСБ, Кубань Кредит, Банк ВБРР.
Позвоните и узнайте условия покупки прямо сейчас!
06.12.2025
19 451 100 ₽
Продаются 3 комн. апартаменты, площадью 54.28 м2 в монолитной новостройке. Возможен вариант покупки с использованием ипотечных средств, есть рассрочка, возможна покупка с использованием материнского капитала, есть военная ипотека.
Жилая площадь 36.8 м2, кухня 15.54 м2, чистовая отделка с мебелью.
Квартира располагается на 3 этаже 9-этажного дома в ЖК Гостиничный комплекс «Корсаков.
Застройщик - ГК ССК, сдача дома - IV квартал 2026 года.
Дом оборудован пассажирским лифтом, закрытая территория.
Отдельная многоуровневая парковка, парковка охраняется. Обеспечение безопасности: видеонаблюдение, круглосуточная охрана. Инфраструктура: детские площадки, спортивные площадки, места для отдыха, супермаркет, рестораны, фитнес-центр, пункты бытового обслуживания, коммерческие объекты.
Вершина инноваций и роскоши, воплощение передовых технологий в строительстве и непревзойденных решений в дизайне. Первый IT-отель Корсаков - место, где каждый элемент говорит о вашем статусе. Нашим гостям и резидентам мы предлагаем непревзойденный сервис и уникальные технологические решения, делающие пребывание в Корсакове по-настоящему незабываемым.
Наш отель выделяется на фоне текущих архитектурных проектов благодаря инновационному дизайну и современным архитектурным решениям, создающим эстетическое наслаждение и узнаваемый облик.
АКЦИЯ:
Если вы рассматриваете надежные варианты для вложения средств, обратите внимание на уникальную возможность доходного актива - гостиничного комплекса «Корсаров».
Инвестируйте в номер будущего отеля на особых условиях. Ваша ключевая финансовая нагрузка на этапе строительства фиксирована - ипотечный платёж всего 35 000 рублей в месяц.
Почему это выгодно и безопасно:
Минимальные риски и чёткие расчёты: Все финансовые модели прозрачны и предсказуемы.
Полное управление профессионалами: После сдачи объекта все операционные заботы берёт на себя профессиональный отельер. С ним уже подписан долгосрочный договор, что гарантирует круглогодичную загрузку.
Пассивный доход: Ваша недвижимость будет работать на вас. Генерируемая выручка покроет все обязательные платежи (ипотеку, налоги, коммунальные услуги) и начнет приносить вам чистую прибыль.
Расчётная окупаемость инвестиций - 8 лет, после чего вы продолжаете получать регулярный доход от актива.
Предложение строго ограничено. Эти уникальные условия действуют только для первых 30 номеров. Это шанс закрепить за собой выгодную ставку и гарантированное управление.
Успейте забронировать свой номер по специальной инвестиционной ставке. Оставьте заявку, чтобы получить детальную финансовую модель, презентацию проекта и консультацию.
Аккредитованные банки: Сбербанк, Альфа-Банк, ВТБ, Банк Уралсиб, РОССИЯ, Абсолют Банк, Металлинвестбанк, РНКБ, ПСБ, Кубань Кредит, Банк ВБРР.
Позвоните и узнайте условия покупки прямо сейчас!
06.12.2025
18 726 600 ₽
Продается 1-комн. квартира, площадью 47.39 м2 в монолитно-кирпичной новостройке. Возможен вариант покупки с использованием ипотечных средств, есть рассрочка, возможна покупка с использованием материнского капитала.
Жилая площадь 13.97 м2, кухня 20.73 м2, предчистовая отделка, комнаты изолированные.
Квартира располагается на 2 этаже 4-этажного дома в ЖК Усадьба Гостагаевская.
Застройщик - ГК ССК, сдача дома - IV квартал 2026 года, высота потолков 2.7 м.
Дом оборудован пассажирским лифтом, закрытая территория.
Парковка автомобилей - наземная. Обеспечение безопасности: видеонаблюдение. Инфраструктура: школа, детский сад, детские площадки, спортивные площадки, места для отдыха.
На территории комплекса будут находиться собственный детский сад на 300 мест, школа на 750 учеников дом культуры и библиотека для мероприятий и досуга. Коммерческие площади, включая магазины и кафе, обеспечат жителей всеми необходимыми услугами.
Комплекс предложит спортивные площадки, беговые дорожки, места для занятий йогой и фитнесом на свежем воздухе. Приятные скверы и аллеи будут идеальны для семейных прогулок и досуга.
Территория комплекса будет благоустроена с акцентом на экологию и комфорт. Планируется озеленение с использованием местных растений, что улучшит внешний вид и создаст приятную атмосферу. Современные технологии, такие как динамическое освещение и зоны для зарядки гаджетов, сделают жизнь удобной и комфортной.
Комплекс удобно расположен вблизи основных транспортных артерий, что обеспечивает быструю связь с Анапой и другими важными точками региона Краснодар, Новороссийск, Крым. Железнодорожная станция находится всего в 2 минутах на машине, а аэропорт в 6 километрах
АКЦИЯ:
Специальная выгода за наличный расчет в ЖК «Усадьба Гостагаевская»
Масштабный проект на 27 гектарах в экологичном районе Анапы - современная усадьба для тех, кто ценит простор, гармонию и безупречный стиль.
Концепция современной усадьбы, реализованная через поквартальную застройку в едином архитектурном стиле, гарантирует и эстетическое единство, и личную приватность каждого резидента.
Ваш дом будет окружен чистой южной природой, а на территории комплекса будут разбиты «Сады четырех сезонов» для прогулок в любое время года. Море находится в шаговой доступности, а подогреваемый бассейн дополнит ощущение непрерывного отдыха.
Это настоящий мир уединения и гармонии, где все блага современной инфраструктуры - на расстоянии пары шагов, но за пределами вашего участка царит покой и природа. Грандиозный проект, который станет знаковым местом на карте Черноморского побережья.
Инвестируйте в будущее сегодня. Количество лотов на специальных условиях ограничено.
Аккредитованные банки: Абсолют Банк, Совкомбанк, Альфа-Банк, Банк ДОМ. РФ, Промсвязьбанк, Банк ВТБ, Т-Банк, Россельхозбанк, МКБ.
Позвоните и узнайте условия покупки прямо сейчас!
06.12.2025
9 951 900 ₽
Продается 1-комн. квартира, площадью 46.45 м2 в монолитно-кирпичной новостройке. Возможен вариант покупки с использованием ипотечных средств, есть рассрочка, возможна покупка с использованием материнского капитала.
Жилая площадь 13.97 м2, кухня 20.73 м2, предчистовая отделка, комнаты изолированные.
Квартира располагается на 4 этаже 4-этажного дома в ЖК Усадьба Гостагаевская.
Застройщик - ГК ССК, сдача дома - IV квартал 2026 года, высота потолков 2.7 м.
Дом оборудован пассажирским лифтом, закрытая территория.
Парковка автомобилей - наземная. Обеспечение безопасности: видеонаблюдение. Инфраструктура: школа, детский сад, детские площадки, спортивные площадки, места для отдыха.
На территории комплекса будут находиться собственный детский сад на 300 мест, школа на 750 учеников дом культуры и библиотека для мероприятий и досуга. Коммерческие площади, включая магазины и кафе, обеспечат жителей всеми необходимыми услугами.
Комплекс предложит спортивные площадки, беговые дорожки, места для занятий йогой и фитнесом на свежем воздухе. Приятные скверы и аллеи будут идеальны для семейных прогулок и досуга.
Территория комплекса будет благоустроена с акцентом на экологию и комфорт. Планируется озеленение с использованием местных растений, что улучшит внешний вид и создаст приятную атмосферу. Современные технологии, такие как динамическое освещение и зоны для зарядки гаджетов, сделают жизнь удобной и комфортной.
Комплекс удобно расположен вблизи основных транспортных артерий, что обеспечивает быструю связь с Анапой и другими важными точками региона Краснодар, Новороссийск, Крым. Железнодорожная станция находится всего в 2 минутах на машине, а аэропорт в 6 километрах
АКЦИЯ:
Специальная выгода за наличный расчет в ЖК «Усадьба Гостагаевская»
Масштабный проект на 27 гектарах в экологичном районе Анапы - современная усадьба для тех, кто ценит простор, гармонию и безупречный стиль.
Концепция современной усадьбы, реализованная через поквартальную застройку в едином архитектурном стиле, гарантирует и эстетическое единство, и личную приватность каждого резидента.
Ваш дом будет окружен чистой южной природой, а на территории комплекса будут разбиты «Сады четырех сезонов» для прогулок в любое время года. Море находится в шаговой доступности, а подогреваемый бассейн дополнит ощущение непрерывного отдыха.
Это настоящий мир уединения и гармонии, где все блага современной инфраструктуры - на расстоянии пары шагов, но за пределами вашего участка царит покой и природа. Грандиозный проект, который станет знаковым местом на карте Черноморского побережья.
Инвестируйте в будущее сегодня. Количество лотов на специальных условиях ограничено.
Аккредитованные банки: Абсолют Банк, Совкомбанк, Альфа-Банк, Банк ДОМ. РФ, Промсвязьбанк, Банк ВТБ, Т-Банк, Россельхозбанк, МКБ.
Позвоните и узнайте условия покупки прямо сейчас!
06.12.2025
9 754 500 ₽
Продается 1-комн. квартира, площадью 46.45 м2 в монолитно-кирпичной новостройке. Возможен вариант покупки с использованием ипотечных средств, есть рассрочка, возможна покупка с использованием материнского капитала.
Жилая площадь 13.97 м2, кухня 20.73 м2, предчистовая отделка, комнаты изолированные.
Квартира располагается на 3 этаже 4-этажного дома в ЖК Усадьба Гостагаевская.
Застройщик - ГК ССК, сдача дома - IV квартал 2026 года, высота потолков 2.7 м.
Дом оборудован пассажирским лифтом, закрытая территория.
Парковка автомобилей - наземная. Обеспечение безопасности: видеонаблюдение. Инфраструктура: школа, детский сад, детские площадки, спортивные площадки, места для отдыха.
На территории комплекса будут находиться собственный детский сад на 300 мест, школа на 750 учеников дом культуры и библиотека для мероприятий и досуга. Коммерческие площади, включая магазины и кафе, обеспечат жителей всеми необходимыми услугами.
Комплекс предложит спортивные площадки, беговые дорожки, места для занятий йогой и фитнесом на свежем воздухе. Приятные скверы и аллеи будут идеальны для семейных прогулок и досуга.
Территория комплекса будет благоустроена с акцентом на экологию и комфорт. Планируется озеленение с использованием местных растений, что улучшит внешний вид и создаст приятную атмосферу. Современные технологии, такие как динамическое освещение и зоны для зарядки гаджетов, сделают жизнь удобной и комфортной.
Комплекс удобно расположен вблизи основных транспортных артерий, что обеспечивает быструю связь с Анапой и другими важными точками региона Краснодар, Новороссийск, Крым. Железнодорожная станция находится всего в 2 минутах на машине, а аэропорт в 6 километрах
АКЦИЯ:
Специальная выгода за наличный расчет в ЖК «Усадьба Гостагаевская»
Масштабный проект на 27 гектарах в экологичном районе Анапы - современная усадьба для тех, кто ценит простор, гармонию и безупречный стиль.
Концепция современной усадьбы, реализованная через поквартальную застройку в едином архитектурном стиле, гарантирует и эстетическое единство, и личную приватность каждого резидента.
Ваш дом будет окружен чистой южной природой, а на территории комплекса будут разбиты «Сады четырех сезонов» для прогулок в любое время года. Море находится в шаговой доступности, а подогреваемый бассейн дополнит ощущение непрерывного отдыха.
Это настоящий мир уединения и гармонии, где все блага современной инфраструктуры - на расстоянии пары шагов, но за пределами вашего участка царит покой и природа. Грандиозный проект, который станет знаковым местом на карте Черноморского побережья.
Инвестируйте в будущее сегодня. Количество лотов на специальных условиях ограничено.
Аккредитованные банки: Абсолют Банк, Совкомбанк, Альфа-Банк, Банк ДОМ. РФ, Промсвязьбанк, Банк ВТБ, Т-Банк, Россельхозбанк, МКБ.
Позвоните и узнайте условия покупки прямо сейчас!
06.12.2025
9 754 500 ₽




















