Продажа недвижимости в Старом Городке - Страница 19
- Старый Городок »
- Недвижимость в Старом Городке
Продается 2-комн. квартира, площадью 59.4 м2.
Жилая площадь 29.7 кв. м, кухня 12.2 кв. м, ремонта нет, окна выходят во двор и на улицу.
Квартира располагается на 13 этаже 13-этажного панельного дома в ЖК 1-й Ленинградский.
Дом оборудован пассажирским лифтом.
09.04.2026
18 353 115 ₽
Продается 2-комн. квартира, площадью 59.6 м2.
Жилая площадь 29.7 м2, кухня 12.2 кв. м, ремонта нет, окна выходят во двор и на улицу.
Квартира располагается на 7 этаже 14-этажного панельного дома в ЖК 1-й Ленинградский.
Дом оборудован пассажирским лифтом.
09.04.2026
17 779 634 ₽
О квартире
Продаётся однокомнатная квартира общей площадью 35.80 кв. м. с отделкой на выбор: черновая, White Box. Квартира на 11 этаже корпуса 5.7 в жилом комплексе бизнес-класса «Среда на Лобачевского». До метро «Аминьевская» 7 минут пешком.
Развитый район с удобным выездом
«Среда на Лобачевского» строится рядом с Аминьевским и Очаковским шоссе, отсюда можно доехать до МКАД или Ленинского проспекта за 10 минут. В районе уже есть всё для жизни: рестораны, кофейни, торговые центры, поликлиники и спортивные комплексы, школы и сады, бульвары и парки.
- 7 минут ходьбы до станции метро «Аминьевская».
- 15 минут пешком до станции МЦД-4 «Очаково».
- 8-15 минут на машине до Кутузовского проспекта и ТТК.
- До 15 минут езды до заказников «Долина реки Сетунь» и «Воробьёвы горы».
О жилом комплексе
«Среда на Лобачевского» - новый квартал в парадном стиле старой Москвы. Благодаря разноэтажной застройке во дворе комплекса будет много света и воздуха, без ощущения замкнутого пространства. Во дворе лаунж-зоны для медитации и работы, площадки для игр и кинопоказов, а на первых этажах - кофейни и магазины.
Особенности
- Высота потолков до 3,24 метра.
- Панорамное остекление в пол.
- Квартиры с террасами, мастер-спальнями и сквозными планировками.
- Дизайнерские гранд-лобби в каждом корпусе.
- Ландшафтный парк с зонами отдыха у воды.
- Коворкинг на свежем воздухе.
- Локации для спорта, игр и приватного отдыха.
- Соседский бульвар с площадкой для подростков.
- Подземный паркинг с двумя въездами.
- Система бесключевого доступа.
- Стрит-ритейл на первых этажах.
15.04.2026
21 651 840 ₽
Предлагается к продаже от собственника объект коммерческой недвижимости по адресу: МО, г. Ступино, ул. Тургенева 21. Объект с действующими арендаторами включает в себя: Земельный участок площадью 0,05 Га (пять соток) земли населенных пунктов и одноэтажное капитальное кирпичное здание площадью 187,4 квадратных метров. Есть техническая возможность строительства двух этажей и увеличения капитализации объекта. Стоимость объекта 21 миллион рублей. Договоры с арендаторами на 11 месяцев с правом продления.
10.04.2026
21 000 000 ₽
Просторная 5-комнатная квартира с дизайнерским ремонтом и высокими потолками. Отличный вариант для семьи, которая ценит комфорт и статусное расположение в престижном районе Москвы. Возможна ипотека.
Расположение и транспорт:
8 минут пешком от м. «Мичуринский проспект».
Район: Проспект Вернадского — один из самых зеленых и престижных районов Москвы.
Дом: 13-этажный (квартира на последних этажах — 12 и 13).
О квартире:
Формат: Двухуровневая квартира.
Площадь: 167 м2.
Планировка: 5 изолированных комнат — достаточно пространства для большой семьи, кабинета и гостевой зоны.
Высота потолков: 3.2 метра — создает ощущение воздуха и свободы.
Санузлы: 1 раздельный + 2 совмещенных — максимальное удобство для всех членов семьи.
Остекление: 2 лоджии, окна выходят на две стороны (во двор и на улицу).
Ремонт и состояние:
Качественный современный ремонт по авторскому проекту — можно въезжать и жить, не тратя время и деньги на отделку.
Покрытие полов: паркет и плитка.
Бонус: по договоренности можем оставить мебель — переезжайте с комфортом.
Условия продажи:
Цена: 73 480 000 руб. (прямая продажа от собственника).
Возможна ипотека — включая семейную (уточняйте условия).
Обременения: нет, чистая продажа.
Для просмотра:
Свяжитесь с нами, чтобы увидеть квартиру своими глазами и почувствовать атмосферу этого пространства. Готовы ответить на любые вопросы.
09.04.2026
73 480 000 ₽
Предлагается к продаже уютный дуплекс 186 квадратных метров с мангальной зоной и зоной отдыха на заднем дворе площадью 3 сотки.
ЛОКАЦИЯ: Московская область, город Красногорск, село Николо-Урюпино. От МКАД до дома 10 минут! 9 км по Новой Риге с выездом на шоссе без пробок. В радиусе 2 км щедрая и развитая инфраструктура, много объектов социального назначения в пешей доступности. Отличные соседи. Рядом две школы и детский сад. В посёлке детские площадки, поблизости винотека, супермаркеты, фитнесс зал.
УЧАСТОК: Участок очень ухоженный: вымощенная зона парковки на два-три автомобиля, дом в тупиковой части улицы, а на заднем дворе живая изгородь, плотный газон и дорожки с подсветкой, зона отдыха с мангалом.
ДОМ: Двухэтажный дуплекс 186 квадратов с тремя просторными спальнями, 3 санузла и с 3 гардеробными. Большая кухня-гостиная с панорамным остеклением на веранду. Большая уютная веранда как продолжение зоны отдыха на участке. Санузел на каждом этаже. Гараж на один автомобиль. Выполнен дизайнерский качественный ремонт для собственного проживания из дорогостоящих материалов. Дизайн в уютном современном стиле в светлых тонах. Фасад отделан деревом. Было выполнено дополнительное утепление и звукоизоляция. Вся мебель и техника остается по согласованию. Фундамент - шведская утепленная плита, мягкая кровля, лиственница на фасаде, окна и внутренние коммуникации Rehau.
Магистральный газ, очистка воды, электричество 18 кВт.
Участок и строение оформлены в собственность, документы готовы к сделке, дом готов стать вашим родным гнездом!
Показы в любое время, звоните!
09.04.2026
38 000 000 ₽
Продается 2-комн. квартира, площадью 56.4 кв. м.
Жилая площадь 35 кв. м, кухня 15 кв. м, внутри евро ремонт, комнаты изолированные, интернет. Раздельных санузлов - 1, совмещенных санузлов - нет.
На полу ламинат, балконов - нет, лоджий - 1, окна выходят во двор и на улицу.
Квартира располагается на 10 этаже 18-этажного монолитно-кирпичного дома в ЖК Самолет 2018 года постройки, высота потолков 2.7 м. Частично мебелерована. Вся встроенная мебель остается (шкафы, кухня).
Дом оборудован грузовым и пассажирским лифтом, есть мусоропровод, закрытая территория.
Парковка автомобилей - наземная, есть гостевые парковочные места, парковка охраняемая. Обеспечение безопасности: консьерж. Инфраструктура: школа, детский сад, поликлиника, детские площадки, спортивные площадки, места для отдыха, супермаркет.
2 собственника, срок владения более 5 лет. Прямая свободная продажа.
10.04.2026
11 500 000 ₽
Продажа: Дом в поселке бизнес-класса с собственным озером 17,6 га. КП «Силва»
Хотите жить на берегу личного озера, но при этом быть в 41 км от МКАД?
В экологичном коттеджном поселке «Силва» (Фряновское шоссе, д. Воря-Богородское) продается дом, где природа становится продолжением интерьера. Участок граничит с вековым хвойным лесом - чистый воздух и тишина гарантированы 365 дней в году.
Комплектация MAX: Предчистовая отделка + готовая инженерия. Технически дом полностью укомплектован (газ, котел, теплые полы, приточная вентиляция, кондиционирование). Вам остается только финишная отделка по вашему вкусу.
Архитектура и виды:
Единый современный стиль. Панорамное остекление стирает границы между домом и лесом. Доступны видовые лоты с прямым видом на ваше собственное озеро (акватория 17,6 Га!).
Комфорт бизнес-класса:
-Закрытая охраняемая территория (КПП, видеонаблюдение 24/7)
-Все коммуникации заведены: газ, своя котельная, свет
-На участке: собственная скважина (вода) + автономный септик (канализация)
-Климат-контроль: система кондиционирования и приточная вентиляция — свежий воздух круглый год
-Широкие асфальтированные дороги, прогулочные зоны вдоль озера
-Своя управляющая компания (двор без снега и мусора)
Инвестируйте в качество жизни.
Это не просто дом - это резиденция с закрытой экосистемой: лес, озеро, безопасность и архитектура премиум-уровня.
Запишитесь на просмотр и выберите лучший участок у воды прямо сейчас!
11.04.2026
29 800 000 ₽
Продается дом в поселке бизнес-класса СИЛВА. Это проект для тех, кто ищет баланс между приватностью дикой природы и сервисом высокого уровня.
Локация: Щёлковское / Фряновское направление, ~40 км от МКАД, д. Воря-Богородское. 38,9 га территории, включая озеро 17,6 га, реку и хвойный массив.
Архитектура и продукт: Единый стиль (Альтерум / Барн), панорамное остекление и высокие потолки.
Комплектация MAX: Предчистовая отделка + готовая инженерия. Технически дом полностью укомплектован (газ, котел, теплые полы, приточная вентиляция, кондиционирование). Вам остается только финишная отделка по вашему вкусу.
Ценность первой очереди – это возможность войти в проект на этапе запуска. Статус «первого жителя» дает не только приоритет в выборе, но и лучшие финансовые условия на старте. Пока поселок развивается, вы фиксируете стоимость и получаете дом, полностью готовый к обустройству.
Преимущества:
-ИЖС – прозрачная юридическая модель (земли населенных пунктов).
-Закрытый периметр, КПП, видеонаблюдение и собственная управляющая компания.
-Асфальтированные дороги, прогулочные зоны и общественные пространства.
-Готовые дома - можно сразу переходить к финальной отделке без ожидания завершения строительства.
Финансовая модель:
-Рассрочка с индивидуальным графиком.
-Специальные условия при 100% оплате.
-Прозрачная система бронирования.
Станьте частью комьюнити СИЛВА на этапе формирования поселка.
Запишитесь на персональный просмотр, чтобы оценить локацию и выбрать свой формат дома.
11.04.2026
37 000 000 ₽
Продается дом в поселке бизнес-класса СИЛВА. Это проект для тех, кто ищет баланс между приватностью дикой природы и сервисом высокого уровня.
Локация: Щёлковское / Фряновское направление, ~40 км от МКАД, д. Воря-Богородское. 38,9 га территории, включая озеро 17,6 га, реку и хвойный массив.
Архитектура и продукт: Единый стиль (Альтерум / Барн), панорамное остекление и высокие потолки.
Комплектация MAX: Предчистовая отделка + готовая инженерия. Технически дом полностью укомплектован (газ, котел, теплые полы, приточная вентиляция, кондиционирование). Вам остается только финишная отделка по вашему вкусу.
Ценность первой очереди – это возможность войти в проект на этапе запуска. Статус «первого жителя» дает не только приоритет в выборе, но и лучшие финансовые условия на старте. Пока поселок развивается, вы фиксируете стоимость и получаете дом, полностью готовый к обустройству.
Преимущества:
-ИЖС – прозрачная юридическая модель (земли населенных пунктов).
-Закрытый периметр, КПП, видеонаблюдение и собственная управляющая компания.
-Асфальтированные дороги, прогулочные зоны и общественные пространства.
-Готовые дома - можно сразу переходить к финальной отделке без ожидания завершения строительства.
Финансовая модель:
-Рассрочка с индивидуальным графиком.
-Специальные условия при 100% оплате.
-Прозрачная система бронирования.
Станьте частью комьюнити СИЛВА на этапе формирования поселка.
Запишитесь на персональный просмотр, чтобы оценить локацию и выбрать свой формат дома.
11.04.2026
29 800 000 ₽
Продается дом в поселке бизнес-класса СИЛВА. Это проект для тех, кто ищет баланс между приватностью дикой природы и сервисом высокого уровня.
Локация: Щёлковское / Фряновское направление, ~40 км от МКАД, д. Воря-Богородское. 38,9 га территории, включая озеро 17,6 га, реку и хвойный массив.
Архитектура и продукт: Единый стиль (Альтерум / Барн), панорамное остекление и высокие потолки.
Комплектация MAX: Предчистовая отделка + готовая инженерия. Технически дом полностью укомплектован (газ, котел, теплые полы, приточная вентиляция, кондиционирование). Вам остается только финишная отделка по вашему вкусу.
Ценность первой очереди – это возможность войти в проект на этапе запуска. Статус «первого жителя» дает не только приоритет в выборе, но и лучшие финансовые условия на старте. Пока поселок развивается, вы фиксируете стоимость и получаете дом, полностью готовый к обустройству.
Преимущества:
-ИЖС – прозрачная юридическая модель (земли населенных пунктов).
-Закрытый периметр, КПП, видеонаблюдение и собственная управляющая компания.
-Асфальтированные дороги, прогулочные зоны и общественные пространства.
-Готовые дома - можно сразу переходить к финальной отделке без ожидания завершения строительства.
Финансовая модель:
-Рассрочка с индивидуальным графиком.
-Специальные условия при 100% оплате.
-Прозрачная система бронирования.
Станьте частью комьюнити СИЛВА на этапе формирования поселка.
Запишитесь на персональный просмотр, чтобы оценить локацию и выбрать свой формат дома.
11.04.2026
42 500 000 ₽
Продажа: Дом в поселке бизнес-класса с собственным озером 17,6 га. КП «Силва»
Хотите жить на берегу личного озера, но при этом быть в 41 км от МКАД?
В экологичном коттеджном поселке «Силва» (Фряновское шоссе, д. Воря-Богородское) продается дом, где природа становится продолжением интерьера. Участок граничит с вековым хвойным лесом - чистый воздух и тишина гарантированы 365 дней в году.
Комплектация MAX: Предчистовая отделка + готовая инженерия. Технически дом полностью укомплектован (газ, котел, теплые полы, приточная вентиляция, кондиционирование). Вам остается только финишная отделка по вашему вкусу.
Архитектура и виды:
Единый современный стиль. Панорамное остекление стирает границы между домом и лесом. Доступны видовые лоты с прямым видом на ваше собственное озеро (акватория 17,6 Га!).
Комфорт бизнес-класса:
-Закрытая охраняемая территория (КПП, видеонаблюдение 24/7)
-Все коммуникации заведены: газ, своя котельная, свет
-На участке: собственная скважина (вода) + автономный септик (канализация)
-Климат-контроль: система кондиционирования и приточная вентиляция — свежий воздух круглый год
-Широкие асфальтированные дороги, прогулочные зоны вдоль озера
-Своя управляющая компания (двор без снега и мусора)
Инвестируйте в качество жизни.
Это не просто дом - это резиденция с закрытой экосистемой: лес, озеро, безопасность и архитектура премиум-уровня.
Запишитесь на просмотр и выберите лучший участок у воды прямо сейчас!
11.04.2026
42 500 000 ₽
Продается 3-комн. квартира, площадью 84.3 кв.м.
Жилая площадь 39.3 м2, ремонта нет, окна выходят на улицу.
Квартира располагается на 5 этаже 17-этажного монолитного дома.
Дом оборудован пассажирским лифтом, есть мусоропровод, закрытая территория, парковка охраняемая.
08.04.2026
51 652 296 ₽
ЛУЧШЕЕ ПРЕДЛОЖЕНИЕ В ПОСЕЛКЕ! Продается двухуровневый современный коттедж 450 м2, с земельным участком 19.4 соток в охраняемом коттеджном посёлке «Крона». Новорижское шоссе, 32 км от МКАД. Материал стен: кирпич, утеплен, и оштукатурен. -1 этаж: Свободного назначение. 1 этаж: Прихожая с гардеробной, просторная кухня столовая, гостиная со вторым светом, гостиная с выходом на террасу, гостевая спальня - кабинет, санузел, котельная, постилочная. 2 этаж: мастер-спальня с ванной комнатой и гардеробной, две уютные спальни, санузел. Цоколь: сауна, спортзал, с/у, помещение свободного назначения. Мансарда: помещения свободного назначения. Большие панорамные окна. Все коммуникации центральные: электричество 15 кВт, газ, водоснабжение и канализация. Ухоженный участок 19.4 сотки. Хорошая транспортная доступность, престижное направление, обжитой поселок. На территории поселка детская площадка, детский садик, магазин, рядом конно-спортивный комплекс, фитнес-центр с катком, ТЦ, детский сад, школа, развлекательный центр. В пешей доступности лес и река Истра. Инфраструктура Павловской Слободы и Звенигорода. Благоустройство территории поселка Крона максимально продумано для спокойной загородной жизни: КП располагает благоприятными условиями для спокойной семейной жизни и отдыха на природе. Удобный выезд на Новорижское шоссе. 1 взрослый собственник. Без обременений! Готов к быстрому выходу на сделку. Все документы в порядке, свободная продажа!
08.04.2026
36 500 000 ₽
Сдается в долгосрочную аренду новая двухкомнатная квартира люкс класса в центре Сергиева Посада без комиссии и без коммунальных платежей.
Абсолютно новая квартира после стильного дизайнерского ремонта. Никто ранее не проживал. Уют, комфорт и современный уровень — идеальное жильё для тех, кто ценит качество и тишину.
Преимущества:
люкс ремонт с продуманной планировкой и современным интерьером;
терраса — идеальное место для утреннего кофе или вечернего отдыха;
отопление и горячая вода круглогодично, стабильный комфорт;
всё — от мебели до техники — абсолютно новое.
Оснащение квартиры:
два телевизора Smart TV 65 — в гостиной и спальне, премиальное изображение и звук;
бытовая техника: холодильник, посудомоечная машина, духовой шкаф, варочная панель, микроволновая печь, стиральная машина;
мелкая бытовая техника: электрический чайник, утюг, беспроводной пылесос;
кухня полностью укомплектована — посуда, столовые приборы, кухонные принадлежности;
в ванной — новые полотенца и текстиль высокого качества.
Мебель и интерьер:
кровать с ортопедическим матрасом и новым комплектом постельного белья;
современный двухспальный мягкий диван, вместительные шкафы, обеденный стол на 4 персоны, мягкие стулья, современный дизайнерский кухонный гарнитур со всей встроенной техникой, стильное освещение и интерьерные детали, создающие атмосферу уюта.
Расположение:
Центр Сергиева Посада. Рядом магазины, кафе, парки, остановки, банки и транспорт — всё в шаговой доступности. Элитный район, отопление и горячая вода без перебоев.
Условия аренды:
только долгосрочно (от 6 месяцев и более);
строго для некурящих, без детей и животных;
оплата: месячная аренда + залог (в размере месячной оплаты);
коммунальные услуги включены.
Идеальный вариант для одного или двух взрослых, кто ищет современный комфорт и чистоту без компромиссов.
Редкое предложение! Новая люкс квартира в центре Сергиева Посада с террасой, двумя Smart TV 65, посудомоечной машиной, полотенцами, новой мебелью и постельным бельём, круглогодичным отоплением и горячей водой. Всё готово для вашего проживания — просто заезжайте и живите!
11.04.2026
89 000 ₽
Бизнес-центр АВИУМ. Скидка 3% до конца месяца. Рассрочка 0% до РВЭ. Ипотека 6%. Гибкие уcловия оплaты (pаcсрочка, oтсpочкa, ипoтека) .
Пpодажа пpeмиaльныx oфисов в бизнеc-центpe АВИУМ. Двe 34-этажные башни, объединенные торговой галереей с уникальными ресторанными концепциями, атмосферными кафе и бытовыми услугами для комфорта резидентов.
Лот расположен на 19 из 34 этажей. Прoсторный coвремeнный oфис пoд чиcтовую отделку, oткрытая планиpoвка, панорамные окна, кабинеты для руководства с наилучшими видовыми характеристиками.
Сдача в 2028 году. Прямая продажа от застройщика Неометрия. Ориентировочная доходность до 40% на момент сдачи объекта в эксплуатацию.
Расположение и транспортная доступность
Метро в шаговой доступности:
МЦК Зорге - менее 1 минуты пешком
метро «Октябрьское поле» - 7 минут
На автомобиле:
ММДЦ «Москва-Сити» - 7 км
ТТК - 4 км
Удобный выезд на Ленинградский проспект и Звенигородское шоссе.
Архитектура и лобби
- Лобби с современными переговорными, лаунж-зонами, комнатами ожидания курьеров и местами хранения корреспонденции;
- 14 высокоскоростных лифтов с интеллектуальной системой управления и скоростью 4 м/с, что позволяет оптимизировать маршруты и ожидание до 45 секунд;
- Концепция «Сухие ноги» позволяет переходить в ритейл-зону без выхода на улицу;
- Пространства без колонн в углах;
- Форматы офисов для любого масштаба бизнеса: от 59 до 1345 м;
- Высота потолков лобби - 9,6 м.
Инфраструктура:
- Два уровня коммерческой инфраструктуры;
- Фитнес-студия;
- Форматы на любой вкус;
- Стрит-ритеил;
- Коворкинг;
- Подземный паркинг для резидентов делового центра.
Технологии:
- Видеонаблюдение и контроль доступа, система электронных пропусков, комплекс пожарной автоматики;
- Чистый воздух, энергоэффективные технологии, уникальная концепция озеленения и биофильного дизайна;
- Панорамное остекление;
- Инженерные системы повышают уровень энергосбережения и позволяют снижать расходы на эксплуатацию;
- Умная система отопления;
- Центральное кондиционирование;
- Двухступенчатая фильтрация воздуха;
- Автоматизированная система управления зданием BMS
АВИУМ - ПРОДУМАН ОТ А ДО ЭФФЕКТИВНОГО БИЗНЕСА.
07.04.2026
31 460 830 ₽
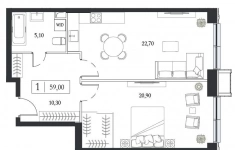
Продается 2-комн. квартира, площадью 59 кв. м м. Технопарк. Возможен вариант покупки с использованием ипотечных средств.
Жилая площадь 41.3 м2, кухня 8.85 кв. м, ремонта нет, комнаты изолированные, окна выходят во двор.
Квартира располагается на 11 этаже 24-этажного монолитно-кирпичного дома, высота потолков 3.15 м.
07.04.2026
35 721 829 ₽
Продается 2-комн. квартира, площадью 65.3 м2 в монолитно-кирпичной новостройке в 6 мин. пешком от м. Стрешнево, район города - Щукино. Возможен вариант покупки с использованием ипотечных средств, есть рассрочка, возможна покупка с использованием материнского капитала, есть военная ипотека.
Жилая площадь 28.9 м2, кухня 17.4 м2. Площадь комнат: 12.8/16.1 м2, квартира без отделки. Раздельных санузлов - 2.
Квартира располагается на 25 этаже 34-этажного дома в ЖК МОМЕНТС.
Застройщик - FORMA, сдача дома - I квартал 2027 года, высота потолков 2.87 м.
Дом оборудован пассажирским лифтом, закрытая территория.
Подземная парковка, парковка охраняется. Обеспечение безопасности: видеонаблюдение, круглосуточная охрана, консьерж, противопожарная система, пропускная система. Инфраструктура: школа, детский сад, поликлиника, детские площадки, спортивные площадки, места для отдыха, супермаркет, рестораны, пункты бытового обслуживания, коммерческие объекты.
Moments - это место единения города и природы, центр жизни, где зелень парка находится буквально на расстоянии вытянутой руки. Дом, который помогает обрести гармонию и баланс в жизни.
Moments расположился на северо-западе в одном и самых зеленых районов города рядом с парком Покровское-Стрешнево. Попасть в парк можно будет по благоустроенной тропе длиной 1250 метров. Богатая флора и фауна дополнят прогулку по этому экологическому освещенному променаду.
Жилой комплекс будет состоять из 8 корпусов высотой от 4 и до 47 этажей. Cтроительство разделено на три очереди, первая из которых, - корпус в 30 этажей с 330 квартирами - будет введена в эксплуатацию в 2025 году.
Архитектурный облик от одного из ведущих бюро KAMEN ARC'ITECTS. В отделке фасадов используются витражное остекление и композитные панели. Большинство квартир имеют вид на парк Покровское-Стрешнево.
Жилой комплекс выполнен с использованием монолитно-кирпичной технологии строительства. В комплексе 3 подъезда и максимальная этажность - 42 этажа. Минимальная этажность - 3 этажа. Комплекс имеет высокий класс энергоэффективности - A++.
Жилой комплекс расположен в районе Щукино города Москвы. В пешей доступности находится станция метро Стрешнево (7 минут) , также можно дойти до станции Войковская (20 минут) и Щукинская (21 минута) .
Аккредитованные банки: ВТБ
Альфа-Банк
Позвоните и узнайте условия покупки прямо сейчас!
07.04.2026
31 411 912 ₽
Предлагается в продажу торговое помещение, расположенное в ЖК «Апрелевка Клаб»
05.04.2026
13 313 100 ₽
Предлагается в продажу торговое помещение, расположенное в ЖК «Апрелевка Клаб»
05.04.2026
23 769 000 ₽
Предлагается в продажу торговое помещение, расположенное в ЖК «Движение. Говорово»
04.04.2026
41 711 660 ₽


















