Продать квартиру в Софрино - Страница 14
- Софрино »
- Недвижимость
- » Квартиры
- » Продажа квартир в Софрино
Продается просторная квартира площадью 178.90 м2 в жилом комплексе РЕКА. Квартира находится в 1 секции корпуса 3 (будет введен в эксплуатацию в 4 кв. 2026) . Этаж 9-й из 16.
В квартире продуманная функциональная планировка с просторной кухней 27.80 м2. Жилая площадь - 73.60 м2. Высота потолка от 3,65 м. Изолированные комнаты, 5 санузлов(1 раздельный и 4 совмещенных) . Окна на смежные стороны. Виды на природный парк и реку.
РЕКА - клубный дом от Донстрой на западе Москвы, у границы природного заповедника "Долина реки Сетунь", по соседству с МГУ и МГИМО, дипломатическими представительствами зарубежных стран. В 5 минутах ходьбы находится станция метро "Мичуринский проспект", от которой до центра можно доехать за 15 минут. Также 15 минут понадобится, чтобы добраться на автомобиле до Садового кольца.
Прямо из дома можно попасть в природную часть грандиозного парка "Событие". Здесь созданы детские игровые площадки "Луг" и "Лес", большая воркаут-зона, поле для командных видов спорта, площадка для пикников, смотровые площадки с великолепными видами, летний амфитеатр для лекториев и летняя школа.
Архитектурный проект дома выполнен в стиле современной классики: фасады с облицовкой из натурального камня и металлическими декоративными элементами.
В доме представлены элитные клубные резиденции. Одна из секций целиком состоит из квартир с финишной авторской отделкой: дизайнерские интерьеры, итальянские кухни, премиальная бытовая техника и сантехника. В наличии имеются пентхаусы с террасами и каминами.
В непосредственной близости от дома предусмотрены школы, детские сады, магазины, фитнес-центры, кафе и рестораны, медицинские центры - все, что необходимо для жизни.
Закрытый двор без машин обеспечен круглосуточной охраной и системами контроля доступа. Двор создан как ландшафтное продолжение окружающих природных парков и зонирован для различных видов отдыха, детских игр, занятий спортом.
Работает шоурум.
Позвоните и запишитесь на показ квартиры.
27.02.2026
192 854 200 ₽
Продается 3-комн. квартира, площадью 150 м2 в монолитной новостройке в 14 мин. пешком от м.Мичуринский проспект, район города - Раменки. Возможен вариант покупки с использованием ипотечных средств, есть рассрочка, возможна покупка с использованием материнского капитала, есть военная ипотека.
Жилая площадь 57.2 м2, кухня 34.5 м2, квартира без отделки, комнаты изолированные. Раздельных санузлов - 2, лоджий - 1, окна выходят во двор.
Квартира располагается на 9 этаже 16-этажного дома в ЖК Река.
Застройщик - ДОНСТРОЙ, сдача дома - IV квартал 2026 года, высота потолков 3.65 м.
Дом оборудован пассажирским лифтом, есть мусоропровод, закрытая территория.
Подземная парковка, парковка охраняется. Обеспечение безопасности: круглосуточная охрана. Инфраструктура: школа, детский сад, поликлиника, детские площадки, спортивные площадки, места для отдыха.
Река-3 - клубный дом от Донстрой на западе Москвы, у границы природного заповедника. Уникальное преимущество дома - ощущение загородной жизни в 15 минутах езды от центра столицы, прямо у парка и с видами на природу.
Река-3 - клубный дом переменной высотности от 9 до 12 этажей. Фасад дома в стиле «современная классика» облицован натуральным камнем и с первого взгляда впечатляет элегантной солидностью. В парадном лобби — потолки до 9,9 м, панорамное остекление «в пол», дизайнерские интерьеры и детский клуб. Архитектурная концепция дома создана известным московским архитектором Павлом Андреевым специально для РЕКИ: большинство окон обращено на парк.
Река-3 находится в престижном районе Раменки , по соседству с МГУ и МГИМО, дипломатическими представительствами зарубежных стран, крупными парками и природными заказниками («Долина Сетунь», «Воробьевы горы», Парк Победы, Парк 50-летия Октября и Ботанический сад МГУ). В 5 минутах ходьбы - станция метро «Мичуринский проспект», от которой до центра можно доехать за 15 минут. Также 15 минут понадобится, чтобы добраться на автомобиле до Садового кольца. В 10 минутах езды находятся МКАД и ТТК, а в 25 минутах езды — аэропорт «Внуково».
Позвоните и узнайте условия покупки прямо сейчас!
27.02.2026
156 750 000 ₽
Продается студия, площадью 24.6 м2 в монолитной новостройке в 12 мин. пешком от м. Аминьевская, район города - Очаково-Матвеевское. Возможен вариант покупки с использованием ипотечных средств, есть рассрочка.
Жилая площадь 11.3 м2, кухня 5 м2, предчистовая отделка, комнаты изолированные.
Квартира располагается на 13 этаже 13-этажного дома в ЖК Среда на Лобачевского.
Застройщик - Среда, сдача дома - II квартал 2027 года, высота потолков 2.92 м.
Дом оборудован пассажирским лифтом.
Подземная парковка. Инфраструктура: детские площадки, спортивные площадки.
«Среда на Лобачевского» полностью соответствует критериям современного жилого пространства. Взяв за основу рациональный подход, мы гармонично соединили дизайн, актуальные тренды и функциональность. Продуманный современный экстерьер и функциональные планировки внутри, приватные пространства и разнообразные досуговые зоны для каждого члена семьи - все это «Среда на Лобачевского».
Район отлично развит и наполнен жизнью, здесь уже есть вся необходимая инфраструктура- детские сады, школы, медучреждения, торговые центры, благоустроены парки для прогулок и отдыха, удобен и легкодоступен городской транспорт.
Рядом расположены учебные корпуса крупных университетов - МГУ, МГИМО и РАНХиГС. Школы и детские сады в районе занимают высокие позиции в городских рейтингах, поэтому вам не придется беспокоиться о качестве образования детей. Как и об отдыхе: поблизости расположены живописные пруды, реки и парки. Это Парк Олимпийской деревни, Парк имени 50-летия Октября, Мещерский парк и Очаковские пруды. Теперь поставить галочки в еженедельном чек-листе «спорт-прогулки-встречи с друзьями» можно, не покидая любимый район.
Особое внимание в проекте уделяется созданию функциональных пространств не только внутри дома, но и за его пределами. В ландшафтном парке «Среды на Лобачевского» расположены крытые зоны для спокойного времяпровождения, места для активного отдыха и спорта, коворкинг, соседский комьюнити-центр, водные объекты.
-Ландшафтный парк во дворе.
-Водный сад с зонами отдыха.
-Зоны коворкинга.
-Дизайнерские гранд-лобби.
-Бесключевой доступ.
-Подземный паркинг.
СПЕЦ. ПРЕДЛОЖЕНИЕ!
Рассрочка с платежом 200 000 руб. /мес.
Специальная программа рассрочки для покупки квартир в корпусах 5.5-5.8.
Условия программы:
Первый взнос: 30%
Ежемесячный платеж: 200 000 рублей (фиксированный на весь срок)
Срок: 18 месяцев
Предложение действует на ограниченный пул квартир.
Аккредитованные банки: Совкомбанк, Альфа-Банк, Банк ДОМ. РФ, Банк ВТБ, Т-Банк, МКБ
Позвоните и узнайте условия покупки прямо сейчас!
05.03.2026
20 127 720 ₽
Продается 2-комн. квартира, площадью 53.4 м2 в монолитной новостройке в 12 мин. пешком от м. Аминьевская, район города - Очаково-Матвеевское. Возможен вариант покупки с использованием ипотечных средств, есть рассрочка.
Жилая площадь 36.6 м2, кухня 5.9 м2, квартира без отделки, комнаты изолированные.
Квартира располагается на 4 этаже 27-этажного дома в ЖК Среда на Лобачевского.
Застройщик - Среда, сдача дома - IV квартал 2027 года, высота потолков 2.92 м.
Дом оборудован пассажирским лифтом.
Подземная парковка. Инфраструктура: детские площадки, спортивные площадки.
«Среда на Лобачевского» полностью соответствует критериям современного жилого пространства. Взяв за основу рациональный подход, мы гармонично соединили дизайн, актуальные тренды и функциональность. Продуманный современный экстерьер и функциональные планировки внутри, приватные пространства и разнообразные досуговые зоны для каждого члена семьи - все это «Среда на Лобачевского».
Район отлично развит и наполнен жизнью, здесь уже есть вся необходимая инфраструктура- детские сады, школы, медучреждения, торговые центры, благоустроены парки для прогулок и отдыха, удобен и легкодоступен городской транспорт.
Рядом расположены учебные корпуса крупных университетов - МГУ, МГИМО и РАНХиГС. Школы и детские сады в районе занимают высокие позиции в городских рейтингах, поэтому вам не придется беспокоиться о качестве образования детей. Как и об отдыхе: поблизости расположены живописные пруды, реки и парки. Это Парк Олимпийской деревни, Парк имени 50-летия Октября, Мещерский парк и Очаковские пруды. Теперь поставить галочки в еженедельном чек-листе «спорт-прогулки-встречи с друзьями» можно, не покидая любимый район.
Особое внимание в проекте уделяется созданию функциональных пространств не только внутри дома, но и за его пределами. В ландшафтном парке «Среды на Лобачевского» расположены крытые зоны для спокойного времяпровождения, места для активного отдыха и спорта, коворкинг, соседский комьюнити-центр, водные объекты.
-Ландшафтный парк во дворе.
-Водный сад с зонами отдыха.
-Зоны коворкинга.
-Дизайнерские гранд-лобби.
-Бесключевой доступ.
-Подземный паркинг.
СПЕЦ. ПРЕДЛОЖЕНИЕ!
Рассрочка с платежом 200 000 руб. /мес.
Специальная программа рассрочки для покупки квартир в корпусах 5.5-5.8.
Условия программы:
Первый взнос: 30%
Ежемесячный платеж: 200 000 рублей (фиксированный на весь срок)
Срок: 18 месяцев
Предложение действует на ограниченный пул квартир.
Аккредитованные банки: Совкомбанк, Альфа-Банк, Банк ДОМ. РФ, Банк ВТБ, Т-Банк, МКБ
Позвоните и узнайте условия покупки прямо сейчас!
05.03.2026
28 649 100 ₽
В рамках процедуры банкротства реализуется квартира по адресу: Московская область, г. Железнодорожный, ул. Чаплыгина, д. 1, кв. 84. Кадастровый номер: 50: 50: 0000000: 11646Общей площадью: 121,8 кв. м
Прием заявок на ЭТП "Уральская электронная торговая площадка", задаток 10%. Специалисты Банка сопровождают процедуру участия в торгах "под ключ": - регистрация на ЭТП;- подача заявки;- торги;- сопровождение сделки купли-продажи. Все вопросы можно уточнить на сайте активов банка Portal-DA. Либо обращаться по телефону в будние дни с 09: 00 до 18: 00 по МСК.
16.12.2025
6 560 056 ₽
Продается 5-комн. квартира, площадью 179.4 м2 в монолитной новостройке в 14 мин. пешком от м.Мичуринский проспект, район города - Раменки. Возможен вариант покупки с использованием ипотечных средств, есть рассрочка, возможна покупка с использованием материнского капитала, есть военная ипотека.
Жилая площадь 99.5 м2, кухня 16.2 м2. Площадь комнат: 33.2/21.5/15.2/14.8/14.8 м2, квартира без отделки, комнаты изолированные. Раздельных санузлов - 2, лоджий - 1.
Квартира располагается на 10 этаже 12-этажного дома в ЖК Река.
Застройщик - ДОНСТРОЙ, сдача дома - II квартал 2024 года, высота потолков 3.65 м.
Дом оборудован пассажирским лифтом, есть мусоропровод, закрытая территория.
Подземная парковка, парковка охраняется. Обеспечение безопасности: круглосуточная охрана. Инфраструктура: школа, детский сад, поликлиника, детские площадки, спортивные площадки, места для отдыха.
Река-3 - клубный дом от Донстрой на западе Москвы, у границы природного заповедника. Уникальное преимущество дома - ощущение загородной жизни в 15 минутах езды от центра столицы, прямо у парка и с видами на природу.
Река-3 - клубный дом переменной высотности от 9 до 12 этажей. Фасад дома в стиле «современная классика» облицован натуральным камнем и с первого взгляда впечатляет элегантной солидностью. В парадном лобби — потолки до 9,9 м, панорамное остекление «в пол», дизайнерские интерьеры и детский клуб. Архитектурная концепция дома создана известным московским архитектором Павлом Андреевым специально для РЕКИ: большинство окон обращено на парк.
Река-3 находится в престижном районе Раменки , по соседству с МГУ и МГИМО, дипломатическими представительствами зарубежных стран, крупными парками и природными заказниками («Долина Сетунь», «Воробьевы горы», Парк Победы, Парк 50-летия Октября и Ботанический сад МГУ). В 5 минутах ходьбы - станция метро «Мичуринский проспект», от которой до центра можно доехать за 15 минут. Также 15 минут понадобится, чтобы добраться на автомобиле до Садового кольца. В 10 минутах езды находятся МКАД и ТТК, а в 25 минутах езды — аэропорт «Внуково».
Позвоните и узнайте условия покупки прямо сейчас!
27.02.2026
251 558 800 ₽
Продается 2-комн. квартира, площадью 55 м2 в монолитной новостройке в 12 мин. пешком от м. Аминьевская, район города - Очаково-Матвеевское. Возможен вариант покупки с использованием ипотечных средств, есть рассрочка.
Жилая площадь 39.7 м2, кухня 5.8 м2, предчистовая отделка, комнаты изолированные.
Квартира располагается на 20 этаже 27-этажного дома в ЖК Среда на Лобачевского.
Застройщик - Среда, сдача дома - II квартал 2027 года, высота потолков 2.92 м.
Дом оборудован пассажирским лифтом.
Подземная парковка. Инфраструктура: детские площадки, спортивные площадки.
«Среда на Лобачевского» полностью соответствует критериям современного жилого пространства. Взяв за основу рациональный подход, мы гармонично соединили дизайн, актуальные тренды и функциональность. Продуманный современный экстерьер и функциональные планировки внутри, приватные пространства и разнообразные досуговые зоны для каждого члена семьи - все это «Среда на Лобачевского».
Район отлично развит и наполнен жизнью, здесь уже есть вся необходимая инфраструктура- детские сады, школы, медучреждения, торговые центры, благоустроены парки для прогулок и отдыха, удобен и легкодоступен городской транспорт.
Рядом расположены учебные корпуса крупных университетов - МГУ, МГИМО и РАНХиГС. Школы и детские сады в районе занимают высокие позиции в городских рейтингах, поэтому вам не придется беспокоиться о качестве образования детей. Как и об отдыхе: поблизости расположены живописные пруды, реки и парки. Это Парк Олимпийской деревни, Парк имени 50-летия Октября, Мещерский парк и Очаковские пруды. Теперь поставить галочки в еженедельном чек-листе «спорт-прогулки-встречи с друзьями» можно, не покидая любимый район.
Особое внимание в проекте уделяется созданию функциональных пространств не только внутри дома, но и за его пределами. В ландшафтном парке «Среды на Лобачевского» расположены крытые зоны для спокойного времяпровождения, места для активного отдыха и спорта, коворкинг, соседский комьюнити-центр, водные объекты.
-Ландшафтный парк во дворе.
-Водный сад с зонами отдыха.
-Зоны коворкинга.
-Дизайнерские гранд-лобби.
-Бесключевой доступ.
-Подземный паркинг.
СПЕЦ. ПРЕДЛОЖЕНИЕ!
Рассрочка с платежом 200 000 руб. /мес.
Специальная программа рассрочки для покупки квартир в корпусах 5.5-5.8.
Условия программы:
Первый взнос: 30%
Ежемесячный платеж: 200 000 рублей (фиксированный на весь срок)
Срок: 18 месяцев
Предложение действует на ограниченный пул квартир.
Аккредитованные банки: Совкомбанк, Альфа-Банк, Банк ДОМ. РФ, Банк ВТБ, Т-Банк, МКБ
Позвоните и узнайте условия покупки прямо сейчас!
05.03.2026
31 933 000 ₽
Продается 2-комн. квартира, площадью 53.8 м2 в монолитной новостройке в 12 мин. пешком от м. Аминьевская, район города - Очаково-Матвеевское. Возможен вариант покупки с использованием ипотечных средств, есть рассрочка.
Жилая площадь 36.5 м2, кухня 8.1 м2, предчистовая отделка, комнаты изолированные.
Квартира располагается на 26 этаже 27-этажного дома в ЖК Среда на Лобачевского.
Застройщик - Среда, сдача дома - II квартал 2027 года, высота потолков 2.92 м.
Дом оборудован пассажирским лифтом.
Подземная парковка. Инфраструктура: детские площадки, спортивные площадки.
«Среда на Лобачевского» полностью соответствует критериям современного жилого пространства. Взяв за основу рациональный подход, мы гармонично соединили дизайн, актуальные тренды и функциональность. Продуманный современный экстерьер и функциональные планировки внутри, приватные пространства и разнообразные досуговые зоны для каждого члена семьи - все это «Среда на Лобачевского».
Район отлично развит и наполнен жизнью, здесь уже есть вся необходимая инфраструктура- детские сады, школы, медучреждения, торговые центры, благоустроены парки для прогулок и отдыха, удобен и легкодоступен городской транспорт.
Рядом расположены учебные корпуса крупных университетов - МГУ, МГИМО и РАНХиГС. Школы и детские сады в районе занимают высокие позиции в городских рейтингах, поэтому вам не придется беспокоиться о качестве образования детей. Как и об отдыхе: поблизости расположены живописные пруды, реки и парки. Это Парк Олимпийской деревни, Парк имени 50-летия Октября, Мещерский парк и Очаковские пруды. Теперь поставить галочки в еженедельном чек-листе «спорт-прогулки-встречи с друзьями» можно, не покидая любимый район.
Особое внимание в проекте уделяется созданию функциональных пространств не только внутри дома, но и за его пределами. В ландшафтном парке «Среды на Лобачевского» расположены крытые зоны для спокойного времяпровождения, места для активного отдыха и спорта, коворкинг, соседский комьюнити-центр, водные объекты.
-Ландшафтный парк во дворе.
-Водный сад с зонами отдыха.
-Зоны коворкинга.
-Дизайнерские гранд-лобби.
-Бесключевой доступ.
-Подземный паркинг.
СПЕЦ. ПРЕДЛОЖЕНИЕ!
Рассрочка с платежом 200 000 руб. /мес.
Специальная программа рассрочки для покупки квартир в корпусах 5.5-5.8.
Условия программы:
Первый взнос: 30%
Ежемесячный платеж: 200 000 рублей (фиксированный на весь срок)
Срок: 18 месяцев
Предложение действует на ограниченный пул квартир.
Аккредитованные банки: Совкомбанк, Альфа-Банк, Банк ДОМ. РФ, Банк ВТБ, Т-Банк, МКБ
Позвоните и узнайте условия покупки прямо сейчас!
05.03.2026
32 586 660 ₽
К продаже предлагается право требование участника долевого строительства по договору о долевом строительстве квартира-студия, общ. Пл. 22, 87 кв.м. , номер квартиры 322, этаж 15 секция 22. Дом располагается на земельном участке с кад. №50: 21: 0060310: 1677. Адрес объекта Московская область, г. Видное, дер. Коробово, корп. 7.2. Строительство осуществляет: ООО Специализированный застройщик «Самолет- Коробово» ОГРН 1137746376877Продажа осуществляется в рамках процедуры банкротства. Предлагаем воспользоваться услугами профессионального агента для приобретения с торгов. В случае возникновения вопросов - обращайтесь.
16.12.2025
7 640 000 ₽
Продается просторная квартира площадью 219.00 м2 в жилом комплексе РЕКА. Квартира находится в 4 секции корпуса 3 (будет введен в эксплуатацию в 4 кв. 2026) . Этаж 12-й из 14.
В квартире продуманная функциональная планировка с просторной кухней 34.60 м2. Жилая площадь - 99.20 м2. Высота потолка от 3,65 м. Изолированные комнаты, 3 санузла(1 раздельный и 2 совмещенных) . Окна на противоположные стороны. Виды на природный парк и реку.
РЕКА - клубный дом от Донстрой на западе Москвы, у границы природного заповедника "Долина реки Сетунь", по соседству с МГУ и МГИМО, дипломатическими представительствами зарубежных стран. В 5 минутах ходьбы находится станция метро "Мичуринский проспект", от которой до центра можно доехать за 15 минут. Также 15 минут понадобится, чтобы добраться на автомобиле до Садового кольца.
Прямо из дома можно попасть в природную часть грандиозного парка "Событие". Здесь созданы детские игровые площадки "Луг" и "Лес", большая воркаут-зона, поле для командных видов спорта, площадка для пикников, смотровые площадки с великолепными видами, летний амфитеатр для лекториев и летняя школа.
Архитектурный проект дома выполнен в стиле современной классики: фасады с облицовкой из натурального камня и металлическими декоративными элементами.
В доме представлены элитные клубные резиденции. Одна из секций целиком состоит из квартир с финишной авторской отделкой: дизайнерские интерьеры, итальянские кухни, премиальная бытовая техника и сантехника. В наличии имеются пентхаусы с террасами и каминами.
В непосредственной близости от дома предусмотрены школы, детские сады, магазины, фитнес-центры, кафе и рестораны, медицинские центры - все, что необходимо для жизни.
Закрытый двор без машин обеспечен круглосуточной охраной и системами контроля доступа. Двор создан как ландшафтное продолжение окружающих природных парков и зонирован для различных видов отдыха, детских игр, занятий спортом.
Работает шоурум.
Позвоните и запишитесь на показ квартиры.
27.02.2026
213 744 000 ₽
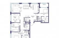
Продается просторная квартира площадью 276.40 м2 в жилом комплексе РЕКА. Квартира находится в 1 секции корпуса 3 (будет введен в эксплуатацию в 4 кв. 2026) . Этаж 13-й из 16.
В квартире продуманная функциональная планировка с просторной кухней 60.00 м2. Жилая площадь - 110.90 м2. Высота потолка от 3,65 м. Изолированные комнаты, 4 совмещенных санузла. Окна на смежные стороны. Виды на природный парк и реку.
РЕКА - клубный дом от Донстрой на западе Москвы, у границы природного заповедника "Долина реки Сетунь", по соседству с МГУ и МГИМО, дипломатическими представительствами зарубежных стран. В 5 минутах ходьбы находится станция метро "Мичуринский проспект", от которой до центра можно доехать за 15 минут. Также 15 минут понадобится, чтобы добраться на автомобиле до Садового кольца.
Прямо из дома можно попасть в природную часть грандиозного парка "Событие". Здесь созданы детские игровые площадки "Луг" и "Лес", большая воркаут-зона, поле для командных видов спорта, площадка для пикников, смотровые площадки с великолепными видами, летний амфитеатр для лекториев и летняя школа.
Архитектурный проект дома выполнен в стиле современной классики: фасады с облицовкой из натурального камня и металлическими декоративными элементами.
В доме представлены элитные клубные резиденции. Одна из секций целиком состоит из квартир с финишной авторской отделкой: дизайнерские интерьеры, итальянские кухни, премиальная бытовая техника и сантехника. В наличии имеются пентхаусы с террасами и каминами.
В непосредственной близости от дома предусмотрены школы, детские сады, магазины, фитнес-центры, кафе и рестораны, медицинские центры - все, что необходимо для жизни.
Закрытый двор без машин обеспечен круглосуточной охраной и системами контроля доступа. Двор создан как ландшафтное продолжение окружающих природных парков и зонирован для различных видов отдыха, детских игр, занятий спортом.
Работает шоурум.
Позвоните и запишитесь на показ квартиры.
27.02.2026
289 114 400 ₽
Продается просторная квартира площадью 279.90 м2 в жилом комплексе РЕКА. Квартира находится в 1 секции корпуса 3 (будет введен в эксплуатацию в 4 кв. 2026) . Этаж 16-й из 16.
В квартире продуманная функциональная планировка с просторной кухней 71.00 м2. Жилая площадь - 81.80 м2. Высота потолка от 3,65 м. Изолированные комнаты, 4 совмещенных санузла. Окна на три стороны света. Виды на природный парк и реку.
РЕКА - клубный дом от Донстрой на западе Москвы, у границы природного заповедника "Долина реки Сетунь", по соседству с МГУ и МГИМО, дипломатическими представительствами зарубежных стран. В 5 минутах ходьбы находится станция метро "Мичуринский проспект", от которой до центра можно доехать за 15 минут. Также 15 минут понадобится, чтобы добраться на автомобиле до Садового кольца.
Прямо из дома можно попасть в природную часть грандиозного парка "Событие". Здесь созданы детские игровые площадки "Луг" и "Лес", большая воркаут-зона, поле для командных видов спорта, площадка для пикников, смотровые площадки с великолепными видами, летний амфитеатр для лекториев и летняя школа.
Архитектурный проект дома выполнен в стиле современной классики: фасады с облицовкой из натурального камня и металлическими декоративными элементами.
В доме представлены элитные клубные резиденции. Одна из секций целиком состоит из квартир с финишной авторской отделкой: дизайнерские интерьеры, итальянские кухни, премиальная бытовая техника и сантехника. В наличии имеются пентхаусы с террасами и каминами.
В непосредственной близости от дома предусмотрены школы, детские сады, магазины, фитнес-центры, кафе и рестораны, медицинские центры - все, что необходимо для жизни.
Закрытый двор без машин обеспечен круглосуточной охраной и системами контроля доступа. Двор создан как ландшафтное продолжение окружающих природных парков и зонирован для различных видов отдыха, детских игр, занятий спортом.
Работает шоурум.
Позвоните и запишитесь на показ квартиры.
27.02.2026
343 157 400 ₽
НОВЫЙ СОВРЕМЕННЫЙ ЖИЛОЙ КОМПЛЕКС ОТ НАДЕЖНОГО ЗАСТРОЙЩИКА! В исторической части города, в непосредственной близости с Николо-Угрешским монастырем и Москвой-рекой. Дом Введен в эксплуатацию. Продается 3 комнатная крупногабаритная квартира, площадь 83/16,7/18,2/15.8/11,6 м2, два с/у 4/2.2 м2, прихожая 11,2 м2, лоджия 2,6 м2. Адрес: Московская область, г. Дзержинский, ул. Дзержинская д. 26 Возможна ИПОТЕКА. Дом комфорт класса с улучшенным планировочным решением. Тихий зеленый спальный район города. В нутри комплекса торговый центр, медицинский центр. Рядом с домом сетевые магазины Магнит, Пятерочка, фермерский магазин Алексеевский, Николо-угрешский монастырь. Хорошее сообщение с Москвой, остановка общественного транспорта через дорогу от дома до Москвы можно добраться на автобусе за 30 мин до м Кузьминки, Котельники, Люблино, Братиславская, Алма-Атинская, станция Люберцы ходят автобусы. Развитая инфраструктура города в шаговой доступности: школа, детский сад, детская площадка, автостоянка, сетевые и розничные магазины, отделение СберБанка, аптеки, поликлиника
28.08.2025
12 839 285 ₽
Продается 3-комн. квартира, площадью 82.9 м2 в монолитно-кирпичной новостройке. Возможен вариант покупки с использованием ипотечных средств.
Жилая площадь 50.3 м2, кухня 11.5 м2, квартира без отделки. Установлены межкомнатные перегородки. Установлены деревянные входные двери. Окна- пластиковые, с двухкамерным стеклопакетом. Балконы и лоджии с остеклением. Электроснабжение- установлен квартирный электросчётчик(без внутренней разводки). Сантехника-стояки без внутренней разводки с установкой водосчётчиков. Отопление- конверторное, с установленными радиаторами.
Квартира располагается на 4 этаже 8-этажного дома в ЖК Дзержинский.
Застройщик - ГК «Стройсоюз», сдача дома - II квартал 2023 года, дом уже сдан, высота потолков 3 м. Инфраструктура: детские площадки, спортивные площадки, места для отдыха.
Проект доступного и комфортного жилья состоит из семи жилых домов (односекционных и многосекционных) малой этажности, архитектура которых выполнена в едином стиле. Дома возводятся с учётом последних тенденций в строительстве, согласно технологическим регламентам, в том числе устанавливающим требования по обеспечению безопасной эксплуатации зданий и безопасного использования прилегающих территорий с соблюдением технических условий.
Все дома Жилого комплекса возводятся по монолитно-кирпичной технологии. Фасадные решения учитывают близость ансамбля Николо-Угрешского монастыря, и выполнены из «жемчужного» и «шоколадного» облицовочного полуторного кирпича. Витражное остекление офисной части представляет собой алюминиевый каркас с заполнением двухкамерным стеклопакетом, стекло прозрачное. Витражные системы — алюминий. Остекление квартирных балконов предусматривается в виде навесной алюминиевой фасадной системы с заполнением одинарным стеклом и стемалитом бирюзового цвета.
Отличное расположение — рядом с Николо-Угрешским монастырём и парком с живописным прудом. В непосредственной близости конечная остановка большинства городских автобусов. Рядом спортивный комплекс Орбита, одна из городских гимназий и большой торговый центр в районе Городского рынка.
Аккредитованные банки: СберБанк, Газпромбанк, Россельхозбанк, Абсолют Банк, СНГБ, Банк ЗЕНИТ, Альфа-Банк, Банк «Открытие, Райффайзен Банк, МКБ, Связь-банк, Банк «Возрождение», ВТБ, Совкомбанк, Банк Уралсиб, Ак Барс Банк, Банк ДОМ.РФ
Позвоните и узнайте условия покупки прямо сейчас!
28.08.2025
12 825 454 ₽
НОВЫЙ СОВРЕМЕННЫЙ ЖИЛОЙ КОМПЛЕКС ОТ НАДЕЖНОГО ЗАСТРОЙЩИКА! В исторической части города, в непосредственной близости с Николо-Угрешским монастырем и Москвой-рекой. Дом Введен в эксплуатацию. Продается 3 комнатная крупногабаритная квартира, площадь 83,4/16,4/18,3/15.9/11,5 м2, два с/у 4/2.2 м2, прихожая 11,2 м2, лоджия 2,6 м2. Адрес: Московская область, г. Дзержинский, ул. Дзержинская д. 26 Возможна ИПОТЕКА. Дом комфорт класса с улучшенным планировочным решением. Тихий зеленый спальный район города. В нутри комплекса торговый центр, медицинский центр. Рядом с домом сетевые магазины Магнит, Пятерочка, фермерский магазин Алексеевский, Николо-угрешский монастырь. Хорошее сообщение с Москвой, остановка общественного транспорта через дорогу от дома до Москвы можно добраться на автобусе за 30 мин до м Кузьминки, Котельники, Люблино, Братиславская, Алма-Атинская, станция Люберцы ходят автобусы. Развитая инфраструктура города в шаговой доступности: школа, детский сад, детская площадка, автостоянка, сетевые и розничные магазины, отделение СберБанка, аптеки, поликлиника
28.08.2025
12 894 609 ₽
НОВЫЙ СОВРЕМЕННЫЙ ЖИЛОЙ КОМПЛЕКС ОТ НАДЕЖНОГО ЗАСТРОЙЩИКА! В исторической части города, в непосредственной близости с Николо-Угрешским монастырем и Москвой-рекой. Дом Введен в эксплуатацию. Продается 1 комнатная крупногабаритная квартира, площадь 43,7/17,4/13 м2, с/у совмещ. 4,2 м2, прихожая 4,3 м2, балкон 5,2 м2. Адрес: Московская область, г. Дзержинский, Героя России Виктора Дудкина д.3. Возможна ИПОТЕКА. Дом комфорт класса с улучшенным планировочным решением. Тихий зеленый спальный район города. В нутри комплекса торговый центр, медицинский центр. Рядом с домом сетевые магазины Магнит, Пятерочка, фермерский магазин Алексеевский, Николо-угрешский монастырь. Хорошее сообщение с Москвой, остановка общественного транспорта через дорогу от дома до Москвы можно добраться на автобусе за 30 мин до м Кузьминки, Котельники, Люблино, Братиславская, Алма-Атинская, станция Люберцы ходят автобусы. Развитая инфраструктура города в шаговой доступности: школа, детский сад, детская площадка, автостоянка, сетевые и розничные магазины, отделение СберБанка, аптеки, поликлиника
28.08.2025
7 206 969 ₽
НОВЫЙ СОВРЕМЕННЫЙ ЖИЛОЙ КОМПЛЕКС ОТ НАДЕЖНОГО ЗАСТРОЙЩИКА! В исторической части города, в непосредственной близости с Николо-Угрешским монастырем и Москвой-рекой. Дом Введен в эксплуатацию. Продается 1 комнатная крупногабаритная квартира, площадь 43,4/17,3/13 м2, с/у совмещ. 4,2 м2, прихожая 4,3 м2, балкон 5,2 м2. Адрес: Московская область, г. Дзержинский, Героя России Виктора Дудкина д. 3 . Возможна ИПОТЕКА. Дом комфорт класса с улучшенным планировочным решением. Тихий зеленый спальный район города. В нутри комплекса торговый центр, медицинский центр. Рядом с домом сетевые магазины Магнит, Пятерочка, фермерский магазин Алексеевский, Николо-угрешский монастырь. Хорошее сообщение с Москвой, остановка общественного транспорта через дорогу от дома до Москвы можно добраться на автобусе за 30 мин до м Кузьминки, Котельники, Люблино, Братиславская, Алма-Атинская, станция Люберцы ходят автобусы. Развитая инфраструктура города в шаговой доступности: школа, детский сад, детская площадка, автостоянка, сетевые и розничные магазины, отделение СберБанка, аптеки, поликлиника
28.08.2025
7 162 284 ₽
НОВЫЙ СОВРЕМЕННЫЙ ЖИЛОЙ КОМПЛЕКС ОТ НАДЕЖНОГО ЗАСТРОЙЩИКА! В исторической части города, в непосредственной близости с Николо-Угрешским монастырем и Москвой-рекой. Дом Введен в эксплуатацию. Продается 1 комнатная крупногабаритная квартира, площадь 43,4/17,4/12,9 м2, Адрес: Московская область, г. Дзержинский, ул. Героя России Виктора Дудкина . Возможна ИПОТЕКА. Квартира с современной планировкой. Тихий зеленый спальный район города. Рядом с домом сетевые магазины Магнит, Пятерочка, фермерский магазин Алексеевский, Николо-угрешский монастырь. Хорошее сообщение с Москвой, остановка общественного транспорта через дорогу от дома до Москвы можно добраться на автобусе за 30 мин до м Кузьминки, Котельники, Люблино, Братиславская, Алма-Атинская, станция Люберцы ходят автобусы. Развитая инфраструктура города в шаговой доступности: школа, детский сад, детская площадка, автостоянка, сетевые и розничные магазины, отделение СберБанка, аптеки, поликлиника
28.08.2025
7 162 284 ₽
НОВЫЙ СОВРЕМЕННЫЙ ЖИЛОЙ КОМПЛЕКС ОТ НАДЕЖНОГО ЗАСТРОЙЩИКА! В исторической части города, в непосредственной близости с Николо-Угрешским монастырем и Москвой-рекой. Дом Введен в эксплуатацию. Продается 1 комнатная крупногабаритная квартира, площадь 43,3/17,2/13 м2, Адрес: Московская область, г. Дзержинский, ул.Героя России Виктора Дудкина . Возможна ИПОТЕКА. Квартира с современной планировкой. Тихий зеленый спальный район города. Рядом с домом сетевые магазины Магнит, Пятерочка, фермерский магазин Алексеевский, Николо-угрешский монастырь. Хорошее сообщение с Москвой, остановка общественного транспорта через дорогу от дома до Москвы можно добраться на автобусе за 30 мин до м Кузьминки, Котельники, Люблино, Братиславская, Алма-Атинская, станция Люберцы ходят автобусы. Развитая инфраструктура города в шаговой доступности: школа, детский сад, детская площадка, автостоянка, сетевые и розничные магазины, отделение СберБанка, аптеки, поликлиника
28.08.2025
7 147 389 ₽
Продаётся просторная двухкомнатная квартира площадью 69.8 квадратных метров в новом кирпичном доме 2025 года постройки, расположенном в уютном микрорайоне по адресу город Дзержинский, улица Бондарева, дом 4.
Предлагаем вашему вниманию светлую и просторную жилую площадь в размере 36.7 квадратных метров с удобной планировкой и раздельным санузлом. Кухня занимает 13,4 квадратных метров, предоставляя достаточно места для кулинарного творчества и семейных ужинов. Несмотря на то, что квартира требует ремонта, это открывает прекрасную возможность обустроить жильё согласно вашим личным предпочтениям и вкусам.
Расположенная на первом этаже, квартира порадует вас прекрасным видом из окон как на тихий двор, так и на улицу, наполняя пространство естественным светом. Балкон станет идеальным местом для утреннего кофе или вечернего отдыха после рабочего дня.
Для жителей дома предусмотрены удобные варианты парковки – во дворе и подземная, а также благоустроенный двор с детской и спортивной площадками, где ваши дети смогут активно проводить время на свежем воздухе. Рядом находятся школа, детский сад, торговый центр, парк и фитнес-клуб, обеспечивая комфортное проживание и удовлетворяя повседневные потребности семьи.
Приглашаем вас оценить все преимущества данной квартиры и представить, каким может стать ваше новое жилище благодаря вашему вкусу и воображению.
28.08.2025
13 084 063 ₽
НОВЫЙ СОВРЕМЕННЫЙ ЖИЛОЙ КОМПЛЕКС ОТ НАДЕЖНОГО ЗАСТРОЙЩИКА! В исторической части города, в непосредственной близости с Николо-Угрешским монастырем и Москвой-рекой. Дом Введен в эксплуатацию. Продается 1 комнатная крупногабаритная квартира, площадь 45/17,3/13 м2, с/у совмещ. 4,2 м2, прихожая , лоджия. Адрес: Московская область, г. Дзержинский, ул. Героя России В. Дудкина д. 3. Возможна ИПОТЕКА. Дом комфорт класса с улучшенным планировочным решением. Тихий зеленый спальный район города. В нутри комплекса торговый центр, медицинский центр. Рядом с домом сетевые магазины Магнит, Пятерочка, фермерский магазин Алексеевский, Николо-угрешский монастырь. Хорошее сообщение с Москвой, остановка общественного транспорта через дорогу от дома до Москвы можно добраться на автобусе за 30 мин до м Кузьминки, Котельники, Люблино, Братиславская, Алма-Атинская, станция Люберцы ходят автобусы. Развитая инфраструктура города в шаговой доступности: школа, детский сад, детская площадка, автостоянка, сетевые и розничные магазины, отделение СберБанка, аптеки, поликлиника
28.08.2025
7 162 284 ₽




















