Объявление о квартирах в Шаховской - Страница 6
- Шаховская »
- Недвижимость
- » Квартиры в Шаховской
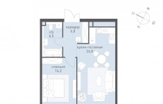
Продается 2-комн. квартира с европланировкой, площадью 82.8 м2 в монолитно-кирпичной новостройке в 10 мин. пешком от м. Новокузнецкая, район города - Замоскворечье. Возможен вариант покупки с использованием ипотечных средств, есть рассрочка, возможна покупка с использованием материнского капитала, есть военная ипотека.
Жилая площадь 53 м2, кухня 28 м2, квартира без отделки, комнаты изолированные, совмещенных санузлов - 1, балконов - 1.
Квартира располагается на 7 этаже 24-этажного дома в ЖК Татарская 35.
Застройщик - ДОНСТРОЙ, сдача дома - I квартал 2028 года, высота потолков 3 м, есть мусоропровод, закрытая территория.
Подземная парковка, парковка охраняется. Обеспечение безопасности: видеонаблюдение, круглосуточная охрана, консьерж, противопожарная система, пропускная система. Инфраструктура: школа, детский сад, поликлиника, спортивные площадки, места для отдыха, рестораны, фитнес-центр, пункты бытового обслуживания.
ТАТАРСКАЯ 35 - новая архитектурная доминанта Замоскворечья, новая достопримечательность на фотопанорамах исторического центра Москвы. Элитный дом с панорамными видами на Кремль и другие знаковые места столицы. В доме более 1000 м2 общественных пространств: от фитнеса и детской до бьюти-рума и переговорной. У дома - закрытый двор-сад в стиле итальянского романтизма и собственный велнес-центр с бассейном.
Жилой комплекс представляет собой современное здание с монолитными кирпичными стенами. В проекте два подъезда и максимальная этажность в 26 этажей. Минимальная этажность - 18 этажей. Комплекс отличается высоким классом энергоэффективности - A++.
Жилой проект расположен в районе Замоскворечье города Москвы. В пешей доступности находятся станции метро: Новокузнецкая (10 минут) , Павелецкая (11 минут) и Третьяковская (12 минут) . Отличная транспортная доступность позволяет быстро добраться в любую точку города.
Позвоните и узнайте условия покупки прямо сейчас!
07.03.2026
117 741 600 ₽
Продается 2-комн. квартира с европланировкой, площадью 78 м2 в монолитно-кирпичной новостройке в 10 мин. пешком от м. Новокузнецкая, район города - Замоскворечье. Возможен вариант покупки с использованием ипотечных средств, есть рассрочка, возможна покупка с использованием материнского капитала, есть военная ипотека.
Жилая площадь 51 м2, кухня 26 м2, квартира без отделки, комнаты изолированные, совмещенных санузлов - 1, балконов - 1.
Квартира располагается на 10 этаже 24-этажного дома в ЖК Татарская 35.
Застройщик - ДОНСТРОЙ, сдача дома - I квартал 2028 года, высота потолков 3 м, есть мусоропровод, закрытая территория.
Подземная парковка, парковка охраняется. Обеспечение безопасности: видеонаблюдение, круглосуточная охрана, консьерж, противопожарная система, пропускная система. Инфраструктура: школа, детский сад, поликлиника, спортивные площадки, места для отдыха, рестораны, фитнес-центр, пункты бытового обслуживания.
ТАТАРСКАЯ 35 - новая архитектурная доминанта Замоскворечья, новая достопримечательность на фотопанорамах исторического центра Москвы. Элитный дом с панорамными видами на Кремль и другие знаковые места столицы. В доме более 1000 м2 общественных пространств: от фитнеса и детской до бьюти-рума и переговорной. У дома - закрытый двор-сад в стиле итальянского романтизма и собственный велнес-центр с бассейном.
Жилой комплекс представляет собой современное здание с монолитными кирпичными стенами. В проекте два подъезда и максимальная этажность в 26 этажей. Минимальная этажность - 18 этажей. Комплекс отличается высоким классом энергоэффективности - A++.
Жилой проект расположен в районе Замоскворечье города Москвы. В пешей доступности находятся станции метро: Новокузнецкая (10 минут) , Павелецкая (11 минут) и Третьяковская (12 минут) . Отличная транспортная доступность позволяет быстро добраться в любую точку города.
Позвоните и узнайте условия покупки прямо сейчас!
07.03.2026
113 568 000 ₽
Продается 1-комн. квартира с европланировкой, площадью 48.3 м2 в монолитно-кирпичной новостройке в 10 мин. пешком от м. Новокузнецкая, район города - Замоскворечье. Возможен вариант покупки с использованием ипотечных средств, есть рассрочка, возможна покупка с использованием материнского капитала, есть военная ипотека.
Жилая площадь 27 м2, кухня 20 м2, квартира без отделки, комнаты изолированные, совмещенных санузлов - 1, балконов - 1.
Квартира располагается на 11 этаже 24-этажного дома в ЖК Татарская 35.
Застройщик - ДОНСТРОЙ, сдача дома - I квартал 2028 года, высота потолков 3 м, есть мусоропровод, закрытая территория.
Подземная парковка, парковка охраняется. Обеспечение безопасности: видеонаблюдение, круглосуточная охрана, консьерж, противопожарная система, пропускная система. Инфраструктура: школа, детский сад, поликлиника, спортивные площадки, места для отдыха, рестораны, фитнес-центр, пункты бытового обслуживания.
ТАТАРСКАЯ 35 - новая архитектурная доминанта Замоскворечья, новая достопримечательность на фотопанорамах исторического центра Москвы. Элитный дом с панорамными видами на Кремль и другие знаковые места столицы. В доме более 1000 м2 общественных пространств: от фитнеса и детской до бьюти-рума и переговорной. У дома - закрытый двор-сад в стиле итальянского романтизма и собственный велнес-центр с бассейном.
Жилой комплекс представляет собой современное здание с монолитными кирпичными стенами. В проекте два подъезда и максимальная этажность в 26 этажей. Минимальная этажность - 18 этажей. Комплекс отличается высоким классом энергоэффективности - A++.
Жилой проект расположен в районе Замоскворечье города Москвы. В пешей доступности находятся станции метро: Новокузнецкая (10 минут) , Павелецкая (11 минут) и Третьяковская (12 минут) . Отличная транспортная доступность позволяет быстро добраться в любую точку города.
Позвоните и узнайте условия покупки прямо сейчас!
07.03.2026
99 691 200 ₽
Продается 1-комн. квартира с европланировкой, площадью 58.7 м2 в монолитно-кирпичной новостройке в 10 мин. пешком от м. Новокузнецкая, район города - Замоскворечье. Возможен вариант покупки с использованием ипотечных средств, есть рассрочка, возможна покупка с использованием материнского капитала, есть военная ипотека.
Жилая площадь 34 м2, кухня 24 м2, квартира без отделки, комнаты изолированные, совмещенных санузлов - 1, балконов - 1.
Квартира располагается на 2 этаже 24-этажного дома в ЖК Татарская 35.
Застройщик - ДОНСТРОЙ, сдача дома - I квартал 2028 года, высота потолков 3 м, есть мусоропровод, закрытая территория.
Подземная парковка, парковка охраняется. Обеспечение безопасности: видеонаблюдение, круглосуточная охрана, консьерж, противопожарная система, пропускная система. Инфраструктура: школа, детский сад, поликлиника, спортивные площадки, места для отдыха, рестораны, фитнес-центр, пункты бытового обслуживания.
ТАТАРСКАЯ 35 - новая архитектурная доминанта Замоскворечья, новая достопримечательность на фотопанорамах исторического центра Москвы. Элитный дом с панорамными видами на Кремль и другие знаковые места столицы. В доме более 1000 м2 общественных пространств: от фитнеса и детской до бьюти-рума и переговорной. У дома - закрытый двор-сад в стиле итальянского романтизма и собственный велнес-центр с бассейном.
Жилой комплекс представляет собой современное здание с монолитными кирпичными стенами. В проекте два подъезда и максимальная этажность в 26 этажей. Минимальная этажность - 18 этажей. Комплекс отличается высоким классом энергоэффективности - A++.
Жилой проект расположен в районе Замоскворечье города Москвы. В пешей доступности находятся станции метро: Новокузнецкая (10 минут) , Павелецкая (11 минут) и Третьяковская (12 минут) . Отличная транспортная доступность позволяет быстро добраться в любую точку города.
Позвоните и узнайте условия покупки прямо сейчас!
07.03.2026
91 748 100 ₽
Продается 1-комн. квартира с европланировкой, площадью 56.4 м2 в монолитно-кирпичной новостройке в 10 мин. пешком от м. Новокузнецкая, район города - Замоскворечье. Возможен вариант покупки с использованием ипотечных средств, есть рассрочка, возможна покупка с использованием материнского капитала, есть военная ипотека.
Жилая площадь 29 м2, кухня 26 м2, квартира без отделки, комнаты изолированные, совмещенных санузлов - 1, балконов - 1.
Квартира располагается на 12 этаже 19-этажного дома в ЖК Татарская 35.
Застройщик - ДОНСТРОЙ, сдача дома - I квартал 2028 года, высота потолков 3.4 м, есть мусоропровод, закрытая территория.
Подземная парковка, парковка охраняется. Обеспечение безопасности: видеонаблюдение, круглосуточная охрана, консьерж, противопожарная система, пропускная система. Инфраструктура: школа, детский сад, поликлиника, спортивные площадки, места для отдыха, рестораны, фитнес-центр, пункты бытового обслуживания.
ТАТАРСКАЯ 35 - новая архитектурная доминанта Замоскворечья, новая достопримечательность на фотопанорамах исторического центра Москвы. Элитный дом с панорамными видами на Кремль и другие знаковые места столицы. В доме более 1000 м2 общественных пространств: от фитнеса и детской до бьюти-рума и переговорной. У дома - закрытый двор-сад в стиле итальянского романтизма и собственный велнес-центр с бассейном.
Жилой комплекс представляет собой современное здание с монолитными кирпичными стенами. В проекте два подъезда и максимальная этажность в 26 этажей. Минимальная этажность - 18 этажей. Комплекс отличается высоким классом энергоэффективности - A++.
Жилой проект расположен в районе Замоскворечье города Москвы. В пешей доступности находятся станции метро: Новокузнецкая (10 минут) , Павелецкая (11 минут) и Третьяковская (12 минут) . Отличная транспортная доступность позволяет быстро добраться в любую точку города.
Позвоните и узнайте условия покупки прямо сейчас!
07.03.2026
91 593 600 ₽
Продается 1-комн. квартира с европланировкой, площадью 56.4 м2 в монолитно-кирпичной новостройке в 10 мин. пешком от м. Новокузнецкая, район города - Замоскворечье. Возможен вариант покупки с использованием ипотечных средств, есть рассрочка, возможна покупка с использованием материнского капитала, есть военная ипотека.
Жилая площадь 29 м2, кухня 26 м2, квартира без отделки, комнаты изолированные, совмещенных санузлов - 1, балконов - 1.
Квартира располагается на 9 этаже 19-этажного дома в ЖК Татарская 35.
Застройщик - ДОНСТРОЙ, сдача дома - I квартал 2028 года, высота потолков 3.4 м, есть мусоропровод, закрытая территория.
Подземная парковка, парковка охраняется. Обеспечение безопасности: видеонаблюдение, круглосуточная охрана, консьерж, противопожарная система, пропускная система. Инфраструктура: школа, детский сад, поликлиника, спортивные площадки, места для отдыха, рестораны, фитнес-центр, пункты бытового обслуживания.
ТАТАРСКАЯ 35 - новая архитектурная доминанта Замоскворечья, новая достопримечательность на фотопанорамах исторического центра Москвы. Элитный дом с панорамными видами на Кремль и другие знаковые места столицы. В доме более 1000 м2 общественных пространств: от фитнеса и детской до бьюти-рума и переговорной. У дома - закрытый двор-сад в стиле итальянского романтизма и собственный велнес-центр с бассейном.
Жилой комплекс представляет собой современное здание с монолитными кирпичными стенами. В проекте два подъезда и максимальная этажность в 26 этажей. Минимальная этажность - 18 этажей. Комплекс отличается высоким классом энергоэффективности - A++.
Жилой проект расположен в районе Замоскворечье города Москвы. В пешей доступности находятся станции метро: Новокузнецкая (10 минут) , Павелецкая (11 минут) и Третьяковская (12 минут) . Отличная транспортная доступность позволяет быстро добраться в любую точку города.
Позвоните и узнайте условия покупки прямо сейчас!
07.03.2026
89 619 600 ₽
Продается 1-комн. квартира с европланировкой, площадью 57.6 м2 в монолитно-кирпичной новостройке в 10 мин. пешком от м. Новокузнецкая, район города - Замоскворечье. Возможен вариант покупки с использованием ипотечных средств, есть рассрочка, возможна покупка с использованием материнского капитала, есть военная ипотека.
Жилая площадь 36 м2, кухня 20 м2, квартира без отделки, комнаты изолированные, совмещенных санузлов - 1, балконов - 1.
Квартира располагается на 6 этаже 19-этажного дома в ЖК Татарская 35.
Застройщик - ДОНСТРОЙ, сдача дома - I квартал 2028 года, высота потолков 3.4 м, есть мусоропровод, закрытая территория.
Подземная парковка, парковка охраняется. Обеспечение безопасности: видеонаблюдение, круглосуточная охрана, консьерж, противопожарная система, пропускная система. Инфраструктура: школа, детский сад, поликлиника, спортивные площадки, места для отдыха, рестораны, фитнес-центр, пункты бытового обслуживания.
ТАТАРСКАЯ 35 - новая архитектурная доминанта Замоскворечья, новая достопримечательность на фотопанорамах исторического центра Москвы. Элитный дом с панорамными видами на Кремль и другие знаковые места столицы. В доме более 1000 м2 общественных пространств: от фитнеса и детской до бьюти-рума и переговорной. У дома - закрытый двор-сад в стиле итальянского романтизма и собственный велнес-центр с бассейном.
Жилой комплекс представляет собой современное здание с монолитными кирпичными стенами. В проекте два подъезда и максимальная этажность в 26 этажей. Минимальная этажность - 18 этажей. Комплекс отличается высоким классом энергоэффективности - A++.
Жилой проект расположен в районе Замоскворечье города Москвы. В пешей доступности находятся станции метро: Новокузнецкая (10 минут) , Павелецкая (11 минут) и Третьяковская (12 минут) . Отличная транспортная доступность позволяет быстро добраться в любую точку города.
Позвоните и узнайте условия покупки прямо сейчас!
07.03.2026
87 206 400 ₽
Продается 1-комн. квартира с европланировкой, площадью 54.8 м2 в монолитно-кирпичной новостройке в 10 мин. пешком от м. Новокузнецкая, район города - Замоскворечье. Возможен вариант покупки с использованием ипотечных средств, есть рассрочка, возможна покупка с использованием материнского капитала, есть военная ипотека.
Жилая площадь 33 м2, кухня 21 м2, квартира без отделки, комнаты изолированные, совмещенных санузлов - 1, балконов - 1.
Квартира располагается на 6 этаже 24-этажного дома в ЖК Татарская 35.
Застройщик - ДОНСТРОЙ, сдача дома - I квартал 2028 года, высота потолков 3 м, есть мусоропровод, закрытая территория.
Подземная парковка, парковка охраняется. Обеспечение безопасности: видеонаблюдение, круглосуточная охрана, консьерж, противопожарная система, пропускная система. Инфраструктура: школа, детский сад, поликлиника, спортивные площадки, места для отдыха, рестораны, фитнес-центр, пункты бытового обслуживания.
ТАТАРСКАЯ 35 - новая архитектурная доминанта Замоскворечья, новая достопримечательность на фотопанорамах исторического центра Москвы. Элитный дом с панорамными видами на Кремль и другие знаковые места столицы. В доме более 1000 м2 общественных пространств: от фитнеса и детской до бьюти-рума и переговорной. У дома - закрытый двор-сад в стиле итальянского романтизма и собственный велнес-центр с бассейном.
Жилой комплекс представляет собой современное здание с монолитными кирпичными стенами. В проекте два подъезда и максимальная этажность в 26 этажей. Минимальная этажность - 18 этажей. Комплекс отличается высоким классом энергоэффективности - A++.
Жилой проект расположен в районе Замоскворечье города Москвы. В пешей доступности находятся станции метро: Новокузнецкая (10 минут) , Павелецкая (11 минут) и Третьяковская (12 минут) . Отличная транспортная доступность позволяет быстро добраться в любую точку города.
Позвоните и узнайте условия покупки прямо сейчас!
07.03.2026
86 419 600 ₽
Продается 1-комн. квартира с европланировкой, площадью 53.9 м2 в монолитно-кирпичной новостройке в 10 мин. пешком от м. Новокузнецкая, район города - Замоскворечье. Возможен вариант покупки с использованием ипотечных средств, есть рассрочка, возможна покупка с использованием материнского капитала, есть военная ипотека.
Жилая площадь 33 м2, кухня 20 м2, квартира без отделки, комнаты изолированные, совмещенных санузлов - 1, балконов - 1.
Квартира располагается на 8 этаже 19-этажного дома в ЖК Татарская 35.
Застройщик - ДОНСТРОЙ, сдача дома - I квартал 2028 года, высота потолков 3.4 м, есть мусоропровод, закрытая территория.
Подземная парковка, парковка охраняется. Обеспечение безопасности: видеонаблюдение, круглосуточная охрана, консьерж, противопожарная система, пропускная система. Инфраструктура: школа, детский сад, поликлиника, спортивные площадки, места для отдыха, рестораны, фитнес-центр, пункты бытового обслуживания.
ТАТАРСКАЯ 35 - новая архитектурная доминанта Замоскворечья, новая достопримечательность на фотопанорамах исторического центра Москвы. Элитный дом с панорамными видами на Кремль и другие знаковые места столицы. В доме более 1000 м2 общественных пространств: от фитнеса и детской до бьюти-рума и переговорной. У дома - закрытый двор-сад в стиле итальянского романтизма и собственный велнес-центр с бассейном.
Жилой комплекс представляет собой современное здание с монолитными кирпичными стенами. В проекте два подъезда и максимальная этажность в 26 этажей. Минимальная этажность - 18 этажей. Комплекс отличается высоким классом энергоэффективности - A++.
Жилой проект расположен в районе Замоскворечье города Москвы. В пешей доступности находятся станции метро: Новокузнецкая (10 минут) , Павелецкая (11 минут) и Третьяковская (12 минут) . Отличная транспортная доступность позволяет быстро добраться в любую точку города.
Позвоните и узнайте условия покупки прямо сейчас!
07.03.2026
84 946 400 ₽
Продается 1-комн. квартира с европланировкой, площадью 54.9 м2 в монолитно-кирпичной новостройке в 10 мин. пешком от м. Новокузнецкая, район города - Замоскворечье. Возможен вариант покупки с использованием ипотечных средств, есть рассрочка, возможна покупка с использованием материнского капитала, есть военная ипотека.
Жилая площадь 37 м2, кухня 17 м2, квартира без отделки, комнаты изолированные, совмещенных санузлов - 1, балконов - 1.
Квартира располагается на 8 этаже 19-этажного дома в ЖК Татарская 35.
Застройщик - ДОНСТРОЙ, сдача дома - I квартал 2028 года, высота потолков 3.4 м, есть мусоропровод, закрытая территория.
Подземная парковка, парковка охраняется. Обеспечение безопасности: видеонаблюдение, круглосуточная охрана, консьерж, противопожарная система, пропускная система. Инфраструктура: школа, детский сад, поликлиника, спортивные площадки, места для отдыха, рестораны, фитнес-центр, пункты бытового обслуживания.
ТАТАРСКАЯ 35 - новая архитектурная доминанта Замоскворечья, новая достопримечательность на фотопанорамах исторического центра Москвы. Элитный дом с панорамными видами на Кремль и другие знаковые места столицы. В доме более 1000 м2 общественных пространств: от фитнеса и детской до бьюти-рума и переговорной. У дома - закрытый двор-сад в стиле итальянского романтизма и собственный велнес-центр с бассейном.
Жилой комплекс представляет собой современное здание с монолитными кирпичными стенами. В проекте два подъезда и максимальная этажность в 26 этажей. Минимальная этажность - 18 этажей. Комплекс отличается высоким классом энергоэффективности - A++.
Жилой проект расположен в районе Замоскворечье города Москвы. В пешей доступности находятся станции метро: Новокузнецкая (10 минут) , Павелецкая (11 минут) и Третьяковская (12 минут) . Отличная транспортная доступность позволяет быстро добраться в любую точку города.
Позвоните и узнайте условия покупки прямо сейчас!
07.03.2026
84 161 700 ₽
Продается 2-комн. квартира с европланировкой, площадью 76.8 м2 в монолитно-кирпичной новостройке в 19 мин. пешком от м. Улица 1905 года, район города - Пресненский. Возможен вариант покупки с использованием ипотечных средств, есть рассрочка, возможна покупка с использованием материнского капитала, есть военная ипотека.
Жилая площадь 53 м2, кухня 23 м2, квартира без отделки, комнаты изолированные, совмещенных санузлов - 1, балконов - 1.
Квартира располагается на 11 этаже 11-этажного дома в ЖК Начало.
Застройщик - ДОНСТРОЙ, сдача дома - IV квартал 2029 года, высота потолков 3.4 м, закрытая территория.
Подземная парковка, парковка охраняется. Обеспечение безопасности: видеонаблюдение, круглосуточная охрана, консьерж, противопожарная система, пропускная система. Инфраструктура: детские площадки, спортивные площадки, места для отдыха, рестораны, фитнес-центр, коммерческие объекты.
НАЧАЛО - Дом-Вселенная в престижном районе Пресня, на перекрестке делового и исторического центров Москвы.
Дом, открывающий космические перспективы для тех, кто умеет видеть окна возможностей и готов взлететь на новые орбиты. Ваша личная Вселенная, полная единомышленников для стремительного движения вверх.
НАЧАЛО - футуристический дом на Пресне в нескольких минутах от Сити и Садового кольца. Проект по настоящему космического масштаба, где есть все, чтобы раскрыть себя и свои возможности.
Из привычного «сегодня» в космическое «завтра»
Как росток пробивает скалу, как растет кристалл, как ракета устремляется ввысь - так формируется архитектурный образ этого дома.
Точно выверенный баланс между футуристичными формами и функциональным содержанием дома выводит жизнь в нем на новую орбиту.
Стеклянные фасады отражают небо и город, превращая здание в зеркало для окружающего ландшафта.
Жилой проект расположен в Пресненском районе Москвы. В пешей доступности находятся станции метро: «Улица 1905 года» (19 минут) , «Москва-Сити» (24 минуты) и «Деловой центр (Выставочная) » (25 минут) .
Позвоните и узнайте условия покупки прямо сейчас!
14.03.2026
99 840 000 ₽
Продается 2-комн. квартира с европланировкой, площадью 76.8 м2 в монолитно-кирпичной новостройке в 19 мин. пешком от м. Улица 1905 года, район города - Пресненский. Возможен вариант покупки с использованием ипотечных средств, есть рассрочка, возможна покупка с использованием материнского капитала, есть военная ипотека.
Жилая площадь 53 м2, кухня 23 м2, квартира без отделки, комнаты изолированные, совмещенных санузлов - 1, балконов - 1.
Квартира располагается на 10 этаже 11-этажного дома в ЖК Начало.
Застройщик - ДОНСТРОЙ, сдача дома - IV квартал 2029 года, высота потолков 3.4 м, закрытая территория.
Подземная парковка, парковка охраняется. Обеспечение безопасности: видеонаблюдение, круглосуточная охрана, консьерж, противопожарная система, пропускная система. Инфраструктура: детские площадки, спортивные площадки, места для отдыха, рестораны, фитнес-центр, коммерческие объекты.
НАЧАЛО - Дом-Вселенная в престижном районе Пресня, на перекрестке делового и исторического центров Москвы.
Дом, открывающий космические перспективы для тех, кто умеет видеть окна возможностей и готов взлететь на новые орбиты. Ваша личная Вселенная, полная единомышленников для стремительного движения вверх.
НАЧАЛО - футуристический дом на Пресне в нескольких минутах от Сити и Садового кольца. Проект по настоящему космического масштаба, где есть все, чтобы раскрыть себя и свои возможности.
Из привычного «сегодня» в космическое «завтра»
Как росток пробивает скалу, как растет кристалл, как ракета устремляется ввысь - так формируется архитектурный образ этого дома.
Точно выверенный баланс между футуристичными формами и функциональным содержанием дома выводит жизнь в нем на новую орбиту.
Стеклянные фасады отражают небо и город, превращая здание в зеркало для окружающего ландшафта.
Жилой проект расположен в Пресненском районе Москвы. В пешей доступности находятся станции метро: «Улица 1905 года» (19 минут) , «Москва-Сити» (24 минуты) и «Деловой центр (Выставочная) » (25 минут) .
Позвоните и узнайте условия покупки прямо сейчас!
07.03.2026
99 379 200 ₽
Продается 2-комн. квартира с европланировкой, площадью 76.9 м2 в монолитно-кирпичной новостройке в 19 мин. пешком от м. Улица 1905 года, район города - Пресненский. Возможен вариант покупки с использованием ипотечных средств, есть рассрочка, возможна покупка с использованием материнского капитала, есть военная ипотека.
Жилая площадь 53 м2, кухня 23 м2, квартира без отделки, комнаты изолированные, совмещенных санузлов - 1, балконов - 1.
Квартира располагается на 8 этаже 11-этажного дома в ЖК Начало.
Застройщик - ДОНСТРОЙ, сдача дома - IV квартал 2029 года, высота потолков 3.4 м, закрытая территория.
Подземная парковка, парковка охраняется. Обеспечение безопасности: видеонаблюдение, круглосуточная охрана, консьерж, противопожарная система, пропускная система. Инфраструктура: детские площадки, спортивные площадки, места для отдыха, рестораны, фитнес-центр, коммерческие объекты.
НАЧАЛО - Дом-Вселенная в престижном районе Пресня, на перекрестке делового и исторического центров Москвы.
Дом, открывающий космические перспективы для тех, кто умеет видеть окна возможностей и готов взлететь на новые орбиты. Ваша личная Вселенная, полная единомышленников для стремительного движения вверх.
НАЧАЛО - футуристический дом на Пресне в нескольких минутах от Сити и Садового кольца. Проект по настоящему космического масштаба, где есть все, чтобы раскрыть себя и свои возможности.
Из привычного «сегодня» в космическое «завтра»
Как росток пробивает скалу, как растет кристалл, как ракета устремляется ввысь - так формируется архитектурный образ этого дома.
Точно выверенный баланс между футуристичными формами и функциональным содержанием дома выводит жизнь в нем на новую орбиту.
Стеклянные фасады отражают небо и город, превращая здание в зеркало для окружающего ландшафта.
Жилой проект расположен в Пресненском районе Москвы. В пешей доступности находятся станции метро: «Улица 1905 года» (19 минут) , «Москва-Сити» (24 минуты) и «Деловой центр (Выставочная) » (25 минут) .
Позвоните и узнайте условия покупки прямо сейчас!
07.03.2026
98 662 700 ₽
Продается 2-комн. квартира с европланировкой, площадью 81.1 м2 в монолитно-кирпичной новостройке в 19 мин. пешком от м. Улица 1905 года, район города - Пресненский. Возможен вариант покупки с использованием ипотечных средств, есть рассрочка, возможна покупка с использованием материнского капитала, есть военная ипотека.
Жилая площадь 57 м2, кухня 23 м2, квартира без отделки, комнаты изолированные, совмещенных санузлов - 1, балконов - 1.
Квартира располагается на 4 этаже 24-этажного дома в ЖК Начало.
Застройщик - ДОНСТРОЙ, сдача дома - II квартал 2029 года, высота потолков 3.4 м, закрытая территория.
Подземная парковка, парковка охраняется. Обеспечение безопасности: видеонаблюдение, круглосуточная охрана, консьерж, противопожарная система, пропускная система. Инфраструктура: детские площадки, спортивные площадки, места для отдыха, рестораны, фитнес-центр, коммерческие объекты.
НАЧАЛО - Дом-Вселенная в престижном районе Пресня, на перекрестке делового и исторического центров Москвы.
Дом, открывающий космические перспективы для тех, кто умеет видеть окна возможностей и готов взлететь на новые орбиты. Ваша личная Вселенная, полная единомышленников для стремительного движения вверх.
НАЧАЛО - футуристический дом на Пресне в нескольких минутах от Сити и Садового кольца. Проект по настоящему космического масштаба, где есть все, чтобы раскрыть себя и свои возможности.
Из привычного «сегодня» в космическое «завтра»
Как росток пробивает скалу, как растет кристалл, как ракета устремляется ввысь - так формируется архитектурный образ этого дома.
Точно выверенный баланс между футуристичными формами и функциональным содержанием дома выводит жизнь в нем на новую орбиту.
Стеклянные фасады отражают небо и город, превращая здание в зеркало для окружающего ландшафта.
Жилой проект расположен в Пресненском районе Москвы. В пешей доступности находятся станции метро: «Улица 1905 года» (19 минут) , «Москва-Сити» (24 минуты) и «Деловой центр (Выставочная) » (25 минут) .
Позвоните и узнайте условия покупки прямо сейчас!
07.03.2026
95 941 300 ₽
Продается 1-комн. квартира с европланировкой, площадью 59.6 м2 в монолитно-кирпичной новостройке в 19 мин. пешком от м. Улица 1905 года, район города - Пресненский. Возможен вариант покупки с использованием ипотечных средств, есть рассрочка, возможна покупка с использованием материнского капитала, есть военная ипотека.
Жилая площадь 51 м2, кухня 8 м2, квартира без отделки, комнаты изолированные, совмещенных санузлов - 1, балконов - 1.
Квартира располагается на 10 этаже 24-этажного дома в ЖК Начало.
Застройщик - ДОНСТРОЙ, сдача дома - II квартал 2029 года, высота потолков 3.4 м, закрытая территория.
Подземная парковка, парковка охраняется. Обеспечение безопасности: видеонаблюдение, круглосуточная охрана, консьерж, противопожарная система, пропускная система. Инфраструктура: детские площадки, спортивные площадки, места для отдыха, рестораны, фитнес-центр, коммерческие объекты.
НАЧАЛО - Дом-Вселенная в престижном районе Пресня, на перекрестке делового и исторического центров Москвы.
Дом, открывающий космические перспективы для тех, кто умеет видеть окна возможностей и готов взлететь на новые орбиты. Ваша личная Вселенная, полная единомышленников для стремительного движения вверх.
НАЧАЛО - футуристический дом на Пресне в нескольких минутах от Сити и Садового кольца. Проект по настоящему космического масштаба, где есть все, чтобы раскрыть себя и свои возможности.
Из привычного «сегодня» в космическое «завтра»
Как росток пробивает скалу, как растет кристалл, как ракета устремляется ввысь - так формируется архитектурный образ этого дома.
Точно выверенный баланс между футуристичными формами и функциональным содержанием дома выводит жизнь в нем на новую орбиту.
Стеклянные фасады отражают небо и город, превращая здание в зеркало для окружающего ландшафта.
Жилой проект расположен в Пресненском районе Москвы. В пешей доступности находятся станции метро: «Улица 1905 года» (19 минут) , «Москва-Сити» (24 минуты) и «Деловой центр (Выставочная) » (25 минут) .
Позвоните и узнайте условия покупки прямо сейчас!
07.03.2026
88 744 400 ₽
Продается 1-комн. квартира с европланировкой, площадью 59.6 м2 в монолитно-кирпичной новостройке в 19 мин. пешком от м. Улица 1905 года, район города - Пресненский. Возможен вариант покупки с использованием ипотечных средств, есть рассрочка, возможна покупка с использованием материнского капитала, есть военная ипотека.
Жилая площадь 51 м2, кухня 8 м2, квартира без отделки, комнаты изолированные, совмещенных санузлов - 1, балконов - 1.
Квартира располагается на 9 этаже 24-этажного дома в ЖК Начало.
Застройщик - ДОНСТРОЙ, сдача дома - II квартал 2029 года, высота потолков 3.4 м, закрытая территория.
Подземная парковка, парковка охраняется. Обеспечение безопасности: видеонаблюдение, круглосуточная охрана, консьерж, противопожарная система, пропускная система. Инфраструктура: детские площадки, спортивные площадки, места для отдыха, рестораны, фитнес-центр, коммерческие объекты.
НАЧАЛО - Дом-Вселенная в престижном районе Пресня, на перекрестке делового и исторического центров Москвы.
Дом, открывающий космические перспективы для тех, кто умеет видеть окна возможностей и готов взлететь на новые орбиты. Ваша личная Вселенная, полная единомышленников для стремительного движения вверх.
НАЧАЛО - футуристический дом на Пресне в нескольких минутах от Сити и Садового кольца. Проект по настоящему космического масштаба, где есть все, чтобы раскрыть себя и свои возможности.
Из привычного «сегодня» в космическое «завтра»
Как росток пробивает скалу, как растет кристалл, как ракета устремляется ввысь - так формируется архитектурный образ этого дома.
Точно выверенный баланс между футуристичными формами и функциональным содержанием дома выводит жизнь в нем на новую орбиту.
Стеклянные фасады отражают небо и город, превращая здание в зеркало для окружающего ландшафта.
Жилой проект расположен в Пресненском районе Москвы. В пешей доступности находятся станции метро: «Улица 1905 года» (19 минут) , «Москва-Сити» (24 минуты) и «Деловой центр (Выставочная) » (25 минут) .
Позвоните и узнайте условия покупки прямо сейчас!
07.03.2026
88 446 400 ₽
Продается 1-комн. квартира с европланировкой, площадью 59.6 м2 в монолитно-кирпичной новостройке в 19 мин. пешком от м. Улица 1905 года, район города - Пресненский. Возможен вариант покупки с использованием ипотечных средств, есть рассрочка, возможна покупка с использованием материнского капитала, есть военная ипотека.
Жилая площадь 51 м2, кухня 8 м2, квартира без отделки, комнаты изолированные, совмещенных санузлов - 1, балконов - 1.
Квартира располагается на 8 этаже 24-этажного дома в ЖК Начало.
Застройщик - ДОНСТРОЙ, сдача дома - II квартал 2029 года, высота потолков 3.4 м, закрытая территория.
Подземная парковка, парковка охраняется. Обеспечение безопасности: видеонаблюдение, круглосуточная охрана, консьерж, противопожарная система, пропускная система. Инфраструктура: детские площадки, спортивные площадки, места для отдыха, рестораны, фитнес-центр, коммерческие объекты.
НАЧАЛО - Дом-Вселенная в престижном районе Пресня, на перекрестке делового и исторического центров Москвы.
Дом, открывающий космические перспективы для тех, кто умеет видеть окна возможностей и готов взлететь на новые орбиты. Ваша личная Вселенная, полная единомышленников для стремительного движения вверх.
НАЧАЛО - футуристический дом на Пресне в нескольких минутах от Сити и Садового кольца. Проект по настоящему космического масштаба, где есть все, чтобы раскрыть себя и свои возможности.
Из привычного «сегодня» в космическое «завтра»
Как росток пробивает скалу, как растет кристалл, как ракета устремляется ввысь - так формируется архитектурный образ этого дома.
Точно выверенный баланс между футуристичными формами и функциональным содержанием дома выводит жизнь в нем на новую орбиту.
Стеклянные фасады отражают небо и город, превращая здание в зеркало для окружающего ландшафта.
Жилой проект расположен в Пресненском районе Москвы. В пешей доступности находятся станции метро: «Улица 1905 года» (19 минут) , «Москва-Сити» (24 минуты) и «Деловой центр (Выставочная) » (25 минут) .
Позвоните и узнайте условия покупки прямо сейчас!
07.03.2026
87 731 200 ₽
Продается 1-комн. квартира с европланировкой, площадью 59.6 м2 в монолитно-кирпичной новостройке в 19 мин. пешком от м. Улица 1905 года, район города - Пресненский. Возможен вариант покупки с использованием ипотечных средств, есть рассрочка, возможна покупка с использованием материнского капитала, есть военная ипотека.
Жилая площадь 51 м2, кухня 8 м2, квартира без отделки, комнаты изолированные, совмещенных санузлов - 1, балконов - 1.
Квартира располагается на 7 этаже 24-этажного дома в ЖК Начало.
Застройщик - ДОНСТРОЙ, сдача дома - II квартал 2029 года, высота потолков 3.4 м, закрытая территория.
Подземная парковка, парковка охраняется. Обеспечение безопасности: видеонаблюдение, круглосуточная охрана, консьерж, противопожарная система, пропускная система. Инфраструктура: детские площадки, спортивные площадки, места для отдыха, рестораны, фитнес-центр, коммерческие объекты.
НАЧАЛО - Дом-Вселенная в престижном районе Пресня, на перекрестке делового и исторического центров Москвы.
Дом, открывающий космические перспективы для тех, кто умеет видеть окна возможностей и готов взлететь на новые орбиты. Ваша личная Вселенная, полная единомышленников для стремительного движения вверх.
НАЧАЛО - футуристический дом на Пресне в нескольких минутах от Сити и Садового кольца. Проект по настоящему космического масштаба, где есть все, чтобы раскрыть себя и свои возможности.
Из привычного «сегодня» в космическое «завтра»
Как росток пробивает скалу, как растет кристалл, как ракета устремляется ввысь - так формируется архитектурный образ этого дома.
Точно выверенный баланс между футуристичными формами и функциональным содержанием дома выводит жизнь в нем на новую орбиту.
Стеклянные фасады отражают небо и город, превращая здание в зеркало для окружающего ландшафта.
Жилой проект расположен в Пресненском районе Москвы. В пешей доступности находятся станции метро: «Улица 1905 года» (19 минут) , «Москва-Сити» (24 минуты) и «Деловой центр (Выставочная) » (25 минут) .
Позвоните и узнайте условия покупки прямо сейчас!
07.03.2026
87 075 600 ₽
Продается 1-комн. квартира с европланировкой, площадью 57.7 м2 в монолитно-кирпичной новостройке в 19 мин. пешком от м. Улица 1905 года, район города - Пресненский. Возможен вариант покупки с использованием ипотечных средств, есть рассрочка, возможна покупка с использованием материнского капитала, есть военная ипотека.
Жилая площадь 30 м2, кухня 27 м2, квартира без отделки, комнаты изолированные, совмещенных санузлов - 1, балконов - 1.
Квартира располагается на 6 этаже 11-этажного дома в ЖК Начало.
Застройщик - ДОНСТРОЙ, сдача дома - IV квартал 2029 года, высота потолков 3.4 м, закрытая территория.
Подземная парковка, парковка охраняется. Обеспечение безопасности: видеонаблюдение, круглосуточная охрана, консьерж, противопожарная система, пропускная система. Инфраструктура: детские площадки, спортивные площадки, места для отдыха, рестораны, фитнес-центр, коммерческие объекты.
НАЧАЛО - Дом-Вселенная в престижном районе Пресня, на перекрестке делового и исторического центров Москвы.
Дом, открывающий космические перспективы для тех, кто умеет видеть окна возможностей и готов взлететь на новые орбиты. Ваша личная Вселенная, полная единомышленников для стремительного движения вверх.
НАЧАЛО - футуристический дом на Пресне в нескольких минутах от Сити и Садового кольца. Проект по настоящему космического масштаба, где есть все, чтобы раскрыть себя и свои возможности.
Из привычного «сегодня» в космическое «завтра»
Как росток пробивает скалу, как растет кристалл, как ракета устремляется ввысь - так формируется архитектурный образ этого дома.
Точно выверенный баланс между футуристичными формами и функциональным содержанием дома выводит жизнь в нем на новую орбиту.
Стеклянные фасады отражают небо и город, превращая здание в зеркало для окружающего ландшафта.
Жилой проект расположен в Пресненском районе Москвы. В пешей доступности находятся станции метро: «Улица 1905 года» (19 минут) , «Москва-Сити» (24 минуты) и «Деловой центр (Выставочная) » (25 минут) .
Позвоните и узнайте условия покупки прямо сейчас!
07.03.2026
71 144 100 ₽
Продается 1-комн. квартира с европланировкой, площадью 49.3 м2 в монолитно-кирпичной новостройке в 19 мин. пешком от м. Улица 1905 года, район города - Пресненский. Возможен вариант покупки с использованием ипотечных средств, есть рассрочка, возможна покупка с использованием материнского капитала, есть военная ипотека.
Жилая площадь 28 м2, кухня 20 м2, квартира без отделки, комнаты изолированные, совмещенных санузлов - 1, балконов - 1.
Квартира располагается на 13 этаже 24-этажного дома в ЖК Начало.
Застройщик - ДОНСТРОЙ, сдача дома - II квартал 2029 года, высота потолков 3.4 м, закрытая территория.
Подземная парковка, парковка охраняется. Обеспечение безопасности: видеонаблюдение, круглосуточная охрана, консьерж, противопожарная система, пропускная система. Инфраструктура: детские площадки, спортивные площадки, места для отдыха, рестораны, фитнес-центр, коммерческие объекты.
НАЧАЛО - Дом-Вселенная в престижном районе Пресня, на перекрестке делового и исторического центров Москвы.
Дом, открывающий космические перспективы для тех, кто умеет видеть окна возможностей и готов взлететь на новые орбиты. Ваша личная Вселенная, полная единомышленников для стремительного движения вверх.
НАЧАЛО - футуристический дом на Пресне в нескольких минутах от Сити и Садового кольца. Проект по настоящему космического масштаба, где есть все, чтобы раскрыть себя и свои возможности.
Из привычного «сегодня» в космическое «завтра»
Как росток пробивает скалу, как растет кристалл, как ракета устремляется ввысь - так формируется архитектурный образ этого дома.
Точно выверенный баланс между футуристичными формами и функциональным содержанием дома выводит жизнь в нем на новую орбиту.
Стеклянные фасады отражают небо и город, превращая здание в зеркало для окружающего ландшафта.
Жилой проект расположен в Пресненском районе Москвы. В пешей доступности находятся станции метро: «Улица 1905 года» (19 минут) , «Москва-Сити» (24 минуты) и «Деловой центр (Выставочная) » (25 минут) .
Позвоните и узнайте условия покупки прямо сейчас!
07.03.2026
68 970 700 ₽
Продается 1-комн. квартира с европланировкой, площадью 57.7 м2 в монолитно-кирпичной новостройке в 19 мин. пешком от м. Улица 1905 года, район города - Пресненский. Возможен вариант покупки с использованием ипотечных средств, есть рассрочка, возможна покупка с использованием материнского капитала, есть военная ипотека.
Жилая площадь 30 м2, кухня 27 м2, квартира без отделки, комнаты изолированные, совмещенных санузлов - 1, балконов - 1.
Квартира располагается на 5 этаже 11-этажного дома в ЖК Начало.
Застройщик - ДОНСТРОЙ, сдача дома - IV квартал 2029 года, высота потолков 3.4 м, закрытая территория.
Подземная парковка, парковка охраняется. Обеспечение безопасности: видеонаблюдение, круглосуточная охрана, консьерж, противопожарная система, пропускная система. Инфраструктура: детские площадки, спортивные площадки, места для отдыха, рестораны, фитнес-центр, коммерческие объекты.
НАЧАЛО - Дом-Вселенная в престижном районе Пресня, на перекрестке делового и исторического центров Москвы.
Дом, открывающий космические перспективы для тех, кто умеет видеть окна возможностей и готов взлететь на новые орбиты. Ваша личная Вселенная, полная единомышленников для стремительного движения вверх.
НАЧАЛО - футуристический дом на Пресне в нескольких минутах от Сити и Садового кольца. Проект по настоящему космического масштаба, где есть все, чтобы раскрыть себя и свои возможности.
Из привычного «сегодня» в космическое «завтра»
Как росток пробивает скалу, как растет кристалл, как ракета устремляется ввысь - так формируется архитектурный образ этого дома.
Точно выверенный баланс между футуристичными формами и функциональным содержанием дома выводит жизнь в нем на новую орбиту.
Стеклянные фасады отражают небо и город, превращая здание в зеркало для окружающего ландшафта.
Жилой проект расположен в Пресненском районе Москвы. В пешей доступности находятся станции метро: «Улица 1905 года» (19 минут) , «Москва-Сити» (24 минуты) и «Деловой центр (Выставочная) » (25 минут) .
Позвоните и узнайте условия покупки прямо сейчас!
07.03.2026
68 836 100 ₽




















