Продать квартиру в Сергиевом Посаде - Страница 3
- Сергиев Посад »
- Недвижимость
- » Квартиры
- » Продажа квартир в Сергиевом Посаде
Продается уютная квартира в ЖК "Миракс Парк"
Просторная и светлая квартира площадью 146 кв. м, расположенная на 9 этаже 11-этажного монолитного дома премиум-класса.
Описание квартиры:
В квартире выполнен качественный ремонт в классическом стиле.
Двухуровневая планировка:
Верхний этаж: просторная кухня-гостиная с лоджией, изолированная спальня, санузел и гардеробная.
Нижний этаж: 2 изолированные спальни (одна с лоджией, другая с панорамными окнами) , санузел и прачечная.
Инфраструктура:
Под домом имеется большая подземная парковка, в собственности 2 парковочных места (продаются за отдельную плату) .
Удобный выезд на проспект Вернадского и Ленинский проспект.
До метро Тропарево всего 10 минут спокойной ходьбы.
Жилой комплекс "Миракс Парк" предлагает закрытую и огороженную территорию с концепцией "двор без машин" на площади 16 гектаров, собственным озером и зоопарком. Прямо через дорогу расположен Тропарево-Никулинский лесопарк.
Территория охраняется круглосуточно и оборудована видеонаблюдением. На территории работают фитнес-центры, рестораны, кафе, детские сады, аптека, магазины и салоны красоты. В пешей доступности находятся детский сад, школа, лицей РАНХиГС, детская поликлиника и широкий выбор высших учебных заведений.
Свободная продажа, один взрослый собственник, полная стоимость в договоре.
Не упустите возможность стать владельцем роскошной квартиры в одном из лучших комплексов города!
Для получения дополнительной информации и записи на просмотр, пожалуйста, звоните по телефону.
08.04.2026
95 000 000 ₽
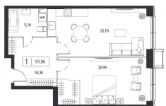
Продается 2-комн. квартира, площадью 59 кв. м м. Технопарк. Возможен вариант покупки с использованием ипотечных средств.
Жилая площадь 41.3 м2, кухня 8.85 кв. м, ремонта нет, комнаты изолированные, окна выходят во двор.
Квартира располагается на 11 этаже 24-этажного монолитно-кирпичного дома, высота потолков 3.15 м.
07.04.2026
35 721 829 ₽
Продается 2-комн. квартира, площадью 65.3 м2 в монолитно-кирпичной новостройке в 6 мин. пешком от м. Стрешнево, район города - Щукино. Возможен вариант покупки с использованием ипотечных средств, есть рассрочка, возможна покупка с использованием материнского капитала, есть военная ипотека.
Жилая площадь 28.9 м2, кухня 17.4 м2. Площадь комнат: 12.8/16.1 м2, квартира без отделки. Раздельных санузлов - 2.
Квартира располагается на 25 этаже 34-этажного дома в ЖК МОМЕНТС.
Застройщик - FORMA, сдача дома - I квартал 2027 года, высота потолков 2.87 м.
Дом оборудован пассажирским лифтом, закрытая территория.
Подземная парковка, парковка охраняется. Обеспечение безопасности: видеонаблюдение, круглосуточная охрана, консьерж, противопожарная система, пропускная система. Инфраструктура: школа, детский сад, поликлиника, детские площадки, спортивные площадки, места для отдыха, супермаркет, рестораны, пункты бытового обслуживания, коммерческие объекты.
Moments - это место единения города и природы, центр жизни, где зелень парка находится буквально на расстоянии вытянутой руки. Дом, который помогает обрести гармонию и баланс в жизни.
Moments расположился на северо-западе в одном и самых зеленых районов города рядом с парком Покровское-Стрешнево. Попасть в парк можно будет по благоустроенной тропе длиной 1250 метров. Богатая флора и фауна дополнят прогулку по этому экологическому освещенному променаду.
Жилой комплекс будет состоять из 8 корпусов высотой от 4 и до 47 этажей. Cтроительство разделено на три очереди, первая из которых, - корпус в 30 этажей с 330 квартирами - будет введена в эксплуатацию в 2025 году.
Архитектурный облик от одного из ведущих бюро KAMEN ARC'ITECTS. В отделке фасадов используются витражное остекление и композитные панели. Большинство квартир имеют вид на парк Покровское-Стрешнево.
Жилой комплекс выполнен с использованием монолитно-кирпичной технологии строительства. В комплексе 3 подъезда и максимальная этажность - 42 этажа. Минимальная этажность - 3 этажа. Комплекс имеет высокий класс энергоэффективности - A++.
Жилой комплекс расположен в районе Щукино города Москвы. В пешей доступности находится станция метро Стрешнево (7 минут) , также можно дойти до станции Войковская (20 минут) и Щукинская (21 минута) .
Аккредитованные банки: ВТБ
Альфа-Банк
Позвоните и узнайте условия покупки прямо сейчас!
07.04.2026
32 197 209 ₽
О квартире
Продаётся однокомнатная квартира общей площадью 50.60 кв. м. с отделкой на выбор: черновая, White Box. Квартира на 10 этаже корпуса 5.2 в жилом комплексе бизнес-класса «Среда на Лобачевского». До метро «Аминьевская» 7 минут пешком.
Развитый район с удобным выездом
«Среда на Лобачевского» строится рядом с Аминьевским и Очаковским шоссе, отсюда можно доехать до МКАД или Ленинского проспекта за 10 минут. В районе уже есть всё для жизни: рестораны, кофейни, торговые центры, поликлиники и спортивные комплексы, школы и сады, бульвары и парки.
- 7 минут ходьбы до станции метро «Аминьевская».
- 15 минут пешком до станции МЦД-4 «Очаково».
- 8-15 минут на машине до Кутузовского проспекта и ТТК.
- До 15 минут езды до заказников «Долина реки Сетунь» и «Воробьёвы горы».
О жилом комплексе
«Среда на Лобачевского» - новый квартал в парадном стиле старой Москвы. Благодаря разноэтажной застройке во дворе комплекса будет много света и воздуха, без ощущения замкнутого пространства. Во дворе лаунж-зоны для медитации и работы, площадки для игр и кинопоказов, а на первых этажах - кофейни и магазины.
Особенности
- Высота потолков до 3,24 метра.
- Панорамное остекление в пол.
- Квартиры с террасами, мастер-спальнями и сквозными планировками.
- Дизайнерские гранд-лобби в каждом корпусе.
- Ландшафтный парк с зонами отдыха у воды.
- Коворкинг на свежем воздухе.
- Локации для спорта, игр и приватного отдыха.
- Соседский бульвар с площадкой для подростков.
- Подземный паркинг с двумя въездами.
- Система бесключевого доступа.
- Стрит-ритейл на первых этажах.
10.04.2026
32 211 960 ₽
О квартире
Продаётся однокомнатная квартира общей площадью 39.20 кв. м. с отделкой на выбор: черновая, White Box. Квартира на 11 этаже корпуса 5.1 в жилом комплексе бизнес-класса «Среда на Лобачевского». До метро «Аминьевская» 7 минут пешком.
Развитый район с удобным выездом
«Среда на Лобачевского» строится рядом с Аминьевским и Очаковским шоссе, отсюда можно доехать до МКАД или Ленинского проспекта за 10 минут. В районе уже есть всё для жизни: рестораны, кофейни, торговые центры, поликлиники и спортивные комплексы, школы и сады, бульвары и парки.
- 7 минут ходьбы до станции метро «Аминьевская».
- 15 минут пешком до станции МЦД-4 «Очаково».
- 8-15 минут на машине до Кутузовского проспекта и ТТК.
- До 15 минут езды до заказников «Долина реки Сетунь» и «Воробьёвы горы».
О жилом комплексе
«Среда на Лобачевского» - новый квартал в парадном стиле старой Москвы. Благодаря разноэтажной застройке во дворе комплекса будет много света и воздуха, без ощущения замкнутого пространства. Во дворе лаунж-зоны для медитации и работы, площадки для игр и кинопоказов, а на первых этажах - кофейни и магазины.
Особенности
- Высота потолков до 3,24 метра.
- Панорамное остекление в пол.
- Квартиры с террасами, мастер-спальнями и сквозными планировками.
- Дизайнерские гранд-лобби в каждом корпусе.
- Ландшафтный парк с зонами отдыха у воды.
- Коворкинг на свежем воздухе.
- Локации для спорта, игр и приватного отдыха.
- Соседский бульвар с площадкой для подростков.
- Подземный паркинг с двумя въездами.
- Система бесключевого доступа.
- Стрит-ритейл на первых этажах.
09.04.2026
25 872 000 ₽
Продается 3-комн. квартира, площадью 101.1 м2 м. Технопарк. Возможен вариант покупки с использованием ипотечных средств.
Жилая площадь 70.77 кв. м, кухня 15.17 кв. м, ремонта нет, комнаты изолированные, окна выходят на улицу.
Квартира располагается на 2 этаже 6-этажного монолитно-кирпичного дома, высота потолков 3.15 м.
09.04.2026
53 307 345 ₽
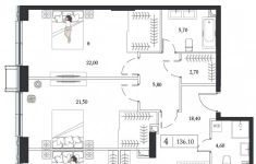
Продается 4-комн. квартира, площадью 136.1 м2 м. Технопарк. Возможен вариант покупки с использованием ипотечных средств.
Жилая площадь 95.27 м2, кухня 20.42 кв. м, ремонта нет, комнаты изолированные, окна выходят на улицу.
Квартира располагается на 20 этаже 24-этажного монолитно-кирпичного дома, высота потолков 3.15 м.
07.04.2026
78 063 700 ₽
Продается 4-комн. квартира, площадью 136.2 м2 м. Технопарк. Возможен вариант покупки с использованием ипотечных средств.
Жилая площадь 95.34 кв. м, кухня 20.43 кв. м, ремонта нет, комнаты изолированные, окна выходят на улицу.
Квартира располагается на 19 этаже 24-этажного монолитно-кирпичного дома, высота потолков 3.15 м.
07.04.2026
77 762 852 ₽
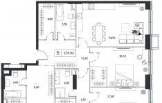
Продается 5-комн. квартира, площадью 159.9 кв. м м. Технопарк. Возможен вариант покупки с использованием ипотечных средств.
Жилая площадь 111.93 кв. м, кухня 23.99 кв. м, ремонта нет, комнаты изолированные, окна выходят на улицу.
Квартира располагается на 19 этаже 24-этажного монолитно-кирпичного дома, высота потолков 3.15 м.
07.04.2026
77 316 311 ₽
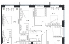
Продается 5-комн. квартира, площадью 162 м2 м. Технопарк. Возможен вариант покупки с использованием ипотечных средств.
Жилая площадь 113.4 м2, кухня 24.3 кв. м, ремонта нет, комнаты изолированные, окна выходят на улицу.
Квартира располагается на 18 этаже 24-этажного монолитно-кирпичного дома, высота потолков 3.15 м.
07.04.2026
99 268 503 ₽
Продается 5-комн. квартира, площадью 162.1 кв. м м. Технопарк. Возможен вариант покупки с использованием ипотечных средств.
Жилая площадь 113.47 м2, кухня 24.32 кв. м, ремонта нет, комнаты изолированные, окна выходят на улицу.
Квартира располагается на 21 этаже 24-этажного монолитно-кирпичного дома, высота потолков 3.15 м.
07.04.2026
88 989 940 ₽
Продается 5-комн. квартира, площадью 162.2 м2 м. Технопарк. Возможен вариант покупки с использованием ипотечных средств.
Жилая площадь 113.54 м2, кухня 24.33 кв. м, ремонта нет, комнаты изолированные, окна выходят на улицу.
Квартира располагается на 20 этаже 24-этажного монолитно-кирпичного дома, высота потолков 3.15 м.
07.04.2026
98 487 120 ₽
Продается 5-комн. квартира, площадью 159.9 м2 м. Технопарк. Возможен вариант покупки с использованием ипотечных средств.
Жилая площадь 111.93 м2, кухня 23.99 кв. м, ремонта нет, комнаты изолированные, окна выходят на улицу.
Квартира располагается на 18 этаже 24-этажного монолитно-кирпичного дома, высота потолков 3.15 м.
14.04.2026
97 981 690 ₽
Продается 3-комн. квартира, площадью 100.9 кв. м м. Технопарк. Возможен вариант покупки с использованием ипотечных средств.
Жилая площадь 70.63 м2, кухня 15.14 кв. м, ремонта нет, комнаты изолированные, окна выходят на улицу.
Квартира располагается на 13 этаже 24-этажного монолитно-кирпичного дома, высота потолков 3.15 м.
07.04.2026
58 434 939 ₽
Продается 2-комн. квартира, площадью 56.7 м2 в монолитно-кирпичной новостройке в 6 мин. пешком от м. Стрешнево, район города - Щукино. Возможен вариант покупки с использованием ипотечных средств, есть рассрочка, возможна покупка с использованием материнского капитала, есть военная ипотека.
Жилая площадь 24.6 м2, кухня 16.9 м2. Площадь комнат: 11.3/13.3 м2, квартира без отделки. Раздельных санузлов - 2.
Квартира располагается на 23 этаже 34-этажного дома в ЖК МОМЕНТС.
Застройщик - FORMA, сдача дома - I квартал 2027 года, высота потолков 2.87 м.
Дом оборудован пассажирским лифтом, закрытая территория.
Подземная парковка, парковка охраняется. Обеспечение безопасности: видеонаблюдение, круглосуточная охрана, консьерж, противопожарная система, пропускная система. Инфраструктура: школа, детский сад, поликлиника, детские площадки, спортивные площадки, места для отдыха, супермаркет, рестораны, пункты бытового обслуживания, коммерческие объекты.
Moments - это место единения города и природы, центр жизни, где зелень парка находится буквально на расстоянии вытянутой руки. Дом, который помогает обрести гармонию и баланс в жизни.
Moments расположился на северо-западе в одном и самых зеленых районов города рядом с парком Покровское-Стрешнево. Попасть в парк можно будет по благоустроенной тропе длиной 1250 метров. Богатая флора и фауна дополнят прогулку по этому экологическому освещенному променаду.
Жилой комплекс будет состоять из 8 корпусов высотой от 4 и до 47 этажей. Cтроительство разделено на три очереди, первая из которых, - корпус в 30 этажей с 330 квартирами - будет введена в эксплуатацию в 2025 году.
Архитектурный облик от одного из ведущих бюро KAMEN ARC'ITECTS. В отделке фасадов используются витражное остекление и композитные панели. Большинство квартир имеют вид на парк Покровское-Стрешнево.
Жилой комплекс выполнен с использованием монолитно-кирпичной технологии строительства. В комплексе 3 подъезда и максимальная этажность - 42 этажа. Минимальная этажность - 3 этажа. Комплекс имеет высокий класс энергоэффективности - A++.
Жилой комплекс расположен в районе Щукино города Москвы. В пешей доступности находится станция метро Стрешнево (7 минут) , также можно дойти до станции Войковская (20 минут) и Щукинская (21 минута) .
Аккредитованные банки: ВТБ
Альфа-Банк
Позвоните и узнайте условия покупки прямо сейчас!
07.04.2026
32 025 067 ₽
Продается 2-комн. квартира, площадью 57 м2 в монолитно-кирпичной новостройке в 6 мин. пешком от м. Стрешнево, район города - Щукино. Возможен вариант покупки с использованием ипотечных средств, есть рассрочка, возможна покупка с использованием материнского капитала, есть военная ипотека.
Жилая площадь 24.6 м2, кухня 16.9 м2. Площадь комнат: 11.3/13.3 м2, квартира без отделки. Раздельных санузлов - 2.
Квартира располагается на 28 этаже 34-этажного дома в ЖК МОМЕНТС.
Застройщик - FORMA, сдача дома - I квартал 2027 года, высота потолков 2.87 м.
Дом оборудован пассажирским лифтом, закрытая территория.
Подземная парковка, парковка охраняется. Обеспечение безопасности: видеонаблюдение, круглосуточная охрана, консьерж, противопожарная система, пропускная система. Инфраструктура: школа, детский сад, поликлиника, детские площадки, спортивные площадки, места для отдыха, супермаркет, рестораны, пункты бытового обслуживания, коммерческие объекты.
Moments - это место единения города и природы, центр жизни, где зелень парка находится буквально на расстоянии вытянутой руки. Дом, который помогает обрести гармонию и баланс в жизни.
Moments расположился на северо-западе в одном и самых зеленых районов города рядом с парком Покровское-Стрешнево. Попасть в парк можно будет по благоустроенной тропе длиной 1250 метров. Богатая флора и фауна дополнят прогулку по этому экологическому освещенному променаду.
Жилой комплекс будет состоять из 8 корпусов высотой от 4 и до 47 этажей. Cтроительство разделено на три очереди, первая из которых, - корпус в 30 этажей с 330 квартирами - будет введена в эксплуатацию в 2025 году.
Архитектурный облик от одного из ведущих бюро KAMEN ARC'ITECTS. В отделке фасадов используются витражное остекление и композитные панели. Большинство квартир имеют вид на парк Покровское-Стрешнево.
Жилой комплекс выполнен с использованием монолитно-кирпичной технологии строительства. В комплексе 3 подъезда и максимальная этажность - 42 этажа. Минимальная этажность - 3 этажа. Комплекс имеет высокий класс энергоэффективности - A++.
Жилой комплекс расположен в районе Щукино города Москвы. В пешей доступности находится станция метро Стрешнево (7 минут) , также можно дойти до станции Войковская (20 минут) и Щукинская (21 минута) .
Аккредитованные банки: ВТБ
Альфа-Банк
Позвоните и узнайте условия покупки прямо сейчас!
07.04.2026
31 956 137 ₽
Продается 2-комн. квартира, площадью 57 м2 в монолитно-кирпичной новостройке в 6 мин. пешком от м. Стрешнево, район города - Щукино. Возможен вариант покупки с использованием ипотечных средств, есть рассрочка, возможна покупка с использованием материнского капитала, есть военная ипотека.
Жилая площадь 24.6 м2, кухня 16.9 м2. Площадь комнат: 11.3/13.3 м2, квартира без отделки. Раздельных санузлов - 2.
Квартира располагается на 25 этаже 34-этажного дома в ЖК МОМЕНТС.
Застройщик - FORMA, сдача дома - I квартал 2027 года, высота потолков 2.87 м.
Дом оборудован пассажирским лифтом, закрытая территория.
Подземная парковка, парковка охраняется. Обеспечение безопасности: видеонаблюдение, круглосуточная охрана, консьерж, противопожарная система, пропускная система. Инфраструктура: школа, детский сад, поликлиника, детские площадки, спортивные площадки, места для отдыха, супермаркет, рестораны, пункты бытового обслуживания, коммерческие объекты.
Moments - это место единения города и природы, центр жизни, где зелень парка находится буквально на расстоянии вытянутой руки. Дом, который помогает обрести гармонию и баланс в жизни.
Moments расположился на северо-западе в одном и самых зеленых районов города рядом с парком Покровское-Стрешнево. Попасть в парк можно будет по благоустроенной тропе длиной 1250 метров. Богатая флора и фауна дополнят прогулку по этому экологическому освещенному променаду.
Жилой комплекс будет состоять из 8 корпусов высотой от 4 и до 47 этажей. Cтроительство разделено на три очереди, первая из которых, - корпус в 30 этажей с 330 квартирами - будет введена в эксплуатацию в 2025 году.
Архитектурный облик от одного из ведущих бюро KAMEN ARC'ITECTS. В отделке фасадов используются витражное остекление и композитные панели. Большинство квартир имеют вид на парк Покровское-Стрешнево.
Жилой комплекс выполнен с использованием монолитно-кирпичной технологии строительства. В комплексе 3 подъезда и максимальная этажность - 42 этажа. Минимальная этажность - 3 этажа. Комплекс имеет высокий класс энергоэффективности - A++.
Жилой комплекс расположен в районе Щукино города Москвы. В пешей доступности находится станция метро Стрешнево (7 минут) , также можно дойти до станции Войковская (20 минут) и Щукинская (21 минута) .
Аккредитованные банки: ВТБ
Альфа-Банк
Позвоните и узнайте условия покупки прямо сейчас!
07.04.2026
31 731 785 ₽
Продается 2-комн. квартира, площадью 56.7 м2 в монолитно-кирпичной новостройке в 6 мин. пешком от м. Стрешнево, район города - Щукино. Возможен вариант покупки с использованием ипотечных средств, есть рассрочка, возможна покупка с использованием материнского капитала, есть военная ипотека.
Жилая площадь 24.6 м2, кухня 16.9 м2. Площадь комнат: 11.3/13.3 м2, квартира без отделки. Раздельных санузлов - 2.
Квартира располагается на 19 этаже 34-этажного дома в ЖК МОМЕНТС.
Застройщик - FORMA, сдача дома - I квартал 2027 года, высота потолков 2.87 м.
Дом оборудован пассажирским лифтом, закрытая территория.
Подземная парковка, парковка охраняется. Обеспечение безопасности: видеонаблюдение, круглосуточная охрана, консьерж, противопожарная система, пропускная система. Инфраструктура: школа, детский сад, поликлиника, детские площадки, спортивные площадки, места для отдыха, супермаркет, рестораны, пункты бытового обслуживания, коммерческие объекты.
Moments - это место единения города и природы, центр жизни, где зелень парка находится буквально на расстоянии вытянутой руки. Дом, который помогает обрести гармонию и баланс в жизни.
Moments расположился на северо-западе в одном и самых зеленых районов города рядом с парком Покровское-Стрешнево. Попасть в парк можно будет по благоустроенной тропе длиной 1250 метров. Богатая флора и фауна дополнят прогулку по этому экологическому освещенному променаду.
Жилой комплекс будет состоять из 8 корпусов высотой от 4 и до 47 этажей. Cтроительство разделено на три очереди, первая из которых, - корпус в 30 этажей с 330 квартирами - будет введена в эксплуатацию в 2025 году.
Архитектурный облик от одного из ведущих бюро KAMEN ARC'ITECTS. В отделке фасадов используются витражное остекление и композитные панели. Большинство квартир имеют вид на парк Покровское-Стрешнево.
Жилой комплекс выполнен с использованием монолитно-кирпичной технологии строительства. В комплексе 3 подъезда и максимальная этажность - 42 этажа. Минимальная этажность - 3 этажа. Комплекс имеет высокий класс энергоэффективности - A++.
Жилой комплекс расположен в районе Щукино города Москвы. В пешей доступности находится станция метро Стрешнево (7 минут) , также можно дойти до станции Войковская (20 минут) и Щукинская (21 минута) .
Аккредитованные банки: ВТБ
Альфа-Банк
Позвоните и узнайте условия покупки прямо сейчас!
07.04.2026
31 620 569 ₽
Продается 1-комн. квартира, площадью 36.8 м2 в монолитно-кирпичной новостройке в 6 мин. пешком от м. Стрешнево, район города - Щукино. Возможен вариант покупки с использованием ипотечных средств, есть рассрочка, возможна покупка с использованием материнского капитала, есть военная ипотека.
Жилая площадь 14.3 м2, кухня 15.2 м2, квартира без отделки, комнаты изолированные, совмещенных санузлов - 1.
Квартира располагается на 14 этаже 40-этажного дома в ЖК МОМЕНТС.
Застройщик - FORMA, сдача дома - I квартал 2027 года, высота потолков 2.65 м.
Дом оборудован пассажирским лифтом, закрытая территория.
Подземная парковка, парковка охраняется. Обеспечение безопасности: видеонаблюдение, круглосуточная охрана, консьерж, противопожарная система, пропускная система. Инфраструктура: школа, детский сад, поликлиника, детские площадки, спортивные площадки, места для отдыха, супермаркет, рестораны, пункты бытового обслуживания, коммерческие объекты.
Moments - это место единения города и природы, центр жизни, где зелень парка находится буквально на расстоянии вытянутой руки. Дом, который помогает обрести гармонию и баланс в жизни.
Moments расположился на северо-западе в одном и самых зеленых районов города рядом с парком Покровское-Стрешнево. Попасть в парк можно будет по благоустроенной тропе длиной 1250 метров. Богатая флора и фауна дополнят прогулку по этому экологическому освещенному променаду.
Жилой комплекс будет состоять из 8 корпусов высотой от 4 и до 47 этажей. Cтроительство разделено на три очереди, первая из которых, - корпус в 30 этажей с 330 квартирами - будет введена в эксплуатацию в 2025 году.
Архитектурный облик от одного из ведущих бюро KAMEN ARC'ITECTS. В отделке фасадов используются витражное остекление и композитные панели. Большинство квартир имеют вид на парк Покровское-Стрешнево.
Жилой комплекс выполнен с использованием монолитно-кирпичной технологии строительства. В комплексе 3 подъезда и максимальная этажность - 42 этажа. Минимальная этажность - 3 этажа. Комплекс имеет высокий класс энергоэффективности - A++.
Жилой комплекс расположен в районе Щукино города Москвы. В пешей доступности находится станция метро Стрешнево (7 минут) , также можно дойти до станции Войковская (20 минут) и Щукинская (21 минута) .
Аккредитованные банки: ВТБ
Альфа-Банк
Позвоните и узнайте условия покупки прямо сейчас!
07.04.2026
23 872 233 ₽
Продается 1-комн. квартира, площадью 36.6 м2 в монолитно-кирпичной новостройке в 6 мин. пешком от м. Стрешнево, район города - Щукино. Возможен вариант покупки с использованием ипотечных средств, есть рассрочка, возможна покупка с использованием материнского капитала, есть военная ипотека.
Жилая площадь 13.7 м2, кухня 15.5 м2, квартира без отделки, комнаты изолированные, совмещенных санузлов - 1.
Квартира располагается на 28 этаже 34-этажного дома в ЖК МОМЕНТС.
Застройщик - FORMA, сдача дома - I квартал 2027 года, высота потолков 2.87 м.
Дом оборудован пассажирским лифтом, закрытая территория.
Подземная парковка, парковка охраняется. Обеспечение безопасности: видеонаблюдение, круглосуточная охрана, консьерж, противопожарная система, пропускная система. Инфраструктура: школа, детский сад, поликлиника, детские площадки, спортивные площадки, места для отдыха, супермаркет, рестораны, пункты бытового обслуживания, коммерческие объекты.
Moments - это место единения города и природы, центр жизни, где зелень парка находится буквально на расстоянии вытянутой руки. Дом, который помогает обрести гармонию и баланс в жизни.
Moments расположился на северо-западе в одном и самых зеленых районов города рядом с парком Покровское-Стрешнево. Попасть в парк можно будет по благоустроенной тропе длиной 1250 метров. Богатая флора и фауна дополнят прогулку по этому экологическому освещенному променаду.
Жилой комплекс будет состоять из 8 корпусов высотой от 4 и до 47 этажей. Cтроительство разделено на три очереди, первая из которых, - корпус в 30 этажей с 330 квартирами - будет введена в эксплуатацию в 2025 году.
Архитектурный облик от одного из ведущих бюро KAMEN ARC'ITECTS. В отделке фасадов используются витражное остекление и композитные панели. Большинство квартир имеют вид на парк Покровское-Стрешнево.
Жилой комплекс выполнен с использованием монолитно-кирпичной технологии строительства. В комплексе 3 подъезда и максимальная этажность - 42 этажа. Минимальная этажность - 3 этажа. Комплекс имеет высокий класс энергоэффективности - A++.
Жилой комплекс расположен в районе Щукино города Москвы. В пешей доступности находится станция метро Стрешнево (7 минут) , также можно дойти до станции Войковская (20 минут) и Щукинская (21 минута) .
Аккредитованные банки: ВТБ
Альфа-Банк
Позвоните и узнайте условия покупки прямо сейчас!
07.04.2026
23 820 524 ₽
Продается 1-комн. квартира, площадью 37.1 м2 в монолитно-кирпичной новостройке в 6 мин. пешком от м. Стрешнево, район города - Щукино. Возможен вариант покупки с использованием ипотечных средств, есть рассрочка, возможна покупка с использованием материнского капитала, есть военная ипотека.
Жилая площадь 14.1 м2, кухня 15.4 м2, квартира без отделки, комнаты изолированные, совмещенных санузлов - 1.
Квартира располагается на 23 этаже 40-этажного дома в ЖК МОМЕНТС.
Застройщик - FORMA, сдача дома - I квартал 2027 года, высота потолков 2.65 м.
Дом оборудован пассажирским лифтом, закрытая территория.
Подземная парковка, парковка охраняется. Обеспечение безопасности: видеонаблюдение, круглосуточная охрана, консьерж, противопожарная система, пропускная система. Инфраструктура: школа, детский сад, поликлиника, детские площадки, спортивные площадки, места для отдыха, супермаркет, рестораны, пункты бытового обслуживания, коммерческие объекты.
Moments - это место единения города и природы, центр жизни, где зелень парка находится буквально на расстоянии вытянутой руки. Дом, который помогает обрести гармонию и баланс в жизни.
Moments расположился на северо-западе в одном и самых зеленых районов города рядом с парком Покровское-Стрешнево. Попасть в парк можно будет по благоустроенной тропе длиной 1250 метров. Богатая флора и фауна дополнят прогулку по этому экологическому освещенному променаду.
Жилой комплекс будет состоять из 8 корпусов высотой от 4 и до 47 этажей. Cтроительство разделено на три очереди, первая из которых, - корпус в 30 этажей с 330 квартирами - будет введена в эксплуатацию в 2025 году.
Архитектурный облик от одного из ведущих бюро KAMEN ARC'ITECTS. В отделке фасадов используются витражное остекление и композитные панели. Большинство квартир имеют вид на парк Покровское-Стрешнево.
Жилой комплекс выполнен с использованием монолитно-кирпичной технологии строительства. В комплексе 3 подъезда и максимальная этажность - 42 этажа. Минимальная этажность - 3 этажа. Комплекс имеет высокий класс энергоэффективности - A++.
Жилой комплекс расположен в районе Щукино города Москвы. В пешей доступности находится станция метро Стрешнево (7 минут) , также можно дойти до станции Войковская (20 минут) и Щукинская (21 минута) .
Аккредитованные банки: ВТБ
Альфа-Банк
Позвоните и узнайте условия покупки прямо сейчас!
07.04.2026
23 762 624 ₽




















