Продажа недвижимости в Сапроново - Страница 5
- Сапроново »
- Недвижимость в Сапроново
Продаю двухкомнатную квартиру(Две спальни и кухня+гостиная), можно сказать "Евро-двушка", с роскошным дизайнерским ремонтом в ЖК "Royal House on Yauza" -Элитный дом в центральном округе Москвы. Недалеко от ЖК расположены набережная реки яузы, парки, старинные храмы, Московский Кремль и Красная площадь. Шикарные виды из окон на историческую часть Москвы. Панорамные окна. Потолки 3, 3 метра. Квартиры свободной планировки. Собственный двухуровневый подземный паркинг, периметральное ограждение, круглосуточное видео наблюдение внешней территории и внутренних помещений, которое производит собственная служба безопасности. Установлены централизованные системы кондиционирования и вентиляции, а также система по управлению зданием. Комфортные, высокоскоростные и бесшумные лифты. Смотрите фото и Звоните. AFY-321628811
21.03.2026
58 000 000 ₽
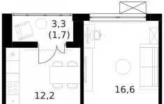
Продается квартира-студия в 6 секции ЖК Купавино , на высоком этаже с окнами на пруд! Лучший и самый дорогой, качественный ремонт в данном доме! Полная стоимость в дкп, дизайнерская отделка, полностью меблирована и укомплектована, всё для жизни есть вплоть до приборов и штор, заходи и живи! ЖК Купавино расположен в городе Старая Купавна (19 км от МКАД по Горьковскому шоссе). Территория комплекса огорожена и круглосуточно охраняется. Общая площадь застройки составляет 11000 кв. м. Название жилого комплекса выбрано не случайно. В двух шагах от дома находится живописное Купавинское озеро, излюбленное место отдыха местных жителей. Жилой комплекс расположен в очень живописном месте, на берегу Купавинского озера, береговая линия которого разделена на несколько частей: Пляжная зона, оборудованная навесами и площадками для активных игр. Прогулочная зона вдоль берега озера представляет собой зеленую аллею со скамейками и беседками. В шаговой доступности находятся все необходимые городские объекты социально-бытовой инфраструктуры. Возможен незначительный торг. Ипотека. Звоните, пишите. AFY-317736161
11.03.2026
5 400 000 ₽
Аукцион по продаже имущественного комплекса, находящегося по адресу: (Московская обл. , Луховицы, ул. Пушкина, д. 19)
Общая площадь: 0.25 га / 109.6 м
Начальная цена: 13 384 601,00
Дата окончания приема заявок: 25.05.2026 15: 00: 00
Дата проведения торгов: 29.05.2026 10: 00: 00
Кадастровые номера: 50: 35: 0030104: 387, 50: 35: 0030104: 1263
Участок расположен в Луховицах, рядом с береговой линией реки Черная, что создает дополнительные возможности для благоустройства территории. В пешей доступности - ж/д вокзал (360 м) и автовокзал (215 м) . Подходит для размещения объектов торговли, услуг, общественного питания, управления и культурных функций.
Реализация проходит на ЭТП Сбербанк АСТ. С подробной информацией вы можете ознакомиться на сайте ДОМ. РФ или позвонить нам по телефону. ДОМ. РФ - единственный агент РФ, который имеет право вовлекать в хозяйственный оборот неиспользуемые или используемые не по назначению объекты федерального имущества: земельные участки, здания, помещения согласно ФЗ 161 от 24.07.2008. География лотов, реализуемых на торгах, составляет более чем 90 регионов и является уникальной для РФ.
09.04.2026
13 384 601 ₽
Аукцион по продаже земельного участка, находящегося по адресу: (Московская обл. , Истра, д. Высоково)
Общая площадь: 0.27 га
Начальная цена: 9 385 000,00
Дата окончания приема заявок: 25.05.2026 15: 00: 00
Дата проведения торгов: 29.05.2026 10: 00: 00
Кадастровые номера: 50: 08: 0040140: 352
Земельный участок площадью 0,27 га расположен в Истринском районе в деревне Высоково. Участок соседствует с ЖК «Малая Истра», где расположена вся необходимая инфраструктура для жизни. Локация имеет удобные выезды на основные транспортные артерии: Волоколамское шоссе и ЦКАД.
Реализация проходит на ЭТП Сбербанк АСТ. С подробной информацией вы можете ознакомиться на сайте ДОМ. РФ или позвонить нам по телефону. ДОМ. РФ - единственный агент РФ, который имеет право вовлекать в хозяйственный оборот неиспользуемые или используемые не по назначению объекты федерального имущества: земельные участки, здания, помещения согласно ФЗ 161 от 24.07.2008. География лотов, реализуемых на торгах, составляет более чем 90 регионов и является уникальной для РФ.
09.04.2026
9 385 000 ₽
Продается 2-комн. квартира, площадью 59.4 кв.м.
Жилая площадь 29.7 м2, кухня 12.2 кв. м, ремонта нет, окна выходят во двор и на улицу.
Квартира располагается на 13 этаже 13-этажного панельного дома в ЖК 1-й Ленинградский.
Дом оборудован пассажирским лифтом.
09.04.2026
16 625 763 ₽
Продается 2-комн. квартира, площадью 59.6 м2.
Жилая площадь 29.7 кв. м, кухня 12.2 кв. м, ремонта нет, окна выходят во двор и на улицу.
Квартира располагается на 7 этаже 14-этажного панельного дома в ЖК 1-й Ленинградский.
Дом оборудован пассажирским лифтом.
09.04.2026
16 695 510 ₽
Продается новое производственно-складское помещение по Дмитровскому шоссе - ICPARK КЛЮЧ.
Назначение:
под производство и склад
Продажа осуществляется напрямую от собственника парка, что гарантирует отсутствие каких-либо комиссий и скрытых платежей!
Объект расположен в северном направлении с выездом на Дмитровское шоссе (4 км). Расстояние от МКАД - 30 км.
Координаты: 56.148996, 37.449949
Формат Point. Блок А, Бокс 6.
Планировочное решение включает в себя пространство для производства, склад или логистику 356,85 кв.м, а также офисную часть 120,60 кв.м.
Наличие мезонина.
ОСНОВНЫЕ ХАРАКТЕРИСТИКИ:
- Класс: A
- Температура: Сухой склад
- Автоматическая спринклерная система пожаротушения
- Высота: 8 м
- Нагрузка на пол: 5 т/кв.м
- Высококачественные бетонные полы с антипылевым покрытием и упрочняющим слоем
- Сетка колонн: 12x24
- Ворота: докового типа и на нулевой отметке
КОММУНИКАЦИИ:
- Электричество: 25 кВт (возможно увеличение мощности)
- Вентиляция: приточно-вытяжная
- Водоснабжение, канализация
- Индивидуальные приборы учета
ИНФРАСТРУКТУРА:
- Парковки для транспорта: для грузовых авто — 2 места, для легкового авто — 4 места
- Доступ к производственно-складским помещениям 24/7
- Охраняемая территория
- Видеонаблюдение
- Скоростной интернет и телефония
ДОПОЛНИТЕЛЬНО:
- Собственная профессиональная управляющая компания
- Клининг
- Консьерж-сервис
- Мобильное приложение
- Маркетплейс услуг
- Кафе на территории
- Зоны отдыха и спортивные площадки
Готовы предоставить подробную информацию и организовать просмотр!
09.04.2026
69 663 855 ₽
Продается новое готовое к заезду производственно-складское помещение вблизи МКАД в промышленном парке INDUSTRIAL CITY -ICPARK Сынково.
Планировочное решение включает в себя пространство для производства, склад или логистику 653,9 кв.м, а также офисную часть 110,6 кв.м
Объект расположен в южном направлении выездом на Симферопольское шоссе (М-2). Расстояние от МКАД - 30 км.
Координаты: 55.336677, 37.597621
Продажа осуществляется напрямую от собственника парка, что гарантирует отсутствие каких-либо комиссий и скрытых платежей!
Формат Base. Блок A, Бокс 6.
ОСНОВНЫЕ ХАРАКТЕРИСТИКИ:
- Класс: A
- Температура: Сухой склад
- Автоматическая спринклерная система пожаротушения
- Высота: 8 м
- Нагрузка на пол: 5 т/кв.м
- Высококачественные бетонные полы с антипылевым покрытием и упрочняющим слоем
- Сетка колонн: 12x24
- Ворота: докового типа
КОММУНИКАЦИИ:
- Электричество: 25 кВт (возможно увеличение мощности)
- Вентиляция: приточно-вытяжная
- Водоснабжение, канализация
- Индивидуальные приборы учета
ИНФРАСТРУКТУРА:
- Парковки для транспорта: для грузовых авто — 1 место, для легкового авто — 3 места
- Доступ к производственно-складским помещениям 24/7
- Охраняемая территория
- Видеонаблюдение
- Скоростной интернет и телефония
ДОПОЛНИТЕЛЬНО:
- Собственная профессиональная управляющая компания
- Клининг
- Консьерж-сервис
- Мобильное приложение
- Маркетплейс услуг
- Кафе на территории
- Зоны отдыха и спортивные площадки
Готовы предоставить подробную информацию и организовать просмотр!
09.04.2026
131 557 453 ₽
Продается новое готовое к заезду производственно-складское помещение вблизи МКАД в промышленном парке INDUSTRIAL CITY -ICPARK Коледино.
Планировочное решение включает в себя пространство для производства, склад или логистику 901.44 кв.м, а также офисную часть 109,93 кв.м. Общая площадь 1011.37 кв.м.
Объект расположен в южном направлении с выездом на Симферопольское шоссе (М-2). Расстояние от МКАД — 24 км.
Координаты: 55.373194, 37.575127
Продажа осуществляется напрямую от собственника парка, что гарантирует отсутствие каких-либо комиссий и скрытых платежей!
Формат Point. Блок D, Бокс 10.
ОСНОВНЫЕ ХАРАКТЕРИСТИКИ:
- Класс: A
- Температура: Сухой склад
- Автоматическая спринклерная система пожаротушения
- Высота: 8 м
- Нагрузка на пол: 5 т/кв.м
- Высококачественные бетонные полы с антипылевым покрытием и упрочняющим слоем
- Сетка колонн: 12x24
- Ворота: на нулевой отметке
КОММУНИКАЦИИ:
- Электричество: 25 кВт (возможно увеличение мощности)
- Вентиляция: приточно-вытяжная
- Водоснабжение, канализация
- Индивидуальные приборы учета
ИНФРАСТРУКТУРА:
- Парковки для транспорта: для грузовых авто — 1 место, для легкового авто — 3 места
- Доступ к производственно-складским помещениям 24/7
- Охраняемая территория
- Видеонаблюдение
- Скоростной интернет и телефония
ДОПОЛНИТЕЛЬНО:
- Собственная профессиональная управляющая компания
- Клининг
- Консьерж-сервис
- Мобильное приложение
- Маркетплейс услуг
- Кафе на территории
- Зоны отдыха и спортивные площадки
Готовы предоставить подробную информацию и организовать просмотр!"
09.04.2026
135 539 762 ₽
Продажа отдельно стоящего двухэтажного здания, предназначенного для размещения торгового центра. Здание расположено в центральной части жилого комплекса «1-й Донской» — на первой линии домов, с собственной зоной входов/выходов.
Локация и трафик
ТЦ находится в густонаселенном районе с высокой плотностью жилой застройки. Комплекс формируется вокруг нового общественного центра, а само здание оказывается в точке естественного притяжения пешеходов и автомобилистов.
Транспортная доступность
15 минут пешком до станции «Калинина» (МЦД-5) — пассажиропоток линии обеспечивает дополнительный транзитный трафик.
20 минут на автомобиле от метро Домодедовская — удобный подъезд для гостей из соседних районов.
Аудитория и емкость рынка
На территории ЖК будет построено пять 16–17-этажных многосекционных корпусов.
Общее население жилого комплекса — более 8 000 человек.
Это постоянные покупатели без необходимости привлечения трафика «с нуля» — дети, взрослые, семьи с разными уровнями дохода.
Срок реализации
Ввод в эксплуатацию — 1 квартал 2027 года.
Это возможность войти в проект на стадии строительства и получить коммерческие лучшие условия!
09.04.2026
377 361 454 ₽
Просторная 5-комнатная квартира с дизайнерским ремонтом и высокими потолками. Отличный вариант для семьи, которая ценит комфорт и статусное расположение в престижном районе Москвы. Возможна ипотека.
Расположение и транспорт:
8 минут пешком от м. «Мичуринский проспект».
Район: Проспект Вернадского — один из самых зеленых и престижных районов Москвы.
Дом: 13-этажный (квартира на последних этажах — 12 и 13).
О квартире:
Формат: Двухуровневая квартира.
Площадь: 167 м2.
Планировка: 5 изолированных комнат — достаточно пространства для большой семьи, кабинета и гостевой зоны.
Высота потолков: 3.2 метра — создает ощущение воздуха и свободы.
Санузлы: 1 раздельный + 2 совмещенных — максимальное удобство для всех членов семьи.
Остекление: 2 лоджии, окна выходят на две стороны (во двор и на улицу).
Ремонт и состояние:
Качественный современный ремонт по авторскому проекту — можно въезжать и жить, не тратя время и деньги на отделку.
Покрытие полов: паркет и плитка.
Бонус: по договоренности можем оставить мебель — переезжайте с комфортом.
Условия продажи:
Цена: 73 480 000 руб. (прямая продажа от собственника).
Возможна ипотека — включая семейную (уточняйте условия).
Обременения: нет, чистая продажа.
Для просмотра:
Свяжитесь с нами, чтобы увидеть квартиру своими глазами и почувствовать атмосферу этого пространства. Готовы ответить на любые вопросы.
09.04.2026
73 480 000 ₽
Предлагается к продаже уютный дуплекс 186 квадратных метров с мангальной зоной и зоной отдыха на заднем дворе площадью 3 сотки.
ЛОКАЦИЯ: Московская область, город Красногорск, село Николо-Урюпино. От МКАД до дома 10 минут! 9 км по Новой Риге с выездом на шоссе без пробок. В радиусе 2 км щедрая и развитая инфраструктура, много объектов социального назначения в пешей доступности. Отличные соседи. Рядом две школы и детский сад. В посёлке детские площадки, поблизости винотека, супермаркеты, фитнесс зал.
УЧАСТОК: Участок очень ухоженный: вымощенная зона парковки на два-три автомобиля, дом в тупиковой части улицы, а на заднем дворе живая изгородь, плотный газон и дорожки с подсветкой, зона отдыха с мангалом.
ДОМ: Двухэтажный дуплекс 186 квадратов с тремя просторными спальнями, 3 санузла и с 3 гардеробными. Большая кухня-гостиная с панорамным остеклением на веранду. Большая уютная веранда как продолжение зоны отдыха на участке. Санузел на каждом этаже. Гараж на один автомобиль. Выполнен дизайнерский качественный ремонт для собственного проживания из дорогостоящих материалов. Дизайн в уютном современном стиле в светлых тонах. Фасад отделан деревом. Было выполнено дополнительное утепление и звукоизоляция. Вся мебель и техника остается по согласованию. Фундамент - шведская утепленная плита, мягкая кровля, лиственница на фасаде, окна и внутренние коммуникации Rehau.
Магистральный газ, очистка воды, электричество 18 кВт.
Участок и строение оформлены в собственность, документы готовы к сделке, дом готов стать вашим родным гнездом!
Показы в любое время, звоните!
09.04.2026
38 000 000 ₽
Предлагается в продажу помещение свободного назначения, расположенное в ЖК 1-й Донской площадью 1474.6 кв.м. Располагается на 1 этаже 1-этажного корпуса. Помещение идеально подойдет для магазина, кафе, офиса или другого бизнеса благодаря функциональной планировке и большому потоку потенциальных клиентов.
Информация о комплексе:
Комплекс 1-й Донской расположен в 7 км от МКАД по трассе М-4 Дон. В нем сочетаются все плюсы комфортной городской среды и природного окружения. В проекте достаточно большой процент квартир, выходящих на 2-3 стороны света.
На ощущение динамики работает и разная этажность зданий.
Теплая цветовая палитра фасадов отражает природу Дона. Вечерами дома преображаются благодаря архитектурной подсветке, выгодно выделяясь на городском фоне.
Природа оказывает положительное влияние на человека на всех уровнях восприятия: через зрение, запахи, звуки, тактильные ощущения. Неподалеку от ЖК Первый Донской: Ермолинский парк, Видновский лесопарк, Жуковский парк
Транспортная доступность:
Комплекс удобно расположен в 7 км от МКАД по трассе М-4 Дон (через Видное) . Расстояние до Каширского шоссе составляет 12 км.
Добраться до метро и центра Москвы позволяет развитая сеть маршрутов общественного наземного транспорта.
Действующая ж/д станция Калинина Павелецкого направления в 15-17 минутах ходьбы (МЦД-5 в 2025-2026 гг) .
Внутренняя инфраструктура:
Проект 1-й Донской соседствует с бурно развивающимся районом, основная инфраструктура которого уже сложилась. В строительстве современных жилых комплексов в округе есть свои плюсы: здесь формируется продуманная и комфортная городская среда.
Что касается внутренней инфраструктуры, на территории квартала будут расположены собственные муниципальные 2 детских садика и школа, которые помогут совместить приятное с полезным.
Территория комплекса пронизана целой сетью живописных пешеходных маршрутов, позволяющих попасть в любой уголок района. Основные пути, как водится, "торговые". Они проходят вдоль магазинов, кафе и других представителей коммерции и отделяются от проезжей части зеленой "фито" - стеной. Среди крупных социальных объектов предусмотрены своя поликлиника и торговый центр с примыкающей площадью для общественных мероприятий.
Уют начинается с продуманного подъезда. Сквозные подъезды наполнены светом благодаря сплошному остеклению.
08.04.2026
380 093 268 ₽
Продается новое готовое к заезду производственно-складское помещение вблизи МКАД в промышленном парке INDUSTRIAL CITY -ICPARK Коледино.
Планировочное решение включает в себя пространство для производства, склад или логистику 859,2 кв.м, а также офисную часть 109,93 кв.м.
Объект расположен в южном направлении с выездом на Симферопольское шоссе (М-2). Расстояние от МКАД — 24 км.
Координаты: 55.373194, 37.575127
Продажа осуществляется напрямую от собственника парка, что гарантирует отсутствие каких-либо комиссий и скрытых платежей!
Формат Point. Блок D, Бокс 11.
ОСНОВНЫЕ ХАРАКТЕРИСТИКИ:
- Класс: A
- Температура: Сухой склад
- Автоматическая спринклерная система пожаротушения
- Высота: 8 м
- Нагрузка на пол: 5 т/кв.м
- Высококачественные бетонные полы с антипылевым покрытием и упрочняющим слоем
- Сетка колонн: 12x24
- Ворота: на нулевой отметке
КОММУНИКАЦИИ:
- Электричество: 25 кВт (возможно увеличение мощности)
- Вентиляция: приточно-вытяжная
- Водоснабжение, канализация
- Индивидуальные приборы учета
ИНФРАСТРУКТУРА:
- Парковки для транспорта: для грузовых авто — 1 место, для легкового авто — 3 места
- Доступ к производственно-складским помещениям 24/7
- Охраняемая территория
- Видеонаблюдение
- Скоростной интернет и телефония
ДОПОЛНИТЕЛЬНО:
- Собственная профессиональная управляющая компания
- Клининг
- Консьерж-сервис
- Мобильное приложение
- Маркетплейс услуг
- Кафе на территории
- Зоны отдыха и спортивные площадки
Готовы предоставить подробную информацию и организовать просмотр!
09.04.2026
129 878 926 ₽
Сдаётся в аренду новое производственно-складское помещение, полностью готовое к заезду, в современном промышленном парке INDUSTRIAL CITY - ICPARK КЛЮЧ.
Назначение:
под производство и склад
Аренда напрямую от собственника парка INDUSTRIAL CITY, что гарантирует отсутствие каких-либо комиссий и скрытых платежей!
Объект расположен в северном направлении с выездом на Дмитровское шоссе (4 км). Расстояние от МКАД - 30 км.
Координаты: 56.148996, 37.449949
Формат Base. Блок А, Бокс 19.
Планировочное решение включает в себя пространство для производства, склада или логистику 648 кв.м, а также офисную часть 106,05 кв.м.
ОСНОВНЫЕ ХАРАКТЕРИСТИКИ:
- Класс: A
- Температура: Сухой склад
- Автоматическая спринклерная система пожаротушения
- Высота: 8 м
- Нагрузка на пол: 5 т/кв.м
- Высококачественные бетонные полы с антипылевым покрытием и упрочняющим слоем
- Сетка колонн: 12x24
- Ворота: докового типа и на нулевой отметке
КОММУНИКАЦИИ:
- Электричество: 25 кВт (возможно увеличение мощности)
- Вентиляция: приточно-вытяжная
- Водоснабжение, канализация
- Индивидуальные приборы учета
ИНФРАСТРУКТУРА:
- Парковки для транспорта: для грузовых авто — 2 места, для легкового авто — 3 места
- Доступ к производственно-складским помещениям 24/7
- Охраняемая территория
- Видеонаблюдение
- Скоростной интернет и телефония
ДОПОЛНИТЕЛЬНО:
- Собственная профессиональная управляющая компания
- Клининг
- Консьерж-сервис
- Мобильное приложение
- Маркетплейс услуг
- Кафе на территории
- Зоны отдыха и спортивные площадки
Готовы предоставить подробную информацию и организовать просмотр!
09.04.2026
952 868 ₽
Сдаётся в аренду производственно-складское помещение в современном промышленном парке -ICPARK ТИТАН.
Назначение:
под производство и склад
Это полноценное решение для вашего бизнеса, позволяющее масштабировать производство и логистику.
Помещение находится всего в 8 км от МКАД по скоростному шоссе М-4 «Дон», что обеспечивает отличную транспортную доступность. Координаты: 55.528404, 37.684668
Мы предлагаем формат Base, Блок В, Бокс 11, общей площадью 977,78 кв.м., которая включает:
Производственная и складская зона: 871,73 кв.м
Офисная часть: 106,05 кв.м
Включено в ставку: эксплуатационные расходы (OPEX)
Аренда напрямую от собственника INDUSTRIAL CITY, без комиссий и скрытых платежей.
Основные характеристики и инфраструктура
Класс: A
Температура: Сухой склад
Высота потолков: 8 м
Полы: высококачественные бетонные полы с антипылевым покрытием, нагрузка до 5 т/кв.м
Сетка колонн: 12x24
Ворота: докового типа
Пожаротушение: автоматическая спринклерная система
Коммуникации:
Электричество: 25 кВт (с возможностью увеличения)
Вентиляция: приточно-вытяжная
Другое: водоснабжение, канализация, индивидуальные приборы учета
Инфраструктура:
Парковка: 2 места для грузового и 3 для легкового транспорта
Доступ: 24/7
Безопасность: охраняемая территория, видеонаблюдение
Связь: скоростной интернет и телефония
Дополнительно:
Профессиональная управляющая компания
Кафе, зоны отдыха и спортивные площадки на территории
Клининг, консьерж-сервис, мобильное приложение, маркетплейс услуг
Готовы ответить на все вопросы.
09.04.2026
1 469 358 ₽
Сдается в аренду производственно-складское помещение в современном ICPARK ТИТАН!
Назначение:
под производство и склад
Идеальное расположение для вашего бизнеса - всего 8 км от МКАД по скоростному шоссе М-4 «Дон». Это не просто склад, а готовое решение для масштабирования вашего дела.
Координаты: 55.528404, 37.684668
Аренда напрямую от собственника INDUSTRIAL CITY, что гарантирует отсутствие каких-либо комиссий и скрытых платежей!
Формат Base. Блок В, Бокс 11.
Планировка включает просторное помещение для производства, склада или логистики (871,73 кв.м), а также комфортную офисную часть (106,05 кв.м).
ОСНОВНЫЕ ХАРАКТЕРИСТИКИ:
Класс: A
Температура: Сухой склад
Автоматическая спринклерная система пожаротушения
Высота: 8 м
Нагрузка на пол: 5 т/кв.м
Высококачественные бетонные полы с антипылевым покрытием и упрочняющим слоем
Сетка колонн: 12x24
Ворота: докового типа
КОММУНИКАЦИИ:
Электричество: 25 кВт (возможно увеличение мощности)
Вентиляция: приточно-вытяжная
Водоснабжение, канализация
Индивидуальные приборы учета
ИНФРАСТРУКТУРА:
Парковки для транспорта: для грузовых авто — 2 места, для легкового авто — 3 места
Доступ к производственно-складским помещениям 24/7
Охраняемая территория
Видеонаблюдение
Скоростной интернет и телефония
ДОПОЛНИТЕЛЬНО:
Собственная профессиональная управляющая компания
Клининг
Консьерж-сервис
Мобильное приложение
Маркетплейс услуг
Кафе на территории
Зоны отдыха и спортивные площадки
Свяжитесь с нами, и мы ответим на все ваши вопросы об условиях аренды!
09.04.2026
1 469 359 ₽
Продается 1-комн. квартира, площадью 46 кв.м.
Жилая площадь 20 кв.м, кухня 10 кв.м, лоджий - 1.
Квартира располагается на 6 этаже 25-этажного кирпичного дома 2013 года постройки.
09.04.2026
11 000 000 ₽
Продается 3-комн. квартира, площадью 84.3 м2.
Жилая площадь 39.3 м2, ремонта нет, окна выходят на улицу.
Квартира располагается на 5 этаже 17-этажного монолитного дома.
Дом оборудован пассажирским лифтом, есть мусоропровод, закрытая территория, парковка охраняемая.
08.04.2026
51 652 296 ₽
Новый 1-но этажный коттедж 118 кв.м на участке 6 соток в КП «Новая Дятловка».
Ключи – май 2026г. Завершается внешняя отделка фасада.
Дом без внутренней отделки.
Семейная и IT ипотека - 6%.
Планировка по проекту:
Просторная кухня-гостиная 36 кв.м с окнами на три стороны света и панорамной дверью на крытую террасу; три комнаты (12/14/14 кв.м), ванная комната, бойлерная, гардеробная, прихожая, гостевой с/у.
Высокие потолки- 3 метра.
Под кровлей можно оборудовать дополнительное помещение площадью от 18 до 30 кв.м с высотой до 1,8 м.
Коммуникации: Электричество и магистральный газ заведены на участок.
Земельный участок: 6 соток, ровный, правильной формы, перед домом предусмотрено место для парковки 2-х авто. Забор - металлический штакетник высотой 2м.
Назначение - индивидуальное жилищное строительство. Прописка – д.Дятловка, г.Балашиха. Без проблем прикрепиться к садику, школе, поликлинике.
Коттедж построен из высококачественных материалов с соблюдением всех технологий:
- Фундамент: Свайный с ростверком (монолитный с армированием) с заглублением 3м;
- Стены: Газобетонный блок Бонолит, толщина внешних стен 400мм;
- Фасад: Штукатурка, покраска, фасадный декор; Цоколь утеплен и облицован термопанелями; выполнена отмостка;
- Кровля: Четырехскатная из метало-черепицы с установкой снегозадержателей и водосточной системы;
- Окна Melke: Металло-пластиковые двухкамерные стеклопакеты с поворотно-откидным механизмом;
- Крыльцо с навесом;
- Входная металлическая дверь.
О поселке: Асфальтированные дороги. Общее освещение. Закрытая территория. В поселке оборудована детско-спортивная площадка с воркаутом и зоной отдыха, отдельной площадкой для малышей и теннисным столом.
Чистый и свежий воздух, удаленность от трасс и многоэтажек, тишина и уединение с природой и при этом оптимальное расстояние до города- всего 3 км от мкр. Железнодорожный и 17 км от МКАД. Ближайшие станции метро: Новокосино, Железнодорожная, Некрасовка.
Инфраструктура:
Все поблизости: Детский сад, школа, амбулатория, парк, банк, почта, спортивный комплекс с плавательным бассейном в Агрогородке - 10 мин на авто/автобусе. В д.Дятловка расположена остановка школьного автобуса, где утром забирает, а после уроков привозит ребят школьный автобус. В шаговой доступности Вкус Вилл, Пятерочка, пункты Яндекс/Озон/Валдбериз, аптека и тд.
ТЦ, рестораны, кафе, сетевые магазины и другая социально-бытовая инфраструктура расположена в городе Железнодорожном - 15 минут на авто.
Как добраться:
От КП до остановки автобуса 10 минут пешком. Автобус №26 идет до ж/д станции "Черное"- 10 минут, до ж/д станции "Железнодорожная" - 20 минут.
Открыт участок автомобильной трассы М12 Москва-Ногинск, легкое метро МЦД-4 (от Апрелевки до Железнодорожного), что значительно сокращает время в пути.
Продажа от застройщика. Вся стоимость в договор. Одобрение ипотеки и сопровождение сделки - бесплатно. Индивидуальная рассрочка до 12 месяцев.
Добро пожаловать в Новую Дятловку!
08.04.2026
13 500 000 ₽
Продается уютная квартира в ЖК "Миракс Парк"
Просторная и светлая квартира площадью 146 кв. м, расположенная на 9 этаже 11-этажного монолитного дома премиум-класса.
Описание квартиры:
В квартире выполнен качественный ремонт в классическом стиле.
Двухуровневая планировка:
Верхний этаж: просторная кухня-гостиная с лоджией, изолированная спальня, санузел и гардеробная.
Нижний этаж: 2 изолированные спальни (одна с лоджией, другая с панорамными окнами) , санузел и прачечная.
Инфраструктура:
Под домом имеется большая подземная парковка, в собственности 2 парковочных места (продаются за отдельную плату) .
Удобный выезд на проспект Вернадского и Ленинский проспект.
До метро Тропарево всего 10 минут спокойной ходьбы.
Жилой комплекс "Миракс Парк" предлагает закрытую и огороженную территорию с концепцией "двор без машин" на площади 16 гектаров, собственным озером и зоопарком. Прямо через дорогу расположен Тропарево-Никулинский лесопарк.
Территория охраняется круглосуточно и оборудована видеонаблюдением. На территории работают фитнес-центры, рестораны, кафе, детские сады, аптека, магазины и салоны красоты. В пешей доступности находятся детский сад, школа, лицей РАНХиГС, детская поликлиника и широкий выбор высших учебных заведений.
Свободная продажа, один взрослый собственник, полная стоимость в договоре.
Не упустите возможность стать владельцем роскошной квартиры в одном из лучших комплексов города!
Для получения дополнительной информации и записи на просмотр, пожалуйста, звоните по телефону.
08.04.2026
95 000 000 ₽




















