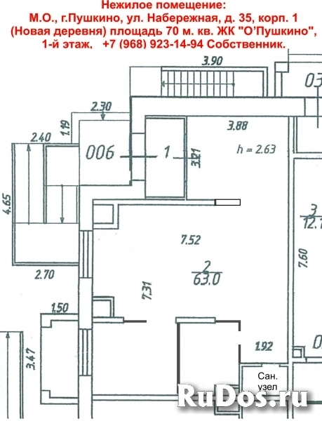
Собственник ☎ +7 (968) 923-14-94 сдаст нежилое помещение 70м2
Объявление снято с публикации. Посмотреть другие объявления в этой категории
Размещено 14 ноября 2023
32
0
Жалоба
- Параметры объявления
- Общая площадь (м2): 70
- Описание
Московская область, Пушкино, микрорайон Новое Пушкино
Комментарии остановлены!
