Объявление о квартирах в Песках - Страница 10
- Пески »
- Недвижимость
- » Квартиры в Песках
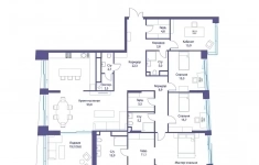
Продается просторная квартира площадью 155.20 м2 в жилом комплексе РЕКА. Квартира находится в 4 секции корпуса 3 (будет введен в эксплуатацию в 4 кв. 2026) . Этаж 8-й из 14.
В квартире продуманная функциональная планировка с просторной кухней 35.70 м2. Жилая площадь - 52.70 м2. Высота потолка от 3,65 м. Изолированные комнаты, 4 санузла(1 раздельный и 3 совмещенных) . Окна на смежные стороны. Виды на природный парк и реку.
РЕКА - клубный дом от Донстрой на западе Москвы, у границы природного заповедника "Долина реки Сетунь", по соседству с МГУ и МГИМО, дипломатическими представительствами зарубежных стран. В 5 минутах ходьбы находится станция метро "Мичуринский проспект", от которой до центра можно доехать за 15 минут. Также 15 минут понадобится, чтобы добраться на автомобиле до Садового кольца.
Прямо из дома можно попасть в природную часть грандиозного парка "Событие". Здесь созданы детские игровые площадки "Луг" и "Лес", большая воркаут-зона, поле для командных видов спорта, площадка для пикников, смотровые площадки с великолепными видами, летний амфитеатр для лекториев и летняя школа.
Архитектурный проект дома выполнен в стиле современной классики: фасады с облицовкой из натурального камня и металлическими декоративными элементами.
В доме представлены элитные клубные резиденции. Одна из секций целиком состоит из квартир с финишной авторской отделкой: дизайнерские интерьеры, итальянские кухни, премиальная бытовая техника и сантехника. В наличии имеются пентхаусы с террасами и каминами.
В непосредственной близости от дома предусмотрены школы, детские сады, магазины, фитнес-центры, кафе и рестораны, медицинские центры - все, что необходимо для жизни.
Закрытый двор без машин обеспечен круглосуточной охраной и системами контроля доступа. Двор создан как ландшафтное продолжение окружающих природных парков и зонирован для различных видов отдыха, детских игр, занятий спортом.
Работает шоурум.
Позвоните и запишитесь на показ квартиры.
05.09.2025
142 784 000 ₽
Продается просторная квартира площадью 215.50 м2 в жилом комплексе РЕКА. Квартира находится в 1 секции корпуса 3 (будет введен в эксплуатацию в 4 кв. 2026) . Этаж 9-й из 16.
В квартире продуманная функциональная планировка с просторной кухней 53.00 м2. Жилая площадь - 68.20 м2. Высота потолка от 3,65 м. Изолированные комнаты, 4 санузла(1 раздельный и 3 совмещенных) . Окна на три стороны света. Виды на природный парк и реку.
РЕКА - клубный дом от Донстрой на западе Москвы, у границы природного заповедника "Долина реки Сетунь", по соседству с МГУ и МГИМО, дипломатическими представительствами зарубежных стран. В 5 минутах ходьбы находится станция метро "Мичуринский проспект", от которой до центра можно доехать за 15 минут. Также 15 минут понадобится, чтобы добраться на автомобиле до Садового кольца.
Прямо из дома можно попасть в природную часть грандиозного парка "Событие". Здесь созданы детские игровые площадки "Луг" и "Лес", большая воркаут-зона, поле для командных видов спорта, площадка для пикников, смотровые площадки с великолепными видами, летний амфитеатр для лекториев и летняя школа.
Архитектурный проект дома выполнен в стиле современной классики: фасады с облицовкой из натурального камня и металлическими декоративными элементами.
В доме представлены элитные клубные резиденции. Одна из секций целиком состоит из квартир с финишной авторской отделкой: дизайнерские интерьеры, итальянские кухни, премиальная бытовая техника и сантехника. В наличии имеются пентхаусы с террасами и каминами.
В непосредственной близости от дома предусмотрены школы, детские сады, магазины, фитнес-центры, кафе и рестораны, медицинские центры - все, что необходимо для жизни.
Закрытый двор без машин обеспечен круглосуточной охраной и системами контроля доступа. Двор создан как ландшафтное продолжение окружающих природных парков и зонирован для различных видов отдыха, детских игр, занятий спортом.
Работает шоурум.
Позвоните и запишитесь на показ квартиры.
07.11.2025
235 757 000 ₽
Продается просторная квартира площадью 152.50 м2 в жилом комплексе РЕКА. Квартира находится во 2 секции корпуса 3 (будет введен в эксплуатацию в 4 кв. 2026) . Этаж 10-й из 12.
В квартире продуманная функциональная планировка с просторной кухней 34.50 м2. Жилая площадь - 50.00 м2. Высота потолка от 3,65 м. Изолированные комнаты, 4 санузла(1 раздельный и 3 совмещенных) . Окна на три стороны света. Виды на природный парк и реку.
РЕКА - клубный дом от Донстрой на западе Москвы, у границы природного заповедника "Долина реки Сетунь", по соседству с МГУ и МГИМО, дипломатическими представительствами зарубежных стран. В 5 минутах ходьбы находится станция метро "Мичуринский проспект", от которой до центра можно доехать за 15 минут. Также 15 минут понадобится, чтобы добраться на автомобиле до Садового кольца.
Прямо из дома можно попасть в природную часть грандиозного парка "Событие". Здесь созданы детские игровые площадки "Луг" и "Лес", большая воркаут-зона, поле для командных видов спорта, площадка для пикников, смотровые площадки с великолепными видами, летний амфитеатр для лекториев и летняя школа.
Архитектурный проект дома выполнен в стиле современной классики: фасады с облицовкой из натурального камня и металлическими декоративными элементами.
В доме представлены элитные клубные резиденции. Одна из секций целиком состоит из квартир с финишной авторской отделкой: дизайнерские интерьеры, итальянские кухни, премиальная бытовая техника и сантехника. В наличии имеются пентхаусы с террасами и каминами.
В непосредственной близости от дома предусмотрены школы, детские сады, магазины, фитнес-центры, кафе и рестораны, медицинские центры - все, что необходимо для жизни.
Закрытый двор без машин обеспечен круглосуточной охраной и системами контроля доступа. Двор создан как ландшафтное продолжение окружающих природных парков и зонирован для различных видов отдыха, детских игр, занятий спортом.
Работает шоурум.
Позвоните и запишитесь на показ квартиры.
05.09.2025
163 480 000 ₽
Продается 2-комн. квартира, площадью 61.67 м2 в монолитной новостройке в 8 мин. пешком от м. Бауманская, район города - Басманный. Возможен вариант покупки с использованием ипотечных средств.
Жилая площадь 47.79 м2, кухня 3.12 м2. Площадь комнат: 30.73/17.06 м2, чистовая отделка.
Квартира располагается на 8 этаже 19-этажного дома в ЖК MYPRIORITY Basmanny.
Застройщик - ГК Гранель, сдача дома - III квартал 2024 года.
Подземная парковка
MYPRIORITY Basmanny - привилегия высоких стандартов жизни в уютном центре столицы. Жилой комплекс бизнес-класса на берегу Яузы, рядом с МГТУ имени Баумана, в окружении памятников архитектуры и старинных усадебных парков.
За несколько минут неспешной прогулки от жилого комплекса можно дойти до станции метро «Бауманская», набережной реки Яузы и парка. Рядом находится лучший технический вуз страны - МГТУ им. Баумана. Чтобы выехать на автомобиле на Садовое кольцо, понадобится всего 5 минут.
Позвоните и узнайте условия покупки прямо сейчас!
13.11.2025
36 030 027 ₽
Продается 2-комн. квартира, площадью 61.73 м2 в монолитной новостройке в 8 мин. пешком от м. Бауманская, район города - Басманный. Возможен вариант покупки с использованием ипотечных средств.
Жилая площадь 43.61 м2, кухня 3.2 м2. Площадь комнат: 25.28/18.33 м2, чистовая отделка, балконов - 1.
Квартира располагается на 13 этаже 19-этажного дома в ЖК MYPRIORITY Basmanny.
Застройщик - ГК Гранель, сдача дома - III квартал 2024 года.
Подземная парковка
MYPRIORITY Basmanny - привилегия высоких стандартов жизни в уютном центре столицы. Жилой комплекс бизнес-класса на берегу Яузы, рядом с МГТУ имени Баумана, в окружении памятников архитектуры и старинных усадебных парков.
За несколько минут неспешной прогулки от жилого комплекса можно дойти до станции метро «Бауманская», набережной реки Яузы и парка. Рядом находится лучший технический вуз страны - МГТУ им. Баумана. Чтобы выехать на автомобиле на Садовое кольцо, понадобится всего 5 минут.
Позвоните и узнайте условия покупки прямо сейчас!
13.11.2025
37 532 846 ₽
Татьяна. Отличное предложение! Предлагается Вашему вниманию видовая евро-двухкомнатная квартира в ЖК бизнес-класса "Парковые Аллеи" в городе Красногорск.
В квартире выполнен качественный евроремонт на завершающем этапе. Остались лишь финальные штрихи, что позволит новому владельцу подредактировать его под себя. Планировка: Изолированная комната (17,9 м2), кухня-гостиная (17 м2), утепленная просторная лоджия (10,2 м2), совмещенный санузел, просторный коридор. Общая площадь по ЕГРН: 45,3 м2 (без учета лоджии).
Преимущества комплекса и локации: Современная входная группа, система видеонаблюдения и охрана. Возможно приобретение машиноместа в просторном подземном паркинге. На территории комплекса расположен фитнес-клуб Gym Space с бассейном, залами единоборств и фитнес-садом.
Развитая внешняя инфраструктура: В шаговой доступности расположены Губайловский экопарк, детский городок "Сказочный", многочисленные магазины, супермаркеты, кафе, рестораны, образовательные и медицинские учреждения. Благоустроенный двор с детскими и спортивными площадками, наземная парковка для жителей и гостей.
Транспортная доступность: Удобный выезд на Пятницкое и Волоколамское шоссе, МКАД, М-9 "Балтия". Остановка общественного транспорта рядом с домом, регулярное сообщение с несколькими станциями метро. В 20 минутах езды на автобусе расположена станция МЦД "Красногорская" с регулярным железнодорожным сообщением с Москвой.
Юридическая информация:
- взрослые собственники.
- Договор участия в долевом строительстве от 2014 года.
- Без обременений и перепланировок.
- Полная стоимость в договоре.
- Свободная продажа.
Показ в удобное для Вас время по предварительной договоренности. Звоните для получения дополнительной информации.
12.09.2025
11 300 000 ₽
Продается 2-комн. квартира, площадью 62.94 м2 в монолитной новостройке в 8 мин. пешком от м. Бауманская, район города - Басманный. Возможен вариант покупки с использованием ипотечных средств.
Жилая площадь 44.91 м2, кухня 5.04 м2. Площадь комнат: 23.67/21.24 м2, чистовая отделка, балконов - 1.
Квартира располагается на 11 этаже 19-этажного дома в ЖК MYPRIORITY Basmanny.
Застройщик - ГК Гранель, сдача дома - III квартал 2024 года.
Подземная парковка
MYPRIORITY Basmanny - привилегия высоких стандартов жизни в уютном центре столицы. Жилой комплекс бизнес-класса на берегу Яузы, рядом с МГТУ имени Баумана, в окружении памятников архитектуры и старинных усадебных парков.
За несколько минут неспешной прогулки от жилого комплекса можно дойти до станции метро «Бауманская», набережной реки Яузы и парка. Рядом находится лучший технический вуз страны - МГТУ им. Баумана. Чтобы выехать на автомобиле на Садовое кольцо, понадобится всего 5 минут.
Позвоните и узнайте условия покупки прямо сейчас!
07.11.2025
36 772 011 ₽
Продается 2-к квартира площадью 59.3 кв.м. на 2-м этаже
ЖК «Яковлево» – 8 корпусов 1-ой и 2-ой очереди строительства введены в эксплуатацию.
Жилой комплекс «Яковлево» — это проект для тех, кому близка энергия природы в сочетании с инновационными технологиями XXI века. При возведении ЖК применена технология крупногабаритного модульного домостроения. Квартиры здесь — это выбор нового поколения, для которого дом является местом, где можно черпать силы для новых свершений.
Элегантный минимализм в архитектуре разработан так, чтобы не нарушить, а дополнить гармонию окружающего ландшафта. Пластика фасада базируется на простой геометрии, а отличительной особенностью комплекса является невысокая этажность (4 этажа) большей части домов. Только два корпуса — 11 и 16 этажей.
Инфраструктура ЖК:
15 жилых корпусов
Школа и детский сад
Молочно-раздаточный пункт
Дворы с детскими площадками и зонами отдыха
Магазины формата «у дома» на 1-х этажах зданий
Автостоянка на территории
30 минут на транспорте до ближайших станций метро «Тёплый Стан», «Коммунарка»
В перспективе — открытие станции метро в г. Троицк в непосредственной близости от ЖК «Яковлево».
Условия приобретения:
Льготная ипотека и возможность использования материнского капитала.
Рассрочка на покупку квартиры:
Первоначальный взнос — от 30% от стоимости квартиры.
Срок рассрочки — 1 год.
Платежи вносятся равными частями (ежемесячно или ежеквартально).
Рассрочка платная: стоимость квартиры увеличивается на 20% от размера рассрочки.
Подробные условия уточняйте в нашем офисе продаж!
02.11.2025
12 028 412 ₽
Продается 1-к квартира площадью 36.8 кв.м. на 1-м этаже
ЖК «Яковлево» – 8 корпусов 1-ой и 2-ой очереди строительства введены в эксплуатацию.
Жилой комплекс «Яковлево» — это проект для тех, кому близка энергия природы в сочетании с инновационными технологиями XXI века. При возведении ЖК применена технология крупногабаритного модульного домостроения. Квартиры здесь — это выбор нового поколения, для которого дом является местом, где можно черпать силы для новых свершений.
Элегантный минимализм в архитектуре разработан так, чтобы не нарушить, а дополнить гармонию окружающего ландшафта. Пластика фасада базируется на простой геометрии, а отличительной особенностью комплекса является невысокая этажность (4 этажа) большей части домов. Только два корпуса — 11 и 16 этажей.
Инфраструктура ЖК:
15 жилых корпусов
Школа и детский сад
Молочно-раздаточный пункт
Дворы с детскими площадками и зонами отдыха
Магазины формата «у дома» на 1-х этажах зданий
Автостоянка на территории
30 минут на транспорте до ближайших станций метро «Тёплый Стан», «Коммунарка»
В перспективе — открытие станции метро в г. Троицк в непосредственной близости от ЖК «Яковлево».
Условия приобретения:
Льготная ипотека и возможность использования материнского капитала.
Рассрочка на покупку квартиры:
Первоначальный взнос — от 30% от стоимости квартиры.
Срок рассрочки — 1 год.
Платежи вносятся равными частями (ежемесячно или ежеквартально).
Рассрочка платная: стоимость квартиры увеличивается на 20% от размера рассрочки.
Подробные условия уточняйте в нашем офисе продаж!
02.11.2025
8 047 424 ₽
Продаются 3-к апартаменты площадью 60.00 кв.м. на 4-м этаже
AIST RESIDENCE — это комплекс апартаментов для тех, кто стремится к гармонии между динамичной городской жизнью и отдыхом на природе. Расположенный в одном из наиболее развитых районов города, он предоставляет своим жителям не только комфортное жилье, но и доступ ко всей необходимой инфраструктуре, которая создаёт идеальные условия для жизни энергичных людей, знающих цену своему времени.
Окружение комплекса продумано до мелочей. В шаговой доступности расположены два великолепных парка — Воронцовский парк и Битцевский лесопарк. Эти зеленые оазисы позволяют проводить время на свежем воздухе, наслаждаясь природой, занимаясь спортом или отдыхая с семьей. Независимо от того, предпочитаете ли вы утренние пробежки по тропинкам или пикники на природе, здесь каждый найдет занятие по душе.
Для юных исследователей и их родителей AIST RESIDENCE предлагает отличный выбор образовательных учреждений. В районе расположены 18 университетов, 6 школ и 6 детских садов, что делает это место привлекательным для семей с детьми. Не менее важным преимуществом является пешая доступность бизнес-центров, что позволяет не тратить драгоценные часы на дорогу и больше времени уделять важным делам.
Любители шопинга и развлечений оценят близость торгово-развлекательных центров "Калужский" и Prime Plaza, где можно найти всё необходимое — от модных бутиков до современных кинотеатров и ресторанов. Это идеальное место для тех, кто ценит разнообразие и активный образ жизни.
Комплекс апартаментов AIST RESIDENCE относится к классу "Комфорт", предлагая своим жителям современные планировки, просторные апартаменты и качественные материалы. Стены комплекса выполнены из монолита, что гарантирует надежность и долговечность. Для автомобилистов предусмотрена подземная парковка, что особенно актуально в условиях большого города.
AIST RESIDENCE — это идеальное место для тех, кто стремится к балансу между работой и отдыхом, городским комфортом и природным окружением.
02.11.2025
14 762 400 ₽
Продаются 1-к апартаменты площадью 39.10 кв.м. на 2-м этаже
AIST RESIDENCE — это комплекс апартаментов для тех, кто стремится к гармонии между динамичной городской жизнью и отдыхом на природе. Расположенный в одном из наиболее развитых районов города, он предоставляет своим жителям не только комфортное жилье, но и доступ ко всей необходимой инфраструктуре, которая создаёт идеальные условия для жизни энергичных людей, знающих цену своему времени.
Окружение комплекса продумано до мелочей. В шаговой доступности расположены два великолепных парка — Воронцовский парк и Битцевский лесопарк. Эти зеленые оазисы позволяют проводить время на свежем воздухе, наслаждаясь природой, занимаясь спортом или отдыхая с семьей. Независимо от того, предпочитаете ли вы утренние пробежки по тропинкам или пикники на природе, здесь каждый найдет занятие по душе.
Для юных исследователей и их родителей AIST RESIDENCE предлагает отличный выбор образовательных учреждений. В районе расположены 18 университетов, 6 школ и 6 детских садов, что делает это место привлекательным для семей с детьми. Не менее важным преимуществом является пешая доступность бизнес-центров, что позволяет не тратить драгоценные часы на дорогу и больше времени уделять важным делам.
Любители шопинга и развлечений оценят близость торгово-развлекательных центров "Калужский" и Prime Plaza, где можно найти всё необходимое — от модных бутиков до современных кинотеатров и ресторанов. Это идеальное место для тех, кто ценит разнообразие и активный образ жизни.
Комплекс апартаментов AIST RESIDENCE относится к классу "Комфорт", предлагая своим жителям современные планировки, просторные апартаменты и качественные материалы. Стены комплекса выполнены из монолита, что гарантирует надежность и долговечность. Для автомобилистов предусмотрена подземная парковка, что особенно актуально в условиях большого города.
AIST RESIDENCE — это идеальное место для тех, кто стремится к балансу между работой и отдыхом, городским комфортом и природным окружением.
02.11.2025
10 971 460 ₽
Продаются 2-к апартаменты площадью 56.80 кв.м. на 9-м этаже
AIST RESIDENCE — это комплекс апартаментов для тех, кто стремится к гармонии между динамичной городской жизнью и отдыхом на природе. Расположенный в одном из наиболее развитых районов города, он предоставляет своим жителям не только комфортное жилье, но и доступ ко всей необходимой инфраструктуре, которая создаёт идеальные условия для жизни энергичных людей, знающих цену своему времени.
Окружение комплекса продумано до мелочей. В шаговой доступности расположены два великолепных парка — Воронцовский парк и Битцевский лесопарк. Эти зеленые оазисы позволяют проводить время на свежем воздухе, наслаждаясь природой, занимаясь спортом или отдыхая с семьей. Независимо от того, предпочитаете ли вы утренние пробежки по тропинкам или пикники на природе, здесь каждый найдет занятие по душе.
Для юных исследователей и их родителей AIST RESIDENCE предлагает отличный выбор образовательных учреждений. В районе расположены 18 университетов, 6 школ и 6 детских садов, что делает это место привлекательным для семей с детьми. Не менее важным преимуществом является пешая доступность бизнес-центров, что позволяет не тратить драгоценные часы на дорогу и больше времени уделять важным делам.
Любители шопинга и развлечений оценят близость торгово-развлекательных центров "Калужский" и Prime Plaza, где можно найти всё необходимое — от модных бутиков до современных кинотеатров и ресторанов. Это идеальное место для тех, кто ценит разнообразие и активный образ жизни.
Комплекс апартаментов AIST RESIDENCE относится к классу "Комфорт", предлагая своим жителям современные планировки, просторные апартаменты и качественные материалы. Стены комплекса выполнены из монолита, что гарантирует надежность и долговечность. Для автомобилистов предусмотрена подземная парковка, что особенно актуально в условиях большого города.
AIST RESIDENCE — это идеальное место для тех, кто стремится к балансу между работой и отдыхом, городским комфортом и природным окружением.
02.11.2025
14 892 960 ₽
Продается просторная квартира площадью 166.00 м2 в жилом комплексе ДОМ XXII. Квартира находится в 1 секции корпуса 1. Этаж 2-й из 11.
Квартира без чистовой отделки, с просторной кухней 44.50 м2. Жилая площадь - 58.60 м2. Высота потолка от 3.50.
ДОМ XXII расположен в Хамовниках - одном из самых респектабельных и тихих районов Москвы. Прямо напротив дома - Новодевичий монастырь, по соседству - Саввинская набережная Москвы-реки и сквер Девичьего поля. Расположение дома позволяет за считанные минуты добраться до всех знаковых мест столицы. Например, на автомобиле до Садового кольца 5 минут, до Дома Правительства - 8, до Кремля - 10.
Неоклассический архитектурный проект переменной этажности (9-12 этажей) выполнен мастерской «Сергей Киселев и Партнеры». Фасады облицованы натуральным мрамором и гранитом, их оригинальный декор создан Андреем, Павлом и Петром Наличами. Благородный силуэт дома подчеркнут французскими балконами и моллированным остеклением на углах.
В доме всего 109 квартир: лоты с патио, пентхаусы с панорамными террасами и возможностью установки камина, а также классические элитные квартиры с большими гостиными, мастер-спальнями, приватными ванными и гардеробными, террасами и лоджиями.
У дома предусмотрена зона дроп-офф. В интерьерах лобби использованы люксовые отделочные материалы, эксклюзивные световые инсталляции, декоративное озеленение. Премиальную атмосферу дополняют зенитный фонарь с естественным светом, водопад, лаунж у камина и библиотека. Площадь лобби 660 м2, высота потолков - до 6,5 м.
Двор превращен в тихий усадебный парк площадью 490 м2. Здесь создана приватная атмосфера для уединенного отдыха: дубовая аллея, пруд с живописным мостиком, галерея-берсо, зеленые комнаты, садовый камин, фонтаны. Для детей - игровая площадка. Для занятий спортом - воркаут. Предусмотрен контроль доступа на территорию, круглосуточная охрана, видеонаблюдение.
Неподалеку находятся лучшие школы: №57, №1535, Филипповская школа, школа «Золотое Сечение». Для знатоков гастрономии рядом - лучшие рестораны: Verd, Peach, «Сахалин», Modus, Soho Rooms, модный гастрономический кластер «Усачевский рынок». Для занятий спортом - спортивный комплекс «Лужники». Для ценителей искусства - Московский дворец молодежи
15.11.2025
342 624 000 ₽
В рамках процедуры банкротства реализуется квартира по адресу: Московская область, г. Железнодорожный, ул. Чаплыгина, д. 1, кв. 84. Кадастровый номер: 50: 50: 0000000: 11646Общей площадью: 121,8 кв. м
Прием заявок на ЭТП "Уральская электронная торговая площадка", задаток 10%. Специалисты Банка сопровождают процедуру участия в торгах "под ключ": - регистрация на ЭТП;- подача заявки;- торги;- сопровождение сделки купли-продажи. Все вопросы можно уточнить на сайте активов банка Portal-DA. Либо обращаться по телефону в будние дни с 09: 00 до 18: 00 по МСК.
14.11.2025
8 560 056 ₽
Продается просторная квартира площадью 179.40 м2 в жилом комплексе РЕКА. Квартира находится во 2 секции корпуса 2 введен в эксплуатацию в 4 кв. 2023. Этаж 10-й из 12.
В квартире продуманная функциональная планировка с просторной кухней 16.20 м2. Жилая площадь - 99.50 м2. Высота потолка от 3,65 м. Изолированные комнаты, 4 санузла(1 раздельный и 3 совмещенных) . Окна на противоположные стороны. Виды на природный парк и реку.
РЕКА - клубный дом от Донстрой на западе Москвы, у границы природного заповедника "Долина реки Сетунь", по соседству с МГУ и МГИМО, дипломатическими представительствами зарубежных стран. В 5 минутах ходьбы находится станция метро "Мичуринский проспект", от которой до центра можно доехать за 15 минут. Также 15 минут понадобится, чтобы добраться на автомобиле до Садового кольца.
Прямо из дома можно попасть в природную часть грандиозного парка "Событие". Здесь созданы детские игровые площадки "Луг" и "Лес", большая воркаут-зона, поле для командных видов спорта, площадка для пикников, смотровые площадки с великолепными видами, летний амфитеатр для лекториев и летняя школа.
Архитектурный проект дома выполнен в стиле современной классики: фасады с облицовкой из натурального камня и металлическими декоративными элементами.
В доме представлены элитные клубные резиденции. Одна из секций целиком состоит из квартир с финишной авторской отделкой: дизайнерские интерьеры, итальянские кухни, премиальная бытовая техника и сантехника. В наличии имеются пентхаусы с террасами и каминами.
В непосредственной близости от дома предусмотрены школы, детские сады, магазины, фитнес-центры, кафе и рестораны, медицинские центры - все, что необходимо для жизни.
Закрытый двор без машин обеспечен круглосуточной охраной и системами контроля доступа. Двор создан как ландшафтное продолжение окружающих природных парков и зонирован для различных видов отдыха, детских игр, занятий спортом.
Работает шоурум.
Позвоните и запишитесь на показ квартиры.
19.10.2025
251 558 800 ₽
Татьяна. Продается уютная и просторная 3-комнатная квартира!
Предлагаем вашему вниманию комфортабельную трехкомнатную квартиру, полностью готовую к проживанию.
Интерьер и удобства:
Кухня: Полностью оборудована необходимой мебелью и техникой: холодильник, электроплита с духовым шкафом, посудомоечная машина, телевизор, обеденная зона.
Гостиная: Стенка под телевизор, шведская стенка.
Детская: Обставлена детской мебелью, есть место для детской кровати.
Спальня: Письменный стол, системы хранения, предусмотрено место для дивана.
Гардеробная/кладовая: Дополнительное место для хранения вещей.
Санузел: Совмещенный, установлена стиральная машина.
Интернет: Высокоскоростной интернет для комфортной работы и отдыха.
Дом и инфраструктура:
Дом в отличном состоянии, есть пассажирский лифт и мусоропровод. Остановка общественного транспорта рядом с домом, 15 минут до метро Войковская. Развитая инфраструктура: большое количество магазинов, школ, детских садов и поликлиник в шаговой доступности. 15 минут пешком до Тимирязевского парка.
Юридическая чистота:
Один взрослый собственник.
Более 5 лет в собственности.
Без перепланировок и обременений.
Оперативный показ и быстрый выход на сделку! Звоните, уважаемые клиенты и коллеги, с удовольствием ответим на все ваши вопросы!
07.11.2025
29 800 000 ₽
Продается 3-комн. квартира, площадью 91.5 м2.
Жилая площадь 70 м2, кухня 15 кв.м. Площадь комнат: 20/20/30 м2, ремонт по авторскому проекту, комнаты изолированные. Квартира меблированная. Раздельных санузлов - 1, совмещенных санузлов - 1.
На полу паркет, окна выходят во двор.
Квартира располагается на 2 этаже 16-этажного монолитного дома в ЖК Режиссер 2006 года постройки. Застройщик - Строймонолит-сервис.
Дом оборудован одним грузовым и 2 пассажирскими лифтами, закрытая территория.
Подземная парковка, есть гостевые парковочные места 30 шт, парковка охраняется. Обеспечение безопасности: видеонаблюдение, круглосуточная охрана, противопожарная система, пропускная система. Инфраструктура: школа, детский сад, поликлиника, детские площадки, спортивные площадки, места для отдыха.
12.11.2025
56 000 000 ₽
Продается просторная квартира площадью 152.10 м2 в жилом комплексе ДОМ XXII. Квартира находится в 3 секции корпуса 1. Этаж 3-й из 12.
Квартира без чистовой отделки, с просторной кухней 40.90 м2. Жилая площадь - 55.30 м2. Высота потолка от 3.50.
ДОМ XXII расположен в Хамовниках - одном из самых респектабельных и тихих районов Москвы. Прямо напротив дома - Новодевичий монастырь, по соседству - Саввинская набережная Москвы-реки и сквер Девичьего поля. Расположение дома позволяет за считанные минуты добраться до всех знаковых мест столицы. Например, на автомобиле до Садового кольца 5 минут, до Дома Правительства - 8, до Кремля - 10.
Неоклассический архитектурный проект переменной этажности (9-12 этажей) выполнен мастерской «Сергей Киселев и Партнеры». Фасады облицованы натуральным мрамором и гранитом, их оригинальный декор создан Андреем, Павлом и Петром Наличами. Благородный силуэт дома подчеркнут французскими балконами и моллированным остеклением на углах.
В доме всего 109 квартир: лоты с патио, пентхаусы с панорамными террасами и возможностью установки камина, а также классические элитные квартиры с большими гостиными, мастер-спальнями, приватными ванными и гардеробными, террасами и лоджиями.
У дома предусмотрена зона дроп-офф. В интерьерах лобби использованы люксовые отделочные материалы, эксклюзивные световые инсталляции, декоративное озеленение. Премиальную атмосферу дополняют зенитный фонарь с естественным светом, водопад, лаунж у камина и библиотека. Площадь лобби 660 м2, высота потолков - до 6,5 м.
Двор превращен в тихий усадебный парк площадью 490 м2. Здесь создана приватная атмосфера для уединенного отдыха: дубовая аллея, пруд с живописным мостиком, галерея-берсо, зеленые комнаты, садовый камин, фонтаны. Для детей - игровая площадка. Для занятий спортом - воркаут. Предусмотрен контроль доступа на территорию, круглосуточная охрана, видеонаблюдение.
Неподалеку находятся лучшие школы: №57, №1535, Филипповская школа, школа «Золотое Сечение». Для знатоков гастрономии рядом - лучшие рестораны: Verd, Peach, «Сахалин», Modus, Soho Rooms, модный гастрономический кластер «Усачевский рынок». Для занятий спортом - спортивный комплекс «Лужники». Для ценителей искусства - Московский дворец молодежи
14.11.2025
360 172 800 ₽
Продается просторная квартира площадью 150.30 м2 в жилом комплексе РЕКА. Квартира находится в 4 секции корпуса 3 (будет введен в эксплуатацию в 4 кв. 2026) . Этаж 6-й из 14.
В квартире продуманная функциональная планировка с просторной кухней 35.70 м2. Жилая площадь - 48.70 м2. Высота потолка от 3,65 м. Изолированные комнаты, 4 санузла(1 раздельный и 3 совмещенных) . Окна на смежные стороны. Виды на природный парк и реку.
РЕКА - клубный дом от Донстрой на западе Москвы, у границы природного заповедника "Долина реки Сетунь", по соседству с МГУ и МГИМО, дипломатическими представительствами зарубежных стран. В 5 минутах ходьбы находится станция метро "Мичуринский проспект", от которой до центра можно доехать за 15 минут. Также 15 минут понадобится, чтобы добраться на автомобиле до Садового кольца.
Прямо из дома можно попасть в природную часть грандиозного парка "Событие". Здесь созданы детские игровые площадки "Луг" и "Лес", большая воркаут-зона, поле для командных видов спорта, площадка для пикников, смотровые площадки с великолепными видами, летний амфитеатр для лекториев и летняя школа.
Архитектурный проект дома выполнен в стиле современной классики: фасады с облицовкой из натурального камня и металлическими декоративными элементами.
В доме представлены элитные клубные резиденции. Одна из секций целиком состоит из квартир с финишной авторской отделкой: дизайнерские интерьеры, итальянские кухни, премиальная бытовая техника и сантехника. В наличии имеются пентхаусы с террасами и каминами.
В непосредственной близости от дома предусмотрены школы, детские сады, магазины, фитнес-центры, кафе и рестораны, медицинские центры - все, что необходимо для жизни.
Закрытый двор без машин обеспечен круглосуточной охраной и системами контроля доступа. Двор создан как ландшафтное продолжение окружающих природных парков и зонирован для различных видов отдыха, детских игр, занятий спортом.
Работает шоурум.
Позвоните и запишитесь на показ квартиры.
05.09.2025
135 720 900 ₽
К продаже предлагается право требование участника долевого строительства по договору о долевом строительстве квартира-студия, общ. Пл. 22, 87 кв.м. , номер квартиры 322, этаж 15 секция 22. Дом располагается на земельном участке с кад. №50: 21: 0060310: 1677. Адрес объекта Московская область, г. Видное, дер. Коробово, корп. 7.2. Строительство осуществляет: ООО Специализированный застройщик «Самолет- Коробово» ОГРН 1137746376877Продажа осуществляется в рамках процедуры банкротства. Предлагаем воспользоваться услугами профессионального агента для приобретения с торгов. В случае возникновения вопросов - обращайтесь.
14.11.2025
7 640 000 ₽
Продается просторная квартира площадью 218.60 м2 в жилом комплексе РЕКА. Квартира находится в 1 секции корпуса 3 (будет введен в эксплуатацию в 4 кв. 2026) . Этаж 6-й из 16.
В квартире продуманная функциональная планировка с просторной кухней 54.60 м2. Жилая площадь - 89.50 м2. Высота потолка от 3,65 м. Изолированные комнаты, 4 санузла(1 раздельный и 3 совмещенных) . Окна на три стороны света. Виды на природный парк и реку.
РЕКА - клубный дом от Донстрой на западе Москвы, у границы природного заповедника "Долина реки Сетунь", по соседству с МГУ и МГИМО, дипломатическими представительствами зарубежных стран. В 5 минутах ходьбы находится станция метро "Мичуринский проспект", от которой до центра можно доехать за 15 минут. Также 15 минут понадобится, чтобы добраться на автомобиле до Садового кольца.
Прямо из дома можно попасть в природную часть грандиозного парка "Событие". Здесь созданы детские игровые площадки "Луг" и "Лес", большая воркаут-зона, поле для командных видов спорта, площадка для пикников, смотровые площадки с великолепными видами, летний амфитеатр для лекториев и летняя школа.
Архитектурный проект дома выполнен в стиле современной классики: фасады с облицовкой из натурального камня и металлическими декоративными элементами.
В доме представлены элитные клубные резиденции. Одна из секций целиком состоит из квартир с финишной авторской отделкой: дизайнерские интерьеры, итальянские кухни, премиальная бытовая техника и сантехника. В наличии имеются пентхаусы с террасами и каминами.
В непосредственной близости от дома предусмотрены школы, детские сады, магазины, фитнес-центры, кафе и рестораны, медицинские центры - все, что необходимо для жизни.
Закрытый двор без машин обеспечен круглосуточной охраной и системами контроля доступа. Двор создан как ландшафтное продолжение окружающих природных парков и зонирован для различных видов отдыха, детских игр, занятий спортом.
Работает шоурум.
Позвоните и запишитесь на показ квартиры.
05.09.2025
245 706 400 ₽




















