Продам двухэтажный комплекс по ул. Аустрина
Объявление снято с публикации. Посмотреть другие объявления в этой категории
Размещено 22 июля 2024
30
0
Жалоба
- Параметры объявления
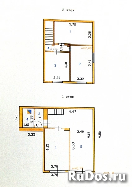
- Общая площадь (м2): 128
- Описание
Комментарии остановлены!
