Объявление о квартирах в Павловском Посаде - Страница 5
- Павловский Посад »
- Недвижимость
- » Квартиры в Павловском Посаде
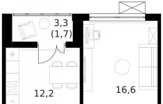
Продается 1-комн. квартира, площадью 42.6 м2 в монолитно-кирпичной новостройке в 6 мин. пешком от м. Стрешнево, район города - Щукино. Возможен вариант покупки с использованием ипотечных средств, есть рассрочка, возможна покупка с использованием материнского капитала, есть военная ипотека.
Жилая площадь 15.5 м2, кухня 19 м2, предчистовая отделка, комнаты изолированные, совмещенных санузлов - 1.
Квартира располагается на 27 этаже 30-этажного дома в ЖК МОМЕНТС.
Застройщик - FORMA, сдача дома - III квартал 2025 года, высота потолков 3.15 м.
Дом оборудован пассажирским лифтом, закрытая территория.
Подземная парковка, парковка охраняется. Обеспечение безопасности: видеонаблюдение, круглосуточная охрана, консьерж, противопожарная система, пропускная система. Инфраструктура: школа, детский сад, поликлиника, детские площадки, спортивные площадки, места для отдыха, супермаркет, рестораны, пункты бытового обслуживания, коммерческие объекты.
Moments - это место единения города и природы, центр жизни, где зелень парка находится буквально на расстоянии вытянутой руки. Дом, который помогает обрести гармонию и баланс в жизни.
Moments расположился на северо-западе в одном и самых зеленых районов города рядом с парком Покровское-Стрешнево. Попасть в парк можно будет по благоустроенной тропе длиной 1250 метров. Богатая флора и фауна дополнят прогулку по этому экологическому освещенному променаду.
Жилой комплекс будет состоять из 8 корпусов высотой от 4 и до 47 этажей. Cтроительство разделено на три очереди, первая из которых, - корпус в 30 этажей с 330 квартирами - будет введена в эксплуатацию в 2025 году.
Архитектурный облик от одного из ведущих бюро KAMEN ARC'ITECTS. В отделке фасадов используются витражное остекление и композитные панели. Большинство квартир имеют вид на парк Покровское-Стрешнево.
Жилой комплекс выполнен с использованием монолитно-кирпичной технологии строительства. В комплексе 3 подъезда и максимальная этажность - 42 этажа. Минимальная этажность - 3 этажа. Комплекс имеет высокий класс энергоэффективности - A++.
Жилой комплекс расположен в районе Щукино города Москвы. В пешей доступности находится станция метро Стрешнево (7 минут) , также можно дойти до станции Войковская (20 минут) и Щукинская (21 минута) .
Аккредитованные банки: ВТБ
Альфа-Банк
Позвоните и узнайте условия покупки прямо сейчас!
07.04.2026
27 886 215 ₽
Продается 2 комн. пентхаус с европланировкой, площадью 252.5 м2 в монолитной новостройке в 14 мин. пешком от м. Мичуринский проспект, район города - Раменки. Возможен вариант покупки с использованием ипотечных средств, есть рассрочка, возможна покупка с использованием материнского капитала, есть военная ипотека.
Жилая площадь 239 м2, кухня 13 м2, чистовая отделка с мебелью, комнаты изолированные, совмещенных санузлов - 1, балконов - 1.
Квартира располагается на 14 этаже 16-этажного дома в ЖК Река.
Застройщик - ДОНСТРОЙ, сдача дома - IV квартал 2021 года, дом уже сдан, высота потолков 3.65 м, есть мусоропровод, закрытая территория.
Подземная парковка, парковка охраняется. Обеспечение безопасности: круглосуточная охрана. Инфраструктура: школа, детский сад, поликлиника, детские площадки, спортивные площадки, места для отдыха.
Река-3 - клубный дом от Донстрой на западе Москвы, у границы природного заповедника. Уникальное преимущество дома - ощущение загородной жизни в 15 минутах езды от центра столицы, прямо у парка и с видами на природу.
Река-3 - клубный дом переменной высотности от 9 до 12 этажей. Фасад дома в стиле «современная классика» облицован натуральным камнем и с первого взгляда впечатляет элегантной солидностью. В парадном лобби - потолки до 9,9 м, панорамное остекление «в пол», дизайнерские интерьеры и детский клуб. Архитектурная концепция дома создана известным московским архитектором Павлом Андреевым специально для РЕКИ: большинство окон обращено на парк.
Река-3 находится в престижном районе Раменки , по соседству с МГУ и МГИМО, дипломатическими представительствами зарубежных стран, крупными парками и природными заказниками («Долина Сетунь», «Воробьевы горы», Парк Победы, Парк 50-летия Октября и Ботанический сад МГУ) .
В 5 минутах ходьбы - станция метро «Мичуринский проспект», от которой до центра можно доехать за 15 минут. Также 15 минут понадобится, чтобы добраться на автомобиле до Садового кольца. В 10 минутах езды находятся МКАД и ТТК, а в 25 минутах езды - аэропорт «Внуково».
Позвоните и узнайте условия покупки прямо сейчас!
03.04.2026
256 287 500 ₽
Предлагаем атмосферную квартиру для любителей пространства и эксклюзивности! Дом с историческим шармом 1927 года постройки с высокими потолками. Комнаты 15.3 кв.м. и 16.2 кв.м. изолированные, комнаты 14.8 кв.м. и 11.5 кв.м. смежные, большой холл, ванная 4.2 кв.м. с окном, кухня 8.1 кв.м. , балкон 1.6 кв.м. . В квартире высокие потолки, толстые стены, которые обеспечивают хорошую шумоизоляцию, прохладу летом и тепло зимой. Интересная планировка позволит создать эксклюзивный интерьер. Состояние требует вложений! Перекрытия деревянные! Развитая инфраструктура района, все в шаговой доступности, идеальное сочетание уюта и городского комфорта. Полная стоимость в договоре. Показ по договоренности.
03.04.2026
24 500 000 ₽
Продается 1-комнатная квартира от застройщика: общая площадь 37.20 м, жилая 12.80 м, кухня 14.10 м, 16-й этаж, жилой квартал «Вдохновение», корпус 33 (секция 3) . Срок сдачи: 4 квартал 2027 года.
Позвоните сейчас и забронируйте квартиру!
Квартал бизнес-класса СИМВОЛ - это городское пространство нового поколения в историческом районе Лефортово, на границе ЦАО, в 2 км от Садового кольца.
Бионическая архитектура СИМВОЛА превратила Лефортово в суперсовременное и модное пространство. Из окон, с балконов и террас просторных квартир СИМВОЛА открываются отличные виды на город и новый парк «Зеленая река», «протекающий» через все кварталы комплекса на 2 км.
В квартале уже есть все, что нужно для комфортной жизни: кафе и рестораны, супермаркеты и магазины, медицинские и физкультурно-оздоровительные центры, салоны красоты и барбершопы, аптеки и оптики, химчистки, пункты доставки и другие сервисы - всего более 90 действующих объектов внутриквартальной инфраструктуры.
Для юных жителей СИМВОЛА открыты детский сад и инженерный лицей при МГТУ им. Баумана.
Особенности квартала:
Свой парк «Зеленая Река» - 10 га зелени и развлечений на любой вкус!
Уникальная для Москвы архитектура - Проект создан архитектурной мастерской ATRIUM по дизайн-коду британских бюро LDA Design и UHA London.
Богатая инфраструктура с детскими садами и лицеем им. Баумана, кафе и ресторанами, супермаркетами и аптеками, зоной для фитнеса, бассейном и мед. центром.
Квартиры с панорамными окнами, террасами, ванными с окнами и каминами редких форматов.
Закрытые безопасные зелёные дворы-парки без машин!
06.04.2026
25 258 800 ₽
Продается 3 комн. пентхаус с европланировкой, площадью 275.6 м2 в монолитной новостройке в 14 мин. пешком от м. Мичуринский проспект, район города - Раменки. Возможен вариант покупки с использованием ипотечных средств, есть рассрочка, возможна покупка с использованием материнского капитала, есть военная ипотека.
Жилая площадь 256 м2, кухня 19 м2, чистовая отделка с мебелью, комнаты изолированные, совмещенных санузлов - 1, балконов - 1.
Квартира располагается на 14 этаже 16-этажного дома в ЖК Река.
Застройщик - ДОНСТРОЙ, сдача дома - IV квартал 2021 года, дом уже сдан, высота потолков 3.65 м, есть мусоропровод, закрытая территория.
Подземная парковка, парковка охраняется. Обеспечение безопасности: круглосуточная охрана. Инфраструктура: школа, детский сад, поликлиника, детские площадки, спортивные площадки, места для отдыха.
Река-3 - клубный дом от Донстрой на западе Москвы, у границы природного заповедника. Уникальное преимущество дома - ощущение загородной жизни в 15 минутах езды от центра столицы, прямо у парка и с видами на природу.
Река-3 - клубный дом переменной высотности от 9 до 12 этажей. Фасад дома в стиле «современная классика» облицован натуральным камнем и с первого взгляда впечатляет элегантной солидностью. В парадном лобби - потолки до 9,9 м, панорамное остекление «в пол», дизайнерские интерьеры и детский клуб. Архитектурная концепция дома создана известным московским архитектором Павлом Андреевым специально для РЕКИ: большинство окон обращено на парк.
Река-3 находится в престижном районе Раменки , по соседству с МГУ и МГИМО, дипломатическими представительствами зарубежных стран, крупными парками и природными заказниками («Долина Сетунь», «Воробьевы горы», Парк Победы, Парк 50-летия Октября и Ботанический сад МГУ) .
В 5 минутах ходьбы - станция метро «Мичуринский проспект», от которой до центра можно доехать за 15 минут. Также 15 минут понадобится, чтобы добраться на автомобиле до Садового кольца. В 10 минутах езды находятся МКАД и ТТК, а в 25 минутах езды - аэропорт «Внуково».
Позвоните и узнайте условия покупки прямо сейчас!
02.04.2026
307 569 600 ₽
Продается 5-комн. квартира с европланировкой, площадью 218.6 м2 в монолитной новостройке в 14 мин. пешком от м. Мичуринский проспект, район города - Раменки. Возможен вариант покупки с использованием ипотечных средств, есть рассрочка, возможна покупка с использованием материнского капитала, есть военная ипотека.
Жилая площадь 198 м2, кухня 20 м2, чистовая отделка с мебелью, комнаты изолированные, совмещенных санузлов - 1, балконов - 1.
Квартира располагается на 6 этаже 16-этажного дома в ЖК Река.
Застройщик - ДОНСТРОЙ, сдача дома - IV квартал 2021 года, дом уже сдан, высота потолков 3.65 м, есть мусоропровод, закрытая территория.
Подземная парковка, парковка охраняется. Обеспечение безопасности: круглосуточная охрана. Инфраструктура: школа, детский сад, поликлиника, детские площадки, спортивные площадки, места для отдыха.
Река-3 - клубный дом от Донстрой на западе Москвы, у границы природного заповедника. Уникальное преимущество дома - ощущение загородной жизни в 15 минутах езды от центра столицы, прямо у парка и с видами на природу.
Река-3 - клубный дом переменной высотности от 9 до 12 этажей. Фасад дома в стиле «современная классика» облицован натуральным камнем и с первого взгляда впечатляет элегантной солидностью. В парадном лобби - потолки до 9,9 м, панорамное остекление «в пол», дизайнерские интерьеры и детский клуб. Архитектурная концепция дома создана известным московским архитектором Павлом Андреевым специально для РЕКИ: большинство окон обращено на парк.
Река-3 находится в престижном районе Раменки , по соседству с МГУ и МГИМО, дипломатическими представительствами зарубежных стран, крупными парками и природными заказниками («Долина Сетунь», «Воробьевы горы», Парк Победы, Парк 50-летия Октября и Ботанический сад МГУ) .
В 5 минутах ходьбы - станция метро «Мичуринский проспект», от которой до центра можно доехать за 15 минут. Также 15 минут понадобится, чтобы добраться на автомобиле до Садового кольца. В 10 минутах езды находятся МКАД и ТТК, а в 25 минутах езды - аэропорт «Внуково».
Позвоните и узнайте условия покупки прямо сейчас!
02.04.2026
245 706 400 ₽
Продается 2-комн. квартира, площадью 59.4 кв.м.
Жилая площадь 29.7 кв. м, кухня 12.2 кв. м, ремонта нет, окна выходят во двор и на улицу.
Квартира располагается на 11 этаже 13-этажного панельного дома в ЖК 1-й Ленинградский.
Дом оборудован пассажирским лифтом.
02.04.2026
17 505 655 ₽
Продается 3-комн. квартира, площадью 76.2 кв.м.
Жилая площадь 43.9 кв. м, кухня 12.2 кв. м, ремонта нет, окна выходят во двор и на улицу.
Квартира располагается на 10 этаже 13-этажного панельного дома в ЖК 1-й Ленинградский.
Дом оборудован пассажирским лифтом.
02.04.2026
19 038 875 ₽
Продается 2-комн. квартира, площадью 59.4 кв.м.
Жилая площадь 29.7 м2, кухня 12.2 кв. м, ремонта нет, окна выходят во двор и на улицу.
Квартира располагается на 12 этаже 13-этажного панельного дома в ЖК 1-й Ленинградский.
Дом оборудован пассажирским лифтом.
02.04.2026
17 505 655 ₽
Продается 3-комн. квартира, площадью 84 кв.м.
Жилая площадь 46.3 м2, кухня 14.3 кв. м, ремонта нет, окна выходят во двор и на улицу.
Квартира располагается на 11 этаже 14-этажного панельного дома в ЖК 1-й Ленинградский.
Дом оборудован пассажирским лифтом.
02.04.2026
19 248 768 ₽
Продается 2-комн. квартира, площадью 59.6 м2.
Жилая площадь 29.7 кв. м, кухня 12.2 кв. м, ремонта нет, окна выходят во двор и на улицу.
Квартира располагается на 11 этаже 14-этажного панельного дома в ЖК 1-й Ленинградский.
Дом оборудован пассажирским лифтом.
02.04.2026
17 383 770 ₽
Продается 2-комн. квартира, площадью 59.6 кв.м.
Жилая площадь 29.7 м2, кухня 12.2 кв. м, ремонта нет, окна выходят во двор и на улицу.
Квартира располагается на 8 этаже 14-этажного панельного дома в ЖК 1-й Ленинградский.
Дом оборудован пассажирским лифтом.
02.04.2026
17 349 560 ₽
Продается 3-комн. квартира, площадью 84.4 м2.
Жилая площадь 46.3 м2, кухня 14.4 кв. м, ремонта нет, окна выходят во двор и на улицу.
Квартира располагается на 14 этаже 14-этажного панельного дома в ЖК 1-й Ленинградский.
Дом оборудован пассажирским лифтом.
02.04.2026
18 918 007 ₽
Продается 4-комн. квартира, площадью 110.1 кв.м.
Жилая площадь 70 кв. м, кухня 15.7 кв. м, ремонта нет, окна выходят во двор и на улицу.
Квартира располагается на 7 этаже 14-этажного панельного дома в ЖК 1-й Ленинградский.
Дом оборудован пассажирским лифтом.
02.04.2026
21 414 670 ₽
Продается 3-комн. квартира, площадью 76.4 м2.
Жилая площадь 43.9 м2, кухня 12.2 кв. м, ремонта нет, окна выходят во двор и на улицу.
Квартира располагается на 14 этаже 14-этажного панельного дома в ЖК 1-й Ленинградский.
Дом оборудован пассажирским лифтом.
02.04.2026
20 554 809 ₽
Продается 3-комн. квартира, площадью 76.1 м2.
Жилая площадь 43.7 м2, кухня 12.2 кв. м, ремонта нет, окна выходят во двор и на улицу.
Квартира располагается на 14 этаже 14-этажного панельного дома в ЖК 1-й Ленинградский.
Дом оборудован пассажирским лифтом.
02.04.2026
20 299 371 ₽
Продается 3-комн. квартира, площадью 76.1 кв.м.
Жилая площадь 43.7 м2, кухня 12.2 кв. м, ремонта нет, окна выходят во двор и на улицу.
Квартира располагается на 13 этаже 14-этажного панельного дома в ЖК 1-й Ленинградский.
Дом оборудован пассажирским лифтом.
02.04.2026
20 130 885 ₽
Продается 2-комн. квартира, площадью 53.2 кв.м.
Жилая площадь 25.5 кв. м, кухня 10.6 кв. м, ремонта нет, окна выходят во двор.
Квартира располагается на 10 этаже 14-этажного панельного дома в ЖК 1-й Ленинградский.
Дом оборудован пассажирским лифтом.
02.04.2026
16 921 750 ₽
Продается 3-комн. квартира, площадью 76.1 кв.м.
Жилая площадь 43.7 м2, кухня 12.2 кв. м, ремонта нет, окна выходят во двор и на улицу.
Квартира располагается на 9 этаже 14-этажного панельного дома в ЖК 1-й Ленинградский.
Дом оборудован пассажирским лифтом.
02.04.2026
19 962 400 ₽
Продается 3-комн. квартира, площадью 76.4 м2.
Жилая площадь 43.9 кв. м, кухня 12.2 кв. м, ремонта нет, окна выходят во двор и на улицу.
Квартира располагается на 8 этаже 14-этажного панельного дома в ЖК 1-й Ленинградский.
Дом оборудован пассажирским лифтом.
02.04.2026
20 216 510 ₽
Продается 2-комн. квартира, площадью 53.2 м2.
Жилая площадь 25.5 м2, кухня 10.6 кв. м, ремонта нет, окна выходят во двор.
Квартира располагается на 7 этаже 14-этажного панельного дома в ЖК 1-й Ленинградский.
Дом оборудован пассажирским лифтом.
02.04.2026
16 921 750 ₽




















