Объявление о квартирах в Павловском Посаде - Страница 10
- Павловский Посад »
- Недвижимость
- » Квартиры в Павловском Посаде
Продается 1-комнатная квартира от застройщика: общая площадь 43.90 м, жилая 12.70 м, кухня 20.50 м, 21-й этаж, жилой квартал «Вдохновение», корпус 33 (секция 2) . Срок сдачи: 4 квартал 2027 года.
Позвоните сейчас и забронируйте квартиру!
Квартал бизнес-класса СИМВОЛ - это городское пространство нового поколения в историческом районе Лефортово, на границе ЦАО, в 2 км от Садового кольца.
Бионическая архитектура СИМВОЛА превратила Лефортово в суперсовременное и модное пространство. Из окон, с балконов и террас просторных квартир СИМВОЛА открываются отличные виды на город и новый парк «Зеленая река», «протекающий» через все кварталы комплекса на 2 км.
В квартале уже есть все, что нужно для комфортной жизни: кафе и рестораны, супермаркеты и магазины, медицинские и физкультурно-оздоровительные центры, салоны красоты и барбершопы, аптеки и оптики, химчистки, пункты доставки и другие сервисы - всего более 90 действующих объектов внутриквартальной инфраструктуры.
Для юных жителей СИМВОЛА открыты детский сад и инженерный лицей при МГТУ им. Баумана.
Особенности квартала:
Свой парк «Зеленая Река» - 10 га зелени и развлечений на любой вкус!
Уникальная для Москвы архитектура - Проект создан архитектурной мастерской ATRIUM по дизайн-коду британских бюро LDA Design и UHA London.
Богатая инфраструктура с детскими садами и лицеем им. Баумана, кафе и ресторанами, супермаркетами и аптеками, зоной для фитнеса, бассейном и мед. центром.
Квартиры с панорамными окнами, террасами, ванными с окнами и каминами редких форматов.
Закрытые безопасные зелёные дворы-парки без машин!
02.04.2026
28 271 600 ₽
Продается 1-комнатная квартира от застройщика: общая площадь 45.70 м, жилая 16.00 м, кухня 19.90 м, 17-й этаж, жилой квартал «Гордость», корпус 36 (секция 3) . Срок сдачи: 2 квартал 2029 года.
Позвоните сейчас и забронируйте квартиру!
Квартал бизнес-класса СИМВОЛ - это городское пространство нового поколения в историческом районе Лефортово, на границе ЦАО, в 2 км от Садового кольца.
Бионическая архитектура СИМВОЛА превратила Лефортово в суперсовременное и модное пространство. Из окон, с балконов и террас просторных квартир СИМВОЛА открываются отличные виды на город и новый парк «Зеленая река», «протекающий» через все кварталы комплекса на 2 км.
В квартале уже есть все, что нужно для комфортной жизни: кафе и рестораны, супермаркеты и магазины, медицинские и физкультурно-оздоровительные центры, салоны красоты и барбершопы, аптеки и оптики, химчистки, пункты доставки и другие сервисы - всего более 90 действующих объектов внутриквартальной инфраструктуры.
Для юных жителей СИМВОЛА открыты детский сад и инженерный лицей при МГТУ им. Баумана.
Особенности квартала:
Свой парк «Зеленая Река» - 10 га зелени и развлечений на любой вкус!
Уникальная для Москвы архитектура - Проект создан архитектурной мастерской ATRIUM по дизайн-коду британских бюро LDA Design и UHA London.
Богатая инфраструктура с детскими садами и лицеем им. Баумана, кафе и ресторанами, супермаркетами и аптеками, зоной для фитнеса, бассейном и мед. центром.
Квартиры с панорамными окнами, террасами, ванными с окнами и каминами редких форматов.
Закрытые безопасные зелёные дворы-парки без машин!
02.04.2026
25 363 500 ₽
Продается 3-комн. квартира, площадью 84.3 кв.м.
Жилая площадь 39.3 кв. м, ремонта нет, окна выходят на улицу.
Квартира располагается на 10 этаже 17-этажного монолитного дома.
Дом оборудован пассажирским лифтом, есть мусоропровод, закрытая территория, парковка охраняемая.
09.03.2026
53 414 335 ₽
Продается 2-комн. квартира, площадью 65.9 кв.м.
Жилая площадь 31.6 м2, кухня 12.4 кв. м, ремонта нет, окна выходят на улицу.
Квартира располагается на 20 этаже 47-этажного монолитного дома.
Дом оборудован пассажирским лифтом, есть мусоропровод, закрытая территория, парковка с охраной.
09.03.2026
41 926 239 ₽
Продается 4-комн. квартира, площадью 135.8 кв.м.
Жилая площадь 66.4 м2, кухня 14.9 кв. м, ремонта нет, окна выходят на улицу.
Квартира располагается на 35 этаже 37-этажного монолитного дома.
Дом оборудован пассажирским лифтом, есть мусоропровод, закрытая территория, парковка с охраной.
09.03.2026
105 910 420 ₽
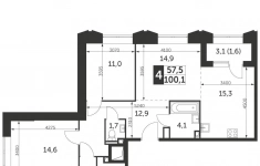
Продается 4-комн. квартира, площадью 100.1 кв.м.
Жилая площадь 57.5 м2, кухня 15.3 кв. м, ремонта нет, окна выходят на улицу.
Квартира располагается на 30 этаже 37-этажного монолитного дома.
Дом оборудован пассажирским лифтом, есть мусоропровод, закрытая территория, парковка с охраной.
31.03.2026
60 623 063 ₽
Продается 3-комн. квартира, площадью 66.2 кв.м.
Жилая площадь 29.4 м2, ремонта нет, окна выходят на улицу.
Квартира располагается на 15 этаже 17-этажного монолитного дома.
Дом оборудован пассажирским лифтом, есть мусоропровод, закрытая территория, парковка охраняемая.
09.03.2026
39 783 552 ₽
Продается 4-комн. квартира, площадью 100.1 м2.
Жилая площадь 57.5 м2, кухня 15.3 кв. м, ремонта нет, окна выходят на улицу.
Квартира располагается на 27 этаже 37-этажного монолитного дома.
Дом оборудован пассажирским лифтом, есть мусоропровод, закрытая территория, парковка с охраной.
02.04.2026
60 452 893 ₽
Продается 5-комн. квартира, площадью 122.3 кв.м.
Жилая площадь 55.6 кв. м, ремонта нет, окна выходят на улицу.
Квартира располагается на 13 этаже 17-этажного монолитного дома.
Дом оборудован пассажирским лифтом, есть мусоропровод, закрытая территория, парковка охраняемая.
09.03.2026
72 166 784 ₽
Продается 3-комн. квартира, площадью 83.2 кв.м.
Жилая площадь 46.3 м2, кухня 14.3 кв. м, ремонта нет, окна выходят во двор.
Квартира располагается на 3 этаже 37-этажного монолитного дома.
Дом оборудован пассажирским лифтом, есть мусоропровод, закрытая территория, парковка охраняется.
09.03.2026
41 632 864 ₽
Продается 3-комн. квартира, площадью 72.8 м2.
Жилая площадь 29.4 кв. м, ремонта нет, окна выходят на улицу.
Квартира располагается на 13 этаже 17-этажного монолитного дома.
Дом оборудован пассажирским лифтом, есть мусоропровод, закрытая территория, парковка охраняется.
09.03.2026
57 086 848 ₽
Продается 2-комнатная квартира от застройщика: общая площадь 55.50 м, жилая 25.90 м, кухня 18.30 м, 25-й этаж, жилой квартал «Вдохновение», корпус 33 (секция 3) . Срок сдачи: 4 квартал 2027 года.
Позвоните сейчас и забронируйте квартиру!
Квартал бизнес-класса СИМВОЛ - это городское пространство нового поколения в историческом районе Лефортово, на границе ЦАО, в 2 км от Садового кольца.
Бионическая архитектура СИМВОЛА превратила Лефортово в суперсовременное и модное пространство. Из окон, с балконов и террас просторных квартир СИМВОЛА открываются отличные виды на город и новый парк «Зеленая река», «протекающий» через все кварталы комплекса на 2 км.
В квартале уже есть все, что нужно для комфортной жизни: кафе и рестораны, супермаркеты и магазины, медицинские и физкультурно-оздоровительные центры, салоны красоты и барбершопы, аптеки и оптики, химчистки, пункты доставки и другие сервисы - всего более 90 действующих объектов внутриквартальной инфраструктуры.
Для юных жителей СИМВОЛА открыты детский сад и инженерный лицей при МГТУ им. Баумана.
Особенности квартала:
Свой парк «Зеленая Река» - 10 га зелени и развлечений на любой вкус!
Уникальная для Москвы архитектура - Проект создан архитектурной мастерской ATRIUM по дизайн-коду британских бюро LDA Design и UHA London.
Богатая инфраструктура с детскими садами и лицеем им. Баумана, кафе и ресторанами, супермаркетами и аптеками, зоной для фитнеса, бассейном и мед. центром.
Квартиры с панорамными окнами, террасами, ванными с окнами и каминами редких форматов.
Закрытые безопасные зелёные дворы-парки без машин!
02.04.2026
36 241 500 ₽
Татьяна. Отличное предложение! Предлагается Вашему вниманию просторная, уютная двухкомнатная квартира в новом доме!
Дом построен в рамках программы реновации. В квартире выполнен качественный ремонт от застройщика. Комнаты изолированы, есть просторный балкон, лоджия застеклена. Санузел раздельный, в плитке до потолка. Отличный, панорамный вид из окна (на 2 стороны), тишина и спокойствие. Отличное обустройство дома: огороженный двор, комфортные входные группы, благоустроенная территория.
Отличное местоположение. До станции метро Свиблово 10 минут пешком, до Бабушкинской 15 минут пешком. Удобный выезд на МКАД и Ярославское шоссе. В пешей доступности располагается большое количество объектов инфраструктуры, в том числе школы, детские сады и поликлиники.
Юридическая история чиста. Взрослые собственники. Свободная продажа, полная стоимость в договоре, оперативный выход на сделку.
Просмотр назначается оперативно. Звоните, уважаемые клиенты и коллеги, расскажем все подробности и с удовольствием ответим на вопросы.
05.04.2026
22 500 000 ₽
Продается 1-комн. квартира, площадью 33.7 м2.
кухня 9.11 кв. м., комната 13,11
Квартира располагается на 16 этаже 18-этажного дома.
Финансовый управляющий сообщает о проведении:
06.05.2026 г. в 12:00 по московскому времени в электронной форме в сети «Интернет» на электронной торговой площадке (далее - ЭТП) «Альфалот» (оператор ЭТП ООО "Аукционы Федерации", Юридический адрес: 450059, г. Уфа, ул. Рихарда Зорге, д. 9, корп. 6, подъезд 2, этаж 2, ИНН/КПП: 0278184720/027801001, ОГРН:1110280063563), открытых торгов по продаже имущества должника, в форме аукциона №0201521, с открытой формой подачи предложения о цене.
Начальная цена продажи: 6 519 600,00 рублей 00 копеек.
Заявки на участие в торгах подаются посредством системы электронного документооборота в сети «Интернет», с 12.00 часов (по московскому времени) 26.03.2026г. до 12.00 часов (по московскому времени) 05.05.2026г.
Шаг аукциона 5% от начальной цены продажи имущества.
Задаток в размере 10% от начальной цены лота Состав имущества:
Настоящим Покупатель поставлен в известность, что по состоянию на 04.02.2026 г. согласно сведениям из Единого государственного реестра недвижимости в отношении Квартиры имеются обременения и ограничения и аресты, зарегистрированные в ЕГРН, а именно:
Ипотека в силу закона
дата государственной регистрации: 29.08.2024
номер государственной регистрации: 50:50:0040211:5192-50/110/2024-4
лицо, в пользу которого установлены ограничение прав и обременение объекта недвижимости:
БАНК "МИР ПРИВИЛЕГИЙ" (ОБЩЕСТВО С ОГРАНИЧЕННОЙ ОТВЕТСТВЕННОСТЬЮ), ИНН 7750005845, ОГРН 1137711000096.
Права кредитора ООО БАНК «МИР ПРИВИЛЕГИЙ» перешли к ООО «ПКО «Национальная Фабрика Ипотеки» ИНН 7706450420, ОГРН 1177746942020. Определением Арбитражного суда Московской области от 24.12.2025 г. по делу№ А41-58393/2025 требование ООО «ПКО «Национальная Фабрика Ипотеки» признано обоснованным и включено в третью очередь реестра требований кредиторов должника.
Финансовый управляющий уведомляет широкий круг лиц, что Продавец (Карамалак Рената) на основании Решения Арбитражного суда Московской области от 11 сентября 2025 года (резолютивная часть объявлена 10 сентября 2025 г. по делу № А41-58393/2025 признана несостоятельным (банкротом), и в отношении нее введена процедура реализации имущества гражданина.
Ознакомление с имуществом и документами осуществляется по ссылке https://cloud.mail.ru/public/HA6f/71VdHUHbv
Ознакомление с имуществом в очном порядке возможен по предварительному согласованию времени и даты по телефону: 8 999 859 00 43, эл. почта: smar.2010@mail.ru
26.03.2026
6 519 600 ₽
Продается 2-комн. квартира, площадью 58.2 м2 в монолитной новостройке в 7 мин. пешком от м.Озёрная. Возможен вариант покупки с использованием ипотечных средств, есть рассрочка, возможна покупка с использованием материнского капитала, есть военная ипотека.
Жилая площадь 37.7 м2, кухня 5.5 м2, чистовая отделка, комнаты смежно-изолированные. Раздельных санузлов - нет, совмещенных санузлов - 1.
На полу стяжка, окна выходят во двор.
Квартира располагается на 3 этаже 9-этажного дома в ЖК Страна.Озёрная.
Застройщик - ГК Страна Девелопмент, сдача дома - III квартал 2025 года, высота потолков 3 м.
Дом оборудован 4 пассажирскими и 4 грузовыми лифтами, закрытая территория. Обеспечение безопасности: видеонаблюдение, круглосуточная охрана, консьерж, противопожарная система, пропускная система. Инфраструктура: школа, детский сад, поликлиника, детские площадки, спортивные площадки, места для отдыха.
Жилой комплекс Страна. Озёрная — новое пространство для жизни и вдохновения на карте Москвы в престижном Западном округе. Целый квартал, в котором городской ритм соседствует с уютной тишиной водной глади. Здесь такая же атмосфера приватности, таинства и... чуда, как на берегу величественного Байкала. Надёжную защиту жителей в квартале Страна. Озёрная обеспечивают технологии, квалифицированные специалисты и даже само расположение зданий, создающее приватность внутреннего двора. Дворы без машин Закрытая территория Круглосуточная охрана Система видеонаблюдения 24/7 Видеодомофония и персональные ключ-карты
В двух минутах от комплекса есть станция метро «Озёрная», путь до центра займёт всего 27 минут. На машине легко добраться до Садового кольца и на МКАД по Мичуринскому проспекту. Очаковские пруды всего в 7 минутах на самокате и видны почти из всех северных и восточных окон.
Позвоните и узнайте условия покупки прямо сейчас!
05.04.2026
26 900 000 ₽
Лот №9. Жилое помещение (квартира) , общ. пл. 38,4 кв.м. Продаваться будет с баланса банка. , приобрести его можно только с электронных торгов. Для участия в торгах вам понадобиться услуга "Агент в торгах". Более подробная информация по телефону, указанному в объявлении, в будние дни с 09-00 до 18-00 (МСК+7) Ожидается назначение повторных торгов.
07.02.2026
4 172 400 ₽
Лот №8. Жилое помещение (квартира) , общ. пл. 40,6 кв.м. Продаваться будет с баланса банка. , приобрести его можно только с электронных торгов. Для участия в торгах вам понадобиться услуга "Агент в торгах". Более подробная информация по телефону, указанному в объявлении, в будние дни с 09-00 до 18-00 (МСК+7) Ожидается назначение повторных торгов.
11.04.2026
4 615 200 ₽
Лот №7. Жилое помещение (квартира) , общ. пл. 40,5 кв.м. Продаваться будет с баланса банка. , приобрести его можно только с электронных торгов. Для участия в торгах вам понадобиться услуга "Агент в торгах". Более подробная информация по телефону, указанному в объявлении, в будние дни с 09-00 до 18-00 (МСК+7) Ожидается назначение повторных торгов.
11.04.2026
4 605 300 ₽
Лот №6. Жилое помещение (квартира) , общ.пл. 38,6 кв.м. Продаваться будет с баланса банка. , приобрести его можно только с электронных торгов. Для участия в торгах вам понадобиться услуга "Агент в торгах". Более подробная информация по телефону, указанному в объявлении, в будние дни с 09-00 до 18-00 (МСК+7) Ожидается назначение повторных торгов.
11.04.2026
4 902 000 ₽
Продаются 2-к апартаменты площадью 44.7 кв.м. на 23-м этаже 28 этажного дома в "ЭМОУШН" от ГК ОСНОВА
«ЭМОУШН» - многофункциональный комплекс апартаментов бизнес-класса в престижном районе Хорошёво-Мнёвники (СЗАО) , новый выразительный акцент территории Большого Сити. Проект включает 4 корпуса переменной этажности со смелой концептуальной архитектурой от бюро КАМЕНЬ.
В составе комплекса - собственный СПА-центр с открытым всесезонным бассейном, офисный центр с конференц-залом и амфитеатром, коворкинг, двухуровневый подземный паркинг, кафе и ресторан, аптеки и супермаркет, а также приватные пространства для резидентов: досуг, красота и здоровье, частные и детские мероприятия. Дополняют концепцию авторское благоустройство, прогулочные зоны, фонтан, скульптуры.
Локация:
600 м до набережной Москвы-реки
5 минут пешком до м. «Звенигородская»
20 минут до м. «Полежаевская»)
удобный выезд на Звенигородское шоссе
5 минут до ТТК
10 минут до Москва-Сити.
«ЭМОУШН» - это про эргономику и функциональность:
панорамное остекление, видовые террасы
дизайнерские лобби с потолками до 4,7 м
система «Умный дом» и ресепшен-служба 24/7 - чтобы жить активнее, успевать больше и не тратить ресурсы впустую.
Стадия строительства - монолит готов, высокая стадия готовности, сдача в 2027 году. Проект также подходит под инвестиционные сценарии. Предусмотрена временная регистрация.
05.02.2026
21 540 930 ₽
Продаются 2-к апартаменты площадью 44.7 кв.м. на 22-м этаже 28 этажного дома в "ЭМОУШН" от ГК ОСНОВА
«ЭМОУШН» - многофункциональный комплекс апартаментов бизнес-класса в престижном районе Хорошёво-Мнёвники (СЗАО) , новый выразительный акцент территории Большого Сити. Проект включает 4 корпуса переменной этажности со смелой концептуальной архитектурой от бюро КАМЕНЬ.
В составе комплекса - собственный СПА-центр с открытым всесезонным бассейном, офисный центр с конференц-залом и амфитеатром, коворкинг, двухуровневый подземный паркинг, кафе и ресторан, аптеки и супермаркет, а также приватные пространства для резидентов: досуг, красота и здоровье, частные и детские мероприятия. Дополняют концепцию авторское благоустройство, прогулочные зоны, фонтан, скульптуры.
Локация:
600 м до набережной Москвы-реки
5 минут пешком до м. «Звенигородская»
20 минут до м. «Полежаевская»)
удобный выезд на Звенигородское шоссе
5 минут до ТТК
10 минут до Москва-Сити.
«ЭМОУШН» - это про эргономику и функциональность:
панорамное остекление, видовые террасы
дизайнерские лобби с потолками до 4,7 м
система «Умный дом» и ресепшен-служба 24/7 - чтобы жить активнее, успевать больше и не тратить ресурсы впустую.
Стадия строительства - монолит готов, высокая стадия готовности, сдача в 2027 году. Проект также подходит под инвестиционные сценарии. Предусмотрена временная регистрация.
05.02.2026
21 478 350 ₽




















