Продам коммерческую недвижимость 120 м2
Размещено 13 марта 2026
2
0
Жалоба
- Параметры объявления
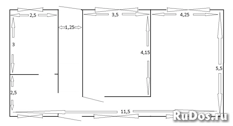
- Общая площадь (м2): 120
- Описание
Продается готовый функционирующий объект коммерческой недвижимости в центре села Вагайцево. Отдельностоящее здание с земельным участком в собственности. Подойдет под магазин, офис, склад, производственную мастерскую или сферу услуг. Низкая цена благодаря высокому потенциалу объекта.
Общая информация
Назначение: Объект свободного назначения (ОСН)
Адрес: Новосибирская область, Ордынский район, село Вагайцево, улица 40 лет Победы, 7А
Цена: 3 000 000 рублей
Этажность: 2 этажа
Общая площадь: 120 кв. м.
Характеристики здания и помещений
Вход: Отдельный, с улицы есть на 1-й этаж, а на второй этаж вход со двора.
Высота потолков: 2,3 метра (классическая высота для административных/торговых помещений).
Тип окон: обычные (стандартное остекление).
Ориентация: окна выходят как во двор, так и на улицу (хорошая естественная освещенность в течение всего дня).
Отделка: Требуется косметический ремонт. Покрытие пола-дерево.
Отопление: Автономное (полная независимость от графиков отопления, можно регулировать температуру под себя).
Водоснабжение: Подведено в здание.
Вентиляция: Естественная.
Территория и парковка удобный подъезд к зданию со стороны дороги.
Земельный участок: Входит в стоимость, находится в собственности. 2 палисадника, один со стороны двора, другой со стороны улицы - огорожены.
Возможные направления бизнеса
Благодаря отдельному входу и наличию земельного участка, объект отлично подойдет для:
Магазина товаров повседневного спроса (продукты/хозтовары);
Небольшого кафе или столовой;
Производственной мастерской (мебель, пластиковые окна, автосервис);
Складского помещения;
Офиса или пункта выдачи заказов (ПВЗ);
Базы для сезонного бизнеса.
Торг уместен серьёзному покупателю.
Общая информация
Назначение: Объект свободного назначения (ОСН)
Адрес: Новосибирская область, Ордынский район, село Вагайцево, улица 40 лет Победы, 7А
Цена: 3 000 000 рублей
Этажность: 2 этажа
Общая площадь: 120 кв. м.
Характеристики здания и помещений
Вход: Отдельный, с улицы есть на 1-й этаж, а на второй этаж вход со двора.
Высота потолков: 2,3 метра (классическая высота для административных/торговых помещений).
Тип окон: обычные (стандартное остекление).
Ориентация: окна выходят как во двор, так и на улицу (хорошая естественная освещенность в течение всего дня).
Отделка: Требуется косметический ремонт. Покрытие пола-дерево.
Отопление: Автономное (полная независимость от графиков отопления, можно регулировать температуру под себя).
Водоснабжение: Подведено в здание.
Вентиляция: Естественная.
Территория и парковка удобный подъезд к зданию со стороны дороги.
Земельный участок: Входит в стоимость, находится в собственности. 2 палисадника, один со стороны двора, другой со стороны улицы - огорожены.
Возможные направления бизнеса
Благодаря отдельному входу и наличию земельного участка, объект отлично подойдет для:
Магазина товаров повседневного спроса (продукты/хозтовары);
Небольшого кафе или столовой;
Производственной мастерской (мебель, пластиковые окна, автосервис);
Складского помещения;
Офиса или пункта выдачи заказов (ПВЗ);
Базы для сезонного бизнеса.
Торг уместен серьёзному покупателю.
