Продать квартиру в Образцово - Страница 9
- Образцово п. »
- Недвижимость
- » Квартиры
- » Продажа квартир в Образцово
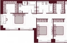
Продам четырехкомнатную просторную светлую квартиру, общей площадью 145,7 м2., хорошая типовая отделка. Квартира находится на 3этаже 10 этажной секции дома, 3 просторных лоджий. Кухня - 14 кв. м., площадь комнат 15,7 кв.м., 17,4 кв.м., 17,1 кв. м. и 28,6 кв.м., площадь коридора 29 кв.м., также имеется гардеробная. В квартире два просторных санузла. Кирпичный дом 2010 года постройки. В доме имеется мусоропровод, грузовой и пассажирский лифт. Во дворе детская площадка, вокруг лесопарковая зона, двор огорожен забором. На этаже всего две квартиры. Свободная продажа, возможна ипотека.
18.10.2025
22 600 000 ₽
Продам трехкомнатную просторную светлую квартиру, общей площадью 129,4 м2., хорошая типовая отделка. Квартира находится на 4 этаже 8 этажной секции дома, 1 просторная лоджия и 2 веранды. Кухня - 14,6 кв. м., площадь комнат 17,1 кв.м., 16,0 кв. м., 22,0 кв.м., площадь коридора 26,1 кв.м., также имеется гардеробная. В квартире два просторных санузла. Кирпичный дом 2010 года постройки. В доме имеется мусоропровод, грузовой и пассажирский лифт. Во дворе детская площадка, вокруг лесопарковая зона, двор огорожен забором. Свободная продажа, возможна ипотека.
Стоимость 21 000 000 рублей
18.10.2025
21 000 000 ₽
Продам: 3-комн. квартиру, общая площадь 122,3 м2., без отделки. Квартира находится на 6 этаже 9-этажной секции дома, 2 лоджии, 2 санузла. Кухня - 13,9 кв.м., площадь комнат 17,9 кв.м., 31,6 кв.м., 17,9 кв. м., коридор 28,4 кв. м. Высота потолков 3 м. Комнаты светлые. Кирпичный дом 2008 года постройки. В доме: мусоропровод. Дом оборудован грузовым и пассажирским лифтом. Свободная продажа, возможна ипотека.
18.10.2025
18 957 000 ₽
Продается 4-комн. квартира, площадью 168.1 м2 в монолитной новостройке в 12 мин. пешком от м. Динамо, район города - Хорошевский. Возможен вариант покупки с использованием ипотечных средств.
Жилая площадь 80.6 м2, предчистовая отделка, комнаты изолированные, окна выходят во двор.
Квартира располагается на 19 этаже 41-этажного дома в ЖК Прайм Парк.
Застройщик - Optima Development, сдача дома - III квартал 2023 года, дом уже сдан, высота потолков 3.1 м.
Дом оборудован пассажирским лифтом.
Подземная парковка, парковка охраняется. Обеспечение безопасности: консьерж. Инфраструктура: школа, детский сад, детские площадки, места для отдыха, супермаркет, рестораны, фитнес-центр.
Премиальный квартал PRIME PARK стал одним из знаковых жилых проектов столицы, который задал новые
ориентиры на рынке недвижимости. Он неизменно занимает лидирующие позиции по продажам в своем классе,
стал рекордсменом по количеству завоеванных международных и российских премий в области недвижимости,
а также был назван самым благоустроенным кварталом России на XIII Российской национальной премии по ландшафтной архитектуре.
Квартал стал новой доминантой Ленинградского проспекта. Архитектор Филип Болл не только разработал концепцию бескомпромиссно роскошного жилья, но и на постоянной основе осуществляет авторский надзор. Небоскребы квартала отличаются уникальным рисунком фасадов и располагаются в отдалении друг от друга, что обеспечивает постоянный поток солнечного света и восхитительные виды из каждой квартиры. В то же время геометрия PRIME PARK продумана
таким образом, чтобы создать атмосферу спокойствия и тишины на территории частного парка.
5 мин. от Тверской улицы, Патриарших прудов и Белой площади;
20 мин. до аэропорта «Шереметьево» или «Москва-Сити»;
4 парка - Ходынское поле, Петровский и Чапаевский парки, Березовая роща;
4 станции метро - «ЦСКА», «Аэропорт», «Динамо» и «Петровский парк».
Аккредитованные банки: Абсолют Банк, Совкомбанк, Альфа-Банк, Банк ДОМ. РФ, Промсвязьбанк, Банк ВТБ, Россельхозбанк, МКБ.
Позвоните и узнайте условия покупки прямо сейчас!
17.01.2026
151 279 323 ₽
Продается 4-комн. квартира, площадью 129 м2 в монолитной новостройке в 12 мин. пешком от м. Динамо, район города - Хорошевский. Возможен вариант покупки с использованием ипотечных средств.
Жилая площадь 75.8 м2, кухня 7.1 м2, предчистовая отделка, комнаты изолированные, окна выходят во двор.
Квартира располагается на 40 этаже 41-этажного дома в ЖК Прайм Парк.
Застройщик - Optima Development, сдача дома - II квартал 2022 года, дом уже сдан, высота потолков 3.1 м.
Дом оборудован пассажирским лифтом.
Подземная парковка, парковка охраняется. Обеспечение безопасности: консьерж. Инфраструктура: школа, детский сад, детские площадки, места для отдыха, супермаркет, рестораны, фитнес-центр.
Премиальный квартал PRIME PARK стал одним из знаковых жилых проектов столицы, который задал новые
ориентиры на рынке недвижимости. Он неизменно занимает лидирующие позиции по продажам в своем классе,
стал рекордсменом по количеству завоеванных международных и российских премий в области недвижимости,
а также был назван самым благоустроенным кварталом России на XIII Российской национальной премии по ландшафтной архитектуре.
Квартал стал новой доминантой Ленинградского проспекта. Архитектор Филип Болл не только разработал концепцию бескомпромиссно роскошного жилья, но и на постоянной основе осуществляет авторский надзор. Небоскребы квартала отличаются уникальным рисунком фасадов и располагаются в отдалении друг от друга, что обеспечивает постоянный поток солнечного света и восхитительные виды из каждой квартиры. В то же время геометрия PRIME PARK продумана
таким образом, чтобы создать атмосферу спокойствия и тишины на территории частного парка.
5 мин. от Тверской улицы, Патриарших прудов и Белой площади;
20 мин. до аэропорта «Шереметьево» или «Москва-Сити»;
4 парка - Ходынское поле, Петровский и Чапаевский парки, Березовая роща;
4 станции метро - «ЦСКА», «Аэропорт», «Динамо» и «Петровский парк».
Аккредитованные банки: Абсолют Банк, Совкомбанк, Альфа-Банк, Банк ДОМ. РФ, Промсвязьбанк, Банк ВТБ, Россельхозбанк, МКБ.
Позвоните и узнайте условия покупки прямо сейчас!
17.01.2026
156 603 520 ₽
Продается 5-комн. квартира, площадью 393.1 м2 в монолитной новостройке в 12 мин. пешком от м. Динамо, район города - Хорошевский. Возможен вариант покупки с использованием ипотечных средств.
Жилая площадь 172.9 м2, кухня 13.1 м2, предчистовая отделка, комнаты изолированные, окна выходят во двор.
Квартира располагается на 40 этаже 41-этажного дома в ЖК Прайм Парк.
Застройщик - Optima Development, сдача дома - I квартал 2021 года, дом уже сдан, высота потолков 3.1 м.
Дом оборудован пассажирским лифтом.
Подземная парковка, парковка охраняется. Обеспечение безопасности: консьерж. Инфраструктура: школа, детский сад, детские площадки, места для отдыха, супермаркет, рестораны, фитнес-центр.
Премиальный квартал PRIME PARK стал одним из знаковых жилых проектов столицы, который задал новые
ориентиры на рынке недвижимости. Он неизменно занимает лидирующие позиции по продажам в своем классе,
стал рекордсменом по количеству завоеванных международных и российских премий в области недвижимости,
а также был назван самым благоустроенным кварталом России на XIII Российской национальной премии по ландшафтной архитектуре.
Квартал стал новой доминантой Ленинградского проспекта. Архитектор Филип Болл не только разработал концепцию бескомпромиссно роскошного жилья, но и на постоянной основе осуществляет авторский надзор. Небоскребы квартала отличаются уникальным рисунком фасадов и располагаются в отдалении друг от друга, что обеспечивает постоянный поток солнечного света и восхитительные виды из каждой квартиры. В то же время геометрия PRIME PARK продумана
таким образом, чтобы создать атмосферу спокойствия и тишины на территории частного парка.
5 мин. от Тверской улицы, Патриарших прудов и Белой площади;
20 мин. до аэропорта «Шереметьево» или «Москва-Сити»;
4 парка - Ходынское поле, Петровский и Чапаевский парки, Березовая роща;
4 станции метро - «ЦСКА», «Аэропорт», «Динамо» и «Петровский парк».
Аккредитованные банки: Абсолют Банк, Совкомбанк, Альфа-Банк, Банк ДОМ. РФ, Промсвязьбанк, Банк ВТБ, Россельхозбанк, МКБ.
Позвоните и узнайте условия покупки прямо сейчас!
17.01.2026
455 613 993 ₽
Продается 4-комн. квартира, площадью 307.1 м2 в монолитной новостройке в 12 мин. пешком от м. Динамо, район города - Хорошевский. Возможен вариант покупки с использованием ипотечных средств.
Жилая площадь 119 м2, кухня 14.1 м2, чистовая отделка, комнаты изолированные, окна выходят во двор.
Квартира располагается на 39 этаже 40-этажного дома в ЖК Прайм Парк.
Застройщик - Optima Development, сдача дома - I квартал 2021 года, дом уже сдан, высота потолков 3.1 м.
Дом оборудован пассажирским лифтом.
Подземная парковка, парковка охраняется. Обеспечение безопасности: консьерж. Инфраструктура: школа, детский сад, детские площадки, места для отдыха, супермаркет, рестораны, фитнес-центр.
Премиальный квартал PRIME PARK стал одним из знаковых жилых проектов столицы, который задал новые
ориентиры на рынке недвижимости. Он неизменно занимает лидирующие позиции по продажам в своем классе,
стал рекордсменом по количеству завоеванных международных и российских премий в области недвижимости,
а также был назван самым благоустроенным кварталом России на XIII Российской национальной премии по ландшафтной архитектуре.
Квартал стал новой доминантой Ленинградского проспекта. Архитектор Филип Болл не только разработал концепцию бескомпромиссно роскошного жилья, но и на постоянной основе осуществляет авторский надзор. Небоскребы квартала отличаются уникальным рисунком фасадов и располагаются в отдалении друг от друга, что обеспечивает постоянный поток солнечного света и восхитительные виды из каждой квартиры. В то же время геометрия PRIME PARK продумана
таким образом, чтобы создать атмосферу спокойствия и тишины на территории частного парка.
5 мин. от Тверской улицы, Патриарших прудов и Белой площади;
20 мин. до аэропорта «Шереметьево» или «Москва-Сити»;
4 парка - Ходынское поле, Петровский и Чапаевский парки, Березовая роща;
4 станции метро - «ЦСКА», «Аэропорт», «Динамо» и «Петровский парк».
Аккредитованные банки: Абсолют Банк, Совкомбанк, Альфа-Банк, Банк ДОМ. РФ, Промсвязьбанк, Банк ВТБ, Россельхозбанк, МКБ.
Позвоните и узнайте условия покупки прямо сейчас!
17.01.2026
374 047 809 ₽
Продается 4-комн. квартира, площадью 131.9 м2 в монолитной новостройке в 12 мин. пешком от м. Динамо, район города - Хорошевский. Возможен вариант покупки с использованием ипотечных средств.
Жилая площадь 75.5 м2, кухня 6.6 м2, чистовая отделка, комнаты изолированные, окна выходят во двор.
Квартира располагается на 39 этаже 40-этажного дома в ЖК Прайм Парк.
Застройщик - Optima Development, сдача дома - I квартал 2021 года, дом уже сдан, высота потолков 3.1 м.
Дом оборудован пассажирским лифтом.
Подземная парковка, парковка охраняется. Обеспечение безопасности: консьерж. Инфраструктура: школа, детский сад, детские площадки, места для отдыха, супермаркет, рестораны, фитнес-центр.
Премиальный квартал PRIME PARK стал одним из знаковых жилых проектов столицы, который задал новые
ориентиры на рынке недвижимости. Он неизменно занимает лидирующие позиции по продажам в своем классе,
стал рекордсменом по количеству завоеванных международных и российских премий в области недвижимости,
а также был назван самым благоустроенным кварталом России на XIII Российской национальной премии по ландшафтной архитектуре.
Квартал стал новой доминантой Ленинградского проспекта. Архитектор Филип Болл не только разработал концепцию бескомпромиссно роскошного жилья, но и на постоянной основе осуществляет авторский надзор. Небоскребы квартала отличаются уникальным рисунком фасадов и располагаются в отдалении друг от друга, что обеспечивает постоянный поток солнечного света и восхитительные виды из каждой квартиры. В то же время геометрия PRIME PARK продумана
таким образом, чтобы создать атмосферу спокойствия и тишины на территории частного парка.
5 мин. от Тверской улицы, Патриарших прудов и Белой площади;
20 мин. до аэропорта «Шереметьево» или «Москва-Сити»;
4 парка - Ходынское поле, Петровский и Чапаевский парки, Березовая роща;
4 станции метро - «ЦСКА», «Аэропорт», «Динамо» и «Петровский парк».
Аккредитованные банки: Абсолют Банк, Совкомбанк, Альфа-Банк, Банк ДОМ. РФ, Промсвязьбанк, Банк ВТБ, Россельхозбанк, МКБ.
Позвоните и узнайте условия покупки прямо сейчас!
17.01.2026
184 086 146 ₽
Продается 4-комн. квартира, площадью 131.3 м2 в монолитной новостройке в 12 мин. пешком от м. Динамо, район города - Хорошевский. Возможен вариант покупки с использованием ипотечных средств.
Жилая площадь 76.4 м2, кухня 6.8 м2, чистовая отделка, комнаты изолированные, окна выходят во двор.
Квартира располагается на 39 этаже 40-этажного дома в ЖК Прайм Парк.
Застройщик - Optima Development, сдача дома - I квартал 2021 года, дом уже сдан, высота потолков 3.1 м.
Дом оборудован пассажирским лифтом.
Подземная парковка, парковка охраняется. Обеспечение безопасности: консьерж. Инфраструктура: школа, детский сад, детские площадки, места для отдыха, супермаркет, рестораны, фитнес-центр.
Премиальный квартал PRIME PARK стал одним из знаковых жилых проектов столицы, который задал новые
ориентиры на рынке недвижимости. Он неизменно занимает лидирующие позиции по продажам в своем классе,
стал рекордсменом по количеству завоеванных международных и российских премий в области недвижимости,
а также был назван самым благоустроенным кварталом России на XIII Российской национальной премии по ландшафтной архитектуре.
Квартал стал новой доминантой Ленинградского проспекта. Архитектор Филип Болл не только разработал концепцию бескомпромиссно роскошного жилья, но и на постоянной основе осуществляет авторский надзор. Небоскребы квартала отличаются уникальным рисунком фасадов и располагаются в отдалении друг от друга, что обеспечивает постоянный поток солнечного света и восхитительные виды из каждой квартиры. В то же время геометрия PRIME PARK продумана
таким образом, чтобы создать атмосферу спокойствия и тишины на территории частного парка.
5 мин. от Тверской улицы, Патриарших прудов и Белой площади;
20 мин. до аэропорта «Шереметьево» или «Москва-Сити»;
4 парка - Ходынское поле, Петровский и Чапаевский парки, Березовая роща;
4 станции метро - «ЦСКА», «Аэропорт», «Динамо» и «Петровский парк».
Аккредитованные банки: Абсолют Банк, Совкомбанк, Альфа-Банк, Банк ДОМ. РФ, Промсвязьбанк, Банк ВТБ, Россельхозбанк, МКБ.
Позвоните и узнайте условия покупки прямо сейчас!
17.01.2026
166 639 379 ₽
Продается 3-комн. квартира, площадью 81.8 м2 в монолитной новостройке в 12 мин. пешком от м. Динамо, район города - Хорошевский. Возможен вариант покупки с использованием ипотечных средств.
Жилая площадь 52.1 м2, кухня 7.6 м2, чистовая отделка, комнаты изолированные, окна выходят во двор.
Квартира располагается на 36 этаже 40-этажного дома в ЖК Прайм Парк.
Застройщик - Optima Development, сдача дома - I квартал 2021 года, дом уже сдан, высота потолков 3.1 м.
Дом оборудован пассажирским лифтом.
Подземная парковка, парковка охраняется. Обеспечение безопасности: консьерж. Инфраструктура: школа, детский сад, детские площадки, места для отдыха, супермаркет, рестораны, фитнес-центр.
Премиальный квартал PRIME PARK стал одним из знаковых жилых проектов столицы, который задал новые
ориентиры на рынке недвижимости. Он неизменно занимает лидирующие позиции по продажам в своем классе,
стал рекордсменом по количеству завоеванных международных и российских премий в области недвижимости,
а также был назван самым благоустроенным кварталом России на XIII Российской национальной премии по ландшафтной архитектуре.
Квартал стал новой доминантой Ленинградского проспекта. Архитектор Филип Болл не только разработал концепцию бескомпромиссно роскошного жилья, но и на постоянной основе осуществляет авторский надзор. Небоскребы квартала отличаются уникальным рисунком фасадов и располагаются в отдалении друг от друга, что обеспечивает постоянный поток солнечного света и восхитительные виды из каждой квартиры. В то же время геометрия PRIME PARK продумана
таким образом, чтобы создать атмосферу спокойствия и тишины на территории частного парка.
5 мин. от Тверской улицы, Патриарших прудов и Белой площади;
20 мин. до аэропорта «Шереметьево» или «Москва-Сити»;
4 парка - Ходынское поле, Петровский и Чапаевский парки, Березовая роща;
4 станции метро - «ЦСКА», «Аэропорт», «Динамо» и «Петровский парк».
Аккредитованные банки: Абсолют Банк, Совкомбанк, Альфа-Банк, Банк ДОМ. РФ, Промсвязьбанк, Банк ВТБ, Россельхозбанк, МКБ.
Позвоните и узнайте условия покупки прямо сейчас!
17.01.2026
102 621 572 ₽
Продается 2-комн. квартира, площадью 56.4 м2 в монолитной новостройке в 12 мин. пешком от м. Динамо. Возможен вариант покупки с использованием ипотечных средств.
Жилая площадь 45.12 м2, предчистовая отделка, комнаты изолированные, окна выходят во двор.
Квартира располагается на 21 этаже 41-этажного дома в ЖК Прайм Парк.
Застройщик - Optima Development, сдача дома - III квартал 2026 года, высота потолков 3.1 м.
Дом оборудован пассажирским лифтом.
Подземная парковка, парковка охраняется. Обеспечение безопасности: консьерж. Инфраструктура: школа, детский сад, детские площадки, места для отдыха, супермаркет, рестораны, фитнес-центр.
Премиальный квартал PRIME PARK стал одним из знаковых жилых проектов столицы, который задал новые
ориентиры на рынке недвижимости. Он неизменно занимает лидирующие позиции по продажам в своем классе,
стал рекордсменом по количеству завоеванных международных и российских премий в области недвижимости,
а также был назван самым благоустроенным кварталом России на XIII Российской национальной премии по ландшафтной архитектуре.
Квартал стал новой доминантой Ленинградского проспекта. Архитектор Филип Болл не только разработал концепцию бескомпромиссно роскошного жилья, но и на постоянной основе осуществляет авторский надзор. Небоскребы квартала отличаются уникальным рисунком фасадов и располагаются в отдалении друг от друга, что обеспечивает постоянный поток солнечного света и восхитительные виды из каждой квартиры. В то же время геометрия PRIME PARK продумана
таким образом, чтобы создать атмосферу спокойствия и тишины на территории частного парка.
5 мин. от Тверской улицы, Патриарших прудов и Белой площади;
20 мин. до аэропорта «Шереметьево» или «Москва-Сити»;
4 парка - Ходынское поле, Петровский и Чапаевский парки, Березовая роща;
4 станции метро - «ЦСКА», «Аэропорт», «Динамо» и «Петровский парк».
Аккредитованные банки: Абсолют Банк, Совкомбанк, Альфа-Банк, Банк ДОМ. РФ, Промсвязьбанк, Банк ВТБ, Россельхозбанк, МКБ.
Позвоните и узнайте условия покупки прямо сейчас!
17.01.2026
56 100 381 ₽
Продается 2-комн. квартира, площадью 56.4 м2 в монолитной новостройке в 12 мин. пешком от м. Динамо. Возможен вариант покупки с использованием ипотечных средств.
Жилая площадь 45.12 м2, предчистовая отделка, комнаты изолированные, окна выходят во двор.
Квартира располагается на 25 этаже 41-этажного дома в ЖК Прайм Парк.
Застройщик - Optima Development, сдача дома - III квартал 2026 года, высота потолков 3.1 м.
Дом оборудован пассажирским лифтом.
Подземная парковка, парковка охраняется. Обеспечение безопасности: консьерж. Инфраструктура: школа, детский сад, детские площадки, места для отдыха, супермаркет, рестораны, фитнес-центр.
Премиальный квартал PRIME PARK стал одним из знаковых жилых проектов столицы, который задал новые
ориентиры на рынке недвижимости. Он неизменно занимает лидирующие позиции по продажам в своем классе,
стал рекордсменом по количеству завоеванных международных и российских премий в области недвижимости,
а также был назван самым благоустроенным кварталом России на XIII Российской национальной премии по ландшафтной архитектуре.
Квартал стал новой доминантой Ленинградского проспекта. Архитектор Филип Болл не только разработал концепцию бескомпромиссно роскошного жилья, но и на постоянной основе осуществляет авторский надзор. Небоскребы квартала отличаются уникальным рисунком фасадов и располагаются в отдалении друг от друга, что обеспечивает постоянный поток солнечного света и восхитительные виды из каждой квартиры. В то же время геометрия PRIME PARK продумана
таким образом, чтобы создать атмосферу спокойствия и тишины на территории частного парка.
5 мин. от Тверской улицы, Патриарших прудов и Белой площади;
20 мин. до аэропорта «Шереметьево» или «Москва-Сити»;
4 парка - Ходынское поле, Петровский и Чапаевский парки, Березовая роща;
4 станции метро - «ЦСКА», «Аэропорт», «Динамо» и «Петровский парк».
Аккредитованные банки: Абсолют Банк, Совкомбанк, Альфа-Банк, Банк ДОМ. РФ, Промсвязьбанк, Банк ВТБ, Россельхозбанк, МКБ.
Позвоните и узнайте условия покупки прямо сейчас!
17.01.2026
53 963 698 ₽
Продается 2-комн. квартира, площадью 56.1 м2 в монолитной новостройке в 12 мин. пешком от м. Динамо. Возможен вариант покупки с использованием ипотечных средств.
Жилая площадь 44.88 м2, предчистовая отделка, комнаты изолированные, окна выходят во двор.
Квартира располагается на 8 этаже 41-этажного дома в ЖК Прайм Парк.
Застройщик - Optima Development, сдача дома - III квартал 2026 года, высота потолков 3.1 м.
Дом оборудован пассажирским лифтом.
Подземная парковка, парковка охраняется. Обеспечение безопасности: консьерж. Инфраструктура: школа, детский сад, детские площадки, места для отдыха, супермаркет, рестораны, фитнес-центр.
Премиальный квартал PRIME PARK стал одним из знаковых жилых проектов столицы, который задал новые
ориентиры на рынке недвижимости. Он неизменно занимает лидирующие позиции по продажам в своем классе,
стал рекордсменом по количеству завоеванных международных и российских премий в области недвижимости,
а также был назван самым благоустроенным кварталом России на XIII Российской национальной премии по ландшафтной архитектуре.
Квартал стал новой доминантой Ленинградского проспекта. Архитектор Филип Болл не только разработал концепцию бескомпромиссно роскошного жилья, но и на постоянной основе осуществляет авторский надзор. Небоскребы квартала отличаются уникальным рисунком фасадов и располагаются в отдалении друг от друга, что обеспечивает постоянный поток солнечного света и восхитительные виды из каждой квартиры. В то же время геометрия PRIME PARK продумана
таким образом, чтобы создать атмосферу спокойствия и тишины на территории частного парка.
5 мин. от Тверской улицы, Патриарших прудов и Белой площади;
20 мин. до аэропорта «Шереметьево» или «Москва-Сити»;
4 парка - Ходынское поле, Петровский и Чапаевский парки, Березовая роща;
4 станции метро - «ЦСКА», «Аэропорт», «Динамо» и «Петровский парк».
Аккредитованные банки: Абсолют Банк, Совкомбанк, Альфа-Банк, Банк ДОМ. РФ, Промсвязьбанк, Банк ВТБ, Россельхозбанк, МКБ.
Позвоните и узнайте условия покупки прямо сейчас!
17.01.2026
46 348 132 ₽
Продается 2-комн. квартира, площадью 55.9 м2 в монолитной новостройке в 12 мин. пешком от м. Динамо. Возможен вариант покупки с использованием ипотечных средств.
Жилая площадь 44.72 м2, предчистовая отделка, комнаты изолированные, окна выходят во двор.
Квартира располагается на 3 этаже 41-этажного дома в ЖК Прайм Парк.
Застройщик - Optima Development, сдача дома - III квартал 2026 года, высота потолков 3.1 м.
Дом оборудован пассажирским лифтом.
Подземная парковка, парковка охраняется. Обеспечение безопасности: консьерж. Инфраструктура: школа, детский сад, детские площадки, места для отдыха, супермаркет, рестораны, фитнес-центр.
Премиальный квартал PRIME PARK стал одним из знаковых жилых проектов столицы, который задал новые
ориентиры на рынке недвижимости. Он неизменно занимает лидирующие позиции по продажам в своем классе,
стал рекордсменом по количеству завоеванных международных и российских премий в области недвижимости,
а также был назван самым благоустроенным кварталом России на XIII Российской национальной премии по ландшафтной архитектуре.
Квартал стал новой доминантой Ленинградского проспекта. Архитектор Филип Болл не только разработал концепцию бескомпромиссно роскошного жилья, но и на постоянной основе осуществляет авторский надзор. Небоскребы квартала отличаются уникальным рисунком фасадов и располагаются в отдалении друг от друга, что обеспечивает постоянный поток солнечного света и восхитительные виды из каждой квартиры. В то же время геометрия PRIME PARK продумана
таким образом, чтобы создать атмосферу спокойствия и тишины на территории частного парка.
5 мин. от Тверской улицы, Патриарших прудов и Белой площади;
20 мин. до аэропорта «Шереметьево» или «Москва-Сити»;
4 парка - Ходынское поле, Петровский и Чапаевский парки, Березовая роща;
4 станции метро - «ЦСКА», «Аэропорт», «Динамо» и «Петровский парк».
Аккредитованные банки: Абсолют Банк, Совкомбанк, Альфа-Банк, Банк ДОМ. РФ, Промсвязьбанк, Банк ВТБ, Россельхозбанк, МКБ.
Позвоните и узнайте условия покупки прямо сейчас!
17.01.2026
45 133 288 ₽
Продается 2-комн. квартира, площадью 55.9 м2 в монолитной новостройке в 12 мин. пешком от м. Динамо. Возможен вариант покупки с использованием ипотечных средств.
Жилая площадь 44.72 м2, предчистовая отделка, комнаты изолированные, окна выходят во двор.
Квартира располагается на 2 этаже 41-этажного дома в ЖК Прайм Парк.
Застройщик - Optima Development, сдача дома - III квартал 2026 года, высота потолков 3.1 м.
Дом оборудован пассажирским лифтом.
Подземная парковка, парковка охраняется. Обеспечение безопасности: консьерж. Инфраструктура: школа, детский сад, детские площадки, места для отдыха, супермаркет, рестораны, фитнес-центр.
Премиальный квартал PRIME PARK стал одним из знаковых жилых проектов столицы, который задал новые
ориентиры на рынке недвижимости. Он неизменно занимает лидирующие позиции по продажам в своем классе,
стал рекордсменом по количеству завоеванных международных и российских премий в области недвижимости,
а также был назван самым благоустроенным кварталом России на XIII Российской национальной премии по ландшафтной архитектуре.
Квартал стал новой доминантой Ленинградского проспекта. Архитектор Филип Болл не только разработал концепцию бескомпромиссно роскошного жилья, но и на постоянной основе осуществляет авторский надзор. Небоскребы квартала отличаются уникальным рисунком фасадов и располагаются в отдалении друг от друга, что обеспечивает постоянный поток солнечного света и восхитительные виды из каждой квартиры. В то же время геометрия PRIME PARK продумана
таким образом, чтобы создать атмосферу спокойствия и тишины на территории частного парка.
5 мин. от Тверской улицы, Патриарших прудов и Белой площади;
20 мин. до аэропорта «Шереметьево» или «Москва-Сити»;
4 парка - Ходынское поле, Петровский и Чапаевский парки, Березовая роща;
4 станции метро - «ЦСКА», «Аэропорт», «Динамо» и «Петровский парк».
Аккредитованные банки: Абсолют Банк, Совкомбанк, Альфа-Банк, Банк ДОМ. РФ, Промсвязьбанк, Банк ВТБ, Россельхозбанк, МКБ.
Позвоните и узнайте условия покупки прямо сейчас!
17.01.2026
44 783 417 ₽
Продается 2-комн. квартира, площадью 96.8 м2 в монолитной новостройке в 12 мин. пешком от м. Динамо, район города - Хорошевский. Возможен вариант покупки с использованием ипотечных средств.
Жилая площадь 65.3 м2, предчистовая отделка, комнаты изолированные, окна выходят во двор.
Квартира располагается на 34 этаже 41-этажного дома в ЖК Прайм Парк.
Застройщик - Optima Development, сдача дома - II квартал 2025 года, дом уже сдан, высота потолков 3.1 м.
Дом оборудован пассажирским лифтом.
Подземная парковка, парковка охраняется. Обеспечение безопасности: консьерж. Инфраструктура: школа, детский сад, детские площадки, места для отдыха, супермаркет, рестораны, фитнес-центр.
Премиальный квартал PRIME PARK стал одним из знаковых жилых проектов столицы, который задал новые
ориентиры на рынке недвижимости. Он неизменно занимает лидирующие позиции по продажам в своем классе,
стал рекордсменом по количеству завоеванных международных и российских премий в области недвижимости,
а также был назван самым благоустроенным кварталом России на XIII Российской национальной премии по ландшафтной архитектуре.
Квартал стал новой доминантой Ленинградского проспекта. Архитектор Филип Болл не только разработал концепцию бескомпромиссно роскошного жилья, но и на постоянной основе осуществляет авторский надзор. Небоскребы квартала отличаются уникальным рисунком фасадов и располагаются в отдалении друг от друга, что обеспечивает постоянный поток солнечного света и восхитительные виды из каждой квартиры. В то же время геометрия PRIME PARK продумана
таким образом, чтобы создать атмосферу спокойствия и тишины на территории частного парка.
5 мин. от Тверской улицы, Патриарших прудов и Белой площади;
20 мин. до аэропорта «Шереметьево» или «Москва-Сити»;
4 парка - Ходынское поле, Петровский и Чапаевский парки, Березовая роща;
4 станции метро - «ЦСКА», «Аэропорт», «Динамо» и «Петровский парк».
Аккредитованные банки: Абсолют Банк, Совкомбанк, Альфа-Банк, Банк ДОМ. РФ, Промсвязьбанк, Банк ВТБ, Россельхозбанк, МКБ.
Позвоните и узнайте условия покупки прямо сейчас!
17.01.2026
99 031 552 ₽
Продается 2-комн. квартира, площадью 72.2 м2 в монолитной новостройке в 12 мин. пешком от м. Динамо, район города - Хорошевский. Возможен вариант покупки с использованием ипотечных средств.
Жилая площадь 46 м2, предчистовая отделка, комнаты изолированные, окна выходят во двор.
Квартира располагается на 31 этаже 41-этажного дома в ЖК Прайм Парк.
Застройщик - Optima Development, сдача дома - III квартал 2023 года, дом уже сдан, высота потолков 3.1 м.
Дом оборудован пассажирским лифтом.
Подземная парковка, парковка охраняется. Обеспечение безопасности: консьерж. Инфраструктура: школа, детский сад, детские площадки, места для отдыха, супермаркет, рестораны, фитнес-центр.
Премиальный квартал PRIME PARK стал одним из знаковых жилых проектов столицы, который задал новые
ориентиры на рынке недвижимости. Он неизменно занимает лидирующие позиции по продажам в своем классе,
стал рекордсменом по количеству завоеванных международных и российских премий в области недвижимости,
а также был назван самым благоустроенным кварталом России на XIII Российской национальной премии по ландшафтной архитектуре.
Квартал стал новой доминантой Ленинградского проспекта. Архитектор Филип Болл не только разработал концепцию бескомпромиссно роскошного жилья, но и на постоянной основе осуществляет авторский надзор. Небоскребы квартала отличаются уникальным рисунком фасадов и располагаются в отдалении друг от друга, что обеспечивает постоянный поток солнечного света и восхитительные виды из каждой квартиры. В то же время геометрия PRIME PARK продумана
таким образом, чтобы создать атмосферу спокойствия и тишины на территории частного парка.
5 мин. от Тверской улицы, Патриарших прудов и Белой площади;
20 мин. до аэропорта «Шереметьево» или «Москва-Сити»;
4 парка - Ходынское поле, Петровский и Чапаевский парки, Березовая роща;
4 станции метро - «ЦСКА», «Аэропорт», «Динамо» и «Петровский парк».
Аккредитованные банки: Абсолют Банк, Совкомбанк, Альфа-Банк, Банк ДОМ. РФ, Промсвязьбанк, Банк ВТБ, Россельхозбанк, МКБ.
Позвоните и узнайте условия покупки прямо сейчас!
17.01.2026
64 969 629 ₽
Продается 2-комн. квартира, площадью 177.7 м2 в монолитной новостройке в 12 мин. пешком от м. Динамо, район города - Хорошевский. Возможен вариант покупки с использованием ипотечных средств.
Жилая площадь 46.2 м2, кухня 6.5 м2, чистовая отделка, комнаты изолированные, окна выходят во двор.
Квартира располагается на 35 этаже 40-этажного дома в ЖК Прайм Парк.
Застройщик - Optima Development, сдача дома - I квартал 2021 года, дом уже сдан, высота потолков 3.1 м.
Дом оборудован пассажирским лифтом.
Подземная парковка, парковка охраняется. Обеспечение безопасности: консьерж. Инфраструктура: школа, детский сад, детские площадки, места для отдыха, супермаркет, рестораны, фитнес-центр.
Премиальный квартал PRIME PARK стал одним из знаковых жилых проектов столицы, который задал новые
ориентиры на рынке недвижимости. Он неизменно занимает лидирующие позиции по продажам в своем классе,
стал рекордсменом по количеству завоеванных международных и российских премий в области недвижимости,
а также был назван самым благоустроенным кварталом России на XIII Российской национальной премии по ландшафтной архитектуре.
Квартал стал новой доминантой Ленинградского проспекта. Архитектор Филип Болл не только разработал концепцию бескомпромиссно роскошного жилья, но и на постоянной основе осуществляет авторский надзор. Небоскребы квартала отличаются уникальным рисунком фасадов и располагаются в отдалении друг от друга, что обеспечивает постоянный поток солнечного света и восхитительные виды из каждой квартиры. В то же время геометрия PRIME PARK продумана
таким образом, чтобы создать атмосферу спокойствия и тишины на территории частного парка.
5 мин. от Тверской улицы, Патриарших прудов и Белой площади;
20 мин. до аэропорта «Шереметьево» или «Москва-Сити»;
4 парка - Ходынское поле, Петровский и Чапаевский парки, Березовая роща;
4 станции метро - «ЦСКА», «Аэропорт», «Динамо» и «Петровский парк».
Аккредитованные банки: Абсолют Банк, Совкомбанк, Альфа-Банк, Банк ДОМ. РФ, Промсвязьбанк, Банк ВТБ, Россельхозбанк, МКБ.
Позвоните и узнайте условия покупки прямо сейчас!
17.01.2026
234 306 873 ₽
Последние квартиры в ЖК "Датский квартал"!
Продаётся 1-к квартира номер 575 общей площадью 38.4 кв.м. на 8-м этаже 9 этажного здания. Без отделки. Цена с учётом скидки.
Особенности квартиры:
Дополнительные условия:
- Возможна покупка по программе Trade-In
- Живите сейчас и платите потом - гибкие условия приобретения
- Максимальные скидки при 100% оплате
- Просторная спальня, в которой можно разместить большую кровать.
- Линейная планировка - максимальная функциональность и удобство.
- Угловая планировка - больше пространства для ваших идей.
- Можно оборудовать рабочее место - комфорт для работы и учёбы.
- Ниша под шкаф - компактное и удобное место для вещей.
- Лоджия - уютное место для отдыха и тишины.
Информация о комплексе:
Ощутите прелесть жизни в маленьком европейском городке, не выезжая на пределы Москвы. Здесь всё рядом и продумано для вас: магазины, булочные, прачечные, аптеки и салоны красоты в шаговой доступности. Наличие кладовых позволит вам поддерживать идеальный порядок и уют!
Мы учли каждую мелочь, чтобы вы могли наслаждаться повседневной жизнью- Двор без машин, закрытое, безопасное, охраняемое место с удобным доступом для вашего авто, более чистый воздух и гарантированное место для стоянки - и это далеко не все преимущества наличия подземного паркинга. Наличие кладовых позволит вам поддерживать идеальный порядок и уют в вашей квартире! Родители самых маленьких жильцов будут в восторге от колясочных, запирающихся на магнитный замок. Весь малогабаритный семейный транспорт - коляска, велосипеды и самокаты - прекрасно будет ждать вас здесь до следующего раза. Вымыть колеса коляски или лапы питомцу можно в специальных помещениях, расположенных рядом с колясочной.
Транспортная доступность:
Менее 1км от МКАД: рядом Осташковское и Алтуфьевское шоссе; 15 минут до метро "Алтуфьево", "Бибирево", "Медведково"; 7 минут пешком до ближайшей остановки общественного транспорта.
Внутренняя инфраструктура:
- 2 муниципальных детских сада и муниципальная школа
- Медицинский центр
- Магазины, аптеки, салоны красоты, кафе, булочные на первых этажах комплекса
31.12.2025
9 772 224 ₽
Последние квартиры в ЖК "Датский квартал"!
Продаётся 1-к квартира номер 563 общей площадью 38.4 кв.м. на 4-м этаже 9 этажного здания. Без отделки. Цена с учётом скидки.
Особенности квартиры:
Дополнительные условия:
- Возможна покупка по программе Trade-In
- Живите сейчас и платите потом - гибкие условия приобретения
- Максимальные скидки при 100% оплате
- Просторная спальня, в которой можно разместить большую кровать.
- Линейная планировка - максимальная функциональность и удобство.
- Угловая планировка - больше пространства для ваших идей.
- Можно оборудовать рабочее место - комфорт для работы и учёбы.
- Ниша под шкаф - компактное и удобное место для вещей.
- Лоджия - уютное место для отдыха и тишины.
Информация о комплексе:
Ощутите прелесть жизни в маленьком европейском городке, не выезжая на пределы Москвы. Здесь всё рядом и продумано для вас: магазины, булочные, прачечные, аптеки и салоны красоты в шаговой доступности. Наличие кладовых позволит вам поддерживать идеальный порядок и уют!
Мы учли каждую мелочь, чтобы вы могли наслаждаться повседневной жизнью- Двор без машин, закрытое, безопасное, охраняемое место с удобным доступом для вашего авто, более чистый воздух и гарантированное место для стоянки - и это далеко не все преимущества наличия подземного паркинга. Наличие кладовых позволит вам поддерживать идеальный порядок и уют в вашей квартире! Родители самых маленьких жильцов будут в восторге от колясочных, запирающихся на магнитный замок. Весь малогабаритный семейный транспорт - коляска, велосипеды и самокаты - прекрасно будет ждать вас здесь до следующего раза. Вымыть колеса коляски или лапы питомцу можно в специальных помещениях, расположенных рядом с колясочной.
Транспортная доступность:
Менее 1км от МКАД: рядом Осташковское и Алтуфьевское шоссе; 15 минут до метро "Алтуфьево", "Бибирево", "Медведково"; 7 минут пешком до ближайшей остановки общественного транспорта.
Внутренняя инфраструктура:
- 2 муниципальных детских сада и муниципальная школа
- Медицинский центр
- Магазины, аптеки, салоны красоты, кафе, булочные на первых этажах комплекса
31.12.2025
9 683 520 ₽
Имущество реализуется путем проведения торгов в форме аукциона в соответствии с Федеральным законом "О несостоятельности (банкротстве) " от 26.10.2002 №127-ФЗ.
Квартира общей площадью 39,1 кв. м, с кадастровым номером: 50: 12: 0070322: 2970, расположенная по адресу: Московская область, городской округ Мытищи, деревня Пирогово, улица Сурикова, дом 1, квартира 294.
ЖК расположен в лесной зоне, между двумя водохранилищами, с шестью ухоженными пляжами. Всего 10 км от МКАД. Удобный выезд по новой скоростной трассе - Мытищинская хорда. Инфраструктура и окружение: Рядом: конный клуб с конюшнями, гольф-клуб с обучением, парусный клуб с выходом на воду и занятиями. На территории ЖК: множество магазинов, рынков, ресторанов, кафе, аптек. Есть действующий детский сад, строится еще один. Работает современная поликлиника с детским и взрослым отделением.
Парковка и безопасность: Закрытая территория ЖК. Много парковочных мест внутри комплекса, а также большая платная парковка. В каждом дворе - современные детские площадки. Жизнь здесь - как в собственном загородном доме: Свежий лесной воздух, лёгкий бриз с водохранилища, пение птиц, прекрасные рассветы и закаты.
Прием заявок на электронной торговой площадке МЭТС, задаток 10%. Помощь от Сбербанка - Агентский сервис по участию на торгах. Агент за Вас оформит документы, подаст заявку и примет участие на торгах.
Подробнее о способах оформления сделки, стоимости приобретения имущества Вы можете узнать по номеру телефона, указанному в объявлении, в будние дни с 09: 00 до 18: 00 (по времени МСК, GMT+3) , также на сайте активов Банка Portal-DA.
16.12.2025
5 749 200 ₽




















