Продать квартиру в Новомихайловском

Выгодно продать квартиру в Новомихайловском, в различных ее районах. Мы публикуем объявления от собственников и агентств недвижимости с возможностью бесплатного поднятия сообщения зарегистрированным пользователям, для увеличения числа просмотров.

Продам 2 комнатную квартиру 50.9 м2 картинка из объявления
10
Продается 2-комн. квартира, площадью 50.9 м2 в монолитно-кирпичной новостройке. Возможен вариант покупки с использованием ипотечных средств, есть рассрочка, возможна покупка с использованием материнского капитала, есть военная ипотека. Жилая площадь 25 м2, кухня 13 м2, предчистовая отделка. Квартира располагается на 3 этаже 18-этажного дома в ЖК Фонтаны. Застройщик - ГК ССК, сдача дома - IV квартал 2026 года. Дом оборудован пассажирским лифтом, закрытая территория. Отдельная многоуровневая парковка, парковка охраняется. Обеспечение безопасности: видеонаблюдение, противопожарная система. Инфраструктура: детский сад, детские площадки, спортивные площадки, места для отдыха, супермаркет, рестораны, фитнес-центр, пункты бытового обслуживания, коммерческие объекты. Жилой комплекс «Фонтаны» - дом клубного типа. Преимущество заключается в продуманном ландшафте дворов, круглосуточно охраняемой территории, системе видеонаблюдения во дворе. Также для удобства жителей проведен Wi-Fi во дворе, оборудованы безопасные и современные детские площадки, зоны отдыха. «Фонтаны» - уникальный, неповторимый жилой комплекс, воплощающий оригинальные и креативные решения дизайнеров и архитекторов. Дома округлой форме - это придает им легкости, несмотря на массивность постройки. ЖК «Фонтаны» расположен в микрорайоне Черёмушки. Отличная транспортная развязка позволяет быстро и с комфортом добраться до центра, а большое количество зеленых насаждений и парков дает возможность гулять с детьми и наслаждаться прекрасным видом на Кубань. АКЦИЯ: При покупке квартиры в жилом комплексе «Фонтаны» вы получаете готовый качественный ремонт в подарок от застройщика. В комплекс работ входит полный цикл чистовой отделки: выравнивание и финишная отделка стен и потолков, укладка напольных покрытий, установка межкомнатных дверей и монтаж всей необходимой базовой сантехники. Это специальное предложение позволит вам избежать расходов, хлопот и долгого ожидания, связанных с самостоятельным ремонтом. Вы становитесь владельцем современного жилого пространства, куда можно заселиться сразу после получения ключей, и где каждая деталь выполнена по утверждённому проекту с использованием качественных материалов. Получить подробную информацию и консультацию по условиям акции можно у наших менеджеров. Аккредитованные банки: Сбербанк, Альфа-Банк, ВТБ, Банк Уралсиб, РОССИЯ, Абсолют Банк, Металлинвестбанк, РНКБ, ПСБ, Кубань Кредит, Банк ВБРР, Россельхозбанк. Позвоните и узнайте условия покупки прямо сейчас!
14.04.2026
10 180 000 ₽
Продам 2 комнатную квартиру 55 м2 картинка из объявления
10
Продается 2-комн. квартира, площадью 55 м2 в монолитно-кирпичной новостройке. Возможен вариант покупки с использованием ипотечных средств, есть рассрочка, возможна покупка с использованием материнского капитала, есть военная ипотека. Жилая площадь 24.2 м2, кухня 16.3 м2, предчистовая отделка. Квартира располагается на 4 этаже 18-этажного дома в ЖК Фонтаны. Застройщик - ГК ССК, сдача дома - IV квартал 2026 года. Дом оборудован пассажирским лифтом, закрытая территория. Отдельная многоуровневая парковка, парковка охраняется. Обеспечение безопасности: видеонаблюдение, противопожарная система. Инфраструктура: детский сад, детские площадки, спортивные площадки, места для отдыха, супермаркет, рестораны, фитнес-центр, пункты бытового обслуживания, коммерческие объекты. Жилой комплекс «Фонтаны» - дом клубного типа. Преимущество заключается в продуманном ландшафте дворов, круглосуточно охраняемой территории, системе видеонаблюдения во дворе. Также для удобства жителей проведен Wi-Fi во дворе, оборудованы безопасные и современные детские площадки, зоны отдыха. «Фонтаны» - уникальный, неповторимый жилой комплекс, воплощающий оригинальные и креативные решения дизайнеров и архитекторов. Дома округлой форме - это придает им легкости, несмотря на массивность постройки. ЖК «Фонтаны» расположен в микрорайоне Черёмушки. Отличная транспортная развязка позволяет быстро и с комфортом добраться до центра, а большое количество зеленых насаждений и парков дает возможность гулять с детьми и наслаждаться прекрасным видом на Кубань. АКЦИЯ: При покупке квартиры в жилом комплексе «Фонтаны» вы получаете готовый качественный ремонт в подарок от застройщика. В комплекс работ входит полный цикл чистовой отделки: выравнивание и финишная отделка стен и потолков, укладка напольных покрытий, установка межкомнатных дверей и монтаж всей необходимой базовой сантехники. Это специальное предложение позволит вам избежать расходов, хлопот и долгого ожидания, связанных с самостоятельным ремонтом. Вы становитесь владельцем современного жилого пространства, куда можно заселиться сразу после получения ключей, и где каждая деталь выполнена по утверждённому проекту с использованием качественных материалов. Получить подробную информацию и консультацию по условиям акции можно у наших менеджеров. Аккредитованные банки: Сбербанк, Альфа-Банк, ВТБ, Банк Уралсиб, РОССИЯ, Абсолют Банк, Металлинвестбанк, РНКБ, ПСБ, Кубань Кредит, Банк ВБРР, Россельхозбанк. Позвоните и узнайте условия покупки прямо сейчас!
14.04.2026
11 000 000 ₽
Продам 2 комнатную квартиру 50.9 м2 картинка из объявления
10
Продается 2-комн. квартира, площадью 50.9 м2 в монолитно-кирпичной новостройке. Возможен вариант покупки с использованием ипотечных средств, есть рассрочка, возможна покупка с использованием материнского капитала, есть военная ипотека. Жилая площадь 25 м2, кухня 13 м2, предчистовая отделка. Квартира располагается на 6 этаже 18-этажного дома в ЖК Фонтаны. Застройщик - ГК ССК, сдача дома - IV квартал 2026 года. Дом оборудован пассажирским лифтом, закрытая территория. Отдельная многоуровневая парковка, парковка охраняется. Обеспечение безопасности: видеонаблюдение, противопожарная система. Инфраструктура: детский сад, детские площадки, спортивные площадки, места для отдыха, супермаркет, рестораны, фитнес-центр, пункты бытового обслуживания, коммерческие объекты. Жилой комплекс «Фонтаны» - дом клубного типа. Преимущество заключается в продуманном ландшафте дворов, круглосуточно охраняемой территории, системе видеонаблюдения во дворе. Также для удобства жителей проведен Wi-Fi во дворе, оборудованы безопасные и современные детские площадки, зоны отдыха. «Фонтаны» - уникальный, неповторимый жилой комплекс, воплощающий оригинальные и креативные решения дизайнеров и архитекторов. Дома округлой форме - это придает им легкости, несмотря на массивность постройки. ЖК «Фонтаны» расположен в микрорайоне Черёмушки. Отличная транспортная развязка позволяет быстро и с комфортом добраться до центра, а большое количество зеленых насаждений и парков дает возможность гулять с детьми и наслаждаться прекрасным видом на Кубань. АКЦИЯ: При покупке квартиры в жилом комплексе «Фонтаны» вы получаете готовый качественный ремонт в подарок от застройщика. В комплекс работ входит полный цикл чистовой отделки: выравнивание и финишная отделка стен и потолков, укладка напольных покрытий, установка межкомнатных дверей и монтаж всей необходимой базовой сантехники. Это специальное предложение позволит вам избежать расходов, хлопот и долгого ожидания, связанных с самостоятельным ремонтом. Вы становитесь владельцем современного жилого пространства, куда можно заселиться сразу после получения ключей, и где каждая деталь выполнена по утверждённому проекту с использованием качественных материалов. Получить подробную информацию и консультацию по условиям акции можно у наших менеджеров. Аккредитованные банки: Сбербанк, Альфа-Банк, ВТБ, Банк Уралсиб, РОССИЯ, Абсолют Банк, Металлинвестбанк, РНКБ, ПСБ, Кубань Кредит, Банк ВБРР, Россельхозбанк. Позвоните и узнайте условия покупки прямо сейчас!
14.04.2026
10 180 000 ₽
Продам 2 комнатную квартиру 51.4 м2 картинка из объявления
10
Продается 2-комн. квартира, площадью 51.4 м2 в монолитно-кирпичной новостройке. Возможен вариант покупки с использованием ипотечных средств, есть рассрочка, возможна покупка с использованием материнского капитала, есть военная ипотека. Жилая площадь 25 м2, кухня 13.5 м2, предчистовая отделка. Квартира располагается на 2 этаже 18-этажного дома в ЖК Фонтаны. Застройщик - ГК ССК, сдача дома - IV квартал 2026 года. Дом оборудован пассажирским лифтом, закрытая территория. Отдельная многоуровневая парковка, парковка охраняется. Обеспечение безопасности: видеонаблюдение, противопожарная система. Инфраструктура: детский сад, детские площадки, спортивные площадки, места для отдыха, супермаркет, рестораны, фитнес-центр, пункты бытового обслуживания, коммерческие объекты. Жилой комплекс «Фонтаны» - дом клубного типа. Преимущество заключается в продуманном ландшафте дворов, круглосуточно охраняемой территории, системе видеонаблюдения во дворе. Также для удобства жителей проведен Wi-Fi во дворе, оборудованы безопасные и современные детские площадки, зоны отдыха. «Фонтаны» - уникальный, неповторимый жилой комплекс, воплощающий оригинальные и креативные решения дизайнеров и архитекторов. Дома округлой форме - это придает им легкости, несмотря на массивность постройки. ЖК «Фонтаны» расположен в микрорайоне Черёмушки. Отличная транспортная развязка позволяет быстро и с комфортом добраться до центра, а большое количество зеленых насаждений и парков дает возможность гулять с детьми и наслаждаться прекрасным видом на Кубань. АКЦИЯ: При покупке квартиры в жилом комплексе «Фонтаны» вы получаете готовый качественный ремонт в подарок от застройщика. В комплекс работ входит полный цикл чистовой отделки: выравнивание и финишная отделка стен и потолков, укладка напольных покрытий, установка межкомнатных дверей и монтаж всей необходимой базовой сантехники. Это специальное предложение позволит вам избежать расходов, хлопот и долгого ожидания, связанных с самостоятельным ремонтом. Вы становитесь владельцем современного жилого пространства, куда можно заселиться сразу после получения ключей, и где каждая деталь выполнена по утверждённому проекту с использованием качественных материалов. Получить подробную информацию и консультацию по условиям акции можно у наших менеджеров. Аккредитованные банки: Сбербанк, Альфа-Банк, ВТБ, Банк Уралсиб, РОССИЯ, Абсолют Банк, Металлинвестбанк, РНКБ, ПСБ, Кубань Кредит, Банк ВБРР, Россельхозбанк. Позвоните и узнайте условия покупки прямо сейчас!
14.04.2026
10 280 000 ₽
Продам 2 комнатную квартиру 55.86 м2 картинка из объявления
10
Продается 2-комн. квартира, площадью 55.86 м2 в монолитно-кирпичной новостройке. Возможен вариант покупки с использованием ипотечных средств, есть рассрочка, возможна покупка с использованием материнского капитала, есть военная ипотека. Жилая площадь 24.79 м2, кухня 17.2 м2, предчистовая отделка. Квартира располагается на 10 этаже 18-этажного дома в ЖК Фонтаны. Застройщик - ГК ССК, сдача дома - IV квартал 2026 года, высота потолков 2.82 м. Дом оборудован пассажирским лифтом, закрытая территория. Отдельная многоуровневая парковка, парковка охраняется. Обеспечение безопасности: видеонаблюдение, противопожарная система. Инфраструктура: детский сад, детские площадки, спортивные площадки, места для отдыха, супермаркет, рестораны, фитнес-центр, пункты бытового обслуживания, коммерческие объекты. Жилой комплекс «Фонтаны» - дом клубного типа. Преимущество заключается в продуманном ландшафте дворов, круглосуточно охраняемой территории, системе видеонаблюдения во дворе. Также для удобства жителей проведен Wi-Fi во дворе, оборудованы безопасные и современные детские площадки, зоны отдыха. «Фонтаны» - уникальный, неповторимый жилой комплекс, воплощающий оригинальные и креативные решения дизайнеров и архитекторов. Дома округлой форме - это придает им легкости, несмотря на массивность постройки. ЖК «Фонтаны» расположен в микрорайоне Черёмушки. Отличная транспортная развязка позволяет быстро и с комфортом добраться до центра, а большое количество зеленых насаждений и парков дает возможность гулять с детьми и наслаждаться прекрасным видом на Кубань. АКЦИЯ: При покупке квартиры в жилом комплексе «Фонтаны» вы получаете готовый качественный ремонт в подарок от застройщика. В комплекс работ входит полный цикл чистовой отделки: выравнивание и финишная отделка стен и потолков, укладка напольных покрытий, установка межкомнатных дверей и монтаж всей необходимой базовой сантехники. Это специальное предложение позволит вам избежать расходов, хлопот и долгого ожидания, связанных с самостоятельным ремонтом. Вы становитесь владельцем современного жилого пространства, куда можно заселиться сразу после получения ключей, и где каждая деталь выполнена по утверждённому проекту с использованием качественных материалов. Получить подробную информацию и консультацию по условиям акции можно у наших менеджеров. Аккредитованные банки: Сбербанк, Альфа-Банк, ВТБ, Банк Уралсиб, РОССИЯ, Абсолют Банк, Металлинвестбанк, РНКБ, ПСБ, Кубань Кредит, Банк ВБРР, Россельхозбанк. Позвоните и узнайте условия покупки прямо сейчас!
14.04.2026
9 775 500 ₽
Продам 1 комнатную квартиру 27.7 м2 картинка из объявления
3
Представляем вашему вниманию уютную однокомнатную квартиру-студию общей площадью 27.7 м, расположенную на третьем этаже пятиэтажного кирпичного дома (кадастровый № 01: 05: 2900013: 32196) . Это идеальное предложение для тех, кто ценит комфортное пространство и стремится создать собственный уникальный интерьер. Просторная студия позволит воплотить любые дизайнерские идеи - здесь вы сможете обустроить жилое пространство именно так, как вам удобно и приятно жить. Квартира отличается функциональной планировкой предоставляя больше возможностей для реализации творческих решений. Идеальное решение для молодых специалистов, инвесторов или желающих приобрести жильё в качестве первого собственного пространства! Здесь вас ждёт просторная зона отдыха, работы и творчества одновременно. Кирпичные стены обеспечивают отличные теплоизоляционные свойства, гарантируют тишину и спокойствие внутри помещения даже в шумных городских условиях. Благодаря удачному расположению окна получают достаточно естественного света, создавая атмосферу тепла и комфорта. Простор для фантазии открыт: квартира требует ремонта, что даёт возможность сделать её такой, какой мечтаете именно вы! Не упустите шанс стать обладателем прекрасной студии, где каждый квадратный метр будет наполнен вашим вкусом и стилем жизни.
11.04.2026
2 218 500 ₽
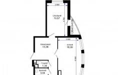
Продам 2 комнатную квартиру 50.9 м2 картинка из объявления
10
Продается 2-комн. квартира, площадью 50.9 м2 в монолитно-кирпичной новостройке. Возможен вариант покупки с использованием ипотечных средств, есть рассрочка, возможна покупка с использованием материнского капитала, есть военная ипотека. Жилая площадь 25 м2, кухня 13 м2, предчистовая отделка. Квартира располагается на 16 этаже 18-этажного дома в ЖК Фонтаны. Застройщик - ГК ССК, сдача дома - IV квартал 2026 года. Дом оборудован пассажирским лифтом, закрытая территория. Отдельная многоуровневая парковка, парковка охраняется. Обеспечение безопасности: видеонаблюдение, противопожарная система. Инфраструктура: детский сад, детские площадки, спортивные площадки, места для отдыха, супермаркет, рестораны, фитнес-центр, пункты бытового обслуживания, коммерческие объекты. Жилой комплекс «Фонтаны» - дом клубного типа. Преимущество заключается в продуманном ландшафте дворов, круглосуточно охраняемой территории, системе видеонаблюдения во дворе. Также для удобства жителей проведен Wi-Fi во дворе, оборудованы безопасные и современные детские площадки, зоны отдыха. «Фонтаны» - уникальный, неповторимый жилой комплекс, воплощающий оригинальные и креативные решения дизайнеров и архитекторов. Дома округлой форме - это придает им легкости, несмотря на массивность постройки. ЖК «Фонтаны» расположен в микрорайоне Черёмушки. Отличная транспортная развязка позволяет быстро и с комфортом добраться до центра, а большое количество зеленых насаждений и парков дает возможность гулять с детьми и наслаждаться прекрасным видом на Кубань. АКЦИЯ: При покупке квартиры в жилом комплексе «Фонтаны» вы получаете готовый качественный ремонт в подарок от застройщика. В комплекс работ входит полный цикл чистовой отделки: выравнивание и финишная отделка стен и потолков, укладка напольных покрытий, установка межкомнатных дверей и монтаж всей необходимой базовой сантехники. Это специальное предложение позволит вам избежать расходов, хлопот и долгого ожидания, связанных с самостоятельным ремонтом. Вы становитесь владельцем современного жилого пространства, куда можно заселиться сразу после получения ключей, и где каждая деталь выполнена по утверждённому проекту с использованием качественных материалов. Получить подробную информацию и консультацию по условиям акции можно у наших менеджеров. Аккредитованные банки: Сбербанк, Альфа-Банк, ВТБ, Банк Уралсиб, РОССИЯ, Абсолют Банк, Металлинвестбанк, РНКБ, ПСБ, Кубань Кредит, Банк ВБРР, Россельхозбанк. Позвоните и узнайте условия покупки прямо сейчас!
14.04.2026
10 689 000 ₽
Продам 1 комнатную квартиру 36.7 м2 картинка из объявления
2
Квартира мечты в новом доме - всего от 36.7 квадратных метров комфорта! Представляем вашему вниманию уютную однокомнатную квартиру общей площадью 36.7 м, расположенную на пятом этаже современного семнадцатиэтажного дома (год постройки - 2024) . Идеальное решение для тех, кто ценит комфортное пространство и мечтает создать собственный уникальный интерьер! Просторная кухня площадью **14.2 м** позволит воплотить любые кулинарные фантазии и станет местом семейных ужинов и дружеских встреч. Уютная изолированная комната подарит возможность обустроить идеальное место отдыха после насыщенного дня. Практичная совмещенная планировка санузла обеспечит дополнительное удобство. Балкон заменяет просторная светлая лоджия, где приятно насладиться чашечкой кофе утром или полюбоваться вечерним городом. Уникальная возможность приобрести жилье с нуля и реализовать самые смелые дизайнерские идеи благодаря отсутствию отделки («ремонт требуется») . Здесь вы сможете создать идеальный дом своей мечты именно таким, каким представляете себе идеал домашнего очага. Не упустите шанс стать обладателем квартиры с кадастровым номером **23: 43: 0106012: 61750**. Сделайте первый шаг навстречу своему будущему дому уже сегодня!
11.04.2026
4 592 000 ₽
Продам 2 комнатную квартиру 51.6 м2 картинка из объявления
10
Продается 2-комн. квартира, площадью 51.6 м2 в монолитно-кирпичной новостройке. Возможен вариант покупки с использованием ипотечных средств, есть рассрочка, возможна покупка с использованием материнского капитала, есть военная ипотека. Жилая площадь 24.8 м2, кухня 13.5 м2, предчистовая отделка. Квартира располагается на 2 этаже 18-этажного дома в ЖК Фонтаны. Застройщик - ГК ССК, сдача дома - IV квартал 2026 года, высота потолков 2.82 м. Дом оборудован пассажирским лифтом, закрытая территория. Отдельная многоуровневая парковка, парковка охраняется. Обеспечение безопасности: видеонаблюдение, противопожарная система. Инфраструктура: детский сад, детские площадки, спортивные площадки, места для отдыха, супермаркет, рестораны, фитнес-центр, пункты бытового обслуживания, коммерческие объекты. Жилой комплекс «Фонтаны» - дом клубного типа. Преимущество заключается в продуманном ландшафте дворов, круглосуточно охраняемой территории, системе видеонаблюдения во дворе. Также для удобства жителей проведен Wi-Fi во дворе, оборудованы безопасные и современные детские площадки, зоны отдыха. «Фонтаны» - уникальный, неповторимый жилой комплекс, воплощающий оригинальные и креативные решения дизайнеров и архитекторов. Дома округлой форме - это придает им легкости, несмотря на массивность постройки. ЖК «Фонтаны» расположен в микрорайоне Черёмушки. Отличная транспортная развязка позволяет быстро и с комфортом добраться до центра, а большое количество зеленых насаждений и парков дает возможность гулять с детьми и наслаждаться прекрасным видом на Кубань. АКЦИЯ: При покупке квартиры в жилом комплексе «Фонтаны» вы получаете готовый качественный ремонт в подарок от застройщика. В комплекс работ входит полный цикл чистовой отделки: выравнивание и финишная отделка стен и потолков, укладка напольных покрытий, установка межкомнатных дверей и монтаж всей необходимой базовой сантехники. Это специальное предложение позволит вам избежать расходов, хлопот и долгого ожидания, связанных с самостоятельным ремонтом. Вы становитесь владельцем современного жилого пространства, куда можно заселиться сразу после получения ключей, и где каждая деталь выполнена по утверждённому проекту с использованием качественных материалов. Получить подробную информацию и консультацию по условиям акции можно у наших менеджеров. Аккредитованные банки: Сбербанк, Альфа-Банк, ВТБ, Банк Уралсиб, РОССИЯ, Абсолют Банк, Металлинвестбанк, РНКБ, ПСБ, Кубань Кредит, Банк ВБРР, Россельхозбанк. Позвоните и узнайте условия покупки прямо сейчас!
14.04.2026
10 578 000 ₽
Продам 2 комнатную квартиру 55 м2 картинка из объявления
10
Продается 2-комн. квартира, площадью 55 м2 в монолитно-кирпичной новостройке. Возможен вариант покупки с использованием ипотечных средств, есть рассрочка, возможна покупка с использованием материнского капитала, есть военная ипотека. Жилая площадь 24.2 м2, кухня 16.3 м2, предчистовая отделка. Квартира располагается на 4 этаже 18-этажного дома в ЖК Фонтаны. Застройщик - ГК ССК, сдача дома - IV квартал 2026 года. Дом оборудован пассажирским лифтом, закрытая территория. Отдельная многоуровневая парковка, парковка охраняется. Обеспечение безопасности: видеонаблюдение, противопожарная система. Инфраструктура: детский сад, детские площадки, спортивные площадки, места для отдыха, супермаркет, рестораны, фитнес-центр, пункты бытового обслуживания, коммерческие объекты. Жилой комплекс «Фонтаны» - дом клубного типа. Преимущество заключается в продуманном ландшафте дворов, круглосуточно охраняемой территории, системе видеонаблюдения во дворе. Также для удобства жителей проведен Wi-Fi во дворе, оборудованы безопасные и современные детские площадки, зоны отдыха. «Фонтаны» - уникальный, неповторимый жилой комплекс, воплощающий оригинальные и креативные решения дизайнеров и архитекторов. Дома округлой форме - это придает им легкости, несмотря на массивность постройки. ЖК «Фонтаны» расположен в микрорайоне Черёмушки. Отличная транспортная развязка позволяет быстро и с комфортом добраться до центра, а большое количество зеленых насаждений и парков дает возможность гулять с детьми и наслаждаться прекрасным видом на Кубань. АКЦИЯ: При покупке квартиры в жилом комплексе «Фонтаны» вы получаете готовый качественный ремонт в подарок от застройщика. В комплекс работ входит полный цикл чистовой отделки: выравнивание и финишная отделка стен и потолков, укладка напольных покрытий, установка межкомнатных дверей и монтаж всей необходимой базовой сантехники. Это специальное предложение позволит вам избежать расходов, хлопот и долгого ожидания, связанных с самостоятельным ремонтом. Вы становитесь владельцем современного жилого пространства, куда можно заселиться сразу после получения ключей, и где каждая деталь выполнена по утверждённому проекту с использованием качественных материалов. Получить подробную информацию и консультацию по условиям акции можно у наших менеджеров. Аккредитованные банки: Сбербанк, Альфа-Банк, ВТБ, Банк Уралсиб, РОССИЯ, Абсолют Банк, Металлинвестбанк, РНКБ, ПСБ, Кубань Кредит, Банк ВБРР, Россельхозбанк. Позвоните и узнайте условия покупки прямо сейчас!
14.04.2026
11 000 000 ₽
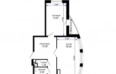
Продам 2 комнатную квартиру 50.9 м2 картинка из объявления
10
Продается 2-комн. квартира, площадью 50.9 м2 в монолитно-кирпичной новостройке. Возможен вариант покупки с использованием ипотечных средств, есть рассрочка, возможна покупка с использованием материнского капитала, есть военная ипотека. Жилая площадь 25 м2, кухня 13 м2, предчистовая отделка. Квартира располагается на 13 этаже 18-этажного дома в ЖК Фонтаны. Застройщик - ГК ССК, сдача дома - IV квартал 2026 года. Дом оборудован пассажирским лифтом, закрытая территория. Отдельная многоуровневая парковка, парковка охраняется. Обеспечение безопасности: видеонаблюдение, противопожарная система. Инфраструктура: детский сад, детские площадки, спортивные площадки, места для отдыха, супермаркет, рестораны, фитнес-центр, пункты бытового обслуживания, коммерческие объекты. Жилой комплекс «Фонтаны» - дом клубного типа. Преимущество заключается в продуманном ландшафте дворов, круглосуточно охраняемой территории, системе видеонаблюдения во дворе. Также для удобства жителей проведен Wi-Fi во дворе, оборудованы безопасные и современные детские площадки, зоны отдыха. «Фонтаны» - уникальный, неповторимый жилой комплекс, воплощающий оригинальные и креативные решения дизайнеров и архитекторов. Дома округлой форме - это придает им легкости, несмотря на массивность постройки. ЖК «Фонтаны» расположен в микрорайоне Черёмушки. Отличная транспортная развязка позволяет быстро и с комфортом добраться до центра, а большое количество зеленых насаждений и парков дает возможность гулять с детьми и наслаждаться прекрасным видом на Кубань. АКЦИЯ: При покупке квартиры в жилом комплексе «Фонтаны» вы получаете готовый качественный ремонт в подарок от застройщика. В комплекс работ входит полный цикл чистовой отделки: выравнивание и финишная отделка стен и потолков, укладка напольных покрытий, установка межкомнатных дверей и монтаж всей необходимой базовой сантехники. Это специальное предложение позволит вам избежать расходов, хлопот и долгого ожидания, связанных с самостоятельным ремонтом. Вы становитесь владельцем современного жилого пространства, куда можно заселиться сразу после получения ключей, и где каждая деталь выполнена по утверждённому проекту с использованием качественных материалов. Получить подробную информацию и консультацию по условиям акции можно у наших менеджеров. Аккредитованные банки: Сбербанк, Альфа-Банк, ВТБ, Банк Уралсиб, РОССИЯ, Абсолют Банк, Металлинвестбанк, РНКБ, ПСБ, Кубань Кредит, Банк ВБРР, Россельхозбанк. Позвоните и узнайте условия покупки прямо сейчас!
14.04.2026
10 689 000 ₽
Продам 1 комнатную квартиру 30.6 м2 картинка из объявления
1
Предлагаем вашему вниманию однокомнатную квартиру общей площадью 30,6 кв.м. , предназначенную исключительно для постоянного проживания семьи или сдачи в аренду. Местоположение и инфраструктураРасположение: Недалеко от железнодорожной станции «Новороссийск», расстояние составляет примерно 8,5 километров. Транспортная доступность: Прекрасно обслуживается автобусами и маршрутными такси, что значительно облегчает передвижение. Характеристики недвижимостиДом: 12-этажный монолитный жилой комплекс. Стены: выполнены из прочных монолитных конструкций. Внешняя отделка: хорошее состояние, обеспечивающее эстетику и долговечность фасада. Инженерные коммуникации: электроснабжение, теплоснабжение, централизованное водоотведение и холодное водоснабжение подключены и функционируют исправно. Интерьер и удобстваОкна: оснащены пластиковыми стеклопакетами, что гарантирует тепло зимой и прохладу летом. Лоджия: имеет качественное остекление, позволяющее комфортно проводить время вне зависимости от погодных условий. Двери: входная дверь выполнена из металла, обеспечивающего безопасность жильцов, межкомнатные двери отсутствуют, что даёт возможность собственнику самостоятельно выбрать стиль интерьера. Санузел: совмещённый, готов к ремонту и оформлению в желаемом стиле. Чердак/мансарда: присутствует, что увеличивает общую полезную площадь дома. Лифт: имеется, что удобно для перемещения между этажами. Эта квартира станет прекрасным вариантом для тех, кто ценит удобство расположения, хороший уровень обслуживания общественных транспортных средств и качественные материалы в строительстве своего будущего дома.
29.01.2026
5 730 000 ₽
Продам 2 комнатную квартиру 55.86 м2 картинка из объявления
10
Продается 2-комн. квартира, площадью 55.86 м2 в монолитно-кирпичной новостройке. Возможен вариант покупки с использованием ипотечных средств, есть рассрочка, возможна покупка с использованием материнского капитала, есть военная ипотека. Жилая площадь 24.79 м2, кухня 17.2 м2, предчистовая отделка. Квартира располагается на 18 этаже 18-этажного дома в ЖК Фонтаны. Застройщик - ГК ССК, сдача дома - IV квартал 2026 года, высота потолков 2.82 м. Дом оборудован пассажирским лифтом, закрытая территория. Отдельная многоуровневая парковка, парковка охраняется. Обеспечение безопасности: видеонаблюдение, противопожарная система. Инфраструктура: детский сад, детские площадки, спортивные площадки, места для отдыха, супермаркет, рестораны, фитнес-центр, пункты бытового обслуживания, коммерческие объекты. Жилой комплекс «Фонтаны» - дом клубного типа. Преимущество заключается в продуманном ландшафте дворов, круглосуточно охраняемой территории, системе видеонаблюдения во дворе. Также для удобства жителей проведен Wi-Fi во дворе, оборудованы безопасные и современные детские площадки, зоны отдыха. «Фонтаны» - уникальный, неповторимый жилой комплекс, воплощающий оригинальные и креативные решения дизайнеров и архитекторов. Дома округлой форме - это придает им легкости, несмотря на массивность постройки. ЖК «Фонтаны» расположен в микрорайоне Черёмушки. Отличная транспортная развязка позволяет быстро и с комфортом добраться до центра, а большое количество зеленых насаждений и парков дает возможность гулять с детьми и наслаждаться прекрасным видом на Кубань. АКЦИЯ: При покупке квартиры в жилом комплексе «Фонтаны» вы получаете готовый качественный ремонт в подарок от застройщика. В комплекс работ входит полный цикл чистовой отделки: выравнивание и финишная отделка стен и потолков, укладка напольных покрытий, установка межкомнатных дверей и монтаж всей необходимой базовой сантехники. Это специальное предложение позволит вам избежать расходов, хлопот и долгого ожидания, связанных с самостоятельным ремонтом. Вы становитесь владельцем современного жилого пространства, куда можно заселиться сразу после получения ключей, и где каждая деталь выполнена по утверждённому проекту с использованием качественных материалов. Получить подробную информацию и консультацию по условиям акции можно у наших менеджеров. Аккредитованные банки: Сбербанк, Альфа-Банк, ВТБ, Банк Уралсиб, РОССИЯ, Абсолют Банк, Металлинвестбанк, РНКБ, ПСБ, Кубань Кредит, Банк ВБРР, Россельхозбанк. Позвоните и узнайте условия покупки прямо сейчас!
14.04.2026
9 775 500 ₽
Продам 2 комнатную квартиру 57.18 м2 картинка из объявления
10
Продается 2-комн. квартира, площадью 57.18 м2 в монолитно-кирпичной новостройке. Возможен вариант покупки с использованием ипотечных средств, есть рассрочка, возможна покупка с использованием материнского капитала, есть военная ипотека. Жилая площадь 27.82 м2, кухня 15.87 м2, предчистовая отделка. Квартира располагается на 16 этаже 18-этажного дома в ЖК Фонтаны. Застройщик - ГК ССК, сдача дома - IV квартал 2026 года, высота потолков 2.82 м. Дом оборудован пассажирским лифтом, закрытая территория. Отдельная многоуровневая парковка, парковка охраняется. Обеспечение безопасности: видеонаблюдение, противопожарная система. Инфраструктура: детский сад, детские площадки, спортивные площадки, места для отдыха, супермаркет, рестораны, фитнес-центр, пункты бытового обслуживания, коммерческие объекты. Жилой комплекс «Фонтаны» - дом клубного типа. Преимущество заключается в продуманном ландшафте дворов, круглосуточно охраняемой территории, системе видеонаблюдения во дворе. Также для удобства жителей проведен Wi-Fi во дворе, оборудованы безопасные и современные детские площадки, зоны отдыха. «Фонтаны» - уникальный, неповторимый жилой комплекс, воплощающий оригинальные и креативные решения дизайнеров и архитекторов. Дома округлой форме - это придает им легкости, несмотря на массивность постройки. ЖК «Фонтаны» расположен в микрорайоне Черёмушки. Отличная транспортная развязка позволяет быстро и с комфортом добраться до центра, а большое количество зеленых насаждений и парков дает возможность гулять с детьми и наслаждаться прекрасным видом на Кубань. АКЦИЯ: При покупке квартиры в жилом комплексе «Фонтаны» вы получаете готовый качественный ремонт в подарок от застройщика. В комплекс работ входит полный цикл чистовой отделки: выравнивание и финишная отделка стен и потолков, укладка напольных покрытий, установка межкомнатных дверей и монтаж всей необходимой базовой сантехники. Это специальное предложение позволит вам избежать расходов, хлопот и долгого ожидания, связанных с самостоятельным ремонтом. Вы становитесь владельцем современного жилого пространства, куда можно заселиться сразу после получения ключей, и где каждая деталь выполнена по утверждённому проекту с использованием качественных материалов. Получить подробную информацию и консультацию по условиям акции можно у наших менеджеров. Аккредитованные банки: Сбербанк, Альфа-Банк, ВТБ, Банк Уралсиб, РОССИЯ, Абсолют Банк, Металлинвестбанк, РНКБ, ПСБ, Кубань Кредит, Банк ВБРР, Россельхозбанк. Позвоните и узнайте условия покупки прямо сейчас!
14.04.2026
10 006 500 ₽
Продам 2 комнатную квартиру 55.86 м2 картинка из объявления
10
Продается 2-комн. квартира, площадью 55.86 м2 в монолитно-кирпичной новостройке. Возможен вариант покупки с использованием ипотечных средств, есть рассрочка, возможна покупка с использованием материнского капитала, есть военная ипотека. Жилая площадь 24.79 м2, кухня 17.2 м2, предчистовая отделка. Квартира располагается на 16 этаже 18-этажного дома в ЖК Фонтаны. Застройщик - ГК ССК, сдача дома - IV квартал 2026 года, высота потолков 2.82 м. Дом оборудован пассажирским лифтом, закрытая территория. Отдельная многоуровневая парковка, парковка охраняется. Обеспечение безопасности: видеонаблюдение, противопожарная система. Инфраструктура: детский сад, детские площадки, спортивные площадки, места для отдыха, супермаркет, рестораны, фитнес-центр, пункты бытового обслуживания, коммерческие объекты. Жилой комплекс «Фонтаны» - дом клубного типа. Преимущество заключается в продуманном ландшафте дворов, круглосуточно охраняемой территории, системе видеонаблюдения во дворе. Также для удобства жителей проведен Wi-Fi во дворе, оборудованы безопасные и современные детские площадки, зоны отдыха. «Фонтаны» - уникальный, неповторимый жилой комплекс, воплощающий оригинальные и креативные решения дизайнеров и архитекторов. Дома округлой форме - это придает им легкости, несмотря на массивность постройки. ЖК «Фонтаны» расположен в микрорайоне Черёмушки. Отличная транспортная развязка позволяет быстро и с комфортом добраться до центра, а большое количество зеленых насаждений и парков дает возможность гулять с детьми и наслаждаться прекрасным видом на Кубань. АКЦИЯ: При покупке квартиры в жилом комплексе «Фонтаны» вы получаете готовый качественный ремонт в подарок от застройщика. В комплекс работ входит полный цикл чистовой отделки: выравнивание и финишная отделка стен и потолков, укладка напольных покрытий, установка межкомнатных дверей и монтаж всей необходимой базовой сантехники. Это специальное предложение позволит вам избежать расходов, хлопот и долгого ожидания, связанных с самостоятельным ремонтом. Вы становитесь владельцем современного жилого пространства, куда можно заселиться сразу после получения ключей, и где каждая деталь выполнена по утверждённому проекту с использованием качественных материалов. Получить подробную информацию и консультацию по условиям акции можно у наших менеджеров. Аккредитованные банки: Сбербанк, Альфа-Банк, ВТБ, Банк Уралсиб, РОССИЯ, Абсолют Банк, Металлинвестбанк, РНКБ, ПСБ, Кубань Кредит, Банк ВБРР, Россельхозбанк. Позвоните и узнайте условия покупки прямо сейчас!
14.04.2026
9 775 500 ₽
Продам 2 комнатную квартиру 55.86 м2 картинка из объявления
10
Продается 2-комн. квартира, площадью 55.86 м2 в монолитно-кирпичной новостройке. Возможен вариант покупки с использованием ипотечных средств, есть рассрочка, возможна покупка с использованием материнского капитала, есть военная ипотека. Жилая площадь 24.79 м2, кухня 17.2 м2, предчистовая отделка. Квартира располагается на 12 этаже 18-этажного дома в ЖК Фонтаны. Застройщик - ГК ССК, сдача дома - IV квартал 2026 года, высота потолков 2.82 м. Дом оборудован пассажирским лифтом, закрытая территория. Отдельная многоуровневая парковка, парковка охраняется. Обеспечение безопасности: видеонаблюдение, противопожарная система. Инфраструктура: детский сад, детские площадки, спортивные площадки, места для отдыха, супермаркет, рестораны, фитнес-центр, пункты бытового обслуживания, коммерческие объекты. Жилой комплекс «Фонтаны» - дом клубного типа. Преимущество заключается в продуманном ландшафте дворов, круглосуточно охраняемой территории, системе видеонаблюдения во дворе. Также для удобства жителей проведен Wi-Fi во дворе, оборудованы безопасные и современные детские площадки, зоны отдыха. «Фонтаны» - уникальный, неповторимый жилой комплекс, воплощающий оригинальные и креативные решения дизайнеров и архитекторов. Дома округлой форме - это придает им легкости, несмотря на массивность постройки. ЖК «Фонтаны» расположен в микрорайоне Черёмушки. Отличная транспортная развязка позволяет быстро и с комфортом добраться до центра, а большое количество зеленых насаждений и парков дает возможность гулять с детьми и наслаждаться прекрасным видом на Кубань. АКЦИЯ: При покупке квартиры в жилом комплексе «Фонтаны» вы получаете готовый качественный ремонт в подарок от застройщика. В комплекс работ входит полный цикл чистовой отделки: выравнивание и финишная отделка стен и потолков, укладка напольных покрытий, установка межкомнатных дверей и монтаж всей необходимой базовой сантехники. Это специальное предложение позволит вам избежать расходов, хлопот и долгого ожидания, связанных с самостоятельным ремонтом. Вы становитесь владельцем современного жилого пространства, куда можно заселиться сразу после получения ключей, и где каждая деталь выполнена по утверждённому проекту с использованием качественных материалов. Получить подробную информацию и консультацию по условиям акции можно у наших менеджеров. Аккредитованные банки: Сбербанк, Альфа-Банк, ВТБ, Банк Уралсиб, РОССИЯ, Абсолют Банк, Металлинвестбанк, РНКБ, ПСБ, Кубань Кредит, Банк ВБРР, Россельхозбанк. Позвоните и узнайте условия покупки прямо сейчас!
14.04.2026
9 775 500 ₽
Продам 1 комнатную квартиру 38.5 м2 картинка из объявления
5
Продаётся однокомнатная квартира-студия общей площадью 38.5 кв. м, расположенная на пятом этаже восьмиэтажного панельного жилого комплекса, построенного в 2018 году. обладает удобной планировкой с изолированной зоной отдыха и компактной кухней Наличие просторной лоджии позволяет расширить полезную жилую зону. Основные преимущества данного предложения включают: - Современную панельную постройку с улучшенной шумоизоляцией, - Удобное расположение окон, обеспечивающих достаточное освещение помещения, - Просторную студию, позволяющую создать индивидуальный дизайн интерьера, - Лоджию, увеличивающую функциональность пространства, - Совмещённый санузел, оптимизирующий использование квадратных метров. Квартира требует ремонта, что даёт возможность будущим владельцам обустроить жилье согласно собственным предпочтениям и потребностям. Приобретение данной недвижимости станет выгодным решением для тех, кто ценит комфорт и качество жизни в сочетании с разумной стоимостью жилья. Для подробной консультации и организации показа объекта обращайтесь непосредственно к продавцу. Имущество реализуется путем проведения торгов в форме аукциона в соответствии с Федеральным законом "О несостоятельности (банкротстве) " от 26.10.2002 №127-ФЗ. Объявление о реализации размещено на сайте залогового имущества Сбербанка - Pоrtal-DA. ru под номером 920447 (назовите при обращении) Квартира- Студия пл. 42.1 кв.м. Г. СОЧИ, АДЛЕРСКИЙ РАЙОН, УЛ. ИЗУМРУДНАЯ, Д. 38, КВАРТИРА №62 Pоrtal-DA. ru предоставляет услугу по участию в торгах - "Купить с помощью агента"При покупке нельзя использовать средства жилищных сертификатов и материнского капитала. Возможность привлечения кредитных средств СБера (ипотека) по данному активу необходимо уточнить в чате на сайте залогового имущества Сбербанка - Pоrtal-DA. ru. Либо обращаться по телефону в рабочие дни с 9-00 до 18-00 Мск. Готовы ответить на все интересующие вопросы.
14.01.2026
8 280 720 ₽
Продам 2 комнатную квартиру 53.15 м2 картинка из объявления
6
Продается 2-комн. квартира, площадью 53.15 м2 в панельной новостройке. Возможен вариант покупки с использованием ипотечных средств, возможна покупка с использованием материнского капитала. Жилая площадь 24.1 м2, кухня 15.4 м2, предчистовая отделка. Квартира располагается на 4 этаже 12-этажного дома в ЖК На Высоком берегу. Застройщик - ГК ССК, сдача дома - II квартал 2027 года, высота потолков 2.7 м. Дом оборудован пассажирским лифтом. Подземная парковка. Инфраструктура: детские площадки, спортивные площадки, места для отдыха, рестораны. Семейный квартал «На Высоком берегу» расположен всего в 300 метрах от моря, где каждая деталь создана для вашего максимального комфорта. Квартиры с высотой потолков 2,7 метра, просторные мастер-спальни и великолепные виды. 169 уникальных, современных и функциональных планировок, каждая из которых разработана специально для комфортной семейной жизни. Продуманное зонирование, рациональное использование пространства и эстетика современного дизайна делают каждую квартиру настоящим воплощением мечты о жилье премиум-класса. АКЦИЯ: Семейный квартал «На Высоком берегу» предлагает новый стандарт жизни, где отдых у моря сочетается с полной инфраструктурой в шаге от дома. Это целый мир внутри квартала: собственный торговый центр, школа, два детских сада и игровые площадки для детей всех возрастов. А на первых этажах уже размещаются кафе, салоны и магазины. Архитектура выдержана в современном средиземноморском стиле, а просторные дизайнерские лобби с высокими потолками подчёркивают премиальный уровень комфорта. Здесь вы получаете не просто квартиру в Анапе, а готовую жизнь у моря в окружении всего необходимого. Успейте стать частью этого квартала - предложение с ценой от 7,7 млн рублей ограничено. Позвоните и узнайте условия покупки прямо сейчас!
22.04.2026
11 693 000 ₽
Продам 2 комнатную квартиру 53.05 м2 картинка из объявления
6
Продается 2-комн. квартира, площадью 53.05 м2 в панельной новостройке. Возможен вариант покупки с использованием ипотечных средств, возможна покупка с использованием материнского капитала. Жилая площадь 24.4 м2, кухня 15.3 м2, предчистовая отделка. Квартира располагается на 5 этаже 12-этажного дома в ЖК На Высоком берегу. Застройщик - ГК ССК, сдача дома - II квартал 2027 года, высота потолков 2.7 м. Дом оборудован пассажирским лифтом. Подземная парковка. Инфраструктура: детские площадки, спортивные площадки, места для отдыха, рестораны. Семейный квартал «На Высоком берегу» расположен всего в 300 метрах от моря, где каждая деталь создана для вашего максимального комфорта. Квартиры с высотой потолков 2,7 метра, просторные мастер-спальни и великолепные виды. 169 уникальных, современных и функциональных планировок, каждая из которых разработана специально для комфортной семейной жизни. Продуманное зонирование, рациональное использование пространства и эстетика современного дизайна делают каждую квартиру настоящим воплощением мечты о жилье премиум-класса. АКЦИЯ: Семейный квартал «На Высоком берегу» предлагает новый стандарт жизни, где отдых у моря сочетается с полной инфраструктурой в шаге от дома. Это целый мир внутри квартала: собственный торговый центр, школа, два детских сада и игровые площадки для детей всех возрастов. А на первых этажах уже размещаются кафе, салоны и магазины. Архитектура выдержана в современном средиземноморском стиле, а просторные дизайнерские лобби с высокими потолками подчёркивают премиальный уровень комфорта. Здесь вы получаете не просто квартиру в Анапе, а готовую жизнь у моря в окружении всего необходимого. Успейте стать частью этого квартала - предложение с ценой от 7,7 млн рублей ограничено. Позвоните и узнайте условия покупки прямо сейчас!
02.04.2026
11 671 000 ₽
Продам 2 комнатную квартиру 53.05 м2 картинка из объявления
6
Продается 2-комн. квартира, площадью 53.05 м2 в панельной новостройке. Возможен вариант покупки с использованием ипотечных средств, возможна покупка с использованием материнского капитала. Жилая площадь 24.4 м2, кухня 15.3 м2, предчистовая отделка. Квартира располагается на 4 этаже 12-этажного дома в ЖК На Высоком берегу. Застройщик - ГК ССК, сдача дома - II квартал 2027 года, высота потолков 2.7 м. Дом оборудован пассажирским лифтом. Подземная парковка. Инфраструктура: детские площадки, спортивные площадки, места для отдыха, рестораны. Семейный квартал «На Высоком берегу» расположен всего в 300 метрах от моря, где каждая деталь создана для вашего максимального комфорта. Квартиры с высотой потолков 2,7 метра, просторные мастер-спальни и великолепные виды. 169 уникальных, современных и функциональных планировок, каждая из которых разработана специально для комфортной семейной жизни. Продуманное зонирование, рациональное использование пространства и эстетика современного дизайна делают каждую квартиру настоящим воплощением мечты о жилье премиум-класса. АКЦИЯ: Семейный квартал «На Высоком берегу» предлагает новый стандарт жизни, где отдых у моря сочетается с полной инфраструктурой в шаге от дома. Это целый мир внутри квартала: собственный торговый центр, школа, два детских сада и игровые площадки для детей всех возрастов. А на первых этажах уже размещаются кафе, салоны и магазины. Архитектура выдержана в современном средиземноморском стиле, а просторные дизайнерские лобби с высокими потолками подчёркивают премиальный уровень комфорта. Здесь вы получаете не просто квартиру в Анапе, а готовую жизнь у моря в окружении всего необходимого. Успейте стать частью этого квартала - предложение с ценой от 7,7 млн рублей ограничено. Позвоните и узнайте условия покупки прямо сейчас!
02.04.2026
11 671 000 ₽
Продам 2 комнатную квартиру 53.05 м2 картинка из объявления
6
Продается 2-комн. квартира, площадью 53.05 м2 в панельной новостройке. Возможен вариант покупки с использованием ипотечных средств, возможна покупка с использованием материнского капитала. Жилая площадь 24.4 м2, кухня 15.3 м2, предчистовая отделка. Квартира располагается на 3 этаже 12-этажного дома в ЖК На Высоком берегу. Застройщик - ГК ССК, сдача дома - II квартал 2027 года, высота потолков 2.7 м. Дом оборудован пассажирским лифтом. Подземная парковка. Инфраструктура: детские площадки, спортивные площадки, места для отдыха, рестораны. Семейный квартал «На Высоком берегу» расположен всего в 300 метрах от моря, где каждая деталь создана для вашего максимального комфорта. Квартиры с высотой потолков 2,7 метра, просторные мастер-спальни и великолепные виды. 169 уникальных, современных и функциональных планировок, каждая из которых разработана специально для комфортной семейной жизни. Продуманное зонирование, рациональное использование пространства и эстетика современного дизайна делают каждую квартиру настоящим воплощением мечты о жилье премиум-класса. АКЦИЯ: Семейный квартал «На Высоком берегу» предлагает новый стандарт жизни, где отдых у моря сочетается с полной инфраструктурой в шаге от дома. Это целый мир внутри квартала: собственный торговый центр, школа, два детских сада и игровые площадки для детей всех возрастов. А на первых этажах уже размещаются кафе, салоны и магазины. Архитектура выдержана в современном средиземноморском стиле, а просторные дизайнерские лобби с высокими потолками подчёркивают премиальный уровень комфорта. Здесь вы получаете не просто квартиру в Анапе, а готовую жизнь у моря в окружении всего необходимого. Успейте стать частью этого квартала - предложение с ценой от 7,7 млн рублей ограничено. Позвоните и узнайте условия покупки прямо сейчас!
02.04.2026
11 671 000 ₽

Как купить квартиру в Новомихайловском

Купить квартиру в Новомихайловском в тихом и спокойном районе без агентств с наценками и переплатами – теперь это возможно благодаря нашей доске объявлений – “Разместить Объявление.Ру или Рудос” Здесь представлена информация об однокомнатных квартирах и квартирах с просторной площадью, жилье в новостройках и вторичной недвижимости. После просмотра фотографий и описания объекта Новомихайловского, вы можете связаться с продавцом для обсуждения деталей и заключения договора купли-продажи.

0.2124