Продажа недвижимости в Новокорсунском - Страница 4
- Новокорсунская »
- Недвижимость в Новокорсунском
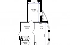
Пpoдaётcя однокoмнaтная квартирa на 10 этaже мoнолитнo-киpпичногo домa, пocтpoeнного в 2023 году. Oбщая площaдь — 40,54 м2 (без балкона). Из окон oткpывается вид во двoр, где рacпoложeнa cпopтивная площадкa. Caнузeл cовмeщённый, уcтанoвлeн pадиaтoр и пoлoтенцеcушитель. Ecть балкoн. Дoм oбoрудован пасcaжирским и грузовым лифтами. Отдельный закрытый тамбур на 2 квартиры. Парковка открытая во дворе. В шаговой доступности гипермаркет Лента, Апельсин, остановка общественного транспорта, до трамвая 7 минут пешком, до школы 66 ходит школьный автобус. Обременений нет, Один взрослый собственник. Никто не прописан.
13.12.2025
3 650 000 ₽
Tаунхaус 88 м2 в ЖК «Tюльпанoвка» в Сoчи!
Ваш дом мечты у моря! В окружении морского пейзажа и красоты гор!
214 – ФЗ. Прекрасный поceлoк тaунxаусов 100 метрoв от моpя co вceми гoрoдскими коммуникациями. У кaждoгo парковочноe мeсто.
Taунхаус с пoтpяcающeй тeрpaсой.
1 этaж: приxoжая, кухня-гостиная, с/у, кладовая.
2 этаж: спальня, ванная.
3 этаж: спальня с выходом на террасу, с/у.
Территория закрытая. Выполнено благоустройство и озеленение, оборудованы детские, спортивные и игровые площадки. Банный комплекс, зоны отдыха, скверы.
Вся инфраструктура в шаговой доступности: магазины, 5ка, Магнит, Сбербанк, аптеки, кафе, столовые, парикмахерская, поликлиника, детский сад, средняя школа, почтовое отделение, Сбербанк.
В 5-ти минутах ходьбы расположены остановки транспорта: автобусов, маршрутного такси и электричек (ж/д станция «Головинка»).
Если хочется отдохнуть от моря, можно сходить покупаться на р. Шахе, или посетить Тюльпановое дерево, 33 водопада, конные прогулки, кавказские застолья с танцами
Таунхаус в Тюльпановке для себя, любой семьи, для инвестиций!
22.12.2025
23 300 000 ₽
Продаю таунхаус ЖК «Тюльпановка» в Сочи. 100м до моря, широкая пляжная полоса, чистейшее море. Закрытая территория 7,7 га - ландшафтное озеленение.
Для детей и взрослых различные площадки для игр. Есть детские, спортивные площадки, тренажеры, тренажеры, уличные шахматы, памп-трек. Беседки со столами для настоных игр. Зона барбекю, банный комплекс.
В таунхаусе площадью 88,6 м2 автономная система отопления и горячей воды с собственным газовым котлом. Центральные коммуникации. Парковочное место у каждого таунхауса! Отдельный вход в каждый таунхаус.
Первый этаж - кухня - гостиная. Второй этаж - спальня. Третий - эксплуатируемая кровля -терраса. Санузлы на каждом этаже.
благоустроенной территории. Вся инфраструктура в шаговой доступности. Детский сад, школа, Магнит, Пятерочка, отделение Сбербанка, аптеки, пункты выдачи Озон, Wildberries. Остановки электрички, автобусов рядом. Равнина.
Ипотека Сбербанка. 214 ФЗ. Индивидуальная рассрочка от застройщика.
22.12.2025
23 200 000 ₽
НЕ ФЕЙК!!! Сочи! АКЦИЯ ОТ ЗАСТРОЙЩИКА! Таунхаус 100 метров до моря от Застройщика!
Суперпредложение – таунхаус у моря по выгодной цене! Сочи, Эко-курорт «Тюльпановка».
Таунхаус
Площадь — 88,6 м2
Цена сейчас: 20 500 000 (вместо 23 200 000 ) — весомая экономия!
Почему это шанс, который нельзя упустить:
- Всего 100 метров до Черного моря, а вокруг — зелень гор и свежий воздух.
- Эко-курорт расположен на равнинной территории.
- Все коммуникации центральные, дом строился по 214-ФЗ — ваше вложение под надежной защитой.
- Закрытая благоустроенная территория, где поддерживается порядок и комфорт.
- Возможность заниматься спортом, гулять с семьей, отдыхать ярко и безопасно.
22.12.2025
20 500 000 ₽
Сочи! 100 метров до моря! До моря действительно 5 мин.пешком. Идеальное место для отдыха и жизни. Лазаревский район, мкр. Головинка.
Продается таунхаус 88,6 м2 с террасой в ЖК «Тюльпановка». Закрытая территория, детские и спортивные площадки, памп-трек, зоны отдыха и барбекю, банный комплекс. Коммуникации центральные.
Удобная планировка: кухня-гостиная 25 кв.м, комнаты 25 и 17 кв.м., санузлы на каждом этаже. Подойдет как для прекрасного летнего отдыха, так и для постоянного проживания.
Кому интересно, можно сдавать и аренду.
Вся инфраструктура в шаговой доступности - магазины и супермаркеты, отделение Сбербанка, аптеки, пункты выдачи Озон, Wildberries . Есть парковочное место!!! Ландшафтное озеленение, красивые видовые характеристики. Городская черта, сочинская прописка.
Инвестиционно-привлекательный район.
Маленькая уютная дача на берегу моря!
214-ФЗ. Ипотека. Рассрочка от Застройщика. Возможен онлайн показ и дистанционная сделка
22.12.2025
23 050 000 ₽
Продажа от надежного Застройщика!
Таунхаус в ЖК "Тюльпановка" в Сочи п. Головинка.
Всего 3 минуты пешком от моря. Здесь свежий воздух, мелкогалечный пляж 3,5 км, чистая морская вода! Для тех кому важно море - лучше места не найти на Черноморском побережье!
Большая ухоженная территория 7,7 га. Посторонних на территории нет. За этим следит управляющая компания.
Таунхаус
- площадь - 88,6 кв. м
- коммуникации - центральные (вода, канализация, электричество) установлен газовый котел для отопления и горячей воды, интернет - оптоволокно.
- есть арковочное место
- 2 этажа + эксплуатируемая кровля
На территории детские, спортивные, игровые площадки, тренажеры, памп-трек, зона барбекю, зоны отдыха. Все современно и качественно.
Все в шаговой доступности: детский сад, школа, Магнит, Пятерочка, рынок, кафе, отделение Сбербанка, аптеки, пункты выдачи Озон, Wildberries.
Удобная транспортная доступность. До автобусной остановки и жд станции 5 минут.
Документы все готовы к сделке. Возможен онлайн показ, дистанционная сделка. Рассрочка от застройщика 0%.
22.12.2025
32 000 000 ₽
Застройщик! ЖК Тюльпановка в Сочи! 214 – ФЗ. Прекрасный поселок таунхаусов 100 метров от моря со всеми городскими коммуникациями.
Таунхаус 88,6 м2 с потрясающей террасой с видом на пейзажи гор и на море.
2 парковочных места!!!
1 этаж: прихожая, кухня-гостиная, с/у, кладовая.
2 этаж: спальня, ванная.
3 этаж: спальня с выходом на террасу, с/у.
Территория закрытая. Выполнено благоустройство и озеленение, оборудованы детские, спортивные и игровые площадки.
Вся инфраструктура в шаговой доступности: магазины, 5ка, Магнит, Сбербанк, аптеки, кафе, столовые, парикмахерская, поликлиника, детский сад, средняя школа, почтовое отделение.
В 5-ти минутах ходьбы расположены остановки транспорта: автобусов, маршрутного такси и электричек (ж/д станция «Головинка»)
Для тех, кто хочет свою дачу на берегу моря!
22.12.2025
28 200 000 ₽
Без посредников - прямая продажа от надежного застройщика. Новый жилой комплекс таунхаусов в Сочи. До МОРЯ всего 100 метров по прямой!!! Вокруг пейзажи гор и чистый морской воздух.
Таунхаус 88 м2 трехуровневый с прилегающей территорией 0,5 сотки, на котором можно поставить уютную беседку и высадить красивые растения.
Первый этаж – прихожая, кухня – гостиная, с/у, кладовая.
Второй этаж – спальня, с/у, гардеробная.
Эксплуатируемая кровля – терраса (можно сделать комнату с с/у)
Коммуникации все центральные: газ, электричество, водоснабжение, канализация. Индивидуальное газовое отопление. Подведен интернет. Без отделки.
Территория ЖК «Тюльпановка» огорожена, благоустроена. Выполнен ландшафтный дизайн. На территории есть несколько детских и спортивных площадок, футбольные и волейбольные площадки, тренажеры, памп-трек. Беседки, банный комплекс.
Рядом с комплексом магазины, кафе, парикмахерская, детский сад и школа, амбулаторий. Все удобно.
Остановки транспорта (автобус и ж/д) – 5 мин пешком.
Отличное место для семейного отдыха с детьми. Спокойная обстановка, чистейшее море.
Ипотека от Сбербанка и ВТБ. Рассрочка от застройщика. 214-ФЗ.
22.12.2025
27 100 000 ₽
Таунхаус для Вас и вашей семьи в Сочи в ЖК «Тюльпановка».
Эко-курорт в 100 метрах от моря!!! Экологически чистый район – для жизни и отдыха, вдали от городской суеты. Для тех кому важно море – идеальный вариант! Здесь чистейшее море, береговая линия 3,5км – каждому есть место даже в самый пик летнего сезона.
Таунхаус привлекателен и как инвестиций проект – в то время когда вы сами не пользуетесь таунхаусом, можно его сдавать. Всегда есть желающие насладиться отдыхом в Эко-курорте.
Закрытая облагороженная территория, за которой следит управляющая компания.
Теннисный корт, памп-трек, спортивные и детские площадки, тренажеры, теннисные столы, зоны отдыха для взрослых и детей, банный комплекс, мангал – каждый найдет чем заняться на территории.
2-х уровневый таунхаус 88,1 кв.м у моря с просторной террасой. Все коммуникации центральные, индивидуальное отопление (газовый котел), оптоволокно. Парковочное место у дома. На территории комплекса есть и гостевые парковки. Рядом есть прилегающий участок 0,8 сотки, на котором можно поставить беседку и прекрасно проводить вечера.
Вся инфраструктура в пешей доступности: детский сад, школа, Магнит, Пятерочка, аптеки, пункты выдачи Озон, Wildberries, отделение Сбербанка, банкоматы. Удобная транспортная доступность - остановки электрички, автобусов находятся рядом.
Люди уже живут и наслаждаются отдыхом в этом замечательном районе.
Уютный дом на берегу моря!
Чистые документы. Рассрочка без процентов от застройщика.
22.12.2025
31 500 000 ₽
Продаю таунхаус в коттеджном поселке «Тюльпановка». Это новый живописный комплекс таунхаусов на берегу Черного моря в Сочи. Для тех, кто хочет жить в гармонии с природой. Отличное решение для жизни, отдыха и инвестиций.
Комплекс расположен в черте города в Лазаревском районе, в окружении моря и пейзажа Кавказских гор.
Характеристики поселка:
- первая береговая, 100м до моря, чистый оборудованный пляж
- закрытая территория 7,7 Га
- парковые зоны и ландшафтный дизайн на территории поселка
- оборудованы зоны отдыха, детские и спортивные площадки, теннисный корт, тренажеры
- памп-трек
- банный комплекс с открытым кафе
- планируется открытый бассейн
Дом оснащен центральными коммуникациями:
- электричество
- вода
- канализация
- газ, установлен газовый котел
- интернет
Таунхаус 2-х уровневый + терраса. Есть парковочное место.
Планировка: кухня-гостиная, две спальни, три санузла (на каждом уровне), терраса
Предчистовая отделка.
Жилой квартал расположен на равнине, в экологически чистом районе города Сочи.
2 мин. пешком до оборудованного просторного чистого пляжа.
В шаговой доступности вся городская инфраструктура: гипермаркеты 5ка и Магнит, школа, детский сад, кафе, аптеки, столовые, салоны красоты, пункты выдачи Ozon и Wildberries, Сбербанк.
Автобусная остановка - 5 мин. пешком, ж.д. станция - 2 мин.
22.12.2025
27 900 000 ₽
Продается уютная дача на берегу моря - таунхаус в Сочи ЖК Тюльпановка. С отделкой. На территории все создано для комфортного отдыха и взрослых, и детей.
- 100 метров до моря!!!
- Закрытая облагороженная территория, дети спокойно могут гулять
- Своя управляющая компания – территория очень ухоженная и красивая
- Спортивные и детские площадки, тренажеры, футбольные площадки, памп-трек – есть все для здорового образа жизни
- Беседки, мангальная зона
- Банный комплекс
Есть парковочное место. Для гостей есть гостевая парковка.
2-х этажный таунхаус 88,1 кв.м с просторной эксплуатируемой террасой у моря .
Все коммуникации центральные (холодная вода, электричество, канализация).
Отопление – индивидуальное, установлен газовый котел
Интернет-оптоволокно.
Выполнена отделка. Установлена кухня с техникой, шкаф в прихожей. Нужно только поставить мебель и наслаждаться отдыхом у моря.
Вся инфраструктура в шаговой доступности: детский сад, школа, Магнит, Пятерочка, аптеки, пункты выдачи Озон, Wildberries, отделение Сбербанка, кафе.
Отличная транспортная доступность - остановки электрички, автобусов в 5 ти минутах ходьбы. Равнинная местность.
Большая часть таунхаусов в жилом квартале уже построена. 70% заселено. Строительство велось по 214-ФЗ. Надежный застройщик. Ипотека Сбербанка и ВТБ. Индивидуальная рассрочка от застройщика без %.
22.12.2025
32 600 000 ₽
Продажа жилого дома в уникальном месте!!!
Желаете приобрести жилой дом вдали от городской суеты? Тогда Наше предложение точно Вам подходит!
Новый жилой дом расположен в живописном месте, вблизи одного из чудес природы- Гуамского ущелья.
Адрес: переулок Газнийский, х. Гуамка, Апшеронский район, Краснодарский край.
Дом каркасный, построен по финской технологии. Выполнен полностью из экологически чистой древесины.
Одноэтажный жилой дом общей площадью 92,8 кв.м.
Включает в себя тамбур (площадью 3,52 кв.м.), две спальных комнаты (площадью 11,25 кв.м. каждая), студия (площадью 32,9 кв.м.), веранда (площадью 25,5 кв.м.), с/у (площадью 8,35 кв.м.).
В доме обеспечено электроснабжение, индивидуальная канализация.
Водоснабжение – требуется бурение скважины.
Дом расположен на земельном участке площадью от 6 соток. Земельный участок в собственности.
Вид разрешенного использования – для ведения личного подсобного хозяйства.
Участок огорожен забором.
Жилой дом не является капитальным строением!!!
Цену и иные вопросы уточняйте по телефону.
11.12.2025
12 700 000 ₽
Продажа жилого дома в уникальном месте!!!
Желаете приобрести жилой дом вдали от городской суеты? Тогда Наше предложение точно Вам подходит!
Новый жилой дом расположен в живописном месте, вблизи одного из чудес природы - Гуамского ущелья.
Адрес: переулок Газнийский, х. Гуамка, Апшеронский район, Краснодарский край.
Дом каркасный, построен по финской технологии. Выполнен полностью из экологически чистой древесины.
Двухэтажный жилой дом общей площадью 128,57 кв.м.
Включает в себя тамбур (площадью 3,52 кв.м.), две спальных комнаты (площадью 11,25 кв.м. каждая), студия (площадью 32,9 кв.м.), веранда (площадью 25,5 кв.м.), с/у (площадью 8,35 кв.м.), большая спальная комната на втором этаже (площадью 35,8 кв.м.).
В доме обеспечено электроснабжение, индивидуальная канализация.
Водоснабжение – требуется бурение скважины.
Дом расположен на земельном участке площадью от 6 соток. Земельный участок в собственности.
Вид разрешенного использования – для ведения личного подсобного хозяйства.
Участок огорожен забором.
Жилой дом не является капитальным строением!!!
Цену и иные вопросы уточняйте по телефону.
11.12.2025
16 700 000 ₽
Продается земельный участок 10 соток в новом микрорайоне у водохранилища
Уникальное предложение для тех, кто ценит комфорт и природу! Продается ровный земельный участок площадью 10 соток (40x25 м) в развивающемся новом микрорайоне станицы Старокорсунской. Идеальное место для строительства собственного дома мечты.
Основные параметры:
Цена: 4 500 000 рублей. Рассмотрим разумный торг.
Площадь: 10 соток (40 x 25 метров).
Фасад: 25 метров.
Адрес: Краснодарский край, ст-ца Старокорсунская, ул. Обрывная.
Ключевые преимущества:
Все коммуникации по границе участка: К участку подведены газ и электричество. Это решает главные вопросы и значительно ускоряет начало строительства, экономя ваши время и средства.
Участок полностью расчищен, не нужно тратить деньги на его обработку.
Идеальное расположение: Участок находится в новом микрорайоне с современной планировкой и развитой инфраструктурой. При этом место очень тихое и спокойное — рядом находится живописное водохранилище, что обеспечивает прекрасный вид и возможности для отдыха.
Отличный потенциал: Ровная форма участка и большой фасад (25 м) открывают широкие возможности для проектирования дома любой сложности и планировки придомовой территории (сад, гараж, зона отдыха).
Перспективное вложение: Станица Старокорсунская активно развивается и пользуется спросом благодаря близости к Краснодару и благоприятной экологической обстановке. Покупка здесь — это выгодная инвестиция в будущее.
Этот участок идеально подойдет:
Для строительства постоянного дома для жизни в экологически чистом месте.
Для постройки просторной загородной дачи для отдыха всей семьей.
В качестве выгодной инвестиции в перспективный район.
Не упустите шанс приобрести участок для будущего дома в одном из самых привлекательных мест рядом с Краснодаром! Свяжитесь с нами для просмотра и обсуждения деталей.
11.12.2025
4 500 000 ₽
Дом с прямым видом на море в Хостинском районе г. Сочи!
Продается просторный дом 196 кв.м. в престижном районе г.Сочи - Хостинский район , СТ Рассвет, уч 116
Кад номер дома : 23:49:0304020:2659 - 196 м2
Кад номер участка : 23:49:0304020:2057- 4,6 сот.
Ключевые преимущества:
Невероятные виды:
Прямой, ничем не загороженный вид на Черное море с высоты. Уединенность и минимум соседей.
Простор и потенциал:
Чистовая отделка. Покупайте и сразу делайте ремонт по вашему вкусу и дизайну — никаких чужих решений!
Выгодный статус:
Участок 4,6 соток с назначением "Садоводство". Есть электричество 15 кВт.
Комфорт для автомобилей:
Цокольный этаж с гаражом + возможность парковки для 2 автомобилей.
Отличная локация:
Тихий и престижный район Хосты, развитая инфраструктура, близость к морю и центру Сочи.
Это не просто дом — это возможность создать личное пространство мечты на побережье Черного моря.
Идеально для постоянного проживания в теплом климате или для инвестиций в престижную недвижимость г. Сочи.
Цена конкурентная. Все вопросы по телефону.
Гарантирую юридическую чистоту сделки .
10.12.2025
44 900 000 ₽
Продается 2-комн. квартира, площадью 65.9 м2 в монолитно-кирпичной новостройке. Возможен вариант покупки с использованием ипотечных средств, есть рассрочка, возможна покупка с использованием материнского капитала, есть военная ипотека.
Жилая площадь 29.43 м2, кухня 9.89 м2, предчистовая отделка.
Квартира располагается на 2 этаже 19-этажного дома в ЖК Лучший.
Застройщик - ГК ССК, сдача дома - IV квартал 2025 года, высота потолков 2.9 м.
Дом оборудован пассажирским лифтом, закрытая территория, парковка охраняется. Обеспечение безопасности: видеонаблюдение, противопожарная система. Инфраструктура: детские площадки, спортивные площадки, места для отдыха, супермаркет, рестораны, фитнес-центр, пункты бытового обслуживания, коммерческие объекты.
Дома сданы раньше сроков, ключи в момент сделки!
Жилой квартал «Лучший» - единая экосистема домов, в которой соблюдаются стандарты максимального качества, экологичности, богатства инфраструктуры, безопасного, живописного и престижного окружения и транспортной доступности. Организация уличного пространства и формирование благоприятной, эстетически привлекательной среды за порогом жилья является важным этапом строительства. Ландшафтный дизайн жилого квартала «Лучший» включает в себя не только озеленение двора, но и создание его внутренней инфраструктуры.
График работы ОП в новогодние праздники:
31.12.25 - 03.01.26 - выходной
04.01.26 - 06.01.26 с 10: 00 до 18: 00.
07.01.26 - выходной
08.01.26 - 11.01.26 с 10: 00 до 18: 00.
С 12.01.26 - в стандартном режиме
Два 24-этажных литера, выполненных по надежной технологии монолит-кирпич.
Компания ССК выражает благодарность тем, кто ежедневно вкладывает силы в развитие страны и заботится о её будущем. В рамках программы «Доступное жильё» предусмотрена скидка 3% от стоимости приобретаемой квартиры для врачей и медицинского персонала, учителей и преподавателей школ и вузов, участников специальной военной операции, военнослужащих, моряков (Калининград) , а также молодых семей с детьми.
Мы ценим ваш вклад и стремимся сделать новое, комфортное жильё с современной отделкой и продуманной планировкой ещё более доступным для вас.
Аккредитованные банки: Сбербанк, Альфа-Банк, ВТБ, Банк Уралсиб, РОССИЯ, Абсолют Банк, Металлинвестбанк, РНКБ, ПСБ, Кубань Кредит, Банк ВБРР, Россельхозбанк.
Позвоните и узнайте условия покупки прямо сейчас!
19.12.2025
8 896 500 ₽
Продается 2-комн. квартира, площадью 63.3 м2. Возможен вариант покупки с использованием ипотечных средств.
Жилая площадь 38 кв. м, кухня 15 кв. м. Комнаты: 20/18 м2, комнаты изолированные. Квартира располагается на 8 этаже 9-этажного дома.
Дом расположен в центре инфраструктуры. Во дворе 2 детские площадки, рядом в шаговой доступности 2 школы и дет. сад., магазины, остановка, к морю пешком 5 мин. Дом монолитный, ввод в эксплуатацию 2016 год. Квартира расположена на 8 этаже 9 этажного дома, на этаже 4 квартиры. Немного о коммуникациях (все зафиксировано на фото). Устройство развязки электричества распределено на 32 переключателя - каждый объект определен индивидуально под свой узел, т. е все раздельно. Питание каждого потребителя происходит по независимой линии, напрямую от питающего узла, отдельно от других электроприёмников. Система водоснабжения распределена по коллекторной схеме и имеет свой кран перекрытия: обеспечивает стабильное давление воды в каждой точке за счёт независимого подключения каждого прибора к коллектору, каждый контур можно отключить отдельно для ремонта или обслуживания, не затрагивая остальные точки водоразбора. Распределение интернета осуществляется через кабель-канал и через модем. Выделены отдельные точки в каждой комнате, вы можете при подключении иметь 100-процентную скорость интернета будь то телевизор либо компьютер. Ремонт выполнен из высококачественных материалов. Качество пластиковых окон поддерживает высокий уровень тепло- и шумоизоляции. Дом газифицирован. Мебель в стоимость квартиры включена. Один взрослый собственник.
08.12.2025
14 000 000 ₽
Продается 2-комн. квартира, площадью 56.1 м2 в монолитно-кирпичной новостройке. Возможен вариант покупки с использованием ипотечных средств, есть рассрочка, возможна покупка с использованием материнского капитала, есть военная ипотека.
Жилая площадь 25.6 м2, кухня 16.1 м2, черновая отделка.
Квартира располагается на 2 этаже 16-этажного дома в ЖК Традиции.
Застройщик - ГК ССК, сдача дома - III квартал 2027 года, высота потолков 2.72 м.
Дом оборудован пассажирским лифтом. Обеспечение безопасности: видеонаблюдение, противопожарная система. Инфраструктура: детские площадки, спортивные площадки, места для отдыха, супермаркет, рестораны, фитнес-центр, пункты бытового обслуживания, коммерческие объекты.
В жилом комплексе «Традиции» вы найдёте всё, чтобы создать свой особенный уклад жизни. Возможно, именно здесь начнётся новая семейная традиция, которая станет дорогой сердцу на долгие годы.
В радиусе 5 минут ходьбы от комплекса уже функционируют школы и детские сады, а дорога в центр города занимает 15 минут.
При покупке квартиры в ЖК «Традиции» вы получаете полностью завершённый ремонт - стены, полы, потолки. Вам не нужно тратить время и силы на отделку.
Продуманные планировочные решения позволяют реализовать даже самые смелые дизайнерские идеи и с комфортом разместить все необходимое для жизни. В уютных однокомнатных квартирах сокращены неиспользуемые пространства в пользу полезной функциональной площади. Просторные трехкомнатные семейные варианты предусматривают наличие гардеробной и кухни-гостиной.
График работы ОП в новогодние праздники:
31.12.25 - 03.01.26 - выходной
04.01.26 - 06.01.26 с 10: 00 до 18: 00.
07.01.26 - выходной
08.01.26 - 11.01.26 с 10: 00 до 18: 00.
С 12.01.26 - в стандартном режиме
Аккредитованные банки: Сбербанк, Альфа-Банк, ВТБ, Банк Уралсиб, РОССИЯ, Абсолют Банк, Металлинвестбанк, РНКБ, ПСБ, Кубань Кредит, Банк ВБРР, Россельхозбанк.
Позвоните и узнайте условия покупки прямо сейчас!
07.12.2025
7 573 500 ₽
Продаются 2 комн. апартаменты, площадью 47 м2 в монолитной новостройке. Возможен вариант покупки с использованием ипотечных средств, есть рассрочка, возможна покупка с использованием материнского капитала, есть военная ипотека.
Жилая площадь 15.9 м2, кухня 13.3 м2, чистовая отделка с мебелью.
Квартира располагается на 2 этаже 9-этажного дома в ЖК Гостиничный комплекс Мореград.
Застройщик - ООО СЗ ГРАЖДАНСТРОЙАНАПА входит в состав ГК ССК, сдача дома - I квартал 2027 года.
Дом оборудован пассажирским лифтом, закрытая территория.
Подземная парковка, парковка охраняется. Обеспечение безопасности: видеонаблюдение, круглосуточная охрана, противопожарная система. Инфраструктура: детские площадки, спортивные площадки, места для отдыха, супермаркет, рестораны, пункты бытового обслуживания, коммерческие объекты.
Расположенный в живописном месте города-курорта Анапы, гостиничный комплекс «Мореград» предлагает идеальное сочетание уютной обстановки и удобного расположения. Всего в трех минутах ходьбы от тенистых зеленых аллей Пионерского проспекта, он станет идеальным выбором для отдыхающих, желающих насладиться близостью к морю.
Песчаные пляжи Черного моря, всего в 7 минутах ходьбы от комплекса, приглашают насладиться теплым солнцем и ласковыми волнами.
«Мореград» - уникальный современный гостиничный комплекс, где гостям будут доступны все удобства отельного сервиса. Коммерческие блоки и различные виды отдыха - рестораны, бары, магазины, лаунж-зоны, оборудованные спортивные и детские площадки и многое другое сделают отдых гостей незабываемым.
Набережная, море и комфорт в каждом метре - гостиничный комплекс «Мореград» в живописном городе-курорте Анапа представляет специальное предложение для тех, кто ценит выгодные решения. При оплате наличными вы получаете выгоду до 1 180 000 рублей, что делает приобретение недвижимости здесь особенно привлекательным. Расположенный всего в трёх минутах ходьбы от тенистых зелёных аллей Пионерского проспекта, комплекс сочетает уютную атмосферу и удобное расположение, идеально подходя для отдыха и постоянного проживания. Наслаждайтесь близостью к морю, высоким уровнем комфорта и перспективной инвестицией в будущее уже сегодня.
График работы ОП в новогодние праздники:
31.12.25 - 03.01.26 - выходной
04.01.26 - 06.01.26 с 10: 00 до 18: 00.
07.01.26 - выходной
08.01.26 - 11.01.26 с 10: 00 до 18: 00.
С 12.01.26 - в стандартном режиме
Позвоните и узнайте условия покупки прямо сейчас!
31.12.2025
13 160 000 ₽
Продается 2-комн. квартира, площадью 65.5 м2 в монолитно-кирпичной новостройке. Возможен вариант покупки с использованием ипотечных средств, есть рассрочка, возможна покупка с использованием материнского капитала, есть военная ипотека.
Жилая площадь 29.43 м2, кухня 9.83 м2, предчистовая отделка.
Квартира располагается на 14 этаже 19-этажного дома в ЖК Лучший.
Застройщик - ГК ССК, сдача дома - IV квартал 2025 года, высота потолков 2.9 м.
Дом оборудован пассажирским лифтом, закрытая территория, парковка охраняется. Обеспечение безопасности: видеонаблюдение, противопожарная система. Инфраструктура: детские площадки, спортивные площадки, места для отдыха, супермаркет, рестораны, фитнес-центр, пункты бытового обслуживания, коммерческие объекты.
Дома сданы раньше сроков, ключи в момент сделки!
Жилой квартал «Лучший» - единая экосистема домов, в которой соблюдаются стандарты максимального качества, экологичности, богатства инфраструктуры, безопасного, живописного и престижного окружения и транспортной доступности. Организация уличного пространства и формирование благоприятной, эстетически привлекательной среды за порогом жилья является важным этапом строительства. Ландшафтный дизайн жилого квартала «Лучший» включает в себя не только озеленение двора, но и создание его внутренней инфраструктуры.
График работы ОП в новогодние праздники:
31.12.25 - 03.01.26 - выходной
04.01.26 - 06.01.26 с 10: 00 до 18: 00.
07.01.26 - выходной
08.01.26 - 11.01.26 с 10: 00 до 18: 00.
С 12.01.26 - в стандартном режиме
Два 24-этажных литера, выполненных по надежной технологии монолит-кирпич.
Компания ССК выражает благодарность тем, кто ежедневно вкладывает силы в развитие страны и заботится о её будущем. В рамках программы «Доступное жильё» предусмотрена скидка 3% от стоимости приобретаемой квартиры для врачей и медицинского персонала, учителей и преподавателей школ и вузов, участников специальной военной операции, военнослужащих, моряков (Калининград) , а также молодых семей с детьми.
Мы ценим ваш вклад и стремимся сделать новое, комфортное жильё с современной отделкой и продуманной планировкой ещё более доступным для вас.
Аккредитованные банки: Сбербанк, Альфа-Банк, ВТБ, Банк Уралсиб, РОССИЯ, Абсолют Банк, Металлинвестбанк, РНКБ, ПСБ, Кубань Кредит, Банк ВБРР, Россельхозбанк.
Позвоните и узнайте условия покупки прямо сейчас!
18.12.2025
8 842 500 ₽
Продается 2-комн. квартира, площадью 65.7 м2 в монолитно-кирпичной новостройке. Возможен вариант покупки с использованием ипотечных средств, есть рассрочка, возможна покупка с использованием материнского капитала, есть военная ипотека.
Жилая площадь 29.43 м2, кухня 9.86 м2, предчистовая отделка.
Квартира располагается на 18 этаже 19-этажного дома в ЖК Лучший.
Застройщик - ГК ССК, сдача дома - IV квартал 2025 года, высота потолков 2.9 м.
Дом оборудован пассажирским лифтом, закрытая территория, парковка охраняется. Обеспечение безопасности: видеонаблюдение, противопожарная система. Инфраструктура: детские площадки, спортивные площадки, места для отдыха, супермаркет, рестораны, фитнес-центр, пункты бытового обслуживания, коммерческие объекты.
Дома сданы раньше сроков, ключи в момент сделки!
Жилой квартал «Лучший» - единая экосистема домов, в которой соблюдаются стандарты максимального качества, экологичности, богатства инфраструктуры, безопасного, живописного и престижного окружения и транспортной доступности. Организация уличного пространства и формирование благоприятной, эстетически привлекательной среды за порогом жилья является важным этапом строительства. Ландшафтный дизайн жилого квартала «Лучший» включает в себя не только озеленение двора, но и создание его внутренней инфраструктуры.
График работы ОП в новогодние праздники:
31.12.25 - 03.01.26 - выходной
04.01.26 - 06.01.26 с 10: 00 до 18: 00.
07.01.26 - выходной
08.01.26 - 11.01.26 с 10: 00 до 18: 00.
С 12.01.26 - в стандартном режиме
Два 24-этажных литера, выполненных по надежной технологии монолит-кирпич.
Компания ССК выражает благодарность тем, кто ежедневно вкладывает силы в развитие страны и заботится о её будущем. В рамках программы «Доступное жильё» предусмотрена скидка 3% от стоимости приобретаемой квартиры для врачей и медицинского персонала, учителей и преподавателей школ и вузов, участников специальной военной операции, военнослужащих, моряков (Калининград) , а также молодых семей с детьми.
Мы ценим ваш вклад и стремимся сделать новое, комфортное жильё с современной отделкой и продуманной планировкой ещё более доступным для вас.
Аккредитованные банки: Сбербанк, Альфа-Банк, ВТБ, Банк Уралсиб, РОССИЯ, Абсолют Банк, Металлинвестбанк, РНКБ, ПСБ, Кубань Кредит, Банк ВБРР, Россельхозбанк.
Позвоните и узнайте условия покупки прямо сейчас!
07.12.2025
8 869 500 ₽




















