Продажа недвижимости в Некрасовке - Страница 10
- Некрасовка »
- Недвижимость в Некрасовке
Сдам в аренду помещение в торговом комплексе площадью 40.6 кв.м, в субаренду, на любой срок с предоплатой за 1 месяц, с возможностью арендных каникул, юридический адрес не предоставляется. Помещение располагается в 3-этажном административном здании класса A в 1 мин. пешком от м.Павелецкая, район города - Замоскворечье.
Помещение располагается на 1 этаже здания.
Возможное назначение помещения - магазин, высота потолков 3 м, внутри типовой ремонт, на полу плитка, одна мокрая точка, тип окон - витринные, окна выходят окна во двор и на улицу, здание на первой линии, здание функционирует круглосуточно, участок находится в аренде.
Внутри центральное кондиционирование, вентиляция - приточная, центральное отопление.
Доступ в здание свободный, доступ в здание круглосуточный. Вход в помещение - общий с улицы.
06.03.2026
700 000 ₽
Предлагается в продажу помещение свободного назначения, расположенное в ЖК 1-й Химкинский площадью 76 кв.м. Располагается на 1 этаже 7-этажного корпуса. Помещение идеально подойдет для магазина, кафе, офиса или другого бизнеса благодаря функциональной планировке и большому потоку потенциальных клиентов.
Информация о комплексе:
Квартал класса комфорт плюс, где современное городское пространство граничит с удивительной природой вокруг. 1-й Химкинский расположен на территории в 102 га и органично вписан в природное окружение Химкинского леса и канала им. Москвы.
В проекте предусмотрена богатая коммерческая инфраструктура с собственным торговым центром, общеобразовательные учреждения и социальные объекты. Изюминкой жилого комплекса будут спортивно-оздоровительный комплекс с термами и СПА и семейный парк развлечений.
Транспортная доступность:
ЖК "1-й Химкинский" дает возможность выбрать любой способ передвижения как до города, так и до самых разных объектов, которые могут представлять интерес для его жителей. Не важно, какой способ передвижения вы предпочитаете, успевать всегда и везде можно вне зависимости от выбора транспорта.
- 8 мин. пешком (800 м) до остановки "Золотая Арка"
-10 мин пешком (1 км) до остановки "Поворот на Ивакино"
Внутренняя инфраструктура:
- Безопасность: закрытые дворы без машин, безбарьерная среда и сквозные подъезды, камеры на детских площадках с возможностью трансляции на смартфоне
- Идеальный отдых в кругу семьи: семейный парк развлечений на территории, торговый центр (2-х этажный) общей площадью более 8 тыс. кв. м с фудкортом
- Образование: 3 детских сада и современная муниципальная школа на 2450 мест
- Спортивная среда: закольцованный веломаршрут с навигацией, спортивный комплекс с термами, закрытый тренажерный зал и зоны ворк-аута
- Социальные объекты: поликлиника со станцией скорой помощи, пожарное депо
- Подземный паркинг и кладовые помещения на -1 этаже, станция техобслуживания и автомойка на территории
05.03.2026
26 029 060 ₽
Аукцион по продаже земельного участка, находящегося по адресу: (Московская обл. , д. Жабкино)
Общая площадь: 0.92 га
Начальная цена: 61 974 000,00
Дата окончания приема заявок: 20.04.2026 15: 00: 00
Дата проведения торгов: 24.04.2026 10: 00: 00
Кадастровые номера: 50: 21: 0030209: 869
Земельный участок ИЖС назначения в ближайшем Подмосковье. В окружении частные жилые дома, ЖК Булатниково. 3,5 км до МКАДа, 5,5 км до станции МЦД "Битца". Градостроительный потенциал в текущем виде составляет 1750 кв.м.
Реализация проходит на ЭТП Сбербанк АСТ. С подробной информацией вы можете ознакомиться на сайте ДОМ. РФ или позвонить нам по телефону. ДОМ. РФ - единственный агент РФ, который имеет право вовлекать в хозяйственный оборот неиспользуемые или используемые не по назначению объекты федерального имущества: земельные участки, здания, помещения согласно ФЗ 161 от 24.07.2008. География лотов, реализуемых на торгах, составляет более чем 90 регионов и является уникальной для РФ.
05.03.2026
61 974 000 ₽
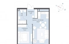
Продаётся 1-комн. квартира от застройщика: общая площадь 50.00 м, жилая 17.50 м, кухня 23.30 м, 17-й этаж, жилой квартал «Остров 7», корпус 7 (секция 2) . Срок сдачи: 3 квартал 2028 года.
1 совмещенный санузел. В жилой зоне 2 больших окна на одну сторону, хорошая инсоляция.
Позвоните сейчас и забронируйте квартиру!
ОСТРОВ от Донстрой - жилой комплекс на западе Москвы, в Мневниковской пойме. Уникальное преимущество комплекса - в том, что он обособлен от города рекой и природным парком (650 га) . Благодаря природному окружению эта территория имеет лучший экологический рейтинг в столице. Кварталы ОСТРОВА объединены ландшафтным дизайном в единое пространство - с набережными и Центральным бульваром. На ОСТРОВЕ любые объекты, необходимые для полноценной жизни и отдыха, находятся на расстоянии 15-минутной прогулки. Торговый центр и супермаркеты, кафе и рестораны, фитнес, салоны красоты, школы и детские сады. А также крупнейший в Москве спортивный кластер.
14.03.2026
37 444 000 ₽
СДАЕТСЯ уютная светлая ВИДОВАЯ квартира на длительный срок в современном ЖК "Сердце Столицы" (закрытая, охраняемая территория, консьерж, двор без машин, подземная парковка). Удобная транспортная доступность. 12 мин пешком до метро Шелепиха. 10 мин на авто до Сити. На территории комплекса прогулочная зона, магазины, кафе, спортивные площадки. Квартира расположена на 22 этаже, что позволяет наслаждаться видами на Москву. В квартире есть все необходимое для комфортного проживания. Вся техника и мебель новые, хорошего качества. Свежий дизайнерский ремонт из современных материалов. В случае пожелания арендатора по согласованию сторон есть возможность доукомплектовать квартиру элементами дизайна и уюта. Договор на 11 месяцев заключается непосредственно с собственником объекта. Показ по договоренности,
04.03.2026
90 000 ₽
Продается 2-комн. квартира с европланировкой, площадью 83.2 м2 в монолитно-кирпичной новостройке в 10 мин. пешком от м. Новокузнецкая, район города - Замоскворечье. Возможен вариант покупки с использованием ипотечных средств, есть рассрочка, возможна покупка с использованием материнского капитала, есть военная ипотека.
Жилая площадь 52 м2, кухня 30 м2, квартира без отделки, комнаты изолированные, совмещенных санузлов - 1, балконов - 1.
Квартира располагается на 7 этаже 19-этажного дома в ЖК Татарская 35.
Застройщик - ДОНСТРОЙ, сдача дома - I квартал 2028 года, высота потолков 3.4 м, есть мусоропровод, закрытая территория.
Подземная парковка, парковка охраняется. Обеспечение безопасности: видеонаблюдение, круглосуточная охрана, консьерж, противопожарная система, пропускная система. Инфраструктура: школа, детский сад, поликлиника, спортивные площадки, места для отдыха, рестораны, фитнес-центр, пункты бытового обслуживания.
ТАТАРСКАЯ 35 - новая архитектурная доминанта Замоскворечья, новая достопримечательность на фотопанорамах исторического центра Москвы. Элитный дом с панорамными видами на Кремль и другие знаковые места столицы. В доме более 1000 м2 общественных пространств: от фитнеса и детской до бьюти-рума и переговорной. У дома - закрытый двор-сад в стиле итальянского романтизма и собственный велнес-центр с бассейном.
Жилой комплекс представляет собой современное здание с монолитными кирпичными стенами. В проекте два подъезда и максимальная этажность в 26 этажей. Минимальная этажность - 18 этажей. Комплекс отличается высоким классом энергоэффективности - A++.
Жилой проект расположен в районе Замоскворечье города Москвы. В пешей доступности находятся станции метро: Новокузнецкая (10 минут) , Павелецкая (11 минут) и Третьяковская (12 минут) . Отличная транспортная доступность позволяет быстро добраться в любую точку города.
Позвоните и узнайте условия покупки прямо сейчас!
07.03.2026
122 553 600 ₽
Продается 2-комн. квартира с европланировкой, площадью 83.3 м2 в монолитно-кирпичной новостройке в 10 мин. пешком от м. Новокузнецкая, район города - Замоскворечье. Возможен вариант покупки с использованием ипотечных средств, есть рассрочка, возможна покупка с использованием материнского капитала, есть военная ипотека.
Жилая площадь 52 м2, кухня 30 м2, квартира без отделки, комнаты изолированные, совмещенных санузлов - 1, балконов - 1.
Квартира располагается на 6 этаже 19-этажного дома в ЖК Татарская 35.
Застройщик - ДОНСТРОЙ, сдача дома - I квартал 2028 года, высота потолков 3.4 м, есть мусоропровод, закрытая территория.
Подземная парковка, парковка охраняется. Обеспечение безопасности: видеонаблюдение, круглосуточная охрана, консьерж, противопожарная система, пропускная система. Инфраструктура: школа, детский сад, поликлиника, спортивные площадки, места для отдыха, рестораны, фитнес-центр, пункты бытового обслуживания.
ТАТАРСКАЯ 35 - новая архитектурная доминанта Замоскворечья, новая достопримечательность на фотопанорамах исторического центра Москвы. Элитный дом с панорамными видами на Кремль и другие знаковые места столицы. В доме более 1000 м2 общественных пространств: от фитнеса и детской до бьюти-рума и переговорной. У дома - закрытый двор-сад в стиле итальянского романтизма и собственный велнес-центр с бассейном.
Жилой комплекс представляет собой современное здание с монолитными кирпичными стенами. В проекте два подъезда и максимальная этажность в 26 этажей. Минимальная этажность - 18 этажей. Комплекс отличается высоким классом энергоэффективности - A++.
Жилой проект расположен в районе Замоскворечье города Москвы. В пешей доступности находятся станции метро: Новокузнецкая (10 минут) , Павелецкая (11 минут) и Третьяковская (12 минут) . Отличная транспортная доступность позволяет быстро добраться в любую точку города.
Позвоните и узнайте условия покупки прямо сейчас!
07.03.2026
121 867 900 ₽
Продается 2-комн. квартира с европланировкой, площадью 76.3 м2 в монолитно-кирпичной новостройке в 10 мин. пешком от м. Новокузнецкая, район города - Замоскворечье. Возможен вариант покупки с использованием ипотечных средств, есть рассрочка, возможна покупка с использованием материнского капитала, есть военная ипотека.
Жилая площадь 52 м2, кухня 23 м2, квартира без отделки, комнаты изолированные, совмещенных санузлов - 1, балконов - 1.
Квартира располагается на 13 этаже 24-этажного дома в ЖК Татарская 35.
Застройщик - ДОНСТРОЙ, сдача дома - I квартал 2028 года, высота потолков 3 м, есть мусоропровод, закрытая территория.
Подземная парковка, парковка охраняется. Обеспечение безопасности: видеонаблюдение, круглосуточная охрана, консьерж, противопожарная система, пропускная система. Инфраструктура: школа, детский сад, поликлиника, спортивные площадки, места для отдыха, рестораны, фитнес-центр, пункты бытового обслуживания.
ТАТАРСКАЯ 35 - новая архитектурная доминанта Замоскворечья, новая достопримечательность на фотопанорамах исторического центра Москвы. Элитный дом с панорамными видами на Кремль и другие знаковые места столицы. В доме более 1000 м2 общественных пространств: от фитнеса и детской до бьюти-рума и переговорной. У дома - закрытый двор-сад в стиле итальянского романтизма и собственный велнес-центр с бассейном.
Жилой комплекс представляет собой современное здание с монолитными кирпичными стенами. В проекте два подъезда и максимальная этажность в 26 этажей. Минимальная этажность - 18 этажей. Комплекс отличается высоким классом энергоэффективности - A++.
Жилой проект расположен в районе Замоскворечье города Москвы. В пешей доступности находятся станции метро: Новокузнецкая (10 минут) , Павелецкая (11 минут) и Третьяковская (12 минут) . Отличная транспортная доступность позволяет быстро добраться в любую точку города.
Позвоните и узнайте условия покупки прямо сейчас!
07.03.2026
121 469 600 ₽
Продается 2-комн. квартира с европланировкой, площадью 76.3 м2 в монолитно-кирпичной новостройке в 10 мин. пешком от м. Новокузнецкая, район города - Замоскворечье. Возможен вариант покупки с использованием ипотечных средств, есть рассрочка, возможна покупка с использованием материнского капитала, есть военная ипотека.
Жилая площадь 52 м2, кухня 23 м2, квартира без отделки, комнаты изолированные, совмещенных санузлов - 1, балконов - 1.
Квартира располагается на 12 этаже 24-этажного дома в ЖК Татарская 35.
Застройщик - ДОНСТРОЙ, сдача дома - I квартал 2028 года, высота потолков 3 м, есть мусоропровод, закрытая территория.
Подземная парковка, парковка охраняется. Обеспечение безопасности: видеонаблюдение, круглосуточная охрана, консьерж, противопожарная система, пропускная система. Инфраструктура: школа, детский сад, поликлиника, спортивные площадки, места для отдыха, рестораны, фитнес-центр, пункты бытового обслуживания.
ТАТАРСКАЯ 35 - новая архитектурная доминанта Замоскворечья, новая достопримечательность на фотопанорамах исторического центра Москвы. Элитный дом с панорамными видами на Кремль и другие знаковые места столицы. В доме более 1000 м2 общественных пространств: от фитнеса и детской до бьюти-рума и переговорной. У дома - закрытый двор-сад в стиле итальянского романтизма и собственный велнес-центр с бассейном.
Жилой комплекс представляет собой современное здание с монолитными кирпичными стенами. В проекте два подъезда и максимальная этажность в 26 этажей. Минимальная этажность - 18 этажей. Комплекс отличается высоким классом энергоэффективности - A++.
Жилой проект расположен в районе Замоскворечье города Москвы. В пешей доступности находятся станции метро: Новокузнецкая (10 минут) , Павелецкая (11 минут) и Третьяковская (12 минут) . Отличная транспортная доступность позволяет быстро добраться в любую точку города.
Позвоните и узнайте условия покупки прямо сейчас!
07.03.2026
120 706 600 ₽
Продается 1-комн. квартира с европланировкой, площадью 82.8 м2 в монолитно-кирпичной новостройке в 10 мин. пешком от м. Новокузнецкая, район города - Замоскворечье. Возможен вариант покупки с использованием ипотечных средств, есть рассрочка, возможна покупка с использованием материнского капитала, есть военная ипотека.
Жилая площадь 53 м2, кухня 28 м2, квартира без отделки, комнаты изолированные, совмещенных санузлов - 1, балконов - 1.
Квартира располагается на 7 этаже 24-этажного дома в ЖК Татарская 35.
Застройщик - ДОНСТРОЙ, сдача дома - I квартал 2028 года, высота потолков 3 м, есть мусоропровод, закрытая территория.
Подземная парковка, парковка охраняется. Обеспечение безопасности: видеонаблюдение, круглосуточная охрана, консьерж, противопожарная система, пропускная система. Инфраструктура: школа, детский сад, поликлиника, спортивные площадки, места для отдыха, рестораны, фитнес-центр, пункты бытового обслуживания.
ТАТАРСКАЯ 35 - новая архитектурная доминанта Замоскворечья, новая достопримечательность на фотопанорамах исторического центра Москвы. Элитный дом с панорамными видами на Кремль и другие знаковые места столицы. В доме более 1000 м2 общественных пространств: от фитнеса и детской до бьюти-рума и переговорной. У дома - закрытый двор-сад в стиле итальянского романтизма и собственный велнес-центр с бассейном.
Жилой комплекс представляет собой современное здание с монолитными кирпичными стенами. В проекте два подъезда и максимальная этажность в 26 этажей. Минимальная этажность - 18 этажей. Комплекс отличается высоким классом энергоэффективности - A++.
Жилой проект расположен в районе Замоскворечье города Москвы. В пешей доступности находятся станции метро: Новокузнецкая (10 минут) , Павелецкая (11 минут) и Третьяковская (12 минут) . Отличная транспортная доступность позволяет быстро добраться в любую точку города.
Позвоните и узнайте условия покупки прямо сейчас!
07.03.2026
117 741 600 ₽
Продается 1-комн. квартира с европланировкой, площадью 78 м2 в монолитно-кирпичной новостройке в 10 мин. пешком от м. Новокузнецкая, район города - Замоскворечье. Возможен вариант покупки с использованием ипотечных средств, есть рассрочка, возможна покупка с использованием материнского капитала, есть военная ипотека.
Жилая площадь 51 м2, кухня 26 м2, квартира без отделки, комнаты изолированные, совмещенных санузлов - 1, балконов - 1.
Квартира располагается на 10 этаже 24-этажного дома в ЖК Татарская 35.
Застройщик - ДОНСТРОЙ, сдача дома - I квартал 2028 года, высота потолков 3 м, есть мусоропровод, закрытая территория.
Подземная парковка, парковка охраняется. Обеспечение безопасности: видеонаблюдение, круглосуточная охрана, консьерж, противопожарная система, пропускная система. Инфраструктура: школа, детский сад, поликлиника, спортивные площадки, места для отдыха, рестораны, фитнес-центр, пункты бытового обслуживания.
ТАТАРСКАЯ 35 - новая архитектурная доминанта Замоскворечья, новая достопримечательность на фотопанорамах исторического центра Москвы. Элитный дом с панорамными видами на Кремль и другие знаковые места столицы. В доме более 1000 м2 общественных пространств: от фитнеса и детской до бьюти-рума и переговорной. У дома - закрытый двор-сад в стиле итальянского романтизма и собственный велнес-центр с бассейном.
Жилой комплекс представляет собой современное здание с монолитными кирпичными стенами. В проекте два подъезда и максимальная этажность в 26 этажей. Минимальная этажность - 18 этажей. Комплекс отличается высоким классом энергоэффективности - A++.
Жилой проект расположен в районе Замоскворечье города Москвы. В пешей доступности находятся станции метро: Новокузнецкая (10 минут) , Павелецкая (11 минут) и Третьяковская (12 минут) . Отличная транспортная доступность позволяет быстро добраться в любую точку города.
Позвоните и узнайте условия покупки прямо сейчас!
07.03.2026
113 568 000 ₽
Продается 1-комн. квартира с европланировкой, площадью 48.3 м2 в монолитно-кирпичной новостройке в 10 мин. пешком от м. Новокузнецкая, район города - Замоскворечье. Возможен вариант покупки с использованием ипотечных средств, есть рассрочка, возможна покупка с использованием материнского капитала, есть военная ипотека.
Жилая площадь 27 м2, кухня 20 м2, квартира без отделки, комнаты изолированные, совмещенных санузлов - 1, балконов - 1.
Квартира располагается на 11 этаже 24-этажного дома в ЖК Татарская 35.
Застройщик - ДОНСТРОЙ, сдача дома - I квартал 2028 года, высота потолков 3 м, есть мусоропровод, закрытая территория.
Подземная парковка, парковка охраняется. Обеспечение безопасности: видеонаблюдение, круглосуточная охрана, консьерж, противопожарная система, пропускная система. Инфраструктура: школа, детский сад, поликлиника, спортивные площадки, места для отдыха, рестораны, фитнес-центр, пункты бытового обслуживания.
ТАТАРСКАЯ 35 - новая архитектурная доминанта Замоскворечья, новая достопримечательность на фотопанорамах исторического центра Москвы. Элитный дом с панорамными видами на Кремль и другие знаковые места столицы. В доме более 1000 м2 общественных пространств: от фитнеса и детской до бьюти-рума и переговорной. У дома - закрытый двор-сад в стиле итальянского романтизма и собственный велнес-центр с бассейном.
Жилой комплекс представляет собой современное здание с монолитными кирпичными стенами. В проекте два подъезда и максимальная этажность в 26 этажей. Минимальная этажность - 18 этажей. Комплекс отличается высоким классом энергоэффективности - A++.
Жилой проект расположен в районе Замоскворечье города Москвы. В пешей доступности находятся станции метро: Новокузнецкая (10 минут) , Павелецкая (11 минут) и Третьяковская (12 минут) . Отличная транспортная доступность позволяет быстро добраться в любую точку города.
Позвоните и узнайте условия покупки прямо сейчас!
07.03.2026
99 691 200 ₽
Продается 1-комн. квартира с европланировкой, площадью 58.7 м2 в монолитно-кирпичной новостройке в 10 мин. пешком от м. Новокузнецкая, район города - Замоскворечье. Возможен вариант покупки с использованием ипотечных средств, есть рассрочка, возможна покупка с использованием материнского капитала, есть военная ипотека.
Жилая площадь 34 м2, кухня 24 м2, квартира без отделки, комнаты изолированные, совмещенных санузлов - 1, балконов - 1.
Квартира располагается на 2 этаже 24-этажного дома в ЖК Татарская 35.
Застройщик - ДОНСТРОЙ, сдача дома - I квартал 2028 года, высота потолков 3 м, есть мусоропровод, закрытая территория.
Подземная парковка, парковка охраняется. Обеспечение безопасности: видеонаблюдение, круглосуточная охрана, консьерж, противопожарная система, пропускная система. Инфраструктура: школа, детский сад, поликлиника, спортивные площадки, места для отдыха, рестораны, фитнес-центр, пункты бытового обслуживания.
ТАТАРСКАЯ 35 - новая архитектурная доминанта Замоскворечья, новая достопримечательность на фотопанорамах исторического центра Москвы. Элитный дом с панорамными видами на Кремль и другие знаковые места столицы. В доме более 1000 м2 общественных пространств: от фитнеса и детской до бьюти-рума и переговорной. У дома - закрытый двор-сад в стиле итальянского романтизма и собственный велнес-центр с бассейном.
Жилой комплекс представляет собой современное здание с монолитными кирпичными стенами. В проекте два подъезда и максимальная этажность в 26 этажей. Минимальная этажность - 18 этажей. Комплекс отличается высоким классом энергоэффективности - A++.
Жилой проект расположен в районе Замоскворечье города Москвы. В пешей доступности находятся станции метро: Новокузнецкая (10 минут) , Павелецкая (11 минут) и Третьяковская (12 минут) . Отличная транспортная доступность позволяет быстро добраться в любую точку города.
Позвоните и узнайте условия покупки прямо сейчас!
07.03.2026
91 748 100 ₽
Продается 1-комн. квартира с европланировкой, площадью 56.4 м2 в монолитно-кирпичной новостройке в 10 мин. пешком от м. Новокузнецкая, район города - Замоскворечье. Возможен вариант покупки с использованием ипотечных средств, есть рассрочка, возможна покупка с использованием материнского капитала, есть военная ипотека.
Жилая площадь 29 м2, кухня 26 м2, квартира без отделки, комнаты изолированные, совмещенных санузлов - 1, балконов - 1.
Квартира располагается на 12 этаже 19-этажного дома в ЖК Татарская 35.
Застройщик - ДОНСТРОЙ, сдача дома - I квартал 2028 года, высота потолков 3.4 м, есть мусоропровод, закрытая территория.
Подземная парковка, парковка охраняется. Обеспечение безопасности: видеонаблюдение, круглосуточная охрана, консьерж, противопожарная система, пропускная система. Инфраструктура: школа, детский сад, поликлиника, спортивные площадки, места для отдыха, рестораны, фитнес-центр, пункты бытового обслуживания.
ТАТАРСКАЯ 35 - новая архитектурная доминанта Замоскворечья, новая достопримечательность на фотопанорамах исторического центра Москвы. Элитный дом с панорамными видами на Кремль и другие знаковые места столицы. В доме более 1000 м2 общественных пространств: от фитнеса и детской до бьюти-рума и переговорной. У дома - закрытый двор-сад в стиле итальянского романтизма и собственный велнес-центр с бассейном.
Жилой комплекс представляет собой современное здание с монолитными кирпичными стенами. В проекте два подъезда и максимальная этажность в 26 этажей. Минимальная этажность - 18 этажей. Комплекс отличается высоким классом энергоэффективности - A++.
Жилой проект расположен в районе Замоскворечье города Москвы. В пешей доступности находятся станции метро: Новокузнецкая (10 минут) , Павелецкая (11 минут) и Третьяковская (12 минут) . Отличная транспортная доступность позволяет быстро добраться в любую точку города.
Позвоните и узнайте условия покупки прямо сейчас!
07.03.2026
91 593 600 ₽
Продается 1-комн. квартира с европланировкой, площадью 56.4 м2 в монолитно-кирпичной новостройке в 10 мин. пешком от м. Новокузнецкая, район города - Замоскворечье. Возможен вариант покупки с использованием ипотечных средств, есть рассрочка, возможна покупка с использованием материнского капитала, есть военная ипотека.
Жилая площадь 29 м2, кухня 26 м2, квартира без отделки, комнаты изолированные, совмещенных санузлов - 1, балконов - 1.
Квартира располагается на 9 этаже 19-этажного дома в ЖК Татарская 35.
Застройщик - ДОНСТРОЙ, сдача дома - I квартал 2028 года, высота потолков 3.4 м, есть мусоропровод, закрытая территория.
Подземная парковка, парковка охраняется. Обеспечение безопасности: видеонаблюдение, круглосуточная охрана, консьерж, противопожарная система, пропускная система. Инфраструктура: школа, детский сад, поликлиника, спортивные площадки, места для отдыха, рестораны, фитнес-центр, пункты бытового обслуживания.
ТАТАРСКАЯ 35 - новая архитектурная доминанта Замоскворечья, новая достопримечательность на фотопанорамах исторического центра Москвы. Элитный дом с панорамными видами на Кремль и другие знаковые места столицы. В доме более 1000 м2 общественных пространств: от фитнеса и детской до бьюти-рума и переговорной. У дома - закрытый двор-сад в стиле итальянского романтизма и собственный велнес-центр с бассейном.
Жилой комплекс представляет собой современное здание с монолитными кирпичными стенами. В проекте два подъезда и максимальная этажность в 26 этажей. Минимальная этажность - 18 этажей. Комплекс отличается высоким классом энергоэффективности - A++.
Жилой проект расположен в районе Замоскворечье города Москвы. В пешей доступности находятся станции метро: Новокузнецкая (10 минут) , Павелецкая (11 минут) и Третьяковская (12 минут) . Отличная транспортная доступность позволяет быстро добраться в любую точку города.
Позвоните и узнайте условия покупки прямо сейчас!
07.03.2026
89 619 600 ₽
Продается 1-комн. квартира с европланировкой, площадью 57.6 м2 в монолитно-кирпичной новостройке в 10 мин. пешком от м. Новокузнецкая, район города - Замоскворечье. Возможен вариант покупки с использованием ипотечных средств, есть рассрочка, возможна покупка с использованием материнского капитала, есть военная ипотека.
Жилая площадь 36 м2, кухня 20 м2, квартира без отделки, комнаты изолированные, совмещенных санузлов - 1, балконов - 1.
Квартира располагается на 6 этаже 19-этажного дома в ЖК Татарская 35.
Застройщик - ДОНСТРОЙ, сдача дома - I квартал 2028 года, высота потолков 3.4 м, есть мусоропровод, закрытая территория.
Подземная парковка, парковка охраняется. Обеспечение безопасности: видеонаблюдение, круглосуточная охрана, консьерж, противопожарная система, пропускная система. Инфраструктура: школа, детский сад, поликлиника, спортивные площадки, места для отдыха, рестораны, фитнес-центр, пункты бытового обслуживания.
ТАТАРСКАЯ 35 - новая архитектурная доминанта Замоскворечья, новая достопримечательность на фотопанорамах исторического центра Москвы. Элитный дом с панорамными видами на Кремль и другие знаковые места столицы. В доме более 1000 м2 общественных пространств: от фитнеса и детской до бьюти-рума и переговорной. У дома - закрытый двор-сад в стиле итальянского романтизма и собственный велнес-центр с бассейном.
Жилой комплекс представляет собой современное здание с монолитными кирпичными стенами. В проекте два подъезда и максимальная этажность в 26 этажей. Минимальная этажность - 18 этажей. Комплекс отличается высоким классом энергоэффективности - A++.
Жилой проект расположен в районе Замоскворечье города Москвы. В пешей доступности находятся станции метро: Новокузнецкая (10 минут) , Павелецкая (11 минут) и Третьяковская (12 минут) . Отличная транспортная доступность позволяет быстро добраться в любую точку города.
Позвоните и узнайте условия покупки прямо сейчас!
07.03.2026
87 206 400 ₽
Продается 1-комн. квартира с европланировкой, площадью 54.8 м2 в монолитно-кирпичной новостройке в 10 мин. пешком от м. Новокузнецкая, район города - Замоскворечье. Возможен вариант покупки с использованием ипотечных средств, есть рассрочка, возможна покупка с использованием материнского капитала, есть военная ипотека.
Жилая площадь 33 м2, кухня 21 м2, квартира без отделки, комнаты изолированные, совмещенных санузлов - 1, балконов - 1.
Квартира располагается на 6 этаже 24-этажного дома в ЖК Татарская 35.
Застройщик - ДОНСТРОЙ, сдача дома - I квартал 2028 года, высота потолков 3 м, есть мусоропровод, закрытая территория.
Подземная парковка, парковка охраняется. Обеспечение безопасности: видеонаблюдение, круглосуточная охрана, консьерж, противопожарная система, пропускная система. Инфраструктура: школа, детский сад, поликлиника, спортивные площадки, места для отдыха, рестораны, фитнес-центр, пункты бытового обслуживания.
ТАТАРСКАЯ 35 - новая архитектурная доминанта Замоскворечья, новая достопримечательность на фотопанорамах исторического центра Москвы. Элитный дом с панорамными видами на Кремль и другие знаковые места столицы. В доме более 1000 м2 общественных пространств: от фитнеса и детской до бьюти-рума и переговорной. У дома - закрытый двор-сад в стиле итальянского романтизма и собственный велнес-центр с бассейном.
Жилой комплекс представляет собой современное здание с монолитными кирпичными стенами. В проекте два подъезда и максимальная этажность в 26 этажей. Минимальная этажность - 18 этажей. Комплекс отличается высоким классом энергоэффективности - A++.
Жилой проект расположен в районе Замоскворечье города Москвы. В пешей доступности находятся станции метро: Новокузнецкая (10 минут) , Павелецкая (11 минут) и Третьяковская (12 минут) . Отличная транспортная доступность позволяет быстро добраться в любую точку города.
Позвоните и узнайте условия покупки прямо сейчас!
07.03.2026
86 419 600 ₽
Продается 1-комн. квартира с европланировкой, площадью 53.9 м2 в монолитно-кирпичной новостройке в 10 мин. пешком от м. Новокузнецкая, район города - Замоскворечье. Возможен вариант покупки с использованием ипотечных средств, есть рассрочка, возможна покупка с использованием материнского капитала, есть военная ипотека.
Жилая площадь 33 м2, кухня 20 м2, квартира без отделки, комнаты изолированные, совмещенных санузлов - 1, балконов - 1.
Квартира располагается на 8 этаже 19-этажного дома в ЖК Татарская 35.
Застройщик - ДОНСТРОЙ, сдача дома - I квартал 2028 года, высота потолков 3.4 м, есть мусоропровод, закрытая территория.
Подземная парковка, парковка охраняется. Обеспечение безопасности: видеонаблюдение, круглосуточная охрана, консьерж, противопожарная система, пропускная система. Инфраструктура: школа, детский сад, поликлиника, спортивные площадки, места для отдыха, рестораны, фитнес-центр, пункты бытового обслуживания.
ТАТАРСКАЯ 35 - новая архитектурная доминанта Замоскворечья, новая достопримечательность на фотопанорамах исторического центра Москвы. Элитный дом с панорамными видами на Кремль и другие знаковые места столицы. В доме более 1000 м2 общественных пространств: от фитнеса и детской до бьюти-рума и переговорной. У дома - закрытый двор-сад в стиле итальянского романтизма и собственный велнес-центр с бассейном.
Жилой комплекс представляет собой современное здание с монолитными кирпичными стенами. В проекте два подъезда и максимальная этажность в 26 этажей. Минимальная этажность - 18 этажей. Комплекс отличается высоким классом энергоэффективности - A++.
Жилой проект расположен в районе Замоскворечье города Москвы. В пешей доступности находятся станции метро: Новокузнецкая (10 минут) , Павелецкая (11 минут) и Третьяковская (12 минут) . Отличная транспортная доступность позволяет быстро добраться в любую точку города.
Позвоните и узнайте условия покупки прямо сейчас!
07.03.2026
84 946 400 ₽
Продается 1-комн. квартира с европланировкой, площадью 54.9 м2 в монолитно-кирпичной новостройке в 10 мин. пешком от м. Новокузнецкая, район города - Замоскворечье. Возможен вариант покупки с использованием ипотечных средств, есть рассрочка, возможна покупка с использованием материнского капитала, есть военная ипотека.
Жилая площадь 37 м2, кухня 17 м2, квартира без отделки, комнаты изолированные, совмещенных санузлов - 1, балконов - 1.
Квартира располагается на 8 этаже 19-этажного дома в ЖК Татарская 35.
Застройщик - ДОНСТРОЙ, сдача дома - I квартал 2028 года, высота потолков 3.4 м, есть мусоропровод, закрытая территория.
Подземная парковка, парковка охраняется. Обеспечение безопасности: видеонаблюдение, круглосуточная охрана, консьерж, противопожарная система, пропускная система. Инфраструктура: школа, детский сад, поликлиника, спортивные площадки, места для отдыха, рестораны, фитнес-центр, пункты бытового обслуживания.
ТАТАРСКАЯ 35 - новая архитектурная доминанта Замоскворечья, новая достопримечательность на фотопанорамах исторического центра Москвы. Элитный дом с панорамными видами на Кремль и другие знаковые места столицы. В доме более 1000 м2 общественных пространств: от фитнеса и детской до бьюти-рума и переговорной. У дома - закрытый двор-сад в стиле итальянского романтизма и собственный велнес-центр с бассейном.
Жилой комплекс представляет собой современное здание с монолитными кирпичными стенами. В проекте два подъезда и максимальная этажность в 26 этажей. Минимальная этажность - 18 этажей. Комплекс отличается высоким классом энергоэффективности - A++.
Жилой проект расположен в районе Замоскворечье города Москвы. В пешей доступности находятся станции метро: Новокузнецкая (10 минут) , Павелецкая (11 минут) и Третьяковская (12 минут) . Отличная транспортная доступность позволяет быстро добраться в любую точку города.
Позвоните и узнайте условия покупки прямо сейчас!
07.03.2026
84 161 700 ₽
Продается 1-комн. квартира с европланировкой, площадью 48.7 м2 в монолитно-кирпичной новостройке в 10 мин. пешком от м. Новокузнецкая, район города - Замоскворечье. Возможен вариант покупки с использованием ипотечных средств, есть рассрочка, возможна покупка с использованием материнского капитала, есть военная ипотека.
Жилая площадь 32 м2, кухня 16 м2, квартира без отделки, комнаты изолированные, совмещенных санузлов - 1, балконов - 1.
Квартира располагается на 3 этаже 19-этажного дома в ЖК Татарская 35.
Застройщик - ДОНСТРОЙ, сдача дома - I квартал 2028 года, высота потолков 3.4 м, есть мусоропровод, закрытая территория.
Подземная парковка, парковка охраняется. Обеспечение безопасности: видеонаблюдение, круглосуточная охрана, консьерж, противопожарная система, пропускная система. Инфраструктура: школа, детский сад, поликлиника, спортивные площадки, места для отдыха, рестораны, фитнес-центр, пункты бытового обслуживания.
ТАТАРСКАЯ 35 - новая архитектурная доминанта Замоскворечья, новая достопримечательность на фотопанорамах исторического центра Москвы. Элитный дом с панорамными видами на Кремль и другие знаковые места столицы. В доме более 1000 м2 общественных пространств: от фитнеса и детской до бьюти-рума и переговорной. У дома - закрытый двор-сад в стиле итальянского романтизма и собственный велнес-центр с бассейном.
Жилой комплекс представляет собой современное здание с монолитными кирпичными стенами. В проекте два подъезда и максимальная этажность в 26 этажей. Минимальная этажность - 18 этажей. Комплекс отличается высоким классом энергоэффективности - A++.
Жилой проект расположен в районе Замоскворечье города Москвы. В пешей доступности находятся станции метро: Новокузнецкая (10 минут) , Павелецкая (11 минут) и Третьяковская (12 минут) . Отличная транспортная доступность позволяет быстро добраться в любую точку города.
Позвоните и узнайте условия покупки прямо сейчас!
07.03.2026
70 322 800 ₽
Продается 2-комн. квартира с европланировкой, площадью 76.8 м2 в монолитно-кирпичной новостройке в 19 мин. пешком от м. Улица 1905 года, район города - Пресненский. Возможен вариант покупки с использованием ипотечных средств, есть рассрочка, возможна покупка с использованием материнского капитала, есть военная ипотека.
Жилая площадь 53 м2, кухня 23 м2, квартира без отделки, комнаты изолированные, совмещенных санузлов - 1, балконов - 1.
Квартира располагается на 11 этаже 11-этажного дома в ЖК Начало.
Застройщик - ДОНСТРОЙ, сдача дома - IV квартал 2029 года, высота потолков 3.4 м, закрытая территория.
Подземная парковка, парковка охраняется. Обеспечение безопасности: видеонаблюдение, круглосуточная охрана, консьерж, противопожарная система, пропускная система. Инфраструктура: детские площадки, спортивные площадки, места для отдыха, рестораны, фитнес-центр, коммерческие объекты.
НАЧАЛО - Дом-Вселенная в престижном районе Пресня, на перекрестке делового и исторического центров Москвы.
Дом, открывающий космические перспективы для тех, кто умеет видеть окна возможностей и готов взлететь на новые орбиты. Ваша личная Вселенная, полная единомышленников для стремительного движения вверх.
НАЧАЛО - футуристический дом на Пресне в нескольких минутах от Сити и Садового кольца. Проект по настоящему космического масштаба, где есть все, чтобы раскрыть себя и свои возможности.
Из привычного «сегодня» в космическое «завтра»
Как росток пробивает скалу, как растет кристалл, как ракета устремляется ввысь - так формируется архитектурный образ этого дома.
Точно выверенный баланс между футуристичными формами и функциональным содержанием дома выводит жизнь в нем на новую орбиту.
Стеклянные фасады отражают небо и город, превращая здание в зеркало для окружающего ландшафта.
Жилой проект расположен в Пресненском районе Москвы. В пешей доступности находятся станции метро: «Улица 1905 года» (19 минут) , «Москва-Сити» (24 минуты) и «Деловой центр (Выставочная) » (25 минут) .
Позвоните и узнайте условия покупки прямо сейчас!
14.03.2026
99 840 000 ₽




















