Продажа недвижимости в Надеждино Life - Страница 23
- Надеждино Life п. »
- Недвижимость в Надеждино Life
ОФИС В БАШНЕ A | Рублево Бизнес Парк
Класс А |
Победитель премии Move Realty Awards в номинации «Лучший проект для инвестиций»
Инвестируйте в офис с максимальным потенциалом роста - в новом бизнес-центре Рублево Бизнес Парк. Современный проект А-класса на Новорижском направлении: высокий спрос, редкие форматы, идеальная транспортная доступность.
Преимущества объекта
Свободная планировка от 50 до 4000 м - возможность адаптации под любые задачи бизнеса.
Высота потолков от 4,05 до 6,03 м - создаёт ощущение простора, идеально для открытых пространств, шоурумов и двухуровневых решений.
Частные террасы - уникальный формат на офисном рынке Москвы.
Панорамное угловое остекление - естественный свет в течение всего дня и впечатляющие виды.
Shell & Core - гибкость в проектировании интерьера под себя.
Архитектура и инженерия
Класс А - соответствие высоким стандартам по инфраструктуре, инженерным системам и управлению зданием.
Гранд-лобби 1500 м, высота 9 м - знаковое пространство с интерьерами от бюро UNK corporate interiors.
22 скоростных лифта - бесшумные и быстрые, рассчитаны на интенсивный трафик.
Современные инженерные системы - высокий уровень комфорта и энергоэффективности.
Локация и транспорт
2 минуты до Новорижского шоссе и проспекта Маршала Жукова - быстрый выезд на ключевые магистрали.
8 минут до м. Строгино, 500 м до будущей м. Липовая роща (открытие до 2027 года) - отличная доступность как на авто, так и на общественном транспорте.
Условия покупки
Продажа по ДДУ (214-ФЗ) через эскроу-счета
Проектное финансирование от Сбербанка
Возможна рассрочка
Возврат НДС 22%
Инвестиционная привлекательность
Ожидаемый рост капитализации с открытием метро
Возможность сдачи по блокам или этажом целиком
ROI: 9-12%
________________________________________
Адрес объекта: МКАД, 64 км
02.04.2026
29 429 723 ₽
Продается 3-комн. квартира, площадью 84.3 кв.м.
Жилая площадь 39.3 кв. м, ремонта нет, окна выходят на улицу.
Квартира располагается на 10 этаже 17-этажного монолитного дома.
Дом оборудован пассажирским лифтом, есть мусоропровод, закрытая территория, парковка с охраной.
09.03.2026
53 414 335 ₽
Продается 2-комн. квартира, площадью 65.9 м2.
Жилая площадь 31.6 м2, кухня 12.4 кв. м, ремонта нет, окна выходят на улицу.
Квартира располагается на 20 этаже 47-этажного монолитного дома.
Дом оборудован пассажирским лифтом, есть мусоропровод, закрытая территория, парковка охраняемая.
09.03.2026
41 926 239 ₽
Продается 4-комн. квартира, площадью 135.8 кв.м.
Жилая площадь 66.4 кв. м, кухня 14.9 кв. м, ремонта нет, окна выходят на улицу.
Квартира располагается на 35 этаже 37-этажного монолитного дома.
Дом оборудован пассажирским лифтом, есть мусоропровод, закрытая территория, парковка охраняемая.
09.03.2026
105 910 420 ₽
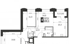
Продается 4-комн. квартира, площадью 100.1 м2.
Жилая площадь 57.5 м2, кухня 15.3 кв. м, ремонта нет, окна выходят на улицу.
Квартира располагается на 30 этаже 37-этажного монолитного дома.
Дом оборудован пассажирским лифтом, есть мусоропровод, закрытая территория, парковка охраняется.
31.03.2026
60 623 063 ₽
Продается 3-комн. квартира, площадью 66.2 кв.м.
Жилая площадь 29.4 м2, ремонта нет, окна выходят на улицу.
Квартира располагается на 15 этаже 17-этажного монолитного дома.
Дом оборудован пассажирским лифтом, есть мусоропровод, закрытая территория, парковка охраняется.
09.03.2026
39 783 552 ₽
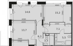
Продается 4-комн. квартира, площадью 100.1 м2.
Жилая площадь 57.5 кв. м, кухня 15.3 кв. м, ремонта нет, окна выходят на улицу.
Квартира располагается на 27 этаже 37-этажного монолитного дома.
Дом оборудован пассажирским лифтом, есть мусоропровод, закрытая территория, парковка охраняется.
02.04.2026
60 452 893 ₽
Продается 5-комн. квартира, площадью 122.3 м2.
Жилая площадь 55.6 м2, ремонта нет, окна выходят на улицу.
Квартира располагается на 13 этаже 17-этажного монолитного дома.
Дом оборудован пассажирским лифтом, есть мусоропровод, закрытая территория, парковка охраняется.
09.03.2026
72 166 784 ₽
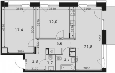
Продается 3-комн. квартира, площадью 83.2 кв.м.
Жилая площадь 46.3 м2, кухня 14.3 кв. м, ремонта нет, окна выходят во двор.
Квартира располагается на 3 этаже 37-этажного монолитного дома.
Дом оборудован пассажирским лифтом, есть мусоропровод, закрытая территория, парковка охраняемая.
09.03.2026
41 632 864 ₽
Продается 3-комн. квартира, площадью 72.8 м2.
Жилая площадь 29.4 кв. м, ремонта нет, окна выходят на улицу.
Квартира располагается на 13 этаже 17-этажного монолитного дома.
Дом оборудован пассажирским лифтом, есть мусоропровод, закрытая территория, парковка охраняемая.
09.03.2026
57 086 848 ₽
СОБСТВЕННИК сдает производственно-складское помещение на территории завода «Кристалл» (ул. Самокатная, 4с1)
Помещение свободного назначения (ПСН) с круглосуточным доступом и отличной транспортной доступностью (ТТК, набережная).
1. РАСПОЛОЖЕНИЕ И ТРАНСПОРТНАЯ ДОСТУПНОСТЬ
Адрес: г. Москва, ул. Самокатная, д. 4, стр. 1 (бывшая территория завода «Кристалл»).
Локация: Удобная развязка вблизи ТТК и Золоторожской набережной.
Транспорт:
Близость к станциям метро: Площадь Ильича, Курская, Бауманская.
Остановки наземного транспорта в шаговой доступности.
Режим доступа: Круглосуточный (24/7).
2. ХАРАКТЕРИСТИКИ ПОМЕЩЕНИЯ
Тип объекта: Производственное / Торгово-складское / Помещение свободного назначения (ПСН).
Состояние: В настоящий момент функционирует действующее производство (готово к въезду или перепрофилированию).
Назначение: Идеально подходит для размещения производства, склада или сервисного обслуживания.
3. УСЛОВИЯ АРЕНДЫ И ЦЕНА
Ставка аренды: 14 500 рублей за кв. м. в год.
В эту сумму уже включен НДС.
Ежемесячный платеж (ориентировочно): 664 583 рубля в месяц (исходя из общей стоимости).
Дополнительные платежи: Коммунальные услуги и эксплуатационные расходы оплачиваются отдельно (согласно счетам управляющей компании/поставщиков).
4. УСЛОВИЯ ДЛЯ БРОКЕРОВ
Комиссия: Выплачивается вознаграждение в размере 50% от постоянной части арендной платы (месячной ставки).
Статус: Прямая аренда от Собственника, без посредников в цепочке.
12.03.2026
664 583 ₽
Продается 2-комнатная квартира от застройщика: общая площадь 55.50 м, жилая 25.90 м, кухня 18.30 м, 25-й этаж, жилой квартал «Вдохновение», корпус 33 (секция 3) . Срок сдачи: 4 квартал 2027 года.
Позвоните сейчас и забронируйте квартиру!
Квартал бизнес-класса СИМВОЛ - это городское пространство нового поколения в историческом районе Лефортово, на границе ЦАО, в 2 км от Садового кольца.
Бионическая архитектура СИМВОЛА превратила Лефортово в суперсовременное и модное пространство. Из окон, с балконов и террас просторных квартир СИМВОЛА открываются отличные виды на город и новый парк «Зеленая река», «протекающий» через все кварталы комплекса на 2 км.
В квартале уже есть все, что нужно для комфортной жизни: кафе и рестораны, супермаркеты и магазины, медицинские и физкультурно-оздоровительные центры, салоны красоты и барбершопы, аптеки и оптики, химчистки, пункты доставки и другие сервисы - всего более 90 действующих объектов внутриквартальной инфраструктуры.
Для юных жителей СИМВОЛА открыты детский сад и инженерный лицей при МГТУ им. Баумана.
Особенности квартала:
Свой парк «Зеленая Река» - 10 га зелени и развлечений на любой вкус!
Уникальная для Москвы архитектура - Проект создан архитектурной мастерской ATRIUM по дизайн-коду британских бюро LDA Design и UHA London.
Богатая инфраструктура с детскими садами и лицеем им. Баумана, кафе и ресторанами, супермаркетами и аптеками, зоной для фитнеса, бассейном и мед. центром.
Квартиры с панорамными окнами, террасами, ванными с окнами и каминами редких форматов.
Закрытые безопасные зелёные дворы-парки без машин!
02.04.2026
36 241 500 ₽
Аукцион по продаже помещения, находящегося по адресу: (Московская обл. , Ногинский р-н. , Электроугли, мкр. Светлый, д. 22)
Общая площадь: 1386.5 м
Начальная цена: 33 253 167,00
Дата окончания приема заявок: 18.05.2026 15: 00: 00
Дата проведения торгов: 22.05.2026 10: 00: 00
Кадастровые номера: 50: 16: 0701020: 1679, 50: 16: 0701020: 1133
Помещения находятся на 1 и цокольном этажах в многоквартирном доме. Окружение преимущественно представлено жилой застройкой. Высокая транспортная доступность обеспечена близостью автобусной остановки - 210 м, ж/д станции - 410 м и возможностью выезда на Носовихинское шоссе.
Реализация проходит на ЭТП Сбербанк АСТ. С подробной информацией вы можете ознакомиться на сайте ДОМ. РФ или позвонить нам по телефону. ДОМ. РФ - единственный агент РФ, который имеет право вовлекать в хозяйственный оборот неиспользуемые или используемые не по назначению объекты федерального имущества: земельные участки, здания, помещения согласно ФЗ 161 от 24.07.2008. География лотов, реализуемых на торгах, составляет более чем 90 регионов и является уникальной для РФ.
17.02.2026
33 253 167 ₽
Помещения под офис общей площадью 311,3 кв. м., с возможностью частичной аренды от 19,5 м2, на этажах 8-этажного административного здания в 10 мин. пешком от м. Семеновская, ВАО, район Соколиная Гора, юридический адрес не предоставляется. Высота потолков: 2,7 м. Офис предоставляется в прямую аренду, срок аренды — свыше года. Минимальный срок аренды 11 мес. В помещении возможно подключение телефона, интернета. Офис со стандартной отделкой, комнат в аренду — 12, внутри кабинетная планировка, на полу ламинат, тип окон — обычные, окна выходят во двор и на улицу, две мокрые точки на этаже, Участок находится в собственности., доступ в здание осуществляется по пропускам.
Вход в офис — общий с улицы. В здании есть лифт, охрана, в офисе местное кондиционирование, вентиляция офиса — приточная, центральное отопление, пожарная сигнализация.
27.03.2026
455 743 ₽
Татьяна. Отличное предложение! Предлагается Вашему вниманию просторная, уютная двухкомнатная квартира в новом доме!
Дом построен в рамках программы реновации. В квартире выполнен качественный ремонт от застройщика. Комнаты изолированы, есть просторный балкон, лоджия застеклена. Санузел раздельный, в плитке до потолка. Отличный, панорамный вид из окна (на 2 стороны), тишина и спокойствие. Отличное обустройство дома: огороженный двор, комфортные входные группы, благоустроенная территория.
Отличное местоположение. До станции метро Свиблово 10 минут пешком, до Бабушкинской 15 минут пешком. Удобный выезд на МКАД и Ярославское шоссе. В пешей доступности располагается большое количество объектов инфраструктуры, в том числе школы, детские сады и поликлиники.
Юридическая история чиста. Взрослые собственники. Свободная продажа, полная стоимость в договоре, оперативный выход на сделку.
Просмотр назначается оперативно. Звоните, уважаемые клиенты и коллеги, расскажем все подробности и с удовольствием ответим на вопросы.
05.04.2026
22 500 000 ₽
ОФИС В БАШНЕ A | Рублево Бизнес Парк
Класс А |
Победитель премии Move Realty Awards в номинации «Лучший проект для инвестиций»
Инвестируйте в офис с максимальным потенциалом роста - в новом бизнес-центре Рублево Бизнес Парк. Современный проект А-класса на Новорижском направлении: высокий спрос, редкие форматы, идеальная транспортная доступность.
Преимущества объекта
Свободная планировка от 50 до 4000 м - возможность адаптации под любые задачи бизнеса.
Высота потолков от 4,05 до 6,03 м - создаёт ощущение простора, идеально для открытых пространств, шоурумов и двухуровневых решений.
Частные террасы - уникальный формат на офисном рынке Москвы.
Панорамное угловое остекление - естественный свет в течение всего дня и впечатляющие виды.
Shell & Core - гибкость в проектировании интерьера под себя.
Архитектура и инженерия
Класс А - соответствие высоким стандартам по инфраструктуре, инженерным системам и управлению зданием.
Гранд-лобби 1500 м, высота 9 м - знаковое пространство с интерьерами от бюро UNK corporate interiors.
22 скоростных лифта - бесшумные и быстрые, рассчитаны на интенсивный трафик.
Современные инженерные системы - высокий уровень комфорта и энергоэффективности.
Локация и транспорт
2 минуты до Новорижского шоссе и проспекта Маршала Жукова - быстрый выезд на ключевые магистрали.
8 минут до м. Строгино, 500 м до будущей м. Липовая роща (открытие до 2027 года) - отличная доступность как на авто, так и на общественном транспорте.
Условия покупки
Продажа по ДДУ (214-ФЗ) через эскроу-счета
Проектное финансирование от Сбербанка
Возможна рассрочка
Возврат НДС 22%
Инвестиционная привлекательность
Ожидаемый рост капитализации с открытием метро
Возможность сдачи по блокам или этажом целиком
ROI: 9-12%
________________________________________
Адрес объекта: МКАД, 64 км
02.04.2026
26 000 000 ₽
Продается 1-комн. квартира, площадью 33.7 м2.
кухня 9.11 кв. м., комната 13,11
Квартира располагается на 16 этаже 18-этажного дома.
Финансовый управляющий сообщает о проведении:
06.05.2026 г. в 12:00 по московскому времени в электронной форме в сети «Интернет» на электронной торговой площадке (далее - ЭТП) «Альфалот» (оператор ЭТП ООО "Аукционы Федерации", Юридический адрес: 450059, г. Уфа, ул. Рихарда Зорге, д. 9, корп. 6, подъезд 2, этаж 2, ИНН/КПП: 0278184720/027801001, ОГРН:1110280063563), открытых торгов по продаже имущества должника, в форме аукциона №0201521, с открытой формой подачи предложения о цене.
Начальная цена продажи: 6 519 600,00 рублей 00 копеек.
Заявки на участие в торгах подаются посредством системы электронного документооборота в сети «Интернет», с 12.00 часов (по московскому времени) 26.03.2026г. до 12.00 часов (по московскому времени) 05.05.2026г.
Шаг аукциона 5% от начальной цены продажи имущества.
Задаток в размере 10% от начальной цены лота Состав имущества:
Настоящим Покупатель поставлен в известность, что по состоянию на 04.02.2026 г. согласно сведениям из Единого государственного реестра недвижимости в отношении Квартиры имеются обременения и ограничения и аресты, зарегистрированные в ЕГРН, а именно:
Ипотека в силу закона
дата государственной регистрации: 29.08.2024
номер государственной регистрации: 50:50:0040211:5192-50/110/2024-4
лицо, в пользу которого установлены ограничение прав и обременение объекта недвижимости:
БАНК "МИР ПРИВИЛЕГИЙ" (ОБЩЕСТВО С ОГРАНИЧЕННОЙ ОТВЕТСТВЕННОСТЬЮ), ИНН 7750005845, ОГРН 1137711000096.
Права кредитора ООО БАНК «МИР ПРИВИЛЕГИЙ» перешли к ООО «ПКО «Национальная Фабрика Ипотеки» ИНН 7706450420, ОГРН 1177746942020. Определением Арбитражного суда Московской области от 24.12.2025 г. по делу№ А41-58393/2025 требование ООО «ПКО «Национальная Фабрика Ипотеки» признано обоснованным и включено в третью очередь реестра требований кредиторов должника.
Финансовый управляющий уведомляет широкий круг лиц, что Продавец (Карамалак Рената) на основании Решения Арбитражного суда Московской области от 11 сентября 2025 года (резолютивная часть объявлена 10 сентября 2025 г. по делу № А41-58393/2025 признана несостоятельным (банкротом), и в отношении нее введена процедура реализации имущества гражданина.
Ознакомление с имуществом и документами осуществляется по ссылке https://cloud.mail.ru/public/HA6f/71VdHUHbv
Ознакомление с имуществом в очном порядке возможен по предварительному согласованию времени и даты по телефону: 8 999 859 00 43, эл. почта: smar.2010@mail.ru
26.03.2026
6 519 600 ₽
СОБСТВЕННИК предлагает в аренду помещение на мансардном этаже (3 эт.), общей площадью 241 м2 в отдельно стоящем 4-х этажном здании, в пяти минутах ходьбы от метро Курская и Чкаловская, напротив ТЦ Атриум, в пределах Садового кольца.
Здание расположено на огороженной, охраняемой территории, доступ 24/7.
На территории БЦ кафе/столовая, типография, клиника косметологии, кальянная
Высота потолков от 2 до 4 м.
Есть окна
ЗВОНИТЕ, оперативно все покажем!
11.02.2026
500 000 ₽
Застройщик продает коммерческое помещение у метро в ЖК бизнес-класса «1-й Нагатинский».
Первая линия пересечение Варшавского шоссе и ул. Нагатинской.
Помещение в построенном ЖК (ключи 2 квартал 2026).
Помещение на въезде в ЖК (дома на первой линии).
Помещения расположены в первых корпусах на въезде, что обеспечивает высокий трафик потенциальных покупателей.
Дефицит торговой инфраструктуры вокруг.
Новый формирующийся район, жители которого будут пользоваться в приоритете инфраструктурой внутри ЖК
Удаленность от ТТК 2,5 км
Характеристики и преимущества:
Корпуса на Первой линий ул. Нагатинской, ограниченное кол-во помещения в ЖК
Отдельный вход, свободная планировка
Витринное остекление + рекламное место на фасаде
Высокие потолки
Все инженерные коммуникации: вытяжная вентиляция, пожаротушение
Удобные подъездные пути и парковка
ЖК в шаговой доступности метро Нагатинская – 1 мин.
Окружение:
1660 квартир (в 500 м), всего в 4 очередях запланировано 4000 квартир
Интенсивный авто трафик Варшавского шоссе
В радиусе 500 м четыре БЦ, три учебных учреждения среднего и высшего образования.
В радиусе 500 м два супермаркета
Условия:
Продажа по ДДУ от застройщика.
Характеристика локации:
Линия домов: первая;
Ближайшая остановка общественного транспорта - 130 м
Технические характеристики:
Тип здания: жилой дом, помещение встроенное;
Уровень: первый (-1 этаж)
Высота потолка: h = до 5,7 м;
Оконная группа: панорамное остекление; двойные стеклопакеты
Входов: 1, отдельный, с основного фасада;
Электрическая мощность: 300 Вт/кв.м
Канализация: есть две точки подключения;
Вентиляция: автономная на крышу, решетка на фасаде для обустройства притока;
Состояние: без отделки
11.02.2026
59 818 800 ₽
Продается 2-комн. квартира, площадью 58.2 м2 в монолитной новостройке в 7 мин. пешком от м.Озёрная. Возможен вариант покупки с использованием ипотечных средств, есть рассрочка, возможна покупка с использованием материнского капитала, есть военная ипотека.
Жилая площадь 37.7 м2, кухня 5.5 м2, чистовая отделка, комнаты смежно-изолированные. Раздельных санузлов - нет, совмещенных санузлов - 1.
На полу стяжка, окна выходят во двор.
Квартира располагается на 3 этаже 9-этажного дома в ЖК Страна.Озёрная.
Застройщик - ГК Страна Девелопмент, сдача дома - III квартал 2025 года, высота потолков 3 м.
Дом оборудован 4 пассажирскими и 4 грузовыми лифтами, закрытая территория. Обеспечение безопасности: видеонаблюдение, круглосуточная охрана, консьерж, противопожарная система, пропускная система. Инфраструктура: школа, детский сад, поликлиника, детские площадки, спортивные площадки, места для отдыха.
Жилой комплекс Страна. Озёрная — новое пространство для жизни и вдохновения на карте Москвы в престижном Западном округе. Целый квартал, в котором городской ритм соседствует с уютной тишиной водной глади. Здесь такая же атмосфера приватности, таинства и... чуда, как на берегу величественного Байкала. Надёжную защиту жителей в квартале Страна. Озёрная обеспечивают технологии, квалифицированные специалисты и даже само расположение зданий, создающее приватность внутреннего двора. Дворы без машин Закрытая территория Круглосуточная охрана Система видеонаблюдения 24/7 Видеодомофония и персональные ключ-карты
В двух минутах от комплекса есть станция метро «Озёрная», путь до центра займёт всего 27 минут. На машине легко добраться до Садового кольца и на МКАД по Мичуринскому проспекту. Очаковские пруды всего в 7 минутах на самокате и видны почти из всех северных и восточных окон.
Позвоните и узнайте условия покупки прямо сейчас!
05.04.2026
26 900 000 ₽
Рассрочка 0% на 2 года от застройщика!
Продается таунхаус в квартале «Земляничная поляна» жилого комплекса «Мечта».
ОСНОВНЫЕ ХАРАКТЕРИСТИКИ
- Общая площадь: 135.69 м
- Площадь участка: 1.75 сот.
- 2 этажа
- 4 спальни
- 3 ванные комнаты
- Высота потолка: 2.9 метра
- 2 парковочных места
- Отделка: Чистовая
Коттеджный посёлок «Мечта» находится всего в 23 км от МКАД по Дмитровскому или Ленинградскому шоссе. Дорога до Москвы на автомобиле займёт 30 минут. Также можно воспользоваться общественным транспортом: автобусы ходят по расписанию, поэтому не придётся переживать из-за опозданий и задержек. До МЦД-1 «Лобня» - 15-20 минут, до станции метро «Физтех» - 30-35 минут на общественном транспорте.
Инфраструктура включает в себя муниципальную школу и детские сады, кабинет врача общей практики, множество кафе и ресторанов, а также различные спортивные и детские площадки.
В пешей доступности от посёлка расположены лес и три реликтовых озера - Долгое, Круглое и Нерское, а также реки Альба, Уча и Волгуша.
Территория посёлка закрыта для посторонних, находится под охраной и патрулируется. На въезде расположен КПП. Камеры видеонаблюдения работают круглосуточно на всей территории посёлка. Вы и ваши дети будете чувствовать себя в безопасности.
03.04.2026
25 386 000 ₽




















