Сдам коммерческую недвижимость 78 м2
Размещено сегодня в 03:01
1
(+1)
0
Жалоба
- Описание
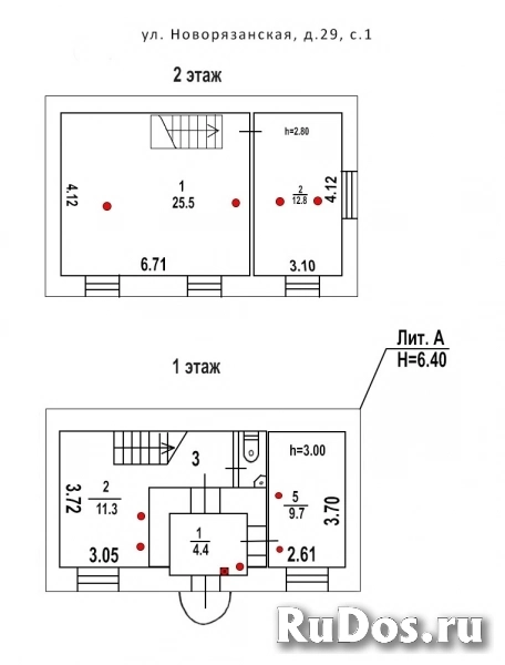
Сдам отдельно стоящее здание класса B+, расположенное в маленьком тихом парке "Малютин сад", площадью 78 кв.м. в 7 мин. пешком от м.Бауманская, район города - Басманный. Этажей в здании - 2, высота потолков: 2.8 м. Здание предоставляется в прямую аренду, срок аренды - свыше года, предоплата 1 месяц. Включено в ставку: коммунальные платежи. Минимальный срок аренды 11 мес, комнат в аренду - 4, тип окон - обычные, окна выходят во двор, номер налоговой объекта - 1, год постройки 1917, участок находится в аренде, здание полностью функционирует, удобное расположение на второй линии домов.
Вход в здание - отдельный со двора.
В здании: местное кондиционирование, вентиляция здания - естественная, центральное отопление, порошковая система пожаротушения, есть водоснабжение.
Парковка автомобилей - наземная, на парковке два машиноместа, из них 2 предоставляются в пользование, парковка предоставляется бесплатно.
Вход в здание - отдельный со двора.
В здании: местное кондиционирование, вентиляция здания - естественная, центральное отопление, порошковая система пожаротушения, есть водоснабжение.
Парковка автомобилей - наземная, на парковке два машиноместа, из них 2 предоставляются в пользование, парковка предоставляется бесплатно.
