Сдам коммерческую недвижимость 505 м2
Размещено 22 июля 2025
63
0
Жалоба
- Описание
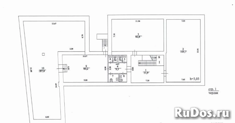
Аренда ПСН площадью 505 кв. м, в прямую аренду на любой срок. В ставку включены: эксплуатационные расходы. Помещение располагается в 3-этажном здании в 3 мин. транспортом от м. Курская, район Лефортово. Помещение находится на 3 этаже здания.
Возможное назначение - прочее, высота потолков 3.9 м, внутри типовой ремонт, на полу плитка, одна мокрая точка, тип окон - витринные, окна выходят на улицу, здание полностью функционирует.
Внутри местное кондиционирование, пожарная сигнализация, внутри есть водоснабжение.
Вход - общий с улицы, доступ в здание свободный, объект находится под охраной.
Парковка автомобилей - наземная.
помещение в ремонте
Возможное назначение - прочее, высота потолков 3.9 м, внутри типовой ремонт, на полу плитка, одна мокрая точка, тип окон - витринные, окна выходят на улицу, здание полностью функционирует.
Внутри местное кондиционирование, пожарная сигнализация, внутри есть водоснабжение.
Вход - общий с улицы, доступ в здание свободный, объект находится под охраной.
Парковка автомобилей - наземная.
помещение в ремонте
Универсальное нежилое помещение на 1-й Никитинской улице сдается в аренду
Владислав Бушуров
350 000 ₽
