Продам коммерческую недвижимость 88547 м2
Размещено 31 января 2026
6
(+3)
0
Жалоба
- Описание
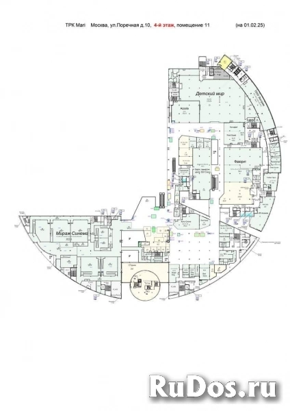
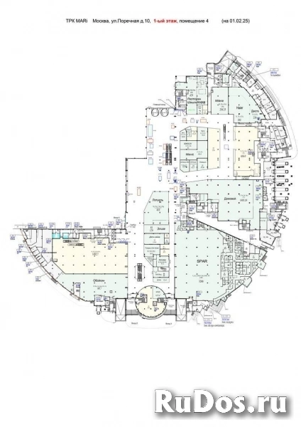
ПРОДАЖА ТОРГОВО-РАЗВЛЕКАТЕЛЬНОГО ЦЕНТРА MARI, площадь 88 547 м2. Стоимость 4 100 000 000 руб.
г. Москва, ул. Поречная, 10,
«метро Марьино»
«метро Братиславская»
MARi - это современный торговый центр для всей семьи, где посетители любого возраста могут найти товары и развлечения на свой вкус.
Количество этажей: 6 (1 подземный)
Площадь нежилых помещений 88 547 м2
ТРК расположен в густонаселенном районе Москвы - Марьино.
В зону охвата ТРК входят районы - Марьино, Люблино, Братеево:
5 мин - 141 600 человек
10 мин - 307 800 человек
20 мин - 826 450 человек
Всего - 1 275 850 человек
Проект преимущественно окружен жилой застройкой. Дополнительный генератором траффика является обновленный парк 850-летия Москвы. ТРК расположен рядом с транспортной развязкой основных магистралей районов Марьино и Братеево. Заполненность торгового центра - 90%
Состав имущественного комплекса:
Нежилые помещения 88 547,00
Земельный участок (часть) 44 887,00 (аренда)
Количество машиномест: 941
Посещаемость ТРК MARi ежегодно растет в среднем на 10% последние 4 года.
Панорамные окна с видом на Москва-реку из фитнес-клуба и ресторанов. Архитектура здания дает возможность использовать пространство на крыше под рестораны и ритейл
В ТРК расположен самый современный и востребованный восьми зальный кинотеатр в районе, а так же находится масштабная развлекательная зона.
Якорные Арендаторы:
Спортмастер, Лэтуаль, М-видео, Joki Joya, Детский мир и др.
г. Москва, ул. Поречная, 10,
«метро Марьино»
«метро Братиславская»
MARi - это современный торговый центр для всей семьи, где посетители любого возраста могут найти товары и развлечения на свой вкус.
Количество этажей: 6 (1 подземный)
Площадь нежилых помещений 88 547 м2
ТРК расположен в густонаселенном районе Москвы - Марьино.
В зону охвата ТРК входят районы - Марьино, Люблино, Братеево:
5 мин - 141 600 человек
10 мин - 307 800 человек
20 мин - 826 450 человек
Всего - 1 275 850 человек
Проект преимущественно окружен жилой застройкой. Дополнительный генератором траффика является обновленный парк 850-летия Москвы. ТРК расположен рядом с транспортной развязкой основных магистралей районов Марьино и Братеево. Заполненность торгового центра - 90%
Состав имущественного комплекса:
Нежилые помещения 88 547,00
Земельный участок (часть) 44 887,00 (аренда)
Количество машиномест: 941
Посещаемость ТРК MARi ежегодно растет в среднем на 10% последние 4 года.
Панорамные окна с видом на Москва-реку из фитнес-клуба и ресторанов. Архитектура здания дает возможность использовать пространство на крыше под рестораны и ритейл
В ТРК расположен самый современный и востребованный восьми зальный кинотеатр в районе, а так же находится масштабная развлекательная зона.
Якорные Арендаторы:
Спортмастер, Лэтуаль, М-видео, Joki Joya, Детский мир и др.
