Коммерческая недвижимость в Краснознаменске в Московской обл. - Страница 22
- Краснознаменск, Московская обл. »
- Недвижимость
- » Коммерческая недвижимость в Краснознаменске в Московской обл.
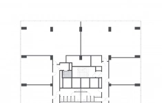
Бизнес-центр LINK представляет собой многофункциональный кластер, объединяющий современные офисы класса B+ и складские помещения для эффективной работы в одном месте. LINK расположен на западе Москвы в районе Очаково-Матвеевское. Благодаря такому расположению до любой точки Москвы можно добраться всего за 20 минут. Это особенно ценно для компаний, в чьей операционной модели ключевую роль играет логистика.
Транспортная доступность:
- 1 минута до МКАД, СЗХ
- 5 минут до Можайского шоссе
- 2 минуты до Проспекта Генерала Дорохова
- 20 минут до ТТК
- Ближайшие станции метро: «Озерная», «Мичуринский проспект», «Говорово»
Характеристики:
- Общая офисная площадь: 48 800 м
- Две офисные башни: NEO и RUNE
- Офисы различного масштаба: от 71 до 1 538 м
- Количество машино-мест: 170
- Срок сдачи: 4 квартал 2028
Условия продажи:
Все офисы сдаются без отделки, что позволяет арендаторам спроектировать и реализовать интерьер под свои конкретные бизнес-задачи и корпоративную культуру. Помимо реализации на условиях полной предоплаты, предусмотрена возможность удобной рассрочки.
О компании MR Group:
MR Group - один из ведущих девелоперов России, который на протяжении 22 лет формирует ключевые принципы, определяющие каждое новое пространство. Компания известна смелыми архитектурными и инженерными решениями, сотрудничеством с мировыми дизайн-бюро и культурными институциями, а также внедрением передовых экологичных технологий. В 2025 году MR объединяет свои проекты офисной недвижимости под новым брендом - MR Group, предлагая 25 объектов общей площадью 2,1 млн м в ключевых бизнес-локациях Москвы.
16.01.2026
21 309 372 ₽
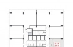
Бизнес-центр LINK представляет собой многофункциональный кластер, объединяющий современные офисы класса B+ и складские помещения для эффективной работы в одном месте. LINK расположен на западе Москвы в районе Очаково-Матвеевское. Благодаря такому расположению до любой точки Москвы можно добраться всего за 20 минут. Это особенно ценно для компаний, в чьей операционной модели ключевую роль играет логистика.
Транспортная доступность:
- 1 минута до МКАД, СЗХ
- 5 минут до Можайского шоссе
- 2 минуты до Проспекта Генерала Дорохова
- 20 минут до ТТК
- Ближайшие станции метро: «Озерная», «Мичуринский проспект», «Говорово»
Характеристики:
- Общая офисная площадь: 48 800 м
- Две офисные башни: NEO и RUNE
- Офисы различного масштаба: от 71 до 1 538 м
- Количество машино-мест: 170
- Срок сдачи: 4 квартал 2028
Условия продажи:
Все офисы сдаются без отделки, что позволяет арендаторам спроектировать и реализовать интерьер под свои конкретные бизнес-задачи и корпоративную культуру. Помимо реализации на условиях полной предоплаты, предусмотрена возможность удобной рассрочки.
О компании MR Group:
MR Group - один из ведущих девелоперов России, который на протяжении 22 лет формирует ключевые принципы, определяющие каждое новое пространство. Компания известна смелыми архитектурными и инженерными решениями, сотрудничеством с мировыми дизайн-бюро и культурными институциями, а также внедрением передовых экологичных технологий. В 2025 году MR объединяет свои проекты офисной недвижимости под новым брендом - MR Group, предлагая 25 объектов общей площадью 2,1 млн м в ключевых бизнес-локациях Москвы.
16.01.2026
21 719 115 ₽
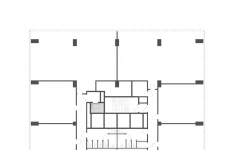
Бизнес-центр LINK представляет собой многофункциональный кластер, объединяющий современные офисы класса B+ и складские помещения для эффективной работы в одном месте. LINK расположен на западе Москвы в районе Очаково-Матвеевское. Благодаря такому расположению до любой точки Москвы можно добраться всего за 20 минут. Это особенно ценно для компаний, в чьей операционной модели ключевую роль играет логистика.
Транспортная доступность:
- 1 минута до МКАД, СЗХ
- 5 минут до Можайского шоссе
- 2 минуты до Проспекта Генерала Дорохова
- 20 минут до ТТК
- Ближайшие станции метро: «Озерная», «Мичуринский проспект», «Говорово»
Характеристики:
- Общая офисная площадь: 48 800 м
- Две офисные башни: NEO и RUNE
- Офисы различного масштаба: от 71 до 1 538 м
- Количество машино-мест: 170
- Срок сдачи: 4 квартал 2028
Условия продажи:
Все офисы сдаются без отделки, что позволяет арендаторам спроектировать и реализовать интерьер под свои конкретные бизнес-задачи и корпоративную культуру. Помимо реализации на условиях полной предоплаты, предусмотрена возможность удобной рассрочки.
О компании MR Group:
MR Group - один из ведущих девелоперов России, который на протяжении 22 лет формирует ключевые принципы, определяющие каждое новое пространство. Компания известна смелыми архитектурными и инженерными решениями, сотрудничеством с мировыми дизайн-бюро и культурными институциями, а также внедрением передовых экологичных технологий. В 2025 году MR объединяет свои проекты офисной недвижимости под новым брендом - MR Group, предлагая 25 объектов общей площадью 2,1 млн м в ключевых бизнес-локациях Москвы.
16.01.2026
21 673 344 ₽
Бизнес-центр LINK представляет собой многофункциональный кластер, объединяющий современные офисы класса B+ и складские помещения для эффективной работы в одном месте. LINK расположен на западе Москвы в районе Очаково-Матвеевское. Благодаря такому расположению до любой точки Москвы можно добраться всего за 20 минут. Это особенно ценно для компаний, в чьей операционной модели ключевую роль играет логистика.
Транспортная доступность:
- 1 минута до МКАД, СЗХ
- 5 минут до Можайского шоссе
- 2 минуты до Проспекта Генерала Дорохова
- 20 минут до ТТК
- Ближайшие станции метро: «Озерная», «Мичуринский проспект», «Говорово»
Характеристики:
- Общая офисная площадь: 48 800 м
- Две офисные башни: NEO и RUNE
- Офисы различного масштаба: от 71 до 1 538 м
- Количество машино-мест: 170
- Срок сдачи: 4 квартал 2028
Условия продажи:
Все офисы сдаются без отделки, что позволяет арендаторам спроектировать и реализовать интерьер под свои конкретные бизнес-задачи и корпоративную культуру. Помимо реализации на условиях полной предоплаты, предусмотрена возможность удобной рассрочки.
О компании MR Group:
MR Group - один из ведущих девелоперов России, который на протяжении 22 лет формирует ключевые принципы, определяющие каждое новое пространство. Компания известна смелыми архитектурными и инженерными решениями, сотрудничеством с мировыми дизайн-бюро и культурными институциями, а также внедрением передовых экологичных технологий. В 2025 году MR объединяет свои проекты офисной недвижимости под новым брендом - MR Group, предлагая 25 объектов общей площадью 2,1 млн м в ключевых бизнес-локациях Москвы.
16.01.2026
21 953 630 ₽
Бизнес-центр LINK представляет собой многофункциональный кластер, объединяющий современные офисы класса B+ и складские помещения для эффективной работы в одном месте. LINK расположен на западе Москвы в районе Очаково-Матвеевское. Благодаря такому расположению до любой точки Москвы можно добраться всего за 20 минут. Это особенно ценно для компаний, в чьей операционной модели ключевую роль играет логистика.
Транспортная доступность:
- 1 минута до МКАД, СЗХ
- 5 минут до Можайского шоссе
- 2 минуты до Проспекта Генерала Дорохова
- 20 минут до ТТК
- Ближайшие станции метро: «Озерная», «Мичуринский проспект», «Говорово»
Характеристики:
- Общая офисная площадь: 48 800 м
- Две офисные башни: NEO и RUNE
- Офисы различного масштаба: от 71 до 1 538 м
- Количество машино-мест: 170
- Срок сдачи: 4 квартал 2028
Условия продажи:
Все офисы сдаются без отделки, что позволяет арендаторам спроектировать и реализовать интерьер под свои конкретные бизнес-задачи и корпоративную культуру. Помимо реализации на условиях полной предоплаты, предусмотрена возможность удобной рассрочки.
О компании MR Group:
MR Group - один из ведущих девелоперов России, который на протяжении 22 лет формирует ключевые принципы, определяющие каждое новое пространство. Компания известна смелыми архитектурными и инженерными решениями, сотрудничеством с мировыми дизайн-бюро и культурными институциями, а также внедрением передовых экологичных технологий. В 2025 году MR объединяет свои проекты офисной недвижимости под новым брендом - MR Group, предлагая 25 объектов общей площадью 2,1 млн м в ключевых бизнес-локациях Москвы.
16.01.2026
21 492 165 ₽
Бизнес-центр LINK представляет собой многофункциональный кластер, объединяющий современные офисы класса B+ и складские помещения для эффективной работы в одном месте. LINK расположен на западе Москвы в районе Очаково-Матвеевское. Благодаря такому расположению до любой точки Москвы можно добраться всего за 20 минут. Это особенно ценно для компаний, в чьей операционной модели ключевую роль играет логистика.
Транспортная доступность:
- 1 минута до МКАД, СЗХ
- 5 минут до Можайского шоссе
- 2 минуты до Проспекта Генерала Дорохова
- 20 минут до ТТК
- Ближайшие станции метро: «Озерная», «Мичуринский проспект», «Говорово»
Характеристики:
- Общая офисная площадь: 48 800 м
- Две офисные башни: NEO и RUNE
- Офисы различного масштаба: от 71 до 1 538 м
- Количество машино-мест: 170
- Срок сдачи: 4 квартал 2028
Условия продажи:
Все офисы сдаются без отделки, что позволяет арендаторам спроектировать и реализовать интерьер под свои конкретные бизнес-задачи и корпоративную культуру. Помимо реализации на условиях полной предоплаты, предусмотрена возможность удобной рассрочки.
О компании MR Group:
MR Group - один из ведущих девелоперов России, который на протяжении 22 лет формирует ключевые принципы, определяющие каждое новое пространство. Компания известна смелыми архитектурными и инженерными решениями, сотрудничеством с мировыми дизайн-бюро и культурными институциями, а также внедрением передовых экологичных технологий. В 2025 году MR объединяет свои проекты офисной недвижимости под новым брендом - MR Group, предлагая 25 объектов общей площадью 2,1 млн м в ключевых бизнес-локациях Москвы.
16.01.2026
21 222 432 ₽
Бизнес-центр LINK представляет собой многофункциональный кластер, объединяющий современные офисы класса B+ и складские помещения для эффективной работы в одном месте. LINK расположен на западе Москвы в районе Очаково-Матвеевское. Благодаря такому расположению до любой точки Москвы можно добраться всего за 20 минут. Это особенно ценно для компаний, в чьей операционной модели ключевую роль играет логистика.
Транспортная доступность:
- 1 минута до МКАД, СЗХ
- 5 минут до Можайского шоссе
- 2 минуты до Проспекта Генерала Дорохова
- 20 минут до ТТК
- Ближайшие станции метро: «Озерная», «Мичуринский проспект», «Говорово»
Характеристики:
- Общая офисная площадь: 48 800 м
- Две офисные башни: NEO и RUNE
- Офисы различного масштаба: от 71 до 1 538 м
- Количество машино-мест: 170
- Срок сдачи: 4 квартал 2028
Условия продажи:
Все офисы сдаются без отделки, что позволяет арендаторам спроектировать и реализовать интерьер под свои конкретные бизнес-задачи и корпоративную культуру. Помимо реализации на условиях полной предоплаты, предусмотрена возможность удобной рассрочки.
О компании MR Group:
MR Group - один из ведущих девелоперов России, который на протяжении 22 лет формирует ключевые принципы, определяющие каждое новое пространство. Компания известна смелыми архитектурными и инженерными решениями, сотрудничеством с мировыми дизайн-бюро и культурными институциями, а также внедрением передовых экологичных технологий. В 2025 году MR объединяет свои проекты офисной недвижимости под новым брендом - MR Group, предлагая 25 объектов общей площадью 2,1 млн м в ключевых бизнес-локациях Москвы.
16.01.2026
21 599 424 ₽
Бизнес-центр LINK представляет собой многофункциональный кластер, объединяющий современные офисы класса B+ и складские помещения для эффективной работы в одном месте. LINK расположен на западе Москвы в районе Очаково-Матвеевское. Благодаря такому расположению до любой точки Москвы можно добраться всего за 20 минут. Это особенно ценно для компаний, в чьей операционной модели ключевую роль играет логистика.
Транспортная доступность:
- 1 минута до МКАД, СЗХ
- 5 минут до Можайского шоссе
- 2 минуты до Проспекта Генерала Дорохова
- 20 минут до ТТК
- Ближайшие станции метро: «Озерная», «Мичуринский проспект», «Говорово»
Характеристики:
- Общая офисная площадь: 48 800 м
- Две офисные башни: NEO и RUNE
- Офисы различного масштаба: от 71 до 1 538 м
- Количество машино-мест: 170
- Срок сдачи: 4 квартал 2028
Условия продажи:
Все офисы сдаются без отделки, что позволяет арендаторам спроектировать и реализовать интерьер под свои конкретные бизнес-задачи и корпоративную культуру. Помимо реализации на условиях полной предоплаты, предусмотрена возможность удобной рассрочки.
О компании MR Group:
MR Group - один из ведущих девелоперов России, который на протяжении 22 лет формирует ключевые принципы, определяющие каждое новое пространство. Компания известна смелыми архитектурными и инженерными решениями, сотрудничеством с мировыми дизайн-бюро и культурными институциями, а также внедрением передовых экологичных технологий. В 2025 году MR объединяет свои проекты офисной недвижимости под новым брендом - MR Group, предлагая 25 объектов общей площадью 2,1 млн м в ключевых бизнес-локациях Москвы.
16.01.2026
20 778 912 ₽
Бизнес-центр LINK представляет собой многофункциональный кластер, объединяющий современные офисы класса B+ и складские помещения для эффективной работы в одном месте. LINK расположен на западе Москвы в районе Очаково-Матвеевское. Благодаря такому расположению до любой точки Москвы можно добраться всего за 20 минут. Это особенно ценно для компаний, в чьей операционной модели ключевую роль играет логистика.
Транспортная доступность:
- 1 минута до МКАД, СЗХ
- 5 минут до Можайского шоссе
- 2 минуты до Проспекта Генерала Дорохова
- 20 минут до ТТК
- Ближайшие станции метро: «Озерная», «Мичуринский проспект», «Говорово»
Характеристики:
- Общая офисная площадь: 48 800 м
- Две офисные башни: NEO и RUNE
- Офисы различного масштаба: от 71 до 1 538 м
- Количество машино-мест: 170
- Срок сдачи: 4 квартал 2028
Условия продажи:
Все офисы сдаются без отделки, что позволяет арендаторам спроектировать и реализовать интерьер под свои конкретные бизнес-задачи и корпоративную культуру. Помимо реализации на условиях полной предоплаты, предусмотрена возможность удобной рассрочки.
О компании MR Group:
MR Group - один из ведущих девелоперов России, который на протяжении 22 лет формирует ключевые принципы, определяющие каждое новое пространство. Компания известна смелыми архитектурными и инженерными решениями, сотрудничеством с мировыми дизайн-бюро и культурными институциями, а также внедрением передовых экологичных технологий. В 2025 году MR объединяет свои проекты офисной недвижимости под новым брендом - MR Group, предлагая 25 объектов общей площадью 2,1 млн м в ключевых бизнес-локациях Москвы.
16.01.2026
20 778 912 ₽
Бизнес-центр LINK представляет собой многофункциональный кластер, объединяющий современные офисы класса B+ и складские помещения для эффективной работы в одном месте. LINK расположен на западе Москвы в районе Очаково-Матвеевское. Благодаря такому расположению до любой точки Москвы можно добраться всего за 20 минут. Это особенно ценно для компаний, в чьей операционной модели ключевую роль играет логистика.
Транспортная доступность:
- 1 минута до МКАД, СЗХ
- 5 минут до Можайского шоссе
- 2 минуты до Проспекта Генерала Дорохова
- 20 минут до ТТК
- Ближайшие станции метро: «Озерная», «Мичуринский проспект», «Говорово»
Характеристики:
- Общая офисная площадь: 48 800 м
- Две офисные башни: NEO и RUNE
- Офисы различного масштаба: от 71 до 1 538 м
- Количество машино-мест: 170
- Срок сдачи: 4 квартал 2028
Условия продажи:
Все офисы сдаются без отделки, что позволяет арендаторам спроектировать и реализовать интерьер под свои конкретные бизнес-задачи и корпоративную культуру. Помимо реализации на условиях полной предоплаты, предусмотрена возможность удобной рассрочки.
О компании MR Group:
MR Group - один из ведущих девелоперов России, который на протяжении 22 лет формирует ключевые принципы, определяющие каждое новое пространство. Компания известна смелыми архитектурными и инженерными решениями, сотрудничеством с мировыми дизайн-бюро и культурными институциями, а также внедрением передовых экологичных технологий. В 2025 году MR объединяет свои проекты офисной недвижимости под новым брендом - MR Group, предлагая 25 объектов общей площадью 2,1 млн м в ключевых бизнес-локациях Москвы.
16.01.2026
20 737 692 ₽
Бизнес-центр LINK представляет собой многофункциональный кластер, объединяющий современные офисы класса B+ и складские помещения для эффективной работы в одном месте. LINK расположен на западе Москвы в районе Очаково-Матвеевское. Благодаря такому расположению до любой точки Москвы можно добраться всего за 20 минут. Это особенно ценно для компаний, в чьей операционной модели ключевую роль играет логистика.
Транспортная доступность:
- 1 минута до МКАД, СЗХ
- 5 минут до Можайского шоссе
- 2 минуты до Проспекта Генерала Дорохова
- 20 минут до ТТК
- Ближайшие станции метро: «Озерная», «Мичуринский проспект», «Говорово»
Характеристики:
- Общая офисная площадь: 48 800 м
- Две офисные башни: NEO и RUNE
- Офисы различного масштаба: от 71 до 1 538 м
- Количество машино-мест: 170
- Срок сдачи: 4 квартал 2028
Условия продажи:
Все офисы сдаются без отделки, что позволяет арендаторам спроектировать и реализовать интерьер под свои конкретные бизнес-задачи и корпоративную культуру. Помимо реализации на условиях полной предоплаты, предусмотрена возможность удобной рассрочки.
О компании MR Group:
MR Group - один из ведущих девелоперов России, который на протяжении 22 лет формирует ключевые принципы, определяющие каждое новое пространство. Компания известна смелыми архитектурными и инженерными решениями, сотрудничеством с мировыми дизайн-бюро и культурными институциями, а также внедрением передовых экологичных технологий. В 2025 году MR объединяет свои проекты офисной недвижимости под новым брендом - MR Group, предлагая 25 объектов общей площадью 2,1 млн м в ключевых бизнес-локациях Москвы.
16.01.2026
20 516 166 ₽
Бизнес-центр LINK представляет собой многофункциональный кластер, объединяющий современные офисы класса B+ и складские помещения для эффективной работы в одном месте. LINK расположен на западе Москвы в районе Очаково-Матвеевское. Благодаря такому расположению до любой точки Москвы можно добраться всего за 20 минут. Это особенно ценно для компаний, в чьей операционной модели ключевую роль играет логистика.
Транспортная доступность:
- 1 минута до МКАД, СЗХ
- 5 минут до Можайского шоссе
- 2 минуты до Проспекта Генерала Дорохова
- 20 минут до ТТК
- Ближайшие станции метро: «Озерная», «Мичуринский проспект», «Говорово»
Характеристики:
- Общая офисная площадь: 48 800 м
- Две офисные башни: NEO и RUNE
- Офисы различного масштаба: от 71 до 1 538 м
- Количество машино-мест: 170
- Срок сдачи: 4 квартал 2028
Условия продажи:
Все офисы сдаются без отделки, что позволяет арендаторам спроектировать и реализовать интерьер под свои конкретные бизнес-задачи и корпоративную культуру. Помимо реализации на условиях полной предоплаты, предусмотрена возможность удобной рассрочки.
О компании MR Group:
MR Group - один из ведущих девелоперов России, который на протяжении 22 лет формирует ключевые принципы, определяющие каждое новое пространство. Компания известна смелыми архитектурными и инженерными решениями, сотрудничеством с мировыми дизайн-бюро и культурными институциями, а также внедрением передовых экологичных технологий. В 2025 году MR объединяет свои проекты офисной недвижимости под новым брендом - MR Group, предлагая 25 объектов общей площадью 2,1 млн м в ключевых бизнес-локациях Москвы.
16.01.2026
20 087 406 ₽
Бизнес-центр LINK представляет собой многофункциональный кластер, объединяющий современные офисы класса B+ и складские помещения для эффективной работы в одном месте. LINK расположен на западе Москвы в районе Очаково-Матвеевское. Благодаря такому расположению до любой точки Москвы можно добраться всего за 20 минут. Это особенно ценно для компаний, в чьей операционной модели ключевую роль играет логистика.
Транспортная доступность:
- 1 минута до МКАД, СЗХ
- 5 минут до Можайского шоссе
- 2 минуты до Проспекта Генерала Дорохова
- 20 минут до ТТК
- Ближайшие станции метро: «Озерная», «Мичуринский проспект», «Говорово»
Характеристики:
- Общая офисная площадь: 48 800 м
- Две офисные башни: NEO и RUNE
- Офисы различного масштаба: от 71 до 1 538 м
- Количество машино-мест: 170
- Срок сдачи: 4 квартал 2028
Условия продажи:
Все офисы сдаются без отделки, что позволяет арендаторам спроектировать и реализовать интерьер под свои конкретные бизнес-задачи и корпоративную культуру. Помимо реализации на условиях полной предоплаты, предусмотрена возможность удобной рассрочки.
О компании MR Group:
MR Group - один из ведущих девелоперов России, который на протяжении 22 лет формирует ключевые принципы, определяющие каждое новое пространство. Компания известна смелыми архитектурными и инженерными решениями, сотрудничеством с мировыми дизайн-бюро и культурными институциями, а также внедрением передовых экологичных технологий. В 2025 году MR объединяет свои проекты офисной недвижимости под новым брендом - MR Group, предлагая 25 объектов общей площадью 2,1 млн м в ключевых бизнес-локациях Москвы.
16.01.2026
21 451 584 ₽
Бизнес-центр LINK представляет собой многофункциональный кластер, объединяющий современные офисы класса B+ и складские помещения для эффективной работы в одном месте. LINK расположен на западе Москвы в районе Очаково-Матвеевское. Благодаря такому расположению до любой точки Москвы можно добраться всего за 20 минут. Это особенно ценно для компаний, в чьей операционной модели ключевую роль играет логистика.
Транспортная доступность:
- 1 минута до МКАД, СЗХ
- 5 минут до Можайского шоссе
- 2 минуты до Проспекта Генерала Дорохова
- 20 минут до ТТК
- Ближайшие станции метро: «Озерная», «Мичуринский проспект», «Говорово»
Характеристики:
- Общая офисная площадь: 48 800 м
- Две офисные башни: NEO и RUNE
- Офисы различного масштаба: от 71 до 1 538 м
- Количество машино-мест: 170
- Срок сдачи: 4 квартал 2028
Условия продажи:
Все офисы сдаются без отделки, что позволяет арендаторам спроектировать и реализовать интерьер под свои конкретные бизнес-задачи и корпоративную культуру. Помимо реализации на условиях полной предоплаты, предусмотрена возможность удобной рассрочки.
О компании MR Group:
MR Group - один из ведущих девелоперов России, который на протяжении 22 лет формирует ключевые принципы, определяющие каждое новое пространство. Компания известна смелыми архитектурными и инженерными решениями, сотрудничеством с мировыми дизайн-бюро и культурными институциями, а также внедрением передовых экологичных технологий. В 2025 году MR объединяет свои проекты офисной недвижимости под новым брендом - MR Group, предлагая 25 объектов общей площадью 2,1 млн м в ключевых бизнес-локациях Москвы.
16.01.2026
21 222 432 ₽
Бизнес-центр LINK представляет собой многофункциональный кластер, объединяющий современные офисы класса B+ и складские помещения для эффективной работы в одном месте. LINK расположен на западе Москвы в районе Очаково-Матвеевское. Благодаря такому расположению до любой точки Москвы можно добраться всего за 20 минут. Это особенно ценно для компаний, в чьей операционной модели ключевую роль играет логистика.
Транспортная доступность:
- 1 минута до МКАД, СЗХ
- 5 минут до Можайского шоссе
- 2 минуты до Проспекта Генерала Дорохова
- 20 минут до ТТК
- Ближайшие станции метро: «Озерная», «Мичуринский проспект», «Говорово»
Характеристики:
- Общая офисная площадь: 48 800 м
- Две офисные башни: NEO и RUNE
- Офисы различного масштаба: от 71 до 1 538 м
- Количество машино-мест: 170
- Срок сдачи: 4 квартал 2028
Условия продажи:
Все офисы сдаются без отделки, что позволяет арендаторам спроектировать и реализовать интерьер под свои конкретные бизнес-задачи и корпоративную культуру. Помимо реализации на условиях полной предоплаты, предусмотрена возможность удобной рассрочки.
О компании MR Group:
MR Group - один из ведущих девелоперов России, который на протяжении 22 лет формирует ключевые принципы, определяющие каждое новое пространство. Компания известна смелыми архитектурными и инженерными решениями, сотрудничеством с мировыми дизайн-бюро и культурными институциями, а также внедрением передовых экологичных технологий. В 2025 году MR объединяет свои проекты офисной недвижимости под новым брендом - MR Group, предлагая 25 объектов общей площадью 2,1 млн м в ключевых бизнес-локациях Москвы.
16.01.2026
21 451 584 ₽
Бизнес-центр LINK представляет собой многофункциональный кластер, объединяющий современные офисы класса B+ и складские помещения для эффективной работы в одном месте. LINK расположен на западе Москвы в районе Очаково-Матвеевское. Благодаря такому расположению до любой точки Москвы можно добраться всего за 20 минут. Это особенно ценно для компаний, в чьей операционной модели ключевую роль играет логистика.
Транспортная доступность:
- 1 минута до МКАД, СЗХ
- 5 минут до Можайского шоссе
- 2 минуты до Проспекта Генерала Дорохова
- 20 минут до ТТК
- Ближайшие станции метро: «Озерная», «Мичуринский проспект», «Говорово»
Характеристики:
- Общая офисная площадь: 48 800 м
- Две офисные башни: NEO и RUNE
- Офисы различного масштаба: от 71 до 1 538 м
- Количество машино-мест: 170
- Срок сдачи: 4 квартал 2028
Условия продажи:
Все офисы сдаются без отделки, что позволяет арендаторам спроектировать и реализовать интерьер под свои конкретные бизнес-задачи и корпоративную культуру. Помимо реализации на условиях полной предоплаты, предусмотрена возможность удобной рассрочки.
О компании MR Group:
MR Group - один из ведущих девелоперов России, который на протяжении 22 лет формирует ключевые принципы, определяющие каждое новое пространство. Компания известна смелыми архитектурными и инженерными решениями, сотрудничеством с мировыми дизайн-бюро и культурными институциями, а также внедрением передовых экологичных технологий. В 2025 году MR объединяет свои проекты офисной недвижимости под новым брендом - MR Group, предлагая 25 объектов общей площадью 2,1 млн м в ключевых бизнес-локациях Москвы.
16.01.2026
20 952 072 ₽
Продается деловой центр "Успенский" общей площадью 1810 м2. на земельном участке 1276 м.кв.
Объект и земля находятся в собственности.
Этажей в здании 4, + мансардное и подвальное помещение, всего 60 помещений, все заняты арендаторами.
МАП по запросу.
здание можно переоборудовать под гостиницу, ВРИ позволяет.
Здание построено из кирпича и отделано снаружи вентилируемым фасадом, внутри отштукатурено и покрашено, на полу плитка, потолки подвесные.
На каждом этаже сан. узел., отдельное помещение под оборудование для вытяжки и электрооборудования, все оборудование в отличном состоянии.
Весь штат сотрудников обслуживающих оборудование и помещение есть.
Отдельный вход в здание с улицы и со двора.
Здание охраняется ЧОП.
В здании: отличная приточная вентиляция, центральное отопление, гидрантная система пожаротушения, центральное водоснабжение, 400 кВт электроэнергии.
Парковка автомобилей - как наземная внутри участка, так и вдоль дороги, парковка на 10 машиномест.
7 мин. транспортом от м. Красногорская, в 8 км от МКАД.
Быстрый выход на сделку.
17.02.2026
190 000 000 ₽
Адрес: Московская область, Шаховской район, с/п Раменское, д. Аксаково, д. 61
Площадь участка: 700 м2.
Кадастровый номер: 50:06:0040301:413
Категория земельного участка: земли населенных пунктов
Вид разрешенного использования: склады, можно под производство, автосервис.
От собственника.
Сдается земельный участок в д. Аксаково и расположенные на нем постройки.
9 км до пгт. Шаховская.
Площадь участка - 700 м2.
На территории находятся кирпичное здание площадью 342 м2, ранее использовавшееся, как склад минеральных удобрений, а также пристройка для охраны. Здание требует ремонта кровли и угла примыкающих к нему стен.
Участок ровный, подключены коммуникации (магистральный газ, электричество 150 кВт) и видеонаблюдение, забор по периметру.
Удобная транспортная развязка, асфальтированный подъезд к участку.
03.12.2025
50 000 ₽
Предлагается к продаже от собственника объект коммерческой недвижимости по адресу: МО, г. Ступино, ул. Тургенева 21. Объект с действующими арендаторами включает в себя: Земельный участок площадью 0,05 Га (пять соток) земли населенных пунктов и одноэтажное капитальное кирпичное здание площадью 187,4 квадратных метров. Есть техническая возможность строительства двух этажей и увеличения капитализации объекта. Стоимость объекта 21 миллион рублей. Договоры с арендаторами на 11 месяцев с правом продления.
17.02.2026
21 000 000 ₽
ОФИС В БАШНЕ B | RUBLEVO BUSINESS PARK
Класс А | Победитель премии Move Realty Awards в номинации «Лучший проект для инвестиций»
Инвестируйте в офис с максимальным потенциалом роста - в новом бизнес-центре Rublevo Business Park. Современный проект А-класса на Новорижском направлении: высокий спрос, редкие форматы, идеальная транспортная доступность.
Преимущества объекта
Свободная планировка от 50 до 4000 м - возможность адаптации под любые задачи бизнеса.
Высота потолков от 4,05 до 6,03 м - создаёт ощущение простора, идеально для открытых пространств, шоурумов и двухуровневых решений.
Частные террасы - уникальный формат на офисном рынке Москвы.
Панорамное угловое остекление - естественный свет в течение всего дня и впечатляющие виды.
Shell & Core - гибкость в проектировании интерьера под себя.
Архитектура и инженерия
Класс А - соответствие высоким стандартам по инфраструктуре, инженерным системам и управлению зданием.
Гранд-лобби 1500 м, высота 9 м - знаковое пространство с интерьерами от бюро UNK corporate interiors.
22 скоростных лифта - бесшумные и быстрые, рассчитаны на интенсивный трафик.
Современные инженерные системы - высокий уровень комфорта и энергоэффективности.
Локация и транспорт
2 минуты до Новорижского шоссе и проспекта Маршала Жукова - быстрый выезд на ключевые магистрали.
8 минут до м. Строгино, 500 м до будущей м. Липовая роща (открытие до 2027 года) - отличная доступность как на авто, так и на общественном транспорте.
Условия покупки
Продажа по ДДУ (214-ФЗ) через эскроу-счета
Проектное финансирование от Сбербанка
Возможна рассрочка
Возврат НДС 22%
Инвестиционная привлекательность
Ожидаемый рост капитализации с открытием метро
Возможность сдачи по блокам или этажом целиком
ROI: 9-12%
________________________________________
Адрес объекта: МКАД, 64 км
05.02.2026
46 739 068 ₽
ОФИС В БАШНЕ B | RUBLEVO BUSINESS PARK
Класс А | Победитель премии Move Realty Awards в номинации «Лучший проект для инвестиций»
Инвестируйте в офис с максимальным потенциалом роста - в новом бизнес-центре Rublevo Business Park. Современный проект А-класса на Новорижском направлении: высокий спрос, редкие форматы, идеальная транспортная доступность.
Преимущества объекта
Свободная планировка от 50 до 4000 м - возможность адаптации под любые задачи бизнеса.
Высота потолков от 4,05 до 6,03 м - создаёт ощущение простора, идеально для открытых пространств, шоурумов и двухуровневых решений.
Частные террасы - уникальный формат на офисном рынке Москвы.
Панорамное угловое остекление - естественный свет в течение всего дня и впечатляющие виды.
Shell & Core - гибкость в проектировании интерьера под себя.
Архитектура и инженерия
Класс А - соответствие высоким стандартам по инфраструктуре, инженерным системам и управлению зданием.
Гранд-лобби 1500 м, высота 9 м - знаковое пространство с интерьерами от бюро UNK corporate interiors.
22 скоростных лифта - бесшумные и быстрые, рассчитаны на интенсивный трафик.
Современные инженерные системы - высокий уровень комфорта и энергоэффективности.
Локация и транспорт
2 минуты до Новорижского шоссе и проспекта Маршала Жукова - быстрый выезд на ключевые магистрали.
8 минут до м. Строгино, 500 м до будущей м. Липовая роща (открытие до 2027 года) - отличная доступность как на авто, так и на общественном транспорте.
Условия покупки
Продажа по ДДУ (214-ФЗ) через эскроу-счета
Проектное финансирование от Сбербанка
Возможна рассрочка
Возврат НДС 22%
Инвестиционная привлекательность
Ожидаемый рост капитализации с открытием метро
Возможность сдачи по блокам или этажом целиком
ROI: 9-12%
________________________________________
Адрес объекта: МКАД, 64 км
05.02.2026
44 306 073 ₽




















