Продать квартиру в Лотошино - Страница 13
- Лотошино »
- Недвижимость
- » Квартиры
- » Продажа квартир в Лотошино
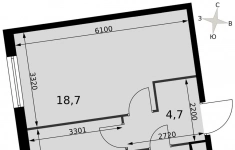
О квартире
Продаётся однокомнатная квартира общей площадью 35.60 кв. м. без отделки. Квартира на 13 этаже корпуса 5.6 в жилом комплексе бизнес-класса «Среда на Лобачевского». До метро «Аминьевская» 7 минут пешком.
Развитый район с удобным выездом
«Среда на Лобачевского» строится рядом с Аминьевским и Очаковским шоссе, отсюда можно доехать до МКАД или Ленинского проспекта за 10 минут. В районе уже есть всё для жизни: рестораны, кофейни, торговые центры, поликлиники и спортивные комплексы, школы и сады, бульвары и парки.
- 7 минут ходьбы до станции метро «Аминьевская».
- 15 минут пешком до станции МЦД-4 «Очаково».
- 8-15 минут на машине до Кутузовского проспекта и ТТК.
- До 15 минут езды до заказников «Долина реки Сетунь» и «Воробьёвы горы».
О жилом комплексе
«Среда на Лобачевского» - новый квартал в парадном стиле старой Москвы. Благодаря разноэтажной застройке во дворе комплекса будет много света и воздуха, без ощущения замкнутого пространства. Во дворе лаунж-зоны для медитации и работы, площадки для игр и кинопоказов, а на первых этажах - кофейни и магазины.
Особенности
- Высота потолков до 3,24 метра.
- Панорамное остекление в пол.
- Квартиры с террасами, мастер-спальнями и сквозными планировками.
- Дизайнерские гранд-лобби в каждом корпусе.
- Ландшафтный парк с зонами отдыха у воды.
- Коворкинг на свежем воздухе.
- Локации для спорта, игр и приватного отдыха.
- Соседский бульвар с площадкой для подростков.
- Подземный паркинг с двумя въездами.
- Система бесключевого доступа.
- Стрит-ритейл на первых этажах.
График работы в праздничные дни:
9 мая - выходной
10 и 11 мая - с 9: 00 до 18: 00
С 12 мая - в прежнем режиме
15.04.2026
23 691 800 ₽
О квартире
Продаётся однокомнатная квартира общей площадью 50.70 кв. м. с отделкой White Box. Квартира на 2 этаже корпуса 5.2 в жилом комплексе бизнес-класса «Среда на Лобачевского». До метро «Аминьевская» 7 минут пешком.
Развитый район с удобным выездом
«Среда на Лобачевского» строится рядом с Аминьевским и Очаковским шоссе, отсюда можно доехать до МКАД или Ленинского проспекта за 10 минут. В районе уже есть всё для жизни: рестораны, кофейни, торговые центры, поликлиники и спортивные комплексы, школы и сады, бульвары и парки.
- 7 минут ходьбы до станции метро «Аминьевская».
- 15 минут пешком до станции МЦД-4 «Очаково».
- 8-15 минут на машине до Кутузовского проспекта и ТТК.
- До 15 минут езды до заказников «Долина реки Сетунь» и «Воробьёвы горы».
О жилом комплексе
«Среда на Лобачевского» - новый квартал в парадном стиле старой Москвы. Благодаря разноэтажной застройке во дворе комплекса будет много света и воздуха, без ощущения замкнутого пространства. Во дворе лаунж-зоны для медитации и работы, площадки для игр и кинопоказов, а на первых этажах - кофейни и магазины.
Особенности
- Высота потолков до 3,24 метра.
- Панорамное остекление в пол.
- Квартиры с террасами, мастер-спальнями и сквозными планировками.
- Дизайнерские гранд-лобби в каждом корпусе.
- Ландшафтный парк с зонами отдыха у воды.
- Коворкинг на свежем воздухе.
- Локации для спорта, игр и приватного отдыха.
- Соседский бульвар с площадкой для подростков.
- Подземный паркинг с двумя въездами.
- Система бесключевого доступа.
- Стрит-ритейл на первых этажах.
График работы в праздничные дни:
9 мая - выходной
10 и 11 мая - с 9: 00 до 18: 00
С 12 мая - в прежнем режиме
09.04.2026
31 018 260 ₽
Продается 2-комн. квартира, площадью 59.4 м2.
Жилая площадь 29.7 кв. м, кухня 12.2 кв. м, ремонта нет, окна выходят во двор и на улицу.
Квартира располагается на 11 этаже 13-этажного панельного дома в ЖК 1-й Ленинградский.
Дом оборудован пассажирским лифтом.
02.04.2026
18 146 106 ₽
Продается 3-комн. квартира, площадью 76.2 кв.м.
Жилая площадь 43.9 м2, кухня 12.2 кв. м, ремонта нет, окна выходят во двор и на улицу.
Квартира располагается на 10 этаже 13-этажного панельного дома в ЖК 1-й Ленинградский.
Дом оборудован пассажирским лифтом.
02.04.2026
20 431 963 ₽
Продается 2-комн. квартира, площадью 59.4 м2.
Жилая площадь 29.7 кв. м, кухня 12.2 кв. м, ремонта нет, окна выходят во двор и на улицу.
Квартира располагается на 12 этаже 13-этажного панельного дома в ЖК 1-й Ленинградский.
Дом оборудован пассажирским лифтом.
02.04.2026
18 146 106 ₽
Продается 3-комн. квартира, площадью 76.4 м2.
Жилая площадь 43.9 м2, кухня 12.2 кв. м, ремонта нет, окна выходят во двор и на улицу.
Квартира располагается на 14 этаже 14-этажного панельного дома в ЖК 1-й Ленинградский.
Дом оборудован пассажирским лифтом.
02.04.2026
20 554 809 ₽
Продается 3-комн. квартира, площадью 76.1 кв.м.
Жилая площадь 43.7 м2, кухня 12.2 кв. м, ремонта нет, окна выходят во двор и на улицу.
Квартира располагается на 14 этаже 14-этажного панельного дома в ЖК 1-й Ленинградский.
Дом оборудован пассажирским лифтом.
02.04.2026
20 299 371 ₽
Продается 3-комн. квартира, площадью 76.1 м2.
Жилая площадь 43.7 м2, кухня 12.2 кв. м, ремонта нет, окна выходят во двор и на улицу.
Квартира располагается на 13 этаже 14-этажного панельного дома в ЖК 1-й Ленинградский.
Дом оборудован пассажирским лифтом.
02.04.2026
20 130 885 ₽
Продается 2-комн. квартира, площадью 53.2 м2.
Жилая площадь 25.5 м2, кухня 10.6 кв. м, ремонта нет, окна выходят во двор.
Квартира располагается на 10 этаже 14-этажного панельного дома в ЖК 1-й Ленинградский.
Дом оборудован пассажирским лифтом.
02.04.2026
17 540 838 ₽
Продается 3-комн. квартира, площадью 76.1 кв.м.
Жилая площадь 43.7 м2, кухня 12.2 кв. м, ремонта нет, окна выходят во двор и на улицу.
Квартира располагается на 9 этаже 14-этажного панельного дома в ЖК 1-й Ленинградский.
Дом оборудован пассажирским лифтом.
02.04.2026
19 962 400 ₽
Продается 3-комн. квартира, площадью 76.4 кв.м.
Жилая площадь 43.9 кв. м, кухня 12.2 кв. м, ремонта нет, окна выходят во двор и на улицу.
Квартира располагается на 8 этаже 14-этажного панельного дома в ЖК 1-й Ленинградский.
Дом оборудован пассажирским лифтом.
02.04.2026
20 216 510 ₽
Продается 2-комн. квартира, площадью 53.2 м2.
Жилая площадь 25.5 кв. м, кухня 10.6 кв. м, ремонта нет, окна выходят во двор.
Квартира располагается на 7 этаже 14-этажного панельного дома в ЖК 1-й Ленинградский.
Дом оборудован пассажирским лифтом.
02.04.2026
17 540 838 ₽
Продается 3-комн. квартира, площадью 84.1 кв.м.
Жилая площадь 46.3 м2, кухня 14.3 кв. м, ремонта нет, окна выходят во двор и на улицу.
Квартира располагается на 11 этаже 14-этажного панельного дома в ЖК 1-й Ленинградский.
Дом оборудован пассажирским лифтом.
02.04.2026
20 034 638 ₽
О квартире
Продаётся двухкомнатная квартира общей площадью 55.00 кв. м. с отделкой White Box. Квартира на 23 этаже корпуса 5.4 в жилом комплексе бизнес-класса «Среда на Лобачевского». До метро «Аминьевская» 7 минут пешком.
Развитый район с удобным выездом
«Среда на Лобачевского» строится рядом с Аминьевским и Очаковским шоссе, отсюда можно доехать до МКАД или Ленинского проспекта за 10 минут. В районе уже есть всё для жизни: рестораны, кофейни, торговые центры, поликлиники и спортивные комплексы, школы и сады, бульвары и парки.
- 7 минут ходьбы до станции метро «Аминьевская».
- 15 минут пешком до станции МЦД-4 «Очаково».
- 8-15 минут на машине до Кутузовского проспекта и ТТК.
- До 15 минут езды до заказников «Долина реки Сетунь» и «Воробьёвы горы».
О жилом комплексе
«Среда на Лобачевского» - новый квартал в парадном стиле старой Москвы. Благодаря разноэтажной застройке во дворе комплекса будет много света и воздуха, без ощущения замкнутого пространства. Во дворе лаунж-зоны для медитации и работы, площадки для игр и кинопоказов, а на первых этажах - кофейни и магазины.
Особенности
- Высота потолков до 3,24 метра.
- Панорамное остекление в пол.
- Квартиры с террасами, мастер-спальнями и сквозными планировками.
- Дизайнерские гранд-лобби в каждом корпусе.
- Ландшафтный парк с зонами отдыха у воды.
- Коворкинг на свежем воздухе.
- Локации для спорта, игр и приватного отдыха.
- Соседский бульвар с площадкой для подростков.
- Подземный паркинг с двумя въездами.
- Система бесключевого доступа.
- Стрит-ритейл на первых этажах.
График работы в праздничные дни:
9 мая - выходной
10 и 11 мая - с 9: 00 до 18: 00
С 12 мая - в прежнем режиме
02.04.2026
27 311 350 ₽
Продается 3-комн. квартира, площадью 84.1 м2.
Жилая площадь 46.3 кв. м, кухня 14.3 кв. м, ремонта нет, окна выходят во двор и на улицу.
Квартира располагается на 7 этаже 14-этажного панельного дома в ЖК 1-й Ленинградский.
Дом оборудован пассажирским лифтом.
02.04.2026
19 985 188 ₽
Продается 3-комн. квартира, площадью 84 м2.
Жилая площадь 46.3 м2, кухня 14.3 кв. м, ремонта нет, окна выходят во двор и на улицу.
Квартира располагается на 13 этаже 14-этажного панельного дома в ЖК 1-й Ленинградский.
Дом оборудован пассажирским лифтом.
02.04.2026
20 636 448 ₽
Продается 3-комн. квартира, площадью 84 кв.м.
Жилая площадь 46.3 кв. м, кухня 14.3 кв. м, ремонта нет, окна выходят во двор и на улицу.
Квартира располагается на 9 этаже 14-этажного панельного дома в ЖК 1-й Ленинградский.
Дом оборудован пассажирским лифтом.
02.04.2026
20 450 472 ₽
О квартире
Продаётся студия общей площадью 28.30 кв. м. без отделки. Квартира на 11 этаже корпуса 5.8 в жилом комплексе бизнес-класса «Среда на Лобачевского». До метро «Аминьевская» 7 минут пешком.
Развитый район с удобным выездом
«Среда на Лобачевского» строится рядом с Аминьевским и Очаковским шоссе, отсюда можно доехать до МКАД или Ленинского проспекта за 10 минут. В районе уже есть всё для жизни: рестораны, кофейни, торговые центры, поликлиники и спортивные комплексы, школы и сады, бульвары и парки.
- 7 минут ходьбы до станции метро «Аминьевская».
- 15 минут пешком до станции МЦД-4 «Очаково».
- 8-15 минут на машине до Кутузовского проспекта и ТТК.
- До 15 минут езды до заказников «Долина реки Сетунь» и «Воробьёвы горы».
О жилом комплексе
«Среда на Лобачевского» - новый квартал в парадном стиле старой Москвы. Благодаря разноэтажной застройке во дворе комплекса будет много света и воздуха, без ощущения замкнутого пространства. Во дворе лаунж-зоны для медитации и работы, площадки для игр и кинопоказов, а на первых этажах - кофейни и магазины.
Особенности
- Высота потолков до 3,24 метра.
- Панорамное остекление в пол.
- Квартиры с террасами, мастер-спальнями и сквозными планировками.
- Дизайнерские гранд-лобби в каждом корпусе.
- Ландшафтный парк с зонами отдыха у воды.
- Коворкинг на свежем воздухе.
- Локации для спорта, игр и приватного отдыха.
- Соседский бульвар с площадкой для подростков.
- Подземный паркинг с двумя въездами.
- Система бесключевого доступа.
- Стрит-ритейл на первых этажах.
График работы в праздничные дни:
9 мая - выходной
10 и 11 мая - с 9: 00 до 18: 00
С 12 мая - в прежнем режиме
02.04.2026
17 124 754 ₽
Продается 2-комн. квартира, площадью 59.4 м2.
Жилая площадь 29.5 м2, кухня 12.2 кв. м, ремонта нет, окна выходят во двор и на улицу.
Квартира располагается на 5 этаже 14-этажного панельного дома в ЖК 1-й Ленинградский.
Дом оборудован пассажирским лифтом.
02.04.2026
20 453 897 ₽
Продаётся 1-к квартира номер 592 общей площадью 40.7 кв.м. на 9-м этаже 16 этажного здания. Без отделки. Цена с учётом скидки.
Особенности квартиры:
-Планировка повышенной комфортности
-Идеальная планировка
-2 км от МКАД
-Двухуровневый двор без машин
- Раздельный санузел - больше удобства для всех членов семьи.
- Лоджия - уютное место для отдыха и тишины.
Квартира без отделки. Чистый холст для воплощения интерьера вашей мечты.
Информация о комплексе:
Архитекторы позаботились, чтобы красота и комфорт стали частью повседневной жизни жителя Римского квартала. Входные группы индивидуальны, однако в дизайне каждой угадывается итальянская любовь к декоративности и качественным отделочным материалам. Мы заботимся о свободном пространстве в вашей квартире, поэтому наличие кладовых позволит вам поддерживать идеальный порядок и уют в вашей квартире! На нижнем уровне комплекса проходят проезды, соединяющие весь квартал и расположены парковки. Дизайн подземных парковок с белоснежными колоннами вызывает ассоциации с историческим культурным слоем романской эпохи. Поэтому даже здесь вас не будет покидать ощущение особого места. Кладовые помещения находятся в каждой секции, доступ к ним осуществляется на современном лифте МЭЛ с пониженным уровнем шума. Бурная жизнь соседей больше не сможет нарушить ваш покой, а к вам никто не постучит, если вы захотите прибавить громкость в любимом музыкальном треке или Ваши дети захотят устроить ночную пробежку! Живите только по своим правилам.
Транспортная доступность:
Всего 2 км от МКАД, 15 минут на транспорте до метро «Домодедовская» и «Марьино»
Внутренняя инфраструктура:
Жителей Римского квартала отличает неспешность. В самом деле, зачем спешить, если все необходимое в шаговой доступности? Школа и детские садики расположены внутри квартала. Это значительно экономит время по утрам и позволяет спокойно насладиться завтраком даже в будни. Разнообразные кафе станут традиционным местом семейных бранчей по выходным или вечерних посиделок с друзьями.
02.04.2026
9 934 463 ₽
Продаётся 1-к квартира номер 1481 общей площадью 38.1 кв.м. на 10-м этаже 11.1 этажного здания. Без отделки. Цена с учётом скидки.
Особенности квартиры:
-Планировка повышенной комфортности
-Идеальная планировка
-2 км от МКАД
-Двухуровневый двор без машин
- Просторная кухня - место для семейных ужинов и кулинарных экспериментов.
Квартира без отделки. Чистый холст для воплощения интерьера вашей мечты.
Информация о комплексе:
Архитекторы позаботились, чтобы красота и комфорт стали частью повседневной жизни жителя Римского квартала. Входные группы индивидуальны, однако в дизайне каждой угадывается итальянская любовь к декоративности и качественным отделочным материалам. Мы заботимся о свободном пространстве в вашей квартире, поэтому наличие кладовых позволит вам поддерживать идеальный порядок и уют в вашей квартире! На нижнем уровне комплекса проходят проезды, соединяющие весь квартал и расположены парковки. Дизайн подземных парковок с белоснежными колоннами вызывает ассоциации с историческим культурным слоем романской эпохи. Поэтому даже здесь вас не будет покидать ощущение особого места. Кладовые помещения находятся в каждой секции, доступ к ним осуществляется на современном лифте МЭЛ с пониженным уровнем шума. Бурная жизнь соседей больше не сможет нарушить ваш покой, а к вам никто не постучит, если вы захотите прибавить громкость в любимом музыкальном треке или Ваши дети захотят устроить ночную пробежку! Живите только по своим правилам.
Транспортная доступность:
Всего 2 км от МКАД, 15 минут на транспорте до метро «Домодедовская» и «Марьино»
Внутренняя инфраструктура:
Жителей Римского квартала отличает неспешность. В самом деле, зачем спешить, если все необходимое в шаговой доступности? Школа и детские садики расположены внутри квартала. Это значительно экономит время по утрам и позволяет спокойно насладиться завтраком даже в будни. Разнообразные кафе станут традиционным местом семейных бранчей по выходным или вечерних посиделок с друзьями.
02.04.2026
9 628 403 ₽




















