Объявление о квартирах в Лотошино - Страница 13
- Лотошино »
- Недвижимость
- » Квартиры в Лотошино
О квартире
Продаётся однокомнатная квартира общей площадью 35.30 кв. м. с отделкой на выбор: черновая, White Box. Квартира на 13 этаже корпуса 5.2 в жилом комплексе бизнес-класса «Среда на Лобачевского». До метро «Аминьевская» 7 минут пешком.
Развитый район с удобным выездом
«Среда на Лобачевского» строится рядом с Аминьевским и Очаковским шоссе, отсюда можно доехать до МКАД или Ленинского проспекта за 10 минут. В районе уже есть всё для жизни: рестораны, кофейни, торговые центры, поликлиники и спортивные комплексы, школы и сады, бульвары и парки.
- 7 минут ходьбы до станции метро «Аминьевская».
- 15 минут пешком до станции МЦД-4 «Очаково».
- 8-15 минут на машине до Кутузовского проспекта и ТТК.
- До 15 минут езды до заказников «Долина реки Сетунь» и «Воробьёвы горы».
О жилом комплексе
«Среда на Лобачевского» - новый квартал в парадном стиле старой Москвы. Благодаря разноэтажной застройке во дворе комплекса будет много света и воздуха, без ощущения замкнутого пространства. Во дворе лаунж-зоны для медитации и работы, площадки для игр и кинопоказов, а на первых этажах - кофейни и магазины.
Особенности
- Высота потолков до 3,24 метра.
- Панорамное остекление в пол.
- Квартиры с террасами, мастер-спальнями и сквозными планировками.
- Дизайнерские гранд-лобби в каждом корпусе.
- Ландшафтный парк с зонами отдыха у воды.
- Коворкинг на свежем воздухе.
- Локации для спорта, игр и приватного отдыха.
- Соседский бульвар с площадкой для подростков.
- Подземный паркинг с двумя въездами.
- Система бесключевого доступа.
- Стрит-ритейл на первых этажах.
График работы в праздничные дни:
9 мая - выходной
10 и 11 мая - с 9: 00 до 18: 00
С 12 мая - в прежнем режиме
19.04.2026
25 461 890 ₽
Продаётся уютная 1-комнатная квартира площадью 39,5 кв. м на 15 этаже 15-этажного панельного дома. В квартире выполнен типовой ремонт, она полностью готова для проживания: остаются мебель и бытовая техника — стиральная машина, холодильник, телевизор, кондиционер и микроволновая печь. Проведён интернет.
Удобная планировка, совмещённый санузел, на полу паркет. Есть балкон, окна выходят на улицу, высота потолков — 2,7 м, что добавляет пространству воздуха и света.
Дом оснащён пассажирским и грузовым лифтами, предусмотрена наземная парковка. Хороший вариант как для собственного проживания, так и для сдачи в аренду.
Подъезд №1.
14.04.2026
6 800 000 ₽
Риэлторов просим не беспокоить, продаём сами, документы в порядке.
Продается 4-комн. квартира с европланировкой, площадью 121 м2 в 15 мин. пешком от м. Аэропорт, район Аэропорт в ЖК Аэробус. Очень редкое для этого ЖК предложение - 3 спальни!
Возможен вариант покупки с использованием ипотечных средств.
Не использовался мат. капитал. Квартира готова к сделке.
Жилая площадь 71 м2, кухня 12 кв.м. Площадь комнат: 17/16/14/24 м2, ремонт по авторскому проекту, комнаты изолированные.
Квартира меблированная, есть интернет и домашний телефон.
Раздельных санузлов - 1, совмещенных санузлов - 1. Премиальная сантехника.
На полу в комнатах паркетная доска в коридоре и на кухне - плитка с подогревом.
Прекрасный вид на Москву и на парке. Парк находится в 5 минутах ходьбы от дома .
Квартира располагается на 31 этаже 34-этажного монолитного дома, высота потолков 3 м.
12.04.2026
54 900 000 ₽
Объект реализуется на торгах в электронной форме.
Продается квартира общей площадью 83,7 кв. м по договору долевого участия, по адресу г. Москва, ул. Лобачевского, з/у 124/3А. Количество комнат - 4, расположена на 4 этаже из 29, состояние квартиры: без отделки. Есть подземная парковка.
ЖК Stories расположен на одной из самых престижных улиц Москвы - на улице
Мосфильмовская. На этой улице находятся главная кинематографическая площадка
страны – киноконцерн Мосфильм, посольства целого ряда государств, многие
премиальные жилые комплексы, а также Московский гольф-клуб.
Удобное расположение относительно метро Аминьевская. В шаговой доступности несколько парков с велодорожками и прогулочными аллеями. В самом ЖК просторные лобби с каминами, двор-патио с Wi-Fi, детский клуб, кафе, супермаркет, аптека, а также предусмотрен офисно-административный комплекс. Окружение Stories предлагает замечательный выбор образовательных учреждений, таких как: МГУ, МГИМО, МИРЭА, Академия ФСБ, РУДН, Институт нефти и газа, РАНХИГС.
Год завершения строительства здания - 2026.
Ознакомиться с документацией можно на электронной торговой площадке Росэлторг.
Ссылка на торги: https://www.roseltorg.ru/procedure/COM09042600147/1
Подать заявку на участие в торгах можно до 10.05.2026, 23:59 (МСК).
Начальная цена объекта: 55 812 411 руб.
11.04.2026
55 812 411 ₽
Продается 3-комн. квартира, площадью 68.3 кв.м.
Жилая площадь 35.6 кв. м, кухня 13.4 кв. м, ремонта нет, окна выходят во двор и на улицу.
Квартира располагается на 7 этаже 13-этажного панельного дома в ЖК 1-й Ленинградский.
Дом оборудован пассажирским лифтом.
11.04.2026
19 064 989 ₽
«Велтон Парк»: 6-ти комнатная квартира площадью 250м2 с дизайнерским ремонтом, панорамными окнами и умным домом.
В тихом престижном районе Москвы, среди зелени предлагается квартира, где всё уже продумано для проживания большой семьи с комфортом!
Общая гостиная с кухней 60 м2, мастер-спальня с двумя гардеробными и своим санузлом, отдельный кабинет и ещё три спальни. Потолки 3,1 м. Окна на три стороны — солнце с утра до вечера. Окна из массив дуба, итальянская фурнитура с замками на все окна (детская защита) с триплексом внутри (как в машине) и коленным стеклом снаружи - для тишины и безопасности (осколки не разлететься) . Пол- инженерная доска.
Умный дом - итальянская система Vimar (не ушли из России) - управление светом, шторами, тёплым полом, кондиционерами и музыкой с телефона.
Встроенная мультимедиа система «Sonos», акустика домашнего кинотеатра «Totem», акустика в потолке кабинета и санузлах
«Cary Audio».
Климат без сквозняков: кондиционеры «Daikin» с притоком уличного воздуха в каждой комнате + конвекторы в полу. Пожарная сигнализация «Болид».
Мелочи, которые вы оцените сразу:
Качественная стильная немецкая мебель из натурального дерева, а также встроенная мебель и отделка на заказ из шпона американского ореха;
Разумное дизайнерское решение при планировке квартиры по разделению зон - взрослой и детской;
Три машиноместа в подземном паркинге — прямо у лифта;
Автономный бойлер- горячая вода есть всегда, даже летом;
Отдельный постирочный блок и несколько гардеробных;
У всех спален есть выход на балкон;
Бытовая техника «Miele» под ключ: винный шкаф, духовка, кофемашина, два холодильника, вакумуатор, посудомойка, варочная плита и микроволновка.
Подъезд, куда не стыдно пригласить гостей: на этаже всего 4 квартиры.
Двор закрытый, машин нет. Детские и спортивные площадки, прогулочные аллеи - грамотно спроектированный внутренний двор, где вы можете видеть своих детей на прогулке из окна и с 4 этажа позвать на обед)
Рядом — «Хорошкола» (топ Forbes 2026) и школа №1517 с профильными классами: от IT и инженерного до медицинского и лингвистического.
Кафе, рестораны, торговый центр и кинотеатр «Патриот», «Азбука Вкуса», фитнес клуб - в пешей доступности.
Природа - выход из подъезда: Карамышевская набережная - утром пробежка, вечером кофе у воды. 5 минут до Серебряного бора: сосны, пляжи, воздух.
Транспорт для тех, кто ценит время: прямой выезд на проспект Маршала Жукова. ТТК - 7 минут, Сити - 10, Садовое - 15. Метро «Народное Ополчение» - 12 минут пешком.
Лучшее предложение для большой семьи в Москве, в квартире не проживали.
Видео и дополнительные фото- по запросу.
10.04.2026
140 000 000 ₽
Продается 2-комн. квартира, площадью 59.4 кв.м.
Жилая площадь 29.7 кв. м, кухня 12.2 кв. м, ремонта нет, окна выходят во двор и на улицу.
Квартира располагается на 13 этаже 13-этажного панельного дома в ЖК 1-й Ленинградский.
Дом оборудован пассажирским лифтом.
09.04.2026
18 353 115 ₽
Продается 2-комн. квартира, площадью 59.6 м2.
Жилая площадь 29.7 м2, кухня 12.2 кв. м, ремонта нет, окна выходят во двор и на улицу.
Квартира располагается на 7 этаже 14-этажного панельного дома в ЖК 1-й Ленинградский.
Дом оборудован пассажирским лифтом.
09.04.2026
17 779 634 ₽
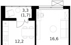
О квартире
Продаётся однокомнатная квартира общей площадью 35.80 кв. м. с отделкой на выбор: черновая, White Box. Квартира на 11 этаже корпуса 5.7 в жилом комплексе бизнес-класса «Среда на Лобачевского». До метро «Аминьевская» 7 минут пешком.
Развитый район с удобным выездом
«Среда на Лобачевского» строится рядом с Аминьевским и Очаковским шоссе, отсюда можно доехать до МКАД или Ленинского проспекта за 10 минут. В районе уже есть всё для жизни: рестораны, кофейни, торговые центры, поликлиники и спортивные комплексы, школы и сады, бульвары и парки.
- 7 минут ходьбы до станции метро «Аминьевская».
- 15 минут пешком до станции МЦД-4 «Очаково».
- 8-15 минут на машине до Кутузовского проспекта и ТТК.
- До 15 минут езды до заказников «Долина реки Сетунь» и «Воробьёвы горы».
О жилом комплексе
«Среда на Лобачевского» - новый квартал в парадном стиле старой Москвы. Благодаря разноэтажной застройке во дворе комплекса будет много света и воздуха, без ощущения замкнутого пространства. Во дворе лаунж-зоны для медитации и работы, площадки для игр и кинопоказов, а на первых этажах - кофейни и магазины.
Особенности
- Высота потолков до 3,24 метра.
- Панорамное остекление в пол.
- Квартиры с террасами, мастер-спальнями и сквозными планировками.
- Дизайнерские гранд-лобби в каждом корпусе.
- Ландшафтный парк с зонами отдыха у воды.
- Коворкинг на свежем воздухе.
- Локации для спорта, игр и приватного отдыха.
- Соседский бульвар с площадкой для подростков.
- Подземный паркинг с двумя въездами.
- Система бесключевого доступа.
- Стрит-ритейл на первых этажах.
График работы в праздничные дни:
9 мая - выходной
10 и 11 мая - с 9: 00 до 18: 00
С 12 мая - в прежнем режиме
15.04.2026
21 651 840 ₽
Просторная 5-комнатная квартира с дизайнерским ремонтом и высокими потолками. Отличный вариант для семьи, которая ценит комфорт и статусное расположение в престижном районе Москвы. Возможна ипотека.
Расположение и транспорт:
8 минут пешком от м. «Мичуринский проспект».
Район: Проспект Вернадского — один из самых зеленых и престижных районов Москвы.
Дом: 13-этажный (квартира на последних этажах — 12 и 13).
О квартире:
Формат: Двухуровневая квартира.
Площадь: 167 м2.
Планировка: 5 изолированных комнат — достаточно пространства для большой семьи, кабинета и гостевой зоны.
Высота потолков: 3.2 метра — создает ощущение воздуха и свободы.
Санузлы: 1 раздельный + 2 совмещенных — максимальное удобство для всех членов семьи.
Остекление: 2 лоджии, окна выходят на две стороны (во двор и на улицу).
Ремонт и состояние:
Качественный современный ремонт по авторскому проекту — можно въезжать и жить, не тратя время и деньги на отделку.
Покрытие полов: паркет и плитка.
Бонус: по договоренности можем оставить мебель — переезжайте с комфортом.
Условия продажи:
Цена: 73 480 000 руб. (прямая продажа от собственника).
Возможна ипотека — включая семейную (уточняйте условия).
Обременения: нет, чистая продажа.
Для просмотра:
Свяжитесь с нами, чтобы увидеть квартиру своими глазами и почувствовать атмосферу этого пространства. Готовы ответить на любые вопросы.
09.04.2026
73 480 000 ₽
Продается 2-комн. квартира, площадью 56.4 кв. м.
Жилая площадь 35 кв. м, кухня 15 кв. м, внутри евро ремонт, комнаты изолированные, интернет. Раздельных санузлов - 1, совмещенных санузлов - нет.
На полу ламинат, балконов - нет, лоджий - 1, окна выходят во двор и на улицу.
Квартира располагается на 10 этаже 18-этажного монолитно-кирпичного дома в ЖК Самолет 2018 года постройки, высота потолков 2.7 м. Частично мебелерована. Вся встроенная мебель остается (шкафы, кухня).
Дом оборудован грузовым и пассажирским лифтом, есть мусоропровод, закрытая территория.
Парковка автомобилей - наземная, есть гостевые парковочные места, парковка охраняемая. Обеспечение безопасности: консьерж. Инфраструктура: школа, детский сад, поликлиника, детские площадки, спортивные площадки, места для отдыха, супермаркет.
2 собственника, срок владения более 5 лет. Прямая свободная продажа.
10.04.2026
11 500 000 ₽
Продается 3-комн. квартира, площадью 84.3 кв.м.
Жилая площадь 39.3 м2, ремонта нет, окна выходят на улицу.
Квартира располагается на 5 этаже 17-этажного монолитного дома.
Дом оборудован пассажирским лифтом, есть мусоропровод, закрытая территория, парковка с охраной.
08.04.2026
51 652 296 ₽
Сдается в долгосрочную аренду новая двухкомнатная квартира люкс класса в центре Сергиева Посада без комиссии и без коммунальных платежей.
Абсолютно новая квартира после стильного дизайнерского ремонта. Никто ранее не проживал. Уют, комфорт и современный уровень — идеальное жильё для тех, кто ценит качество и тишину.
Преимущества:
люкс ремонт с продуманной планировкой и современным интерьером;
терраса — идеальное место для утреннего кофе или вечернего отдыха;
отопление и горячая вода круглогодично, стабильный комфорт;
всё — от мебели до техники — абсолютно новое.
Оснащение квартиры:
два телевизора Smart TV 65 — в гостиной и спальне, премиальное изображение и звук;
бытовая техника: холодильник, посудомоечная машина, духовой шкаф, варочная панель, микроволновая печь, стиральная машина;
мелкая бытовая техника: электрический чайник, утюг, беспроводной пылесос;
кухня полностью укомплектована — посуда, столовые приборы, кухонные принадлежности;
в ванной — новые полотенца и текстиль высокого качества.
Мебель и интерьер:
кровать с ортопедическим матрасом и новым комплектом постельного белья;
современный двухспальный мягкий диван, вместительные шкафы, обеденный стол на 4 персоны, мягкие стулья, современный дизайнерский кухонный гарнитур со всей встроенной техникой, стильное освещение и интерьерные детали, создающие атмосферу уюта.
Расположение:
Центр Сергиева Посада. Рядом магазины, кафе, парки, остановки, банки и транспорт — всё в шаговой доступности. Элитный район, отопление и горячая вода без перебоев.
Условия аренды:
только долгосрочно (от 6 месяцев и более);
строго для некурящих, без детей и животных;
оплата: месячная аренда + залог (в размере месячной оплаты);
коммунальные услуги включены.
Идеальный вариант для одного или двух взрослых, кто ищет современный комфорт и чистоту без компромиссов.
Редкое предложение! Новая люкс квартира в центре Сергиева Посада с террасой, двумя Smart TV 65, посудомоечной машиной, полотенцами, новой мебелью и постельным бельём, круглогодичным отоплением и горячей водой. Всё готово для вашего проживания — просто заезжайте и живите!
11.04.2026
89 000 ₽
Продается 2-комн. квартира, площадью 65.3 м2 в монолитно-кирпичной новостройке в 6 мин. пешком от м. Стрешнево, район города - Щукино. Возможен вариант покупки с использованием ипотечных средств, есть рассрочка, возможна покупка с использованием материнского капитала, есть военная ипотека.
Жилая площадь 28.9 м2, кухня 17.4 м2. Площадь комнат: 12.8/16.1 м2, квартира без отделки. Раздельных санузлов - 2.
Квартира располагается на 25 этаже 34-этажного дома в ЖК МОМЕНТС.
Застройщик - FORMA, сдача дома - I квартал 2027 года, высота потолков 2.87 м.
Дом оборудован пассажирским лифтом, закрытая территория.
Подземная парковка, парковка охраняется. Обеспечение безопасности: видеонаблюдение, круглосуточная охрана, консьерж, противопожарная система, пропускная система. Инфраструктура: школа, детский сад, поликлиника, детские площадки, спортивные площадки, места для отдыха, супермаркет, рестораны, пункты бытового обслуживания, коммерческие объекты.
Moments - это место единения города и природы, центр жизни, где зелень парка находится буквально на расстоянии вытянутой руки. Дом, который помогает обрести гармонию и баланс в жизни.
Moments расположился на северо-западе в одном и самых зеленых районов города рядом с парком Покровское-Стрешнево. Попасть в парк можно будет по благоустроенной тропе длиной 1250 метров. Богатая флора и фауна дополнят прогулку по этому экологическому освещенному променаду.
Жилой комплекс будет состоять из 8 корпусов высотой от 4 и до 47 этажей. Cтроительство разделено на три очереди, первая из которых, - корпус в 30 этажей с 330 квартирами - будет введена в эксплуатацию в 2025 году.
Архитектурный облик от одного из ведущих бюро KAMEN ARC'ITECTS. В отделке фасадов используются витражное остекление и композитные панели. Большинство квартир имеют вид на парк Покровское-Стрешнево.
Жилой комплекс выполнен с использованием монолитно-кирпичной технологии строительства. В комплексе 3 подъезда и максимальная этажность - 42 этажа. Минимальная этажность - 3 этажа. Комплекс имеет высокий класс энергоэффективности - A++.
Жилой комплекс расположен в районе Щукино города Москвы. В пешей доступности находится станция метро Стрешнево (7 минут) , также можно дойти до станции Войковская (20 минут) и Щукинская (21 минута) .
Аккредитованные банки: ВТБ
Альфа-Банк
Позвоните и узнайте условия покупки прямо сейчас!
07.04.2026
31 411 912 ₽
О квартире
Продаётся однокомнатная квартира общей площадью 50.60 кв. м. с отделкой на выбор: черновая, White Box. Квартира на 10 этаже корпуса 5.2 в жилом комплексе бизнес-класса «Среда на Лобачевского». До метро «Аминьевская» 7 минут пешком.
Развитый район с удобным выездом
«Среда на Лобачевского» строится рядом с Аминьевским и Очаковским шоссе, отсюда можно доехать до МКАД или Ленинского проспекта за 10 минут. В районе уже есть всё для жизни: рестораны, кофейни, торговые центры, поликлиники и спортивные комплексы, школы и сады, бульвары и парки.
- 7 минут ходьбы до станции метро «Аминьевская».
- 15 минут пешком до станции МЦД-4 «Очаково».
- 8-15 минут на машине до Кутузовского проспекта и ТТК.
- До 15 минут езды до заказников «Долина реки Сетунь» и «Воробьёвы горы».
О жилом комплексе
«Среда на Лобачевского» - новый квартал в парадном стиле старой Москвы. Благодаря разноэтажной застройке во дворе комплекса будет много света и воздуха, без ощущения замкнутого пространства. Во дворе лаунж-зоны для медитации и работы, площадки для игр и кинопоказов, а на первых этажах - кофейни и магазины.
Особенности
- Высота потолков до 3,24 метра.
- Панорамное остекление в пол.
- Квартиры с террасами, мастер-спальнями и сквозными планировками.
- Дизайнерские гранд-лобби в каждом корпусе.
- Ландшафтный парк с зонами отдыха у воды.
- Коворкинг на свежем воздухе.
- Локации для спорта, игр и приватного отдыха.
- Соседский бульвар с площадкой для подростков.
- Подземный паркинг с двумя въездами.
- Система бесключевого доступа.
- Стрит-ритейл на первых этажах.
График работы в праздничные дни:
9 мая - выходной
10 и 11 мая - с 9: 00 до 18: 00
С 12 мая - в прежнем режиме
10.04.2026
32 854 580 ₽
Продается 3-комн. квартира, площадью 101.1 кв. м м. Технопарк. Возможен вариант покупки с использованием ипотечных средств.
Жилая площадь 70.77 м2, кухня 15.17 кв. м, ремонта нет, комнаты изолированные, окна выходят на улицу.
Квартира располагается на 2 этаже 6-этажного монолитно-кирпичного дома, высота потолков 3.15 м.
09.04.2026
53 307 345 ₽
Продается 4-комн. квартира, площадью 136.1 кв. м м. Технопарк. Возможен вариант покупки с использованием ипотечных средств.
Жилая площадь 95.27 кв. м, кухня 20.42 кв. м, ремонта нет, комнаты изолированные, окна выходят на улицу.
Квартира располагается на 20 этаже 24-этажного монолитно-кирпичного дома, высота потолков 3.15 м.
07.04.2026
78 063 700 ₽
Продается 4-комн. квартира, площадью 136.2 м2 м. Технопарк. Возможен вариант покупки с использованием ипотечных средств.
Жилая площадь 95.34 м2, кухня 20.43 кв. м, ремонта нет, комнаты изолированные, окна выходят на улицу.
Квартира располагается на 19 этаже 24-этажного монолитно-кирпичного дома, высота потолков 3.15 м.
07.04.2026
77 762 852 ₽
Продается 5-комн. квартира, площадью 162 кв. м м. Технопарк. Возможен вариант покупки с использованием ипотечных средств.
Жилая площадь 113.4 м2, кухня 24.3 кв. м, ремонта нет, комнаты изолированные, окна выходят на улицу.
Квартира располагается на 18 этаже 24-этажного монолитно-кирпичного дома, высота потолков 3.15 м.
07.04.2026
99 268 503 ₽
Продается 5-комн. квартира, площадью 162.1 м2 м. Технопарк. Возможен вариант покупки с использованием ипотечных средств.
Жилая площадь 113.47 кв. м, кухня 24.32 кв. м, ремонта нет, комнаты изолированные, окна выходят на улицу.
Квартира располагается на 21 этаже 24-этажного монолитно-кирпичного дома, высота потолков 3.15 м.
07.04.2026
88 989 940 ₽
Продается 5-комн. квартира, площадью 162.2 м2 м. Технопарк. Возможен вариант покупки с использованием ипотечных средств.
Жилая площадь 113.54 м2, кухня 24.33 кв. м, ремонта нет, комнаты изолированные, окна выходят на улицу.
Квартира располагается на 20 этаже 24-этажного монолитно-кирпичного дома, высота потолков 3.15 м.
07.04.2026
98 487 120 ₽




















