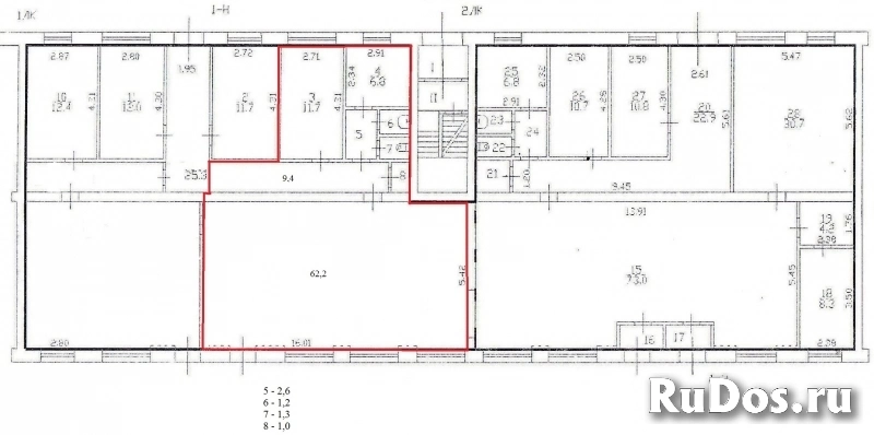
Аренда помещения свободного назначения 96,2 м², Петергоф
Объявление снято с публикации. Посмотреть другие объявления в этой категории
Размещено 27 февраля 2023
30
(+1)
0
Жалоба
- Параметры объявления
- Общая площадь (м2): 96.2
- Описание
Санкт-Петербург, Ломоносов, Верхний город
Комментарии остановлены!
