Продажа недвижимости в Лыткарино - Страница 6
- Лыткарино »
- Недвижимость в Лыткарино
Продается через электронные торги на площадке ЭТП ГПБ комплекс объектов асфальто-бетонного завода (в количестве 37 объектов), общей площадью 2294,3 кв.м.
В составе:
- Бытовое помещение: Площадь 62,7 м2, этажность 1, фундамент ж/б, материал стен кирпичные;
- Склад минерального порошка: Площадь 201,0 м2, кирпичные;
Лаборатория: Площадь 61,6 м2, этажность 1, фундамент ж/б, материал стен кирпичные;
- Камера переключения: Одноэтажное кирпичное здание, площадь застройки=62,4м2, объем=292м3;
- Центральный тепл. пункт: Площадь 36,7 м2, этажность 1, фундамент бетонный по ж/б сваям, материал стен кирпичные;
- Станция перекачки конденсата: Площадь 24,9 м2, этажность 1, фундамент бетонный по ж/б сваям, материал стен кирпичные, материал перекрытия - ж/б плиты;
- Склад заполнителей с козловым краном: Площадь 1845,0 м2, фундамент ж/б, стены бетонные;
- Труба дымовая: Труба стальная, диаметр=400мм. Высота=9м;
- Труба дымовая: Труба стальная, диаметр=400мм. Высота=9м;
Сети канализации: Диаметр трубопровода 219мм, длина участка-170м, материал труб- сталь;
- Ограждение: Материал ограждения -жб плиты. Материал столбов- сталь. Длина 228м, высота - 2м.;
- Проезды из ж/б плит: Материал покрытия жб плиты. Площадь покрытия- 4920м2;
- Сети тепловодоснабжения: Объект состоит из 4х участков. №1-диаметр трубопровода 325мм,длина участка-50м,материал труб- сталь;
- Сети газоснабжения: Диаметр трубопровода 57мм, длина участка-185м, материал труб -сталь;;
- Битумохранилище: Площадь 419,0 м2, этажность 1, фундамент ж/б, материал стен кирпичные, материал перекрытия ж/б плиты;
- Прожекторная мачта: Материал - труба стальная, диаметр = 500мм, высота =35м, одноствольная;
- Железнодорожный путь №1, № 2 от стрелочного пересечения. Объект состоит из марки рельса Р-65, длина 620м, тип шпал-деревянные. Тип балласта-щебеночный. Объем балласта 394м3;
- Станок СНС-12: Класс точности- н, габариты 750х350х980 мм, масса -120кг, наибольший диаметр- 12 мм. Двусторонний, обороты n=400об/мин;
- Станок заточный мод.332: Габариты, мм-665*650*1190 Класс точности-н ;
- Дымосос ДН-10 Комплектующее для ДС-158. Двигатель 30 Квт - 56 А - 1500 об/мин 4А180 М4У3 МАССА 280 кг. Предназначен для удаления отходящих газов и продуктов сгорания;
- Оборудование к цементному складу: Хранение сыпучих материалов в количестве 16 комплектов;
- Блок управления БУС-6 24_1526: Блок управления контроля качества. Масса 7 кг;
- Блок управления БУС-6: Блок управления контроля качества.
Масса -7 кг.
26.02.2026
8 706 733 ₽
Прямая продажа от застройщика! Кладовая номер 12К общей площадью 3.9 кв. м на -1-м этаже в ЖК «Sky Garden»
20.02.2026
1 081 970 ₽
Продается через электронные торги на площадке ЭТП ГПБ комплекс имущества энергоцентра в Московской области, расположенный по адресу:
Московская область, Люберецкий район, пос. Томилино, мкр-н Птицефабрика.
В состав имущества по генерации электроэнергии энергоцентра в р.п.Томилино, мкр.Птицефабрика входит 10 объектов движимого имущества и 7 объектов недвижимого имущества.
Объекты имущества расположены на принадлежащем АО «Газпром теплоэнерго» земельном участке с кадастровым номером: 50:22:0040404:9339 , общей площадью 3 500 кв. м.
Здание главного корпуса энергоцентра одно-двухэтажное, с металлическим каркасом, имеет прямоугольную в плане форму с размерами в осях 28,0Х35,0 м, общей высотой 12,33 м.
За условную отметку 0,000м принята отметка чистого пола машинного зала, что соответствует абсолютной отметке на местности +136,000 м.
Каркас здания включает в себя металлические колонны и балки перекрытий и покрытия. Устойчивость здания в поперечном направлении обеспечивается рамой с шарнирным креплением балок к колоннам наружных стен и жёстким креплением балок к колоннам среднего ряда.
Продольная устойчивость здания обеспечивается системой вертикальных связей у крайних колонн здания и горизонтальными распорками между колоннами по всей длине здания.
Дымовая труба энергоцентра. Самонесущая металлическая труба колонного типа жестко закреплена в фундаменте несущей оболочкой. Внутри расположены три стальных газоотводящих ствола диаметром 1 012 мм каждый, толщина стенки 6 мм, закрепленных на выдвижных связях к несущей оболочке. Высота ствола составляет 65000 мм. Наружный диметр трубы составляет 3000 мм, толщина несущей оболочки переменная по высоте и составляет 8-12 мм.
Энергоцентр оснащен тремя газопоршневыми установками (ГПУ) 18V32/40 PGI MAN Diesel & Turbo (Германия):
Год выпуска оборудования: 2007 г.
Год ввода в опытную эксплуатацию: 2013 г.
Паспортный срок службы: 20 лет.
ГПУ являются уникальным оборудованием – это дизельные судовые силовые установки 18V32/40 PGI производства компании MAN Deisel& Turbo (Германия), адаптированные к использованию природного газа мощностью 7,8 МВт каждая, с теплообменниками S110-IS мощностью 3,36 Гкал/час каждый, котлами утилизаторами AV-6N производства компании Aalborg мощностью 2,71 Гкал/час каждый.
Установленная мощность ГПУ ТЭЦ: электрическая 23,4 МВт, тепловая – 18,21 Гкал/час.
Наработка:
ГПУ № 1 - 12 951 час.
ГПУ № 2 - 16 880 час.
ГПУ № 3 - 12 954 час.
26.02.2026
585 851 660 ₽
Помещение свободного назначения от собственника.
По адресу: г. Москва, ул. Стрелецкая д. 18
Салон Красоты - "Черная кошка", действующий 7 лет
Клиентская база 3 000 человек
Подходит под любой вид деятельности.
1 эт. жилого 16-этажного дома, в шаговой доступности от метро (1я линия) - Марьина Роща
Общая площадь - 103 кв.м, из них - 30 кв. м - парикмахерский зал
Внутри: кондиционирование, вентиляция, отопление, водоснабжение, видеонаблюдение и электричество - 30 кВ.
5 отдельных кабинетов:
- Маникюр и педикюр
- Косметология
- Кабинет массажа
- Кабинет наращивания волос и ресниц
- Кабинет-зона отдыха
Дорогой дизайнерский ремонт.
Входная группа с отдельным светящимся деревом
На расстоянии 200 м. находится "Новый Джаз-квартал" по адресу 1-я Ямская д. 6, во дворе на расстоянии 100 м2 начал строится новый комплекс - 2 адм. здания с торговым центром в 3 этажа. Адрес 2-я Ямская д. 9.
Поэтому место-нахождение салона очень перспективное. Пешеходный трафик будет не только по Стрелецкой улице от метро, но и через двор к Торговому центру. Цена помещения вырастит в разы однозначно.
Стоимость - 37 600 000 руб, возможен торг
19.02.2026
37 600 000 ₽
Продается теплая и уютная 1-комнатная квартира у метро Академическая!
Идеальный вариант для жизни или инвестиций!
Предлагаем к продаже светлую, теплую квартиру в престижном районе, всего в 2 минутах ходьбы от станции метро "Академическая". Современный дом 2015 года постройки, улучшенная планировка, 5 этаж 19-ти этажного панельного дома. Высота потолков 2,78 метра создает ощущение простора. Комната с эркерным окном, пропускающим много естественного света. Застекленная лоджия – ваше личное пространство для отдыха.
Преимущества расположения:
- Транспортная доступность: 2 минуты пешком до метро "Академическая" (Калужско-Рижская и Троицкая линии). - Остановки общественного транспорта рядом. Удобный выезд на личном автомобиле в центр и область.
- Развитая инфраструктура: В шаговой доступности всё необходимое для комфортной жизни: детские сады, школы, поликлиники, магазины, торговые центры, рестораны, фитнес-центры, салоны красоты, банки.
- Видовые характеристики: Окна выходят на живописную площадь Хо Ши Мина.
Характеристики квартиры:
Площадь: 36 кв.м.
Комната с эркерным окном
Застекленная лоджия
Высокие потолки (2,78 м)
Современный дом (2015 г.п.)
Улучшенная планировка
Юридическая чистота:
Более 3 лет в собственности.
Полная стоимость в договоре.
Один взрослый собственник.
Без обременений и залогов.
Эта квартира – ваш шанс обрести уютное жилье в одном из лучших районов Москвы с отличной транспортной доступностью и развитой инфраструктурой. Звоните прямо сейчас, чтобы узнать подробности и договориться о просмотре!
18.02.2026
19 950 000 ₽
Прямая продажа от застройщика! Кладовая номер 85К общей площадью 5.4 кв. м на -2-м этаже в ЖК «Архитектор»
19.02.2026
1 301 400 ₽
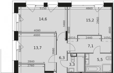
Продается 3-комн. квартира, площадью 71.2 кв.м.
Жилая площадь 41.6 м2, кухня 12 кв. м, ремонта нет, окна выходят на улицу.
Квартира располагается на 23 этаже 28-этажного монолитного дома.
Дом оборудован пассажирским лифтом, есть мусоропровод, закрытая территория, парковка охраняемая.
18.02.2026
40 167 124 ₽
Срочная Продажа!!!!
В южном направлении Подмосковья, в 70 км от Москвы по Симферопольскому скоростному шоссе, в Серпуховском районе, на берегу р. Нары в окружении смешанного леса построен необычный КП Волшебная страна с развитой инфраструктурой, выполненный в едином архитектурном стиле по мотивам сказок Александра Волкова.
Только здесь Вы узнаете, каково жить в настоящем двухэтажном бревенчатом доме, общей площадью 250 кв м. При этом Вам не придется отказываться от городских удобств: в доме проведены все коммуникации: газопровод, центральный водопровод, септик, электричество 15 кВт. Дом внутри выполнен в светлых оттенках, что создаёт ему воздушность, неповторимую легкость и очарование прованского стиля.
По планировке в доме на 1 этаже прихожая, просторная кухня-гостиная, с/у с гардеробной, спальня и выход на шикарную террасу, с которой открывается вид не только на участок, но и на поселок.
На 2-ом этаже расположены 2 спальни, с/у с гардеробной и уютный уголок для посиделок с книгой или разговоров в приятной компании.
Этот очаровательный дом расположен на ухоженном участке в 16 соток, на котором посажены плодовые деревья и кустарники, разнообразие цветов, близость леса создаёт неповторимый шарм и уют, а пение птиц никого не оставят равнодушным. Если есть необходимость в доме можно прописаться.
Планировка поселка отличается оригинальными решениями: территория разделена на 3 уникальных квартала.
- В Розовой стране находится прогулочная зона: ресторан с танцевальной площадкой, уютная гостиница, спортивные сооружения, беседки для барбекю, пляжи с песком вдоль р. Нары.
- Центральный въезд, гостевая парковка, административный корпус с оборудованным медпунктом, детские и спортивные площадки для игр и физического развития, а уникальные скульптуры сказочных персонажей станут прекрасным дополнением очаровательному пейзажу - всё это Вы найдете на территории Желтой страны.
- В Изумрудном городе, окруженном лесом, царят тишина и покой, которые располагают благоприятными условиями для спокойной семейной жизни и отдыха на природе.
За безопасностью жителей КП Волшебной страны днем и ночью следит собственная профессиональная служба охраны. Территория поселка огорожена, по периметру установлены устройства видеонаблюдения. Въезд в поселок осуществляется через контрольно-пропускные пункты. В темное время суток территория освещается уличными фонарями и патрулируется.
Коммунальные платежи удивят вас доступностью и минимальностью.
18.02.2026
20 600 000 ₽
ОФИС В БАШНЕ A | RUBLEVO BUSINESS PARK
Класс А |
Победитель премии Move Realty Awards в номинации «Лучший проект для инвестиций»
Инвестируйте в офис с максимальным потенциалом роста - в новом бизнес-центре Rublevo Business Park. Современный проект А-класса на Новорижском направлении: высокий спрос, редкие форматы, идеальная транспортная доступность.
Преимущества объекта
Свободная планировка от 50 до 4000 м - возможность адаптации под любые задачи бизнеса.
Высота потолков от 4,05 до 6,03 м - создаёт ощущение простора, идеально для открытых пространств, шоурумов и двухуровневых решений.
Частные террасы - уникальный формат на офисном рынке Москвы.
Панорамное угловое остекление - естественный свет в течение всего дня и впечатляющие виды.
Shell & Core - гибкость в проектировании интерьера под себя.
Архитектура и инженерия
Класс А - соответствие высоким стандартам по инфраструктуре, инженерным системам и управлению зданием.
Гранд-лобби 1500 м, высота 9 м - знаковое пространство с интерьерами от бюро UNK corporate interiors.
22 скоростных лифта - бесшумные и быстрые, рассчитаны на интенсивный трафик.
Современные инженерные системы - высокий уровень комфорта и энергоэффективности.
Локация и транспорт
2 минуты до Новорижского шоссе и проспекта Маршала Жукова - быстрый выезд на ключевые магистрали.
8 минут до м. Строгино, 500 м до будущей м. Липовая роща (открытие до 2027 года) - отличная доступность как на авто, так и на общественном транспорте.
Условия покупки
Продажа по ДДУ (214-ФЗ) через эскроу-счета
Проектное финансирование от Сбербанка
Возможна рассрочка
Возврат НДС 22%
Инвестиционная привлекательность
Ожидаемый рост капитализации с открытием метро
Возможность сдачи по блокам или этажом целиком
ROI: 9-12%
________________________________________
Адрес объекта: МКАД, 64 км
25.02.2026
23 222 204 ₽
Продается 3-комн. квартира, площадью 84.3 м2.
Жилая площадь 39.3 кв. м, ремонта нет, окна выходят на улицу.
Квартира располагается на 10 этаже 17-этажного монолитного дома.
Дом оборудован пассажирским лифтом, есть мусоропровод, закрытая территория, парковка охраняемая.
18.02.2026
53 414 335 ₽
ПРОДАЕТСЯ 1-КОМНАТНАЯ КВАРТИРА В ЖИЛОМ КОМПЛЕКСЕ КОМФОРТ-КЛАССА (г. Одинцово)
Адрес: Московская область, г. Одинцово, ул. Белорусская, д. 2
Этаж: 12 (из 11) — верхний этаж, потрясающий вид и тишина.
Общяя площадь 42,4
Высота потолков 2,88
Просторная и функциональная планировка, от застройщика под отделку.
ОПИСАНИЕ И ПРЕИМУЩЕСТВА
СВЕТЛАЯ И УЮТНАЯ КВАРТИРА С ПРЕКРАСНЫМ ВИДОМ
Просторная 1-комнатная квартира на верхнем этаже современного монолитного дома. Большая жилая площадь (40 м2) позволяет организовать комфортное пространство как для одного человека, так и для пары.
КАЧЕСТВЕННЫЙ ДОМ (2015 ГОДА ПОСТРОЙКИ)
Тип дома: Монолитный (высокая тепло- и звукоизоляция)
Год постройки: 2015 (относительно новый дом, без проблем старых построек)
Лифт: Пассажирский (удобство для всех жильцов)
Мусоропровод: Наличие (чистота и комфорт)
УДОБНАЯ ЛОКАЦИЯ (Одинцово, ул. Белорусская)
Тихий и зеленый район с развитой инфраструктурой
В шаговой доступности магазины, аптеки, школы, детские сады
Хорошая транспортная доступность до Москвы и областных трасс
СТОИМОСТЬ
Цена: 9 850 000 рублей
Это отличное предложение для квартиры с такой жилой площадью и качественным домом!
ДЛЯ КОГО ЭТА КВАРТИРА?
Для тех, кто ценит простор — огромная жилая площадь для однушки
Для семейной пары или инвестора
Для любителей верхних этажей и красивых видов из окна
18.02.2026
9 850 000 ₽
Продается 3-комн. квартира, площадью 77.3 кв.м.
Жилая площадь 43.1 м2, кухня 12 кв. м, ремонта нет, окна выходят на улицу.
Квартира располагается на 14 этаже 28-этажного монолитного дома.
Дом оборудован пассажирским лифтом, есть мусоропровод, закрытая территория, парковка охраняется.
18.02.2026
42 130 046 ₽
Продается 3-комн. квартира, площадью 69.4 кв.м.
Жилая площадь 40.6 м2, кухня 11.6 кв. м, ремонта нет, окна выходят на улицу.
Квартира располагается на 4 этаже 28-этажного монолитного дома.
Дом оборудован пассажирским лифтом, есть мусоропровод, закрытая территория, парковка охраняемая.
18.02.2026
39 977 523 ₽
Продается 3-комн. квартира, площадью 76.2 м2.
Жилая площадь 43 м2, кухня 11.8 кв. м, ремонта нет, окна выходят на улицу.
Квартира располагается на 4 этаже 28-этажного монолитного дома.
Дом оборудован пассажирским лифтом, есть мусоропровод, закрытая территория, парковка охраняемая.
18.02.2026
39 431 976 ₽
Продается 2-комн. квартира, площадью 65.9 кв.м.
Жилая площадь 31.6 кв. м, кухня 12.4 кв. м, ремонта нет, окна выходят на улицу.
Квартира располагается на 20 этаже 47-этажного монолитного дома.
Дом оборудован пассажирским лифтом, есть мусоропровод, закрытая территория, парковка охраняемая.
18.02.2026
41 036 589 ₽
Продается 4-комн. квартира, площадью 135.8 кв.м.
Жилая площадь 66.4 м2, кухня 14.9 кв. м, ремонта нет, окна выходят на улицу.
Квартира располагается на 35 этаже 37-этажного монолитного дома.
Дом оборудован пассажирским лифтом, есть мусоропровод, закрытая территория, парковка охраняется.
18.02.2026
105 910 420 ₽
Продается 4-комн. квартира, площадью 100.1 м2.
Жилая площадь 57.5 м2, кухня 15.3 кв. м, ремонта нет, окна выходят на улицу.
Квартира располагается на 30 этаже 37-этажного монолитного дома.
Дом оборудован пассажирским лифтом, есть мусоропровод, закрытая территория, парковка охраняется.
18.02.2026
60 623 063 ₽
Продается 3-комн. квартира, площадью 66.2 кв.м.
Жилая площадь 29.4 кв. м, ремонта нет, окна выходят на улицу.
Квартира располагается на 15 этаже 17-этажного монолитного дома.
Дом оборудован пассажирским лифтом, есть мусоропровод, закрытая территория, парковка охраняется.
18.02.2026
41 275 435 ₽
Продается 4-комн. квартира, площадью 100.1 кв.м.
Жилая площадь 57.5 кв. м, кухня 15.3 кв. м, ремонта нет, окна выходят на улицу.
Квартира располагается на 27 этаже 37-этажного монолитного дома.
Дом оборудован пассажирским лифтом, есть мусоропровод, закрытая территория, парковка охраняемая.
18.02.2026
60 452 893 ₽
Продается 5-комн. квартира, площадью 122.3 кв.м.
Жилая площадь 55.6 кв. м, ремонта нет, окна выходят на улицу.
Квартира располагается на 13 этаже 17-этажного монолитного дома.
Дом оборудован пассажирским лифтом, есть мусоропровод, закрытая территория, парковка с охраной.
18.02.2026
74 873 038 ₽
Продается 3-комн. квартира, площадью 83.2 кв.м.
Жилая площадь 46.3 м2, кухня 14.3 кв. м, ремонта нет, окна выходят во двор.
Квартира располагается на 3 этаже 37-этажного монолитного дома.
Дом оборудован пассажирским лифтом, есть мусоропровод, закрытая территория, парковка охраняемая.
18.02.2026
41 632 864 ₽




















