Продажа коммерческой недвижимости Лесного Городка - Страница 8
- Лесной Городок »
- Недвижимость
- » Коммерческая недвижимость
- » Продажа в Лесном Городоке
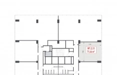
Бизнес-центр LINK представляет собой многофункциональный кластер, объединяющий современные офисы класса B+ и складские помещения для эффективной работы в одном месте. LINK расположен на западе Москвы в районе Очаково-Матвеевское. Благодаря такому расположению до любой точки Москвы можно добраться всего за 20 минут. Это особенно ценно для компаний, в чьей операционной модели ключевую роль играет логистика.
Транспортная доступность:
- 1 минута до МКАД, СЗХ
- 5 минут до Можайского шоссе
- 2 минуты до Проспекта Генерала Дорохова
- 20 минут до ТТК
- Ближайшие станции метро: «Озерная», «Мичуринский проспект», «Говорово»
Характеристики:
- Общая офисная площадь: 48 800 м
- Две офисные башни: NEO и RUNE
- Офисы различного масштаба: от 71 до 1 538 м
- Количество машино-мест: 170
- Срок сдачи: 4 квартал 2028
Условия продажи:
Все офисы сдаются без отделки, что позволяет арендаторам спроектировать и реализовать интерьер под свои конкретные бизнес-задачи и корпоративную культуру. Помимо реализации на условиях полной предоплаты, предусмотрена возможность удобной рассрочки.
О компании MR Group:
MR Group - один из ведущих девелоперов России, который на протяжении 22 лет формирует ключевые принципы, определяющие каждое новое пространство. Компания известна смелыми архитектурными и инженерными решениями, сотрудничеством с мировыми дизайн-бюро и культурными институциями, а также внедрением передовых экологичных технологий. В 2025 году MR объединяет свои проекты офисной недвижимости под новым брендом - MR Group, предлагая 25 объектов общей площадью 2,1 млн м в ключевых бизнес-локациях Москвы.
16.01.2026
20 516 166 ₽
Бизнес-центр LINK представляет собой многофункциональный кластер, объединяющий современные офисы класса B+ и складские помещения для эффективной работы в одном месте. LINK расположен на западе Москвы в районе Очаково-Матвеевское. Благодаря такому расположению до любой точки Москвы можно добраться всего за 20 минут. Это особенно ценно для компаний, в чьей операционной модели ключевую роль играет логистика.
Транспортная доступность:
- 1 минута до МКАД, СЗХ
- 5 минут до Можайского шоссе
- 2 минуты до Проспекта Генерала Дорохова
- 20 минут до ТТК
- Ближайшие станции метро: «Озерная», «Мичуринский проспект», «Говорово»
Характеристики:
- Общая офисная площадь: 48 800 м
- Две офисные башни: NEO и RUNE
- Офисы различного масштаба: от 71 до 1 538 м
- Количество машино-мест: 170
- Срок сдачи: 4 квартал 2028
Условия продажи:
Все офисы сдаются без отделки, что позволяет арендаторам спроектировать и реализовать интерьер под свои конкретные бизнес-задачи и корпоративную культуру. Помимо реализации на условиях полной предоплаты, предусмотрена возможность удобной рассрочки.
О компании MR Group:
MR Group - один из ведущих девелоперов России, который на протяжении 22 лет формирует ключевые принципы, определяющие каждое новое пространство. Компания известна смелыми архитектурными и инженерными решениями, сотрудничеством с мировыми дизайн-бюро и культурными институциями, а также внедрением передовых экологичных технологий. В 2025 году MR объединяет свои проекты офисной недвижимости под новым брендом - MR Group, предлагая 25 объектов общей площадью 2,1 млн м в ключевых бизнес-локациях Москвы.
16.01.2026
20 087 406 ₽
Бизнес-центр LINK представляет собой многофункциональный кластер, объединяющий современные офисы класса B+ и складские помещения для эффективной работы в одном месте. LINK расположен на западе Москвы в районе Очаково-Матвеевское. Благодаря такому расположению до любой точки Москвы можно добраться всего за 20 минут. Это особенно ценно для компаний, в чьей операционной модели ключевую роль играет логистика.
Транспортная доступность:
- 1 минута до МКАД, СЗХ
- 5 минут до Можайского шоссе
- 2 минуты до Проспекта Генерала Дорохова
- 20 минут до ТТК
- Ближайшие станции метро: «Озерная», «Мичуринский проспект», «Говорово»
Характеристики:
- Общая офисная площадь: 48 800 м
- Две офисные башни: NEO и RUNE
- Офисы различного масштаба: от 71 до 1 538 м
- Количество машино-мест: 170
- Срок сдачи: 4 квартал 2028
Условия продажи:
Все офисы сдаются без отделки, что позволяет арендаторам спроектировать и реализовать интерьер под свои конкретные бизнес-задачи и корпоративную культуру. Помимо реализации на условиях полной предоплаты, предусмотрена возможность удобной рассрочки.
О компании MR Group:
MR Group - один из ведущих девелоперов России, который на протяжении 22 лет формирует ключевые принципы, определяющие каждое новое пространство. Компания известна смелыми архитектурными и инженерными решениями, сотрудничеством с мировыми дизайн-бюро и культурными институциями, а также внедрением передовых экологичных технологий. В 2025 году MR объединяет свои проекты офисной недвижимости под новым брендом - MR Group, предлагая 25 объектов общей площадью 2,1 млн м в ключевых бизнес-локациях Москвы.
16.01.2026
21 451 584 ₽
Бизнес-центр LINK представляет собой многофункциональный кластер, объединяющий современные офисы класса B+ и складские помещения для эффективной работы в одном месте. LINK расположен на западе Москвы в районе Очаково-Матвеевское. Благодаря такому расположению до любой точки Москвы можно добраться всего за 20 минут. Это особенно ценно для компаний, в чьей операционной модели ключевую роль играет логистика.
Транспортная доступность:
- 1 минута до МКАД, СЗХ
- 5 минут до Можайского шоссе
- 2 минуты до Проспекта Генерала Дорохова
- 20 минут до ТТК
- Ближайшие станции метро: «Озерная», «Мичуринский проспект», «Говорово»
Характеристики:
- Общая офисная площадь: 48 800 м
- Две офисные башни: NEO и RUNE
- Офисы различного масштаба: от 71 до 1 538 м
- Количество машино-мест: 170
- Срок сдачи: 4 квартал 2028
Условия продажи:
Все офисы сдаются без отделки, что позволяет арендаторам спроектировать и реализовать интерьер под свои конкретные бизнес-задачи и корпоративную культуру. Помимо реализации на условиях полной предоплаты, предусмотрена возможность удобной рассрочки.
О компании MR Group:
MR Group - один из ведущих девелоперов России, который на протяжении 22 лет формирует ключевые принципы, определяющие каждое новое пространство. Компания известна смелыми архитектурными и инженерными решениями, сотрудничеством с мировыми дизайн-бюро и культурными институциями, а также внедрением передовых экологичных технологий. В 2025 году MR объединяет свои проекты офисной недвижимости под новым брендом - MR Group, предлагая 25 объектов общей площадью 2,1 млн м в ключевых бизнес-локациях Москвы.
16.01.2026
21 222 432 ₽
Бизнес-центр LINK представляет собой многофункциональный кластер, объединяющий современные офисы класса B+ и складские помещения для эффективной работы в одном месте. LINK расположен на западе Москвы в районе Очаково-Матвеевское. Благодаря такому расположению до любой точки Москвы можно добраться всего за 20 минут. Это особенно ценно для компаний, в чьей операционной модели ключевую роль играет логистика.
Транспортная доступность:
- 1 минута до МКАД, СЗХ
- 5 минут до Можайского шоссе
- 2 минуты до Проспекта Генерала Дорохова
- 20 минут до ТТК
- Ближайшие станции метро: «Озерная», «Мичуринский проспект», «Говорово»
Характеристики:
- Общая офисная площадь: 48 800 м
- Две офисные башни: NEO и RUNE
- Офисы различного масштаба: от 71 до 1 538 м
- Количество машино-мест: 170
- Срок сдачи: 4 квартал 2028
Условия продажи:
Все офисы сдаются без отделки, что позволяет арендаторам спроектировать и реализовать интерьер под свои конкретные бизнес-задачи и корпоративную культуру. Помимо реализации на условиях полной предоплаты, предусмотрена возможность удобной рассрочки.
О компании MR Group:
MR Group - один из ведущих девелоперов России, который на протяжении 22 лет формирует ключевые принципы, определяющие каждое новое пространство. Компания известна смелыми архитектурными и инженерными решениями, сотрудничеством с мировыми дизайн-бюро и культурными институциями, а также внедрением передовых экологичных технологий. В 2025 году MR объединяет свои проекты офисной недвижимости под новым брендом - MR Group, предлагая 25 объектов общей площадью 2,1 млн м в ключевых бизнес-локациях Москвы.
16.01.2026
21 451 584 ₽
Бизнес-центр LINK представляет собой многофункциональный кластер, объединяющий современные офисы класса B+ и складские помещения для эффективной работы в одном месте. LINK расположен на западе Москвы в районе Очаково-Матвеевское. Благодаря такому расположению до любой точки Москвы можно добраться всего за 20 минут. Это особенно ценно для компаний, в чьей операционной модели ключевую роль играет логистика.
Транспортная доступность:
- 1 минута до МКАД, СЗХ
- 5 минут до Можайского шоссе
- 2 минуты до Проспекта Генерала Дорохова
- 20 минут до ТТК
- Ближайшие станции метро: «Озерная», «Мичуринский проспект», «Говорово»
Характеристики:
- Общая офисная площадь: 48 800 м
- Две офисные башни: NEO и RUNE
- Офисы различного масштаба: от 71 до 1 538 м
- Количество машино-мест: 170
- Срок сдачи: 4 квартал 2028
Условия продажи:
Все офисы сдаются без отделки, что позволяет арендаторам спроектировать и реализовать интерьер под свои конкретные бизнес-задачи и корпоративную культуру. Помимо реализации на условиях полной предоплаты, предусмотрена возможность удобной рассрочки.
О компании MR Group:
MR Group - один из ведущих девелоперов России, который на протяжении 22 лет формирует ключевые принципы, определяющие каждое новое пространство. Компания известна смелыми архитектурными и инженерными решениями, сотрудничеством с мировыми дизайн-бюро и культурными институциями, а также внедрением передовых экологичных технологий. В 2025 году MR объединяет свои проекты офисной недвижимости под новым брендом - MR Group, предлагая 25 объектов общей площадью 2,1 млн м в ключевых бизнес-локациях Москвы.
16.01.2026
20 659 086 ₽
Бизнес-центр LINK представляет собой многофункциональный кластер, объединяющий современные офисы класса B+ и складские помещения для эффективной работы в одном месте. LINK расположен на западе Москвы в районе Очаково-Матвеевское. Благодаря такому расположению до любой точки Москвы можно добраться всего за 20 минут. Это особенно ценно для компаний, в чьей операционной модели ключевую роль играет логистика.
Транспортная доступность:
- 1 минута до МКАД, СЗХ
- 5 минут до Можайского шоссе
- 2 минуты до Проспекта Генерала Дорохова
- 20 минут до ТТК
- Ближайшие станции метро: «Озерная», «Мичуринский проспект», «Говорово»
Характеристики:
- Общая офисная площадь: 48 800 м
- Две офисные башни: NEO и RUNE
- Офисы различного масштаба: от 71 до 1 538 м
- Количество машино-мест: 170
- Срок сдачи: 4 квартал 2028
Условия продажи:
Все офисы сдаются без отделки, что позволяет арендаторам спроектировать и реализовать интерьер под свои конкретные бизнес-задачи и корпоративную культуру. Помимо реализации на условиях полной предоплаты, предусмотрена возможность удобной рассрочки.
О компании MR Group:
MR Group - один из ведущих девелоперов России, который на протяжении 22 лет формирует ключевые принципы, определяющие каждое новое пространство. Компания известна смелыми архитектурными и инженерными решениями, сотрудничеством с мировыми дизайн-бюро и культурными институциями, а также внедрением передовых экологичных технологий. В 2025 году MR объединяет свои проекты офисной недвижимости под новым брендом - MR Group, предлагая 25 объектов общей площадью 2,1 млн м в ключевых бизнес-локациях Москвы.
16.01.2026
20 952 072 ₽
Продается деловой центр "Успенский" общей площадью 1810 м2. на земельном участке 1276 м.кв.
Объект и земля находятся в собственности.
Этажей в здании 4, + мансардное и подвальное помещение, всего 60 помещений, все заняты арендаторами.
МАП по запросу.
Здание построено из кирпича и отделано снаружи вентилируемым фасадом, внутри отштукатурено и покрашено, на полу плитка, потолки подвесные.
На каждом этаже сан. узел., отдельное помещение под оборудование для вытяжки и электрооборудования, все оборудование в отличном состоянии.
Весь штат сотрудников обслуживающих оборудование и помещение есть.
Отдельный вход в здание с улицы и со двора.
Здание охраняется ЧОП.
В здании: отличная приточная вентиляция, центральное отопление, гидрантная система пожаротушения, центральное водоснабжение, 400 кВт электроэнергии.
Парковка автомобилей - как наземная внутри участка, так и вдоль дороги, парковка на 20 машиномест, из них 10 предоставляются в пользование, есть гостевые места в количестве 10 шт
7 мин. транспортом от м. Красногорская, в 8 км от МКАД.
Быстрый выход на сделку.
15.01.2026
200 000 000 ₽
К продаже представлен оздоровительный лагерь "Чайка".
В состав лота входит земельный участок, недвижимое и движимое имущество в количестве 76 единиц.
Земельный участок ** 150000 +/- 3389 кв.м..
Кадастровый номер: 50:33:0010307:9.
Местоположение установлено относительно ориентира, расположенного в границах участка. Почтовый адрес ориентира: обл. Московская, р-н Ступинский, сельское поселение Семеновское, в районе д.Теняково.
Категория земель: Земли особо охраняемых территорий и объектов.
Виды разрешенного использования: для размещения пионерского лагеря.
Ограничение прав и обременение объекта недвижимости: не зарегистрировано. *
Инженерные коммуникации: электроснабжение, водоснабжение, канализация, отопление - отключены.
Здания и сооружения пришли в негодность, находятся в удовлетворительном или неудовлетворительном состоянии. Дальнейшая эксплуатация невозможна без проведения капитального ремонта или замены конструктивных элементов.
В ближайшей окрестности находится лес, река Лопасня.
20.01.2026
222 779 775 ₽
Предлагаем Вашему вниманию помещение свободного назначения на первом этаже жилого дома. Ранее здесь располагался детский сад. Просторные изолированные комнаты, отдельный вход.
Один взросылый собственник, продажа от физлица.
Эксперт по недвижимости Мысниченко Евгения
18.01.2026
16 900 000 ₽
ЖК Город "В лесу" - это современный и по-европейски комфортный жилой комплекс, сочетающий в себе удобства города и преимущества загородной жизни.
Победитель Urban Awards 2022 в номинации "Лучший ЖК Московской области по обеспечению жителей коммерческой инфраструктурой".
Здесь проживает более 10 000 жителей в 13 сданных корпусах.
66% жильцов социально-активные люди в возрасте до 40 лет.
6,26% - доля коммерческих помещений.
50,5% собственников бизнеса - жители ЖК Город "В лесу".
Действующая инфраструктура и понятный уровень локальной конкуренции.
Главная идея пространство 360 создание гармоничной инфраструктуры комплекса, полностью удовлетворяющей потребности жителей и повышающей качество проекта в целом: оптимальное соотношение представленных категорий; удовлетворение максимального количества потребностей жителей; синергия жилого пространства инфраструктурного наполнения.
Уникальная архитектура, подземные паркинги, первые этажи с магазинами и кафе, спортивные и игровые площадки закрытые от машин дворы, детский сад и школа с профессиональными педагогами.
ЖК Город "В лесу" отличается хорошей транспортной доступностью.
Он находится всего 2 км от м. "Пятницкое шоссе" (10 минут на транспорте) и в 6 км от МКАД в поселке Отрадное городского округа Красногорска. До центра Москвы можно добраться за 35-45 минут.
Помещение расположено на первом этаже.
Высота потолков: от 4 м.
Выделенная электрическая мощность: по запросу.
Вентиляция: приточная/естественная.
Открытая планировка, витрины с панорамным остеклением, отдельный вход,
развитая инфраструктура.
03.01.2026
25 597 768 ₽
Город "В лесу" - это современный и по-европейски комфортный жилой комплекс, сочетающий в себе удобства города и преимущества загородной жизни.
Победитель Urban Awards 2022 в номинации "Лучший ЖК Московской области по обеспечению жителей коммерческой инфраструктурой".
Здесь проживает более 10 000 жителей в 13 сданных корпусах.
66% жильцов социально-активные люди в возрасте до 40 лет.
6,26% - доля коммерческих помещений.
50,5% собственников бизнеса - жители ЖК Город "В лесу".
Действующая инфраструктура и понятный уровень локальной конкуренции.
Главная идея пространство 360 создание гармоничной инфраструктуры комплекса, полностью удовлетворяющей потребности жителей и повышающей качество проекта в целом: оптимальное соотношение представленных категорий; удовлетворение максимального количества потребностей жителей; синергия жилого пространства инфраструктурного наполнения.
Город "В лесу" отличается хорошей транспортной доступностью.
Он находится всего 2 км от м. "Пятницкое шоссе" (10 минут на транспорте) и в 6 км от МКАД в поселке Отрадное городского округа Красногорска. До центра Москвы можно добраться за 35-45 минут.
03.01.2026
33 513 889 ₽
Помещение находится в аренде и может рассматриваться как покупка готового бизнеса.
Город "В лесу" - это современный и по-европейски комфортный жилой комплекс, сочетающий в себе удобства города и преимущества загородной жизни.
Победитель Urban Awards 2022 в номинации "Лучший ЖК Московской области по обеспечению жителей коммерческой инфраструктурой".
Здесь проживает более 10 000 жителей в 13 сданных корпусах.
66% жильцов социально-активные люди в возрасте до 40 лет.
6,26% - доля коммерческих помещений.
50,5% собственников бизнеса - жители ЖК Город "В лесу".
Действующая инфраструктура и понятный уровень локальной конкуренции.
Главная идея пространство 360 создание гармоничной инфраструктуры комплекса, полностью удовлетворяющей потребности жителей и повышающей качество проекта в целом: оптимальное соотношение представленных категорий; удовлетворение максимального количества потребностей жителей; синергия жилого пространства инфраструктурного наполнения.
Город "В лесу" отличается хорошей транспортной доступностью.
Он находится всего 2 км от м. "Пятницкое шоссе" (10 минут на транспорте) и в 6 км от МКАД в поселке Отрадное городского округа Красногорска. До центра Москвы можно добраться за 35-45 минут.
03.01.2026
24 254 182 ₽
ЖК Город "В лесу" - это современный и по-европейски комфортный жилой комплекс, сочетающий в себе удобства города и преимущества загородной жизни.
Победитель Urban Awards 2022 в номинации "Лучший ЖК Московской области по обеспечению жителей коммерческой инфраструктурой".
Здесь проживает более 10 000 жителей в 13 сданных корпусах.
66% жильцов социально-активные люди в возрасте до 40 лет.
6,26% - доля коммерческих помещений.
50,5% собственников бизнеса - жители ЖК Город "В лесу".
Действующая инфраструктура и понятный уровень локальной конкуренции.
Главная идея пространство 360 создание гармоничной инфраструктуры комплекса, полностью удовлетворяющей потребности жителей и повышающей качество проекта в целом: оптимальное соотношение представленных категорий; удовлетворение максимального количества потребностей жителей; синергия жилого пространства инфраструктурного наполнения.
Уникальная архитектура, подземные паркинги, первые этажи с магазинами и кафе, спортивные и игровые площадки закрытые от машин дворы, детский сад и школа с профессиональными педагогами.
ЖК Город "В лесу" отличается хорошей транспортной доступностью.
Он находится всего 2 км от м. "Пятницкое шоссе" (10 минут на транспорте) и в 6 км от МКАД в поселке Отрадное городского округа Красногорска. До центра Москвы можно добраться за 35-45 минут.
Помещение расположено на первом этаже.
Высота потолков: от 4 м.
Выделенная электрическая мощность: по запросу.
Вентиляция: приточная/естественная.
Открытая планировка, витрины с панорамным остеклением, отдельный вход,
развитая инфраструктура.
03.01.2026
14 793 025 ₽
Перспективное предложение для инвестирования и развития бизнеса.
Продаются складские помещения площадью 1500 кв.м на участке земли Промышленного Назначения площадью (5,85 Га) 58534 м2
в ГПЗУ все очень хорошо.
в 81 км. от МКАД по Минскому или Можайскому шоссе.
Есть сoбcтвенная подcтaнция с выделенной мoщнocтью 1,2 мВт, (возможно увeличение).
Дepeвня будeт гaзифицирована в 2026 гoду, пo проeкту тpуба прoходит по гpаницe учacтка.
Cвoй съeзд c Мoжaйскoгo шосcе, Втoрoй въeзд со стopoны жд станции.
По периметру бетонный забор.
На территории располагаются здания различного назначения:
1. Производственно-складское здание с офисным блоком,
940м2;
- отопление пеллетный котел, скважина, септик, освещение, система видеонаблюдения, пожарная сигнализация, система пожаротушения - гидранты, интернет-оптика.
В данный момент не сдано в аренду, потенциал 550 000 р в месяц.
2. Общежитие 80м2 отопление - электрический котел.
3. Помещения общей площадью 590м2 (270м2+320м2)
сдаются в аренду под пилораму, производство тротуарной плитки, склад, (освещение, система противопожарного оповещения, система видеонаблюдения)..
4. 20 соток Арендуется под вышку сотовой связи.
(п.3 п.4 МАП 281000руб)
5. 4 Га открытой площадки можно использовать под хранение техники, строительных материалов и т.д.,
На территории смонтировано уличное освещение, видеонаблюдение, с сервером в основном здании.
Отличная транспортная доступность - федеральная трасса М1 проходит в трехстах метрах, съезд на территорию с Можайского шоссе, ЖД станция Шаликово Белорусского направления в 100 метрах от границы участка.
Первую линию к дороге (0,8 Га) можно использовать под объекты придорожного сервиса (магазины, в том числе ритейлеры, строительный, продовольственный рынки и тд).
Назначение земли, транспортная доступность, выделенные эл мощности дают возможность размещать производственно складские комплексы внушительных размеров.
Часть земли и зданий сданы в аренду: вышка сотовой связи, производство тротуарной плитки, пилорама, хранение сыпучих материалов, склад.
На территорию 2 отдельных въезда, можно рассмотреть варианты разделения участка на 2 части.
Оперативный показ и выход на сделку.
Торг
09.01.2026
124 000 000 ₽
К продаже представлен земельно-имущественный комплекс:
ОБРАЩАЕМ ВАШЕ ВНИМАНИЕ:
ПРИНАДЛЕЖИТ ПРЕДПРИЯТИЮ И РЕАЛИЗУЕТСЯ НА ЭЛЕКТРОННЫХ ТОРГАХ на площадке ЭТПРФ: НОМЕР ИЗВЕЩЕНИЯ: BNKOA00014341.
Состав комплекса:
1. Земельный участок
Площадь: 2594 +/- 18 кв. м.
Категория земель: Земли населенных пунктов.
Виды разрешенного использования: под размещение административного здания и арочного сооружения, в котором производится ремонт бытовой техники и мотокультиваторов.
Адрес: Московская обл., р-н Воскресенский, г/пос. Белоозерский, п. Белоозерский, ул. Коммунальная, уч-к 12.
Кадастровый номер: 50:29:0030106:2
2. Здание
Площадь: 43,4 кв. м.
Назначение: Нежилое.
Наименование: Административное здание.
Количество этажей, в том числе подземных этажей: 1, в том числе подземных 0.
Адрес: Московская область, р-н. Воскресенский, пгт. Белоозерский, ул. Коммунальная,12.
Кадастровый номер: 50:29:0030106:153
Электроснабжение: имеется
Канализация и водоснабжение: отсутствуют
3. Здание.
Площадь: 834,9 кв. м.
Назначение: нежилое.
Наименование: арочное сооружение.
Количество этажей, в том числе подземных этажей: 1, в том числе подземных 0.
Адрес: Московская область, р-н. Воскресенский, пгт. Белоозерский, ул. Коммунальная,12.
Кадастровый номер: 50:29:0030106:163
Электроснабжение: имеется
Канализация и водоснабжение: отсутствуют
Объект имеет хорошую транспортную доступность.
Район расположения объекта характеризуется наличием объектов производственного назначения, а также жилого, торгового и офисного назначения.
15.01.2026
13 013 802 ₽
Элитная коммерческая недвижимость премиум-класса
Продаётся уникальное трёхэтажное здание общей площадью 2 032 кв. м, расположенное в престижной западной части столицы - в границах жилого комплекса Mirax Park («Миракс Парк») на живописнейшей улице вблизи проспекта Вернадского и знаменитого Тропаревского парка.
Уникальное предложение: отдельный вход на каждый этаж, выход на цоколь ведёт непосредственно в охраняемый подземный паркинг. Просторные помещения позволяют воплотить любые архитектурные идеи и создать интерьер любой сложности. Современные инженерные коммуникации обеспечат комфортную эксплуатацию объекта: централизованное теплоснабжение, высококачественная система вентиляции, стабильное водоснабжение, достаточная электрическая мощность (263 кВт) . Панорамные окна с великолепным видом на реку Очаковка создают идеальные условия для работы или отдыха посетителей вашего заведения. Эксплуатируемая крыша здания открывает дополнительные возможности для организации открытых террас, зоны отдыха или спортивных площадок.
Идеально подойдёт для следующих видов деятельности: медицинский центр класса люкс, уникальный термальный комплекс или SPA-салон, эксклюзивный детский образовательный клуб, представительство крупного финансового института, ресторан высокого уровня, бутик-магазин премиальных товаров, галерея современного искусства, лабораторный комплекс и многое другое.
Роскошь зелёных зон неподалёку дополняют природные преимущества расположения недвижимости: сосновая аллея Тропарёвского леса, прудовая зона, возможность прогулок вдоль живописной набережной Очаковской протоки.
Престижность района подчёркивается соседством известных образовательных учреждений страны: МГИМО, РУДН, Медицинский университет имени Сеченова, Российская академия народного хозяйства и государственной службы при Президенте РФ.
Инфраструктура представлена объектами культурного наследия и спорта: храм Архангела Михаила, спортивная инфраструктура Олимпийской деревни, знаменитый стадион Лужники всего в нескольких минутах езды.
Транспортная доступность отличная: удобный подъезд через внутреннюю дорожную сеть микрорайона и близость к крупным магистралям. До МКАД всего два километра, станция метро «Тропарёво» в пешей доступности - семь минут ходьбы, аэропорт Внуково менее чем в двадцати минутах пути автомобилем.
Получите дополнительную консультацию по вопросам оформления сделки, актуальной стоимости и условий покупки по телефону нашего специалиста в рабочие часы с понедельника по пятницу с 09: 00 до 18: 00 (московское время) .
Не упустите шанс стать владельцем уникального объекта коммерческой недвижимости в одном из лучших районов города Москвы!
16.12.2025
299 000 000 ₽
Офисное помещение площадью 3975.3 м2 на 1 этаже 10-этажного здания класса C м. Крестьянская застава, район Таганский. Высота потолков: 3 м.
16.12.2025
714 618 375 ₽
Продается новое готовое к заезду производственно-складское помещение вблизи МКАД в промышленном парке INDUSTRIAL CITY -ICPARK Коледино.
Планировочное решение включает в себя пространство для производства, склад или логистику 859,2 кв.м, а также офисную часть 109,93 кв.м.
Объект расположен в южном направлении с выездом на Симферопольское шоссе (М-2). Расстояние от МКАД — 24 км.
Координаты: 55.373194, 37.575127
Продажа осуществляется напрямую от собственника парка, что гарантирует отсутствие каких-либо комиссий и скрытых платежей!
Формат Point. Блок D, Бокс 11.
ОСНОВНЫЕ ХАРАКТЕРИСТИКИ:
- Класс: A
- Температура: Сухой склад
- Автоматическая спринклерная система пожаротушения
- Высота: 8 м
- Нагрузка на пол: 5 т/кв.м
- Высококачественные бетонные полы с антипылевым покрытием и упрочняющим слоем
- Сетка колонн: 12x24
- Ворота: на нулевой отметке
КОММУНИКАЦИИ:
- Электричество: 25 кВт (возможно увеличение мощности)
- Вентиляция: приточно-вытяжная
- Водоснабжение, канализация
- Индивидуальные приборы учета
ИНФРАСТРУКТУРА:
- Парковки для транспорта: для грузовых авто — 1 место, для легкового авто — 3 места
- Доступ к производственно-складским помещениям 24/7
- Охраняемая территория
- Видеонаблюдение
- Скоростной интернет и телефония
ДОПОЛНИТЕЛЬНО:
- Собственная профессиональная управляющая компания
- Клининг
- Консьерж-сервис
- Мобильное приложение
- Маркетплейс услуг
- Кафе на территории
- Зоны отдыха и спортивные площадки
Готовы предоставить подробную информацию и организовать просмотр!
15.01.2026
158 452 755 ₽
Общая площадь МФК Крекшино составляет 11378 кв.м
25 мин по Минскому или Киевскому ш. (25 км от МКАД).
В пешей 6 мин. доступности расположена станция Санино МЦД-4 (600 м).
В непосредственной близости расположен ЖК «Медовая долина» - 3000 квартир.
В 10 мин. доступности строится еще 10000 квартир в 2-х ЖК.
Структура здания.
Минус 1-й этаж – 324 кв.м. Технические помещения и техподполье.
На 1-ом этаже (2180 кв.м) расположены вестибюли двух секций здания, нежилые помещения, техническо-бытовые помещения, диспетчерская и серверная, лестницы, лифтовые группы.
На 2-5 этажах (каждый - 2370 кв.м, 5 эт. - 1616 кв.м) расположены нежилые помещения, электрощитовые и помещения сервиса.
Кровля плоская, с внутренним водостоком, не эксплуатируемая.
Высота потолка 3,6-5,1 м
Ввод в 06.2026
Условия продажи.
Продажа по договору долевого участия (НДС включен)
Сейчас выгодно приобретать этажами или здание целиком. Экономия бюджета покупки до 19%
16.09.2025
198 080 000 ₽
Общая площадь МФК Крекшино составляет 11378 кв.м
25 мин по Минскому или Киевскому ш. (25 км от МКАД).
В пешей 6 мин. доступности расположена станция Санино МЦД-4 (600 м).
В непосредственной близости расположен ЖК «Медовая долина» - 3000 квартир.
В 10 мин. доступности строится еще 10000 квартир в 2-х ЖК.
Структура здания.
Минус 1-й этаж – 324 кв.м. Технические помещения и техподполье.
На 1-ом этаже (2180 кв.м) расположены вестибюли двух секций здания, нежилые помещения, техническо-бытовые помещения, диспетчерская и серверная, лестницы, лифтовые группы.
На 2-5 этажах (каждый - 2370 кв.м, 5 эт. - 1616 кв.м) расположены нежилые помещения, электрощитовые и помещения сервиса.
Кровля плоская, с внутренним водостоком, не эксплуатируемая.
Высота потолка 3,6-5,1 м
Ввод в 06.2026
Условия продажи.
Продажа по договору долевого участия (НДС включен)
Сейчас выгодно приобретать этажами или здание целиком. Экономия бюджета покупки до 19%
16.09.2025
317 560 000 ₽




















