Объявление о квартирах в Павловске в Ленинградской обл. - Страница 4
- Павловск, Ленинградская обл. »
- Недвижимость
- » Квартиры в Павловске в Ленинградской обл.
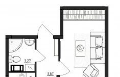
Продается 1-комн. квартира, площадью 36.83 м2 в малоэтажной. Возможен вариант покупки с использованием ипотечных средств, возможна покупка с использованием материнского капитала, есть военная ипотека.
Жилая площадь 17.08 м2, кухня 11.85 м2, комнаты изолированные.
Квартира располагается на 1 этаже 4-этажного дома в ЖК Верево Сити.
Застройщик - Строй Бизнес Групп специализированный застройщик, сдача дома - II квартал 2025 года, закрытая территория.
Парковка автомобилей - наземная, парковка охраняется. Обеспечение безопасности: видеонаблюдение. Инфраструктура: школа, детский сад, поликлиника, детские площадки, спортивные площадки, места для отдыха, супермаркет.
Для бронирования конкретной квартиры звоните по номеру телефона в объявлении.
ЖК Верево Сити - это современный городской жилой квартал малоэтажной застройки.
В 10-ти четырехэтажных корпусах сможет поселиться 1171 семья. Дома располагаются блоками, образуя уютные закрытые и безопасные дворы с большим количеством зеленых насаждений и с зонами отдыха для взрослых и детей.
В ЖК Верево Сити самое низкое ценовое предложение в Ленинградской области и пригородах Санкт-Петербурга, что позволит вам приобрести жилье большей площади, нежели в других жилых комплексах.
Отделка - черновая.
Комфортная среда для жизни:
- малоэтажные красивые здания современной архитектуры, с большой площадью остекления
- обособленная территория
- продуманные планировки, как привычные одно- и двухкомнатные квартиры, так и европланировки
- небольшая плотность населения: комплекс располагается на 6,5 га земли
- полная внутренняя инфраструктура, которая позволит жить с комфортом
Позвоните и узнайте условия покупки прямо сейчас!
Аккредитованные банки: ПАО Сбербанк
Позвоните и узнайте условия покупки прямо сейчас!
03.12.2025
4 242 816 ₽
Продаются просторные 2-комнатные апартаменты у самого берега Финского залива площадью 70,7 м2. Идеально для семейного проживания и отдыха. Из каждой комнаты есть выход на глубокую лоджию-аэрарий - там можно легко уместить 2 шезлонга и кофейный столик и наслаждаться видами на лес. Высокие потолки до 3 метров, гардеробная, отделка white-box.
Для семей с детьми мы предусмотрели все необходимое! Дом расположен в 50 метрах от Финского залива. Пляж широкий и песчаный, с собственным выходом. Окружают комплекс вековые хвойные деревья, воздух невероятно чистый и полезный, так как в Курортном районе нет предприятий. Такой воздух благоприятно влияет на сон, здоровье, самочувствие, а также на развитие детей.
Территория комплекса огромная и зеленая - 1,2 га. Ни одного члена семьи не оставит равнодушным большой открытый бассейн 25м с подогревом, он работает круглый год, можно просто поплавать и отдохнуть, а можно заняться спортом или даже устроить семейные соревнования.
А еще мы сделали:
- детские игровые площадки (для детей разных возрастов) , как на улице, так и в самом комплексе. Есть развивающие интерактивы, настольные игры, PlayStation. Пока дети играют, вы можете провести деловой созвон в лаунж-зоне или просто отдохнуть;
- тренажерный зал, теннисный корт, СПА-зону и многое другое. Здесь будет интересно абсолютно всем в любое время года!
И, конечно, мы тщательно продумали безопасность, чтобы вы могли спокойно жить и отдыхать. Территория комплекса закрыта от посторонних и охраняется круглосуточно. По всему периметру есть камеры видеонаблюдения, а попасть в помещения можно только по пропускам, так что вы сможете спокойно отпустить своего ребенка погулять одного, не тревожась за его безопасность.
Вы сможете жить у моря и при этом довольствоваться всей городской инфраструктурой - рядом есть школы, дет сады, поликлиника, рестораны, супермаркеты, лыжная база и тд. А до центра Санкт-Петербурга всего 40 минут езды.
А еще, в стоимость включен 22% НДС, которые вы можете сэкономить при оформлении апартамента на свое юридическое лицо. То есть, сразу на этапе покупки, получить скидку в 22%.
«Морская Ривьера» - это идеальный вариант для жизни и отдыха вашей семьи!
Записывайтесь на персональную экскурсию пока еще открыты продажи!
03.02.2026
40 652 500 ₽
Продаются просторные 2-комнатные апартаменты у самого берега Финского залива площадью 57,1 м2. Идеально для семейного проживания и отдыха. Из комнаты и кухни есть выход на глубокую лоджию-аэрарий - там можно легко уместить 2 шезлонга и кофейный столик и наслаждаться свежим воздухом, из спальни панорамное окно выходит на лес. Высокие потолки до 3 метров, отделка white-box.
Для семей с детьми мы предусмотрели все необходимое! Дом расположен в 50 метрах от Финского залива. Пляж широкий и песчаный, с собственным выходом. Окружают комплекс вековые хвойные деревья, воздух невероятно чистый и полезный, так как в Курортном районе нет предприятий. Такой воздух благоприятно влияет на сон, здоровье, самочувствие, а также на развитие детей.
Территория комплекса огромная и зеленая - 1,2 га. Ни одного члена семьи не оставит равнодушным большой открытый бассейн 25м с подогревом, он работает круглый год, можно просто поплавать и отдохнуть, а можно заняться спортом или даже устроить семейные соревнования.
А еще мы сделали:
- детские игровые площадки (для детей разных возрастов) , как на улице, так и в самом комплексе. Есть развивающие интерактивы, настольные игры, PlayStation. Пока дети играют, вы можете провести деловой созвон в лаунж-зоне или просто отдохнуть;
- тренажерный зал, теннисный корт, СПА-зону и многое другое. Здесь будет интересно абсолютно всем в любое время года!
И, конечно, мы тщательно продумали безопасность, чтобы вы могли спокойно жить и отдыхать. Территория комплекса закрыта от посторонних и охраняется круглосуточно. По всему периметру есть камеры видеонаблюдения, а попасть в помещения можно только по пропускам, так что вы сможете спокойно отпустить своего ребенка погулять одного, не тревожась за его безопасность.
Вы сможете жить у моря и при этом довольствоваться всей городской инфраструктурой - рядом есть школы, дет сады, поликлиника, рестораны, супермаркеты, лыжная база и тд. А до центра Санкт-Петербурга всего 40 минут езды.
А еще, в стоимость включен 22% НДС, которые вы можете сэкономить при оформлении апартамента на свое юридическое лицо. То есть, сразу на этапе покупки, получить скидку в 22%.
«Морская Ривьера» - это идеальный вариант для жизни и отдыха вашей семьи!
Записывайтесь на персональную экскурсию пока еще открыты продажи!
03.02.2026
33 160 825 ₽
Продается просторная светлая студия у самого берега Финского залива. Идеально для жизни и отдыха. Площадь 51,6 м, высокие потолки до 3м, остекление в пол и глубокая лоджия-аэрарий: можно разместить два шезлонга, кофейный столик и наслаждаться свежим воздухом на собственной террасе. В апартаментах редкий для нашего времени уровень звукоизоляции, это вам позволит наслаждаться тишиной и приватностью. А также из крана течет чистейшая питьевая вода. Черновая отделка позволит реализовать собственный дизайн.
"Морская Ривьера" - уникальный комплекс в Курортном районе Санкт-Петербурга, г. Зеленогорск. Это респектабельный район с потрясающей экологией, ни одного производства по близости. Воздух здесь по-настоящему оздоравливает - он насыщен морем и соснами - создает атмосферу отдыха и восстановления. Прогулки вдоль залива в лучах заходящего солнца станут вашим личным ритуалом перезагрузки.
В вашем распоряжении территория 1,2 га, где вы можете расслабиться или активно провести время:
- подогреваемый открытый бассейн 25 м - работает круглый год, хотите - плавайте по дорожкам, тренируясь в своем темпе, хотите - просто отдыхайте в теплой воде, наслаждаясь видом на сосны и свежим воздухом;
- теннисный корт, тренажерный зал, СПА-зона, лаунж-зона с PlayStation и и полный набор инфраструктуры для активного или спокойного отдыха и летом и зимой.
Стоит отметить, что управляющая компания постоянно улучшает территорию для жителей: высаживает новые растения и делает все, чтобы вы наслаждались эстетичностью территории. К вашим услугам также охрана, горничные, садовники, хаус-мастер и приветливый консьерж.
Попадать в свои апартаменты вы будете через элегантные гранд-лобби и холлы. Интерьеры и отделочные материалы мы тщательно подбирали, чтобы объединить пространство окружающей природы и пространство дома. Каждая деталь - от пола до потолка, от светильников до дверных ручек - призвана подчеркивать статус вашего дома.
А еще, в стоимость включен 22% НДС, которые вы можете сэкономить при оформлении апартамента на свое юридическое лицо. То есть, сразу на этапе покупки, получить скидку в 22%.
"Морская Ривьера" - это собственная инфраструктура для первоклассного отдыха и комфортного проживания с захватывающими видами на Финский залив и вековой лес. Здесь вы найдете идеальный баланс между динамикой городской жизни, привычным уровнем сервиса бизнес-класса и спокойствием загородной резиденции.
Приглашаем вас на персональную экскурсию, чтобы в полной мере прочувствовать эту неповторимую атмосферу. Успевайте пока еще открыты продажи!
03.02.2026
30 871 712 ₽
Продаются шикарные 2-комнатные апартаменты с европланировкой площадью 131,6 м, с глубокой лоджией и собственной видовой террасой 28,8 м с завораживающим видом на Финский залив, откуда можно увидеть шпиль Морского собора, башню Лахта-центра и наблюдать, как большие корабли идут по фарватеру.
"Морская Ривьера" - идеальный комплекс для жизни и отдыха! Он расположен в самом зелёном районе Петербурга - Курортном, всего в 50 метрах от пляжа Финского залива и в окружении вековых сосен. Здесь нет предприятий и производств, воздух чистый и свежий.
Территория комплекса - 1,2 га, и почти всё пространство отдано жителям: зелёные зоны, детские пространства, теннисный корт, тренажерный зал, лаунж зона с PS, спа-зона.
Главное место притяжения - 25-метровый открытый бассейн с подогревом, зоной отдыха и мини-баром.
Территория закрыта и охраняется, действует контроль доступа на территорию. Здесь безопасно, удобно и комфортно для всех поколений.
В апартаментах черновая отделка, дизайн проект в подарок! В комнатах установлены кондиционеры, которые подключены к общедомовой системе кондиционирования, наружные блоки размещены централизованно на кровле здания.
Также реализована система теплого водяного во всех помещениях.
Студия расположена на 12 этаже, что обеспечивает роскошные виды. На просторной террасе можно устроить летнюю кухню, зону барбекю или обустроить лаунж-площадку для друзей и вечеров под звездами.
А еще, в стоимость включен 22% НДС, которые вы можете сэкономить при оформлении апартамента на свое юридическое лицо. То есть, сразу на этапе покупки, получить скидку в 22%.
"Морская Ривьера" - это собственная инфраструктура для первоклассного отдыха и комфортного проживания с захватывающими видами на Финский залив и вековой лес. Здесь вы найдете идеальный баланс между динамикой городской жизни, привычным уровнем сервиса бизнес-класса и спокойствием загородной резиденции.
Приглашаем вас на персональную экскурсию, чтобы в полной мере прочувствовать эту неповторимую атмосферу. Успевайте пока еще открыты продажи!
03.02.2026
78 009 716 ₽
Студия 23,8 м с отделкой под ключ и глубокой лоджией-аэрарией. Находится лот на 10 этаже, откуда открывается завораживающий вид на сосновый лес.
"Морская Ривьера" - уникальный комплекс апартаментов бизнес-класса в Курортном районе Санкт-Петербурга, г. Зеленогорск. В Зеленогорск приезжают туристы со всех уголков страны и турпоток стремительно растет, поэтому комплекс имеет исключительную инвестиционную привлекательность. Покупка апартаментов в "Морской Ривьере" - это лучшее решение для сбережения и увеличения вашего дохода, потому что:
- это уникальная локация, по популярности сравнимая разве что с Невским проспектом. При этом, в Курортном районе появляется крайне мало новых проектов, что увеличивает его ценность как при сдаче, так и при последующей перепродаже;
- в отделке комплекса мы использовали только премиальные материалы, которые устойчивы к износу и эстетически привлекательны - это позволит минимизировать эксплуатационные расходы в будущем и позволит привлекать клиентов даже с самым избирательным вкусом;
- на закрытой и охраняемой территории комплекса 1,2 га продумана инфраструктура для спокойного или активного отдыха, которая привлекает людей всех возрастов и вкусов. Есть игровые и спортивные площадки, СПА-зона, тренажерный зал, лаунж зона с PlayStation и т.д. Одна из любимых локаций наших туристов - это открытый подогреваемый бассейн 25 м - он работает круглый год, поэтому поток туристов обеспечен вам даже в межсезонье. По сути, комплекс является самостоятельным курортом, что выгодно выделяет его от остальных конкурентов.
Наша управляющая компания может взять все хлопоты на себя: заселение, уборка, обслуживание, а вам останется просто получать выплаты.
А еще, в стоимость включен 22% НДС, которые вы можете сэкономить при оформлении апартамента на свое юридическое лицо. То есть, сразу на этапе покупки, получить скидку в 22%.
Благодаря этим фактам «Морская Ривьера» и является одним из самых выгодных инвестиционных проектов Санкт-Петербурга.
Записывайтесь на персональную встречу с нашим менеджером, успевайте пока еще открыты продажи.
03.02.2026
14 373 248 ₽
Студия 23,6 м с отделкой под ключ и глубокой лоджией-аэрарией. Находится лот на 10 этаже, откуда открывается завораживающий вид на лес.
"Морская Ривьера" - уникальный комплекс апартаментов бизнес-класса в Курортном районе Санкт-Петербурга, г. Зеленогорск. В Зеленогорск приезжают туристы со всех уголков страны и турпоток стремительно растет, поэтому комплекс имеет исключительную инвестиционную привлекательность. Покупка апартаментов в "Морской Ривьере" - это лучшее решение для сбережения и увеличения вашего дохода, потому что:
- это уникальная локация, по популярности сравнимая разве что с Невским проспектом. При этом, в Курортном районе появляется крайне мало новых проектов, что увеличивает его ценность как при сдаче, так и при последующей перепродаже;
- в отделке комплекса мы использовали только премиальные материалы, которые устойчивы к износу и эстетически привлекательны - это позволит минимизировать эксплуатационные расходы в будущем и позволит привлекать клиентов даже с самым избирательным вкусом;
- на закрытой и охраняемой территории комплекса 1,2 га продумана инфраструктура для спокойного или активного отдыха, которая привлекает людей всех возрастов и вкусов. Есть игровые и спортивные площадки, СПА-зона, тренажерный зал, лаунж зона с PlayStation и т.д. Одна из любимых локаций наших туристов - это открытый подогреваемый бассейн 25 м - он работает круглый год, поэтому поток туристов обеспечен вам даже в межсезонье. По сути, комплекс является самостоятельным курортом, что выгодно выделяет его от остальных конкурентов.
Наша управляющая компания может взять все хлопоты на себя: заселение, уборка, обслуживание, а вам останется просто получать выплаты.
А еще, в стоимость включен 22% НДС, которые вы можете сэкономить при оформлении апартамента на свое юридическое лицо. То есть, сразу на этапе покупки, получить скидку в 22%.
Благодаря этим фактам «Морская Ривьера» и является одним из самых выгодных инвестиционных проектов Санкт-Петербурга.
Записывайтесь на персональную встречу с нашим менеджером, успевайте пока еще открыты продажи.
03.02.2026
14 252 465 ₽
Студия 23,7 м с отделкой под ключ и глубокой лоджией-аэрарией. Находится лот на 10 этаже, откуда открывается завораживающий вид на сосновый лес.
"Морская Ривьера" - уникальный комплекс апартаментов бизнес-класса в Курортном районе Санкт-Петербурга, г. Зеленогорск. В Зеленогорск приезжают туристы со всех уголков страны и турпоток стремительно растет, поэтому комплекс имеет исключительную инвестиционную привлекательность. Покупка апартаментов в "Морской Ривьере" - это лучшее решение для сбережения и увеличения вашего дохода, потому что:
- это уникальная локация, по популярности сравнимая разве что с Невским проспектом. При этом, в Курортном районе появляется крайне мало новых проектов, что увеличивает его ценность как при сдаче, так и при последующей перепродаже;
- в отделке комплекса мы использовали только премиальные материалы, которые устойчивы к износу и эстетически привлекательны - это позволит минимизировать эксплуатационные расходы в будущем и позволит привлекать клиентов даже с самым избирательным вкусом;
- на закрытой и охраняемой территории комплекса 1,2 га продумана инфраструктура для спокойного или активного отдыха, которая привлекает людей всех возрастов и вкусов. Есть игровые и спортивные площадки, СПА-зона, тренажерный зал, лаунж зона с PlayStation и т.д. Одна из любимых локаций наших туристов - это открытый подогреваемый бассейн 25 м - он работает круглый год, поэтому поток туристов обеспечен вам даже в межсезонье. По сути, комплекс является самостоятельным курортом, что выгодно выделяет его от остальных конкурентов.
Наша управляющая компания может взять все хлопоты на себя: заселение, уборка, обслуживание, а вам останется просто получать выплаты.
А еще, в стоимость включен 22% НДС, которые вы можете сэкономить при оформлении апартамента на свое юридическое лицо. То есть, сразу на этапе покупки, получить скидку в 22%.
Благодаря этим фактам «Морская Ривьера» и является одним из самых выгодных инвестиционных проектов Санкт-Петербурга.
Записывайтесь на персональную встречу с нашим менеджером, успевайте пока еще открыты продажи.
03.02.2026
14 312 857 ₽
Студия 23,7 м с отделкой под ключ и глубокой лоджией-аэрарией. Находится лот на 10 этаже, откуда открывается завораживающий вид на лес.
"Морская Ривьера" - уникальный комплекс апартаментов бизнес-класса в Курортном районе Санкт-Петербурга, г. Зеленогорск. В Зеленогорск приезжают туристы со всех уголков страны и турпоток стремительно растет, поэтому комплекс имеет исключительную инвестиционную привлекательность. Покупка апартаментов в "Морской Ривьере" - это лучшее решение для сбережения и увеличения вашего дохода, потому что:
- это уникальная локация, по популярности сравнимая разве что с Невским проспектом. При этом, в Курортном районе появляется крайне мало новых проектов, что увеличивает его ценность как при сдаче, так и при последующей перепродаже;
- в отделке комплекса мы использовали только премиальные материалы, которые устойчивы к износу и эстетически привлекательны - это позволит минимизировать эксплуатационные расходы в будущем и позволит привлекать клиентов даже с самым избирательным вкусом;
- на закрытой и охраняемой территории комплекса 1,2 га продумана инфраструктура для спокойного или активного отдыха, которая привлекает людей всех возрастов и вкусов. Есть игровые и спортивные площадки, СПА-зона, тренажерный зал, лаунж зона с PlayStation и т.д. Одна из любимых локаций наших туристов - это открытый подогреваемый бассейн 25 м - он работает круглый год, поэтому поток туристов обеспечен вам даже в межсезонье. По сути, комплекс является самостоятельным курортом, что выгодно выделяет его от остальных конкурентов.
Наша управляющая компания может взять все хлопоты на себя: заселение, уборка, обслуживание, а вам останется просто получать выплаты.
А еще, в стоимость включен 22% НДС, которые вы можете сэкономить при оформлении апартамента на свое юридическое лицо. То есть, сразу на этапе покупки, получить скидку в 22%.
Благодаря этим фактам «Морская Ривьера» и является одним из самых выгодных инвестиционных проектов Санкт-Петербурга.
Записывайтесь на персональную встречу с нашим менеджером, успевайте пока еще открыты продажи.
11.02.2026
14 612 857 ₽
Студия 22,6 м с отделкой под ключ и глубокой лоджией-аэрарией. Находится лот на 9 этаже, откуда открывается завораживающий вид на лес.
"Морская Ривьера" - уникальный комплекс апартаментов бизнес-класса в Курортном районе Санкт-Петербурга, г. Зеленогорск. В Зеленогорск приезжают туристы со всех уголков страны и турпоток стремительно растет, поэтому комплекс имеет исключительную инвестиционную привлекательность. Покупка апартаментов в "Морской Ривьере" - это лучшее решение для сбережения и увеличения вашего дохода, потому что:
- это уникальная локация, по популярности сравнимая разве что с Невским проспектом. При этом, в Курортном районе появляется крайне мало новых проектов, что увеличивает его ценность как при сдаче, так и при последующей перепродаже;
- в отделке комплекса мы использовали только премиальные материалы, которые устойчивы к износу и эстетически привлекательны - это позволит минимизировать эксплуатационные расходы в будущем и позволит привлекать клиентов даже с самым избирательным вкусом;
- на закрытой и охраняемой территории комплекса 1,2 га продумана инфраструктура для спокойного или активного отдыха, которая привлекает людей всех возрастов и вкусов. Есть игровые и спортивные площадки, СПА-зона, тренажерный зал, лаунж зона с PlayStation и т.д. Одна из любимых локаций наших туристов - это открытый подогреваемый бассейн 25 м - он работает круглый год, поэтому поток туристов обеспечен вам даже в межсезонье. По сути, комплекс является самостоятельным курортом, что выгодно выделяет его от остальных конкурентов.
Наша управляющая компания может взять все хлопоты на себя: заселение, уборка, обслуживание, а вам останется просто получать выплаты.
А еще, в стоимость включен 22% НДС, которые вы можете сэкономить при оформлении апартамента на свое юридическое лицо. То есть, сразу на этапе покупки, получить скидку в 22%.
Благодаря этим фактам «Морская Ривьера» и является одним из самых выгодных инвестиционных проектов Санкт-Петербурга.
Записывайтесь на персональную встречу с нашим менеджером, успевайте пока еще открыты продажи.
03.02.2026
13 251 002 ₽
Студия 22,4 м с отделкой под ключ и глубокой лоджией-аэрарией. Находится лот на 9 этаже, откуда открывается завораживающий вид на лес.
"Морская Ривьера" - уникальный комплекс апартаментов бизнес-класса в Курортном районе Санкт-Петербурга, г. Зеленогорск. В Зеленогорск приезжают туристы со всех уголков страны и турпоток стремительно растет, поэтому комплекс имеет исключительную инвестиционную привлекательность. Покупка апартаментов в "Морской Ривьере" - это лучшее решение для сбережения и увеличения вашего дохода, потому что:
- это уникальная локация, по популярности сравнимая разве что с Невским проспектом. При этом, в Курортном районе появляется крайне мало новых проектов, что увеличивает его ценность как при сдаче, так и при последующей перепродаже;
- в отделке комплекса мы использовали только премиальные материалы, которые устойчивы к износу и эстетически привлекательны - это позволит минимизировать эксплуатационные расходы в будущем и позволит привлекать клиентов даже с самым избирательным вкусом;
- на закрытой и охраняемой территории комплекса 1,2 га продумана инфраструктура для спокойного или активного отдыха, которая привлекает людей всех возрастов и вкусов. Есть игровые и спортивные площадки, СПА-зона, тренажерный зал, лаунж зона с PlayStation и т.д. Одна из любимых локаций наших туристов - это открытый подогреваемый бассейн 25 м - он работает круглый год, поэтому поток туристов обеспечен вам даже в межсезонье. По сути, комплекс является самостоятельным курортом, что выгодно выделяет его от остальных конкурентов.
Наша управляющая компания может взять все хлопоты на себя: заселение, уборка, обслуживание, а вам останется просто получать выплаты.
А еще, в стоимость включен 22% НДС, которые вы можете сэкономить при оформлении апартамента на свое юридическое лицо. То есть, сразу на этапе покупки, получить скидку в 22%.
Благодаря этим фактам «Морская Ривьера» и является одним из самых выгодных инвестиционных проектов Санкт-Петербурга.
Записывайтесь на персональную встречу с нашим менеджером, успевайте пока еще открыты продажи.
03.02.2026
13 133 736 ₽
Студия 23,1 м с отделкой под ключ и глубокой лоджией-аэрарией. Находится лот на 9 этаже, откуда открывается завораживающий вид на лес.
"Морская Ривьера" - уникальный комплекс апартаментов бизнес-класса в Курортном районе Санкт-Петербурга, г. Зеленогорск. В Зеленогорск приезжают туристы со всех уголков страны и турпоток стремительно растет, поэтому комплекс имеет исключительную инвестиционную привлекательность. Покупка апартаментов в "Морской Ривьере" - это лучшее решение для сбережения и увеличения вашего дохода, потому что:
- это уникальная локация, по популярности сравнимая разве что с Невским проспектом. При этом, в Курортном районе появляется крайне мало новых проектов, что увеличивает его ценность как при сдаче, так и при последующей перепродаже;
- в отделке комплекса мы использовали только премиальные материалы, которые устойчивы к износу и эстетически привлекательны - это позволит минимизировать эксплуатационные расходы в будущем и позволит привлекать клиентов даже с самым избирательным вкусом;
- на закрытой и охраняемой территории комплекса 1,2 га продумана инфраструктура для спокойного или активного отдыха, которая привлекает людей всех возрастов и вкусов. Есть игровые и спортивные площадки, СПА-зона, тренажерный зал, лаунж зона с PlayStation и т.д. Одна из любимых локаций наших туристов - это открытый подогреваемый бассейн 25 м - он работает круглый год, поэтому поток туристов обеспечен вам даже в межсезонье. По сути, комплекс является самостоятельным курортом, что выгодно выделяет его от остальных конкурентов.
Наша управляющая компания может взять все хлопоты на себя: заселение, уборка, обслуживание, а вам останется просто получать выплаты.
А еще, в стоимость включен 22% НДС, которые вы можете сэкономить при оформлении апартамента на свое юридическое лицо. То есть, сразу на этапе покупки, получить скидку в 22%.
Благодаря этим фактам «Морская Ривьера» и является одним из самых выгодных инвестиционных проектов Санкт-Петербурга.
Записывайтесь на персональную встречу с нашим менеджером, успевайте пока еще открыты продажи.
03.02.2026
13 544 165 ₽
Студия 22,6 м с отделкой под ключ и глубокой лоджией-аэрарией. Находится лот на 8 этаже, откуда открывается завораживающий вид на лес.
"Морская Ривьера" - уникальный комплекс апартаментов бизнес-класса в Курортном районе Санкт-Петербурга, г. Зеленогорск. В Зеленогорск приезжают туристы со всех уголков страны и турпоток стремительно растет, поэтому комплекс имеет исключительную инвестиционную привлекательность. Покупка апартаментов в "Морской Ривьере" - это лучшее решение для сбережения и увеличения вашего дохода, потому что:
- это уникальная локация, по популярности сравнимая разве что с Невским проспектом. При этом, в Курортном районе появляется крайне мало новых проектов, что увеличивает его ценность как при сдаче, так и при последующей перепродаже;
- в отделке комплекса мы использовали только премиальные материалы, которые устойчивы к износу и эстетически привлекательны - это позволит минимизировать эксплуатационные расходы в будущем и позволит привлекать клиентов даже с самым избирательным вкусом;
- на закрытой и охраняемой территории комплекса 1,2 га продумана инфраструктура для спокойного или активного отдыха, которая привлекает людей всех возрастов и вкусов. Есть игровые и спортивные площадки, СПА-зона, тренажерный зал, лаунж зона с PlayStation и т.д. Одна из любимых локаций наших туристов - это открытый подогреваемый бассейн 25 м - он работает круглый год, поэтому поток туристов обеспечен вам даже в межсезонье. По сути, комплекс является самостоятельным курортом, что выгодно выделяет его от остальных конкурентов.
Наша управляющая компания может взять все хлопоты на себя: заселение, уборка, обслуживание, а вам останется просто получать выплаты.
А еще, в стоимость включен 22% НДС, которые вы можете сэкономить при оформлении апартамента на свое юридическое лицо. То есть, сразу на этапе покупки, получить скидку в 22%.
Благодаря этим фактам «Морская Ривьера» и является одним из самых выгодных инвестиционных проектов Санкт-Петербурга.
Записывайтесь на персональную встречу с нашим менеджером, успевайте пока еще открыты продажи.
03.02.2026
12 865 050 ₽
Продаются просторные 2-комнатные апартаменты у самого берега Финского залива площадью 79,9 м2. Идеально для семейного проживания и отдыха. Из комнаты и кухни есть выход на глубокую лоджию-аэрарий - там можно легко уместить 2 шезлонга и кофейный столик и наслаждаться видами на лес. Высокие потолки до 3 метров, гардеробная, остекление в пол. Черновая отделка позволит вам реализовать собственный дизайн.
Для семей с детьми мы предусмотрели все необходимое! Дом расположен в 50 метрах от Финского залива. Пляж широкий и песчаный, с собственным выходом. Окружают комплекс вековые хвойные деревья, воздух невероятно чистый и полезный, так как в Курортном районе нет предприятий. Такой воздух благоприятно влияет на сон, здоровье, самочувствие, а также на развитие детей.
Территория комплекса огромная и зеленая - 1,2 га. Ни одного члена семьи не оставит равнодушным большой открытый бассейн 25м с подогревом, он работает круглый год, можно просто поплавать и отдохнуть, а можно заняться спортом или даже устроить семейные соревнования.
А еще мы сделали:
- детские игровые площадки (для детей разных возрастов) , как на улице, так и в самом комплексе. Есть развивающие интерактивы, настольные игры, PlayStation. Пока дети играют, вы можете провести деловой созвон в лаунж-зоне или просто отдохнуть;
- тренажерный зал, теннисный корт, СПА-зону и многое другое. Здесь будет интересно абсолютно всем в любое время года!
И, конечно, мы тщательно продумали безопасность, чтобы вы могли спокойно жить и отдыхать. Территория комплекса закрыта от посторонних и охраняется круглосуточно. По всему периметру есть камеры видеонаблюдения, а попасть в помещения можно только по пропускам, так что вы сможете спокойно отпустить своего ребенка погулять одного, не тревожась за его безопасность.
Вы сможете жить у моря и при этом довольствоваться всей городской инфраструктурой - рядом есть школы, дет сады, поликлиника, рестораны, супермаркеты, лыжная база и тд. А до центра Санкт-Петербурга всего 40 минут езды.
А еще, в стоимость включен 22% НДС, которые вы можете сэкономить при оформлении апартамента на свое юридическое лицо. То есть, сразу на этапе покупки, получить скидку в 22%.
«Морская Ривьера» - это идеальный вариант для жизни и отдыха вашей семьи!
Записывайтесь на персональную экскурсию пока еще открыты продажи!
03.02.2026
34 958 857 ₽
Продаются просторные 2-комнатные апартаменты у самого берега Финского залива площадью 126,2 м2. Идеально для семейного проживания и отдыха. В апартаментах 2 глубокие лоджии-аэрарии - на каждой легко уместить по 2 шезлонга и кофейный столик и наслаждаться видами на лес. Высокие потолки до 3 метров, 2 санузла, остекление в пол, отделка white-box.
Для семей с детьми мы предусмотрели все необходимое! Дом расположен в 50 метрах от Финского залива. Пляж широкий и песчаный, с собственным выходом. Окружают комплекс вековые хвойные деревья, воздух невероятно чистый и полезный, так как в Курортном районе нет предприятий. Такой воздух благоприятно влияет на сон, здоровье, самочувствие, а также на развитие детей.
Территория комплекса огромная и зеленая - 1,2 га. Ни одного члена семьи не оставит равнодушным большой открытый бассейн 25м с подогревом, он работает круглый год, можно просто поплавать и отдохнуть, а можно заняться спортом или даже устроить семейные соревнования.
А еще мы сделали:
- детские игровые площадки (для детей разных возрастов) , как на улице, так и в самом комплексе. Есть развивающие интерактивы, настольные игры, PlayStation. Пока дети играют, вы можете провести деловой созвон в лаунж-зоне или просто отдохнуть;
- тренажерный зал, теннисный корт, СПА-зону и многое другое. Здесь будет интересно абсолютно всем в любое время года!
И, конечно, мы тщательно продумали безопасность, чтобы вы могли спокойно жить и отдыхать. Территория комплекса закрыта от посторонних и охраняется круглосуточно. По всему периметру есть камеры видеонаблюдения, а попасть в помещения можно только по пропускам, так что вы сможете спокойно отпустить своего ребенка погулять одного, не тревожась за его безопасность.
Вы сможете жить у моря и при этом довольствоваться всей городской инфраструктурой - рядом есть школы, дет сады, поликлиника, рестораны, супермаркеты, лыжная база и тд. А до центра Санкт-Петербурга всего 40 минут езды.
А еще, в стоимость включен 22% НДС, которые вы можете сэкономить при оформлении апартамента на свое юридическое лицо. То есть, сразу на этапе покупки, получить скидку в 22%.
«Морская Ривьера» - это идеальный вариант для жизни и отдыха вашей семьи!
Записывайтесь на персональную экскурсию пока еще открыты продажи!
03.02.2026
73 290 650 ₽
Продаются просторные 2-комнатные апартаменты у самого берега Финского залива площадью 126,5 м2. Идеально для семейного проживания и отдыха. Из каждой комнаты есть выход на глубокую лоджию-аэрарий - там можно легко уместить 2 шезлонга и кофейный столик и наслаждаться видами на лес. Высокие потолки до 3 метров, гардеробная, отделка white-box.
Для семей с детьми мы предусмотрели все необходимое! Дом расположен в 50 метрах от Финского залива. Пляж широкий и песчаный, с собственным выходом. Окружают комплекс вековые хвойные деревья, воздух невероятно чистый и полезный, так как в Курортном районе нет предприятий. Такой воздух благоприятно влияет на сон, здоровье, самочувствие, а также на развитие детей.
Территория комплекса огромная и зеленая - 1,2 га. Ни одного члена семьи не оставит равнодушным большой открытый бассейн 25м с подогревом, он работает круглый год, можно просто поплавать и отдохнуть, а можно заняться спортом или даже устроить семейные соревнования.
А еще мы сделали:
- детские игровые площадки (для детей разных возрастов) , как на улице, так и в самом комплексе. Есть развивающие интерактивы, настольные игры, PlayStation. Пока дети играют, вы можете провести деловой созвон в лаунж-зоне или просто отдохнуть;
- тренажерный зал, теннисный корт, СПА-зону и многое другое. Здесь будет интересно абсолютно всем в любое время года!
И, конечно, мы тщательно продумали безопасность, чтобы вы могли спокойно жить и отдыхать. Территория комплекса закрыта от посторонних и охраняется круглосуточно. По всему периметру есть камеры видеонаблюдения, а попасть в помещения можно только по пропускам, так что вы сможете спокойно отпустить своего ребенка погулять одного, не тревожась за его безопасность.
Вы сможете жить у моря и при этом довольствоваться всей городской инфраструктурой - рядом есть школы, дет сады, поликлиника, рестораны, супермаркеты, лыжная база и тд. А до центра Санкт-Петербурга всего 40 минут езды.
А еще, в стоимость включен 22% НДС, которые вы можете сэкономить при оформлении апартамента на свое юридическое лицо. То есть, сразу на этапе покупки, получить скидку в 22%.
«Морская Ривьера» - это идеальный вариант для жизни и отдыха вашей семьи!
Записывайтесь на персональную экскурсию пока еще открыты продажи!
03.02.2026
72 737 500 ₽
Продаются уютные 1-комнатные апартаменты у самого берега Финского залива. Идеально для жизни и отдыха. Площадь 46,3 м, высокие потолки до 3м, остекление в пол и глубокая лоджия-аэрарий: можно разместить два шезлонга, кофейный столик и наслаждаться свежим воздухом на собственной террасе. В апартаментах редкий для нашего времени уровень звукоизоляции, это вам позволит наслаждаться тишиной и приватностью. Отделка white-box. А также из крана течет чистейшая питьевая вода.
"Морская Ривьера" - уникальный комплекс в Курортном районе Санкт-Петербурга, г. Зеленогорск. Это респектабельный район с потрясающей экологией, ни одного производства по близости. Воздух здесь по-настоящему оздоравливает - он насыщен морем и соснами - создает атмосферу отдыха и восстановления. Прогулки вдоль залива в лучах заходящего солнца станут вашим личным ритуалом перезагрузки.
В вашем распоряжении территория 1,2 га, где вы можете расслабиться или активно провести время:
- подогреваемый открытый бассейн 25 м - работает круглый год, хотите - плавайте по дорожкам, тренируясь в своем темпе, хотите - просто отдыхайте в теплой воде, наслаждаясь видом на сосны и свежим воздухом;
- теннисный корт, тренажерный зал, СПА-зона, лаунж-зона с PlayStation и и полный набор инфраструктуры для активного или спокойного отдыха и летом и зимой.
Стоит отметить, что управляющая компания постоянно улучшает территорию для жителей: высаживает новые растения и делает все, чтобы вы наслаждались эстетичностью территории. К вашим услугам также охрана, горничные, садовники, хаус-мастер и приветливый консьерж.
Попадать в свои апартаменты вы будете через элегантные гранд-лобби и холлы. Интерьеры и отделочные материалы мы тщательно подбирали, чтобы объединить пространство окружающей природы и пространство дома. Каждая деталь - от пола до потолка, от светильников до дверных ручек - призвана подчеркивать статус вашего дома.
А еще, в стоимость включен 22% НДС, которые вы можете сэкономить при оформлении апартамента на свое юридическое лицо. То есть, сразу на этапе покупки, получить скидку в 22%.
"Морская Ривьера" - это собственная инфраструктура для первоклассного отдыха и комфортного проживания с захватывающими видами на Финский залив и вековой лес. Здесь вы найдете идеальный баланс между динамикой городской жизни, привычным уровнем сервиса бизнес-класса и спокойствием загородной резиденции.
Приглашаем вас на персональную экскурсию, чтобы в полной мере прочувствовать эту неповторимую атмосферу. Успевайте пока еще открыты продажи!
03.02.2026
27 154 950 ₽
Продаются просторные 2-комнатные апартаменты у самого берега Финского залива площадью 79,9 м2. Идеально для семейного проживания и отдыха. Из комнаты и кухни есть выход на глубокую лоджию-аэрарий - там можно легко уместить 2 шезлонга и кофейный столик и наслаждаться видами на лес. Высокие потолки до 3 метров, гардеробная, остекление в пол. Черновая отделка позволит вам реализовать собственный дизайн.
Для семей с детьми мы предусмотрели все необходимое! Дом расположен в 50 метрах от Финского залива. Пляж широкий и песчаный, с собственным выходом. Окружают комплекс вековые хвойные деревья, воздух невероятно чистый и полезный, так как в Курортном районе нет предприятий. Такой воздух благоприятно влияет на сон, здоровье, самочувствие, а также на развитие детей.
Территория комплекса огромная и зеленая - 1,2 га. Ни одного члена семьи не оставит равнодушным большой открытый бассейн 25м с подогревом, он работает круглый год, можно просто поплавать и отдохнуть, а можно заняться спортом или даже устроить семейные соревнования.
А еще мы сделали:
- детские игровые площадки (для детей разных возрастов) , как на улице, так и в самом комплексе. Есть развивающие интерактивы, настольные игры, PlayStation. Пока дети играют, вы можете провести деловой созвон в лаунж-зоне или просто отдохнуть;
- тренажерный зал, теннисный корт, СПА-зону и многое другое. Здесь будет интересно абсолютно всем в любое время года!
И, конечно, мы тщательно продумали безопасность, чтобы вы могли спокойно жить и отдыхать. Территория комплекса закрыта от посторонних и охраняется круглосуточно. По всему периметру есть камеры видеонаблюдения, а попасть в помещения можно только по пропускам, так что вы сможете спокойно отпустить своего ребенка погулять одного, не тревожась за его безопасность.
Вы сможете жить у моря и при этом довольствоваться всей городской инфраструктурой - рядом есть школы, дет сады, поликлиника, рестораны, супермаркеты, лыжная база и тд. А до центра Санкт-Петербурга всего 40 минут езды.
А еще, в стоимость включен 22% НДС, которые вы можете сэкономить при оформлении апартамента на свое юридическое лицо. То есть, сразу на этапе покупки, получить скидку в 22%.
«Морская Ривьера» - это идеальный вариант для жизни и отдыха вашей семьи!
Записывайтесь на персональную экскурсию пока еще открыты продажи!
03.02.2026
45 575 557 ₽
Продаются просторные 1-комнатные апартаменты у самого берега Финского залива. Идеально для жизни и отдыха. Площадь 136,2 м, кухня 39,4 м высокие потолки до 3м, остекление в пол и 2 глубокие лоджии-аэрарии: на каждой можно разместить по два шезлонга, кофейный столик и наслаждаться свежим воздухом на собственной террасе. В апартаментах редкий для нашего времени уровень звукоизоляции, это вам позволит наслаждаться тишиной и приватностью, а из крана течет чистейшая питьевая вода. Черновая отделка позволит вам реализовать собственный дизайн.
"Морская Ривьера" - уникальный комплекс в Курортном районе Санкт-Петербурга, г. Зеленогорск. Это респектабельный район с потрясающей экологией, ни одного производства по близости. Воздух здесь по-настоящему оздоравливает - он насыщен морем и соснами - создает атмосферу отдыха и восстановления. Прогулки вдоль залива в лучах заходящего солнца станут вашим личным ритуалом перезагрузки.
В вашем распоряжении территория 1,2 га, где вы можете расслабиться или активно провести время:
- подогреваемый открытый бассейн 25 м - работает круглый год, хотите - плавайте по дорожкам, тренируясь в своем темпе, хотите - просто отдыхайте в теплой воде, наслаждаясь видом на сосны и свежим воздухом;
- теннисный корт, тренажерный зал, СПА-зона, лаунж-зона с PlayStation и и полный набор инфраструктуры для активного или спокойного отдыха и летом и зимой.
Стоит отметить, что управляющая компания постоянно улучшает территорию для жителей: высаживает новые растения и делает все, чтобы вы наслаждались эстетичностью территории. К вашим услугам также охрана, горничные, садовники, хаус-мастер и приветливый консьерж.
Попадать в свои апартаменты вы будете через элегантные гранд-лобби и холлы. Интерьеры и отделочные материалы мы тщательно подбирали, чтобы объединить пространство окружающей природы и пространство дома. Каждая деталь - от пола до потолка, от светильников до дверных ручек - призвана подчеркивать статус вашего дома.
А еще, в стоимость включен 22% НДС, которые вы можете сэкономить при оформлении апартамента на свое юридическое лицо. То есть, сразу на этапе покупки, получить скидку в 22%.
"Морская Ривьера" - это собственная инфраструктура для первоклассного отдыха и комфортного проживания с захватывающими видами на Финский залив и вековой лес. Здесь вы найдете идеальный баланс между динамикой городской жизни, привычным уровнем сервиса бизнес-класса и спокойствием загородной резиденции.
Приглашаем вас на персональную экскурсию, чтобы в полной мере прочувствовать эту неповторимую атмосферу. Успевайте пока еще открыты продажи!
03.02.2026
79 889 200 ₽
Продается 1-комн. квартира, площадью 39.49 м2 в малоэтажной. Возможен вариант покупки с использованием ипотечных средств, возможна покупка с использованием материнского капитала, есть военная ипотека.
Жилая площадь 18.7 м2, кухня 12.19 м2, комнаты изолированные.
Квартира располагается на 1 этаже 4-этажного дома в ЖК Верево Сити.
Застройщик - Строй Бизнес Групп специализированный застройщик, сдача дома - II квартал 2025 года, закрытая территория.
Парковка автомобилей - наземная, парковка охраняется. Обеспечение безопасности: видеонаблюдение. Инфраструктура: школа, детский сад, поликлиника, детские площадки, спортивные площадки, места для отдыха, супермаркет.
Для бронирования конкретной квартиры звоните по номеру телефона в объявлении.
ЖК Верево Сити - это современный городской жилой квартал малоэтажной застройки.
В 10-ти четырехэтажных корпусах сможет поселиться 1171 семья. Дома располагаются блоками, образуя уютные закрытые и безопасные дворы с большим количеством зеленых насаждений и с зонами отдыха для взрослых и детей.
В ЖК Верево Сити самое низкое ценовое предложение в Ленинградской области и пригородах Санкт-Петербурга, что позволит вам приобрести жилье большей площади, нежели в других жилых комплексах.
Отделка - черновая.
Комфортная среда для жизни:
- малоэтажные красивые здания современной архитектуры, с большой площадью остекления
- обособленная территория
- продуманные планировки, как привычные одно- и двухкомнатные квартиры, так и европланировки
- небольшая плотность населения: комплекс располагается на 6,5 га земли
- полная внутренняя инфраструктура, которая позволит жить с комфортом
Позвоните и узнайте условия покупки прямо сейчас!
Аккредитованные банки: ПАО Сбербанк
Позвоните и узнайте условия покупки прямо сейчас!
19.01.2026
4 549 248 ₽
Продается 1-комн. квартира, площадью 39.32 м2 в малоэтажной. Возможен вариант покупки с использованием ипотечных средств, возможна покупка с использованием материнского капитала, есть военная ипотека.
Жилая площадь 21.68 м2, кухня 10.7 м2, комнаты изолированные.
Квартира располагается на 4 этаже 4-этажного дома в ЖК Верево Сити.
Застройщик - Строй Бизнес Групп специализированный застройщик, сдача дома - II квартал 2025 года, закрытая территория.
Парковка автомобилей - наземная, парковка охраняется. Обеспечение безопасности: видеонаблюдение. Инфраструктура: школа, детский сад, поликлиника, детские площадки, спортивные площадки, места для отдыха, супермаркет.
Для бронирования конкретной квартиры звоните по номеру телефона в объявлении.
ЖК Верево Сити - это современный городской жилой квартал малоэтажной застройки.
В 10-ти четырехэтажных корпусах сможет поселиться 1171 семья. Дома располагаются блоками, образуя уютные закрытые и безопасные дворы с большим количеством зеленых насаждений и с зонами отдыха для взрослых и детей.
В ЖК Верево Сити самое низкое ценовое предложение в Ленинградской области и пригородах Санкт-Петербурга, что позволит вам приобрести жилье большей площади, нежели в других жилых комплексах.
Отделка - черновая.
Комфортная среда для жизни:
- малоэтажные красивые здания современной архитектуры, с большой площадью остекления
- обособленная территория
- продуманные планировки, как привычные одно- и двухкомнатные квартиры, так и европланировки
- небольшая плотность населения: комплекс располагается на 6,5 га земли
- полная внутренняя инфраструктура, которая позволит жить с комфортом
Позвоните и узнайте условия покупки прямо сейчас!
Аккредитованные банки: ПАО Сбербанк
Позвоните и узнайте условия покупки прямо сейчас!
03.12.2025
4 529 664 ₽




















