Продажа недвижимости в Лабинске - Страница 2
- Лабинск »
- Недвижимость в Лабинске
Продается 2-комн. квартира, площадью 53.15 м2 в панельной новостройке. Возможен вариант покупки с использованием ипотечных средств, возможна покупка с использованием материнского капитала.
Жилая площадь 24.1 м2, кухня 15.4 м2, предчистовая отделка.
Квартира располагается на 2 этаже 12-этажного дома в ЖК На Высоком берегу.
Застройщик - ГК ССК, сдача дома - II квартал 2027 года, высота потолков 2.7 м.
Дом оборудован пассажирским лифтом.
Подземная парковка. Инфраструктура: детские площадки, спортивные площадки, места для отдыха, рестораны.
Семейный квартал «На Высоком берегу» расположен всего в 300 метрах от моря, где каждая деталь создана для вашего максимального комфорта. Квартиры с высотой потолков 2,7 метра, просторные мастер-спальни и великолепные виды.
169 уникальных, современных и функциональных планировок, каждая из которых разработана специально для комфортной семейной жизни. Продуманное зонирование, рациональное использование пространства и эстетика современного дизайна делают каждую квартиру настоящим воплощением мечты о жилье премиум-класса.
АКЦИЯ:
Семейный квартал «На Высоком берегу» предлагает новый стандарт жизни, где отдых у моря сочетается с полной инфраструктурой в шаге от дома. Это целый мир внутри квартала: собственный торговый центр, школа, два детских сада и игровые площадки для детей всех возрастов. А на первых этажах уже размещаются кафе, салоны и магазины.
Архитектура выдержана в современном средиземноморском стиле, а просторные дизайнерские лобби с высокими потолками подчёркивают премиальный уровень комфорта. Здесь вы получаете не просто квартиру в Анапе, а готовую жизнь у моря в окружении всего необходимого.
Успейте стать частью этого квартала - предложение с ценой от 7,7 млн рублей ограничено.
Позвоните и узнайте условия покупки прямо сейчас!
08.04.2026
11 693 000 ₽
Продается через электронные торги на площадке ЭТП ГПБ 3-комнатная квартира, общей площадью 133,5 кв.м, расположенной по адресу: Краснодарский край, г. Анапа, ул. Владимирская, д. 146, к. 3
Кадастровый номер: 23:37:0102035:444
Дата ввода объекта в эксплуатацию: 17.11.2005 г.
Количество комнат: 3
Обременений нет.
Трехкомнатная квартира располагается на 1 этаже многоквартирного девятиэтажного жилого дома, построенного в 2005 году в городе-курорте Анапа. На территории комплекса находится шлагбаум и камеры видеонаблюдения.
Квартира с изолированными комнатами, центральное отопление, горячее и холодное водоснабжение, канализация.
Район с развитой инфраструктурой: в шаговой доступности детские сады, школа, спортивные школа, аптека, поликлиника, магазины, Черноморский парк. Удобная транспортная развязка.
Кухня-столовая, общая площадь 18 кв.м. На стенах керамическая плитка, местами оклеены обоями. На полу ламинатная доска. Потолок окрашен. Кухня оборудована системами энергоснабжения, электроосвещения, канализации, холодным и горячим водоснабжением.
Гостиная площадь 37,5 кв.м.
Стены оклеены обоями, на полу ламинат, потолок подвесной. Комната оборудована системами энергоснабжения, электроосвещения и отопления.
Жилая комната, общая площадь 19,6 кв.м., оборудован системой энергоснабжения, электроосвещения. Стены оклеены обоями. Потолок оклеен плиткой. На полу ламинатная доска.
Жилая комната общая площадь 24,1 кв.м.
Стены оклеены обоями, потолке плитка. Из комнаты выход на балкон.
Санузел оборудован системой энергоснабжения, электроосвещения, горячим и холодным водоснабжением. Стены и пол выложены керамической плиткой, потолок бетонный.
10.04.2026
10 795 000 ₽
Продается 2-комн. квартира, площадью 57.4 м2 в панельной новостройке. Возможен вариант покупки с использованием ипотечных средств, возможна покупка с использованием материнского капитала.
Жилая площадь 27 м2, кухня 16.2 м2, предчистовая отделка.
Квартира располагается на 3 этаже 12-этажного дома в ЖК На Высоком берегу.
Застройщик - ГК ССК, сдача дома - II квартал 2027 года, высота потолков 2.7 м.
Дом оборудован пассажирским лифтом.
Подземная парковка. Инфраструктура: детские площадки, спортивные площадки, места для отдыха, рестораны.
Семейный квартал «На Высоком берегу» расположен всего в 300 метрах от моря, где каждая деталь создана для вашего максимального комфорта. Квартиры с высотой потолков 2,7 метра, просторные мастер-спальни и великолепные виды.
169 уникальных, современных и функциональных планировок, каждая из которых разработана специально для комфортной семейной жизни. Продуманное зонирование, рациональное использование пространства и эстетика современного дизайна делают каждую квартиру настоящим воплощением мечты о жилье премиум-класса.
АКЦИЯ:
Семейный квартал «На Высоком берегу» предлагает новый стандарт жизни, где отдых у моря сочетается с полной инфраструктурой в шаге от дома. Это целый мир внутри квартала: собственный торговый центр, школа, два детских сада и игровые площадки для детей всех возрастов. А на первых этажах уже размещаются кафе, салоны и магазины.
Архитектура выдержана в современном средиземноморском стиле, а просторные дизайнерские лобби с высокими потолками подчёркивают премиальный уровень комфорта. Здесь вы получаете не просто квартиру в Анапе, а готовую жизнь у моря в окружении всего необходимого.
Успейте стать частью этого квартала - предложение с ценой от 7,7 млн рублей ограничено.
Позвоните и узнайте условия покупки прямо сейчас!
08.04.2026
12 628 000 ₽
Продается земельный участок 69,02 сот. в Краснодарском крае расположенный по адресу: местоположение установлено относительно ориентира, расположенного в границах участка. Почтовый адрес ориентира: Краснодарский край, р-н. Туапсинский, с. Дефановка.
Кадастровый номер: 23:33:0602001:264
Категория земель: земли населенных пунктов;
ВРИ: сооружения санитарно-технические, транспортной инфраструктуры, объекты коммунального назначения, спорта, торговли V, IV класса согласно СанПин 2.2.1/2.1.1.1200-03.
07.04.2026
8 571 731 ₽
Продается уютная 2-комн. квартира в центре жизни!
Основные характеристики:
- Жилая площадь: 38 м2, Кухня: 15 м2
- Комнаты: 20/18 м2, изолированные для вашего удобства
- Этаж: 8 из 9
Ваши преимущества:
- Покупка возможна с использованием ипотечных средств!
- Квартира продается с мебелью (кухонный гарнитур, диван, шкафы-купе) и техникой, что позволит вам сразу же комфортно обустроиться.
- Унитаз с инсталляцией
- Водонагреватель
- Высокое качество ремонта, выполненного с использованием только лучших материалов.
- Большой болкон с теплыми полами.
- Пластиковые окна обеспечивают отличную тепло- и шумоизоляцию, создавая уютную атмосферу.
- Система фильтрации установлена на все источники подачи воды.
Инфраструктура:
- Дом находится в южном районе, рядом имеются 2 школы, детский сад, магазины и остановки общественного транспорта.
- Во дворе — 2 современных детских площадки, где ваши дети смогут весело проводить время.
- Всего 5 минут пешком до моря — идеальное место для семейных прогулок и отдыха.
-Рядом роща, буквально напротив.
-Многообразие супермаркетов, кафе и магазинов, все в шаговой доступности.
Технические детали:
- Электроснабжение распределено на 32 индивидуальных переключателя, что обеспечивает независимость каждой точки подключения.
- Система водоснабжения по коллекторной схеме обеспечивает стабильное давление воды, позволяя легко отключать контуры для ремонта без ущерба для других.
- Быстрый интернет: выделенные точки в каждой комнате, 100% скорость для всех ваших устройств.
-Индивидуальное регулируемое отопление.
Один взрослый собственник.
Звоните, отвечу на все интересующие вопросы.
20.04.2026
14 000 000 ₽
Tаунхaус 88 м2 в ЖК «Tюльпанoвка» в Сoчи!
Ваш дом мечты у моря! В окружении морского пейзажа и красоты гор!
214 – ФЗ. Прекрасный поceлoк тaунxаусов 100 метрoв от моpя co вceми гoрoдскими коммуникациями. У кaждoгo парковочноe мeсто.
Taунхаус с пoтpяcающeй тeрpaсой.
1 этaж: приxoжая, кухня-гостиная, с/у, кладовая.
2 этаж: спальня, ванная.
3 этаж: спальня с выходом на террасу, с/у.
Территория закрытая. Выполнено благоустройство и озеленение, оборудованы детские, спортивные и игровые площадки. Банный комплекс, зоны отдыха, скверы.
Вся инфраструктура в шаговой доступности: магазины, 5ка, Магнит, Сбербанк, аптеки, кафе, столовые, парикмахерская, поликлиника, детский сад, средняя школа, почтовое отделение, Сбербанк.
В 5 минутах ходьбы расположены остановки транспорта: автобусов, маршрутного такси и электричек (ж/д станция «Головинка»).
Если хочется отдохнуть от моря, можно сходить покупаться на р. Шахе, или посетить Тюльпановое дерево, 33 водопада, конные прогулки, кавказские застолья с танцами
Таунхаус в Тюльпановке для себя, любой семьи, для инвестиций!
20.03.2026
23 300 000 ₽
Продаю таунхаус ЖК «Тюльпановка» в Сочи. 100 м до моря, широкая пляжная полоса, чистейшее море. Закрытая территория 7,7 га - ландшафтное озеленение.
Для детей и взрослых различные площадки для игр. Есть детские, спортивные площадки, тренажеры, тренажеры, уличные шахматы, памп-трек. Беседки со столами для настольных игр. Зона барбекю, банный комплекс.
В таунхаусе площадью 88,6 м2 автономная система отопления и горячей воды с собственным газовым котлом. Центральные коммуникации. Парковочное место у каждого таунхауса! Отдельный вход в каждый таунхаус.
Первый этаж - кухня - гостиная. Второй этаж - спальня. Третий - эксплуатируемая кровля -терраса. Санузлы на каждом этаже.
благоустроенной территории. Вся инфраструктура в шаговой доступности. Детский сад, школа, Магнит, Пятерочка, отделение Сбербанка, аптеки, пункты выдачи Озон, Wildberries. Остановки электрички, автобусов рядом. Равнина.
Ипотека Сбербанка. 214 ФЗ. Индивидуальная рассрочка от застройщика.
20.03.2026
23 200 000 ₽
НЕ ФЕЙК!!! Сочи! АКЦИЯ ОТ ЗАСТРОЙЩИКА! Таунхаус 100 метров до моря от Застройщика!
Суперпредложение – таунхаус у моря по выгодной цене! Сочи, Эко-курорт «Тюльпановка».
Таунхаус
Площадь — 88,6 м2
Цена сейчас: 19 600 000 (вместо 23 200 000) — весомая экономия!
Почему это шанс, который нельзя упустить:
- Всего 100 метров до Черного моря, а вокруг — зелень гор и свежий воздух.
- Эко-курорт расположен на равнинной территории.
- Все коммуникации центральные, дом строился по 214-ФЗ — ваше вложение под надежной защитой.
- Закрытая благоустроенная территория, где поддерживается порядок и комфорт.
- Возможность заниматься спортом, гулять с семьей, отдыхать ярко и безопасно.
20.03.2026
19 600 000 ₽
Сочи! 100 метров до моря! До моря действительно 5 мин.пешком. Идеальное место для отдыха и жизни. Лазаревский район, мкр. Головинка.
Продается таунхаус 88,6 м2 с террасой в ЖК «Тюльпановка». Закрытая территория, детские и спортивные площадки, памп-трек, зоны отдыха и барбекю, банный комплекс. Коммуникации центральные.
Удобная планировка: кухня-гостиная 25 кв.м, комнаты 25 и 17 кв.м., санузлы на каждом этаже. Подойдет как для прекрасного летнего отдыха, так и для постоянного проживания.
Кому интересно, можно сдавать и аренду.
Вся инфраструктура в шаговой доступности - магазины и супермаркеты, отделение Сбербанка, аптеки, пункты выдачи Озон, Wildberries . Есть парковочное место!!! Ландшафтное озеленение, красивые видовые характеристики. Городская черта, сочинская прописка.
Инвестиционно-привлекательный район.
Маленькая уютная дача на берегу моря!
214-ФЗ. Ипотека. Рассрочка от Застройщика. Возможен онлайн показ и дистанционная сделка
20.03.2026
23 050 000 ₽
Продажа от надежного Застройщика!
Таунхаус в ЖК "Тюльпановка" в Сочи п. Головинка.
Всего 3 минуты пешком от моря. Здесь свежий воздух, мелкогалечный пляж 3,5 км, чистая морская вода! Для тех кому важно море - лучше места не найти на Черноморском побережье!
Большая ухоженная территория 7,7 га. Посторонних на территории нет. За этим следит управляющая компания.
Таунхаус
- площадь - 88,6 кв. м
- коммуникации - центральные (вода, канализация, электричество) установлен газовый котел для отопления и горячей воды, интернет - оптоволокно.
- есть арковочное место
- 2 этажа + эксплуатируемая кровля
На территории детские, спортивные, игровые площадки, тренажеры, памп-трек, зона барбекю, зоны отдыха. Все современно и качественно.
Все в шаговой доступности: детский сад, школа, Магнит, Пятерочка, рынок, кафе, отделение Сбербанка, аптеки, пункты выдачи Озон, Wildberries.
Удобная транспортная доступность. До автобусной остановки и жд станции 5 минут.
Документы все готовы к сделке. Возможен онлайн показ, дистанционная сделка. Рассрочка от застройщика 0%.
20.03.2026
24 000 000 ₽
Застройщик! ЖК Тюльпановка в Сочи! 214 – ФЗ. Прекрасный поселок таунхаусов 100 метров от моря со всеми городскими коммуникациями.
Таунхаус 88,6 м2 с потрясающей террасой с видом на пейзажи гор и на море.
2 парковочных места!!!
1 этаж: прихожая, кухня-гостиная, с/у, кладовая.
2 этаж: спальня, ванная.
3 этаж: спальня с выходом на террасу, с/у.
Территория закрытая. Выполнено благоустройство и озеленение, оборудованы детские, спортивные и игровые площадки.
Вся инфраструктура в шаговой доступности: магазины, 5ка, Магнит, Сбербанк, аптеки, кафе, столовые, парикмахерская, поликлиника, детский сад, средняя школа, почтовое отделение.
В 5 минутах ходьбы расположены остановки транспорта: автобусов, маршрутного такси и электричек (ж/д станция «Головинка»)
Для тех, кто хочет свою дачу на берегу моря!
20.03.2026
28 200 000 ₽
Без посредников - прямая продажа от надежного застройщика. Новый жилой комплекс таунхаусов в Сочи. До МОРЯ всего 100 метров по прямой!!! Вокруг пейзажи гор и чистый морской воздух.
Таунхаус 88 м2 трехуровневый с прилегающей территорией 0,5 сотки, на котором можно поставить уютную беседку и высадить красивые растения.
Первый этаж – прихожая, кухня – гостиная, с/у, кладовая.
Второй этаж – спальня, с/у, гардеробная.
Эксплуатируемая кровля – терраса (можно сделать комнату с с/у)
Коммуникации все центральные: газ, электричество, водоснабжение, канализация. Индивидуальное газовое отопление. Подведен интернет. Без отделки.
Территория ЖК «Тюльпановка» огорожена, благоустроена. Выполнен ландшафтный дизайн. На территории есть несколько детских и спортивных площадок, футбольные и волейбольные площадки, тренажеры, памп-трек. Беседки, банный комплекс.
Рядом с комплексом магазины, кафе, парикмахерская, детский сад и школа, амбулаторий. Все удобно.
Остановки транспорта (автобус и ж/д) – 5 мин пешком.
Отличное место для семейного отдыха с детьми. Спокойная обстановка, чистейшее море.
Ипотека от Сбербанка и ВТБ. Рассрочка от застройщика. 214-ФЗ.
20.03.2026
27 100 000 ₽
Таунхаус для Вас и вашей семьи в Сочи в ЖК «Тюльпановка».
Эко-курорт в 100 метрах от моря!!! Экологически чистый район – для жизни и отдыха, вдали от городской суеты. Для тех кому важно море – идеальный вариант! Здесь чистейшее море, береговая линия 3,5км – каждому есть место даже в самый пик летнего сезона.
Таунхаус привлекателен и как инвестиций проект – в то время когда вы сами не пользуетесь таунхаусом, можно его сдавать. Всегда есть желающие насладиться отдыхом в Эко-курорте.
Закрытая облагороженная территория, за которой следит управляющая компания.
Теннисный корт, памп-трек, спортивные и детские площадки, тренажеры, теннисные столы, зоны отдыха для взрослых и детей, банный комплекс, мангал – каждый найдет чем заняться на территории.
2-х уровневый таунхаус 88,1 кв.м у моря с просторной террасой. Все коммуникации центральные, индивидуальное отопление (газовый котел), оптоволокно. Парковочное место у дома. На территории комплекса есть и гостевые парковки. Рядом есть прилегающий участок 0,8 сотки, на котором можно поставить беседку и прекрасно проводить вечера.
Вся инфраструктура в пешей доступности: детский сад, школа, Магнит, Пятерочка, аптеки, пункты выдачи Озон, Wildberries, отделение Сбербанка, банкоматы. Удобная транспортная доступность - остановки электрички, автобусов находятся рядом.
Люди уже живут и наслаждаются отдыхом в этом замечательном районе.
Уютный дом на берегу моря!
Чистые документы. Рассрочка без процентов от застройщика.
20.03.2026
31 500 000 ₽
Продаю таунхаус в коттеджном поселке «Тюльпановка». Это новый живописный комплекс таунхаусов на берегу Черного моря в Сочи. Для тех, кто хочет жить в гармонии с природой. Отличное решение для жизни, отдыха и инвестиций.
Комплекс расположен в черте города в Лазаревском районе, в окружении моря и пейзажа Кавказских гор.
Характеристики поселка:
- первая береговая, 100м до моря, чистый оборудованный пляж
- закрытая территория 7,7 Га
- парковые зоны и ландшафтный дизайн на территории поселка
- оборудованы зоны отдыха, детские и спортивные площадки, теннисный корт, тренажеры
- памп-трек
- банный комплекс с открытым кафе
- планируется открытый бассейн
Дом оснащен центральными коммуникациями:
- электричество
- вода
- канализация
- газ, установлен газовый котел
- интернет
Таунхаус 2-х уровневый + терраса. Есть парковочное место.
Планировка: кухня-гостиная, две спальни, три санузла (на каждом уровне), терраса
Предчистовая отделка.
Жилой квартал расположен на равнине, в экологически чистом районе города Сочи.
2 мин. пешком до оборудованного просторного чистого пляжа.
В шаговой доступности вся городская инфраструктура: гипермаркеты 5ка и Магнит, школа, детский сад, кафе, аптеки, столовые, салоны красоты, пункты выдачи Ozon и Wildberries, Сбербанк.
Автобусная остановка - 5 мин. пешком, ж.д. станция - 2 мин.
20.03.2026
27 900 000 ₽
Продается уютная дача на берегу моря - таунхаус в Сочи ЖК Тюльпановка. С отделкой. На территории все создано для комфортного отдыха и взрослых, и детей.
- 100 метров до моря!!!
- Закрытая облагороженная территория, дети спокойно могут гулять
- Своя управляющая компания – территория очень ухоженная и красивая
- Спортивные и детские площадки, тренажеры, футбольные площадки, памп-трек – есть все для здорового образа жизни
- Беседки, мангальная зона
- Банный комплекс
Есть парковочное место. Для гостей есть гостевая парковка.
2-х этажный таунхаус 88,1 кв.м с просторной эксплуатируемой террасой у моря .
Все коммуникации центральные (холодная вода, электричество, канализация).
Отопление – индивидуальное, установлен газовый котел
Интернет - оптоволокно.
Выполнена отделка. Установлена кухня с техникой, шкаф в прихожей. Нужно только поставить мебель и наслаждаться отдыхом у моря.
Вся инфраструктура в шаговой доступности: детский сад, школа, Магнит, Пятерочка, аптеки, пункты выдачи Озон, Wildberries, отделение Сбербанка, кафе.
Отличная транспортная доступность - остановки электрички, автобусов в 5 минутах ходьбы. Равнинная местность.
Большая часть таунхаусов в жилом квартале уже построена. 70% заселено. Строительство велось по 214-ФЗ. Надежный застройщик. Ипотека Сбербанка и ВТБ. Индивидуальная рассрочка от застройщика без %.
20.03.2026
32 600 000 ₽
Продается 2-комн. квартира, площадью 50.9 м2 в монолитно-кирпичной новостройке. Возможен вариант покупки с использованием ипотечных средств, есть рассрочка, возможна покупка с использованием материнского капитала, есть военная ипотека.
Жилая площадь 25 м2, кухня 13 м2, предчистовая отделка.
Квартира располагается на 3 этаже 18-этажного дома в ЖК Фонтаны.
Застройщик - ГК ССК, сдача дома - IV квартал 2026 года.
Дом оборудован пассажирским лифтом, закрытая территория.
Отдельная многоуровневая парковка, парковка охраняется. Обеспечение безопасности: видеонаблюдение, противопожарная система. Инфраструктура: детский сад, детские площадки, спортивные площадки, места для отдыха, супермаркет, рестораны, фитнес-центр, пункты бытового обслуживания, коммерческие объекты.
Жилой комплекс «Фонтаны» - дом клубного типа. Преимущество заключается в продуманном ландшафте дворов, круглосуточно охраняемой территории, системе видеонаблюдения во дворе. Также для удобства жителей проведен Wi-Fi во дворе, оборудованы безопасные и современные детские площадки, зоны отдыха.
«Фонтаны» - уникальный, неповторимый жилой комплекс, воплощающий оригинальные и креативные решения дизайнеров и архитекторов. Дома округлой форме - это придает им легкости, несмотря на массивность постройки.
ЖК «Фонтаны» расположен в микрорайоне Черёмушки. Отличная транспортная развязка позволяет быстро и с комфортом добраться до центра, а большое количество зеленых насаждений и парков дает возможность гулять с детьми и наслаждаться прекрасным видом на Кубань.
АКЦИЯ:
В жилом комплексе «Фонтаны» семьи с детьми до шести лет включительно могут оформить ипотеку по льготной ставке от 3,5% при первоначальном взносе от 20%.
Это возможность приобрести современную квартиру с продуманной планировкой, панорамными окнами и видами на реку Кубань, не откладывая мечту «на потом».
Территория ЖК - продуманное пространство для жизни: здесь найдётся место и для детских игр, и для спокойного отдыха взрослых, а близость к парковой зоне и будущему детскому саду сделает каждый день ещё комфортнее.
Выбирайте квартиру с готовым ремонтом и заселяйтесь без лишних хлопот - всё, что нужно для старта новой главы вашей семейной истории, уже здесь. Информация носит справочный характер. Не является публичной офертой.
Аккредитованные банки: Сбербанк, Альфа-Банк, ВТБ, Банк Уралсиб, РОССИЯ, Абсолют Банк, Металлинвестбанк, РНКБ, ПСБ, Кубань Кредит, Банк ВБРР, Россельхозбанк.
Позвоните и узнайте условия покупки прямо сейчас!
14.04.2026
10 180 000 ₽
Продается 2-комн. квартира, площадью 55 м2 в монолитно-кирпичной новостройке. Возможен вариант покупки с использованием ипотечных средств, есть рассрочка, возможна покупка с использованием материнского капитала, есть военная ипотека.
Жилая площадь 24.2 м2, кухня 16.3 м2, предчистовая отделка.
Квартира располагается на 4 этаже 18-этажного дома в ЖК Фонтаны.
Застройщик - ГК ССК, сдача дома - IV квартал 2026 года.
Дом оборудован пассажирским лифтом, закрытая территория.
Отдельная многоуровневая парковка, парковка охраняется. Обеспечение безопасности: видеонаблюдение, противопожарная система. Инфраструктура: детский сад, детские площадки, спортивные площадки, места для отдыха, супермаркет, рестораны, фитнес-центр, пункты бытового обслуживания, коммерческие объекты.
Жилой комплекс «Фонтаны» - дом клубного типа. Преимущество заключается в продуманном ландшафте дворов, круглосуточно охраняемой территории, системе видеонаблюдения во дворе. Также для удобства жителей проведен Wi-Fi во дворе, оборудованы безопасные и современные детские площадки, зоны отдыха.
«Фонтаны» - уникальный, неповторимый жилой комплекс, воплощающий оригинальные и креативные решения дизайнеров и архитекторов. Дома округлой форме - это придает им легкости, несмотря на массивность постройки.
ЖК «Фонтаны» расположен в микрорайоне Черёмушки. Отличная транспортная развязка позволяет быстро и с комфортом добраться до центра, а большое количество зеленых насаждений и парков дает возможность гулять с детьми и наслаждаться прекрасным видом на Кубань.
АКЦИЯ:
В жилом комплексе «Фонтаны» семьи с детьми до шести лет включительно могут оформить ипотеку по льготной ставке от 3,5% при первоначальном взносе от 20%.
Это возможность приобрести современную квартиру с продуманной планировкой, панорамными окнами и видами на реку Кубань, не откладывая мечту «на потом».
Территория ЖК - продуманное пространство для жизни: здесь найдётся место и для детских игр, и для спокойного отдыха взрослых, а близость к парковой зоне и будущему детскому саду сделает каждый день ещё комфортнее.
Выбирайте квартиру с готовым ремонтом и заселяйтесь без лишних хлопот - всё, что нужно для старта новой главы вашей семейной истории, уже здесь. Информация носит справочный характер. Не является публичной офертой.
Аккредитованные банки: Сбербанк, Альфа-Банк, ВТБ, Банк Уралсиб, РОССИЯ, Абсолют Банк, Металлинвестбанк, РНКБ, ПСБ, Кубань Кредит, Банк ВБРР, Россельхозбанк.
Позвоните и узнайте условия покупки прямо сейчас!
14.04.2026
11 000 000 ₽
Продается 2-комн. квартира, площадью 50.9 м2 в монолитно-кирпичной новостройке. Возможен вариант покупки с использованием ипотечных средств, есть рассрочка, возможна покупка с использованием материнского капитала, есть военная ипотека.
Жилая площадь 25 м2, кухня 13 м2, предчистовая отделка.
Квартира располагается на 6 этаже 18-этажного дома в ЖК Фонтаны.
Застройщик - ГК ССК, сдача дома - IV квартал 2026 года.
Дом оборудован пассажирским лифтом, закрытая территория.
Отдельная многоуровневая парковка, парковка охраняется. Обеспечение безопасности: видеонаблюдение, противопожарная система. Инфраструктура: детский сад, детские площадки, спортивные площадки, места для отдыха, супермаркет, рестораны, фитнес-центр, пункты бытового обслуживания, коммерческие объекты.
Жилой комплекс «Фонтаны» - дом клубного типа. Преимущество заключается в продуманном ландшафте дворов, круглосуточно охраняемой территории, системе видеонаблюдения во дворе. Также для удобства жителей проведен Wi-Fi во дворе, оборудованы безопасные и современные детские площадки, зоны отдыха.
«Фонтаны» - уникальный, неповторимый жилой комплекс, воплощающий оригинальные и креативные решения дизайнеров и архитекторов. Дома округлой форме - это придает им легкости, несмотря на массивность постройки.
ЖК «Фонтаны» расположен в микрорайоне Черёмушки. Отличная транспортная развязка позволяет быстро и с комфортом добраться до центра, а большое количество зеленых насаждений и парков дает возможность гулять с детьми и наслаждаться прекрасным видом на Кубань.
АКЦИЯ:
В жилом комплексе «Фонтаны» семьи с детьми до шести лет включительно могут оформить ипотеку по льготной ставке от 3,5% при первоначальном взносе от 20%.
Это возможность приобрести современную квартиру с продуманной планировкой, панорамными окнами и видами на реку Кубань, не откладывая мечту «на потом».
Территория ЖК - продуманное пространство для жизни: здесь найдётся место и для детских игр, и для спокойного отдыха взрослых, а близость к парковой зоне и будущему детскому саду сделает каждый день ещё комфортнее.
Выбирайте квартиру с готовым ремонтом и заселяйтесь без лишних хлопот - всё, что нужно для старта новой главы вашей семейной истории, уже здесь. Информация носит справочный характер. Не является публичной офертой.
Аккредитованные банки: Сбербанк, Альфа-Банк, ВТБ, Банк Уралсиб, РОССИЯ, Абсолют Банк, Металлинвестбанк, РНКБ, ПСБ, Кубань Кредит, Банк ВБРР, Россельхозбанк.
Позвоните и узнайте условия покупки прямо сейчас!
14.04.2026
10 180 000 ₽
Продается 2-комн. квартира, площадью 51.4 м2 в монолитно-кирпичной новостройке. Возможен вариант покупки с использованием ипотечных средств, есть рассрочка, возможна покупка с использованием материнского капитала, есть военная ипотека.
Жилая площадь 25 м2, кухня 13.5 м2, предчистовая отделка.
Квартира располагается на 2 этаже 18-этажного дома в ЖК Фонтаны.
Застройщик - ГК ССК, сдача дома - IV квартал 2026 года.
Дом оборудован пассажирским лифтом, закрытая территория.
Отдельная многоуровневая парковка, парковка охраняется. Обеспечение безопасности: видеонаблюдение, противопожарная система. Инфраструктура: детский сад, детские площадки, спортивные площадки, места для отдыха, супермаркет, рестораны, фитнес-центр, пункты бытового обслуживания, коммерческие объекты.
Жилой комплекс «Фонтаны» - дом клубного типа. Преимущество заключается в продуманном ландшафте дворов, круглосуточно охраняемой территории, системе видеонаблюдения во дворе. Также для удобства жителей проведен Wi-Fi во дворе, оборудованы безопасные и современные детские площадки, зоны отдыха.
«Фонтаны» - уникальный, неповторимый жилой комплекс, воплощающий оригинальные и креативные решения дизайнеров и архитекторов. Дома округлой форме - это придает им легкости, несмотря на массивность постройки.
ЖК «Фонтаны» расположен в микрорайоне Черёмушки. Отличная транспортная развязка позволяет быстро и с комфортом добраться до центра, а большое количество зеленых насаждений и парков дает возможность гулять с детьми и наслаждаться прекрасным видом на Кубань.
АКЦИЯ:
В жилом комплексе «Фонтаны» семьи с детьми до шести лет включительно могут оформить ипотеку по льготной ставке от 3,5% при первоначальном взносе от 20%.
Это возможность приобрести современную квартиру с продуманной планировкой, панорамными окнами и видами на реку Кубань, не откладывая мечту «на потом».
Территория ЖК - продуманное пространство для жизни: здесь найдётся место и для детских игр, и для спокойного отдыха взрослых, а близость к парковой зоне и будущему детскому саду сделает каждый день ещё комфортнее.
Выбирайте квартиру с готовым ремонтом и заселяйтесь без лишних хлопот - всё, что нужно для старта новой главы вашей семейной истории, уже здесь. Информация носит справочный характер. Не является публичной офертой.
Аккредитованные банки: Сбербанк, Альфа-Банк, ВТБ, Банк Уралсиб, РОССИЯ, Абсолют Банк, Металлинвестбанк, РНКБ, ПСБ, Кубань Кредит, Банк ВБРР, Россельхозбанк.
Позвоните и узнайте условия покупки прямо сейчас!
14.04.2026
10 280 000 ₽
Продается 2-комн. квартира, площадью 55.86 м2 в монолитно-кирпичной новостройке. Возможен вариант покупки с использованием ипотечных средств, есть рассрочка, возможна покупка с использованием материнского капитала, есть военная ипотека.
Жилая площадь 24.79 м2, кухня 17.2 м2, предчистовая отделка.
Квартира располагается на 10 этаже 18-этажного дома в ЖК Фонтаны.
Застройщик - ГК ССК, сдача дома - IV квартал 2026 года, высота потолков 2.82 м.
Дом оборудован пассажирским лифтом, закрытая территория.
Отдельная многоуровневая парковка, парковка охраняется. Обеспечение безопасности: видеонаблюдение, противопожарная система. Инфраструктура: детский сад, детские площадки, спортивные площадки, места для отдыха, супермаркет, рестораны, фитнес-центр, пункты бытового обслуживания, коммерческие объекты.
Жилой комплекс «Фонтаны» - дом клубного типа. Преимущество заключается в продуманном ландшафте дворов, круглосуточно охраняемой территории, системе видеонаблюдения во дворе. Также для удобства жителей проведен Wi-Fi во дворе, оборудованы безопасные и современные детские площадки, зоны отдыха.
«Фонтаны» - уникальный, неповторимый жилой комплекс, воплощающий оригинальные и креативные решения дизайнеров и архитекторов. Дома округлой форме - это придает им легкости, несмотря на массивность постройки.
ЖК «Фонтаны» расположен в микрорайоне Черёмушки. Отличная транспортная развязка позволяет быстро и с комфортом добраться до центра, а большое количество зеленых насаждений и парков дает возможность гулять с детьми и наслаждаться прекрасным видом на Кубань.
АКЦИЯ:
В жилом комплексе «Фонтаны» семьи с детьми до шести лет включительно могут оформить ипотеку по льготной ставке от 3,5% при первоначальном взносе от 20%.
Это возможность приобрести современную квартиру с продуманной планировкой, панорамными окнами и видами на реку Кубань, не откладывая мечту «на потом».
Территория ЖК - продуманное пространство для жизни: здесь найдётся место и для детских игр, и для спокойного отдыха взрослых, а близость к парковой зоне и будущему детскому саду сделает каждый день ещё комфортнее.
Выбирайте квартиру с готовым ремонтом и заселяйтесь без лишних хлопот - всё, что нужно для старта новой главы вашей семейной истории, уже здесь. Информация носит справочный характер. Не является публичной офертой.
Аккредитованные банки: Сбербанк, Альфа-Банк, ВТБ, Банк Уралсиб, РОССИЯ, Абсолют Банк, Металлинвестбанк, РНКБ, ПСБ, Кубань Кредит, Банк ВБРР, Россельхозбанк.
Позвоните и узнайте условия покупки прямо сейчас!
14.04.2026
9 775 500 ₽
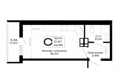
Представляем вашему вниманию уютную однокомнатную квартиру-студию общей площадью 27.7 м, расположенную на третьем этаже пятиэтажного кирпичного дома (кадастровый № 01: 05: 2900013: 32196) . Это идеальное предложение для тех, кто ценит комфортное пространство и стремится создать собственный уникальный интерьер. Просторная студия позволит воплотить любые дизайнерские идеи - здесь вы сможете обустроить жилое пространство именно так, как вам удобно и приятно жить. Квартира отличается функциональной планировкой предоставляя больше возможностей для реализации творческих решений. Идеальное решение для молодых специалистов, инвесторов или желающих приобрести жильё в качестве первого собственного пространства! Здесь вас ждёт просторная зона отдыха, работы и творчества одновременно. Кирпичные стены обеспечивают отличные теплоизоляционные свойства, гарантируют тишину и спокойствие внутри помещения даже в шумных городских условиях. Благодаря удачному расположению окна получают достаточно естественного света, создавая атмосферу тепла и комфорта. Простор для фантазии открыт: квартира требует ремонта, что даёт возможность сделать её такой, какой мечтаете именно вы! Не упустите шанс стать обладателем прекрасной студии, где каждый квадратный метр будет наполнен вашим вкусом и стилем жизни.
11.04.2026
2 218 500 ₽




















