Продать квартиру в Курганинске - Страница 6
- Курганинск »
- Недвижимость
- » Квартиры
- » Продажа квартир в Курганинске
Продается 2-комн. квартира, площадью 63.17 м2 в монолитно-кирпичной новостройке. Возможен вариант покупки с использованием ипотечных средств, есть рассрочка, возможна покупка с использованием материнского капитала, есть военная ипотека.
Жилая площадь 26.01 м2, кухня 15.63 м2, предчистовая отделка.
Квартира располагается на 4 этаже 8-этажного дома в ЖК Резиденция морей.
Застройщик - ГК ССК, сдача дома - IV квартал 2026 года, высота потолков 2.85 м.
Дом оборудован пассажирским лифтом, закрытая территория.
Подземная парковка, парковка охраняется. Обеспечение безопасности: видеонаблюдение, пропускная система. Инфраструктура: детские площадки, спортивные площадки, супермаркет, рестораны, фитнес-центр, пункты бытового обслуживания, коммерческие объекты.
ЖК «Резиденция морей» расположен всего в трёх минутах от живописного побережья пляжа Мысхако. Окунитесь в роскошь и комфорт, наслаждаясь исключительным видом на море и непревзойденным качеством жизни, которое предлагает этот уникальный комплекс.
Квартиры премиум-класса с бассейном и потрясающим видом на море и горы в уникальном жилом комплексе идеально подходят для жизни, отдыха и инвестиций.
Здесь уже запланированы рестораны, кафе, аптеки, продуктовые и продовольственные магазины, пекарни и многое другое. Собственный вход со стороны улицы обеспечит уединённость и безопасность дворовой территории.
Жилой комплекс представляет собой закрытый периметр.
На территории подземного паркинга предусмотрены кладовые помещения, в которых будет удобно хранить авто-инвентарь, сезонные вещи и другие предметы быта, занимающие драгоценные метры квартиры.
Жители ЖК «Резиденция морей» смогут устраивать водные процедуры в любую погоду, даже когда на море шторм. Прямо во дворе комплекса расположатся два бассейна с расширенным временем пользования общей площадью 811 м2. В бассейне с разными уровнями глубины - от 0,5 до 1,5 м - смогут безопасно играть и учиться плавать самые маленькие жители.
Второй бассейн идеально подойдёт для длинных заплывов, спортивных тренировок и водного фитнеса, его глубина - 1,5 м. Вода в бассейнах всегда будет чистая за счет системы очистки и дезинфекции. Вокруг бассейнов будет благоустроена зона отдыха с шезлонгами. Также на территории будут оборудованы специальные помещения для переодевания и душевые комнаты.
При покупке просторной 2-комнатной квартиры за наличный расчет или в ипотеку мы дарим вам ремонт, выполненный с учетом современных трендов и высоких стандартов качества.
Светлые тона, надежные материалы, продуманный дизайн и функциональные решения - все это создаст неповторимую атмосферу комфорта и гармонии в вашем новом доме. Вам останется только расставить мебель и наслаждаться жизнью в полностью готовой к проживанию квартире.
Позвоните и узнайте условия покупки прямо сейчас!
14.11.2025
14 592 270 ₽
Продается 1-комн. квартира, площадью 41.54 м2 в монолитно-кирпичной новостройке. Возможен вариант покупки с использованием ипотечных средств, есть рассрочка, возможна покупка с использованием материнского капитала, есть военная ипотека.
Жилая площадь 12.72 м2, кухня 16.98 м2, предчистовая отделка, комнаты изолированные.
Квартира располагается на 5 этаже 8-этажного дома в ЖК Резиденция морей.
Застройщик - ГК ССК, сдача дома - IV квартал 2024 года, высота потолков 2.85 м.
Дом оборудован пассажирским лифтом, закрытая территория.
Подземная парковка, парковка охраняется. Обеспечение безопасности: видеонаблюдение, пропускная система. Инфраструктура: детские площадки, спортивные площадки, супермаркет, рестораны, фитнес-центр, пункты бытового обслуживания, коммерческие объекты.
ЖК «Резиденция морей» расположен всего в трёх минутах от живописного побережья пляжа Мысхако. Окунитесь в роскошь и комфорт, наслаждаясь исключительным видом на море и непревзойденным качеством жизни, которое предлагает этот уникальный комплекс.
Квартиры премиум-класса с бассейном и потрясающим видом на море и горы в уникальном жилом комплексе идеально подходят для жизни, отдыха и инвестиций.
Здесь уже запланированы рестораны, кафе, аптеки, продуктовые и продовольственные магазины, пекарни и многое другое. Собственный вход со стороны улицы обеспечит уединённость и безопасность дворовой территории.
Жилой комплекс представляет собой закрытый периметр.
На территории подземного паркинга предусмотрены кладовые помещения, в которых будет удобно хранить авто-инвентарь, сезонные вещи и другие предметы быта, занимающие драгоценные метры квартиры.
Жители ЖК «Резиденция морей» смогут устраивать водные процедуры в любую погоду, даже когда на море шторм. Прямо во дворе комплекса расположатся два бассейна с расширенным временем пользования общей площадью 811 м2. В бассейне с разными уровнями глубины - от 0,5 до 1,5 м - смогут безопасно играть и учиться плавать самые маленькие жители.
Второй бассейн идеально подойдёт для длинных заплывов, спортивных тренировок и водного фитнеса, его глубина - 1,5 м. Вода в бассейнах всегда будет чистая за счет системы очистки и дезинфекции. Вокруг бассейнов будет благоустроена зона отдыха с шезлонгами. Также на территории будут оборудованы специальные помещения для переодевания и душевые комнаты.
При покупке просторной 2-комнатной квартиры за наличный расчет или в ипотеку мы дарим вам ремонт, выполненный с учетом современных трендов и высоких стандартов качества.
Светлые тона, надежные материалы, продуманный дизайн и функциональные решения - все это создаст неповторимую атмосферу комфорта и гармонии в вашем новом доме. Вам останется только расставить мебель и наслаждаться жизнью в полностью готовой к проживанию квартире.
Позвоните и узнайте условия покупки прямо сейчас!
14.11.2025
10 478 465 ₽
Продается 2-комн. квартира, площадью 51.11 м2 в кирпичной новостройке. Возможен вариант покупки с использованием ипотечных средств, есть рассрочка, возможна покупка с использованием материнского капитала.
Жилая площадь 21.49 м2, кухня 16.1 м2, предчистовая отделка.
Квартира располагается на 3 этаже 4-этажного дома в ЖК Усадьба Гостагаевская.
Застройщик - ООО СЗ ССК Анапа входит в состав ГК ССК, сдача дома - IV квартал 2026 года, высота потолков 2.7 м.
Дом оборудован пассажирским лифтом, закрытая территория.
Парковка автомобилей - наземная. Обеспечение безопасности: видеонаблюдение. Инфраструктура: школа, детский сад, детские площадки, спортивные площадки, места для отдыха.
Жилой комплекс "Усадьба Гостагаевская" - это амбициозный проект, который воплощает в себе лучшие идеи современного жилья, гармонично сочетая комфорт, безопасность и природное окружение. Расположенный в живописной станице Нижняя Гостагаевка, этот комплекс занимает обширную площадь в 27 гектаров, что позволяет создать уютное и просторное пространство для жизни.
Комплекс удобно расположен вблизи основных транспортных артерий, что обеспечивает быструю связь с Анапой и другими важными точками региона Краснодар, Новороссийск, Крым. Железнодорожная станция находится всего в 2 минутах на машине, а аэропорт в 6 километрах
На территории комплекса будут находиться собственный детский сад на 300 мест, школа на 750 учеников дом культуры и библиотека для мероприятий и досуга. Коммерческие площади, включая магазины и кафе, обеспечат жителей всеми необходимыми услугами.
Комплекс предложит спортивные площадки, беговые дорожки, места для занятий йогой и фитнесом на свежем воздухе. Приятные скверы и аллеи будут идеальны для семейных прогулок и досуга.
Территория комплекса будет благоустроена с акцентом на экологию и комфорт. Планируется озеленение с использованием местных растений, что улучшит внешний вид и создаст приятную атмосферу. Современные технологии, такие как динамическое освещение и зоны для зарядки гаджетов, сделают жизнь удобной и комфортной.
При покупке квартиры в жилом комплексе «Усадьбе Гостагаевской» за наличный расчёт вы получаете до 2 миллионов рублей выгоды.
Это масштабный проект на 27 гектарах, спланированный как современная усадьба - с поквартальной застройкой в едином архитектурном ключе, где каждый дом - не просто объект, а часть гармоничного пространства, бережно сохраняющего приватность и покой резидентов.
Дикий сад на территории - не ландшафтный дизайн, а живая атмосфера, где тишина становится частью дня, а подогреваемый бассейн - не сезонная роскошь, а естественное продолжение вашего ритма: доступный, уютный, даже в ноябре.
Аккредитованные банки: Абсолют Банк, Совкомбанк, Альфа-Банк, Банк ДОМ. РФ, Промсвязьбанк, Банк ВТБ, Т-Банк, Россельхозбанк, МКБ.
Позвоните и узнайте условия покупки прямо сейчас!
06.12.2025
10 477 550 ₽
Продаются 2 комн. апартаменты, площадью 49.4 м2 в монолитной новостройке. Возможен вариант покупки с использованием ипотечных средств, есть рассрочка, возможна покупка с использованием материнского капитала, есть военная ипотека.
Жилая площадь 19.9 м2, кухня 18.8 м2, чистовая отделка с мебелью.
Квартира располагается на 2 этаже 9-этажного дома в ЖК Гостиничный комплекс Мореград.
Застройщик - ООО СЗ ГРАЖДАНСТРОЙАНАПА входит в состав ГК ССК, сдача дома - I квартал 2027 года.
Дом оборудован пассажирским лифтом, закрытая территория.
Подземная парковка, парковка охраняется. Обеспечение безопасности: видеонаблюдение, круглосуточная охрана, противопожарная система. Инфраструктура: детские площадки, спортивные площадки, места для отдыха, супермаркет, рестораны, пункты бытового обслуживания, коммерческие объекты.
Расположенный в живописном месте города-курорта Анапы, гостиничный комплекс «Мореград» предлагает идеальное сочетание уютной обстановки и удобного расположения. Всего в трех минутах ходьбы от тенистых зеленых аллей Пионерского проспекта, он станет идеальным выбором для отдыхающих, желающих насладиться близостью к морю.
Песчаные пляжи Черного моря, всего в 7 минутах ходьбы от комплекса, приглашают насладиться теплым солнцем и ласковыми волнами.
«Мореград» - уникальный современный гостиничный комплекс, где гостям будут доступны все удобства отельного сервиса. Коммерческие блоки и различные виды отдыха - рестораны, бары, магазины, лаунж-зоны, оборудованные спортивные и детские площадки и многое другое сделают отдых гостей незабываемым.
Набережная, море и комфорт в каждом метре - гостиничный комплекс «Мореград» в живописном городе-курорте Анапа представляет специальное предложение для тех, кто ценит выгодные решения. При оплате наличными вы получаете выгоду до 1 180 000 рублей, что делает приобретение недвижимости здесь особенно привлекательным. Расположенный всего в трёх минутах ходьбы от тенистых зелёных аллей Пионерского проспекта, комплекс сочетает уютную атмосферу и удобное расположение, идеально подходя для отдыха и постоянного проживания. Наслаждайтесь близостью к морю, высоким уровнем комфорта и перспективной инвестицией в будущее уже сегодня.
Позвоните и узнайте условия покупки прямо сейчас!
06.12.2025
13 832 000 ₽
Продаются 2 комн. апартаменты, площадью 49.4 м2 в монолитной новостройке. Возможен вариант покупки с использованием ипотечных средств, есть рассрочка, возможна покупка с использованием материнского капитала, есть военная ипотека.
Жилая площадь 19.9 м2, кухня 18.8 м2, чистовая отделка с мебелью.
Квартира располагается на 2 этаже 9-этажного дома в ЖК Гостиничный комплекс Мореград.
Застройщик - ООО СЗ ГРАЖДАНСТРОЙАНАПА входит в состав ГК ССК, сдача дома - I квартал 2027 года.
Дом оборудован пассажирским лифтом, закрытая территория.
Подземная парковка, парковка охраняется. Обеспечение безопасности: видеонаблюдение, круглосуточная охрана, противопожарная система. Инфраструктура: детские площадки, спортивные площадки, места для отдыха, супермаркет, рестораны, пункты бытового обслуживания, коммерческие объекты.
Расположенный в живописном месте города-курорта Анапы, гостиничный комплекс «Мореград» предлагает идеальное сочетание уютной обстановки и удобного расположения. Всего в трех минутах ходьбы от тенистых зеленых аллей Пионерского проспекта, он станет идеальным выбором для отдыхающих, желающих насладиться близостью к морю.
Песчаные пляжи Черного моря, всего в 7 минутах ходьбы от комплекса, приглашают насладиться теплым солнцем и ласковыми волнами.
«Мореград» - уникальный современный гостиничный комплекс, где гостям будут доступны все удобства отельного сервиса. Коммерческие блоки и различные виды отдыха - рестораны, бары, магазины, лаунж-зоны, оборудованные спортивные и детские площадки и многое другое сделают отдых гостей незабываемым.
Набережная, море и комфорт в каждом метре - гостиничный комплекс «Мореград» в живописном городе-курорте Анапа представляет специальное предложение для тех, кто ценит выгодные решения. При оплате наличными вы получаете выгоду до 1 180 000 рублей, что делает приобретение недвижимости здесь особенно привлекательным. Расположенный всего в трёх минутах ходьбы от тенистых зелёных аллей Пионерского проспекта, комплекс сочетает уютную атмосферу и удобное расположение, идеально подходя для отдыха и постоянного проживания. Наслаждайтесь близостью к морю, высоким уровнем комфорта и перспективной инвестицией в будущее уже сегодня.
Позвоните и узнайте условия покупки прямо сейчас!
06.12.2025
13 832 000 ₽
Продаются 2 комн. апартаменты, площадью 48.7 м2 в монолитной новостройке. Возможен вариант покупки с использованием ипотечных средств, есть рассрочка, возможна покупка с использованием материнского капитала, есть военная ипотека.
Жилая площадь 14.9 м2, кухня 13.3 м2, чистовая отделка с мебелью.
Квартира располагается на 3 этаже 9-этажного дома в ЖК Гостиничный комплекс Мореград.
Застройщик - ООО СЗ ГРАЖДАНСТРОЙАНАПА входит в состав ГК ССК, сдача дома - I квартал 2027 года.
Дом оборудован пассажирским лифтом, закрытая территория.
Подземная парковка, парковка охраняется. Обеспечение безопасности: видеонаблюдение, круглосуточная охрана, противопожарная система. Инфраструктура: детские площадки, спортивные площадки, места для отдыха, супермаркет, рестораны, пункты бытового обслуживания, коммерческие объекты.
Расположенный в живописном месте города-курорта Анапы, гостиничный комплекс «Мореград» предлагает идеальное сочетание уютной обстановки и удобного расположения. Всего в трех минутах ходьбы от тенистых зеленых аллей Пионерского проспекта, он станет идеальным выбором для отдыхающих, желающих насладиться близостью к морю.
Песчаные пляжи Черного моря, всего в 7 минутах ходьбы от комплекса, приглашают насладиться теплым солнцем и ласковыми волнами.
«Мореград» - уникальный современный гостиничный комплекс, где гостям будут доступны все удобства отельного сервиса. Коммерческие блоки и различные виды отдыха - рестораны, бары, магазины, лаунж-зоны, оборудованные спортивные и детские площадки и многое другое сделают отдых гостей незабываемым.
Набережная, море и комфорт в каждом метре - гостиничный комплекс «Мореград» в живописном городе-курорте Анапа представляет специальное предложение для тех, кто ценит выгодные решения. При оплате наличными вы получаете выгоду до 1 180 000 рублей, что делает приобретение недвижимости здесь особенно привлекательным. Расположенный всего в трёх минутах ходьбы от тенистых зелёных аллей Пионерского проспекта, комплекс сочетает уютную атмосферу и удобное расположение, идеально подходя для отдыха и постоянного проживания. Наслаждайтесь близостью к морю, высоким уровнем комфорта и перспективной инвестицией в будущее уже сегодня.
Позвоните и узнайте условия покупки прямо сейчас!
06.12.2025
13 636 000 ₽
Продаются 2 комн. апартаменты, площадью 45.7 м2 в монолитной новостройке. Возможен вариант покупки с использованием ипотечных средств, есть рассрочка, возможна покупка с использованием материнского капитала, есть военная ипотека.
Жилая площадь 19.9 м2, кухня 12.7 м2, чистовая отделка с мебелью.
Квартира располагается на 2 этаже 9-этажного дома в ЖК Гостиничный комплекс Мореград.
Застройщик - ООО СЗ ГРАЖДАНСТРОЙАНАПА входит в состав ГК ССК, сдача дома - I квартал 2027 года.
Дом оборудован пассажирским лифтом, закрытая территория.
Подземная парковка, парковка охраняется. Обеспечение безопасности: видеонаблюдение, круглосуточная охрана, противопожарная система. Инфраструктура: детские площадки, спортивные площадки, места для отдыха, супермаркет, рестораны, пункты бытового обслуживания, коммерческие объекты.
Расположенный в живописном месте города-курорта Анапы, гостиничный комплекс «Мореград» предлагает идеальное сочетание уютной обстановки и удобного расположения. Всего в трех минутах ходьбы от тенистых зеленых аллей Пионерского проспекта, он станет идеальным выбором для отдыхающих, желающих насладиться близостью к морю.
Песчаные пляжи Черного моря, всего в 7 минутах ходьбы от комплекса, приглашают насладиться теплым солнцем и ласковыми волнами.
«Мореград» - уникальный современный гостиничный комплекс, где гостям будут доступны все удобства отельного сервиса. Коммерческие блоки и различные виды отдыха - рестораны, бары, магазины, лаунж-зоны, оборудованные спортивные и детские площадки и многое другое сделают отдых гостей незабываемым.
Набережная, море и комфорт в каждом метре - гостиничный комплекс «Мореград» в живописном городе-курорте Анапа представляет специальное предложение для тех, кто ценит выгодные решения. При оплате наличными вы получаете выгоду до 1 180 000 рублей, что делает приобретение недвижимости здесь особенно привлекательным. Расположенный всего в трёх минутах ходьбы от тенистых зелёных аллей Пионерского проспекта, комплекс сочетает уютную атмосферу и удобное расположение, идеально подходя для отдыха и постоянного проживания. Наслаждайтесь близостью к морю, высоким уровнем комфорта и перспективной инвестицией в будущее уже сегодня.
Позвоните и узнайте условия покупки прямо сейчас!
06.12.2025
13 710 000 ₽
Продаются 2 комн. апартаменты, площадью 45.7 м2 в монолитной новостройке. Возможен вариант покупки с использованием ипотечных средств, есть рассрочка, возможна покупка с использованием материнского капитала, есть военная ипотека.
Жилая площадь 19.9 м2, кухня 12.7 м2, чистовая отделка с мебелью.
Квартира располагается на 2 этаже 9-этажного дома в ЖК Гостиничный комплекс Мореград.
Застройщик - ООО СЗ ГРАЖДАНСТРОЙАНАПА входит в состав ГК ССК, сдача дома - I квартал 2027 года.
Дом оборудован пассажирским лифтом, закрытая территория.
Подземная парковка, парковка охраняется. Обеспечение безопасности: видеонаблюдение, круглосуточная охрана, противопожарная система. Инфраструктура: детские площадки, спортивные площадки, места для отдыха, супермаркет, рестораны, пункты бытового обслуживания, коммерческие объекты.
Расположенный в живописном месте города-курорта Анапы, гостиничный комплекс «Мореград» предлагает идеальное сочетание уютной обстановки и удобного расположения. Всего в трех минутах ходьбы от тенистых зеленых аллей Пионерского проспекта, он станет идеальным выбором для отдыхающих, желающих насладиться близостью к морю.
Песчаные пляжи Черного моря, всего в 7 минутах ходьбы от комплекса, приглашают насладиться теплым солнцем и ласковыми волнами.
«Мореград» - уникальный современный гостиничный комплекс, где гостям будут доступны все удобства отельного сервиса. Коммерческие блоки и различные виды отдыха - рестораны, бары, магазины, лаунж-зоны, оборудованные спортивные и детские площадки и многое другое сделают отдых гостей незабываемым.
Набережная, море и комфорт в каждом метре - гостиничный комплекс «Мореград» в живописном городе-курорте Анапа представляет специальное предложение для тех, кто ценит выгодные решения. При оплате наличными вы получаете выгоду до 1 180 000 рублей, что делает приобретение недвижимости здесь особенно привлекательным. Расположенный всего в трёх минутах ходьбы от тенистых зелёных аллей Пионерского проспекта, комплекс сочетает уютную атмосферу и удобное расположение, идеально подходя для отдыха и постоянного проживания. Наслаждайтесь близостью к морю, высоким уровнем комфорта и перспективной инвестицией в будущее уже сегодня.
Позвоните и узнайте условия покупки прямо сейчас!
06.12.2025
13 710 000 ₽
Продаются 2 комн. апартаменты, площадью 62.32 м2 в монолитной новостройке. Возможен вариант покупки с использованием ипотечных средств, есть рассрочка, возможна покупка с использованием материнского капитала, есть военная ипотека.
Жилая площадь 49.09 м2, кухня 10.65 м2, чистовая отделка с мебелью.
Квартира располагается на 2 этаже 9-этажного дома в ЖК Гостиничный комплекс «Корсаков.
Застройщик - ООО СЗ ДОМСТРОЙАНАПА входит в состав ГК ССК, сдача дома - IV квартал 2026 года.
Дом оборудован пассажирским лифтом, закрытая территория.
Отдельная многоуровневая парковка, парковка охраняется. Обеспечение безопасности: видеонаблюдение, круглосуточная охрана. Инфраструктура: детские площадки, спортивные площадки, места для отдыха, супермаркет, рестораны, фитнес-центр, пункты бытового обслуживания, коммерческие объекты.
Вершина инноваций и роскоши, воплощение передовых технологий в строительстве и непревзойденных решений в дизайне. Первый IT-отель Корсаков - место, где каждый элемент говорит о вашем статусе. Нашим гостям и резидентам мы предлагаем непревзойденный сервис и уникальные технологические решения, делающие пребывание в Корсакове по-настоящему незабываемым.
Наш отель выделяется на фоне текущих архитектурных проектов благодаря инновационному дизайну и современным архитектурным решениям, создающим эстетическое наслаждение и узнаваемый облик.
При покупке гостиничного номера в «Корсаков» - будь то за наличный расчёт единовременно или в ипотеку - вы получаете скидку 20 000 за каждый квадратный метр. Гостиничный комплекс «Корсаков» - вершина инноваций и роскоши, воплощение передовых технологий в строительстве и непревзойдённых решений в дизайне, где каждый элемент - от света до звукоизоляции - говорит о вашем статусе. Здесь не просто живут или останавливаются - здесь пребывают: с непревзойдённым сервисом, с технологиями, которые работают незаметно, но ощутимо, с атмосферой, где комфорт не заявляет о себе - он просто есть.
Аккредитованные банки: Сбербанк, Альфа-Банк, ВТБ, Банк Уралсиб, РОССИЯ, Абсолют Банк, Металлинвестбанк, РНКБ, ПСБ, Кубань Кредит, Банк ВБРР.
Позвоните и узнайте условия покупки прямо сейчас!
06.12.2025
21 500 400 ₽
Продаются 2 комн. апартаменты, площадью 56.38 м2 в монолитной новостройке. Возможен вариант покупки с использованием ипотечных средств, есть рассрочка, возможна покупка с использованием материнского капитала, есть военная ипотека.
Жилая площадь 43.44 м2, кухня 10.65 м2, чистовая отделка с мебелью.
Квартира располагается на 6 этаже 9-этажного дома в ЖК Гостиничный комплекс «Корсаков.
Застройщик - ООО СЗ ДОМСТРОЙАНАПА входит в состав ГК ССК, сдача дома - IV квартал 2026 года.
Дом оборудован пассажирским лифтом, закрытая территория.
Отдельная многоуровневая парковка, парковка охраняется. Обеспечение безопасности: видеонаблюдение, круглосуточная охрана. Инфраструктура: детские площадки, спортивные площадки, места для отдыха, супермаркет, рестораны, фитнес-центр, пункты бытового обслуживания, коммерческие объекты.
Вершина инноваций и роскоши, воплощение передовых технологий в строительстве и непревзойденных решений в дизайне. Первый IT-отель Корсаков - место, где каждый элемент говорит о вашем статусе. Нашим гостям и резидентам мы предлагаем непревзойденный сервис и уникальные технологические решения, делающие пребывание в Корсакове по-настоящему незабываемым.
Наш отель выделяется на фоне текущих архитектурных проектов благодаря инновационному дизайну и современным архитектурным решениям, создающим эстетическое наслаждение и узнаваемый облик.
При покупке гостиничного номера в «Корсаков» - будь то за наличный расчёт единовременно или в ипотеку - вы получаете скидку 20 000 за каждый квадратный метр. Гостиничный комплекс «Корсаков» - вершина инноваций и роскоши, воплощение передовых технологий в строительстве и непревзойдённых решений в дизайне, где каждый элемент - от света до звукоизоляции - говорит о вашем статусе. Здесь не просто живут или останавливаются - здесь пребывают: с непревзойдённым сервисом, с технологиями, которые работают незаметно, но ощутимо, с атмосферой, где комфорт не заявляет о себе - он просто есть.
Аккредитованные банки: Сбербанк, Альфа-Банк, ВТБ, Банк Уралсиб, РОССИЯ, Абсолют Банк, Металлинвестбанк, РНКБ, ПСБ, Кубань Кредит, Банк ВБРР.
Позвоните и узнайте условия покупки прямо сейчас!
06.12.2025
20 296 800 ₽
Продаются 2 комн. апартаменты, площадью 54.28 м2 в монолитной новостройке. Возможен вариант покупки с использованием ипотечных средств, есть рассрочка, возможна покупка с использованием материнского капитала, есть военная ипотека.
Жилая площадь 41.45 м2, кухня 10.65 м2, чистовая отделка с мебелью.
Квартира располагается на 8 этаже 9-этажного дома в ЖК Гостиничный комплекс «Корсаков.
Застройщик - ООО СЗ ДОМСТРОЙАНАПА входит в состав ГК ССК, сдача дома - IV квартал 2026 года.
Дом оборудован пассажирским лифтом, закрытая территория.
Отдельная многоуровневая парковка, парковка охраняется. Обеспечение безопасности: видеонаблюдение, круглосуточная охрана. Инфраструктура: детские площадки, спортивные площадки, места для отдыха, супермаркет, рестораны, фитнес-центр, пункты бытового обслуживания, коммерческие объекты.
Вершина инноваций и роскоши, воплощение передовых технологий в строительстве и непревзойденных решений в дизайне. Первый IT-отель Корсаков - место, где каждый элемент говорит о вашем статусе. Нашим гостям и резидентам мы предлагаем непревзойденный сервис и уникальные технологические решения, делающие пребывание в Корсакове по-настоящему незабываемым.
Наш отель выделяется на фоне текущих архитектурных проектов благодаря инновационному дизайну и современным архитектурным решениям, создающим эстетическое наслаждение и узнаваемый облик.
При покупке гостиничного номера в «Корсаков» - будь то за наличный расчёт единовременно или в ипотеку - вы получаете скидку 20 000 за каждый квадратный метр. Гостиничный комплекс «Корсаков» - вершина инноваций и роскоши, воплощение передовых технологий в строительстве и непревзойдённых решений в дизайне, где каждый элемент - от света до звукоизоляции - говорит о вашем статусе. Здесь не просто живут или останавливаются - здесь пребывают: с непревзойдённым сервисом, с технологиями, которые работают незаметно, но ощутимо, с атмосферой, где комфорт не заявляет о себе - он просто есть.
Аккредитованные банки: Сбербанк, Альфа-Банк, ВТБ, Банк Уралсиб, РОССИЯ, Абсолют Банк, Металлинвестбанк, РНКБ, ПСБ, Кубань Кредит, Банк ВБРР.
Позвоните и узнайте условия покупки прямо сейчас!
06.12.2025
19 540 800 ₽
Продаются 2 комн. апартаменты, площадью 54.28 м2 в монолитной новостройке. Возможен вариант покупки с использованием ипотечных средств, есть рассрочка, возможна покупка с использованием материнского капитала, есть военная ипотека.
Жилая площадь 41.45 м2, кухня 10.65 м2, чистовая отделка с мебелью.
Квартира располагается на 6 этаже 9-этажного дома в ЖК Гостиничный комплекс «Корсаков.
Застройщик - ООО СЗ ДОМСТРОЙАНАПА входит в состав ГК ССК, сдача дома - IV квартал 2026 года.
Дом оборудован пассажирским лифтом, закрытая территория.
Отдельная многоуровневая парковка, парковка охраняется. Обеспечение безопасности: видеонаблюдение, круглосуточная охрана. Инфраструктура: детские площадки, спортивные площадки, места для отдыха, супермаркет, рестораны, фитнес-центр, пункты бытового обслуживания, коммерческие объекты.
Вершина инноваций и роскоши, воплощение передовых технологий в строительстве и непревзойденных решений в дизайне. Первый IT-отель Корсаков - место, где каждый элемент говорит о вашем статусе. Нашим гостям и резидентам мы предлагаем непревзойденный сервис и уникальные технологические решения, делающие пребывание в Корсакове по-настоящему незабываемым.
Наш отель выделяется на фоне текущих архитектурных проектов благодаря инновационному дизайну и современным архитектурным решениям, создающим эстетическое наслаждение и узнаваемый облик.
При покупке гостиничного номера в «Корсаков» - будь то за наличный расчёт единовременно или в ипотеку - вы получаете скидку 20 000 за каждый квадратный метр. Гостиничный комплекс «Корсаков» - вершина инноваций и роскоши, воплощение передовых технологий в строительстве и непревзойдённых решений в дизайне, где каждый элемент - от света до звукоизоляции - говорит о вашем статусе. Здесь не просто живут или останавливаются - здесь пребывают: с непревзойдённым сервисом, с технологиями, которые работают незаметно, но ощутимо, с атмосферой, где комфорт не заявляет о себе - он просто есть.
Аккредитованные банки: Сбербанк, Альфа-Банк, ВТБ, Банк Уралсиб, РОССИЯ, Абсолют Банк, Металлинвестбанк, РНКБ, ПСБ, Кубань Кредит, Банк ВБРР.
Позвоните и узнайте условия покупки прямо сейчас!
06.12.2025
19 540 800 ₽
Продаются 2 комн. апартаменты, площадью 54.28 м2 в монолитной новостройке. Возможен вариант покупки с использованием ипотечных средств, есть рассрочка, возможна покупка с использованием материнского капитала, есть военная ипотека.
Жилая площадь 41.45 м2, кухня 10.65 м2, чистовая отделка с мебелью.
Квартира располагается на 5 этаже 9-этажного дома в ЖК Гостиничный комплекс «Корсаков.
Застройщик - ООО СЗ ДОМСТРОЙАНАПА входит в состав ГК ССК, сдача дома - IV квартал 2026 года.
Дом оборудован пассажирским лифтом, закрытая территория.
Отдельная многоуровневая парковка, парковка охраняется. Обеспечение безопасности: видеонаблюдение, круглосуточная охрана. Инфраструктура: детские площадки, спортивные площадки, места для отдыха, супермаркет, рестораны, фитнес-центр, пункты бытового обслуживания, коммерческие объекты.
Вершина инноваций и роскоши, воплощение передовых технологий в строительстве и непревзойденных решений в дизайне. Первый IT-отель Корсаков - место, где каждый элемент говорит о вашем статусе. Нашим гостям и резидентам мы предлагаем непревзойденный сервис и уникальные технологические решения, делающие пребывание в Корсакове по-настоящему незабываемым.
Наш отель выделяется на фоне текущих архитектурных проектов благодаря инновационному дизайну и современным архитектурным решениям, создающим эстетическое наслаждение и узнаваемый облик.
При покупке гостиничного номера в «Корсаков» - будь то за наличный расчёт единовременно или в ипотеку - вы получаете скидку 20 000 за каждый квадратный метр. Гостиничный комплекс «Корсаков» - вершина инноваций и роскоши, воплощение передовых технологий в строительстве и непревзойдённых решений в дизайне, где каждый элемент - от света до звукоизоляции - говорит о вашем статусе. Здесь не просто живут или останавливаются - здесь пребывают: с непревзойдённым сервисом, с технологиями, которые работают незаметно, но ощутимо, с атмосферой, где комфорт не заявляет о себе - он просто есть.
Аккредитованные банки: Сбербанк, Альфа-Банк, ВТБ, Банк Уралсиб, РОССИЯ, Абсолют Банк, Металлинвестбанк, РНКБ, ПСБ, Кубань Кредит, Банк ВБРР.
Позвоните и узнайте условия покупки прямо сейчас!
06.12.2025
19 540 800 ₽
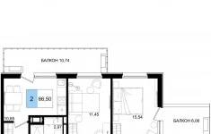
Продаются 2 комн. апартаменты, площадью 66.5 м2 в монолитной новостройке. Возможен вариант покупки с использованием ипотечных средств, есть рассрочка, возможна покупка с использованием материнского капитала, есть военная ипотека.
Жилая площадь 53.06 м2, кухня 10.65 м2, чистовая отделка с мебелью.
Квартира располагается на 4 этаже 9-этажного дома в ЖК Гостиничный комплекс «Корсаков.
Застройщик - ООО СЗ ДОМСТРОЙАНАПА входит в состав ГК ССК, сдача дома - IV квартал 2026 года.
Дом оборудован пассажирским лифтом, закрытая территория.
Отдельная многоуровневая парковка, парковка охраняется. Обеспечение безопасности: видеонаблюдение, круглосуточная охрана. Инфраструктура: детские площадки, спортивные площадки, места для отдыха, супермаркет, рестораны, фитнес-центр, пункты бытового обслуживания, коммерческие объекты.
Вершина инноваций и роскоши, воплощение передовых технологий в строительстве и непревзойденных решений в дизайне. Первый IT-отель Корсаков - место, где каждый элемент говорит о вашем статусе. Нашим гостям и резидентам мы предлагаем непревзойденный сервис и уникальные технологические решения, делающие пребывание в Корсакове по-настоящему незабываемым.
Наш отель выделяется на фоне текущих архитектурных проектов благодаря инновационному дизайну и современным архитектурным решениям, создающим эстетическое наслаждение и узнаваемый облик.
При покупке гостиничного номера в «Корсаков» - будь то за наличный расчёт единовременно или в ипотеку - вы получаете скидку 20 000 за каждый квадратный метр. Гостиничный комплекс «Корсаков» - вершина инноваций и роскоши, воплощение передовых технологий в строительстве и непревзойдённых решений в дизайне, где каждый элемент - от света до звукоизоляции - говорит о вашем статусе. Здесь не просто живут или останавливаются - здесь пребывают: с непревзойдённым сервисом, с технологиями, которые работают незаметно, но ощутимо, с атмосферой, где комфорт не заявляет о себе - он просто есть.
Аккредитованные банки: Сбербанк, Альфа-Банк, ВТБ, Банк Уралсиб, РОССИЯ, Абсолют Банк, Металлинвестбанк, РНКБ, ПСБ, Кубань Кредит, Банк ВБРР.
Позвоните и узнайте условия покупки прямо сейчас!
06.12.2025
22 942 500 ₽
Продается 2-комн. квартира, площадью 51.11 м2 в кирпичной новостройке. Возможен вариант покупки с использованием ипотечных средств, есть рассрочка, возможна покупка с использованием материнского капитала.
Жилая площадь 21.49 м2, кухня 16.1 м2, предчистовая отделка.
Квартира располагается на 4 этаже 4-этажного дома в ЖК Усадьба Гостагаевская.
Застройщик - ООО СЗ ССК Анапа входит в состав ГК ССК, сдача дома - IV квартал 2026 года, высота потолков 2.7 м.
Дом оборудован пассажирским лифтом, закрытая территория.
Парковка автомобилей - наземная. Обеспечение безопасности: видеонаблюдение. Инфраструктура: школа, детский сад, детские площадки, спортивные площадки, места для отдыха.
Жилой комплекс "Усадьба Гостагаевская" - это амбициозный проект, который воплощает в себе лучшие идеи современного жилья, гармонично сочетая комфорт, безопасность и природное окружение. Расположенный в живописной станице Нижняя Гостагаевка, этот комплекс занимает обширную площадь в 27 гектаров, что позволяет создать уютное и просторное пространство для жизни.
Комплекс удобно расположен вблизи основных транспортных артерий, что обеспечивает быструю связь с Анапой и другими важными точками региона Краснодар, Новороссийск, Крым. Железнодорожная станция находится всего в 2 минутах на машине, а аэропорт в 6 километрах
На территории комплекса будут находиться собственный детский сад на 300 мест, школа на 750 учеников дом культуры и библиотека для мероприятий и досуга. Коммерческие площади, включая магазины и кафе, обеспечат жителей всеми необходимыми услугами.
Комплекс предложит спортивные площадки, беговые дорожки, места для занятий йогой и фитнесом на свежем воздухе. Приятные скверы и аллеи будут идеальны для семейных прогулок и досуга.
Территория комплекса будет благоустроена с акцентом на экологию и комфорт. Планируется озеленение с использованием местных растений, что улучшит внешний вид и создаст приятную атмосферу. Современные технологии, такие как динамическое освещение и зоны для зарядки гаджетов, сделают жизнь удобной и комфортной.
При покупке квартиры в жилом комплексе «Усадьбе Гостагаевской» за наличный расчёт вы получаете до 2 миллионов рублей выгоды.
Это масштабный проект на 27 гектарах, спланированный как современная усадьба - с поквартальной застройкой в едином архитектурном ключе, где каждый дом - не просто объект, а часть гармоничного пространства, бережно сохраняющего приватность и покой резидентов.
Дикий сад на территории - не ландшафтный дизайн, а живая атмосфера, где тишина становится частью дня, а подогреваемый бассейн - не сезонная роскошь, а естественное продолжение вашего ритма: доступный, уютный, даже в ноябре.
Аккредитованные банки: Абсолют Банк, Совкомбанк, Альфа-Банк, Банк ДОМ. РФ, Промсвязьбанк, Банк ВТБ, Т-Банк, Россельхозбанк, МКБ.
Позвоните и узнайте условия покупки прямо сейчас!
06.12.2025
10 477 550 ₽
Продаются 2 комн. апартаменты, площадью 66.5 м2 в монолитной новостройке. Возможен вариант покупки с использованием ипотечных средств, есть рассрочка, возможна покупка с использованием материнского капитала, есть военная ипотека.
Жилая площадь 53.06 м2, кухня 10.65 м2, чистовая отделка с мебелью.
Квартира располагается на 2 этаже 9-этажного дома в ЖК Гостиничный комплекс «Корсаков.
Застройщик - ООО СЗ ДОМСТРОЙАНАПА входит в состав ГК ССК, сдача дома - IV квартал 2026 года.
Дом оборудован пассажирским лифтом, закрытая территория.
Отдельная многоуровневая парковка, парковка охраняется. Обеспечение безопасности: видеонаблюдение, круглосуточная охрана. Инфраструктура: детские площадки, спортивные площадки, места для отдыха, супермаркет, рестораны, фитнес-центр, пункты бытового обслуживания, коммерческие объекты.
Вершина инноваций и роскоши, воплощение передовых технологий в строительстве и непревзойденных решений в дизайне. Первый IT-отель Корсаков - место, где каждый элемент говорит о вашем статусе. Нашим гостям и резидентам мы предлагаем непревзойденный сервис и уникальные технологические решения, делающие пребывание в Корсакове по-настоящему незабываемым.
Наш отель выделяется на фоне текущих архитектурных проектов благодаря инновационному дизайну и современным архитектурным решениям, создающим эстетическое наслаждение и узнаваемый облик.
При покупке гостиничного номера в «Корсаков» - будь то за наличный расчёт единовременно или в ипотеку - вы получаете скидку 20 000 за каждый квадратный метр. Гостиничный комплекс «Корсаков» - вершина инноваций и роскоши, воплощение передовых технологий в строительстве и непревзойдённых решений в дизайне, где каждый элемент - от света до звукоизоляции - говорит о вашем статусе. Здесь не просто живут или останавливаются - здесь пребывают: с непревзойдённым сервисом, с технологиями, которые работают незаметно, но ощутимо, с атмосферой, где комфорт не заявляет о себе - он просто есть.
Аккредитованные банки: Сбербанк, Альфа-Банк, ВТБ, Банк Уралсиб, РОССИЯ, Абсолют Банк, Металлинвестбанк, РНКБ, ПСБ, Кубань Кредит, Банк ВБРР.
Позвоните и узнайте условия покупки прямо сейчас!
06.12.2025
22 942 500 ₽
Продается 2-комн. квартира, площадью 51.11 м2 в кирпичной новостройке. Возможен вариант покупки с использованием ипотечных средств, есть рассрочка, возможна покупка с использованием материнского капитала.
Жилая площадь 21.49 м2, кухня 16.1 м2, предчистовая отделка.
Квартира располагается на 2 этаже 4-этажного дома в ЖК Усадьба Гостагаевская.
Застройщик - ООО СЗ ССК Анапа входит в состав ГК ССК, сдача дома - IV квартал 2026 года, высота потолков 2.7 м.
Дом оборудован пассажирским лифтом, закрытая территория.
Парковка автомобилей - наземная. Обеспечение безопасности: видеонаблюдение. Инфраструктура: школа, детский сад, детские площадки, спортивные площадки, места для отдыха.
Жилой комплекс "Усадьба Гостагаевская" - это амбициозный проект, который воплощает в себе лучшие идеи современного жилья, гармонично сочетая комфорт, безопасность и природное окружение. Расположенный в живописной станице Нижняя Гостагаевка, этот комплекс занимает обширную площадь в 27 гектаров, что позволяет создать уютное и просторное пространство для жизни.
Комплекс удобно расположен вблизи основных транспортных артерий, что обеспечивает быструю связь с Анапой и другими важными точками региона Краснодар, Новороссийск, Крым. Железнодорожная станция находится всего в 2 минутах на машине, а аэропорт в 6 километрах
На территории комплекса будут находиться собственный детский сад на 300 мест, школа на 750 учеников дом культуры и библиотека для мероприятий и досуга. Коммерческие площади, включая магазины и кафе, обеспечат жителей всеми необходимыми услугами.
Комплекс предложит спортивные площадки, беговые дорожки, места для занятий йогой и фитнесом на свежем воздухе. Приятные скверы и аллеи будут идеальны для семейных прогулок и досуга.
Территория комплекса будет благоустроена с акцентом на экологию и комфорт. Планируется озеленение с использованием местных растений, что улучшит внешний вид и создаст приятную атмосферу. Современные технологии, такие как динамическое освещение и зоны для зарядки гаджетов, сделают жизнь удобной и комфортной.
При покупке квартиры в жилом комплексе «Усадьбе Гостагаевской» за наличный расчёт вы получаете до 2 миллионов рублей выгоды.
Это масштабный проект на 27 гектарах, спланированный как современная усадьба - с поквартальной застройкой в едином архитектурном ключе, где каждый дом - не просто объект, а часть гармоничного пространства, бережно сохраняющего приватность и покой резидентов.
Дикий сад на территории - не ландшафтный дизайн, а живая атмосфера, где тишина становится частью дня, а подогреваемый бассейн - не сезонная роскошь, а естественное продолжение вашего ритма: доступный, уютный, даже в ноябре.
Аккредитованные банки: Абсолют Банк, Совкомбанк, Альфа-Банк, Банк ДОМ. РФ, Промсвязьбанк, Банк ВТБ, Т-Банк, Россельхозбанк, МКБ.
Позвоните и узнайте условия покупки прямо сейчас!
06.12.2025
10 477 550 ₽
Продается 2-комн. квартира, площадью 51.11 м2 в кирпичной новостройке. Возможен вариант покупки с использованием ипотечных средств, есть рассрочка, возможна покупка с использованием материнского капитала.
Жилая площадь 21.49 м2, кухня 16.1 м2, предчистовая отделка.
Квартира располагается на 2 этаже 4-этажного дома в ЖК Усадьба Гостагаевская.
Застройщик - ООО СЗ ССК Анапа входит в состав ГК ССК, сдача дома - IV квартал 2026 года, высота потолков 2.7 м.
Дом оборудован пассажирским лифтом, закрытая территория.
Парковка автомобилей - наземная. Обеспечение безопасности: видеонаблюдение. Инфраструктура: школа, детский сад, детские площадки, спортивные площадки, места для отдыха.
Жилой комплекс "Усадьба Гостагаевская" - это амбициозный проект, который воплощает в себе лучшие идеи современного жилья, гармонично сочетая комфорт, безопасность и природное окружение. Расположенный в живописной станице Нижняя Гостагаевка, этот комплекс занимает обширную площадь в 27 гектаров, что позволяет создать уютное и просторное пространство для жизни.
Комплекс удобно расположен вблизи основных транспортных артерий, что обеспечивает быструю связь с Анапой и другими важными точками региона Краснодар, Новороссийск, Крым. Железнодорожная станция находится всего в 2 минутах на машине, а аэропорт в 6 километрах
На территории комплекса будут находиться собственный детский сад на 300 мест, школа на 750 учеников дом культуры и библиотека для мероприятий и досуга. Коммерческие площади, включая магазины и кафе, обеспечат жителей всеми необходимыми услугами.
Комплекс предложит спортивные площадки, беговые дорожки, места для занятий йогой и фитнесом на свежем воздухе. Приятные скверы и аллеи будут идеальны для семейных прогулок и досуга.
Территория комплекса будет благоустроена с акцентом на экологию и комфорт. Планируется озеленение с использованием местных растений, что улучшит внешний вид и создаст приятную атмосферу. Современные технологии, такие как динамическое освещение и зоны для зарядки гаджетов, сделают жизнь удобной и комфортной.
При покупке квартиры в жилом комплексе «Усадьбе Гостагаевской» за наличный расчёт вы получаете до 2 миллионов рублей выгоды.
Это масштабный проект на 27 гектарах, спланированный как современная усадьба - с поквартальной застройкой в едином архитектурном ключе, где каждый дом - не просто объект, а часть гармоничного пространства, бережно сохраняющего приватность и покой резидентов.
Дикий сад на территории - не ландшафтный дизайн, а живая атмосфера, где тишина становится частью дня, а подогреваемый бассейн - не сезонная роскошь, а естественное продолжение вашего ритма: доступный, уютный, даже в ноябре.
Аккредитованные банки: Абсолют Банк, Совкомбанк, Альфа-Банк, Банк ДОМ. РФ, Промсвязьбанк, Банк ВТБ, Т-Банк, Россельхозбанк, МКБ.
Позвоните и узнайте условия покупки прямо сейчас!
06.12.2025
10 477 550 ₽
Продаются 2 комн. апартаменты, площадью 66.5 м2 в монолитной новостройке. Возможен вариант покупки с использованием ипотечных средств, есть рассрочка, возможна покупка с использованием материнского капитала, есть военная ипотека.
Жилая площадь 53.06 м2, кухня 10.65 м2, чистовая отделка с мебелью.
Квартира располагается на 2 этаже 9-этажного дома в ЖК Гостиничный комплекс «Корсаков.
Застройщик - ООО СЗ ДОМСТРОЙАНАПА входит в состав ГК ССК, сдача дома - IV квартал 2026 года.
Дом оборудован пассажирским лифтом, закрытая территория.
Отдельная многоуровневая парковка, парковка охраняется. Обеспечение безопасности: видеонаблюдение, круглосуточная охрана. Инфраструктура: детские площадки, спортивные площадки, места для отдыха, супермаркет, рестораны, фитнес-центр, пункты бытового обслуживания, коммерческие объекты.
Вершина инноваций и роскоши, воплощение передовых технологий в строительстве и непревзойденных решений в дизайне. Первый IT-отель Корсаков - место, где каждый элемент говорит о вашем статусе. Нашим гостям и резидентам мы предлагаем непревзойденный сервис и уникальные технологические решения, делающие пребывание в Корсакове по-настоящему незабываемым.
Наш отель выделяется на фоне текущих архитектурных проектов благодаря инновационному дизайну и современным архитектурным решениям, создающим эстетическое наслаждение и узнаваемый облик.
При покупке гостиничного номера в «Корсаков» - будь то за наличный расчёт единовременно или в ипотеку - вы получаете скидку 20 000 за каждый квадратный метр. Гостиничный комплекс «Корсаков» - вершина инноваций и роскоши, воплощение передовых технологий в строительстве и непревзойдённых решений в дизайне, где каждый элемент - от света до звукоизоляции - говорит о вашем статусе. Здесь не просто живут или останавливаются - здесь пребывают: с непревзойдённым сервисом, с технологиями, которые работают незаметно, но ощутимо, с атмосферой, где комфорт не заявляет о себе - он просто есть.
Аккредитованные банки: Сбербанк, Альфа-Банк, ВТБ, Банк Уралсиб, РОССИЯ, Абсолют Банк, Металлинвестбанк, РНКБ, ПСБ, Кубань Кредит, Банк ВБРР.
Позвоните и узнайте условия покупки прямо сейчас!
06.12.2025
22 942 500 ₽
Продается 2-комн. квартира, площадью 51.11 м2 в монолитно-кирпичной новостройке. Возможен вариант покупки с использованием ипотечных средств, есть рассрочка, возможна покупка с использованием материнского капитала.
Жилая площадь 21.49 м2, кухня 16.1 м2, предчистовая отделка.
Квартира располагается на 2 этаже 4-этажного дома в ЖК Усадьба Гостагаевская.
Застройщик - ООО СЗ ССК Анапа входит в состав ГК ССК, сдача дома - IV квартал 2026 года.
Дом оборудован пассажирским лифтом, закрытая территория.
Парковка автомобилей - наземная. Обеспечение безопасности: видеонаблюдение. Инфраструктура: школа, детский сад, детские площадки, спортивные площадки, места для отдыха.
Жилой комплекс "Усадьба Гостагаевская" - это амбициозный проект, который воплощает в себе лучшие идеи современного жилья, гармонично сочетая комфорт, безопасность и природное окружение. Расположенный в живописной станице Нижняя Гостагаевка, этот комплекс занимает обширную площадь в 27 гектаров, что позволяет создать уютное и просторное пространство для жизни.
Комплекс удобно расположен вблизи основных транспортных артерий, что обеспечивает быструю связь с Анапой и другими важными точками региона Краснодар, Новороссийск, Крым. Железнодорожная станция находится всего в 2 минутах на машине, а аэропорт в 6 километрах
На территории комплекса будут находиться собственный детский сад на 300 мест, школа на 750 учеников дом культуры и библиотека для мероприятий и досуга. Коммерческие площади, включая магазины и кафе, обеспечат жителей всеми необходимыми услугами.
Комплекс предложит спортивные площадки, беговые дорожки, места для занятий йогой и фитнесом на свежем воздухе. Приятные скверы и аллеи будут идеальны для семейных прогулок и досуга.
Территория комплекса будет благоустроена с акцентом на экологию и комфорт. Планируется озеленение с использованием местных растений, что улучшит внешний вид и создаст приятную атмосферу. Современные технологии, такие как динамическое освещение и зоны для зарядки гаджетов, сделают жизнь удобной и комфортной.
При покупке квартиры в жилом комплексе «Усадьбе Гостагаевской» за наличный расчёт вы получаете до 2 миллионов рублей выгоды.
Это масштабный проект на 27 гектарах, спланированный как современная усадьба - с поквартальной застройкой в едином архитектурном ключе, где каждый дом - не просто объект, а часть гармоничного пространства, бережно сохраняющего приватность и покой резидентов.
Дикий сад на территории - не ландшафтный дизайн, а живая атмосфера, где тишина становится частью дня, а подогреваемый бассейн - не сезонная роскошь, а естественное продолжение вашего ритма: доступный, уютный, даже в ноябре.
Аккредитованные банки: Абсолют Банк, Совкомбанк, Альфа-Банк, Банк ДОМ. РФ, Промсвязьбанк, Банк ВТБ, Т-Банк, Россельхозбанк, МКБ.
Позвоните и узнайте условия покупки прямо сейчас!
06.12.2025
10 477 550 ₽
Продается 2-комн. квартира, площадью 51.85 м2 в монолитной новостройке. Возможен вариант покупки с использованием ипотечных средств, есть рассрочка, возможна покупка с использованием материнского капитала, есть военная ипотека.
Жилая площадь 22.8 м2, кухня 12.2 м2, предчистовая отделка.
Квартира располагается на 6 этаже 9-этажного дома в ЖК Песчаный.
Застройщик - ООО СЗ МЕЖСАНАТОРНЫЙ входит в состав ГК ССК, высота потолков 2.72 м.
Дом оборудован пассажирским лифтом, закрытая территория.
Отдельная многоуровневая парковка, парковка охраняется. Обеспечение безопасности: видеонаблюдение. Инфраструктура: детские площадки, спортивные площадки, места для отдыха.
У каждого из нас есть свои желания и интересы, свои представления о комфорте и спокойствии, свои жизненные принципы. Жилой комплекс «Песчаный» смог учесть самые разнообразные требования, чтобы понравиться каждому. Здесь звуки современного города стихают, а вместо этого появляется лёгкий морской бриз и шум неспешных морских волн. Тут можно расслабиться и полностью погрузиться в мир без проблем и забот.
Дома возводятся по зарекомендовавшей себя во всём мире монолитно-каркасной технологии. Облицовка - вентилируемый фасад из керамогранитных плит белого, бежевого и коричневого цветов. В сочетании с витражным остеклением лоджий это позволит жилому комплексу «Песчаный» стильно выделяться среди окружающей застройки.
ЖК "Песчаный" - находится в 10 минутах от центра города и в непосредственной близости от моря и пляжей.
Сделайте первый шаг к уютному дому - при покупке двухкомнатной квартиры в жилом комплексе «Песчаный» вы можете получить бесплатный ремонт в подарок. Это уникальная возможность сэкономить и сразу получить квартиру с качественной чистовой отделкой, в которой комфортно жить с первых дней. В подарочный ремонт входят выравнивание стен и пола, укладка напольных покрытий, покраска потолков, установка сантехники и розеток - всё необходимое для заселения без дополнительных хлопот.
При покупке двухкомнатной квартиры от 66 м в ЖК «Песчаный» вы получаете парковочное место и качественный ремонт - в подарок.
Дом сдан. Въезжайте - без ожиданий, без строительства, без лишних забот.
Ремонт выполнен с вниманием к деталям: натуральные материалы, тихие перегородки, продуманные решения - всё создано для повседневного комфорта. Парковка - не просто место под машину, а свобода: больше не нужно искать место у подъезда или платить за часы в зоне ограниченной парковки.
Аккредитованные банки: Абсолют Банк, Совкомбанк, Альфа-Банк, Банк ДОМ. РФ, Промсвязьбанк, Банк ВТБ, Т-Банк, Россельхозбанк, МКБ.
Позвоните и узнайте условия покупки прямо сейчас!
06.12.2025
10 629 250 ₽




















