Продажа недвижимости в Кирпильском - Страница 2
- Кирпильская »
- Недвижимость в Кирпильском
Участок расположен в тихом и живописном районе. Общая площадь составляет 800 квадратных метров. Участок ровный и чистый, без построек. Вода и электричество находятся рядом. Подходит для строительства загородного дома или дачи.
30.12.2025
2 300 000 ₽
Продаю земельный участок с постройкой. Документов на строение нет, если нужно, можно будет поставить на учет. По проекту строили капитально добротно и для себя, но "перестойка" не щадит никого. Деньги обесценились... успели построить 3 комнаты, хоз постройки, примыкающие к дому и капитальный глубокий, похожий на бомбоубежище, подвал из бутового камня, вход по огромным ступеням, так же из дома.
Жили, было электричество, во дворе была колонка, туалет. Держали корову, птицу и свинку. С 2000года не проживаем.
"Добрые люди" вынесли, всё что можно унести. По факту остались стены. Нужно приложить мужские руки. Есть проект, в соответствии с которым строили. Фундамент залит на весь дом, до 2010 были и стены на весь дом, оставалось поставить только крышу.
Сейчас по факту, целые только стены из гипсоблока, которые были под крышей: там где жили (две комнаты с печкой и коридор, потом помещение большое под библиотеку (под которым подвал) и примыкающий сарай. У сарая частично обрушилась шиферная кровля.
Место хорошее, минимум соседей, с огорода выход в лесок возле речки Лаба. Участок частично огорожен. Перед участком поляна, через дорогу поле.
Источник питьевой воды хороший. Забита скважина, стояла колонка...кто то сдал на металлолом, теперь только скважина. В 2025 году обещают газифицировать село, сейчас прокладывают трассу газопровода через село.
30.12.2025
1 249 992 ₽
Продается 2-комн. квартира, площадью 52.5 м2 в монолитно-кирпичной новостройке. Возможен вариант покупки с использованием ипотечных средств, есть рассрочка, возможна покупка с использованием материнского капитала, есть военная ипотека.
Жилая площадь 24.7 м2, кухня 14.2 м2, черновая отделка.
Квартира располагается на 1 этаже 16-этажного дома в ЖК Традиции.
Застройщик - ГК ССК, сдача дома - III квартал 2027 года, высота потолков 2.72 м.
Дом оборудован пассажирским лифтом. Обеспечение безопасности: видеонаблюдение, противопожарная система. Инфраструктура: детские площадки, спортивные площадки, места для отдыха, супермаркет, рестораны, фитнес-центр, пункты бытового обслуживания, коммерческие объекты.
В жилом комплексе «Традиции» вы найдёте всё, чтобы создать свой особенный уклад жизни. Возможно, именно здесь начнётся новая семейная традиция, которая станет дорогой сердцу на долгие годы.
В радиусе 5 минут ходьбы от комплекса уже функционируют школы и детские сады, а дорога в центр города занимает 15 минут.
«Доступное жильё - 3%» в ЖК «Традиции»
Мы ценим ваш труд и поддерживаем на важных жизненных этапах!
Если вы - врач, учитель, военнослужащий, участник СВО, моряк (г. Калининград) или молодая семья с детьми, для вас действует специальное предложение:
Скидка 3% от стоимости квартиры в рамках программы «Доступное жильё».
Ваша квартира в ЖК «Традиции» - это начало новой главы в уютном, продуманном пространстве, где каждая деталь создана для комфорта большой семьи.
Аккредитованные банки: Сбербанк, Альфа-Банк, ВТБ, Банк Уралсиб, РОССИЯ, Абсолют Банк, Металлинвестбанк, РНКБ, ПСБ, Кубань Кредит, Банк ВБРР, Россельхозбанк.
Позвоните и узнайте условия покупки прямо сейчас!
17.01.2026
7 087 500 ₽
Продается 2-комн. квартира, площадью 56.87 м2 в монолитно-кирпичной новостройке. Возможен вариант покупки с использованием ипотечных средств, возможна покупка с использованием материнского капитала.
Жилая площадь 25.34 м2, кухня 16.84 м2, предчистовая отделка.
Квартира располагается на 8 этаже 16-этажного дома в ЖК Долина.
Застройщик - ССК (Краснодарский край) , сдача дома - I квартал 2027 года, высота потолков 2.72 м.
Дом оборудован пассажирским лифтом.
Отдельная многоуровневая парковка. Обеспечение безопасности: видеонаблюдение. Инфраструктура: школа, детский сад, детские площадки, спортивные площадки, места для отдыха.
Жилой комплекс «Долина» - это ваш уютный уголок на фоне великолепной природы Республики Адыгея. Элегантный архитектурный стиль и натуральные оттенки гармонично переплетаются с зелеными пейзажами, создавая атмосферу спокойствия и уюта. Закрытые дворы комплекса обеспечивают высокий уровень безопасности и уединения, позволяя Вам наслаждаться каждым моментом жизни.
Расположенный на севере Майкопа, в районе Аэродрома, жилой комплекс «Долина» отличается отсутствием многоэтажной застройки и окружен бескрайними полями. Здесь, в сердце столицы Республики Адыгея, гармонично сосуществуют красота природы и современные удобства.
«Долина» - это не просто жилой комплекс, а ваше новое качество жизни, где природа и комфорт соединяются воедино.
АКЦИЯ:
Выгодные условия при покупке за наличный расчет в ЖК «Долина»
Для клиентов, выбирающих расчет наличными, мы подготовили специальные условия в жилом комплексе «Долина».
При единовременной оплате вы получаете повышенную скидку: 5 000 /м на уютные однушки, 8 000 /м на просторные двушки и 10 000 /м на комфортные трешки в литерах 1, 2 и 3.
Это предложение создано для вашей максимальной выгоды - вы становитесь владельцем современной квартиры по исключительной цене, экономя значительную сумму при полном расчете.
Позвоните и узнайте условия покупки прямо сейчас!
18.01.2026
7 734 320 ₽
Продается 2-комн. квартира, площадью 56.87 м2 в монолитно-кирпичной новостройке. Возможен вариант покупки с использованием ипотечных средств, возможна покупка с использованием материнского капитала.
Жилая площадь 25.34 м2, кухня 16.84 м2, предчистовая отделка.
Квартира располагается на 6 этаже 16-этажного дома в ЖК Долина.
Застройщик - ССК (Краснодарский край) , сдача дома - I квартал 2027 года, высота потолков 2.72 м.
Дом оборудован пассажирским лифтом.
Отдельная многоуровневая парковка. Обеспечение безопасности: видеонаблюдение. Инфраструктура: школа, детский сад, детские площадки, спортивные площадки, места для отдыха.
Жилой комплекс «Долина» - это ваш уютный уголок на фоне великолепной природы Республики Адыгея. Элегантный архитектурный стиль и натуральные оттенки гармонично переплетаются с зелеными пейзажами, создавая атмосферу спокойствия и уюта. Закрытые дворы комплекса обеспечивают высокий уровень безопасности и уединения, позволяя Вам наслаждаться каждым моментом жизни.
Расположенный на севере Майкопа, в районе Аэродрома, жилой комплекс «Долина» отличается отсутствием многоэтажной застройки и окружен бескрайними полями. Здесь, в сердце столицы Республики Адыгея, гармонично сосуществуют красота природы и современные удобства.
«Долина» - это не просто жилой комплекс, а ваше новое качество жизни, где природа и комфорт соединяются воедино.
АКЦИЯ:
Выгодные условия при покупке за наличный расчет в ЖК «Долина»
Для клиентов, выбирающих расчет наличными, мы подготовили специальные условия в жилом комплексе «Долина».
При единовременной оплате вы получаете повышенную скидку: 5 000 /м на уютные однушки, 8 000 /м на просторные двушки и 10 000 /м на комфортные трешки в литерах 1, 2 и 3.
Это предложение создано для вашей максимальной выгоды - вы становитесь владельцем современной квартиры по исключительной цене, экономя значительную сумму при полном расчете.
Позвоните и узнайте условия покупки прямо сейчас!
12.01.2026
7 734 320 ₽
Продается 2-комн. квартира, площадью 56.87 м2 в монолитно-кирпичной новостройке. Возможен вариант покупки с использованием ипотечных средств, возможна покупка с использованием материнского капитала.
Жилая площадь 25.34 м2, кухня 16.84 м2, предчистовая отделка.
Квартира располагается на 5 этаже 16-этажного дома в ЖК Долина.
Застройщик - ССК (Краснодарский край) , сдача дома - I квартал 2027 года, высота потолков 2.72 м.
Дом оборудован пассажирским лифтом.
Отдельная многоуровневая парковка. Обеспечение безопасности: видеонаблюдение. Инфраструктура: школа, детский сад, детские площадки, спортивные площадки, места для отдыха.
Жилой комплекс «Долина» - это ваш уютный уголок на фоне великолепной природы Республики Адыгея. Элегантный архитектурный стиль и натуральные оттенки гармонично переплетаются с зелеными пейзажами, создавая атмосферу спокойствия и уюта. Закрытые дворы комплекса обеспечивают высокий уровень безопасности и уединения, позволяя Вам наслаждаться каждым моментом жизни.
Расположенный на севере Майкопа, в районе Аэродрома, жилой комплекс «Долина» отличается отсутствием многоэтажной застройки и окружен бескрайними полями. Здесь, в сердце столицы Республики Адыгея, гармонично сосуществуют красота природы и современные удобства.
«Долина» - это не просто жилой комплекс, а ваше новое качество жизни, где природа и комфорт соединяются воедино.
АКЦИЯ:
Выгодные условия при покупке за наличный расчет в ЖК «Долина»
Для клиентов, выбирающих расчет наличными, мы подготовили специальные условия в жилом комплексе «Долина».
При единовременной оплате вы получаете повышенную скидку: 5 000 /м на уютные однушки, 8 000 /м на просторные двушки и 10 000 /м на комфортные трешки в литерах 1, 2 и 3.
Это предложение создано для вашей максимальной выгоды - вы становитесь владельцем современной квартиры по исключительной цене, экономя значительную сумму при полном расчете.
Позвоните и узнайте условия покупки прямо сейчас!
18.01.2026
7 734 320 ₽
Продается 2-комн. квартира, площадью 56.87 м2 в монолитно-кирпичной новостройке. Возможен вариант покупки с использованием ипотечных средств, возможна покупка с использованием материнского капитала.
Жилая площадь 25.34 м2, кухня 16.84 м2, предчистовая отделка.
Квартира располагается на 4 этаже 16-этажного дома в ЖК Долина.
Застройщик - ССК (Краснодарский край) , сдача дома - I квартал 2027 года, высота потолков 2.72 м.
Дом оборудован пассажирским лифтом.
Отдельная многоуровневая парковка. Обеспечение безопасности: видеонаблюдение. Инфраструктура: школа, детский сад, детские площадки, спортивные площадки, места для отдыха.
Жилой комплекс «Долина» - это ваш уютный уголок на фоне великолепной природы Республики Адыгея. Элегантный архитектурный стиль и натуральные оттенки гармонично переплетаются с зелеными пейзажами, создавая атмосферу спокойствия и уюта. Закрытые дворы комплекса обеспечивают высокий уровень безопасности и уединения, позволяя Вам наслаждаться каждым моментом жизни.
Расположенный на севере Майкопа, в районе Аэродрома, жилой комплекс «Долина» отличается отсутствием многоэтажной застройки и окружен бескрайними полями. Здесь, в сердце столицы Республики Адыгея, гармонично сосуществуют красота природы и современные удобства.
«Долина» - это не просто жилой комплекс, а ваше новое качество жизни, где природа и комфорт соединяются воедино.
АКЦИЯ:
Выгодные условия при покупке за наличный расчет в ЖК «Долина»
Для клиентов, выбирающих расчет наличными, мы подготовили специальные условия в жилом комплексе «Долина».
При единовременной оплате вы получаете повышенную скидку: 5 000 /м на уютные однушки, 8 000 /м на просторные двушки и 10 000 /м на комфортные трешки в литерах 1, 2 и 3.
Это предложение создано для вашей максимальной выгоды - вы становитесь владельцем современной квартиры по исключительной цене, экономя значительную сумму при полном расчете.
Позвоните и узнайте условия покупки прямо сейчас!
07.01.2026
7 734 320 ₽
Продается 2-комн. квартира, площадью 56.52 м2 в монолитно-кирпичной новостройке. Возможен вариант покупки с использованием ипотечных средств, возможна покупка с использованием материнского капитала.
Жилая площадь 26.35 м2, кухня 16.66 м2, предчистовая отделка.
Квартира располагается на 3 этаже 16-этажного дома в ЖК Долина.
Застройщик - ССК (Краснодарский край) , сдача дома - I квартал 2027 года, высота потолков 2.72 м.
Дом оборудован пассажирским лифтом.
Отдельная многоуровневая парковка. Обеспечение безопасности: видеонаблюдение. Инфраструктура: школа, детский сад, детские площадки, спортивные площадки, места для отдыха.
Жилой комплекс «Долина» - это ваш уютный уголок на фоне великолепной природы Республики Адыгея. Элегантный архитектурный стиль и натуральные оттенки гармонично переплетаются с зелеными пейзажами, создавая атмосферу спокойствия и уюта. Закрытые дворы комплекса обеспечивают высокий уровень безопасности и уединения, позволяя Вам наслаждаться каждым моментом жизни.
Расположенный на севере Майкопа, в районе Аэродрома, жилой комплекс «Долина» отличается отсутствием многоэтажной застройки и окружен бескрайними полями. Здесь, в сердце столицы Республики Адыгея, гармонично сосуществуют красота природы и современные удобства.
«Долина» - это не просто жилой комплекс, а ваше новое качество жизни, где природа и комфорт соединяются воедино.
АКЦИЯ:
Выгодные условия при покупке за наличный расчет в ЖК «Долина»
Для клиентов, выбирающих расчет наличными, мы подготовили специальные условия в жилом комплексе «Долина».
При единовременной оплате вы получаете повышенную скидку: 5 000 /м на уютные однушки, 8 000 /м на просторные двушки и 10 000 /м на комфортные трешки в литерах 1, 2 и 3.
Это предложение создано для вашей максимальной выгоды - вы становитесь владельцем современной квартиры по исключительной цене, экономя значительную сумму при полном расчете.
Позвоните и узнайте условия покупки прямо сейчас!
31.12.2025
7 686 720 ₽
Продается 2-комн. квартира, площадью 56.52 м2 в монолитно-кирпичной новостройке. Возможен вариант покупки с использованием ипотечных средств, возможна покупка с использованием материнского капитала.
Жилая площадь 26.35 м2, кухня 16.66 м2, предчистовая отделка.
Квартира располагается на 4 этаже 16-этажного дома в ЖК Долина.
Застройщик - ССК (Краснодарский край) , сдача дома - I квартал 2027 года, высота потолков 2.72 м.
Дом оборудован пассажирским лифтом.
Отдельная многоуровневая парковка. Обеспечение безопасности: видеонаблюдение. Инфраструктура: школа, детский сад, детские площадки, спортивные площадки, места для отдыха.
Жилой комплекс «Долина» - это ваш уютный уголок на фоне великолепной природы Республики Адыгея. Элегантный архитектурный стиль и натуральные оттенки гармонично переплетаются с зелеными пейзажами, создавая атмосферу спокойствия и уюта. Закрытые дворы комплекса обеспечивают высокий уровень безопасности и уединения, позволяя Вам наслаждаться каждым моментом жизни.
Расположенный на севере Майкопа, в районе Аэродрома, жилой комплекс «Долина» отличается отсутствием многоэтажной застройки и окружен бескрайними полями. Здесь, в сердце столицы Республики Адыгея, гармонично сосуществуют красота природы и современные удобства.
«Долина» - это не просто жилой комплекс, а ваше новое качество жизни, где природа и комфорт соединяются воедино.
АКЦИЯ:
Выгодные условия при покупке за наличный расчет в ЖК «Долина»
Для клиентов, выбирающих расчет наличными, мы подготовили специальные условия в жилом комплексе «Долина».
При единовременной оплате вы получаете повышенную скидку: 5 000 /м на уютные однушки, 8 000 /м на просторные двушки и 10 000 /м на комфортные трешки в литерах 1, 2 и 3.
Это предложение создано для вашей максимальной выгоды - вы становитесь владельцем современной квартиры по исключительной цене, экономя значительную сумму при полном расчете.
Позвоните и узнайте условия покупки прямо сейчас!
31.12.2025
7 686 720 ₽
Продается студия, площадью 24.01 м2 в монолитно-кирпичной новостройке. Возможен вариант покупки с использованием ипотечных средств, возможна покупка с использованием материнского капитала.
Жилая площадь 10.28 м2, кухня 2.74 м2, предчистовая отделка, комнаты смежные.
Квартира располагается на 13 этаже 16-этажного дома в ЖК Долина.
Застройщик - ССК (Краснодарский край) , сдача дома - I квартал 2027 года, высота потолков 2.72 м.
Дом оборудован пассажирским лифтом.
Отдельная многоуровневая парковка. Обеспечение безопасности: видеонаблюдение. Инфраструктура: школа, детский сад, детские площадки, спортивные площадки, места для отдыха.
Жилой комплекс «Долина» - это ваш уютный уголок на фоне великолепной природы Республики Адыгея. Элегантный архитектурный стиль и натуральные оттенки гармонично переплетаются с зелеными пейзажами, создавая атмосферу спокойствия и уюта. Закрытые дворы комплекса обеспечивают высокий уровень безопасности и уединения, позволяя Вам наслаждаться каждым моментом жизни.
Расположенный на севере Майкопа, в районе Аэродрома, жилой комплекс «Долина» отличается отсутствием многоэтажной застройки и окружен бескрайними полями. Здесь, в сердце столицы Республики Адыгея, гармонично сосуществуют красота природы и современные удобства.
«Долина» - это не просто жилой комплекс, а ваше новое качество жизни, где природа и комфорт соединяются воедино.
АКЦИЯ:
Выгодные условия при покупке за наличный расчет в ЖК «Долина»
Для клиентов, выбирающих расчет наличными, мы подготовили специальные условия в жилом комплексе «Долина».
При единовременной оплате вы получаете повышенную скидку: 5 000 /м на уютные однушки, 8 000 /м на просторные двушки и 10 000 /м на комфортные трешки в литерах 1, 2 и 3.
Это предложение создано для вашей максимальной выгоды - вы становитесь владельцем современной квартиры по исключительной цене, экономя значительную сумму при полном расчете.
Позвоните и узнайте условия покупки прямо сейчас!
31.12.2025
4 009 670 ₽
Продается студия, площадью 24.01 м2 в монолитно-кирпичной новостройке. Возможен вариант покупки с использованием ипотечных средств, возможна покупка с использованием материнского капитала.
Жилая площадь 10.28 м2, кухня 2.74 м2, предчистовая отделка, комнаты смежные.
Квартира располагается на 11 этаже 16-этажного дома в ЖК Долина.
Застройщик - ССК (Краснодарский край) , сдача дома - I квартал 2027 года, высота потолков 2.72 м.
Дом оборудован пассажирским лифтом.
Отдельная многоуровневая парковка. Обеспечение безопасности: видеонаблюдение. Инфраструктура: школа, детский сад, детские площадки, спортивные площадки, места для отдыха.
Жилой комплекс «Долина» - это ваш уютный уголок на фоне великолепной природы Республики Адыгея. Элегантный архитектурный стиль и натуральные оттенки гармонично переплетаются с зелеными пейзажами, создавая атмосферу спокойствия и уюта. Закрытые дворы комплекса обеспечивают высокий уровень безопасности и уединения, позволяя Вам наслаждаться каждым моментом жизни.
Расположенный на севере Майкопа, в районе Аэродрома, жилой комплекс «Долина» отличается отсутствием многоэтажной застройки и окружен бескрайними полями. Здесь, в сердце столицы Республики Адыгея, гармонично сосуществуют красота природы и современные удобства.
«Долина» - это не просто жилой комплекс, а ваше новое качество жизни, где природа и комфорт соединяются воедино.
АКЦИЯ:
Выгодные условия при покупке за наличный расчет в ЖК «Долина»
Для клиентов, выбирающих расчет наличными, мы подготовили специальные условия в жилом комплексе «Долина».
При единовременной оплате вы получаете повышенную скидку: 5 000 /м на уютные однушки, 8 000 /м на просторные двушки и 10 000 /м на комфортные трешки в литерах 1, 2 и 3.
Это предложение создано для вашей максимальной выгоды - вы становитесь владельцем современной квартиры по исключительной цене, экономя значительную сумму при полном расчете.
Позвоните и узнайте условия покупки прямо сейчас!
31.12.2025
4 009 670 ₽
Продается студия, площадью 24.01 м2 в монолитно-кирпичной новостройке. Возможен вариант покупки с использованием ипотечных средств, возможна покупка с использованием материнского капитала.
Жилая площадь 10.28 м2, кухня 2.74 м2, предчистовая отделка, комнаты смежные.
Квартира располагается на 10 этаже 16-этажного дома в ЖК Долина.
Застройщик - ССК (Краснодарский край) , сдача дома - I квартал 2027 года, высота потолков 2.72 м.
Дом оборудован пассажирским лифтом.
Отдельная многоуровневая парковка. Обеспечение безопасности: видеонаблюдение. Инфраструктура: школа, детский сад, детские площадки, спортивные площадки, места для отдыха.
Жилой комплекс «Долина» - это ваш уютный уголок на фоне великолепной природы Республики Адыгея. Элегантный архитектурный стиль и натуральные оттенки гармонично переплетаются с зелеными пейзажами, создавая атмосферу спокойствия и уюта. Закрытые дворы комплекса обеспечивают высокий уровень безопасности и уединения, позволяя Вам наслаждаться каждым моментом жизни.
Расположенный на севере Майкопа, в районе Аэродрома, жилой комплекс «Долина» отличается отсутствием многоэтажной застройки и окружен бескрайними полями. Здесь, в сердце столицы Республики Адыгея, гармонично сосуществуют красота природы и современные удобства.
«Долина» - это не просто жилой комплекс, а ваше новое качество жизни, где природа и комфорт соединяются воедино.
АКЦИЯ:
Выгодные условия при покупке за наличный расчет в ЖК «Долина»
Для клиентов, выбирающих расчет наличными, мы подготовили специальные условия в жилом комплексе «Долина».
При единовременной оплате вы получаете повышенную скидку: 5 000 /м на уютные однушки, 8 000 /м на просторные двушки и 10 000 /м на комфортные трешки в литерах 1, 2 и 3.
Это предложение создано для вашей максимальной выгоды - вы становитесь владельцем современной квартиры по исключительной цене, экономя значительную сумму при полном расчете.
Позвоните и узнайте условия покупки прямо сейчас!
31.12.2025
4 009 670 ₽
Продается студия, площадью 24.01 м2 в монолитно-кирпичной новостройке. Возможен вариант покупки с использованием ипотечных средств, возможна покупка с использованием материнского капитала.
Жилая площадь 10.28 м2, кухня 2.74 м2, предчистовая отделка, комнаты смежные.
Квартира располагается на 8 этаже 16-этажного дома в ЖК Долина.
Застройщик - ССК (Краснодарский край) , сдача дома - I квартал 2027 года, высота потолков 2.72 м.
Дом оборудован пассажирским лифтом.
Отдельная многоуровневая парковка. Обеспечение безопасности: видеонаблюдение. Инфраструктура: школа, детский сад, детские площадки, спортивные площадки, места для отдыха.
Жилой комплекс «Долина» - это ваш уютный уголок на фоне великолепной природы Республики Адыгея. Элегантный архитектурный стиль и натуральные оттенки гармонично переплетаются с зелеными пейзажами, создавая атмосферу спокойствия и уюта. Закрытые дворы комплекса обеспечивают высокий уровень безопасности и уединения, позволяя Вам наслаждаться каждым моментом жизни.
Расположенный на севере Майкопа, в районе Аэродрома, жилой комплекс «Долина» отличается отсутствием многоэтажной застройки и окружен бескрайними полями. Здесь, в сердце столицы Республики Адыгея, гармонично сосуществуют красота природы и современные удобства.
«Долина» - это не просто жилой комплекс, а ваше новое качество жизни, где природа и комфорт соединяются воедино.
АКЦИЯ:
Выгодные условия при покупке за наличный расчет в ЖК «Долина»
Для клиентов, выбирающих расчет наличными, мы подготовили специальные условия в жилом комплексе «Долина».
При единовременной оплате вы получаете повышенную скидку: 5 000 /м на уютные однушки, 8 000 /м на просторные двушки и 10 000 /м на комфортные трешки в литерах 1, 2 и 3.
Это предложение создано для вашей максимальной выгоды - вы становитесь владельцем современной квартиры по исключительной цене, экономя значительную сумму при полном расчете.
Позвоните и узнайте условия покупки прямо сейчас!
31.12.2025
3 865 610 ₽
Продается 2-комн. квартира, площадью 62.47 м2 в монолитно-кирпичной новостройке. Возможен вариант покупки с использованием ипотечных средств, возможна покупка с использованием материнского капитала.
Жилая площадь 28.32 м2, кухня 15.75 м2, предчистовая отделка.
Квартира располагается на 12 этаже 12-этажного дома в ЖК Дружба.
Застройщик - ССК (Краснодарский край) , сдача дома - II квартал 2026 года, высота потолков 2.72 м.
Дом оборудован пассажирским лифтом.
Подземная парковка. Инфраструктура: детские площадки, спортивные площадки, места для отдыха.
Жилой комплекс «Дружба» располагается в живописном уголке Майкопа, где природа переплетается с современным обликом. Этот проект предлагает уединение и возможность наслаждаться свежим воздухом в окружении природной красоты. Все преимущества комплекса призваны обеспечить максимальный комфорт и удовлетворение потребностей его жителей.
Всего в нескольких минутах от комплекса расположен самый большой торговый центр Майкопа - «МАЙКОП МОЛЛ».
Ваш дом в ЖК «Дружба» - с особой выгодой до 10 000 /м!
Для тех, кто ищет идеальное сочетание комфорта и выгоды, мы подготовили специальные условия покупки в ЖК «Дружба». При единовременной оплате вы получаете повышенную скидку: 8 000 /м на просторные двушки, 10 000 /м на уютные трешки и 20 000 /м на коммерческие помещения.
Это предложение создано для вашей максимальной выгоды - вы становитесь владельцем современной квартиры по исключительной цене, экономя значительную сумму при полном расчете.
Позвоните и узнайте условия покупки прямо сейчас!
13.01.2026
8 495 920 ₽
Продается 2-комн. квартира, площадью 59.61 м2 в монолитно-кирпичной новостройке. Возможен вариант покупки с использованием ипотечных средств, возможна покупка с использованием материнского капитала.
Жилая площадь 30.95 м2, кухня 14.55 м2, предчистовая отделка.
Квартира располагается на 12 этаже 12-этажного дома в ЖК Дружба.
Застройщик - ССК (Краснодарский край) , сдача дома - II квартал 2026 года, высота потолков 2.72 м.
Дом оборудован пассажирским лифтом.
Подземная парковка. Инфраструктура: детские площадки, спортивные площадки, места для отдыха.
Жилой комплекс «Дружба» располагается в живописном уголке Майкопа, где природа переплетается с современным обликом. Этот проект предлагает уединение и возможность наслаждаться свежим воздухом в окружении природной красоты. Все преимущества комплекса призваны обеспечить максимальный комфорт и удовлетворение потребностей его жителей.
Всего в нескольких минутах от комплекса расположен самый большой торговый центр Майкопа - «МАЙКОП МОЛЛ».
Ваш дом в ЖК «Дружба» - с особой выгодой до 10 000 /м!
Для тех, кто ищет идеальное сочетание комфорта и выгоды, мы подготовили специальные условия покупки в ЖК «Дружба». При единовременной оплате вы получаете повышенную скидку: 8 000 /м на просторные двушки, 10 000 /м на уютные трешки и 20 000 /м на коммерческие помещения.
Это предложение создано для вашей максимальной выгоды - вы становитесь владельцем современной квартиры по исключительной цене, экономя значительную сумму при полном расчете.
Позвоните и узнайте условия покупки прямо сейчас!
31.12.2025
8 285 790 ₽
Продается 2-комн. квартира, площадью 59.61 м2 в монолитно-кирпичной новостройке. Возможен вариант покупки с использованием ипотечных средств, возможна покупка с использованием материнского капитала.
Жилая площадь 30.95 м2, кухня 14.55 м2, предчистовая отделка.
Квартира располагается на 11 этаже 12-этажного дома в ЖК Дружба.
Застройщик - ССК (Краснодарский край) , сдача дома - II квартал 2026 года, высота потолков 2.72 м.
Дом оборудован пассажирским лифтом.
Подземная парковка. Инфраструктура: детские площадки, спортивные площадки, места для отдыха.
Жилой комплекс «Дружба» располагается в живописном уголке Майкопа, где природа переплетается с современным обликом. Этот проект предлагает уединение и возможность наслаждаться свежим воздухом в окружении природной красоты. Все преимущества комплекса призваны обеспечить максимальный комфорт и удовлетворение потребностей его жителей.
Всего в нескольких минутах от комплекса расположен самый большой торговый центр Майкопа - «МАЙКОП МОЛЛ».
Ваш дом в ЖК «Дружба» - с особой выгодой до 10 000 /м!
Для тех, кто ищет идеальное сочетание комфорта и выгоды, мы подготовили специальные условия покупки в ЖК «Дружба». При единовременной оплате вы получаете повышенную скидку: 8 000 /м на просторные двушки, 10 000 /м на уютные трешки и 20 000 /м на коммерческие помещения.
Это предложение создано для вашей максимальной выгоды - вы становитесь владельцем современной квартиры по исключительной цене, экономя значительную сумму при полном расчете.
Позвоните и узнайте условия покупки прямо сейчас!
31.12.2025
8 285 790 ₽
Продается 2-комн. квартира, площадью 59.61 м2 в монолитно-кирпичной новостройке. Возможен вариант покупки с использованием ипотечных средств, возможна покупка с использованием материнского капитала.
Жилая площадь 30.95 м2, кухня 14.55 м2, предчистовая отделка.
Квартира располагается на 10 этаже 12-этажного дома в ЖК Дружба.
Застройщик - ССК (Краснодарский край) , сдача дома - II квартал 2026 года, высота потолков 2.72 м.
Дом оборудован пассажирским лифтом.
Подземная парковка. Инфраструктура: детские площадки, спортивные площадки, места для отдыха.
Жилой комплекс «Дружба» располагается в живописном уголке Майкопа, где природа переплетается с современным обликом. Этот проект предлагает уединение и возможность наслаждаться свежим воздухом в окружении природной красоты. Все преимущества комплекса призваны обеспечить максимальный комфорт и удовлетворение потребностей его жителей.
Всего в нескольких минутах от комплекса расположен самый большой торговый центр Майкопа - «МАЙКОП МОЛЛ».
Ваш дом в ЖК «Дружба» - с особой выгодой до 10 000 /м!
Для тех, кто ищет идеальное сочетание комфорта и выгоды, мы подготовили специальные условия покупки в ЖК «Дружба». При единовременной оплате вы получаете повышенную скидку: 8 000 /м на просторные двушки, 10 000 /м на уютные трешки и 20 000 /м на коммерческие помещения.
Это предложение создано для вашей максимальной выгоды - вы становитесь владельцем современной квартиры по исключительной цене, экономя значительную сумму при полном расчете.
Позвоните и узнайте условия покупки прямо сейчас!
31.12.2025
8 285 790 ₽
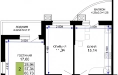
Продается 2-комн. квартира, площадью 60.73 м2 в монолитно-кирпичной новостройке. Возможен вариант покупки с использованием ипотечных средств, возможна покупка с использованием материнского капитала.
Жилая площадь 28.94 м2, кухня 15.14 м2, предчистовая отделка.
Квартира располагается на 9 этаже 12-этажного дома в ЖК Дружба.
Застройщик - ССК (Краснодарский край) , сдача дома - II квартал 2026 года, высота потолков 2.72 м.
Дом оборудован пассажирским лифтом.
Подземная парковка. Инфраструктура: детские площадки, спортивные площадки, места для отдыха.
Жилой комплекс «Дружба» располагается в живописном уголке Майкопа, где природа переплетается с современным обликом. Этот проект предлагает уединение и возможность наслаждаться свежим воздухом в окружении природной красоты. Все преимущества комплекса призваны обеспечить максимальный комфорт и удовлетворение потребностей его жителей.
Всего в нескольких минутах от комплекса расположен самый большой торговый центр Майкопа - «МАЙКОП МОЛЛ».
Ваш дом в ЖК «Дружба» - с особой выгодой до 10 000 /м!
Для тех, кто ищет идеальное сочетание комфорта и выгоды, мы подготовили специальные условия покупки в ЖК «Дружба». При единовременной оплате вы получаете повышенную скидку: 8 000 /м на просторные двушки, 10 000 /м на уютные трешки и 20 000 /м на коммерческие помещения.
Это предложение создано для вашей максимальной выгоды - вы становитесь владельцем современной квартиры по исключительной цене, экономя значительную сумму при полном расчете.
Позвоните и узнайте условия покупки прямо сейчас!
31.12.2025
8 259 280 ₽
Продается 2-комн. квартира, площадью 60.73 м2 в монолитно-кирпичной новостройке. Возможен вариант покупки с использованием ипотечных средств, возможна покупка с использованием материнского капитала.
Жилая площадь 28.94 м2, кухня 15.14 м2, предчистовая отделка.
Квартира располагается на 12 этаже 12-этажного дома в ЖК Дружба.
Застройщик - ССК (Краснодарский край) , сдача дома - II квартал 2026 года, высота потолков 2.72 м.
Дом оборудован пассажирским лифтом.
Подземная парковка. Инфраструктура: детские площадки, спортивные площадки, места для отдыха.
Жилой комплекс «Дружба» располагается в живописном уголке Майкопа, где природа переплетается с современным обликом. Этот проект предлагает уединение и возможность наслаждаться свежим воздухом в окружении природной красоты. Все преимущества комплекса призваны обеспечить максимальный комфорт и удовлетворение потребностей его жителей.
Всего в нескольких минутах от комплекса расположен самый большой торговый центр Майкопа - «МАЙКОП МОЛЛ».
Ваш дом в ЖК «Дружба» - с особой выгодой до 10 000 /м!
Для тех, кто ищет идеальное сочетание комфорта и выгоды, мы подготовили специальные условия покупки в ЖК «Дружба». При единовременной оплате вы получаете повышенную скидку: 8 000 /м на просторные двушки, 10 000 /м на уютные трешки и 20 000 /м на коммерческие помещения.
Это предложение создано для вашей максимальной выгоды - вы становитесь владельцем современной квартиры по исключительной цене, экономя значительную сумму при полном расчете.
Позвоните и узнайте условия покупки прямо сейчас!
31.12.2025
8 259 280 ₽
Продается 2-комн. квартира, площадью 60.73 м2 в монолитно-кирпичной новостройке. Возможен вариант покупки с использованием ипотечных средств, возможна покупка с использованием материнского капитала.
Жилая площадь 28.94 м2, кухня 15.14 м2, предчистовая отделка.
Квартира располагается на 11 этаже 12-этажного дома в ЖК Дружба.
Застройщик - ССК (Краснодарский край) , сдача дома - II квартал 2026 года, высота потолков 2.72 м.
Дом оборудован пассажирским лифтом.
Подземная парковка. Инфраструктура: детские площадки, спортивные площадки, места для отдыха.
Жилой комплекс «Дружба» располагается в живописном уголке Майкопа, где природа переплетается с современным обликом. Этот проект предлагает уединение и возможность наслаждаться свежим воздухом в окружении природной красоты. Все преимущества комплекса призваны обеспечить максимальный комфорт и удовлетворение потребностей его жителей.
Всего в нескольких минутах от комплекса расположен самый большой торговый центр Майкопа - «МАЙКОП МОЛЛ».
Ваш дом в ЖК «Дружба» - с особой выгодой до 10 000 /м!
Для тех, кто ищет идеальное сочетание комфорта и выгоды, мы подготовили специальные условия покупки в ЖК «Дружба». При единовременной оплате вы получаете повышенную скидку: 8 000 /м на просторные двушки, 10 000 /м на уютные трешки и 20 000 /м на коммерческие помещения.
Это предложение создано для вашей максимальной выгоды - вы становитесь владельцем современной квартиры по исключительной цене, экономя значительную сумму при полном расчете.
Позвоните и узнайте условия покупки прямо сейчас!
31.12.2025
8 259 280 ₽
Продается 2-комн. квартира, площадью 60.73 м2 в монолитно-кирпичной новостройке. Возможен вариант покупки с использованием ипотечных средств, возможна покупка с использованием материнского капитала.
Жилая площадь 28.94 м2, кухня 15.14 м2, предчистовая отделка.
Квартира располагается на 12 этаже 12-этажного дома в ЖК Дружба.
Застройщик - ССК (Краснодарский край) , сдача дома - II квартал 2026 года, высота потолков 2.72 м.
Дом оборудован пассажирским лифтом.
Подземная парковка. Инфраструктура: детские площадки, спортивные площадки, места для отдыха.
Жилой комплекс «Дружба» располагается в живописном уголке Майкопа, где природа переплетается с современным обликом. Этот проект предлагает уединение и возможность наслаждаться свежим воздухом в окружении природной красоты. Все преимущества комплекса призваны обеспечить максимальный комфорт и удовлетворение потребностей его жителей.
Всего в нескольких минутах от комплекса расположен самый большой торговый центр Майкопа - «МАЙКОП МОЛЛ».
Ваш дом в ЖК «Дружба» - с особой выгодой до 10 000 /м!
Для тех, кто ищет идеальное сочетание комфорта и выгоды, мы подготовили специальные условия покупки в ЖК «Дружба». При единовременной оплате вы получаете повышенную скидку: 8 000 /м на просторные двушки, 10 000 /м на уютные трешки и 20 000 /м на коммерческие помещения.
Это предложение создано для вашей максимальной выгоды - вы становитесь владельцем современной квартиры по исключительной цене, экономя значительную сумму при полном расчете.
Позвоните и узнайте условия покупки прямо сейчас!
31.12.2025
8 259 280 ₽




















