Продать квартиру в Керве - Страница 6
- Керва »
- Недвижимость
- » Квартиры
- » Продажа квартир в Керве
Продаётся 2-комнатная квартира от застройщика: общая площадь 62.80 м, жилая м, кухня м, 2-й этаж, жилой квартал «Событие-6», корпус 1 (секция 1) Срок сдачи: 4 квартал 2029 года.
Позвоните сейчас и забронируйте квартиру!
Продуманный до деталей. Созданный для жизни, полной счастливых событий. Парк-квартал СОБЫТИЕ - это жизнь класса премиум в престижном районе на Мосфильмовской улице.
Архитектура мирового уровня. Выигрышное расположение на границе природного комплекса «Долина реки Раменки». Все для комфортной жизни и досуга: от детсадов и школ до ресторанов и медцентров. И новая точка притяжения - уже готовый парк «Событие» с пространствами активности для всех возрастов и интересов.
Особенности квартала:
«Парящие» мосты и парк под облаками - уникальный дом с самыми завораживающими видами из окон «в пол»
Собственный парк - сразу за порогом!
Архитектурная концепция от известных международных бюро LDA Design и UHA London
Инфраструктура «тапочной доступности»: в кафе, школу, магазин - за пару минут!
Внутренний двор - настоящее продолжение вашего дома: закрытая охраняемая территория без машин, развивающие детские площадки, воркауты-зоны для тех, кто хочет быть в форме, площади для праздников и посиделок с соседями.
12.03.2026
33 278 976 ₽
Продаётся квартира от застройщика: общая площадь 28.20 м, жилая 10.00 м, кухня 9.30 м, 11-й этаж, жилой квартал «Остров 12», корпус 3 (секция 1) . Срок сдачи: 1 квартал 2029 года.
1 совмещенный санузел. В жилой зоне 2 больших окна на одну сторону, хорошая инсоляция.
Позвоните сейчас и забронируйте квартиру!
ОСТРОВ от Донстрой - жилой комплекс на западе Москвы, в Мневниковской пойме. Уникальное преимущество комплекса - в том, что он обособлен от города рекой и природным парком (650 га) . Благодаря природному окружению эта территория имеет лучший экологический рейтинг в столице. Кварталы ОСТРОВА объединены ландшафтным дизайном в единое пространство - с набережными и Центральным бульваром. На ОСТРОВЕ любые объекты, необходимые для полноценной жизни и отдыха, находятся на расстоянии 15-минутной прогулки. Торговый центр и супермаркеты, кафе и рестораны, фитнес, салоны красоты, школы и детские сады. А также крупнейший в Москве спортивный кластер.
16.03.2026
22 701 000 ₽
Продаются 1 комн. апартаменты-студия, площадью 24.5 м2 в монолитной новостройке в 19 мин. пешком от м.Хорошёво, район города - Хорошево-Мневники. Возможен вариант покупки с использованием ипотечных средств, есть рассрочка, возможна покупка с использованием материнского капитала, есть военная ипотека.
Жилая площадь 17 м2, кухня 2.5 м2, квартира без отделки, совмещенных санузлов - 1, окна выходят во двор.
Квартира располагается на 15 этаже 28-этажного дома в ЖК ЭМОУШН.
Застройщик - ГК Основа, сдача дома - II квартал 2027 года, высота потолков 3 м.
Дом оборудован грузовым и пассажирским лифтом, есть мусоропровод, закрытая территория.
Подземная парковка, парковка охраняется. Обеспечение безопасности: видеонаблюдение, круглосуточная охрана, консьерж, противопожарная система. Инфраструктура: школа, детский сад, поликлиника, детские площадки, спортивные площадки, места для отдыха.
Emotion — яркий новый акцент «Большого Сити». Проект с футуристической архитектурой от KAMEN включает 4 корпуса и представляет собой городскую скульптуру. Корпуса зданий формируют сложный объем, который под определенным углом представляет единое целое, а в динамике он раскрывается сразу в нескольких плоскостях. Здесь располагается собственный SPA-центр с открытым бассейном и панорамными видами на столицу, офисный центр с конференц-залом и амфитеатром, подземный паркинг, кафе, супермаркет, а также приватные общественные пространства для резидентов, где можно провести частные и детские мероприятия, организовать досуг, позаботиться о своей красоте и здоровье. Проект бизнес-класса находится на северо-западе Москвы, в районе Хорошево-Мневники, в 600 метрах от набережной Москвы-реки. Отличную транспортную доступность обеспечивает близость к 4 крупным транспортным развязкам и станциям метро. Emotion предлагает широчайший выбор планировочных решений: от эргономичных евроформатов и уютных студий площадью от 18 кв. м. Во всех апартаментах предусмотрено панорамные остекление.
Позвоните и узнайте условия покупки прямо сейчас!
26.02.2026
15 876 000 ₽
Продаются 1 комн. апартаменты-студия, площадью 27.3 м2 в монолитной новостройке в 19 мин. пешком от м.Хорошёво, район города - Хорошево-Мневники. Возможен вариант покупки с использованием ипотечных средств, есть рассрочка, возможна покупка с использованием материнского капитала, есть военная ипотека.
Жилая площадь 18.8 м2, кухня 3.5 м2, квартира без отделки, совмещенных санузлов - 1, окна выходят во двор.
Квартира располагается на 7 этаже 28-этажного дома в ЖК ЭМОУШН.
Застройщик - ГК Основа, сдача дома - II квартал 2027 года, высота потолков 3 м.
Дом оборудован грузовым и пассажирским лифтом, есть мусоропровод, закрытая территория.
Подземная парковка, парковка охраняется. Обеспечение безопасности: видеонаблюдение, круглосуточная охрана, консьерж, противопожарная система. Инфраструктура: школа, детский сад, поликлиника, детские площадки, спортивные площадки, места для отдыха.
Emotion — яркий новый акцент «Большого Сити». Проект с футуристической архитектурой от KAMEN включает 4 корпуса и представляет собой городскую скульптуру. Корпуса зданий формируют сложный объем, который под определенным углом представляет единое целое, а в динамике он раскрывается сразу в нескольких плоскостях. Здесь располагается собственный SPA-центр с открытым бассейном и панорамными видами на столицу, офисный центр с конференц-залом и амфитеатром, подземный паркинг, кафе, супермаркет, а также приватные общественные пространства для резидентов, где можно провести частные и детские мероприятия, организовать досуг, позаботиться о своей красоте и здоровье. Проект бизнес-класса находится на северо-западе Москвы, в районе Хорошево-Мневники, в 600 метрах от набережной Москвы-реки. Отличную транспортную доступность обеспечивает близость к 4 крупным транспортным развязкам и станциям метро. Emotion предлагает широчайший выбор планировочных решений: от эргономичных евроформатов и уютных студий площадью от 18 кв. м. Во всех апартаментах предусмотрено панорамные остекление.
Позвоните и узнайте условия покупки прямо сейчас!
06.03.2026
15 981 899 ₽
Лучше пишите, сразу отвечу вам.
Продается 2-к квартира 37.2 м2. Центральная и самая обжитая часть города с развитой инфраструктурой. Рядом все магазины, детские, спортивные учреждения .
Дом кирпичный, 1972 года постройки. Квартира в собственности у одного взрослого собственника, свободная продажа.
Совмещенный санузел, застекленная лоджия с торца дома, вся мебель остается.
Звоните, отвечу на все интересующие вопросы.
25.02.2026
7 200 000 ₽
Продажа квартиры, с ремонтом от застройщика в современном развивающемся районе. Регистрация- г. Москва. Общая площадь 38 кв.м. Кухня с выходом на балкон, совмещенный санузел, гардеробная. В пешей доступности: остановка автотранспорта, школа, продуктовые магазины, детский сад, детская площадка, аптеки. Один взрослый собственник. Свободная продажа. Ипотека возможна.
25.02.2026
10 500 000 ₽
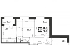
Продается 3-комн. квартира, площадью 71.2 кв.м.
Жилая площадь 41.6 м2, кухня 12 кв. м, ремонта нет, окна выходят на улицу.
Квартира располагается на 20 этаже 28-этажного монолитного дома.
Дом оборудован пассажирским лифтом, есть мусоропровод, закрытая территория, парковка охраняется.
09.03.2026
39 985 564 ₽
Продается 2-комнатная квартира от застройщика: общая площадь 71.60 м, жилая 35.80 м, кухня 18.50 м, 17-й этаж, жилой квартал «Гордость», корпус 36 (секция 2) . Срок сдачи: 2 квартал 2029 года.
Позвоните сейчас и забронируйте квартиру!
Квартал бизнес-класса СИМВОЛ - это городское пространство нового поколения в историческом районе Лефортово, на границе ЦАО, в 2 км от Садового кольца.
Бионическая архитектура СИМВОЛА превратила Лефортово в суперсовременное и модное пространство. Из окон, с балконов и террас просторных квартир СИМВОЛА открываются отличные виды на город и новый парк «Зеленая река», «протекающий» через все кварталы комплекса на 2 км.
В квартале уже есть все, что нужно для комфортной жизни: кафе и рестораны, супермаркеты и магазины, медицинские и физкультурно-оздоровительные центры, салоны красоты и барбершопы, аптеки и оптики, химчистки, пункты доставки и другие сервисы - всего более 90 действующих объектов внутриквартальной инфраструктуры.
Для юных жителей СИМВОЛА открыты детский сад и инженерный лицей при МГТУ им. Баумана.
Особенности квартала:
Свой парк «Зеленая Река» - 10 га зелени и развлечений на любой вкус!
Уникальная для Москвы архитектура - Проект создан архитектурной мастерской ATRIUM по дизайн-коду британских бюро LDA Design и UHA London.
Богатая инфраструктура с детскими садами и лицеем им. Баумана, кафе и ресторанами, супермаркетами и аптеками, зоной для фитнеса, бассейном и мед. центром.
Квартиры с панорамными окнами, террасами, ванными с окнами и каминами редких форматов.
Закрытые безопасные зелёные дворы-парки без машин!
27.02.2026
33 133 616 ₽
Продается теплая и уютная 1-комнатная квартира у метро Академическая!
Идеальный вариант для жизни или инвестиций!
Предлагаем к продаже светлую, теплую квартиру в престижном районе, всего в 2 минутах ходьбы от станции метро "Академическая". Современный дом 2015 года постройки, улучшенная планировка, 5 этаж 19-ти этажного панельного дома. Высота потолков 2,78 метра создает ощущение простора. Комната с эркерным окном, пропускающим много естественного света. Застекленная лоджия – ваше личное пространство для отдыха.
Преимущества расположения:
- Транспортная доступность: 2 минуты пешком до метро "Академическая" (Калужско-Рижская и Троицкая линии). - Остановки общественного транспорта рядом. Удобный выезд на личном автомобиле в центр и область.
- Развитая инфраструктура: В шаговой доступности всё необходимое для комфортной жизни: детские сады, школы, поликлиники, магазины, торговые центры, рестораны, фитнес-центры, салоны красоты, банки.
- Видовые характеристики: Окна выходят на живописную площадь Хо Ши Мина.
Характеристики квартиры:
Площадь: 36 кв.м.
Комната с эркерным окном
Застекленная лоджия
Высокие потолки (2,78 м)
Современный дом (2015 г.п.)
Улучшенная планировка
Юридическая чистота:
Более 3 лет в собственности.
Полная стоимость в договоре.
Один взрослый собственник.
Без обременений и залогов.
Эта квартира – ваш шанс обрести уютное жилье в одном из лучших районов Москвы с отличной транспортной доступностью и развитой инфраструктурой. Звоните прямо сейчас, чтобы узнать подробности и договориться о просмотре!
18.02.2026
19 700 000 ₽
Продается 3-комн. квартира, площадью 71.2 кв.м.
Жилая площадь 41.6 м2, кухня 12 кв. м, ремонта нет, окна выходят на улицу.
Квартира располагается на 23 этаже 28-этажного монолитного дома.
Дом оборудован пассажирским лифтом, есть мусоропровод, закрытая территория, парковка охраняется.
09.03.2026
40 167 124 ₽
Продается 3-комн. квартира, площадью 84.3 кв.м.
Жилая площадь 39.3 м2, ремонта нет, окна выходят на улицу.
Квартира располагается на 10 этаже 17-этажного монолитного дома.
Дом оборудован пассажирским лифтом, есть мусоропровод, закрытая территория, парковка охраняемая.
09.03.2026
53 414 335 ₽
ПРОДАЕТСЯ 1-КОМНАТНАЯ КВАРТИРА В ЖИЛОМ КОМПЛЕКСЕ КОМФОРТ-КЛАССА (г. Одинцово)
Адрес: Московская область, г. Одинцово, ул. Белорусская, д. 2
Этаж: 12 (из 11) — верхний этаж, потрясающий вид и тишина.
Общяя площадь 42,4
Высота потолков 2,88
Просторная и функциональная планировка, от застройщика под отделку.
ОПИСАНИЕ И ПРЕИМУЩЕСТВА
СВЕТЛАЯ И УЮТНАЯ КВАРТИРА С ПРЕКРАСНЫМ ВИДОМ
Просторная 1-комнатная квартира на верхнем этаже современного монолитного дома. Большая жилая площадь (40 м2) позволяет организовать комфортное пространство как для одного человека, так и для пары.
КАЧЕСТВЕННЫЙ ДОМ (2015 ГОДА ПОСТРОЙКИ)
Тип дома: Монолитный (высокая тепло- и звукоизоляция)
Год постройки: 2015 (относительно новый дом, без проблем старых построек)
Лифт: Пассажирский (удобство для всех жильцов)
Мусоропровод: Наличие (чистота и комфорт)
УДОБНАЯ ЛОКАЦИЯ (Одинцово, ул. Белорусская)
Тихий и зеленый район с развитой инфраструктурой
В шаговой доступности магазины, аптеки, школы, детские сады
Хорошая транспортная доступность до Москвы и областных трасс
СТОИМОСТЬ
Цена: 9 850 000 рублей
Это отличное предложение для квартиры с такой жилой площадью и качественным домом!
ДЛЯ КОГО ЭТА КВАРТИРА?
Для тех, кто ценит простор — огромная жилая площадь для однушки
Для семейной пары или инвестора
Для любителей верхних этажей и красивых видов из окна
18.02.2026
9 850 000 ₽
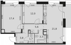
Продается 3-комн. квартира, площадью 77.3 м2.
Жилая площадь 43.1 м2, кухня 12 кв. м, ремонта нет, окна выходят на улицу.
Квартира располагается на 14 этаже 28-этажного монолитного дома.
Дом оборудован пассажирским лифтом, есть мусоропровод, закрытая территория, парковка охраняемая.
09.03.2026
42 130 046 ₽
Продается 3-комн. квартира, площадью 69.4 кв.м.
Жилая площадь 40.6 кв. м, кухня 11.6 кв. м, ремонта нет, окна выходят на улицу.
Квартира располагается на 4 этаже 28-этажного монолитного дома.
Дом оборудован пассажирским лифтом, есть мусоропровод, закрытая территория, парковка охраняемая.
09.03.2026
39 977 523 ₽
Продается 2-комн. квартира, площадью 65.9 кв.м.
Жилая площадь 31.6 кв. м, кухня 12.4 кв. м, ремонта нет, окна выходят на улицу.
Квартира располагается на 20 этаже 47-этажного монолитного дома.
Дом оборудован пассажирским лифтом, есть мусоропровод, закрытая территория, парковка с охраной.
09.03.2026
41 036 589 ₽
Продается 4-комн. квартира, площадью 135.8 м2.
Жилая площадь 66.4 кв. м, кухня 14.9 кв. м, ремонта нет, окна выходят на улицу.
Квартира располагается на 35 этаже 37-этажного монолитного дома.
Дом оборудован пассажирским лифтом, есть мусоропровод, закрытая территория, парковка охраняемая.
09.03.2026
105 910 420 ₽
Продается 3-комн. квартира, площадью 66.2 кв.м.
Жилая площадь 29.4 м2, ремонта нет, окна выходят на улицу.
Квартира располагается на 15 этаже 17-этажного монолитного дома.
Дом оборудован пассажирским лифтом, есть мусоропровод, закрытая территория, парковка с охраной.
09.03.2026
41 275 435 ₽
Продается 5-комн. квартира, площадью 122.3 кв.м.
Жилая площадь 55.6 м2, ремонта нет, окна выходят на улицу.
Квартира располагается на 13 этаже 17-этажного монолитного дома.
Дом оборудован пассажирским лифтом, есть мусоропровод, закрытая территория, парковка охраняемая.
09.03.2026
74 873 038 ₽
Продается 3-комн. квартира, площадью 83.2 кв.м.
Жилая площадь 46.3 м2, кухня 14.3 кв. м, ремонта нет, окна выходят во двор.
Квартира располагается на 3 этаже 37-этажного монолитного дома.
Дом оборудован пассажирским лифтом, есть мусоропровод, закрытая территория, парковка охраняется.
09.03.2026
41 632 864 ₽
Продается 3-комн. квартира, площадью 72.8 м2.
Жилая площадь 29.4 кв. м, ремонта нет, окна выходят на улицу.
Квартира располагается на 13 этаже 17-этажного монолитного дома.
Дом оборудован пассажирским лифтом, есть мусоропровод, закрытая территория, парковка с охраной.
09.03.2026
59 227 605 ₽
Продаётся квартира от застройщика: общая площадь 28.00 м, жилая 14.00 м, кухня 5.00 м, 3-й этаж, жилой квартал «Остров 14», корпус 1 (секция 2) . Срок сдачи: 2 квартал 2029 года.
1 совмещенный санузел.
Квартира продаётся с чистовой отделкой и мебелью! Идеальный вариант для тех, кто приобретает недвижимость для сдачи в аренду!
Инвестиционный продукт для получения постоянного дохода.
Остров. 14 ДОХОДНЫЙ ДОМ - ЧАСТЬ ПРОЕКТА «ОСТРОВ», В 10 МИНУТАХ ОТ МОСКВА-СИТИ, В 15 МИНУТАХ
ЕЗДЫ ОТ САДОВОГО КОЛЬЦА.
Квартиры с отделкой и мебелью, и с управлением "под ключ"
Постоянный доход для инвесторов, отельный сервис для арендаторов
Востребованные для аренды планировки: студии, 1- и 2-комнатные квартиры 28-64 м2
Полная комплектация квартир: отделка, мебель, бытовая техника, кондиционеры
Постоянный поток арендаторов - 10 минут от Москва-Сити, 5 минут от метро «Мневники», самодостаточная инфраструктура в квартале и собственная клубная инфраструктура в доме, спортивный, рекреационный и деловой кластеры на территории ОСТРОВА
27.02.2026
22 076 320 ₽




















