Объявление о квартирах в Кашире - Страница 15
- Кашира »
- Недвижимость
- » Квартиры в Кашире
Продаётся просторная двухкомнатная квартира площадью 69.8 квадратных метров в новом кирпичном доме 2025 года постройки, расположенном в уютном микрорайоне по адресу город Дзержинский, улица Бондарева, дом 4.
Предлагаем вашему вниманию светлую и просторную жилую площадь в размере 36.7 квадратных метров с удобной планировкой и раздельным санузлом. Кухня занимает 13,4 квадратных метров, предоставляя достаточно места для кулинарного творчества и семейных ужинов. Несмотря на то, что квартира требует ремонта, это открывает прекрасную возможность обустроить жильё согласно вашим личным предпочтениям и вкусам.
Расположенная на первом этаже, квартира порадует вас прекрасным видом из окон как на тихий двор, так и на улицу, наполняя пространство естественным светом. Балкон станет идеальным местом для утреннего кофе или вечернего отдыха после рабочего дня.
Для жителей дома предусмотрены удобные варианты парковки – во дворе и подземная, а также благоустроенный двор с детской и спортивной площадками, где ваши дети смогут активно проводить время на свежем воздухе. Рядом находятся школа, детский сад, торговый центр, парк и фитнес-клуб, обеспечивая комфортное проживание и удовлетворяя повседневные потребности семьи.
Приглашаем вас оценить все преимущества данной квартиры и представить, каким может стать ваше новое жилище благодаря вашему вкусу и воображению.
28.08.2025
13 084 063 ₽
НОВЫЙ СОВРЕМЕННЫЙ ЖИЛОЙ КОМПЛЕКС ОТ НАДЕЖНОГО ЗАСТРОЙЩИКА! В исторической части города, в непосредственной близости с Николо-Угрешским монастырем и Москвой-рекой. Дом Введен в эксплуатацию. Продается 1 комнатная крупногабаритная квартира, площадь 45/17,3/13 м2, с/у совмещ. 4,2 м2, прихожая , лоджия. Адрес: Московская область, г. Дзержинский, ул. Героя России В. Дудкина д. 3. Возможна ИПОТЕКА. Дом комфорт класса с улучшенным планировочным решением. Тихий зеленый спальный район города. В нутри комплекса торговый центр, медицинский центр. Рядом с домом сетевые магазины Магнит, Пятерочка, фермерский магазин Алексеевский, Николо-угрешский монастырь. Хорошее сообщение с Москвой, остановка общественного транспорта через дорогу от дома до Москвы можно добраться на автобусе за 30 мин до м Кузьминки, Котельники, Люблино, Братиславская, Алма-Атинская, станция Люберцы ходят автобусы. Развитая инфраструктура города в шаговой доступности: школа, детский сад, детская площадка, автостоянка, сетевые и розничные магазины, отделение СберБанка, аптеки, поликлиника
28.08.2025
7 162 284 ₽
НОВЫЙ СОВРЕМЕННЫЙ ЖИЛОЙ КОМПЛЕКС ОТ НАДЕЖНОГО ЗАСТРОЙЩИКА! В исторической части города, в непосредственной близости с Николо-Угрешским монастырем и Москвой-рекой. Дом Введен в эксплуатацию. Продается 1 комнатная крупногабаритная квартира, площадь 45,2/17,3/12.9 м2, с/у совмещ. 4,2 м2, прихожая , лоджия. Адрес: Московская область, г. Дзержинский, ул. Героя России В. Дудкина д. 3. Возможна ИПОТЕКА. Дом комфорт класса с улучшенным планировочным решением. Тихий зеленый спальный район города. В нутри комплекса торговый центр, медицинский центр. Рядом с домом сетевые магазины Магнит, Пятерочка, фермерский магазин Алексеевский, Николо-угрешский монастырь. Хорошее сообщение с Москвой, остановка общественного транспорта через дорогу от дома до Москвы можно добраться на автобусе за 30 мин до м Кузьминки, Котельники, Люблино, Братиславская, Алма-Атинская, станция Люберцы ходят автобусы. Развитая инфраструктура города в шаговой доступности: школа, детский сад, детская площадка, автостоянка, сетевые и розничные магазины, отделение СберБанка, аптеки, поликлиника
28.08.2025
7 192 074 ₽
НОВЫЙ СОВРЕМЕННЫЙ ЖИЛОЙ КОМПЛЕКС ОТ НАДЕЖНОГО ЗАСТРОЙЩИКА! В исторической части города, в непосредственной близости с Николо-Угрешским монастырем и Москвой-рекой. Дом Введен в эксплуатацию. Продается 1 комнатная крупногабаритная квартира, площадь 45,3/17,3/13 м2, с/у совмещ. 4,2 м2, прихожая , лоджия. Адрес: Московская область, г. Дзержинский, ул. Героя России В. Дудкина д. 3. Возможна ИПОТЕКА. Дом комфорт класса с улучшенным планировочным решением. Тихий зеленый спальный район города. В нутри комплекса торговый центр, медицинский центр. Рядом с домом сетевые магазины Магнит, Пятерочка, фермерский магазин Алексеевский, Николо-угрешский монастырь. Хорошее сообщение с Москвой, остановка общественного транспорта через дорогу от дома до Москвы можно добраться на автобусе за 30 мин до м Кузьминки, Котельники, Люблино, Братиславская, Алма-Атинская, станция Люберцы ходят автобусы. Развитая инфраструктура города в шаговой доступности: школа, детский сад, детская площадка, автостоянка, сетевые и розничные магазины, отделение СберБанка, аптеки, поликлиника
28.08.2025
7 206 969 ₽
НОВЫЙ СОВРЕМЕННЫЙ ЖИЛОЙ КОМПЛЕКС ОТ НАДЕЖНОГО ЗАСТРОЙЩИКА! В исторической части города, в непосредственной близости с Николо-Угрешским монастырем и Москвой-рекой. Дом Введен в эксплуатацию. Продается 1 комнатная крупногабаритная квартира, площадь 45,3/17,3/13 м2, с/у совмещ. 4,2 м2, прихожая , лоджия. Адрес: Московская область, г. Дзержинский, ул. Героя России В. Дудкина д. 3. Возможна ИПОТЕКА. Дом комфорт класса с улучшенным планировочным решением. Тихий зеленый спальный район города. В нутри комплекса торговый центр, медицинский центр. Рядом с домом сетевые магазины Магнит, Пятерочка, фермерский магазин Алексеевский, Николо-угрешский монастырь. Хорошее сообщение с Москвой, остановка общественного транспорта через дорогу от дома до Москвы можно добраться на автобусе за 30 мин до м Кузьминки, Котельники, Люблино, Братиславская, Алма-Атинская, станция Люберцы ходят автобусы. Развитая инфраструктура города в шаговой доступности: школа, детский сад, детская площадка, автостоянка, сетевые и розничные магазины, отделение СберБанка, аптеки, поликлиника
28.08.2025
7 206 969 ₽
НОВЫЙ СОВРЕМЕННЫЙ ЖИЛОЙ КОМПЛЕКС ОТ НАДЕЖНОГО ЗАСТРОЙЩИКА! В исторической части города, в непосредственной близости с Николо-Угрешским монастырем и Москвой-рекой. Дом Введен в эксплуатацию. Продается 1 комнатная крупногабаритная квартира, площадь 45,2/17,3/13 м2, с/у совмещ. 4,2 м2, прихожая , лоджия. Адрес: Московская область, г. Дзержинский, ул. Героя России В. Дудкина д. 3. Возможна ИПОТЕКА. Дом комфорт класса с улучшенным планировочным решением. Тихий зеленый спальный район города. В нутри комплекса торговый центр, медицинский центр. Рядом с домом сетевые магазины Магнит, Пятерочка, фермерский магазин Алексеевский, Николо-угрешский монастырь. Хорошее сообщение с Москвой, остановка общественного транспорта через дорогу от дома до Москвы можно добраться на автобусе за 30 мин до м Кузьминки, Котельники, Люблино, Братиславская, Алма-Атинская, станция Люберцы ходят автобусы. Развитая инфраструктура города в шаговой доступности: школа, детский сад, детская площадка, автостоянка, сетевые и розничные магазины, отделение СберБанка, аптеки, поликлиника
28.08.2025
7 192 074 ₽
НОВЫЙ СОВРЕМЕННЫЙ ЖИЛОЙ КОМПЛЕКС ОТ НАДЕЖНОГО ЗАСТРОЙЩИКА! В исторической части города, в непосредственной близости с Николо-Угрешским монастырем и Москвой-рекой. Дом Введен в эксплуатацию. Продается 1 комнатная крупногабаритная квартира, площадь 45,1/17,2/12.9 м2, с/у совмещ. 4,2 м2, прихожая , лоджия. Адрес: Московская область, г. Дзержинский, ул. Героя России В. Дудкина д. 3. Возможна ИПОТЕКА. Дом комфорт класса с улучшенным планировочным решением. Тихий зеленый спальный район города. В нутри комплекса торговый центр, медицинский центр. Рядом с домом сетевые магазины Магнит, Пятерочка, фермерский магазин Алексеевский, Николо-угрешский монастырь. Хорошее сообщение с Москвой, остановка общественного транспорта через дорогу от дома до Москвы можно добраться на автобусе за 30 мин до м Кузьминки, Котельники, Люблино, Братиславская, Алма-Атинская, станция Люберцы ходят автобусы. Развитая инфраструктура города в шаговой доступности: школа, детский сад, детская площадка, автостоянка, сетевые и розничные магазины, отделение СберБанка, аптеки, поликлиника
28.08.2025
6 937 265 ₽
НОВЫЙ СОВРЕМЕННЫЙ ЖИЛОЙ КОМПЛЕКС ОТ НАДЕЖНОГО ЗАСТРОЙЩИКА! В исторической части города, в непосредственной близости с Николо-Угрешским монастырем и Москвой-рекой. Дом Введен в эксплуатацию. Продается 1 комнатная крупногабаритная квартира, площадь 43,8/17,3/12.9 м2, с/у совмещ. 4,2 м2, прихожая , лоджия. Адрес: Московская область, г. Дзержинский, ул. Героя России В. Дудкина д. 3. Возможна ИПОТЕКА. Дом комфорт класса с улучшенным планировочным решением. Тихий зеленый спальный район города. В нутри комплекса торговый центр, медицинский центр. Рядом с домом сетевые магазины Магнит, Пятерочка, фермерский магазин Алексеевский, Николо-угрешский монастырь. Хорошее сообщение с Москвой, остановка общественного транспорта через дорогу от дома до Москвы можно добраться на автобусе за 30 мин до м Кузьминки, Котельники, Люблино, Братиславская, Алма-Атинская, станция Люберцы ходят автобусы. Развитая инфраструктура города в шаговой доступности: школа, детский сад, детская площадка, автостоянка, сетевые и розничные магазины, отделение СберБанка, аптеки, поликлиника
28.08.2025
6 983 545 ₽
НОВЫЙ СОВРЕМЕННЫЙ ЖИЛОЙ КОМПЛЕКС ОТ НАДЕЖНОГО ЗАСТРОЙЩИКА! В исторической части города, в непосредственной близости с Николо-Угрешским монастырем и Москвой-рекой. Дом Введен в эксплуатацию. Продается 1 комнатная крупногабаритная квартира, площадь 45,3/17,4/13 м2, с/у совмещ. 4,2 м2, прихожая , лоджия. Адрес: Московская область, г. Дзержинский, ул. Героя России В. Дудкина д. 3. Возможна ИПОТЕКА. Дом комфорт класса с улучшенным планировочным решением. Тихий зеленый спальный район города. В нутри комплекса торговый центр, медицинский центр. Рядом с домом сетевые магазины Магнит, Пятерочка, фермерский магазин Алексеевский, Николо-угрешский монастырь. Хорошее сообщение с Москвой, остановка общественного транспорта через дорогу от дома до Москвы можно добраться на автобусе за 30 мин до м Кузьминки, Котельники, Люблино, Братиславская, Алма-Атинская, станция Люберцы ходят автобусы. Развитая инфраструктура города в шаговой доступности: школа, детский сад, детская площадка, автостоянка, сетевые и розничные магазины, отделение СберБанка, аптеки, поликлиника
28.08.2025
7 206 969 ₽
НОВЫЙ СОВРЕМЕННЫЙ ЖИЛОЙ КОМПЛЕКС ОТ НАДЕЖНОГО ЗАСТРОЙЩИКА! В исторической части города, в непосредственной близости с Николо-Угрешским монастырем и Москвой-рекой. Дом Введен в эксплуатацию. Продается 1 комнатная крупногабаритная квартира, площадь 45,3/17,4/12.9 м2, с/у совмещ. 4,2 м2, прихожая , лоджия. Адрес: Московская область, г. Дзержинский, ул. Героя России В. Дудкина д. 3. Возможна ИПОТЕКА. Дом комфорт класса с улучшенным планировочным решением. Тихий зеленый спальный район города. В нутри комплекса торговый центр, медицинский центр. Рядом с домом сетевые магазины Магнит, Пятерочка, фермерский магазин Алексеевский, Николо-угрешский монастырь. Хорошее сообщение с Москвой, остановка общественного транспорта через дорогу от дома до Москвы можно добраться на автобусе за 30 мин до м Кузьминки, Котельники, Люблино, Братиславская, Алма-Атинская, станция Люберцы ходят автобусы. Развитая инфраструктура города в шаговой доступности: школа, детский сад, детская площадка, автостоянка, сетевые и розничные магазины, отделение СберБанка, аптеки, поликлиника
28.08.2025
7 206 969 ₽
НОВЫЙ СОВРЕМЕННЫЙ ЖИЛОЙ КОМПЛЕКС ОТ НАДЕЖНОГО ЗАСТРОЙЩИКА! В исторической части города, в непосредственной близости с Николо-Угрешским монастырем и Москвой-рекой. Дом Введен в эксплуатацию. Продается 1 комнатная крупногабаритная квартира, площадь 43,6/17,3/13 м2, с/у совмещ. 4,2 м2, прихожая , лоджия. Адрес: Московская область, г. Дзержинский, ул. Героя России В. Дудкина д. 3. Возможна ИПОТЕКА. Дом комфорт класса с улучшенным планировочным решением. Тихий зеленый спальный район города. В нутри комплекса торговый центр, медицинский центр. Рядом с домом сетевые магазины Магнит, Пятерочка, фермерский магазин Алексеевский, Николо-угрешский монастырь. Хорошее сообщение с Москвой, остановка общественного транспорта через дорогу от дома до Москвы можно добраться на автобусе за 30 мин до м Кузьминки, Котельники, Люблино, Братиславская, Алма-Атинская, станция Люберцы ходят автобусы. Развитая инфраструктура города в шаговой доступности: школа, детский сад, детская площадка, автостоянка, сетевые и розничные магазины, отделение СберБанка, аптеки, поликлиника
28.08.2025
6 953 756 ₽
НОВЫЙ СОВРЕМЕННЫЙ ЖИЛОЙ КОМПЛЕКС ОТ НАДЕЖНОГО ЗАСТРОЙЩИКА! В исторической части города, в непосредственной близости с Николо-Угрешским монастырем и Москвой-рекой. Дом Введен в эксплуатацию. Продается 1 комнатная крупногабаритная квартира, площадь 45,3/17,3/13 м2, с/у совмещ. 4,2 м2, прихожая , лоджия. Адрес: Московская область, г. Дзержинский, ул. Героя России В. Дудкина д. 3. Возможна ИПОТЕКА. Дом комфорт класса с улучшенным планировочным решением. Тихий зеленый спальный район города. В нутри комплекса торговый центр, медицинский центр. Рядом с домом сетевые магазины Магнит, Пятерочка, фермерский магазин Алексеевский, Николо-угрешский монастырь. Хорошее сообщение с Москвой, остановка общественного транспорта через дорогу от дома до Москвы можно добраться на автобусе за 30 мин до м Кузьминки, Котельники, Люблино, Братиславская, Алма-Атинская, станция Люберцы ходят автобусы. Развитая инфраструктура города в шаговой доступности: школа, детский сад, детская площадка, автостоянка, сетевые и розничные магазины, отделение СберБанка, аптеки, поликлиника
28.08.2025
6 965 991 ₽
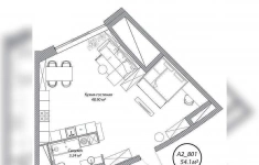
Продаются 1 комн. апартаменты, площадью 54.1 кв.м.
Жилая площадь 32.49 кв. м, кухня 18 кв. м, ремонта нет, комнаты изолированные, совмещенных санузлов - 1.
Квартира располагается на 8 этаже 10-этажного кирпичного дома.
16.12.2025
14 621 700 ₽
Сдается 4х комнатная квартира общей площадью 145,7 кв. м. Комнаты большие, просторные, светлые. Кухня 14 кв. м., имеется 3 лоджии.
Ремонт свежий, имеется стиральная машинка, холодильник.
Две ванные (в одной ванная, в другой душевая кабинка) и два санузла.
Преимущественно семье. Стоимость 70 000 руб., без учета коммунальных расходов. Коммуналка оплачивается отдельно.
Во дворе детская площадка
25.11.2025
70 000 ₽
Татьяна. Наиля. СРОЧНАЯ ПРОДАЖА! Отличное предложение! Оперативный просмотр и выход на сделку! Предлагается Вашему вниманию отличная уютная трехкомнатная квартира с изолированными комнатами.
Квартира полностью обустроена для комфортного проживания. На кухне: кухонный гарнитур под единой столешницей со встроенной бытовой техникой, обеденная зона. В коридоре: шкафы-купе, зона отдыха с удобным диваном и телевизором. В первой комнате: двуспальная кровать, диван, рабочая зона. Во второй комнате: удобный двуспальный диван и рабочая зона. В детской комнате: функциональная детская с двуспальной кроватью. Санузел совмещен, в плитке до потолка. Окна выходят во двор.
Отличное местоположение. До остановки общественного транспорта 10 метров. Удобный выезд на Новорязанское шоссе, много парковочных мест. В пешей доступности располагается несколько магазинов различной направленности, школа, детский сад, поликлиника.
Отличная юридическая история. Больше 5-ти лет в собственности, полная стоимость в договоре. Возможна ипотека. ВАШ ЗВОНОК ОЧЕНЬ ВАЖЕН ДЛЯ НАС, ЕСЛИ ВЫ НЕ ДОЗВОНИЛИСЬ, ПРИШЛИТЕ СМС или сообщение на WhatsApp или Telegram (бываем в метро или на переговорах).
05.11.2025
8 950 000 ₽
Сдается студия посуточно, площадью 15 м2. Можно с детьми.
Жилая площадь 11 м2, кухня 3 кв.м. В квартире четыре спальных места, ремонт по авторскому проекту, есть бытовая техника: стиральная машина, холодильник, телевизор, микроволновая печь, интернет. Раздельных санузлов нет, совмещенных санузлов 1, душевая кабина.
На полу ламинат, входная дверь железная, балконов - нет, лоджий - нет, окна выходят на улицу.
Квартира располагается на 1 этаже 3-этажного сталинского дома, высота потолков 3 м.
Парковка автомобилей - наземная, парковка на 30 машиномест, есть гостевые парковочные места 5 шт. Обеспечение безопасности: видеонаблюдение. Инфраструктура: поликлиника, детские площадки, спортивные площадки, места для отдыха, супермаркет, рестораны, фитнес-центр, пункты бытового обслуживания, коммерческие объекты, офисы.
09.12.2025
1 590 ₽
Сдается студия посуточно, площадью 16 кв.м м.Ростокино.
Жилая площадь 12 м2, кухня 2 кв.м. В квартире три спальных места, ремонт по авторскому проекту, есть бытовая техника: стиральная машина, холодильник, телевизор, микроволновая печь, интернет. Раздельных санузлов нет, совмещенных санузлов 1, душевая кабина.
На полу линолеум, входная дверь железная, балконов - нет, лоджий - нет, окна выходят во двор.
Квартира располагается на 2 этаже 4-этажного кирпичного дома 1969 года постройки, высота потолков 2.5 м.
Парковка автомобилей - наземная, парковка на 60 машиномест. Инфраструктура: поликлиника, детские площадки, спортивные площадки, места для отдыха, супермаркет, рестораны, фитнес-центр, пункты бытового обслуживания, коммерческие объекты, офисы.
Вы так же можете искать нас по фразам:
квартира аренда посуточно
снимать квартира без посредник посуточно
квартира снимать сутки
квартира сутки снимать
снять квартиру посуточно хозяев
аренда квартир посуточно
1-комнатная квартира
1-к квартира на сутки и часы.
квартира посуточно
снять квартиру в
квартира снятой
квартира аренда
снимать квартира без посредник
квартира снимать
квартира сутки
квартиры посуточно
снять квартиру посуточно
снят квартиру посуточно
снят квартира посуточно
московский квартира сутки
квартира сутки
снять квартиру посуточно в
квартиры посуточно в москве
снять квартиру в москве посуточно
квартиры посуточно в москве недорого
квартира посуточно москва метро
квартиры посуточно москва без посредников
посуточная аренда квартир в москве
снять квартиру в москве посуточно недорого
квартира посуточный снимать
снимать квартира московский
московский квартира аренда
квартира посуточно московская область
снять квартиру посуточно московская область.
квартиры посуточно
снять квартиру посуточно
снят квартиру посуточно. ЗВОНИТЕ!
08.12.2025
1 590 ₽
Срочно сдаю однокомнатную квартиру со всеми удобствами, техника, мебель, посуда... на новогодние каникулы, с 31 декабря по 09 января.
Звонить после 9 вечера или до 9 утра.
27.12.2025
3 000 ₽
Ваша мечта о просторной и светлой квартире в престижном районе Москвы может стать реальностью!
О квартире:
Предлагается к продаже трехкомнатная квартира в одном из самых престижных районов столицы – Сокольниках. Кирпичный дом 1999 года постройки. Общая площадь квартиры 100 кв.м. без учета лоджий 92.1 кв.м., правильная планировка "распашонка" обеспечивает максимальный комфорт и функциональность, Высокие потолки 3,1 метра, тихий малоэтажный район создают ощущение жизни в загородном доме. Три комнаты площадью 24,8 кв.м., 17,6 кв.м. и 15,7 кв.м. подарят каждому члену семьи личное пространство и просторная кухня площадью 11,8 кв.м.Два санузла и две просторные лоджии.
Преимущества:
-На этаже всего один сосед!
- В стоимость квартиры включено машино место в подземном паркинге!
- Из окон этого дома вы будете видеть, как ваш ребенок идет в одну из лучших и престижных школ города Москвы — школа Ломоносова. Это не просто школа, а целый образовательный комплекс, где созданы все условия для раскрытия потенциала каждого ребенка. Здесь работают высококвалифицированные педагоги, используются передовые образовательные технологии, а ученики получают возможность участвовать в олимпиадах, конкурсах и проектах, которые могут стать отличным стартом для их будущей карьеры.
Окружение.
Солидные и интеллигентные соседи, территория огорожена, есть видеонаблюдение и охрана, что гарантирует безопасность и защищенность.
На территории дома также предусмотрена гостевая парковка, где всегда найдутся свободные места для вас и ваших гостей.
Визитной карточкой района, безусловно, является один из крупнейших и старейших парков Москвы – парк "Сокольники", который находится в шаговой доступности от дома. Отдых, природа, развлечения – всё в одном месте!
Транспортная доступность:
станции метро "Преображенская площадь" и "Сокольники" находятся рядом, а также удобный выезд на основные транспортные магистрали города.
Документы:
- 1 ВЗРОСЛЫЙ СОБСТВЕННИК
- ЮРИДИЧЕСКИ И ФИЗИЧЕСКИ СВОБОДНА
- БОЛЕЕ 10 ЛЕТ В СОБСТВЕННОСТИ
- ПОЛНАЯ БЕЗОПАСНОСТЬ СДЕЛКИ
26.12.2025
55 000 000 ₽
Классная, уютная, толстостенная квартира, био, ЭКО пейзаж ; наша ( не агентики ) , агентики мимо
Снаружи, вблизи: прекрасная, шикарная лесопарковая зона, ( пляж, песок, плавать ), заниматься , гулять , кататься на велике, лыжах, санках , расслабляться, шашлыки, пикники; а ещё Москва--река ; а ещё тихо, не суета
Этот эксклюзив -- 10 км от столицы , Новорязанское шоссе
90 квм , хитовый 6й этаж из 9и
+7 967 283 7957 (Tele.)
+7 915 254 9151 (W)
Заезжайте
25.12.2025
16 600 000 ₽
Классная, уютная, толстостенная квартира, био, ЭКО пейзаж ; наша ( не агентики ) , агентики мимо
Снаружи, вблизи: прекрасная, шикарная лесопарковая зона, ( пляж, песок, плавать ), заниматься , гулять , кататься на велике, лыжах, санках , расслабляться, шашлыки, пикники; а ещё Москва--река ; а ещё тихо, не суета
Этот эксклюзив -- 10 км от столицы , Новорязанское шоссе
90 квм , хитовый 6й этаж из 9и
+7 967 283 7957 (Tele.)
+7 915 254 9151 (W)
Заезжайте
25.12.2025
16 600 000 ₽


















