Продажа недвижимости в Каневской - Страница 7
- Каневская »
- Недвижимость в Каневской
Продается студия, площадью 29.85 м2 в монолитной новостройке. Возможен вариант покупки с использованием ипотечных средств, есть рассрочка, возможна покупка с использованием материнского капитала, есть военная ипотека.
Жилая площадь 21.72 м2, предчистовая отделка, комнаты смежные.
Квартира располагается на 5 этаже 23-этажного дома в ЖК Сердце.
Застройщик - ГК ССК, сдача дома - I квартал 2025 года, дом уже сдан, высота потолков 2.7 м.
Дом оборудован пассажирским лифтом, закрытая территория, парковка охраняется. Обеспечение безопасности: видеонаблюдение, противопожарная система. Инфраструктура: детские площадки, спортивные площадки, места для отдыха, супермаркет, рестораны, фитнес-центр, пункты бытового обслуживания, коммерческие объекты.
ЖК «Сердце» - это премиальный комплекс, расположенный в одном из самых престижных районов Краснодара, всего в нескольких минутах от исторического и делового центра города.
Дом выполнен в стиле неоклассицизма. Высокий архитектурный стиль жилого комплекса внутри - это роскошные планировки для любой семьи: от студий до больших пятикомнатных квартир. Высокие потолки и панорамные окна - в вашем доме будет красиво, светло, просторно.
Всего в 7 минутах езды находится один из самых красивых стадионов Европы и прилегающий к нему великолепный парк «Краснодар», который стал настоящей гордостью города.
В рамках специального предложения доступны всего 20 квартир на особых условиях. ЖК «Сердце» расположен вблизи исторического и делового центра, сочетая городское удобство и атмосферу уюта. Фасады из натурального камня и высококачественных материалов подчёркивают статус комплекса, а закрытая территория с круглосуточной охраной обеспечивает безопасность. Уникальное озеленение, продуманные зоны отдыха и гармоничный ландшафтный дизайн создают атмосферу уединения в сердце города.
График работы ОП в новогодние праздники:
31.12.25 - 03.01.26 - выходной
04.01.26 - 06.01.26 с 10: 00 до 18: 00.
07.01.26 - выходной
08.01.26 - 11.01.26 с 10: 00 до 18: 00.
С 12.01.26 - в стандартном режиме
Аккредитованные банки: Сбербанк, Альфа-Банк, ВТБ, Банк Уралсиб, РОССИЯ, Абсолют Банк, Металлинвестбанк, РНКБ, ПСБ, Кубань Кредит, Банк ВБРР, Россельхозбанк.
Позвоните и узнайте условия покупки прямо сейчас!
09.12.2025
12 686 250 ₽
Продается студия, площадью 29.75 м2 в монолитной новостройке. Возможен вариант покупки с использованием ипотечных средств, есть рассрочка, возможна покупка с использованием материнского капитала, есть военная ипотека.
Жилая площадь 21.72 м2, предчистовая отделка, комнаты смежные.
Квартира располагается на 4 этаже 23-этажного дома в ЖК Сердце.
Застройщик - ГК ССК, сдача дома - I квартал 2025 года, дом уже сдан, высота потолков 2.7 м.
Дом оборудован пассажирским лифтом, закрытая территория, парковка охраняется. Обеспечение безопасности: видеонаблюдение, противопожарная система. Инфраструктура: детские площадки, спортивные площадки, места для отдыха, супермаркет, рестораны, фитнес-центр, пункты бытового обслуживания, коммерческие объекты.
ЖК «Сердце» - это премиальный комплекс, расположенный в одном из самых престижных районов Краснодара, всего в нескольких минутах от исторического и делового центра города.
Дом выполнен в стиле неоклассицизма. Высокий архитектурный стиль жилого комплекса внутри - это роскошные планировки для любой семьи: от студий до больших пятикомнатных квартир. Высокие потолки и панорамные окна - в вашем доме будет красиво, светло, просторно.
Всего в 7 минутах езды находится один из самых красивых стадионов Европы и прилегающий к нему великолепный парк «Краснодар», который стал настоящей гордостью города.
В рамках специального предложения доступны всего 20 квартир на особых условиях. ЖК «Сердце» расположен вблизи исторического и делового центра, сочетая городское удобство и атмосферу уюта. Фасады из натурального камня и высококачественных материалов подчёркивают статус комплекса, а закрытая территория с круглосуточной охраной обеспечивает безопасность. Уникальное озеленение, продуманные зоны отдыха и гармоничный ландшафтный дизайн создают атмосферу уединения в сердце города.
График работы ОП в новогодние праздники:
31.12.25 - 03.01.26 - выходной
04.01.26 - 06.01.26 с 10: 00 до 18: 00.
07.01.26 - выходной
08.01.26 - 11.01.26 с 10: 00 до 18: 00.
С 12.01.26 - в стандартном режиме
Аккредитованные банки: Сбербанк, Альфа-Банк, ВТБ, Банк Уралсиб, РОССИЯ, Абсолют Банк, Металлинвестбанк, РНКБ, ПСБ, Кубань Кредит, Банк ВБРР, Россельхозбанк.
Позвоните и узнайте условия покупки прямо сейчас!
09.12.2025
12 643 750 ₽
Продается студия, площадью 29.75 м2 в монолитной новостройке. Возможен вариант покупки с использованием ипотечных средств, есть рассрочка, возможна покупка с использованием материнского капитала, есть военная ипотека.
Жилая площадь 21.72 м2, предчистовая отделка, комнаты смежные.
Квартира располагается на 5 этаже 23-этажного дома в ЖК Сердце.
Застройщик - ГК ССК, сдача дома - I квартал 2025 года, дом уже сдан, высота потолков 2.7 м.
Дом оборудован пассажирским лифтом, закрытая территория, парковка охраняется. Обеспечение безопасности: видеонаблюдение, противопожарная система. Инфраструктура: детские площадки, спортивные площадки, места для отдыха, супермаркет, рестораны, фитнес-центр, пункты бытового обслуживания, коммерческие объекты.
ЖК «Сердце» - это премиальный комплекс, расположенный в одном из самых престижных районов Краснодара, всего в нескольких минутах от исторического и делового центра города.
Дом выполнен в стиле неоклассицизма. Высокий архитектурный стиль жилого комплекса внутри - это роскошные планировки для любой семьи: от студий до больших пятикомнатных квартир. Высокие потолки и панорамные окна - в вашем доме будет красиво, светло, просторно.
Всего в 7 минутах езды находится один из самых красивых стадионов Европы и прилегающий к нему великолепный парк «Краснодар», который стал настоящей гордостью города.
В рамках специального предложения доступны всего 20 квартир на особых условиях. ЖК «Сердце» расположен вблизи исторического и делового центра, сочетая городское удобство и атмосферу уюта. Фасады из натурального камня и высококачественных материалов подчёркивают статус комплекса, а закрытая территория с круглосуточной охраной обеспечивает безопасность. Уникальное озеленение, продуманные зоны отдыха и гармоничный ландшафтный дизайн создают атмосферу уединения в сердце города.
График работы ОП в новогодние праздники:
31.12.25 - 03.01.26 - выходной
04.01.26 - 06.01.26 с 10: 00 до 18: 00.
07.01.26 - выходной
08.01.26 - 11.01.26 с 10: 00 до 18: 00.
С 12.01.26 - в стандартном режиме
Аккредитованные банки: Сбербанк, Альфа-Банк, ВТБ, Банк Уралсиб, РОССИЯ, Абсолют Банк, Металлинвестбанк, РНКБ, ПСБ, Кубань Кредит, Банк ВБРР, Россельхозбанк.
Позвоните и узнайте условия покупки прямо сейчас!
09.12.2025
12 643 750 ₽
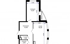
Продается 1-комн. квартира, площадью 51.95 м2 в монолитной новостройке. Возможен вариант покупки с использованием ипотечных средств, есть рассрочка, возможна покупка с использованием материнского капитала, есть военная ипотека.
Жилая площадь 18.45 м2, кухня 22.05 м2, предчистовая отделка, комнаты изолированные.
Квартира располагается на 4 этаже 23-этажного дома в ЖК Сердце.
Застройщик - ГК ССК, сдача дома - I квартал 2025 года, дом уже сдан, высота потолков 2.7 м.
Дом оборудован пассажирским лифтом, закрытая территория, парковка охраняется. Обеспечение безопасности: видеонаблюдение, противопожарная система. Инфраструктура: детские площадки, спортивные площадки, места для отдыха, супермаркет, рестораны, фитнес-центр, пункты бытового обслуживания, коммерческие объекты.
ЖК «Сердце» - это премиальный комплекс, расположенный в одном из самых престижных районов Краснодара, всего в нескольких минутах от исторического и делового центра города.
Дом выполнен в стиле неоклассицизма. Высокий архитектурный стиль жилого комплекса внутри - это роскошные планировки для любой семьи: от студий до больших пятикомнатных квартир. Высокие потолки и панорамные окна - в вашем доме будет красиво, светло, просторно.
Всего в 7 минутах езды находится один из самых красивых стадионов Европы и прилегающий к нему великолепный парк «Краснодар», который стал настоящей гордостью города.
В рамках специального предложения доступны всего 20 квартир на особых условиях. ЖК «Сердце» расположен вблизи исторического и делового центра, сочетая городское удобство и атмосферу уюта. Фасады из натурального камня и высококачественных материалов подчёркивают статус комплекса, а закрытая территория с круглосуточной охраной обеспечивает безопасность. Уникальное озеленение, продуманные зоны отдыха и гармоничный ландшафтный дизайн создают атмосферу уединения в сердце города.
График работы ОП в новогодние праздники:
31.12.25 - 03.01.26 - выходной
04.01.26 - 06.01.26 с 10: 00 до 18: 00.
07.01.26 - выходной
08.01.26 - 11.01.26 с 10: 00 до 18: 00.
С 12.01.26 - в стандартном режиме
Аккредитованные банки: Сбербанк, Альфа-Банк, ВТБ, Банк Уралсиб, РОССИЯ, Абсолют Банк, Металлинвестбанк, РНКБ, ПСБ, Кубань Кредит, Банк ВБРР, Россельхозбанк.
Позвоните и узнайте условия покупки прямо сейчас!
09.12.2025
21 819 000 ₽
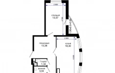
Продается 1-комн. квартира, площадью 51.75 м2 в монолитной новостройке. Возможен вариант покупки с использованием ипотечных средств, есть рассрочка, возможна покупка с использованием материнского капитала, есть военная ипотека.
Жилая площадь 18.55 м2, кухня 20.71 м2, предчистовая отделка, комнаты изолированные.
Квартира располагается на 7 этаже 23-этажного дома в ЖК Сердце.
Застройщик - ГК ССК, сдача дома - I квартал 2025 года, дом уже сдан, высота потолков 2.7 м.
Дом оборудован пассажирским лифтом, закрытая территория, парковка охраняется. Обеспечение безопасности: видеонаблюдение, противопожарная система. Инфраструктура: детские площадки, спортивные площадки, места для отдыха, супермаркет, рестораны, фитнес-центр, пункты бытового обслуживания, коммерческие объекты.
ЖК «Сердце» - это премиальный комплекс, расположенный в одном из самых престижных районов Краснодара, всего в нескольких минутах от исторического и делового центра города.
Дом выполнен в стиле неоклассицизма. Высокий архитектурный стиль жилого комплекса внутри - это роскошные планировки для любой семьи: от студий до больших пятикомнатных квартир. Высокие потолки и панорамные окна - в вашем доме будет красиво, светло, просторно.
Всего в 7 минутах езды находится один из самых красивых стадионов Европы и прилегающий к нему великолепный парк «Краснодар», который стал настоящей гордостью города.
В рамках специального предложения доступны всего 20 квартир на особых условиях. ЖК «Сердце» расположен вблизи исторического и делового центра, сочетая городское удобство и атмосферу уюта. Фасады из натурального камня и высококачественных материалов подчёркивают статус комплекса, а закрытая территория с круглосуточной охраной обеспечивает безопасность. Уникальное озеленение, продуманные зоны отдыха и гармоничный ландшафтный дизайн создают атмосферу уединения в сердце города.
График работы ОП в новогодние праздники:
31.12.25 - 03.01.26 - выходной
04.01.26 - 06.01.26 с 10: 00 до 18: 00.
07.01.26 - выходной
08.01.26 - 11.01.26 с 10: 00 до 18: 00.
С 12.01.26 - в стандартном режиме
Аккредитованные банки: Сбербанк, Альфа-Банк, ВТБ, Банк Уралсиб, РОССИЯ, Абсолют Банк, Металлинвестбанк, РНКБ, ПСБ, Кубань Кредит, Банк ВБРР, Россельхозбанк.
Позвоните и узнайте условия покупки прямо сейчас!
09.12.2025
21 735 000 ₽
Продается 2-комн. квартира, площадью 65.27 м2 в монолитно-кирпичной новостройке. Возможен вариант покупки с использованием ипотечных средств, есть рассрочка, возможна покупка с использованием материнского капитала, есть военная ипотека.
Жилая площадь 36.3 м2, кухня 6.02 м2, предчистовая отделка.
Квартира располагается на 4 этаже 18-этажного дома в ЖК Фонтаны.
Застройщик - ГК ССК, сдача дома - IV квартал 2026 года, высота потолков 2.82 м.
Дом оборудован пассажирским лифтом, закрытая территория.
Отдельная многоуровневая парковка, парковка охраняется. Обеспечение безопасности: видеонаблюдение, противопожарная система. Инфраструктура: детский сад, детские площадки, спортивные площадки, места для отдыха, супермаркет, рестораны, фитнес-центр, пункты бытового обслуживания, коммерческие объекты.
Жилой комплекс «Фонтаны» - дом клубного типа. Преимущество заключается в продуманном ландшафте дворов, круглосуточно охраняемой территории, системе видеонаблюдения во дворе. Также для удобства жителей проведен Wi-Fi во дворе, оборудованы безопасные и современные детские площадки, зоны отдыха.
«Фонтаны» - уникальный, неповторимый жилой комплекс, воплощающий оригинальные и креативные решения дизайнеров и архитекторов. Дома округлой форме - это придает им легкости, несмотря на массивность постройки.
ЖК «Фонтаны» расположен в микрорайоне Черёмушки. Отличная транспортная развязка позволяет быстро и с комфортом добраться до центра, а большое количество зеленых насаждений и парков дает возможность гулять с детьми и наслаждаться прекрасным видом на Кубань.
Программа «Доступное жилье» - скидка 3% для тех, кто строит будущее!
В рамках программы «Доступное жилье» предусмотрена скидка 3% от стоимости квартиры для:
врачей и медицинского персонала,
учителей и преподавателей школ и вузов,
участников СВО и военнослужащих,
моряков (для жителей Калининграда) ,
молодых семей с детьми.
Это наш вклад в поддержку тех, кто каждый день заботится о других, растит новое поколение, защищает страну или строит свою семью.
График работы ОП в новогодние праздники:
31.12.25 - 03.01.26 - выходной
04.01.26 - 06.01.26 с 10: 00 до 18: 00.
07.01.26 - выходной
08.01.26 - 11.01.26 с 10: 00 до 18: 00.
С 12.01.26 - в стандартном режиме
Аккредитованные банки: Сбербанк, Альфа-Банк, ВТБ, Банк Уралсиб, РОССИЯ, Абсолют Банк, Металлинвестбанк, РНКБ, ПСБ, Кубань Кредит, Банк ВБРР, Россельхозбанк.
Позвоните и узнайте условия покупки прямо сейчас!
17.12.2025
12 074 950 ₽
Продается 2-комн. квартира, площадью 62.36 м2 в монолитно-кирпичной новостройке. Возможен вариант покупки с использованием ипотечных средств, есть рассрочка, возможна покупка с использованием материнского капитала, есть военная ипотека.
Жилая площадь 29.39 м2, кухня 17.36 м2, предчистовая отделка.
Квартира располагается на 9 этаже 18-этажного дома в ЖК Фонтаны.
Застройщик - ГК ССК, сдача дома - IV квартал 2026 года, высота потолков 2.82 м.
Дом оборудован пассажирским лифтом, закрытая территория.
Отдельная многоуровневая парковка, парковка охраняется. Обеспечение безопасности: видеонаблюдение, противопожарная система. Инфраструктура: детский сад, детские площадки, спортивные площадки, места для отдыха, супермаркет, рестораны, фитнес-центр, пункты бытового обслуживания, коммерческие объекты.
Жилой комплекс «Фонтаны» - дом клубного типа. Преимущество заключается в продуманном ландшафте дворов, круглосуточно охраняемой территории, системе видеонаблюдения во дворе. Также для удобства жителей проведен Wi-Fi во дворе, оборудованы безопасные и современные детские площадки, зоны отдыха.
«Фонтаны» - уникальный, неповторимый жилой комплекс, воплощающий оригинальные и креативные решения дизайнеров и архитекторов. Дома округлой форме - это придает им легкости, несмотря на массивность постройки.
ЖК «Фонтаны» расположен в микрорайоне Черёмушки. Отличная транспортная развязка позволяет быстро и с комфортом добраться до центра, а большое количество зеленых насаждений и парков дает возможность гулять с детьми и наслаждаться прекрасным видом на Кубань.
Программа «Доступное жилье» - скидка 3% для тех, кто строит будущее!
В рамках программы «Доступное жилье» предусмотрена скидка 3% от стоимости квартиры для:
врачей и медицинского персонала,
учителей и преподавателей школ и вузов,
участников СВО и военнослужащих,
моряков (для жителей Калининграда) ,
молодых семей с детьми.
Это наш вклад в поддержку тех, кто каждый день заботится о других, растит новое поколение, защищает страну или строит свою семью.
График работы ОП в новогодние праздники:
31.12.25 - 03.01.26 - выходной
04.01.26 - 06.01.26 с 10: 00 до 18: 00.
07.01.26 - выходной
08.01.26 - 11.01.26 с 10: 00 до 18: 00.
С 12.01.26 - в стандартном режиме
Аккредитованные банки: Сбербанк, Альфа-Банк, ВТБ, Банк Уралсиб, РОССИЯ, Абсолют Банк, Металлинвестбанк, РНКБ, ПСБ, Кубань Кредит, Банк ВБРР, Россельхозбанк.
Позвоните и узнайте условия покупки прямо сейчас!
17.12.2025
10 289 400 ₽
Продается 2-комн. квартира, площадью 66.42 м2 в монолитно-кирпичной новостройке. Возможен вариант покупки с использованием ипотечных средств, есть рассрочка, возможна покупка с использованием материнского капитала, есть военная ипотека.
Жилая площадь 29.43 м2, кухня 9.96 м2, предчистовая отделка.
Квартира располагается на 2 этаже 19-этажного дома в ЖК Лучший.
Застройщик - ГК ССК, сдача дома - IV квартал 2025 года, высота потолков 2.9 м.
Дом оборудован пассажирским лифтом, закрытая территория, парковка охраняется. Обеспечение безопасности: видеонаблюдение, противопожарная система. Инфраструктура: детские площадки, спортивные площадки, места для отдыха, супермаркет, рестораны, фитнес-центр, пункты бытового обслуживания, коммерческие объекты.
Дома сданы раньше сроков, ключи в момент сделки!
Жилой квартал «Лучший» - единая экосистема домов, в которой соблюдаются стандарты максимального качества, экологичности, богатства инфраструктуры, безопасного, живописного и престижного окружения и транспортной доступности. Организация уличного пространства и формирование благоприятной, эстетически привлекательной среды за порогом жилья является важным этапом строительства. Ландшафтный дизайн жилого квартала «Лучший» включает в себя не только озеленение двора, но и создание его внутренней инфраструктуры.
График работы ОП в новогодние праздники:
31.12.25 - 03.01.26 - выходной
04.01.26 - 06.01.26 с 10: 00 до 18: 00.
07.01.26 - выходной
08.01.26 - 11.01.26 с 10: 00 до 18: 00.
С 12.01.26 - в стандартном режиме
Два 24-этажных литера, выполненных по надежной технологии монолит-кирпич.
Компания ССК выражает благодарность тем, кто ежедневно вкладывает силы в развитие страны и заботится о её будущем. В рамках программы «Доступное жильё» предусмотрена скидка 3% от стоимости приобретаемой квартиры для врачей и медицинского персонала, учителей и преподавателей школ и вузов, участников специальной военной операции, военнослужащих, моряков (Калининград) , а также молодых семей с детьми.
Мы ценим ваш вклад и стремимся сделать новое, комфортное жильё с современной отделкой и продуманной планировкой ещё более доступным для вас.
Аккредитованные банки: Сбербанк, Альфа-Банк, ВТБ, Банк Уралсиб, РОССИЯ, Абсолют Банк, Металлинвестбанк, РНКБ, ПСБ, Кубань Кредит, Банк ВБРР, Россельхозбанк.
Позвоните и узнайте условия покупки прямо сейчас!
02.12.2025
8 966 700 ₽
Продается 2-комн. квартира, площадью 65.6 м2 в монолитно-кирпичной новостройке. Возможен вариант покупки с использованием ипотечных средств, есть рассрочка, возможна покупка с использованием материнского капитала, есть военная ипотека.
Жилая площадь 29.43 м2, кухня 9.84 м2, предчистовая отделка.
Квартира располагается на 9 этаже 19-этажного дома в ЖК Лучший.
Застройщик - ГК ССК, сдача дома - IV квартал 2025 года, высота потолков 2.9 м.
Дом оборудован пассажирским лифтом, закрытая территория, парковка охраняется. Обеспечение безопасности: видеонаблюдение, противопожарная система. Инфраструктура: детские площадки, спортивные площадки, места для отдыха, супермаркет, рестораны, фитнес-центр, пункты бытового обслуживания, коммерческие объекты.
Дома сданы раньше сроков, ключи в момент сделки!
Жилой квартал «Лучший» - единая экосистема домов, в которой соблюдаются стандарты максимального качества, экологичности, богатства инфраструктуры, безопасного, живописного и престижного окружения и транспортной доступности. Организация уличного пространства и формирование благоприятной, эстетически привлекательной среды за порогом жилья является важным этапом строительства. Ландшафтный дизайн жилого квартала «Лучший» включает в себя не только озеленение двора, но и создание его внутренней инфраструктуры.
График работы ОП в новогодние праздники:
31.12.25 - 03.01.26 - выходной
04.01.26 - 06.01.26 с 10: 00 до 18: 00.
07.01.26 - выходной
08.01.26 - 11.01.26 с 10: 00 до 18: 00.
С 12.01.26 - в стандартном режиме
Два 24-этажных литера, выполненных по надежной технологии монолит-кирпич.
Компания ССК выражает благодарность тем, кто ежедневно вкладывает силы в развитие страны и заботится о её будущем. В рамках программы «Доступное жильё» предусмотрена скидка 3% от стоимости приобретаемой квартиры для врачей и медицинского персонала, учителей и преподавателей школ и вузов, участников специальной военной операции, военнослужащих, моряков (Калининград) , а также молодых семей с детьми.
Мы ценим ваш вклад и стремимся сделать новое, комфортное жильё с современной отделкой и продуманной планировкой ещё более доступным для вас.
Аккредитованные банки: Сбербанк, Альфа-Банк, ВТБ, Банк Уралсиб, РОССИЯ, Абсолют Банк, Металлинвестбанк, РНКБ, ПСБ, Кубань Кредит, Банк ВБРР, Россельхозбанк.
Позвоните и узнайте условия покупки прямо сейчас!
09.12.2025
8 856 000 ₽
Продается 2-комн. квартира, площадью 65.8 м2 в монолитно-кирпичной новостройке. Возможен вариант покупки с использованием ипотечных средств, есть рассрочка, возможна покупка с использованием материнского капитала, есть военная ипотека.
Жилая площадь 29.43 м2, кухня 9.87 м2, предчистовая отделка.
Квартира располагается на 6 этаже 19-этажного дома в ЖК Лучший.
Застройщик - ГК ССК, сдача дома - IV квартал 2025 года, высота потолков 2.9 м.
Дом оборудован пассажирским лифтом, закрытая территория, парковка охраняется. Обеспечение безопасности: видеонаблюдение, противопожарная система. Инфраструктура: детские площадки, спортивные площадки, места для отдыха, супермаркет, рестораны, фитнес-центр, пункты бытового обслуживания, коммерческие объекты.
Дома сданы раньше сроков, ключи в момент сделки!
Жилой квартал «Лучший» - единая экосистема домов, в которой соблюдаются стандарты максимального качества, экологичности, богатства инфраструктуры, безопасного, живописного и престижного окружения и транспортной доступности. Организация уличного пространства и формирование благоприятной, эстетически привлекательной среды за порогом жилья является важным этапом строительства. Ландшафтный дизайн жилого квартала «Лучший» включает в себя не только озеленение двора, но и создание его внутренней инфраструктуры.
График работы ОП в новогодние праздники:
31.12.25 - 03.01.26 - выходной
04.01.26 - 06.01.26 с 10: 00 до 18: 00.
07.01.26 - выходной
08.01.26 - 11.01.26 с 10: 00 до 18: 00.
С 12.01.26 - в стандартном режиме
Два 24-этажных литера, выполненных по надежной технологии монолит-кирпич.
Компания ССК выражает благодарность тем, кто ежедневно вкладывает силы в развитие страны и заботится о её будущем. В рамках программы «Доступное жильё» предусмотрена скидка 3% от стоимости приобретаемой квартиры для врачей и медицинского персонала, учителей и преподавателей школ и вузов, участников специальной военной операции, военнослужащих, моряков (Калининград) , а также молодых семей с детьми.
Мы ценим ваш вклад и стремимся сделать новое, комфортное жильё с современной отделкой и продуманной планировкой ещё более доступным для вас.
Аккредитованные банки: Сбербанк, Альфа-Банк, ВТБ, Банк Уралсиб, РОССИЯ, Абсолют Банк, Металлинвестбанк, РНКБ, ПСБ, Кубань Кредит, Банк ВБРР, Россельхозбанк.
Позвоните и узнайте условия покупки прямо сейчас!
02.12.2025
8 883 000 ₽
Продается 2-комн. квартира, площадью 66.1 м2 в монолитно-кирпичной новостройке. Возможен вариант покупки с использованием ипотечных средств, есть рассрочка, возможна покупка с использованием материнского капитала, есть военная ипотека.
Жилая площадь 29.43 м2, кухня 9.92 м2, предчистовая отделка.
Квартира располагается на 4 этаже 19-этажного дома в ЖК Лучший.
Застройщик - ГК ССК, сдача дома - IV квартал 2025 года, высота потолков 2.9 м.
Дом оборудован пассажирским лифтом, закрытая территория, парковка охраняется. Обеспечение безопасности: видеонаблюдение, противопожарная система. Инфраструктура: детские площадки, спортивные площадки, места для отдыха, супермаркет, рестораны, фитнес-центр, пункты бытового обслуживания, коммерческие объекты.
Дома сданы раньше сроков, ключи в момент сделки!
Жилой квартал «Лучший» - единая экосистема домов, в которой соблюдаются стандарты максимального качества, экологичности, богатства инфраструктуры, безопасного, живописного и престижного окружения и транспортной доступности. Организация уличного пространства и формирование благоприятной, эстетически привлекательной среды за порогом жилья является важным этапом строительства. Ландшафтный дизайн жилого квартала «Лучший» включает в себя не только озеленение двора, но и создание его внутренней инфраструктуры.
График работы ОП в новогодние праздники:
31.12.25 - 03.01.26 - выходной
04.01.26 - 06.01.26 с 10: 00 до 18: 00.
07.01.26 - выходной
08.01.26 - 11.01.26 с 10: 00 до 18: 00.
С 12.01.26 - в стандартном режиме
Два 24-этажных литера, выполненных по надежной технологии монолит-кирпич.
Компания ССК выражает благодарность тем, кто ежедневно вкладывает силы в развитие страны и заботится о её будущем. В рамках программы «Доступное жильё» предусмотрена скидка 3% от стоимости приобретаемой квартиры для врачей и медицинского персонала, учителей и преподавателей школ и вузов, участников специальной военной операции, военнослужащих, моряков (Калининград) , а также молодых семей с детьми.
Мы ценим ваш вклад и стремимся сделать новое, комфортное жильё с современной отделкой и продуманной планировкой ещё более доступным для вас.
Аккредитованные банки: Сбербанк, Альфа-Банк, ВТБ, Банк Уралсиб, РОССИЯ, Абсолют Банк, Металлинвестбанк, РНКБ, ПСБ, Кубань Кредит, Банк ВБРР, Россельхозбанк.
Позвоните и узнайте условия покупки прямо сейчас!
02.12.2025
8 923 500 ₽
Продается 2-комн. квартира, площадью 66.1 м2 в монолитно-кирпичной новостройке. Возможен вариант покупки с использованием ипотечных средств, есть рассрочка, возможна покупка с использованием материнского капитала, есть военная ипотека.
Жилая площадь 29.43 м2, кухня 9.92 м2, предчистовая отделка.
Квартира располагается на 3 этаже 19-этажного дома в ЖК Лучший.
Застройщик - ГК ССК, сдача дома - IV квартал 2025 года, высота потолков 2.9 м.
Дом оборудован пассажирским лифтом, закрытая территория, парковка охраняется. Обеспечение безопасности: видеонаблюдение, противопожарная система. Инфраструктура: детские площадки, спортивные площадки, места для отдыха, супермаркет, рестораны, фитнес-центр, пункты бытового обслуживания, коммерческие объекты.
Дома сданы раньше сроков, ключи в момент сделки!
Жилой квартал «Лучший» - единая экосистема домов, в которой соблюдаются стандарты максимального качества, экологичности, богатства инфраструктуры, безопасного, живописного и престижного окружения и транспортной доступности. Организация уличного пространства и формирование благоприятной, эстетически привлекательной среды за порогом жилья является важным этапом строительства. Ландшафтный дизайн жилого квартала «Лучший» включает в себя не только озеленение двора, но и создание его внутренней инфраструктуры.
График работы ОП в новогодние праздники:
31.12.25 - 03.01.26 - выходной
04.01.26 - 06.01.26 с 10: 00 до 18: 00.
07.01.26 - выходной
08.01.26 - 11.01.26 с 10: 00 до 18: 00.
С 12.01.26 - в стандартном режиме
Два 24-этажных литера, выполненных по надежной технологии монолит-кирпич.
Компания ССК выражает благодарность тем, кто ежедневно вкладывает силы в развитие страны и заботится о её будущем. В рамках программы «Доступное жильё» предусмотрена скидка 3% от стоимости приобретаемой квартиры для врачей и медицинского персонала, учителей и преподавателей школ и вузов, участников специальной военной операции, военнослужащих, моряков (Калининград) , а также молодых семей с детьми.
Мы ценим ваш вклад и стремимся сделать новое, комфортное жильё с современной отделкой и продуманной планировкой ещё более доступным для вас.
Аккредитованные банки: Сбербанк, Альфа-Банк, ВТБ, Банк Уралсиб, РОССИЯ, Абсолют Банк, Металлинвестбанк, РНКБ, ПСБ, Кубань Кредит, Банк ВБРР, Россельхозбанк.
Позвоните и узнайте условия покупки прямо сейчас!
02.12.2025
8 923 500 ₽
Продается 2-комн. квартира, площадью 65.7 м2 в монолитно-кирпичной новостройке. Возможен вариант покупки с использованием ипотечных средств, есть рассрочка, возможна покупка с использованием материнского капитала, есть военная ипотека.
Жилая площадь 29.43 м2, кухня 9.86 м2, предчистовая отделка.
Квартира располагается на 19 этаже 19-этажного дома в ЖК Лучший.
Застройщик - ГК ССК, сдача дома - IV квартал 2025 года, высота потолков 2.9 м.
Дом оборудован пассажирским лифтом, закрытая территория, парковка охраняется. Обеспечение безопасности: видеонаблюдение, противопожарная система. Инфраструктура: детские площадки, спортивные площадки, места для отдыха, супермаркет, рестораны, фитнес-центр, пункты бытового обслуживания, коммерческие объекты.
Дома сданы раньше сроков, ключи в момент сделки!
Жилой квартал «Лучший» - единая экосистема домов, в которой соблюдаются стандарты максимального качества, экологичности, богатства инфраструктуры, безопасного, живописного и престижного окружения и транспортной доступности. Организация уличного пространства и формирование благоприятной, эстетически привлекательной среды за порогом жилья является важным этапом строительства. Ландшафтный дизайн жилого квартала «Лучший» включает в себя не только озеленение двора, но и создание его внутренней инфраструктуры.
График работы ОП в новогодние праздники:
31.12.25 - 03.01.26 - выходной
04.01.26 - 06.01.26 с 10: 00 до 18: 00.
07.01.26 - выходной
08.01.26 - 11.01.26 с 10: 00 до 18: 00.
С 12.01.26 - в стандартном режиме
Два 24-этажных литера, выполненных по надежной технологии монолит-кирпич.
Компания ССК выражает благодарность тем, кто ежедневно вкладывает силы в развитие страны и заботится о её будущем. В рамках программы «Доступное жильё» предусмотрена скидка 3% от стоимости приобретаемой квартиры для врачей и медицинского персонала, учителей и преподавателей школ и вузов, участников специальной военной операции, военнослужащих, моряков (Калининград) , а также молодых семей с детьми.
Мы ценим ваш вклад и стремимся сделать новое, комфортное жильё с современной отделкой и продуманной планировкой ещё более доступным для вас.
Аккредитованные банки: Сбербанк, Альфа-Банк, ВТБ, Банк Уралсиб, РОССИЯ, Абсолют Банк, Металлинвестбанк, РНКБ, ПСБ, Кубань Кредит, Банк ВБРР, Россельхозбанк.
Позвоните и узнайте условия покупки прямо сейчас!
02.12.2025
8 869 500 ₽
Продается 2-комн. квартира, площадью 66.1 м2 в монолитно-кирпичной новостройке. Возможен вариант покупки с использованием ипотечных средств, есть рассрочка, возможна покупка с использованием материнского капитала, есть военная ипотека.
Жилая площадь 29.43 м2, кухня 9.92 м2, предчистовая отделка.
Квартира располагается на 17 этаже 19-этажного дома в ЖК Лучший.
Застройщик - ГК ССК, сдача дома - IV квартал 2025 года, высота потолков 2.9 м.
Дом оборудован пассажирским лифтом, закрытая территория, парковка охраняется. Обеспечение безопасности: видеонаблюдение, противопожарная система. Инфраструктура: детские площадки, спортивные площадки, места для отдыха, супермаркет, рестораны, фитнес-центр, пункты бытового обслуживания, коммерческие объекты.
Дома сданы раньше сроков, ключи в момент сделки!
Жилой квартал «Лучший» - единая экосистема домов, в которой соблюдаются стандарты максимального качества, экологичности, богатства инфраструктуры, безопасного, живописного и престижного окружения и транспортной доступности. Организация уличного пространства и формирование благоприятной, эстетически привлекательной среды за порогом жилья является важным этапом строительства. Ландшафтный дизайн жилого квартала «Лучший» включает в себя не только озеленение двора, но и создание его внутренней инфраструктуры.
График работы ОП в новогодние праздники:
31.12.25 - 03.01.26 - выходной
04.01.26 - 06.01.26 с 10: 00 до 18: 00.
07.01.26 - выходной
08.01.26 - 11.01.26 с 10: 00 до 18: 00.
С 12.01.26 - в стандартном режиме
Два 24-этажных литера, выполненных по надежной технологии монолит-кирпич.
Компания ССК выражает благодарность тем, кто ежедневно вкладывает силы в развитие страны и заботится о её будущем. В рамках программы «Доступное жильё» предусмотрена скидка 3% от стоимости приобретаемой квартиры для врачей и медицинского персонала, учителей и преподавателей школ и вузов, участников специальной военной операции, военнослужащих, моряков (Калининград) , а также молодых семей с детьми.
Мы ценим ваш вклад и стремимся сделать новое, комфортное жильё с современной отделкой и продуманной планировкой ещё более доступным для вас.
Аккредитованные банки: Сбербанк, Альфа-Банк, ВТБ, Банк Уралсиб, РОССИЯ, Абсолют Банк, Металлинвестбанк, РНКБ, ПСБ, Кубань Кредит, Банк ВБРР, Россельхозбанк.
Позвоните и узнайте условия покупки прямо сейчас!
02.12.2025
8 923 500 ₽
Продается 2-комн. квартира, площадью 66.1 м2 в монолитно-кирпичной новостройке. Возможен вариант покупки с использованием ипотечных средств, есть рассрочка, возможна покупка с использованием материнского капитала, есть военная ипотека.
Жилая площадь 29.43 м2, кухня 9.92 м2, предчистовая отделка.
Квартира располагается на 16 этаже 19-этажного дома в ЖК Лучший.
Застройщик - ГК ССК, сдача дома - IV квартал 2025 года, высота потолков 2.9 м.
Дом оборудован пассажирским лифтом, закрытая территория, парковка охраняется. Обеспечение безопасности: видеонаблюдение, противопожарная система. Инфраструктура: детские площадки, спортивные площадки, места для отдыха, супермаркет, рестораны, фитнес-центр, пункты бытового обслуживания, коммерческие объекты.
Дома сданы раньше сроков, ключи в момент сделки!
Жилой квартал «Лучший» - единая экосистема домов, в которой соблюдаются стандарты максимального качества, экологичности, богатства инфраструктуры, безопасного, живописного и престижного окружения и транспортной доступности. Организация уличного пространства и формирование благоприятной, эстетически привлекательной среды за порогом жилья является важным этапом строительства. Ландшафтный дизайн жилого квартала «Лучший» включает в себя не только озеленение двора, но и создание его внутренней инфраструктуры.
График работы ОП в новогодние праздники:
31.12.25 - 03.01.26 - выходной
04.01.26 - 06.01.26 с 10: 00 до 18: 00.
07.01.26 - выходной
08.01.26 - 11.01.26 с 10: 00 до 18: 00.
С 12.01.26 - в стандартном режиме
Два 24-этажных литера, выполненных по надежной технологии монолит-кирпич.
Компания ССК выражает благодарность тем, кто ежедневно вкладывает силы в развитие страны и заботится о её будущем. В рамках программы «Доступное жильё» предусмотрена скидка 3% от стоимости приобретаемой квартиры для врачей и медицинского персонала, учителей и преподавателей школ и вузов, участников специальной военной операции, военнослужащих, моряков (Калининград) , а также молодых семей с детьми.
Мы ценим ваш вклад и стремимся сделать новое, комфортное жильё с современной отделкой и продуманной планировкой ещё более доступным для вас.
Аккредитованные банки: Сбербанк, Альфа-Банк, ВТБ, Банк Уралсиб, РОССИЯ, Абсолют Банк, Металлинвестбанк, РНКБ, ПСБ, Кубань Кредит, Банк ВБРР, Россельхозбанк.
Позвоните и узнайте условия покупки прямо сейчас!
02.12.2025
8 923 500 ₽
Продается 2-комн. квартира, площадью 65.5 м2 в монолитно-кирпичной новостройке. Возможен вариант покупки с использованием ипотечных средств, есть рассрочка, возможна покупка с использованием материнского капитала, есть военная ипотека.
Жилая площадь 29.43 м2, кухня 9.83 м2, предчистовая отделка.
Квартира располагается на 15 этаже 19-этажного дома в ЖК Лучший.
Застройщик - ГК ССК, сдача дома - IV квартал 2025 года, высота потолков 2.9 м.
Дом оборудован пассажирским лифтом, закрытая территория, парковка охраняется. Обеспечение безопасности: видеонаблюдение, противопожарная система. Инфраструктура: детские площадки, спортивные площадки, места для отдыха, супермаркет, рестораны, фитнес-центр, пункты бытового обслуживания, коммерческие объекты.
Дома сданы раньше сроков, ключи в момент сделки!
Жилой квартал «Лучший» - единая экосистема домов, в которой соблюдаются стандарты максимального качества, экологичности, богатства инфраструктуры, безопасного, живописного и престижного окружения и транспортной доступности. Организация уличного пространства и формирование благоприятной, эстетически привлекательной среды за порогом жилья является важным этапом строительства. Ландшафтный дизайн жилого квартала «Лучший» включает в себя не только озеленение двора, но и создание его внутренней инфраструктуры.
График работы ОП в новогодние праздники:
31.12.25 - 03.01.26 - выходной
04.01.26 - 06.01.26 с 10: 00 до 18: 00.
07.01.26 - выходной
08.01.26 - 11.01.26 с 10: 00 до 18: 00.
С 12.01.26 - в стандартном режиме
Два 24-этажных литера, выполненных по надежной технологии монолит-кирпич.
Компания ССК выражает благодарность тем, кто ежедневно вкладывает силы в развитие страны и заботится о её будущем. В рамках программы «Доступное жильё» предусмотрена скидка 3% от стоимости приобретаемой квартиры для врачей и медицинского персонала, учителей и преподавателей школ и вузов, участников специальной военной операции, военнослужащих, моряков (Калининград) , а также молодых семей с детьми.
Мы ценим ваш вклад и стремимся сделать новое, комфортное жильё с современной отделкой и продуманной планировкой ещё более доступным для вас.
Аккредитованные банки: Сбербанк, Альфа-Банк, ВТБ, Банк Уралсиб, РОССИЯ, Абсолют Банк, Металлинвестбанк, РНКБ, ПСБ, Кубань Кредит, Банк ВБРР, Россельхозбанк.
Позвоните и узнайте условия покупки прямо сейчас!
02.12.2025
8 842 500 ₽
Продается 2-комн. квартира, площадью 65.5 м2 в монолитно-кирпичной новостройке. Возможен вариант покупки с использованием ипотечных средств, есть рассрочка, возможна покупка с использованием материнского капитала, есть военная ипотека.
Жилая площадь 29.43 м2, кухня 9.83 м2, предчистовая отделка.
Квартира располагается на 13 этаже 19-этажного дома в ЖК Лучший.
Застройщик - ГК ССК, сдача дома - IV квартал 2025 года, высота потолков 2.9 м.
Дом оборудован пассажирским лифтом, закрытая территория, парковка охраняется. Обеспечение безопасности: видеонаблюдение, противопожарная система. Инфраструктура: детские площадки, спортивные площадки, места для отдыха, супермаркет, рестораны, фитнес-центр, пункты бытового обслуживания, коммерческие объекты.
Дома сданы раньше сроков, ключи в момент сделки!
Жилой квартал «Лучший» - единая экосистема домов, в которой соблюдаются стандарты максимального качества, экологичности, богатства инфраструктуры, безопасного, живописного и престижного окружения и транспортной доступности. Организация уличного пространства и формирование благоприятной, эстетически привлекательной среды за порогом жилья является важным этапом строительства. Ландшафтный дизайн жилого квартала «Лучший» включает в себя не только озеленение двора, но и создание его внутренней инфраструктуры.
График работы ОП в новогодние праздники:
31.12.25 - 03.01.26 - выходной
04.01.26 - 06.01.26 с 10: 00 до 18: 00.
07.01.26 - выходной
08.01.26 - 11.01.26 с 10: 00 до 18: 00.
С 12.01.26 - в стандартном режиме
Два 24-этажных литера, выполненных по надежной технологии монолит-кирпич.
Компания ССК выражает благодарность тем, кто ежедневно вкладывает силы в развитие страны и заботится о её будущем. В рамках программы «Доступное жильё» предусмотрена скидка 3% от стоимости приобретаемой квартиры для врачей и медицинского персонала, учителей и преподавателей школ и вузов, участников специальной военной операции, военнослужащих, моряков (Калининград) , а также молодых семей с детьми.
Мы ценим ваш вклад и стремимся сделать новое, комфортное жильё с современной отделкой и продуманной планировкой ещё более доступным для вас.
Аккредитованные банки: Сбербанк, Альфа-Банк, ВТБ, Банк Уралсиб, РОССИЯ, Абсолют Банк, Металлинвестбанк, РНКБ, ПСБ, Кубань Кредит, Банк ВБРР, Россельхозбанк.
Позвоните и узнайте условия покупки прямо сейчас!
02.12.2025
8 842 500 ₽
Продается 2-комн. квартира, площадью 65.5 м2 в монолитно-кирпичной новостройке. Возможен вариант покупки с использованием ипотечных средств, есть рассрочка, возможна покупка с использованием материнского капитала, есть военная ипотека.
Жилая площадь 29.43 м2, кухня 9.83 м2, предчистовая отделка.
Квартира располагается на 12 этаже 19-этажного дома в ЖК Лучший.
Застройщик - ГК ССК, сдача дома - IV квартал 2025 года, высота потолков 2.9 м.
Дом оборудован пассажирским лифтом, закрытая территория, парковка охраняется. Обеспечение безопасности: видеонаблюдение, противопожарная система. Инфраструктура: детские площадки, спортивные площадки, места для отдыха, супермаркет, рестораны, фитнес-центр, пункты бытового обслуживания, коммерческие объекты.
Дома сданы раньше сроков, ключи в момент сделки!
Жилой квартал «Лучший» - единая экосистема домов, в которой соблюдаются стандарты максимального качества, экологичности, богатства инфраструктуры, безопасного, живописного и престижного окружения и транспортной доступности. Организация уличного пространства и формирование благоприятной, эстетически привлекательной среды за порогом жилья является важным этапом строительства. Ландшафтный дизайн жилого квартала «Лучший» включает в себя не только озеленение двора, но и создание его внутренней инфраструктуры.
График работы ОП в новогодние праздники:
31.12.25 - 03.01.26 - выходной
04.01.26 - 06.01.26 с 10: 00 до 18: 00.
07.01.26 - выходной
08.01.26 - 11.01.26 с 10: 00 до 18: 00.
С 12.01.26 - в стандартном режиме
Два 24-этажных литера, выполненных по надежной технологии монолит-кирпич.
Компания ССК выражает благодарность тем, кто ежедневно вкладывает силы в развитие страны и заботится о её будущем. В рамках программы «Доступное жильё» предусмотрена скидка 3% от стоимости приобретаемой квартиры для врачей и медицинского персонала, учителей и преподавателей школ и вузов, участников специальной военной операции, военнослужащих, моряков (Калининград) , а также молодых семей с детьми.
Мы ценим ваш вклад и стремимся сделать новое, комфортное жильё с современной отделкой и продуманной планировкой ещё более доступным для вас.
Аккредитованные банки: Сбербанк, Альфа-Банк, ВТБ, Банк Уралсиб, РОССИЯ, Абсолют Банк, Металлинвестбанк, РНКБ, ПСБ, Кубань Кредит, Банк ВБРР, Россельхозбанк.
Позвоните и узнайте условия покупки прямо сейчас!
02.12.2025
8 842 500 ₽
Продается 2-комн. квартира, площадью 62.69 м2 в монолитно-кирпичной новостройке. Возможен вариант покупки с использованием ипотечных средств, есть рассрочка, возможна покупка с использованием материнского капитала, есть военная ипотека.
Жилая площадь 31.25 м2, кухня 15.41 м2, предчистовая отделка.
Квартира располагается на 17 этаже 18-этажного дома в ЖК Фонтаны.
Застройщик - ГК ССК, сдача дома - IV квартал 2026 года, высота потолков 2.82 м.
Дом оборудован пассажирским лифтом, закрытая территория.
Отдельная многоуровневая парковка, парковка охраняется. Обеспечение безопасности: видеонаблюдение, противопожарная система. Инфраструктура: детский сад, детские площадки, спортивные площадки, места для отдыха, супермаркет, рестораны, фитнес-центр, пункты бытового обслуживания, коммерческие объекты.
Жилой комплекс «Фонтаны» - дом клубного типа. Преимущество заключается в продуманном ландшафте дворов, круглосуточно охраняемой территории, системе видеонаблюдения во дворе. Также для удобства жителей проведен Wi-Fi во дворе, оборудованы безопасные и современные детские площадки, зоны отдыха.
«Фонтаны» - уникальный, неповторимый жилой комплекс, воплощающий оригинальные и креативные решения дизайнеров и архитекторов. Дома округлой форме - это придает им легкости, несмотря на массивность постройки.
ЖК «Фонтаны» расположен в микрорайоне Черёмушки. Отличная транспортная развязка позволяет быстро и с комфортом добраться до центра, а большое количество зеленых насаждений и парков дает возможность гулять с детьми и наслаждаться прекрасным видом на Кубань.
Программа «Доступное жилье» - скидка 3% для тех, кто строит будущее!
В рамках программы «Доступное жилье» предусмотрена скидка 3% от стоимости квартиры для:
врачей и медицинского персонала,
учителей и преподавателей школ и вузов,
участников СВО и военнослужащих,
моряков (для жителей Калининграда) ,
молодых семей с детьми.
Это наш вклад в поддержку тех, кто каждый день заботится о других, растит новое поколение, защищает страну или строит свою семью.
График работы ОП в новогодние праздники:
31.12.25 - 03.01.26 - выходной
04.01.26 - 06.01.26 с 10: 00 до 18: 00.
07.01.26 - выходной
08.01.26 - 11.01.26 с 10: 00 до 18: 00.
С 12.01.26 - в стандартном режиме
Аккредитованные банки: Сбербанк, Альфа-Банк, ВТБ, Банк Уралсиб, РОССИЯ, Абсолют Банк, Металлинвестбанк, РНКБ, ПСБ, Кубань Кредит, Банк ВБРР, Россельхозбанк.
Позвоните и узнайте условия покупки прямо сейчас!
20.12.2025
10 343 850 ₽
Продается 2-комн. квартира, площадью 65.6 м2 в монолитно-кирпичной новостройке. Возможен вариант покупки с использованием ипотечных средств, есть рассрочка, возможна покупка с использованием материнского капитала, есть военная ипотека.
Жилая площадь 29.43 м2, кухня 9.84 м2, предчистовая отделка.
Квартира располагается на 10 этаже 19-этажного дома в ЖК Лучший.
Застройщик - ГК ССК, сдача дома - IV квартал 2025 года, высота потолков 2.9 м.
Дом оборудован пассажирским лифтом, закрытая территория, парковка охраняется. Обеспечение безопасности: видеонаблюдение, противопожарная система. Инфраструктура: детские площадки, спортивные площадки, места для отдыха, супермаркет, рестораны, фитнес-центр, пункты бытового обслуживания, коммерческие объекты.
Дома сданы раньше сроков, ключи в момент сделки!
Жилой квартал «Лучший» - единая экосистема домов, в которой соблюдаются стандарты максимального качества, экологичности, богатства инфраструктуры, безопасного, живописного и престижного окружения и транспортной доступности. Организация уличного пространства и формирование благоприятной, эстетически привлекательной среды за порогом жилья является важным этапом строительства. Ландшафтный дизайн жилого квартала «Лучший» включает в себя не только озеленение двора, но и создание его внутренней инфраструктуры.
График работы ОП в новогодние праздники:
31.12.25 - 03.01.26 - выходной
04.01.26 - 06.01.26 с 10: 00 до 18: 00.
07.01.26 - выходной
08.01.26 - 11.01.26 с 10: 00 до 18: 00.
С 12.01.26 - в стандартном режиме
Два 24-этажных литера, выполненных по надежной технологии монолит-кирпич.
Компания ССК выражает благодарность тем, кто ежедневно вкладывает силы в развитие страны и заботится о её будущем. В рамках программы «Доступное жильё» предусмотрена скидка 3% от стоимости приобретаемой квартиры для врачей и медицинского персонала, учителей и преподавателей школ и вузов, участников специальной военной операции, военнослужащих, моряков (Калининград) , а также молодых семей с детьми.
Мы ценим ваш вклад и стремимся сделать новое, комфортное жильё с современной отделкой и продуманной планировкой ещё более доступным для вас.
Аккредитованные банки: Сбербанк, Альфа-Банк, ВТБ, Банк Уралсиб, РОССИЯ, Абсолют Банк, Металлинвестбанк, РНКБ, ПСБ, Кубань Кредит, Банк ВБРР, Россельхозбанк.
Позвоните и узнайте условия покупки прямо сейчас!
09.12.2025
8 856 000 ₽
Продается 2-комн. квартира, площадью 62.69 м2 в монолитно-кирпичной новостройке. Возможен вариант покупки с использованием ипотечных средств, есть рассрочка, возможна покупка с использованием материнского капитала, есть военная ипотека.
Жилая площадь 31.25 м2, кухня 15.41 м2, предчистовая отделка.
Квартира располагается на 11 этаже 18-этажного дома в ЖК Фонтаны.
Застройщик - ГК ССК, сдача дома - IV квартал 2026 года, высота потолков 2.82 м.
Дом оборудован пассажирским лифтом, закрытая территория.
Отдельная многоуровневая парковка, парковка охраняется. Обеспечение безопасности: видеонаблюдение, противопожарная система. Инфраструктура: детский сад, детские площадки, спортивные площадки, места для отдыха, супермаркет, рестораны, фитнес-центр, пункты бытового обслуживания, коммерческие объекты.
Жилой комплекс «Фонтаны» - дом клубного типа. Преимущество заключается в продуманном ландшафте дворов, круглосуточно охраняемой территории, системе видеонаблюдения во дворе. Также для удобства жителей проведен Wi-Fi во дворе, оборудованы безопасные и современные детские площадки, зоны отдыха.
«Фонтаны» - уникальный, неповторимый жилой комплекс, воплощающий оригинальные и креативные решения дизайнеров и архитекторов. Дома округлой форме - это придает им легкости, несмотря на массивность постройки.
ЖК «Фонтаны» расположен в микрорайоне Черёмушки. Отличная транспортная развязка позволяет быстро и с комфортом добраться до центра, а большое количество зеленых насаждений и парков дает возможность гулять с детьми и наслаждаться прекрасным видом на Кубань.
Программа «Доступное жилье» - скидка 3% для тех, кто строит будущее!
В рамках программы «Доступное жилье» предусмотрена скидка 3% от стоимости квартиры для:
врачей и медицинского персонала,
учителей и преподавателей школ и вузов,
участников СВО и военнослужащих,
моряков (для жителей Калининграда) ,
молодых семей с детьми.
Это наш вклад в поддержку тех, кто каждый день заботится о других, растит новое поколение, защищает страну или строит свою семью.
График работы ОП в новогодние праздники:
31.12.25 - 03.01.26 - выходной
04.01.26 - 06.01.26 с 10: 00 до 18: 00.
07.01.26 - выходной
08.01.26 - 11.01.26 с 10: 00 до 18: 00.
С 12.01.26 - в стандартном режиме
Аккредитованные банки: Сбербанк, Альфа-Банк, ВТБ, Банк Уралсиб, РОССИЯ, Абсолют Банк, Металлинвестбанк, РНКБ, ПСБ, Кубань Кредит, Банк ВБРР, Россельхозбанк.
Позвоните и узнайте условия покупки прямо сейчас!
24.12.2025
10 343 850 ₽




















