Продать квартиру в Калинино - Страница 3
- Калинино »
- Недвижимость
- » Квартиры
- » Продажа квартир в Калинино
Продается 2-комн. квартира, площадью 66.42 м2 в монолитно-кирпичной новостройке. Возможен вариант покупки с использованием ипотечных средств, есть рассрочка, возможна покупка с использованием материнского капитала, есть военная ипотека.
Жилая площадь 29.43 м2, кухня 9.96 м2, предчистовая отделка.
Квартира располагается на 6 этаже 19-этажного дома в ЖК Лучший.
Застройщик - ГК ССК, сдача дома - IV квартал 2025 года, высота потолков 2.9 м.
Дом оборудован пассажирским лифтом, закрытая территория, парковка охраняется. Обеспечение безопасности: видеонаблюдение, противопожарная система. Инфраструктура: детские площадки, спортивные площадки, места для отдыха, супермаркет, рестораны, фитнес-центр, пункты бытового обслуживания, коммерческие объекты.
Дома сданы раньше сроков, ключи в момент сделки!
Жилой квартал «Лучший» - единая экосистема домов, в которой соблюдаются стандарты максимального качества, экологичности, богатства инфраструктуры, безопасного, живописного и престижного окружения и транспортной доступности. Организация уличного пространства и формирование благоприятной, эстетически привлекательной среды за порогом жилья является важным этапом строительства. Ландшафтный дизайн жилого квартала «Лучший» включает в себя не только озеленение двора, но и создание его внутренней инфраструктуры.
Два 24-этажных литера, выполненных по надежной технологии монолит-кирпич.
Специальное предложение в жилом квартале «Лучший»
Получите выгоду до 710 000 рублей. На двухкомнатные квартиры в литерах 10-13, а также кладовая площадью до 11 м в подарок.
Просторные планировки, современные решения и качественные материалы - всё создано для вашего комфорта с первого дня заселения.
Аккредитованные банки: Сбербанк, Альфа-Банк, ВТБ, Банк Уралсиб, РОССИЯ, Абсолют Банк, Металлинвестбанк, РНКБ, ПСБ, Кубань Кредит, Банк ВБРР, Россельхозбанк.
Позвоните и узнайте условия покупки прямо сейчас!
16.01.2026
8 966 700 ₽
Продается 2-комн. квартира, площадью 52.05 м2 в монолитной новостройке. Возможен вариант покупки с использованием ипотечных средств, есть рассрочка, возможна покупка с использованием материнского капитала, есть военная ипотека.
Жилая площадь 20.9 м2, кухня 16.6 м2, предчистовая отделка.
Квартира располагается на 2 этаже 9-этажного дома в ЖК Песчаный.
Застройщик - ООО СЗ МЕЖСАНАТОРНЫЙ входит в состав ГК ССК, дом уже сдан, высота потолков 2.72 м.
Дом оборудован пассажирским лифтом, закрытая территория.
Отдельная многоуровневая парковка, парковка охраняется. Обеспечение безопасности: видеонаблюдение. Инфраструктура: детские площадки, спортивные площадки, места для отдыха.
У каждого из нас есть свои желания и интересы, свои представления о комфорте и спокойствии, свои жизненные принципы. Жилой комплекс «Песчаный» смог учесть самые разнообразные требования, чтобы понравиться каждому. Здесь звуки современного города стихают, а вместо этого появляется лёгкий морской бриз и шум неспешных морских волн. Тут можно расслабиться и полностью погрузиться в мир без проблем и забот.
Дома возводятся по зарекомендовавшей себя во всём мире монолитно-каркасной технологии. Облицовка - вентилируемый фасад из керамогранитных плит белого, бежевого и коричневого цветов. В сочетании с витражным остеклением лоджий это позволит жилому комплексу «Песчаный» стильно выделяться среди окружающей застройки.
ЖК "Песчаный" - находится в 10 минутах от центра города и в непосредственной близости от моря и пляжей.
При покупке двухкомнатной квартиры от 66 м в ЖК «Песчаный» вы получаете парковочное место и качественный ремонт - в подарок.
Дом сдан. Въезжайте - без ожиданий, без строительства, без лишних забот.
Ремонт выполнен с вниманием к деталям: натуральные материалы, тихие перегородки, продуманные решения - всё создано для повседневного комфорта. Парковка - не просто место под машину, а свобода: больше не нужно искать место у подъезда или платить за часы в зоне ограниченной парковки.
Аккредитованные банки: Абсолют Банк, Совкомбанк, Альфа-Банк, Банк ДОМ. РФ, Промсвязьбанк, Банк ВТБ, Т-Банк, Россельхозбанк, МКБ.
Позвоните и узнайте условия покупки прямо сейчас!
09.01.2026
10 670 250 ₽
Продается 2-комн. квартира, площадью 52.5 м2 в монолитной новостройке. Возможен вариант покупки с использованием ипотечных средств, есть рассрочка, возможна покупка с использованием материнского капитала, есть военная ипотека.
Жилая площадь 20.9 м2, кухня 16.6 м2, предчистовая отделка.
Квартира располагается на 2 этаже 12-этажного дома в ЖК Песчаный.
Застройщик - ООО СЗ МЕЖСАНАТОРНЫЙ входит в состав ГК ССК, дом уже сдан, высота потолков 2.72 м.
Дом оборудован пассажирским лифтом, закрытая территория.
Отдельная многоуровневая парковка, парковка охраняется. Обеспечение безопасности: видеонаблюдение. Инфраструктура: детские площадки, спортивные площадки, места для отдыха.
У каждого из нас есть свои желания и интересы, свои представления о комфорте и спокойствии, свои жизненные принципы. Жилой комплекс «Песчаный» смог учесть самые разнообразные требования, чтобы понравиться каждому. Здесь звуки современного города стихают, а вместо этого появляется лёгкий морской бриз и шум неспешных морских волн. Тут можно расслабиться и полностью погрузиться в мир без проблем и забот.
Дома возводятся по зарекомендовавшей себя во всём мире монолитно-каркасной технологии. Облицовка - вентилируемый фасад из керамогранитных плит белого, бежевого и коричневого цветов. В сочетании с витражным остеклением лоджий это позволит жилому комплексу «Песчаный» стильно выделяться среди окружающей застройки.
ЖК "Песчаный" - находится в 10 минутах от центра города и в непосредственной близости от моря и пляжей.
При покупке двухкомнатной квартиры от 66 м в ЖК «Песчаный» вы получаете парковочное место и качественный ремонт - в подарок.
Дом сдан. Въезжайте - без ожиданий, без строительства, без лишних забот.
Ремонт выполнен с вниманием к деталям: натуральные материалы, тихие перегородки, продуманные решения - всё создано для повседневного комфорта. Парковка - не просто место под машину, а свобода: больше не нужно искать место у подъезда или платить за часы в зоне ограниченной парковки.
Аккредитованные банки: Абсолют Банк, Совкомбанк, Альфа-Банк, Банк ДОМ. РФ, Промсвязьбанк, Банк ВТБ, Т-Банк, Россельхозбанк, МКБ.
Позвоните и узнайте условия покупки прямо сейчас!
18.12.2025
10 762 500 ₽
Продается 2-комн. квартира, площадью 56.1 м2 в монолитно-кирпичной новостройке. Возможен вариант покупки с использованием ипотечных средств, есть рассрочка, возможна покупка с использованием материнского капитала, есть военная ипотека.
Жилая площадь 25.6 м2, кухня 16.1 м2, черновая отделка.
Квартира располагается на 2 этаже 16-этажного дома в ЖК Традиции.
Застройщик - ГК ССК, сдача дома - III квартал 2027 года, высота потолков 2.72 м.
Дом оборудован пассажирским лифтом. Обеспечение безопасности: видеонаблюдение, противопожарная система. Инфраструктура: детские площадки, спортивные площадки, места для отдыха, супермаркет, рестораны, фитнес-центр, пункты бытового обслуживания, коммерческие объекты.
В жилом комплексе «Традиции» вы найдёте всё, чтобы создать свой особенный уклад жизни. Возможно, именно здесь начнётся новая семейная традиция, которая станет дорогой сердцу на долгие годы.
В радиусе 5 минут ходьбы от комплекса уже функционируют школы и детские сады, а дорога в центр города занимает 15 минут.
«Доступное жильё - 3%» в ЖК «Традиции»
Мы ценим ваш труд и поддерживаем на важных жизненных этапах!
Если вы - врач, учитель, военнослужащий, участник СВО, моряк (г. Калининград) или молодая семья с детьми, для вас действует специальное предложение:
Скидка 3% от стоимости квартиры в рамках программы «Доступное жильё».
Ваша квартира в ЖК «Традиции» - это начало новой главы в уютном, продуманном пространстве, где каждая деталь создана для комфорта большой семьи.
Аккредитованные банки: Сбербанк, Альфа-Банк, ВТБ, Банк Уралсиб, РОССИЯ, Абсолют Банк, Металлинвестбанк, РНКБ, ПСБ, Кубань Кредит, Банк ВБРР, Россельхозбанк.
Позвоните и узнайте условия покупки прямо сейчас!
07.12.2025
7 573 500 ₽
Продается 2-комн. квартира, площадью 65.5 м2 в монолитно-кирпичной новостройке. Возможен вариант покупки с использованием ипотечных средств, есть рассрочка, возможна покупка с использованием материнского капитала, есть военная ипотека.
Жилая площадь 29.43 м2, кухня 9.83 м2, предчистовая отделка.
Квартира располагается на 14 этаже 19-этажного дома в ЖК Лучший.
Застройщик - ГК ССК, сдача дома - IV квартал 2025 года, высота потолков 2.9 м.
Дом оборудован пассажирским лифтом, закрытая территория, парковка охраняется. Обеспечение безопасности: видеонаблюдение, противопожарная система. Инфраструктура: детские площадки, спортивные площадки, места для отдыха, супермаркет, рестораны, фитнес-центр, пункты бытового обслуживания, коммерческие объекты.
Дома сданы раньше сроков, ключи в момент сделки!
Жилой квартал «Лучший» - единая экосистема домов, в которой соблюдаются стандарты максимального качества, экологичности, богатства инфраструктуры, безопасного, живописного и престижного окружения и транспортной доступности. Организация уличного пространства и формирование благоприятной, эстетически привлекательной среды за порогом жилья является важным этапом строительства. Ландшафтный дизайн жилого квартала «Лучший» включает в себя не только озеленение двора, но и создание его внутренней инфраструктуры.
Два 24-этажных литера, выполненных по надежной технологии монолит-кирпич.
Специальное предложение в жилом квартале «Лучший»
Получите выгоду до 710 000 рублей. На двухкомнатные квартиры в литерах 10-13, а также кладовая площадью до 11 м в подарок.
Просторные планировки, современные решения и качественные материалы - всё создано для вашего комфорта с первого дня заселения.
Аккредитованные банки: Сбербанк, Альфа-Банк, ВТБ, Банк Уралсиб, РОССИЯ, Абсолют Банк, Металлинвестбанк, РНКБ, ПСБ, Кубань Кредит, Банк ВБРР, Россельхозбанк.
Позвоните и узнайте условия покупки прямо сейчас!
18.12.2025
8 842 500 ₽
Продается 2-комн. квартира, площадью 65.7 м2 в монолитно-кирпичной новостройке. Возможен вариант покупки с использованием ипотечных средств, есть рассрочка, возможна покупка с использованием материнского капитала, есть военная ипотека.
Жилая площадь 29.43 м2, кухня 9.86 м2, предчистовая отделка.
Квартира располагается на 18 этаже 19-этажного дома в ЖК Лучший.
Застройщик - ГК ССК, сдача дома - IV квартал 2025 года, высота потолков 2.9 м.
Дом оборудован пассажирским лифтом, закрытая территория, парковка охраняется. Обеспечение безопасности: видеонаблюдение, противопожарная система. Инфраструктура: детские площадки, спортивные площадки, места для отдыха, супермаркет, рестораны, фитнес-центр, пункты бытового обслуживания, коммерческие объекты.
Дома сданы раньше сроков, ключи в момент сделки!
Жилой квартал «Лучший» - единая экосистема домов, в которой соблюдаются стандарты максимального качества, экологичности, богатства инфраструктуры, безопасного, живописного и престижного окружения и транспортной доступности. Организация уличного пространства и формирование благоприятной, эстетически привлекательной среды за порогом жилья является важным этапом строительства. Ландшафтный дизайн жилого квартала «Лучший» включает в себя не только озеленение двора, но и создание его внутренней инфраструктуры.
Два 24-этажных литера, выполненных по надежной технологии монолит-кирпич.
Специальное предложение в жилом квартале «Лучший»
Получите выгоду до 710 000 рублей. На двухкомнатные квартиры в литерах 10-13, а также кладовая площадью до 11 м в подарок.
Просторные планировки, современные решения и качественные материалы - всё создано для вашего комфорта с первого дня заселения.
Аккредитованные банки: Сбербанк, Альфа-Банк, ВТБ, Банк Уралсиб, РОССИЯ, Абсолют Банк, Металлинвестбанк, РНКБ, ПСБ, Кубань Кредит, Банк ВБРР, Россельхозбанк.
Позвоните и узнайте условия покупки прямо сейчас!
07.12.2025
8 869 500 ₽
Продается 2-комн. квартира, площадью 65.7 м2 в монолитно-кирпичной новостройке. Возможен вариант покупки с использованием ипотечных средств, есть рассрочка, возможна покупка с использованием материнского капитала, есть военная ипотека.
Жилая площадь 29.43 м2, кухня 9.86 м2, предчистовая отделка.
Квартира располагается на 11 этаже 19-этажного дома в ЖК Лучший.
Застройщик - ГК ССК, сдача дома - IV квартал 2025 года, высота потолков 2.9 м.
Дом оборудован пассажирским лифтом, закрытая территория, парковка охраняется. Обеспечение безопасности: видеонаблюдение, противопожарная система. Инфраструктура: детские площадки, спортивные площадки, места для отдыха, супермаркет, рестораны, фитнес-центр, пункты бытового обслуживания, коммерческие объекты.
Дома сданы раньше сроков, ключи в момент сделки!
Жилой квартал «Лучший» - единая экосистема домов, в которой соблюдаются стандарты максимального качества, экологичности, богатства инфраструктуры, безопасного, живописного и престижного окружения и транспортной доступности. Организация уличного пространства и формирование благоприятной, эстетически привлекательной среды за порогом жилья является важным этапом строительства. Ландшафтный дизайн жилого квартала «Лучший» включает в себя не только озеленение двора, но и создание его внутренней инфраструктуры.
Два 24-этажных литера, выполненных по надежной технологии монолит-кирпич.
Специальное предложение в жилом квартале «Лучший»
Получите выгоду до 710 000 рублей. На двухкомнатные квартиры в литерах 10-13, а также кладовая площадью до 11 м в подарок.
Просторные планировки, современные решения и качественные материалы - всё создано для вашего комфорта с первого дня заселения.
Аккредитованные банки: Сбербанк, Альфа-Банк, ВТБ, Банк Уралсиб, РОССИЯ, Абсолют Банк, Металлинвестбанк, РНКБ, ПСБ, Кубань Кредит, Банк ВБРР, Россельхозбанк.
Позвоните и узнайте условия покупки прямо сейчас!
09.12.2025
8 869 500 ₽
Продается 2-комн. квартира, площадью 51.85 м2 в монолитной новостройке. Возможен вариант покупки с использованием ипотечных средств, есть рассрочка, возможна покупка с использованием материнского капитала, есть военная ипотека.
Жилая площадь 22.8 м2, кухня 12.2 м2, предчистовая отделка.
Квартира располагается на 3 этаже 9-этажного дома в ЖК Песчаный.
Застройщик - ООО СЗ МЕЖСАНАТОРНЫЙ входит в состав ГК ССК, дом уже сдан, высота потолков 2.72 м.
Дом оборудован пассажирским лифтом, закрытая территория.
Отдельная многоуровневая парковка, парковка охраняется. Обеспечение безопасности: видеонаблюдение. Инфраструктура: детские площадки, спортивные площадки, места для отдыха.
У каждого из нас есть свои желания и интересы, свои представления о комфорте и спокойствии, свои жизненные принципы. Жилой комплекс «Песчаный» смог учесть самые разнообразные требования, чтобы понравиться каждому. Здесь звуки современного города стихают, а вместо этого появляется лёгкий морской бриз и шум неспешных морских волн. Тут можно расслабиться и полностью погрузиться в мир без проблем и забот.
Дома возводятся по зарекомендовавшей себя во всём мире монолитно-каркасной технологии. Облицовка - вентилируемый фасад из керамогранитных плит белого, бежевого и коричневого цветов. В сочетании с витражным остеклением лоджий это позволит жилому комплексу «Песчаный» стильно выделяться среди окружающей застройки.
ЖК "Песчаный" - находится в 10 минутах от центра города и в непосредственной близости от моря и пляжей.
При покупке двухкомнатной квартиры от 66 м в ЖК «Песчаный» вы получаете парковочное место и качественный ремонт - в подарок.
Дом сдан. Въезжайте - без ожиданий, без строительства, без лишних забот.
Ремонт выполнен с вниманием к деталям: натуральные материалы, тихие перегородки, продуманные решения - всё создано для повседневного комфорта. Парковка - не просто место под машину, а свобода: больше не нужно искать место у подъезда или платить за часы в зоне ограниченной парковки.
Аккредитованные банки: Абсолют Банк, Совкомбанк, Альфа-Банк, Банк ДОМ. РФ, Промсвязьбанк, Банк ВТБ, Т-Банк, Россельхозбанк, МКБ.
Позвоните и узнайте условия покупки прямо сейчас!
16.12.2025
10 629 250 ₽
Продается 2-комн. квартира, площадью 56.1 м2 в монолитно-кирпичной новостройке. Возможен вариант покупки с использованием ипотечных средств, есть рассрочка, возможна покупка с использованием материнского капитала, есть военная ипотека.
Жилая площадь 25.6 м2, кухня 16.1 м2, черновая отделка.
Квартира располагается на 4 этаже 16-этажного дома в ЖК Традиции.
Застройщик - ГК ССК, сдача дома - III квартал 2027 года, высота потолков 2.72 м.
Дом оборудован пассажирским лифтом. Обеспечение безопасности: видеонаблюдение, противопожарная система. Инфраструктура: детские площадки, спортивные площадки, места для отдыха, супермаркет, рестораны, фитнес-центр, пункты бытового обслуживания, коммерческие объекты.
В жилом комплексе «Традиции» вы найдёте всё, чтобы создать свой особенный уклад жизни. Возможно, именно здесь начнётся новая семейная традиция, которая станет дорогой сердцу на долгие годы.
В радиусе 5 минут ходьбы от комплекса уже функционируют школы и детские сады, а дорога в центр города занимает 15 минут.
«Доступное жильё - 3%» в ЖК «Традиции»
Мы ценим ваш труд и поддерживаем на важных жизненных этапах!
Если вы - врач, учитель, военнослужащий, участник СВО, моряк (г. Калининград) или молодая семья с детьми, для вас действует специальное предложение:
Скидка 3% от стоимости квартиры в рамках программы «Доступное жильё».
Ваша квартира в ЖК «Традиции» - это начало новой главы в уютном, продуманном пространстве, где каждая деталь создана для комфорта большой семьи.
Аккредитованные банки: Сбербанк, Альфа-Банк, ВТБ, Банк Уралсиб, РОССИЯ, Абсолют Банк, Металлинвестбанк, РНКБ, ПСБ, Кубань Кредит, Банк ВБРР, Россельхозбанк.
Позвоните и узнайте условия покупки прямо сейчас!
16.12.2025
7 573 500 ₽
Продается 2-комн. квартира, площадью 53.7 м2 в монолитно-кирпичной новостройке. Возможен вариант покупки с использованием ипотечных средств, есть рассрочка, возможна покупка с использованием материнского капитала, есть военная ипотека.
Жилая площадь 27.4 м2, кухня 13.8 м2, черновая отделка.
Квартира располагается на 5 этаже 16-этажного дома в ЖК Традиции.
Застройщик - ГК ССК, сдача дома - III квартал 2027 года, высота потолков 2.72 м.
Дом оборудован пассажирским лифтом. Обеспечение безопасности: видеонаблюдение, противопожарная система. Инфраструктура: детские площадки, спортивные площадки, места для отдыха, супермаркет, рестораны, фитнес-центр, пункты бытового обслуживания, коммерческие объекты.
В жилом комплексе «Традиции» вы найдёте всё, чтобы создать свой особенный уклад жизни. Возможно, именно здесь начнётся новая семейная традиция, которая станет дорогой сердцу на долгие годы.
В радиусе 5 минут ходьбы от комплекса уже функционируют школы и детские сады, а дорога в центр города занимает 15 минут.
«Доступное жильё - 3%» в ЖК «Традиции»
Мы ценим ваш труд и поддерживаем на важных жизненных этапах!
Если вы - врач, учитель, военнослужащий, участник СВО, моряк (г. Калининград) или молодая семья с детьми, для вас действует специальное предложение:
Скидка 3% от стоимости квартиры в рамках программы «Доступное жильё».
Ваша квартира в ЖК «Традиции» - это начало новой главы в уютном, продуманном пространстве, где каждая деталь создана для комфорта большой семьи.
Аккредитованные банки: Сбербанк, Альфа-Банк, ВТБ, Банк Уралсиб, РОССИЯ, Абсолют Банк, Металлинвестбанк, РНКБ, ПСБ, Кубань Кредит, Банк ВБРР, Россельхозбанк.
Позвоните и узнайте условия покупки прямо сейчас!
03.12.2025
7 249 500 ₽
Продается 2-комн. квартира, площадью 53.6 м2 в монолитно-кирпичной новостройке. Возможен вариант покупки с использованием ипотечных средств, есть рассрочка, возможна покупка с использованием материнского капитала, есть военная ипотека.
Жилая площадь 27.4 м2, кухня 13.8 м2, черновая отделка.
Квартира располагается на 1 этаже 16-этажного дома в ЖК Традиции.
Застройщик - ГК ССК, сдача дома - III квартал 2027 года, высота потолков 2.72 м.
Дом оборудован пассажирским лифтом. Обеспечение безопасности: видеонаблюдение, противопожарная система. Инфраструктура: детские площадки, спортивные площадки, места для отдыха, супермаркет, рестораны, фитнес-центр, пункты бытового обслуживания, коммерческие объекты.
В жилом комплексе «Традиции» вы найдёте всё, чтобы создать свой особенный уклад жизни. Возможно, именно здесь начнётся новая семейная традиция, которая станет дорогой сердцу на долгие годы.
В радиусе 5 минут ходьбы от комплекса уже функционируют школы и детские сады, а дорога в центр города занимает 15 минут.
«Доступное жильё - 3%» в ЖК «Традиции»
Мы ценим ваш труд и поддерживаем на важных жизненных этапах!
Если вы - врач, учитель, военнослужащий, участник СВО, моряк (г. Калининград) или молодая семья с детьми, для вас действует специальное предложение:
Скидка 3% от стоимости квартиры в рамках программы «Доступное жильё».
Ваша квартира в ЖК «Традиции» - это начало новой главы в уютном, продуманном пространстве, где каждая деталь создана для комфорта большой семьи.
Аккредитованные банки: Сбербанк, Альфа-Банк, ВТБ, Банк Уралсиб, РОССИЯ, Абсолют Банк, Металлинвестбанк, РНКБ, ПСБ, Кубань Кредит, Банк ВБРР, Россельхозбанк.
Позвоните и узнайте условия покупки прямо сейчас!
03.12.2025
7 236 000 ₽
Не фейк, реальная квартира. Продажа от собственника, просьба агентства не беспокоить.
Один собственник, без прописанных, более пяти лет, полная
стоимость в договоре, быстрый выход на сделку.
Большой закрытый жилой комплекс "Морская Симфония" с большим открытым бассейном, смотровой площадкой с видом на море, детские площадки, фонтан с подсветкой, теннисный корт, спортивные площадки, фитнес.
Уютная евро трешка 56 метров, две отдельные спальни и гостиная с кухней. Кондиционер, стиральная машина, сушка, лоджия, фильтр воды, посудомойка, электрическая духовка, миксер, мультиварка. Интернет 100мбит.
Большой супермаркет "Перекресток", аптеки, хозяйственный магазин, кофейня, ресторан, магазин овощи-фрукты, магазин пива, пункты выдачи товаров Wildberries, Озон, СДЭК салон для животных, салон красоты, клубы для детей, фитнес клуб "Среда" все это расположено в комплексе.
До олимпийского парка 15 минут на машине, большой Сочи 30 минут, красная поляна 35 минут. До море 15 минут пешком.
Жилая площадь 46 м2, кухня 9 кв. м, внутри евро ремонт. Квартира меблированная, есть бытовая техника: стиральная машина, холодильник, телевизор, кондиционер, посудомоечная машина, микроволновая печь, интернет. Раздельных санузлов - 1, совмещенных санузлов - нет.
На полу ламинат, лоджий - 1, окна выходят во двор.
Квартира располагается на 6 этаже 18-этажного монолитного дома в ЖК Морская симфония 2013 года постройки. Застройщик - Монолит (Сочи).
Дом оборудован одним грузовым и 2 пассажирскими лифтами, закрытая территория.
Парковка автомобилей - наземная, парковка с охраной. Обеспечение безопасности: круглосуточная охрана. Инфраструктура: детские площадки, спортивные площадки, места для отдыха, супермаркет, рестораны, фитнес-центр, пункты бытового обслуживания.
27.11.2025
18 450 000 ₽
Продаются 2 комн. апартаменты, площадью 45.6 м2 в монолитной новостройке. Возможен вариант покупки с использованием ипотечных средств, есть рассрочка, возможна покупка с использованием материнского капитала, есть военная ипотека.
Жилая площадь 19.9 м2, кухня 12.7 м2, чистовая отделка с мебелью.
Квартира располагается на 2 этаже 9-этажного дома в ЖК Гостиничный комплекс Мореград.
Застройщик - ООО СЗ ГРАЖДАНСТРОЙАНАПА входит в состав ГК ССК, сдача дома - I квартал 2027 года.
Дом оборудован пассажирским лифтом, закрытая территория.
Подземная парковка, парковка охраняется. Обеспечение безопасности: видеонаблюдение, круглосуточная охрана, противопожарная система. Инфраструктура: детские площадки, спортивные площадки, места для отдыха, супермаркет, рестораны, пункты бытового обслуживания, коммерческие объекты.
Расположенный в живописном месте города-курорта Анапы, гостиничный комплекс «Мореград» предлагает идеальное сочетание уютной обстановки и удобного расположения. Всего в трех минутах ходьбы от тенистых зеленых аллей Пионерского проспекта, он станет идеальным выбором для отдыхающих, желающих насладиться близостью к морю.
Песчаные пляжи Черного моря, всего в 7 минутах ходьбы от комплекса, приглашают насладиться теплым солнцем и ласковыми волнами.
«Мореград» - уникальный современный гостиничный комплекс, где гостям будут доступны все удобства отельного сервиса. Коммерческие блоки и различные виды отдыха - рестораны, бары, магазины, лаунж-зоны, оборудованные спортивные и детские площадки и многое другое сделают отдых гостей незабываемым.
Набережная, море и комфорт в каждом метре - гостиничный комплекс «Мореград» в живописном городе-курорте Анапа представляет специальное предложение для тех, кто ценит выгодные решения. При оплате наличными вы получаете выгоду до 1 180 000 рублей, что делает приобретение недвижимости здесь особенно привлекательным. Расположенный всего в трёх минутах ходьбы от тенистых зелёных аллей Пионерского проспекта, комплекс сочетает уютную атмосферу и удобное расположение, идеально подходя для отдыха и постоянного проживания. Наслаждайтесь близостью к морю, высоким уровнем комфорта и перспективной инвестицией в будущее уже сегодня.
Позвоните и узнайте условия покупки прямо сейчас!
06.12.2025
13 680 000 ₽
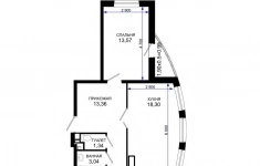
Продается 2-комн. квартира, площадью 66.42 м2 в монолитно-кирпичной новостройке. Возможен вариант покупки с использованием ипотечных средств, есть рассрочка, возможна покупка с использованием материнского капитала, есть военная ипотека.
Жилая площадь 29.43 м2, кухня 9.96 м2, предчистовая отделка.
Квартира располагается на 3 этаже 19-этажного дома в ЖК Лучший.
Застройщик - ГК ССК, сдача дома - IV квартал 2025 года, высота потолков 2.9 м.
Дом оборудован пассажирским лифтом, закрытая территория, парковка охраняется. Обеспечение безопасности: видеонаблюдение, противопожарная система. Инфраструктура: детские площадки, спортивные площадки, места для отдыха, супермаркет, рестораны, фитнес-центр, пункты бытового обслуживания, коммерческие объекты.
Дома сданы раньше сроков, ключи в момент сделки!
Жилой квартал «Лучший» - единая экосистема домов, в которой соблюдаются стандарты максимального качества, экологичности, богатства инфраструктуры, безопасного, живописного и престижного окружения и транспортной доступности. Организация уличного пространства и формирование благоприятной, эстетически привлекательной среды за порогом жилья является важным этапом строительства. Ландшафтный дизайн жилого квартала «Лучший» включает в себя не только озеленение двора, но и создание его внутренней инфраструктуры.
Два 24-этажных литера, выполненных по надежной технологии монолит-кирпич.
Специальное предложение в жилом квартале «Лучший»
Получите выгоду до 710 000 рублей. На двухкомнатные квартиры в литерах 10-13, а также кладовая площадью до 11 м в подарок.
Просторные планировки, современные решения и качественные материалы - всё создано для вашего комфорта с первого дня заселения.
Аккредитованные банки: Сбербанк, Альфа-Банк, ВТБ, Банк Уралсиб, РОССИЯ, Абсолют Банк, Металлинвестбанк, РНКБ, ПСБ, Кубань Кредит, Банк ВБРР, Россельхозбанк.
Позвоните и узнайте условия покупки прямо сейчас!
02.12.2025
8 966 700 ₽
Продается 2-комн. квартира, площадью 51.11 м2 в монолитно-кирпичной новостройке. Возможен вариант покупки с использованием ипотечных средств, есть рассрочка, возможна покупка с использованием материнского капитала.
Жилая площадь 21.49 м2, кухня 16.1 м2, предчистовая отделка.
Квартира располагается на 4 этаже 4-этажного дома в ЖК Усадьба Гостагаевская.
Застройщик - ООО СЗ ССК Анапа входит в состав ГК ССК, сдача дома - IV квартал 2026 года.
Дом оборудован пассажирским лифтом, закрытая территория.
Парковка автомобилей - наземная. Обеспечение безопасности: видеонаблюдение. Инфраструктура: школа, детский сад, детские площадки, спортивные площадки, места для отдыха.
На территории комплекса будут находиться собственный детский сад на 300 мест, школа на 750 учеников дом культуры и библиотека для мероприятий и досуга. Коммерческие площади, включая магазины и кафе, обеспечат жителей всеми необходимыми услугами.
Комплекс предложит спортивные площадки, беговые дорожки, места для занятий йогой и фитнесом на свежем воздухе. Приятные скверы и аллеи будут идеальны для семейных прогулок и досуга.
Территория комплекса будет благоустроена с акцентом на экологию и комфорт. Планируется озеленение с использованием местных растений, что улучшит внешний вид и создаст приятную атмосферу. Современные технологии, такие как динамическое освещение и зоны для зарядки гаджетов, сделают жизнь удобной и комфортной.
Комплекс удобно расположен вблизи основных транспортных артерий, что обеспечивает быструю связь с Анапой и другими важными точками региона Краснодар, Новороссийск, Крым. Железнодорожная станция находится всего в 2 минутах на машине, а аэропорт в 6 километрах
При покупке 2- или 3-комнатной квартиры в жилом комплексе «Усадьба Гостагаевская» за наличный расчёт вы получаете скидку до 1 325 000 рублей.
«Усадьба Гостагаевская» - масштабный проект на 27 гектарах, созданный как современная усадьба. Здесь всё продумано до детали: поквартальная застройка, единый архитектурный стиль и продуманная планировка пространства, в которой каждый дом - не просто жильё, а часть гармоничного мира, где ценятся приватность и покой.
На территории - не просто ландшафтный дизайн, а настоящий Дикий сад: живая, дышащая природа, где тишина становится частью повседневности. А подогреваемый бассейн - не сезонная роскошь, а ваш личный уголок уюта, доступный даже в ноябре.
Аккредитованные банки: Абсолют Банк, Совкомбанк, Альфа-Банк, Банк ДОМ. РФ, Промсвязьбанк, Банк ВТБ, Т-Банк, Россельхозбанк, МКБ.
Позвоните и узнайте условия покупки прямо сейчас!
06.12.2025
10 477 550 ₽
Продается 2-комн. квартира, площадью 56.1 м2 в монолитно-кирпичной новостройке. Возможен вариант покупки с использованием ипотечных средств, есть рассрочка, возможна покупка с использованием материнского капитала, есть военная ипотека.
Жилая площадь 25.6 м2, кухня 16.1 м2, черновая отделка.
Квартира располагается на 5 этаже 16-этажного дома в ЖК Традиции.
Застройщик - ГК ССК, сдача дома - III квартал 2027 года, высота потолков 2.72 м.
Дом оборудован пассажирским лифтом. Обеспечение безопасности: видеонаблюдение, противопожарная система. Инфраструктура: детские площадки, спортивные площадки, места для отдыха, супермаркет, рестораны, фитнес-центр, пункты бытового обслуживания, коммерческие объекты.
В жилом комплексе «Традиции» вы найдёте всё, чтобы создать свой особенный уклад жизни. Возможно, именно здесь начнётся новая семейная традиция, которая станет дорогой сердцу на долгие годы.
В радиусе 5 минут ходьбы от комплекса уже функционируют школы и детские сады, а дорога в центр города занимает 15 минут.
«Доступное жильё - 3%» в ЖК «Традиции»
Мы ценим ваш труд и поддерживаем на важных жизненных этапах!
Если вы - врач, учитель, военнослужащий, участник СВО, моряк (г. Калининград) или молодая семья с детьми, для вас действует специальное предложение:
Скидка 3% от стоимости квартиры в рамках программы «Доступное жильё».
Ваша квартира в ЖК «Традиции» - это начало новой главы в уютном, продуманном пространстве, где каждая деталь создана для комфорта большой семьи.
Аккредитованные банки: Сбербанк, Альфа-Банк, ВТБ, Банк Уралсиб, РОССИЯ, Абсолют Банк, Металлинвестбанк, РНКБ, ПСБ, Кубань Кредит, Банк ВБРР, Россельхозбанк.
Позвоните и узнайте условия покупки прямо сейчас!
04.12.2025
7 573 500 ₽
Продается 2-комн. квартира, площадью 53.7 м2 в монолитно-кирпичной новостройке. Возможен вариант покупки с использованием ипотечных средств, есть рассрочка, возможна покупка с использованием материнского капитала, есть военная ипотека.
Жилая площадь 27.4 м2, кухня 13.8 м2, черновая отделка.
Квартира располагается на 6 этаже 16-этажного дома в ЖК Традиции.
Застройщик - ГК ССК, сдача дома - III квартал 2027 года, высота потолков 2.72 м.
Дом оборудован пассажирским лифтом. Обеспечение безопасности: видеонаблюдение, противопожарная система. Инфраструктура: детские площадки, спортивные площадки, места для отдыха, супермаркет, рестораны, фитнес-центр, пункты бытового обслуживания, коммерческие объекты.
В жилом комплексе «Традиции» вы найдёте всё, чтобы создать свой особенный уклад жизни. Возможно, именно здесь начнётся новая семейная традиция, которая станет дорогой сердцу на долгие годы.
В радиусе 5 минут ходьбы от комплекса уже функционируют школы и детские сады, а дорога в центр города занимает 15 минут.
«Доступное жильё - 3%» в ЖК «Традиции»
Мы ценим ваш труд и поддерживаем на важных жизненных этапах!
Если вы - врач, учитель, военнослужащий, участник СВО, моряк (г. Калининград) или молодая семья с детьми, для вас действует специальное предложение:
Скидка 3% от стоимости квартиры в рамках программы «Доступное жильё».
Ваша квартира в ЖК «Традиции» - это начало новой главы в уютном, продуманном пространстве, где каждая деталь создана для комфорта большой семьи.
Аккредитованные банки: Сбербанк, Альфа-Банк, ВТБ, Банк Уралсиб, РОССИЯ, Абсолют Банк, Металлинвестбанк, РНКБ, ПСБ, Кубань Кредит, Банк ВБРР, Россельхозбанк.
Позвоните и узнайте условия покупки прямо сейчас!
02.12.2025
7 249 500 ₽
Продаются 2 комн. апартаменты, площадью 45.7 м2 в монолитной новостройке. Возможен вариант покупки с использованием ипотечных средств, есть рассрочка, возможна покупка с использованием материнского капитала, есть военная ипотека.
Жилая площадь 19.9 м2, кухня 12.7 м2, чистовая отделка с мебелью.
Квартира располагается на 5 этаже 9-этажного дома в ЖК Гостиничный комплекс Мореград.
Застройщик - ООО СЗ ГРАЖДАНСТРОЙАНАПА входит в состав ГК ССК, сдача дома - I квартал 2027 года.
Дом оборудован пассажирским лифтом, закрытая территория.
Подземная парковка, парковка охраняется. Обеспечение безопасности: видеонаблюдение, круглосуточная охрана, противопожарная система. Инфраструктура: детские площадки, спортивные площадки, места для отдыха, супермаркет, рестораны, пункты бытового обслуживания, коммерческие объекты.
Расположенный в живописном месте города-курорта Анапы, гостиничный комплекс «Мореград» предлагает идеальное сочетание уютной обстановки и удобного расположения. Всего в трех минутах ходьбы от тенистых зеленых аллей Пионерского проспекта, он станет идеальным выбором для отдыхающих, желающих насладиться близостью к морю.
Песчаные пляжи Черного моря, всего в 7 минутах ходьбы от комплекса, приглашают насладиться теплым солнцем и ласковыми волнами.
«Мореград» - уникальный современный гостиничный комплекс, где гостям будут доступны все удобства отельного сервиса. Коммерческие блоки и различные виды отдыха - рестораны, бары, магазины, лаунж-зоны, оборудованные спортивные и детские площадки и многое другое сделают отдых гостей незабываемым.
Набережная, море и комфорт в каждом метре - гостиничный комплекс «Мореград» в живописном городе-курорте Анапа представляет специальное предложение для тех, кто ценит выгодные решения. При оплате наличными вы получаете выгоду до 1 180 000 рублей, что делает приобретение недвижимости здесь особенно привлекательным. Расположенный всего в трёх минутах ходьбы от тенистых зелёных аллей Пионерского проспекта, комплекс сочетает уютную атмосферу и удобное расположение, идеально подходя для отдыха и постоянного проживания. Наслаждайтесь близостью к морю, высоким уровнем комфорта и перспективной инвестицией в будущее уже сегодня.
Позвоните и узнайте условия покупки прямо сейчас!
14.01.2026
13 710 000 ₽
Продается 2-комн. квартира, площадью 53.7 м2 в монолитно-кирпичной новостройке. Возможен вариант покупки с использованием ипотечных средств, есть рассрочка, возможна покупка с использованием материнского капитала, есть военная ипотека.
Жилая площадь 27.4 м2, кухня 13.8 м2, черновая отделка.
Квартира располагается на 2 этаже 16-этажного дома в ЖК Традиции.
Застройщик - ГК ССК, сдача дома - III квартал 2027 года, высота потолков 2.72 м.
Дом оборудован пассажирским лифтом. Обеспечение безопасности: видеонаблюдение, противопожарная система. Инфраструктура: детские площадки, спортивные площадки, места для отдыха, супермаркет, рестораны, фитнес-центр, пункты бытового обслуживания, коммерческие объекты.
В жилом комплексе «Традиции» вы найдёте всё, чтобы создать свой особенный уклад жизни. Возможно, именно здесь начнётся новая семейная традиция, которая станет дорогой сердцу на долгие годы.
В радиусе 5 минут ходьбы от комплекса уже функционируют школы и детские сады, а дорога в центр города занимает 15 минут.
«Доступное жильё - 3%» в ЖК «Традиции»
Мы ценим ваш труд и поддерживаем на важных жизненных этапах!
Если вы - врач, учитель, военнослужащий, участник СВО, моряк (г. Калининград) или молодая семья с детьми, для вас действует специальное предложение:
Скидка 3% от стоимости квартиры в рамках программы «Доступное жильё».
Ваша квартира в ЖК «Традиции» - это начало новой главы в уютном, продуманном пространстве, где каждая деталь создана для комфорта большой семьи.
Аккредитованные банки: Сбербанк, Альфа-Банк, ВТБ, Банк Уралсиб, РОССИЯ, Абсолют Банк, Металлинвестбанк, РНКБ, ПСБ, Кубань Кредит, Банк ВБРР, Россельхозбанк.
Позвоните и узнайте условия покупки прямо сейчас!
02.12.2025
7 249 500 ₽
Продается 2-комн. квартира, площадью 56.1 м2 в монолитно-кирпичной новостройке. Возможен вариант покупки с использованием ипотечных средств, есть рассрочка, возможна покупка с использованием материнского капитала, есть военная ипотека.
Жилая площадь 25.6 м2, кухня 16.1 м2, черновая отделка.
Квартира располагается на 7 этаже 16-этажного дома в ЖК Традиции.
Застройщик - ГК ССК, сдача дома - III квартал 2027 года, высота потолков 2.72 м.
Дом оборудован пассажирским лифтом. Обеспечение безопасности: видеонаблюдение, противопожарная система. Инфраструктура: детские площадки, спортивные площадки, места для отдыха, супермаркет, рестораны, фитнес-центр, пункты бытового обслуживания, коммерческие объекты.
В жилом комплексе «Традиции» вы найдёте всё, чтобы создать свой особенный уклад жизни. Возможно, именно здесь начнётся новая семейная традиция, которая станет дорогой сердцу на долгие годы.
В радиусе 5 минут ходьбы от комплекса уже функционируют школы и детские сады, а дорога в центр города занимает 15 минут.
«Доступное жильё - 3%» в ЖК «Традиции»
Мы ценим ваш труд и поддерживаем на важных жизненных этапах!
Если вы - врач, учитель, военнослужащий, участник СВО, моряк (г. Калининград) или молодая семья с детьми, для вас действует специальное предложение:
Скидка 3% от стоимости квартиры в рамках программы «Доступное жильё».
Ваша квартира в ЖК «Традиции» - это начало новой главы в уютном, продуманном пространстве, где каждая деталь создана для комфорта большой семьи.
Аккредитованные банки: Сбербанк, Альфа-Банк, ВТБ, Банк Уралсиб, РОССИЯ, Абсолют Банк, Металлинвестбанк, РНКБ, ПСБ, Кубань Кредит, Банк ВБРР, Россельхозбанк.
Позвоните и узнайте условия покупки прямо сейчас!
09.12.2025
7 573 500 ₽
Продается 2-комн. квартира, площадью 56.1 м2 в монолитно-кирпичной новостройке. Возможен вариант покупки с использованием ипотечных средств, есть рассрочка, возможна покупка с использованием материнского капитала, есть военная ипотека.
Жилая площадь 25.6 м2, кухня 16.1 м2, черновая отделка.
Квартира располагается на 13 этаже 16-этажного дома в ЖК Традиции.
Застройщик - ГК ССК, сдача дома - III квартал 2027 года, высота потолков 2.72 м.
Дом оборудован пассажирским лифтом. Обеспечение безопасности: видеонаблюдение, противопожарная система. Инфраструктура: детские площадки, спортивные площадки, места для отдыха, супермаркет, рестораны, фитнес-центр, пункты бытового обслуживания, коммерческие объекты.
В жилом комплексе «Традиции» вы найдёте всё, чтобы создать свой особенный уклад жизни. Возможно, именно здесь начнётся новая семейная традиция, которая станет дорогой сердцу на долгие годы.
В радиусе 5 минут ходьбы от комплекса уже функционируют школы и детские сады, а дорога в центр города занимает 15 минут.
«Доступное жильё - 3%» в ЖК «Традиции»
Мы ценим ваш труд и поддерживаем на важных жизненных этапах!
Если вы - врач, учитель, военнослужащий, участник СВО, моряк (г. Калининград) или молодая семья с детьми, для вас действует специальное предложение:
Скидка 3% от стоимости квартиры в рамках программы «Доступное жильё».
Ваша квартира в ЖК «Традиции» - это начало новой главы в уютном, продуманном пространстве, где каждая деталь создана для комфорта большой семьи.
Аккредитованные банки: Сбербанк, Альфа-Банк, ВТБ, Банк Уралсиб, РОССИЯ, Абсолют Банк, Металлинвестбанк, РНКБ, ПСБ, Кубань Кредит, Банк ВБРР, Россельхозбанк.
Позвоните и узнайте условия покупки прямо сейчас!
02.12.2025
7 573 500 ₽




















