Продать квартиру в Холмской

Выгодно продать квартиру в Холмской, в различных ее районах. Мы публикуем объявления от собственников и агентств недвижимости с возможностью бесплатного поднятия сообщения зарегистрированным пользователям, для увеличения числа просмотров.

Продам 1 комнатную квартиру 28 м2 картинка из объявления
10
Продается уютная 1-комн. квартира площадью 28 кв.м на 8 этаже 12-этажного дома. Жилая площадь составляет 25 кв.м. Квартира предлагает прекрасный вид на зелень и находится в спокойном районе с развитой инфраструктурой. Удобное расположение: рядом остановка общественного транспорта, школа и детский сад. В шаговой доступности находятся магазины Валберис, Озон, Пятерочка и Магнит. До аэропорта всего 15 минут, до Красной поляны — 30 минут, до центра Сочи — 20 минут. До моря всего 800 метров, местность ровная, что делает прогулки к пляжу комфортными. Дом расположен на берегу реки с благоустроенной набережной, что создает приятную атмосферу для жизни. Возможен вариант покупки с использованием ипотечных средств.
11.04.2026
10 200 000 ₽
Продам 2 комнатную квартиру 45.5 м2 картинка из объявления
8
Квартира планируется в две комнаты/ кухня-гостиная Развитый и очень удобный район для проживания. Рядом все возможные магазины, школа, рынок, детский сад, остановка транспорта, кафе, рестораны и др. Квартира для постоянного комфортного проживания. При ЖК Новая Заря есть свой теннисный корт, спортивная площадка, в пешей доступности фитнес клуб, подземная парковка, круглосуточный большой Магнит , школы, детский садик, банк, поликлиника.
11.04.2026
13 900 000 ₽
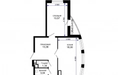
Продам 2 комнатную квартиру 50.1 м2 картинка из объявления
10
Продается стильная двухкомнатная квартира в престижном доме бизнес-класса. Комплекс располагает закрытой территорией с развитой инфраструктурой: на территории находятся спортзал, супермаркет «Пятерочка», ресторан и детский центр. Безопасность обеспечивается круглосуточной охраной и консьерж-сервисом. Для активного отдыха предусмотрены теннисный корт и спортивная площадка, а также ухоженные зеленые зоны с ландшафтным озеленением. Квартира расположена всего в 150 метрах от моря, что позволяет наслаждаться морским бризом и прекрасными видами. В 20 минутах находится международный аэропорт, а всего в 30 минутах — один из лучших горнолыжных курортов страны. Кроме того, дом соседствует с живописным национальным парком, что создает уникальную атмосферу для жизни. Интерьер квартиры продуман до мелочей: она включает уютную спальню и светлую кухню-гостиную с выходом на балкон, откуда открывается великолепный вид на море. Выполненный качественный ремонт с использованием натуральных материалов создает атмосферу уюта и комфорта. Квартира полностью укомплектована современной техникой и мебелью, что позволит вам сразу же насладиться жизнью в новом доме.
11.04.2026
27 000 000 ₽
Продам 2 комнатную квартиру 51 м2 картинка из объявления
10
Продается квартира в ЖК Сокол! Дом бизнес-класса с закрытой придомовой территорией. Площадь квартиры: 51 м2 Планировка: одна спальня и кухня-гостиная. Уникальный вид: из квартиры открывается панорамный вид на море и центр города. Инфраструктура: облагороженная территория, детская площадка, теннисный корт — идеальное место для отдыха и активного времяпрепровождения. В квартире остается вся необходимая мебель и техника — заезжай и живи!
11.04.2026
33 000 000 ₽
Продам 1 комнатную квартиру 20 м2 картинка из объявления
6
Продается уютная студия с качественным ремонтом, полностью меблированная и оснащенная бытовой техникой. Жилой комплекс бизнес-класса с закрытой территорией, охраной и системой видеонаблюдения. Внутри комплекса предусмотрен подземный паркинг. В шаговой доступности находятся новая школа, детский сад и современный торговый центр. Отличная транспортная доступность: общественный транспорт рядом, до моря всего 900 метров. Для любителей природы рядом расположена лесопарковая зона. Удобное расположение: всего 40 минут до международного аэропорта и 20 минут до морского порта.
11.04.2026
11 000 000 ₽
Продам 2 комнатную квартиру 59.1 м2 картинка из объявления
4
В продаже эксклюзивное предложение -Семейный номер в отеле 5* -видовой на море -Редкая планировка (всего 15 на 505 номеров) -подписано соглашение С оператором Алеан!!! Номер, который будет пользоваться популярностью, так как в основном приезжают семейные гости с детьми)
11.04.2026
39 900 000 ₽
Продам 2 комнатную квартиру 76 м2 картинка из объявления
10
*ЖК Морской Дворец* Продается коллекционный объект недвижимости в доме премиум класса. Развитая инфраструктура : школы, садики, рестораны Novikov, White Rabbit , Магадан . До мор порта 5 минут. До парка Ривьера 15 минут пешком. Дом охраняем 24/7. Статусное соседство. В квартире выполнен дизайнерский ремонт, оборудована мебелью и техникой известных брендов.
11.04.2026
120 000 000 ₽
Продам 2 комнатную квартиру 53.15 м2 картинка из объявления
6
Продается 2-комн. квартира, площадью 53.15 м2 в панельной новостройке. Возможен вариант покупки с использованием ипотечных средств, возможна покупка с использованием материнского капитала. Жилая площадь 24.1 м2, кухня 15.4 м2, предчистовая отделка. Квартира располагается на 2 этаже 12-этажного дома в ЖК На Высоком берегу. Застройщик - ГК ССК, сдача дома - II квартал 2027 года, высота потолков 2.7 м. Дом оборудован пассажирским лифтом. Подземная парковка. Инфраструктура: детские площадки, спортивные площадки, места для отдыха, рестораны. Семейный квартал «На Высоком берегу» расположен всего в 300 метрах от моря, где каждая деталь создана для вашего максимального комфорта. Квартиры с высотой потолков 2,7 метра, просторные мастер-спальни и великолепные виды. 169 уникальных, современных и функциональных планировок, каждая из которых разработана специально для комфортной семейной жизни. Продуманное зонирование, рациональное использование пространства и эстетика современного дизайна делают каждую квартиру настоящим воплощением мечты о жилье премиум-класса. АКЦИЯ: Семейный квартал «На Высоком берегу» предлагает новый стандарт жизни, где отдых у моря сочетается с полной инфраструктурой в шаге от дома. Это целый мир внутри квартала: собственный торговый центр, школа, два детских сада и игровые площадки для детей всех возрастов. А на первых этажах уже размещаются кафе, салоны и магазины. Архитектура выдержана в современном средиземноморском стиле, а просторные дизайнерские лобби с высокими потолками подчёркивают премиальный уровень комфорта. Здесь вы получаете не просто квартиру в Анапе, а готовую жизнь у моря в окружении всего необходимого. Успейте стать частью этого квартала - предложение с ценой от 7,7 млн рублей ограничено. Позвоните и узнайте условия покупки прямо сейчас!
08.04.2026
11 693 000 ₽
Продам 3 комнатную квартиру 133.5 м2 картинка из объявления
10
Продается через электронные торги на площадке ЭТП ГПБ 3-комнатная квартира, общей площадью 133,5 кв.м, расположенной по адресу: Краснодарский край, г. Анапа, ул. Владимирская, д. 146, к. 3 Кадастровый номер: 23:37:0102035:444 Дата ввода объекта в эксплуатацию: 17.11.2005 г. Количество комнат: 3 Обременений нет. Трехкомнатная квартира располагается на 1 этаже многоквартирного девятиэтажного жилого дома, построенного в 2005 году в городе-курорте Анапа. На территории комплекса находится шлагбаум и камеры видеонаблюдения. Квартира с изолированными комнатами, центральное отопление, горячее и холодное водоснабжение, канализация. Район с развитой инфраструктурой: в шаговой доступности детские сады, школа, спортивные школа, аптека, поликлиника, магазины, Черноморский парк. Удобная транспортная развязка. Кухня-столовая, общая площадь 18 кв.м. На стенах керамическая плитка, местами оклеены обоями. На полу ламинатная доска. Потолок окрашен. Кухня оборудована системами энергоснабжения, электроосвещения, канализации, холодным и горячим водоснабжением. Гостиная площадь 37,5 кв.м. Стены оклеены обоями, на полу ламинат, потолок подвесной. Комната оборудована системами энергоснабжения, электроосвещения и отопления. Жилая комната, общая площадь 19,6 кв.м., оборудован системой энергоснабжения, электроосвещения. Стены оклеены обоями. Потолок оклеен плиткой. На полу ламинатная доска. Жилая комната общая площадь 24,1 кв.м. Стены оклеены обоями, потолке плитка. Из комнаты выход на балкон. Санузел оборудован системой энергоснабжения, электроосвещения, горячим и холодным водоснабжением. Стены и пол выложены керамической плиткой, потолок бетонный.
10.04.2026
10 795 000 ₽
Продам 2 комнатную квартиру 57.4 м2 картинка из объявления
6
Продается 2-комн. квартира, площадью 57.4 м2 в панельной новостройке. Возможен вариант покупки с использованием ипотечных средств, возможна покупка с использованием материнского капитала. Жилая площадь 27 м2, кухня 16.2 м2, предчистовая отделка. Квартира располагается на 3 этаже 12-этажного дома в ЖК На Высоком берегу. Застройщик - ГК ССК, сдача дома - II квартал 2027 года, высота потолков 2.7 м. Дом оборудован пассажирским лифтом. Подземная парковка. Инфраструктура: детские площадки, спортивные площадки, места для отдыха, рестораны. Семейный квартал «На Высоком берегу» расположен всего в 300 метрах от моря, где каждая деталь создана для вашего максимального комфорта. Квартиры с высотой потолков 2,7 метра, просторные мастер-спальни и великолепные виды. 169 уникальных, современных и функциональных планировок, каждая из которых разработана специально для комфортной семейной жизни. Продуманное зонирование, рациональное использование пространства и эстетика современного дизайна делают каждую квартиру настоящим воплощением мечты о жилье премиум-класса. АКЦИЯ: Семейный квартал «На Высоком берегу» предлагает новый стандарт жизни, где отдых у моря сочетается с полной инфраструктурой в шаге от дома. Это целый мир внутри квартала: собственный торговый центр, школа, два детских сада и игровые площадки для детей всех возрастов. А на первых этажах уже размещаются кафе, салоны и магазины. Архитектура выдержана в современном средиземноморском стиле, а просторные дизайнерские лобби с высокими потолками подчёркивают премиальный уровень комфорта. Здесь вы получаете не просто квартиру в Анапе, а готовую жизнь у моря в окружении всего необходимого. Успейте стать частью этого квартала - предложение с ценой от 7,7 млн рублей ограничено. Позвоните и узнайте условия покупки прямо сейчас!
08.04.2026
12 628 000 ₽
Продам 2 комнатную квартиру 63.3 м2 картинка из объявления
10
Продается уютная 2-комн. квартира в центре жизни! Основные характеристики: - Жилая площадь: 38 м2, Кухня: 15 м2 - Комнаты: 20/18 м2, изолированные для вашего удобства - Этаж: 8 из 9 Ваши преимущества: - Покупка возможна с использованием ипотечных средств! - Квартира продается с мебелью (кухонный гарнитур, диван, шкафы-купе) и техникой, что позволит вам сразу же комфортно обустроиться. - Унитаз с инсталляцией - Водонагреватель - Высокое качество ремонта, выполненного с использованием только лучших материалов. - Большой болкон с теплыми полами. - Пластиковые окна обеспечивают отличную тепло- и шумоизоляцию, создавая уютную атмосферу. - Система фильтрации установлена на все источники подачи воды. Инфраструктура: - Дом находится в южном районе, рядом имеются 2 школы, детский сад, магазины и остановки общественного транспорта. - Во дворе — 2 современных детских площадки, где ваши дети смогут весело проводить время. - Всего 5 минут пешком до моря — идеальное место для семейных прогулок и отдыха. -Рядом роща, буквально напротив. -Многообразие супермаркетов, кафе и магазинов, все в шаговой доступности. Технические детали: - Электроснабжение распределено на 32 индивидуальных переключателя, что обеспечивает независимость каждой точки подключения. - Система водоснабжения по коллекторной схеме обеспечивает стабильное давление воды, позволяя легко отключать контуры для ремонта без ущерба для других. - Быстрый интернет: выделенные точки в каждой комнате, 100% скорость для всех ваших устройств. -Индивидуальное регулируемое отопление. Один взрослый собственник. Звоните, отвечу на все интересующие вопросы.
20.04.2026
14 000 000 ₽
Продам 2 комнатную квартиру 50.9 м2 картинка из объявления
10
Продается 2-комн. квартира, площадью 50.9 м2 в монолитно-кирпичной новостройке. Возможен вариант покупки с использованием ипотечных средств, есть рассрочка, возможна покупка с использованием материнского капитала, есть военная ипотека. Жилая площадь 25 м2, кухня 13 м2, предчистовая отделка. Квартира располагается на 3 этаже 18-этажного дома в ЖК Фонтаны. Застройщик - ГК ССК, сдача дома - IV квартал 2026 года. Дом оборудован пассажирским лифтом, закрытая территория. Отдельная многоуровневая парковка, парковка охраняется. Обеспечение безопасности: видеонаблюдение, противопожарная система. Инфраструктура: детский сад, детские площадки, спортивные площадки, места для отдыха, супермаркет, рестораны, фитнес-центр, пункты бытового обслуживания, коммерческие объекты. Жилой комплекс «Фонтаны» - дом клубного типа. Преимущество заключается в продуманном ландшафте дворов, круглосуточно охраняемой территории, системе видеонаблюдения во дворе. Также для удобства жителей проведен Wi-Fi во дворе, оборудованы безопасные и современные детские площадки, зоны отдыха. «Фонтаны» - уникальный, неповторимый жилой комплекс, воплощающий оригинальные и креативные решения дизайнеров и архитекторов. Дома округлой форме - это придает им легкости, несмотря на массивность постройки. ЖК «Фонтаны» расположен в микрорайоне Черёмушки. Отличная транспортная развязка позволяет быстро и с комфортом добраться до центра, а большое количество зеленых насаждений и парков дает возможность гулять с детьми и наслаждаться прекрасным видом на Кубань. АКЦИЯ: В жилом комплексе «Фонтаны» семьи с детьми до шести лет включительно могут оформить ипотеку по льготной ставке от 3,5% при первоначальном взносе от 20%. Это возможность приобрести современную квартиру с продуманной планировкой, панорамными окнами и видами на реку Кубань, не откладывая мечту «на потом». Территория ЖК - продуманное пространство для жизни: здесь найдётся место и для детских игр, и для спокойного отдыха взрослых, а близость к парковой зоне и будущему детскому саду сделает каждый день ещё комфортнее. Выбирайте квартиру с готовым ремонтом и заселяйтесь без лишних хлопот - всё, что нужно для старта новой главы вашей семейной истории, уже здесь. Информация носит справочный характер. Не является публичной офертой. Аккредитованные банки: Сбербанк, Альфа-Банк, ВТБ, Банк Уралсиб, РОССИЯ, Абсолют Банк, Металлинвестбанк, РНКБ, ПСБ, Кубань Кредит, Банк ВБРР, Россельхозбанк. Позвоните и узнайте условия покупки прямо сейчас!
14.04.2026
10 180 000 ₽
Продам 2 комнатную квартиру 55 м2 картинка из объявления
10
Продается 2-комн. квартира, площадью 55 м2 в монолитно-кирпичной новостройке. Возможен вариант покупки с использованием ипотечных средств, есть рассрочка, возможна покупка с использованием материнского капитала, есть военная ипотека. Жилая площадь 24.2 м2, кухня 16.3 м2, предчистовая отделка. Квартира располагается на 4 этаже 18-этажного дома в ЖК Фонтаны. Застройщик - ГК ССК, сдача дома - IV квартал 2026 года. Дом оборудован пассажирским лифтом, закрытая территория. Отдельная многоуровневая парковка, парковка охраняется. Обеспечение безопасности: видеонаблюдение, противопожарная система. Инфраструктура: детский сад, детские площадки, спортивные площадки, места для отдыха, супермаркет, рестораны, фитнес-центр, пункты бытового обслуживания, коммерческие объекты. Жилой комплекс «Фонтаны» - дом клубного типа. Преимущество заключается в продуманном ландшафте дворов, круглосуточно охраняемой территории, системе видеонаблюдения во дворе. Также для удобства жителей проведен Wi-Fi во дворе, оборудованы безопасные и современные детские площадки, зоны отдыха. «Фонтаны» - уникальный, неповторимый жилой комплекс, воплощающий оригинальные и креативные решения дизайнеров и архитекторов. Дома округлой форме - это придает им легкости, несмотря на массивность постройки. ЖК «Фонтаны» расположен в микрорайоне Черёмушки. Отличная транспортная развязка позволяет быстро и с комфортом добраться до центра, а большое количество зеленых насаждений и парков дает возможность гулять с детьми и наслаждаться прекрасным видом на Кубань. АКЦИЯ: В жилом комплексе «Фонтаны» семьи с детьми до шести лет включительно могут оформить ипотеку по льготной ставке от 3,5% при первоначальном взносе от 20%. Это возможность приобрести современную квартиру с продуманной планировкой, панорамными окнами и видами на реку Кубань, не откладывая мечту «на потом». Территория ЖК - продуманное пространство для жизни: здесь найдётся место и для детских игр, и для спокойного отдыха взрослых, а близость к парковой зоне и будущему детскому саду сделает каждый день ещё комфортнее. Выбирайте квартиру с готовым ремонтом и заселяйтесь без лишних хлопот - всё, что нужно для старта новой главы вашей семейной истории, уже здесь. Информация носит справочный характер. Не является публичной офертой. Аккредитованные банки: Сбербанк, Альфа-Банк, ВТБ, Банк Уралсиб, РОССИЯ, Абсолют Банк, Металлинвестбанк, РНКБ, ПСБ, Кубань Кредит, Банк ВБРР, Россельхозбанк. Позвоните и узнайте условия покупки прямо сейчас!
14.04.2026
11 000 000 ₽
Продам 2 комнатную квартиру 50.9 м2 картинка из объявления
10
Продается 2-комн. квартира, площадью 50.9 м2 в монолитно-кирпичной новостройке. Возможен вариант покупки с использованием ипотечных средств, есть рассрочка, возможна покупка с использованием материнского капитала, есть военная ипотека. Жилая площадь 25 м2, кухня 13 м2, предчистовая отделка. Квартира располагается на 6 этаже 18-этажного дома в ЖК Фонтаны. Застройщик - ГК ССК, сдача дома - IV квартал 2026 года. Дом оборудован пассажирским лифтом, закрытая территория. Отдельная многоуровневая парковка, парковка охраняется. Обеспечение безопасности: видеонаблюдение, противопожарная система. Инфраструктура: детский сад, детские площадки, спортивные площадки, места для отдыха, супермаркет, рестораны, фитнес-центр, пункты бытового обслуживания, коммерческие объекты. Жилой комплекс «Фонтаны» - дом клубного типа. Преимущество заключается в продуманном ландшафте дворов, круглосуточно охраняемой территории, системе видеонаблюдения во дворе. Также для удобства жителей проведен Wi-Fi во дворе, оборудованы безопасные и современные детские площадки, зоны отдыха. «Фонтаны» - уникальный, неповторимый жилой комплекс, воплощающий оригинальные и креативные решения дизайнеров и архитекторов. Дома округлой форме - это придает им легкости, несмотря на массивность постройки. ЖК «Фонтаны» расположен в микрорайоне Черёмушки. Отличная транспортная развязка позволяет быстро и с комфортом добраться до центра, а большое количество зеленых насаждений и парков дает возможность гулять с детьми и наслаждаться прекрасным видом на Кубань. АКЦИЯ: В жилом комплексе «Фонтаны» семьи с детьми до шести лет включительно могут оформить ипотеку по льготной ставке от 3,5% при первоначальном взносе от 20%. Это возможность приобрести современную квартиру с продуманной планировкой, панорамными окнами и видами на реку Кубань, не откладывая мечту «на потом». Территория ЖК - продуманное пространство для жизни: здесь найдётся место и для детских игр, и для спокойного отдыха взрослых, а близость к парковой зоне и будущему детскому саду сделает каждый день ещё комфортнее. Выбирайте квартиру с готовым ремонтом и заселяйтесь без лишних хлопот - всё, что нужно для старта новой главы вашей семейной истории, уже здесь. Информация носит справочный характер. Не является публичной офертой. Аккредитованные банки: Сбербанк, Альфа-Банк, ВТБ, Банк Уралсиб, РОССИЯ, Абсолют Банк, Металлинвестбанк, РНКБ, ПСБ, Кубань Кредит, Банк ВБРР, Россельхозбанк. Позвоните и узнайте условия покупки прямо сейчас!
14.04.2026
10 180 000 ₽
Продам 2 комнатную квартиру 51.4 м2 картинка из объявления
10
Продается 2-комн. квартира, площадью 51.4 м2 в монолитно-кирпичной новостройке. Возможен вариант покупки с использованием ипотечных средств, есть рассрочка, возможна покупка с использованием материнского капитала, есть военная ипотека. Жилая площадь 25 м2, кухня 13.5 м2, предчистовая отделка. Квартира располагается на 2 этаже 18-этажного дома в ЖК Фонтаны. Застройщик - ГК ССК, сдача дома - IV квартал 2026 года. Дом оборудован пассажирским лифтом, закрытая территория. Отдельная многоуровневая парковка, парковка охраняется. Обеспечение безопасности: видеонаблюдение, противопожарная система. Инфраструктура: детский сад, детские площадки, спортивные площадки, места для отдыха, супермаркет, рестораны, фитнес-центр, пункты бытового обслуживания, коммерческие объекты. Жилой комплекс «Фонтаны» - дом клубного типа. Преимущество заключается в продуманном ландшафте дворов, круглосуточно охраняемой территории, системе видеонаблюдения во дворе. Также для удобства жителей проведен Wi-Fi во дворе, оборудованы безопасные и современные детские площадки, зоны отдыха. «Фонтаны» - уникальный, неповторимый жилой комплекс, воплощающий оригинальные и креативные решения дизайнеров и архитекторов. Дома округлой форме - это придает им легкости, несмотря на массивность постройки. ЖК «Фонтаны» расположен в микрорайоне Черёмушки. Отличная транспортная развязка позволяет быстро и с комфортом добраться до центра, а большое количество зеленых насаждений и парков дает возможность гулять с детьми и наслаждаться прекрасным видом на Кубань. АКЦИЯ: В жилом комплексе «Фонтаны» семьи с детьми до шести лет включительно могут оформить ипотеку по льготной ставке от 3,5% при первоначальном взносе от 20%. Это возможность приобрести современную квартиру с продуманной планировкой, панорамными окнами и видами на реку Кубань, не откладывая мечту «на потом». Территория ЖК - продуманное пространство для жизни: здесь найдётся место и для детских игр, и для спокойного отдыха взрослых, а близость к парковой зоне и будущему детскому саду сделает каждый день ещё комфортнее. Выбирайте квартиру с готовым ремонтом и заселяйтесь без лишних хлопот - всё, что нужно для старта новой главы вашей семейной истории, уже здесь. Информация носит справочный характер. Не является публичной офертой. Аккредитованные банки: Сбербанк, Альфа-Банк, ВТБ, Банк Уралсиб, РОССИЯ, Абсолют Банк, Металлинвестбанк, РНКБ, ПСБ, Кубань Кредит, Банк ВБРР, Россельхозбанк. Позвоните и узнайте условия покупки прямо сейчас!
14.04.2026
10 280 000 ₽
Продам 2 комнатную квартиру 55.86 м2 картинка из объявления
10
Продается 2-комн. квартира, площадью 55.86 м2 в монолитно-кирпичной новостройке. Возможен вариант покупки с использованием ипотечных средств, есть рассрочка, возможна покупка с использованием материнского капитала, есть военная ипотека. Жилая площадь 24.79 м2, кухня 17.2 м2, предчистовая отделка. Квартира располагается на 10 этаже 18-этажного дома в ЖК Фонтаны. Застройщик - ГК ССК, сдача дома - IV квартал 2026 года, высота потолков 2.82 м. Дом оборудован пассажирским лифтом, закрытая территория. Отдельная многоуровневая парковка, парковка охраняется. Обеспечение безопасности: видеонаблюдение, противопожарная система. Инфраструктура: детский сад, детские площадки, спортивные площадки, места для отдыха, супермаркет, рестораны, фитнес-центр, пункты бытового обслуживания, коммерческие объекты. Жилой комплекс «Фонтаны» - дом клубного типа. Преимущество заключается в продуманном ландшафте дворов, круглосуточно охраняемой территории, системе видеонаблюдения во дворе. Также для удобства жителей проведен Wi-Fi во дворе, оборудованы безопасные и современные детские площадки, зоны отдыха. «Фонтаны» - уникальный, неповторимый жилой комплекс, воплощающий оригинальные и креативные решения дизайнеров и архитекторов. Дома округлой форме - это придает им легкости, несмотря на массивность постройки. ЖК «Фонтаны» расположен в микрорайоне Черёмушки. Отличная транспортная развязка позволяет быстро и с комфортом добраться до центра, а большое количество зеленых насаждений и парков дает возможность гулять с детьми и наслаждаться прекрасным видом на Кубань. АКЦИЯ: В жилом комплексе «Фонтаны» семьи с детьми до шести лет включительно могут оформить ипотеку по льготной ставке от 3,5% при первоначальном взносе от 20%. Это возможность приобрести современную квартиру с продуманной планировкой, панорамными окнами и видами на реку Кубань, не откладывая мечту «на потом». Территория ЖК - продуманное пространство для жизни: здесь найдётся место и для детских игр, и для спокойного отдыха взрослых, а близость к парковой зоне и будущему детскому саду сделает каждый день ещё комфортнее. Выбирайте квартиру с готовым ремонтом и заселяйтесь без лишних хлопот - всё, что нужно для старта новой главы вашей семейной истории, уже здесь. Информация носит справочный характер. Не является публичной офертой. Аккредитованные банки: Сбербанк, Альфа-Банк, ВТБ, Банк Уралсиб, РОССИЯ, Абсолют Банк, Металлинвестбанк, РНКБ, ПСБ, Кубань Кредит, Банк ВБРР, Россельхозбанк. Позвоните и узнайте условия покупки прямо сейчас!
14.04.2026
9 775 500 ₽
Продам 1 комнатную квартиру 27.7 м2 картинка из объявления
3
Представляем вашему вниманию уютную однокомнатную квартиру-студию общей площадью 27.7 м, расположенную на третьем этаже пятиэтажного кирпичного дома (кадастровый № 01: 05: 2900013: 32196) . Это идеальное предложение для тех, кто ценит комфортное пространство и стремится создать собственный уникальный интерьер. Просторная студия позволит воплотить любые дизайнерские идеи - здесь вы сможете обустроить жилое пространство именно так, как вам удобно и приятно жить. Квартира отличается функциональной планировкой предоставляя больше возможностей для реализации творческих решений. Идеальное решение для молодых специалистов, инвесторов или желающих приобрести жильё в качестве первого собственного пространства! Здесь вас ждёт просторная зона отдыха, работы и творчества одновременно. Кирпичные стены обеспечивают отличные теплоизоляционные свойства, гарантируют тишину и спокойствие внутри помещения даже в шумных городских условиях. Благодаря удачному расположению окна получают достаточно естественного света, создавая атмосферу тепла и комфорта. Простор для фантазии открыт: квартира требует ремонта, что даёт возможность сделать её такой, какой мечтаете именно вы! Не упустите шанс стать обладателем прекрасной студии, где каждый квадратный метр будет наполнен вашим вкусом и стилем жизни.
11.04.2026
2 218 500 ₽
Продам 2 комнатную квартиру 62.69 м2 картинка из объявления
10
Продается 2-комн. квартира, площадью 62.69 м2 в монолитно-кирпичной новостройке. Возможен вариант покупки с использованием ипотечных средств, есть рассрочка, возможна покупка с использованием материнского капитала, есть военная ипотека. Жилая площадь 31.25 м2, кухня 15.41 м2, предчистовая отделка. Квартира располагается на 5 этаже 18-этажного дома в ЖК Фонтаны. Застройщик - ГК ССК, сдача дома - IV квартал 2026 года, высота потолков 2.82 м. Дом оборудован пассажирским лифтом, закрытая территория. Отдельная многоуровневая парковка, парковка охраняется. Обеспечение безопасности: видеонаблюдение, противопожарная система. Инфраструктура: детский сад, детские площадки, спортивные площадки, места для отдыха, супермаркет, рестораны, фитнес-центр, пункты бытового обслуживания, коммерческие объекты. Жилой комплекс «Фонтаны» - дом клубного типа. Преимущество заключается в продуманном ландшафте дворов, круглосуточно охраняемой территории, системе видеонаблюдения во дворе. Также для удобства жителей проведен Wi-Fi во дворе, оборудованы безопасные и современные детские площадки, зоны отдыха. «Фонтаны» - уникальный, неповторимый жилой комплекс, воплощающий оригинальные и креативные решения дизайнеров и архитекторов. Дома округлой форме - это придает им легкости, несмотря на массивность постройки. ЖК «Фонтаны» расположен в микрорайоне Черёмушки. Отличная транспортная развязка позволяет быстро и с комфортом добраться до центра, а большое количество зеленых насаждений и парков дает возможность гулять с детьми и наслаждаться прекрасным видом на Кубань. АКЦИЯ: В жилом комплексе «Фонтаны» семьи с детьми до шести лет включительно могут оформить ипотеку по льготной ставке от 3,5% при первоначальном взносе от 20%. Это возможность приобрести современную квартиру с продуманной планировкой, панорамными окнами и видами на реку Кубань, не откладывая мечту «на потом». Территория ЖК - продуманное пространство для жизни: здесь найдётся место и для детских игр, и для спокойного отдыха взрослых, а близость к парковой зоне и будущему детскому саду сделает каждый день ещё комфортнее. Выбирайте квартиру с готовым ремонтом и заселяйтесь без лишних хлопот - всё, что нужно для старта новой главы вашей семейной истории, уже здесь. Информация носит справочный характер. Не является публичной офертой. Аккредитованные банки: Сбербанк, Альфа-Банк, ВТБ, Банк Уралсиб, РОССИЯ, Абсолют Банк, Металлинвестбанк, РНКБ, ПСБ, Кубань Кредит, Банк ВБРР, Россельхозбанк. Позвоните и узнайте условия покупки прямо сейчас!
14.04.2026
10 343 850 ₽
Продам 2 комнатную квартиру 50.9 м2 картинка из объявления
10
Продается 2-комн. квартира, площадью 50.9 м2 в монолитно-кирпичной новостройке. Возможен вариант покупки с использованием ипотечных средств, есть рассрочка, возможна покупка с использованием материнского капитала, есть военная ипотека. Жилая площадь 25 м2, кухня 13 м2, предчистовая отделка. Квартира располагается на 16 этаже 18-этажного дома в ЖК Фонтаны. Застройщик - ГК ССК, сдача дома - IV квартал 2026 года. Дом оборудован пассажирским лифтом, закрытая территория. Отдельная многоуровневая парковка, парковка охраняется. Обеспечение безопасности: видеонаблюдение, противопожарная система. Инфраструктура: детский сад, детские площадки, спортивные площадки, места для отдыха, супермаркет, рестораны, фитнес-центр, пункты бытового обслуживания, коммерческие объекты. Жилой комплекс «Фонтаны» - дом клубного типа. Преимущество заключается в продуманном ландшафте дворов, круглосуточно охраняемой территории, системе видеонаблюдения во дворе. Также для удобства жителей проведен Wi-Fi во дворе, оборудованы безопасные и современные детские площадки, зоны отдыха. «Фонтаны» - уникальный, неповторимый жилой комплекс, воплощающий оригинальные и креативные решения дизайнеров и архитекторов. Дома округлой форме - это придает им легкости, несмотря на массивность постройки. ЖК «Фонтаны» расположен в микрорайоне Черёмушки. Отличная транспортная развязка позволяет быстро и с комфортом добраться до центра, а большое количество зеленых насаждений и парков дает возможность гулять с детьми и наслаждаться прекрасным видом на Кубань. АКЦИЯ: В жилом комплексе «Фонтаны» семьи с детьми до шести лет включительно могут оформить ипотеку по льготной ставке от 3,5% при первоначальном взносе от 20%. Это возможность приобрести современную квартиру с продуманной планировкой, панорамными окнами и видами на реку Кубань, не откладывая мечту «на потом». Территория ЖК - продуманное пространство для жизни: здесь найдётся место и для детских игр, и для спокойного отдыха взрослых, а близость к парковой зоне и будущему детскому саду сделает каждый день ещё комфортнее. Выбирайте квартиру с готовым ремонтом и заселяйтесь без лишних хлопот - всё, что нужно для старта новой главы вашей семейной истории, уже здесь. Информация носит справочный характер. Не является публичной офертой. Аккредитованные банки: Сбербанк, Альфа-Банк, ВТБ, Банк Уралсиб, РОССИЯ, Абсолют Банк, Металлинвестбанк, РНКБ, ПСБ, Кубань Кредит, Банк ВБРР, Россельхозбанк. Позвоните и узнайте условия покупки прямо сейчас!
14.04.2026
10 689 000 ₽
Продам 1 комнатную квартиру 36.7 м2 картинка из объявления
2
Квартира мечты в новом доме - всего от 36.7 квадратных метров комфорта! Представляем вашему вниманию уютную однокомнатную квартиру общей площадью 36.7 м, расположенную на пятом этаже современного семнадцатиэтажного дома (год постройки - 2024) . Идеальное решение для тех, кто ценит комфортное пространство и мечтает создать собственный уникальный интерьер! Просторная кухня площадью **14.2 м** позволит воплотить любые кулинарные фантазии и станет местом семейных ужинов и дружеских встреч. Уютная изолированная комната подарит возможность обустроить идеальное место отдыха после насыщенного дня. Практичная совмещенная планировка санузла обеспечит дополнительное удобство. Балкон заменяет просторная светлая лоджия, где приятно насладиться чашечкой кофе утром или полюбоваться вечерним городом. Уникальная возможность приобрести жилье с нуля и реализовать самые смелые дизайнерские идеи благодаря отсутствию отделки («ремонт требуется») . Здесь вы сможете создать идеальный дом своей мечты именно таким, каким представляете себе идеал домашнего очага. Не упустите шанс стать обладателем квартиры с кадастровым номером **23: 43: 0106012: 61750**. Сделайте первый шаг навстречу своему будущему дому уже сегодня!
11.04.2026
4 592 000 ₽
Продам 2 комнатную квартиру 51.6 м2 картинка из объявления
10
Продается 2-комн. квартира, площадью 51.6 м2 в монолитно-кирпичной новостройке. Возможен вариант покупки с использованием ипотечных средств, есть рассрочка, возможна покупка с использованием материнского капитала, есть военная ипотека. Жилая площадь 24.8 м2, кухня 13.5 м2, предчистовая отделка. Квартира располагается на 2 этаже 18-этажного дома в ЖК Фонтаны. Застройщик - ГК ССК, сдача дома - IV квартал 2026 года, высота потолков 2.82 м. Дом оборудован пассажирским лифтом, закрытая территория. Отдельная многоуровневая парковка, парковка охраняется. Обеспечение безопасности: видеонаблюдение, противопожарная система. Инфраструктура: детский сад, детские площадки, спортивные площадки, места для отдыха, супермаркет, рестораны, фитнес-центр, пункты бытового обслуживания, коммерческие объекты. Жилой комплекс «Фонтаны» - дом клубного типа. Преимущество заключается в продуманном ландшафте дворов, круглосуточно охраняемой территории, системе видеонаблюдения во дворе. Также для удобства жителей проведен Wi-Fi во дворе, оборудованы безопасные и современные детские площадки, зоны отдыха. «Фонтаны» - уникальный, неповторимый жилой комплекс, воплощающий оригинальные и креативные решения дизайнеров и архитекторов. Дома округлой форме - это придает им легкости, несмотря на массивность постройки. ЖК «Фонтаны» расположен в микрорайоне Черёмушки. Отличная транспортная развязка позволяет быстро и с комфортом добраться до центра, а большое количество зеленых насаждений и парков дает возможность гулять с детьми и наслаждаться прекрасным видом на Кубань. АКЦИЯ: В жилом комплексе «Фонтаны» семьи с детьми до шести лет включительно могут оформить ипотеку по льготной ставке от 3,5% при первоначальном взносе от 20%. Это возможность приобрести современную квартиру с продуманной планировкой, панорамными окнами и видами на реку Кубань, не откладывая мечту «на потом». Территория ЖК - продуманное пространство для жизни: здесь найдётся место и для детских игр, и для спокойного отдыха взрослых, а близость к парковой зоне и будущему детскому саду сделает каждый день ещё комфортнее. Выбирайте квартиру с готовым ремонтом и заселяйтесь без лишних хлопот - всё, что нужно для старта новой главы вашей семейной истории, уже здесь. Информация носит справочный характер. Не является публичной офертой. Аккредитованные банки: Сбербанк, Альфа-Банк, ВТБ, Банк Уралсиб, РОССИЯ, Абсолют Банк, Металлинвестбанк, РНКБ, ПСБ, Кубань Кредит, Банк ВБРР, Россельхозбанк. Позвоните и узнайте условия покупки прямо сейчас!
14.04.2026
10 578 000 ₽

Как купить квартиру в Холмской

Купить квартиру в Холмской в тихом и спокойном районе без агентств с наценками и переплатами – теперь это возможно благодаря нашей доске объявлений – “Разместить Объявление.Ру или Рудос” Здесь представлена информация об однокомнатных квартирах и квартирах с просторной площадью, жилье в новостройках и вторичной недвижимости. После просмотра фотографий и описания объекта Холмской, вы можете связаться с продавцом для обсуждения деталей и заключения договора купли-продажи.

0.2188